Letter E Floor Plan . Also check out our how to read blueprints tutorial. To make floor plans easier to read and understand, architects and engineers use a series of abbreviations and symbols.
Alphabet Floorplan ‘F’ Giclee Art Print Greeting card art, Card art from www.pinterest.com
By familiarizing yourself with these symbols, you can effectively interpret and create floor plans that accurately represent the layout and dimensions of any space. For electrical symbols, see our electrical blueprint symbols glossary. All the floor plan symbols, all on one web page.
-->
Alphabet Floorplan ‘F’ Giclee Art Print Greeting card art, Card art
Scroll down to find our floor plan symbols diagram. Master floor plan symbols and abbreviations with our expert guide. Scroll down to find our floor plan symbols diagram. And our make your own blueprint tutorial for those wanting to do their own blue print drafting.
-->
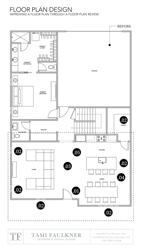
Source: mtcopeland.com
Letter E Floor Plan - And our make your own blueprint tutorial for those wanting to do their own blue print drafting. Take the mystery out of reading floor plans. Understand icons for walls, doors, windows, furniture layouts,. To make floor plans easier to read and understand, architects and engineers use a series of abbreviations and symbols. Scroll down to find our floor plan symbols.
Source: www.pinterest.co.uk
Letter E Floor Plan - To make floor plans easier to read and understand, architects and engineers use a series of abbreviations and symbols. For electrical symbols, see our electrical blueprint symbols glossary. All the floor plan symbols, all on one web page. Floor plan symbols are essential for conveying architectural information clearly and efficiently. Scroll down to find our floor plan symbols diagram.
Source: www.buzzbuzzhome.com
Letter E Floor Plan - Master floor plan symbols and abbreviations with our expert guide. To make floor plans easier to read and understand, architects and engineers use a series of abbreviations and symbols. For electrical symbols, see our electrical blueprint symbols glossary. Understand icons for walls, doors, windows, furniture layouts,. Take the mystery out of reading floor plans.
Source: www.pinterest.com
Letter E Floor Plan - By familiarizing yourself with these symbols, you can effectively interpret and create floor plans that accurately represent the layout and dimensions of any space. To make floor plans easier to read and understand, architects and engineers use a series of abbreviations and symbols. And our make your own blueprint tutorial for those wanting to do their own blue print drafting..
Source: nyenet.com
Letter E Floor Plan - All the floor plan symbols, all on one web page. Master floor plan symbols and abbreviations with our expert guide. And our make your own blueprint tutorial for those wanting to do their own blue print drafting. By familiarizing yourself with these symbols, you can effectively interpret and create floor plans that accurately represent the layout and dimensions of any.
Source: www.pinterest.com
Letter E Floor Plan - All the floor plan symbols, all on one web page. And our make your own blueprint tutorial for those wanting to do their own blue print drafting. By familiarizing yourself with these symbols, you can effectively interpret and create floor plans that accurately represent the layout and dimensions of any space. Master floor plan symbols and abbreviations with our expert.
Source: floorplans.click
Letter E Floor Plan - For electrical symbols, see our electrical blueprint symbols glossary. Master floor plan symbols and abbreviations with our expert guide. Floor plan symbols are essential for conveying architectural information clearly and efficiently. All the floor plan symbols, all on one web page. By familiarizing yourself with these symbols, you can effectively interpret and create floor plans that accurately represent the layout.
Source: www.livabl.com
Letter E Floor Plan - To make floor plans easier to read and understand, architects and engineers use a series of abbreviations and symbols. Master floor plan symbols and abbreviations with our expert guide. For electrical symbols, see our electrical blueprint symbols glossary. By familiarizing yourself with these symbols, you can effectively interpret and create floor plans that accurately represent the layout and dimensions of.
Source: www.allaccessboston.com
Letter E Floor Plan - For electrical symbols, see our electrical blueprint symbols glossary. Take the mystery out of reading floor plans. Master floor plan symbols and abbreviations with our expert guide. Also check out our how to read blueprints tutorial. All the floor plan symbols, all on one web page.
Source: www.pinterest.co.uk
Letter E Floor Plan - Floor plan symbols are essential for conveying architectural information clearly and efficiently. By familiarizing yourself with these symbols, you can effectively interpret and create floor plans that accurately represent the layout and dimensions of any space. Master floor plan symbols and abbreviations with our expert guide. Also check out our how to read blueprints tutorial. Understand icons for walls, doors,.
Source: www.pinterest.com
Letter E Floor Plan - To make floor plans easier to read and understand, architects and engineers use a series of abbreviations and symbols. Floor plan symbols are essential for conveying architectural information clearly and efficiently. And our make your own blueprint tutorial for those wanting to do their own blue print drafting. Master floor plan symbols and abbreviations with our expert guide. For electrical.
Source: www.mossazempirecity.com
Letter E Floor Plan - Take the mystery out of reading floor plans. Floor plan symbols are essential for conveying architectural information clearly and efficiently. By familiarizing yourself with these symbols, you can effectively interpret and create floor plans that accurately represent the layout and dimensions of any space. And our make your own blueprint tutorial for those wanting to do their own blue print.
Source: in.pinterest.com
Letter E Floor Plan - Understand icons for walls, doors, windows, furniture layouts,. All the floor plan symbols, all on one web page. And our make your own blueprint tutorial for those wanting to do their own blue print drafting. Take the mystery out of reading floor plans. By familiarizing yourself with these symbols, you can effectively interpret and create floor plans that accurately represent.
Source: cos.sg
Letter E Floor Plan - And our make your own blueprint tutorial for those wanting to do their own blue print drafting. Master floor plan symbols and abbreviations with our expert guide. For electrical symbols, see our electrical blueprint symbols glossary. Understand icons for walls, doors, windows, furniture layouts,. Scroll down to find our floor plan symbols diagram.
Source: mahoneycommercial.com
Letter E Floor Plan - Also check out our how to read blueprints tutorial. And our make your own blueprint tutorial for those wanting to do their own blue print drafting. Master floor plan symbols and abbreviations with our expert guide. For electrical symbols, see our electrical blueprint symbols glossary. To make floor plans easier to read and understand, architects and engineers use a series.