Galley Kitchen Layout Drawing: Optimize Space with Precision Designs

In compact living spaces, every square inch counts, making the galley kitchen layout drawing an essential tool for maximizing efficiency and style. This compact yet functional design organizes cooking, cleaning, and storage into a streamlined workflow, transforming small kitchens into highly effective spaces. With precise drawings guiding every detail, homeowners and designers can visualize how to blend form and function seamlessly.

Galley Kitchen Layout Plans | Besto Blog

bestonlinecollegesdegrees.com

Galley kitchen layout drawings emphasize linear, space-saving configurations that bring all essential elements—counter, sink, stove, and storage—into a cohesive, uninterrupted workflow. By aligning appliances and work zones in a linear path, these designs eliminate wasted space and reduce movement, making everyday tasks faster and more ergonomic. Detailed drawings highlight optimal placement of cabinets, backsplashes, and lighting to enhance both usability and aesthetics.

10 Favorites: The Urban Galley Kitchen: Remodelista

remodelista.com

A well-planned galley kitchen layout drawing integrates critical components such as a central work triangle, ergonomic appliance positioning, and integrated storage solutions. Drawings often feature a compact island or peninsulas for additional prep space, wall-mounted shelves to free up floor area, and cabinetry that extends from floor to ceiling for maximum storage. Sketch plans clarify how these elements interact, ensuring balance between functionality and visual harmony.

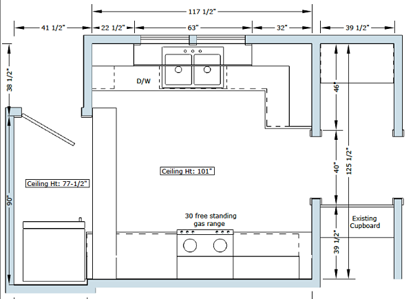
Galley Kitchen Layout CAD Image

www.pinterest.com

Galley kitchen layout drawings come in diverse configurations—from L-shaped to U-shaped—each tailored to available space and lifestyle needs. Drawings allow customization by adjusting dimensions, appliance placement, and storage solutions to suit individual preferences. Whether optimizing for small urban apartments or renovating a home office, these flexible plans provide scalable solutions that maintain efficiency without sacrificing style or comfort.

Kitchen Layouts Dimensions & Drawings | Dimensions.com

www.dimensions.com

Relying on expertly crafted galley kitchen layout drawings delivers clear advantages: precise measurements prevent costly redesigns, visual flow improves daily usability, and cohesive design enhances long-term value. Professionals use technical sketches to align structural elements with building codes and homeowner goals, ensuring durability and aesthetics. These drawings serve as a blueprint for seamless implementation, turning concept into a functional, beautiful kitchen space.

Galley Kitchen Floor Plans

ar.inspiredpencil.com

Galley kitchen layout drawings are indispensable for creating compact, efficient, and stylish kitchens. By leveraging detailed visual plans, homeowners unlock optimized workflows, smarter space use, and personalized designs that elevate everyday living. Investing in professional layout drawings transforms small kitchens into dynamic hubs of creativity and function, proving that great design starts with smart planning.

Galley Style Kitchen Layout Designs - CabinetSelect.com

cabinetselect.com

Project of the Month: Syracuse Galley-Style Kitchen Remodel

www.mcclurgteam.com

Kitchen Layouts | Kitchen Designs | Popular Kitchen Layouts

www.cadpro.com

Load Site Average 0,422 sec