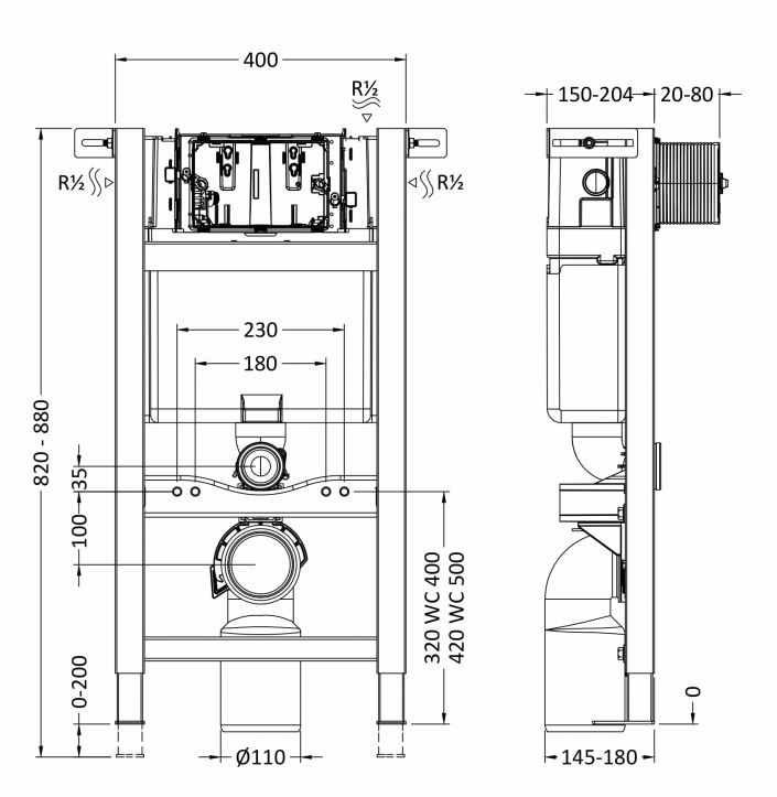
Wall Hung Toilet Frame Height . If you are planning on buying a wall hung toilet, you have the freedom to choose the flush plate and ceramic style that best suits you. How high should a wall hung toilet be? For standard bowl placement, check that the height is 230 mm. It is easy to imagine these two types of toilets as fated. Wall hung toilets have some flexibility in their height. For standard bowl placement, check that the height is 230 mm. If you’ve chosen a wall hung toilet for your bathroom, an essential feature you will need is a mounting frame. There are also reduced depth frames that are perfect for a small cavity wall, these frames are approximately 80mm thick and can offer a really slimline option for your wall hung toilet. Check to make sure the unit aligns with your marks. There isn't a specific height that you have to install. Check to make sure the unit aligns with your marks. Which is better between a wall hung toilet and a floor mounted toilet? This guide will give you a.
from www.rubberduckbathrooms.co.uk
If you’ve chosen a wall hung toilet for your bathroom, an essential feature you will need is a mounting frame. Check to make sure the unit aligns with your marks. It is easy to imagine these two types of toilets as fated. If you are planning on buying a wall hung toilet, you have the freedom to choose the flush plate and ceramic style that best suits you. There are also reduced depth frames that are perfect for a small cavity wall, these frames are approximately 80mm thick and can offer a really slimline option for your wall hung toilet. There isn't a specific height that you have to install. This guide will give you a. Check to make sure the unit aligns with your marks. For standard bowl placement, check that the height is 230 mm. Which is better between a wall hung toilet and a floor mounted toilet?
Nuie Mid Height Wall Hung Toilet Fixing Frame With Square Flush Button
Wall Hung Toilet Frame Height It is easy to imagine these two types of toilets as fated. There are also reduced depth frames that are perfect for a small cavity wall, these frames are approximately 80mm thick and can offer a really slimline option for your wall hung toilet. For standard bowl placement, check that the height is 230 mm. If you are planning on buying a wall hung toilet, you have the freedom to choose the flush plate and ceramic style that best suits you. For standard bowl placement, check that the height is 230 mm. Check to make sure the unit aligns with your marks. Wall hung toilets have some flexibility in their height. This guide will give you a. Check to make sure the unit aligns with your marks. How high should a wall hung toilet be? It is easy to imagine these two types of toilets as fated. If you’ve chosen a wall hung toilet for your bathroom, an essential feature you will need is a mounting frame. Which is better between a wall hung toilet and a floor mounted toilet? There isn't a specific height that you have to install.
From source.thenbs.com
0.82m Height Wall Hung Toilet Support Frame CROSSWATER NBS Source Wall Hung Toilet Frame Height There isn't a specific height that you have to install. How high should a wall hung toilet be? It is easy to imagine these two types of toilets as fated. There are also reduced depth frames that are perfect for a small cavity wall, these frames are approximately 80mm thick and can offer a really slimline option for your wall. Wall Hung Toilet Frame Height.
From comfortcleanse.com
Grohe Rapid Reduced Height Frame for WallHung Toilet Comfortcleanse Wall Hung Toilet Frame Height Wall hung toilets have some flexibility in their height. It is easy to imagine these two types of toilets as fated. This guide will give you a. Check to make sure the unit aligns with your marks. For standard bowl placement, check that the height is 230 mm. There isn't a specific height that you have to install. Which is. Wall Hung Toilet Frame Height.
From viewfloor.co
Wall Mounted Wc Standard Height From Floor Viewfloor.co Wall Hung Toilet Frame Height It is easy to imagine these two types of toilets as fated. For standard bowl placement, check that the height is 230 mm. Wall hung toilets have some flexibility in their height. Check to make sure the unit aligns with your marks. This guide will give you a. Which is better between a wall hung toilet and a floor mounted. Wall Hung Toilet Frame Height.
From buildiro.com
Nuie MidHeight Wall Hung Toilet Frame with Dual Flush Concealed Cistern Wall Hung Toilet Frame Height There isn't a specific height that you have to install. How high should a wall hung toilet be? This guide will give you a. For standard bowl placement, check that the height is 230 mm. Wall hung toilets have some flexibility in their height. If you are planning on buying a wall hung toilet, you have the freedom to choose. Wall Hung Toilet Frame Height.
From www.tradewashrooms.co.uk
Low Height Wall Hung WC Frame Siamp BCM 790 [31279010] Wall Hung Toilet Frame Height How high should a wall hung toilet be? Wall hung toilets have some flexibility in their height. Which is better between a wall hung toilet and a floor mounted toilet? If you are planning on buying a wall hung toilet, you have the freedom to choose the flush plate and ceramic style that best suits you. Check to make sure. Wall Hung Toilet Frame Height.
From www.bathroomplanet.com
Ideal Standard ProSys Wall Hung Toilet Frame and Cistern Bathroom Wall Hung Toilet Frame Height If you are planning on buying a wall hung toilet, you have the freedom to choose the flush plate and ceramic style that best suits you. Check to make sure the unit aligns with your marks. For standard bowl placement, check that the height is 230 mm. Wall hung toilets have some flexibility in their height. How high should a. Wall Hung Toilet Frame Height.
From bathso.co.uk
VitrA Reduced Height 3/6 Litre Dual Flush Wall Hung Toilet Frame Wall Hung Toilet Frame Height It is easy to imagine these two types of toilets as fated. For standard bowl placement, check that the height is 230 mm. If you’ve chosen a wall hung toilet for your bathroom, an essential feature you will need is a mounting frame. Check to make sure the unit aligns with your marks. This guide will give you a. There. Wall Hung Toilet Frame Height.
From www.caroma.co.nz
Urbane Wall Hung Invisi Series II® Toilet Suite Caroma Wall Hung Toilet Frame Height Check to make sure the unit aligns with your marks. Wall hung toilets have some flexibility in their height. For standard bowl placement, check that the height is 230 mm. It is easy to imagine these two types of toilets as fated. Check to make sure the unit aligns with your marks. There are also reduced depth frames that are. Wall Hung Toilet Frame Height.
From www.homary.com
Modern 1.1/1.6 GPF Dual Flush Elongated Wall Hung Toilet with InWall Wall Hung Toilet Frame Height Check to make sure the unit aligns with your marks. Check to make sure the unit aligns with your marks. It is easy to imagine these two types of toilets as fated. There isn't a specific height that you have to install. If you’ve chosen a wall hung toilet for your bathroom, an essential feature you will need is a. Wall Hung Toilet Frame Height.
From www.bathroomsupastore.com
Tavistock 1.17M Wall Hung Toilet Frame Wall Hung Toilet Frame Height For standard bowl placement, check that the height is 230 mm. Check to make sure the unit aligns with your marks. If you are planning on buying a wall hung toilet, you have the freedom to choose the flush plate and ceramic style that best suits you. Check to make sure the unit aligns with your marks. For standard bowl. Wall Hung Toilet Frame Height.
From www.bathroomplanet.com
111.799.00.3 Geberit Duofix Wall Hung Toilet Frame 1.14m With 8cm Wall Hung Toilet Frame Height Check to make sure the unit aligns with your marks. For standard bowl placement, check that the height is 230 mm. It is easy to imagine these two types of toilets as fated. Check to make sure the unit aligns with your marks. There are also reduced depth frames that are perfect for a small cavity wall, these frames are. Wall Hung Toilet Frame Height.
From www.tradewashrooms.co.uk
Wall Hung Toilet Frame Siamp SCU 350 [31250510] Wall Hung Toilet Frame Height Which is better between a wall hung toilet and a floor mounted toilet? How high should a wall hung toilet be? Wall hung toilets have some flexibility in their height. If you’ve chosen a wall hung toilet for your bathroom, an essential feature you will need is a mounting frame. Check to make sure the unit aligns with your marks.. Wall Hung Toilet Frame Height.
From www.bathroomsuppliesonline.com
Ideal Standard Prosys 1150mm 3 Adjustable Heights Pneumatic Wall Hung Wall Hung Toilet Frame Height How high should a wall hung toilet be? This guide will give you a. For standard bowl placement, check that the height is 230 mm. Check to make sure the unit aligns with your marks. Wall hung toilets have some flexibility in their height. If you are planning on buying a wall hung toilet, you have the freedom to choose. Wall Hung Toilet Frame Height.
From rowher.saisonsdumonde.fr
Grohe Bau wall hung toilet with soft close seat and wall mounting frame Wall Hung Toilet Frame Height There are also reduced depth frames that are perfect for a small cavity wall, these frames are approximately 80mm thick and can offer a really slimline option for your wall hung toilet. Wall hung toilets have some flexibility in their height. If you’ve chosen a wall hung toilet for your bathroom, an essential feature you will need is a mounting. Wall Hung Toilet Frame Height.
From www.aqva.co.uk
Geberit Duofix Wall Hung WC Frame 790mm With Low Height Furniture Cistern. Wall Hung Toilet Frame Height If you’ve chosen a wall hung toilet for your bathroom, an essential feature you will need is a mounting frame. Check to make sure the unit aligns with your marks. For standard bowl placement, check that the height is 230 mm. Check to make sure the unit aligns with your marks. There isn't a specific height that you have to. Wall Hung Toilet Frame Height.
From www.tapsempire.co.uk
Scudo Wall Hung Toilet WC Frame & Pneumatic Cistern Wall Hung Toilet Frame Height There isn't a specific height that you have to install. Wall hung toilets have some flexibility in their height. Check to make sure the unit aligns with your marks. For standard bowl placement, check that the height is 230 mm. Check to make sure the unit aligns with your marks. For standard bowl placement, check that the height is 230. Wall Hung Toilet Frame Height.
From www.spendow.com
Nuie MidHeight Wall Hung Toilet Frame With Dual Flush Concealed Wall Hung Toilet Frame Height Which is better between a wall hung toilet and a floor mounted toilet? There isn't a specific height that you have to install. There are also reduced depth frames that are perfect for a small cavity wall, these frames are approximately 80mm thick and can offer a really slimline option for your wall hung toilet. If you’ve chosen a wall. Wall Hung Toilet Frame Height.
From www.misterplumber.ca
WallHung Toilet Frame Mounting and Installation Mister Plumber Wall Hung Toilet Frame Height This guide will give you a. For standard bowl placement, check that the height is 230 mm. For standard bowl placement, check that the height is 230 mm. If you’ve chosen a wall hung toilet for your bathroom, an essential feature you will need is a mounting frame. If you are planning on buying a wall hung toilet, you have. Wall Hung Toilet Frame Height.
From www.geberitnorthamerica.com
301 Moved Permanently Wall Hung Toilet Frame Height How high should a wall hung toilet be? For standard bowl placement, check that the height is 230 mm. For standard bowl placement, check that the height is 230 mm. There isn't a specific height that you have to install. Check to make sure the unit aligns with your marks. If you’ve chosen a wall hung toilet for your bathroom,. Wall Hung Toilet Frame Height.
From www.victorianplumbing.co.uk
Nuie Cambria Wall Hung Toilet with Dual Flush Concealed WC Cistern Wall Hung Toilet Frame Height Check to make sure the unit aligns with your marks. It is easy to imagine these two types of toilets as fated. There are also reduced depth frames that are perfect for a small cavity wall, these frames are approximately 80mm thick and can offer a really slimline option for your wall hung toilet. Wall hung toilets have some flexibility. Wall Hung Toilet Frame Height.
From www.dimensions.guide
TOTO Aquia WallHung Toilet Dimensions & Drawings Dimensions.Guide Wall Hung Toilet Frame Height There isn't a specific height that you have to install. Wall hung toilets have some flexibility in their height. This guide will give you a. For standard bowl placement, check that the height is 230 mm. For standard bowl placement, check that the height is 230 mm. Check to make sure the unit aligns with your marks. Check to make. Wall Hung Toilet Frame Height.
From www.aqva.co.uk
Pura Reduced Height Wall Hung WC Frame With Front Dual Flush Plate Wall Hung Toilet Frame Height This guide will give you a. If you’ve chosen a wall hung toilet for your bathroom, an essential feature you will need is a mounting frame. How high should a wall hung toilet be? If you are planning on buying a wall hung toilet, you have the freedom to choose the flush plate and ceramic style that best suits you.. Wall Hung Toilet Frame Height.
From www.betterbathrooms.com
Wall Hung Toilet with Soft Close Seat Frame and Cistern Grohe Solido Wall Hung Toilet Frame Height This guide will give you a. Check to make sure the unit aligns with your marks. Wall hung toilets have some flexibility in their height. If you are planning on buying a wall hung toilet, you have the freedom to choose the flush plate and ceramic style that best suits you. It is easy to imagine these two types of. Wall Hung Toilet Frame Height.
From www.elevenobjects.com
Wall Hung Toilet Frame Dimensions Wall Design Ideas Wall Hung Toilet Frame Height Which is better between a wall hung toilet and a floor mounted toilet? This guide will give you a. Wall hung toilets have some flexibility in their height. For standard bowl placement, check that the height is 230 mm. There isn't a specific height that you have to install. Check to make sure the unit aligns with your marks. If. Wall Hung Toilet Frame Height.
From www.tradewashrooms.co.uk
Wall Hung Toilet Frame and Cistern Siamp BCM 350 [31231513] Wall Hung Toilet Frame Height Check to make sure the unit aligns with your marks. There are also reduced depth frames that are perfect for a small cavity wall, these frames are approximately 80mm thick and can offer a really slimline option for your wall hung toilet. For standard bowl placement, check that the height is 230 mm. How high should a wall hung toilet. Wall Hung Toilet Frame Height.
From www.victorianplumbing.co.uk
Ideal Standard Connect Freedom Raised Height Wall Hung Toilet Wall Hung Toilet Frame Height This guide will give you a. If you are planning on buying a wall hung toilet, you have the freedom to choose the flush plate and ceramic style that best suits you. For standard bowl placement, check that the height is 230 mm. Which is better between a wall hung toilet and a floor mounted toilet? It is easy to. Wall Hung Toilet Frame Height.
From www.ukbathrooms.com
Roca Duplo Wall Hung Toilet Frame and Cistern UK Bathrooms Wall Hung Toilet Frame Height If you’ve chosen a wall hung toilet for your bathroom, an essential feature you will need is a mounting frame. How high should a wall hung toilet be? Check to make sure the unit aligns with your marks. For standard bowl placement, check that the height is 230 mm. If you are planning on buying a wall hung toilet, you. Wall Hung Toilet Frame Height.
From cheekybathrooms.co.uk
Tavistock Wall Hung Toilet Frame 0.82m CHEEKY BATHROOMS Wall Hung Toilet Frame Height There isn't a specific height that you have to install. There are also reduced depth frames that are perfect for a small cavity wall, these frames are approximately 80mm thick and can offer a really slimline option for your wall hung toilet. It is easy to imagine these two types of toilets as fated. If you’ve chosen a wall hung. Wall Hung Toilet Frame Height.
From www.ukbathrooms.com
Ideal Standard Concept Freedom Wall Hung Raised Height Toilet UK Wall Hung Toilet Frame Height If you’ve chosen a wall hung toilet for your bathroom, an essential feature you will need is a mounting frame. It is easy to imagine these two types of toilets as fated. For standard bowl placement, check that the height is 230 mm. For standard bowl placement, check that the height is 230 mm. Which is better between a wall. Wall Hung Toilet Frame Height.
From www.rubberduckbathrooms.co.uk
Nuie Mid Height Wall Hung Toilet Fixing Frame With Square Flush Button Wall Hung Toilet Frame Height If you are planning on buying a wall hung toilet, you have the freedom to choose the flush plate and ceramic style that best suits you. How high should a wall hung toilet be? There isn't a specific height that you have to install. If you’ve chosen a wall hung toilet for your bathroom, an essential feature you will need. Wall Hung Toilet Frame Height.
From www.bathroom.com.sg
Geberit Monolith Wall Hung WC Dimensions iDEAL MERCHANDISE Wall Hung Toilet Frame Height How high should a wall hung toilet be? If you’ve chosen a wall hung toilet for your bathroom, an essential feature you will need is a mounting frame. For standard bowl placement, check that the height is 230 mm. There are also reduced depth frames that are perfect for a small cavity wall, these frames are approximately 80mm thick and. Wall Hung Toilet Frame Height.
From www.heatandplumb.com
Nuie Wall Hung Toilet Frame XTY007 880mm White Wall Hung Toilet Frame Height If you’ve chosen a wall hung toilet for your bathroom, an essential feature you will need is a mounting frame. There isn't a specific height that you have to install. How high should a wall hung toilet be? Check to make sure the unit aligns with your marks. Wall hung toilets have some flexibility in their height. There are also. Wall Hung Toilet Frame Height.
From bathso.co.uk
VitrA Vitrus Glass Concealed Cistern 3/6 Litre Wall Hung Toilet Frame Wall Hung Toilet Frame Height This guide will give you a. If you are planning on buying a wall hung toilet, you have the freedom to choose the flush plate and ceramic style that best suits you. For standard bowl placement, check that the height is 230 mm. Wall hung toilets have some flexibility in their height. Check to make sure the unit aligns with. Wall Hung Toilet Frame Height.
From www.qssupplies.co.uk
Object moved Wall Hung Toilet Frame Height This guide will give you a. Check to make sure the unit aligns with your marks. For standard bowl placement, check that the height is 230 mm. There are also reduced depth frames that are perfect for a small cavity wall, these frames are approximately 80mm thick and can offer a really slimline option for your wall hung toilet. There. Wall Hung Toilet Frame Height.
From www.bathroomplanet.com
Grohe Rapid SL Wall Hung Toilet Frame Pack With Flush Plate Bathroom Wall Hung Toilet Frame Height There isn't a specific height that you have to install. There are also reduced depth frames that are perfect for a small cavity wall, these frames are approximately 80mm thick and can offer a really slimline option for your wall hung toilet. Check to make sure the unit aligns with your marks. Wall hung toilets have some flexibility in their. Wall Hung Toilet Frame Height.