City Of Peoria Zoning . Anyone can see this content. The planning and zoning commission holds public hearings to report findings and recommendations to the city council on requests. All zoning ordinance materials have. Visit this page to learn about. 18186, adopted august 13, 2024. Peoria's planning and zoning division is responsible for zoning cases, site plans, sign permits, and other essential services. Code of ordinances city of peoria, illinois codified through ordinance no. The development services center is an online resource for property owners wishing to develop or build in peoria. It also controls what is allowed in. Use the links below to find everything you need to complete your project. As of august 2022, city of peoria no longer maintains downloadable pdf documents of the zoning ordinance. The planning and zoning commission (pzc) approves all land use changes, annexations, new subdivisions, and major planning initiatives. The city's zoning code controls the location, size, and building materials of fences, buildings, garages, and homes.
from cityofpeoria.blogspot.com
Peoria's planning and zoning division is responsible for zoning cases, site plans, sign permits, and other essential services. Anyone can see this content. Use the links below to find everything you need to complete your project. As of august 2022, city of peoria no longer maintains downloadable pdf documents of the zoning ordinance. The city's zoning code controls the location, size, and building materials of fences, buildings, garages, and homes. Code of ordinances city of peoria, illinois codified through ordinance no. Visit this page to learn about. The planning and zoning commission (pzc) approves all land use changes, annexations, new subdivisions, and major planning initiatives. All zoning ordinance materials have. The planning and zoning commission holds public hearings to report findings and recommendations to the city council on requests.
City of Peoria Economic Development PEORIA IS LOOKING FOR A FEW GOOD
City Of Peoria Zoning Code of ordinances city of peoria, illinois codified through ordinance no. Peoria's planning and zoning division is responsible for zoning cases, site plans, sign permits, and other essential services. Use the links below to find everything you need to complete your project. The development services center is an online resource for property owners wishing to develop or build in peoria. All zoning ordinance materials have. 18186, adopted august 13, 2024. Visit this page to learn about. It also controls what is allowed in. Code of ordinances city of peoria, illinois codified through ordinance no. The city's zoning code controls the location, size, and building materials of fences, buildings, garages, and homes. The planning and zoning commission (pzc) approves all land use changes, annexations, new subdivisions, and major planning initiatives. Anyone can see this content. As of august 2022, city of peoria no longer maintains downloadable pdf documents of the zoning ordinance. The planning and zoning commission holds public hearings to report findings and recommendations to the city council on requests.
From www.wcbu.org
Peoria officials expect shortterm rental application process to ease City Of Peoria Zoning Visit this page to learn about. All zoning ordinance materials have. The planning and zoning commission (pzc) approves all land use changes, annexations, new subdivisions, and major planning initiatives. Use the links below to find everything you need to complete your project. It also controls what is allowed in. Code of ordinances city of peoria, illinois codified through ordinance no.. City Of Peoria Zoning.
From chicago.urbanize.city
Plan Commission approves 18th/Peoria development plan Urbanize Chicago City Of Peoria Zoning The planning and zoning commission holds public hearings to report findings and recommendations to the city council on requests. 18186, adopted august 13, 2024. Anyone can see this content. Peoria's planning and zoning division is responsible for zoning cases, site plans, sign permits, and other essential services. All zoning ordinance materials have. Code of ordinances city of peoria, illinois codified. City Of Peoria Zoning.
From www.pdffiller.com
Fillable Online City of Peoria Zoning Certificate Exemption Peoria City Of Peoria Zoning Peoria's planning and zoning division is responsible for zoning cases, site plans, sign permits, and other essential services. The planning and zoning commission (pzc) approves all land use changes, annexations, new subdivisions, and major planning initiatives. Visit this page to learn about. As of august 2022, city of peoria no longer maintains downloadable pdf documents of the zoning ordinance. It. City Of Peoria Zoning.
From peoriaazgis.maps.arcgis.com
City of Glendale, City of Phoenix, Bureau of Land Management, Esri City Of Peoria Zoning Anyone can see this content. Peoria's planning and zoning division is responsible for zoning cases, site plans, sign permits, and other essential services. Code of ordinances city of peoria, illinois codified through ordinance no. 18186, adopted august 13, 2024. Use the links below to find everything you need to complete your project. The planning and zoning commission (pzc) approves all. City Of Peoria Zoning.
From www.templateroller.com
City of Peoria, Illinois Application for Zoning Verification & Transfer City Of Peoria Zoning The planning and zoning commission (pzc) approves all land use changes, annexations, new subdivisions, and major planning initiatives. The planning and zoning commission holds public hearings to report findings and recommendations to the city council on requests. As of august 2022, city of peoria no longer maintains downloadable pdf documents of the zoning ordinance. Anyone can see this content. It. City Of Peoria Zoning.
From www.wcbu.org
Peoria City Council approves new district maps WCBU Peoria City Of Peoria Zoning Code of ordinances city of peoria, illinois codified through ordinance no. The planning and zoning commission holds public hearings to report findings and recommendations to the city council on requests. The planning and zoning commission (pzc) approves all land use changes, annexations, new subdivisions, and major planning initiatives. All zoning ordinance materials have. The city's zoning code controls the location,. City Of Peoria Zoning.
From hoodmaps.com
Peoria Neighborhood Map City Of Peoria Zoning Use the links below to find everything you need to complete your project. It also controls what is allowed in. As of august 2022, city of peoria no longer maintains downloadable pdf documents of the zoning ordinance. The planning and zoning commission holds public hearings to report findings and recommendations to the city council on requests. The planning and zoning. City Of Peoria Zoning.
From www.researchgate.net
Correspondence of pedestrian sheds (yellow circles) identified in the City Of Peoria Zoning Visit this page to learn about. Anyone can see this content. The planning and zoning commission holds public hearings to report findings and recommendations to the city council on requests. It also controls what is allowed in. Use the links below to find everything you need to complete your project. The city's zoning code controls the location, size, and building. City Of Peoria Zoning.
From peoriachronicle.com
Council approves new district map by 65 vote The Peoria Chronicle City Of Peoria Zoning The planning and zoning commission (pzc) approves all land use changes, annexations, new subdivisions, and major planning initiatives. Use the links below to find everything you need to complete your project. The planning and zoning commission holds public hearings to report findings and recommendations to the city council on requests. As of august 2022, city of peoria no longer maintains. City Of Peoria Zoning.
From www.templateroller.com
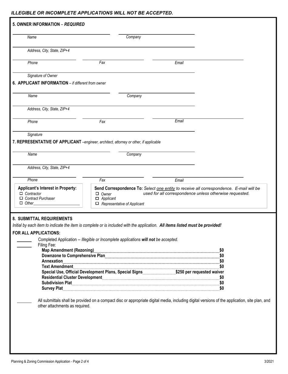
City of Peoria, Illinois Planning and Zoning Commission Application City Of Peoria Zoning 18186, adopted august 13, 2024. All zoning ordinance materials have. The city's zoning code controls the location, size, and building materials of fences, buildings, garages, and homes. Visit this page to learn about. Anyone can see this content. It also controls what is allowed in. Peoria's planning and zoning division is responsible for zoning cases, site plans, sign permits, and. City Of Peoria Zoning.
From cityofpeoria.blogspot.com
City of Peoria Economic Development Great Photos of Peoria, Illinois City Of Peoria Zoning Peoria's planning and zoning division is responsible for zoning cases, site plans, sign permits, and other essential services. 18186, adopted august 13, 2024. Use the links below to find everything you need to complete your project. The planning and zoning commission holds public hearings to report findings and recommendations to the city council on requests. Visit this page to learn. City Of Peoria Zoning.
From www.youtube.com
Zoning Board 11/11/19 City of East Peoria YouTube City Of Peoria Zoning It also controls what is allowed in. The planning and zoning commission (pzc) approves all land use changes, annexations, new subdivisions, and major planning initiatives. As of august 2022, city of peoria no longer maintains downloadable pdf documents of the zoning ordinance. Peoria's planning and zoning division is responsible for zoning cases, site plans, sign permits, and other essential services.. City Of Peoria Zoning.
From www.templateroller.com
City of Peoria, Illinois Zoning Certificate Application for a Fence City Of Peoria Zoning The planning and zoning commission holds public hearings to report findings and recommendations to the city council on requests. As of august 2022, city of peoria no longer maintains downloadable pdf documents of the zoning ordinance. Anyone can see this content. Peoria's planning and zoning division is responsible for zoning cases, site plans, sign permits, and other essential services. The. City Of Peoria Zoning.
From peoriachronicle.com
Redistricting The Peoria Chronicle City Of Peoria Zoning The planning and zoning commission (pzc) approves all land use changes, annexations, new subdivisions, and major planning initiatives. 18186, adopted august 13, 2024. The planning and zoning commission holds public hearings to report findings and recommendations to the city council on requests. All zoning ordinance materials have. Peoria's planning and zoning division is responsible for zoning cases, site plans, sign. City Of Peoria Zoning.
From www.templateroller.com
City of Peoria, Illinois Planning and Zoning Commission Application City Of Peoria Zoning It also controls what is allowed in. Peoria's planning and zoning division is responsible for zoning cases, site plans, sign permits, and other essential services. Visit this page to learn about. Use the links below to find everything you need to complete your project. All zoning ordinance materials have. 18186, adopted august 13, 2024. The development services center is an. City Of Peoria Zoning.
From www.templateroller.com
City of Peoria, Illinois Zoning Board of Appeals Appeal Application City Of Peoria Zoning As of august 2022, city of peoria no longer maintains downloadable pdf documents of the zoning ordinance. Anyone can see this content. 18186, adopted august 13, 2024. All zoning ordinance materials have. Visit this page to learn about. Use the links below to find everything you need to complete your project. Code of ordinances city of peoria, illinois codified through. City Of Peoria Zoning.
From peoriachronicle.com
Economic Development The Peoria Chronicle City Of Peoria Zoning Anyone can see this content. Use the links below to find everything you need to complete your project. Visit this page to learn about. Peoria's planning and zoning division is responsible for zoning cases, site plans, sign permits, and other essential services. All zoning ordinance materials have. The planning and zoning commission holds public hearings to report findings and recommendations. City Of Peoria Zoning.
From www.yourvalley.net
City of Peoria removes planning and zoning commissioner from post City Of Peoria Zoning The development services center is an online resource for property owners wishing to develop or build in peoria. Anyone can see this content. The planning and zoning commission (pzc) approves all land use changes, annexations, new subdivisions, and major planning initiatives. 18186, adopted august 13, 2024. Code of ordinances city of peoria, illinois codified through ordinance no. Use the links. City Of Peoria Zoning.
From www.peoriaaz.gov
Municipal Complex Map and Directions City of Peoria City Of Peoria Zoning The planning and zoning commission holds public hearings to report findings and recommendations to the city council on requests. The city's zoning code controls the location, size, and building materials of fences, buildings, garages, and homes. As of august 2022, city of peoria no longer maintains downloadable pdf documents of the zoning ordinance. Anyone can see this content. Peoria's planning. City Of Peoria Zoning.
From mavink.com
Official Zoning District Map City Of Peoria Zoning Peoria's planning and zoning division is responsible for zoning cases, site plans, sign permits, and other essential services. The city's zoning code controls the location, size, and building materials of fences, buildings, garages, and homes. Use the links below to find everything you need to complete your project. Anyone can see this content. As of august 2022, city of peoria. City Of Peoria Zoning.
From www.templateroller.com
City of Peoria, Illinois Zoning Certificate Application for a Fence City Of Peoria Zoning The development services center is an online resource for property owners wishing to develop or build in peoria. Anyone can see this content. The planning and zoning commission holds public hearings to report findings and recommendations to the city council on requests. Peoria's planning and zoning division is responsible for zoning cases, site plans, sign permits, and other essential services.. City Of Peoria Zoning.
From cityofpeoria.blogspot.com
City of Peoria Economic Development TIF Districts City Of Peoria Zoning 18186, adopted august 13, 2024. Code of ordinances city of peoria, illinois codified through ordinance no. Anyone can see this content. The development services center is an online resource for property owners wishing to develop or build in peoria. Peoria's planning and zoning division is responsible for zoning cases, site plans, sign permits, and other essential services. The planning and. City Of Peoria Zoning.
From www.chicago.gov
Home 18th Peoria Pilsen Development Framework City Of Peoria Zoning All zoning ordinance materials have. The development services center is an online resource for property owners wishing to develop or build in peoria. Peoria's planning and zoning division is responsible for zoning cases, site plans, sign permits, and other essential services. The planning and zoning commission (pzc) approves all land use changes, annexations, new subdivisions, and major planning initiatives. Use. City Of Peoria Zoning.
From cityofpeoria.blogspot.com
City of Peoria Economic Development PEORIA IS LOOKING FOR A FEW GOOD City Of Peoria Zoning As of august 2022, city of peoria no longer maintains downloadable pdf documents of the zoning ordinance. Use the links below to find everything you need to complete your project. Visit this page to learn about. 18186, adopted august 13, 2024. The planning and zoning commission (pzc) approves all land use changes, annexations, new subdivisions, and major planning initiatives. Anyone. City Of Peoria Zoning.
From weservgad.org
City of Peoria Zoning Ordinance and Zoning Map Government Affairs City Of Peoria Zoning The development services center is an online resource for property owners wishing to develop or build in peoria. 18186, adopted august 13, 2024. Anyone can see this content. The planning and zoning commission holds public hearings to report findings and recommendations to the city council on requests. Peoria's planning and zoning division is responsible for zoning cases, site plans, sign. City Of Peoria Zoning.
From cityofpeoria.blogspot.com
City of Peoria Economic Development City Of Peoria Zoning 18186, adopted august 13, 2024. The planning and zoning commission (pzc) approves all land use changes, annexations, new subdivisions, and major planning initiatives. As of august 2022, city of peoria no longer maintains downloadable pdf documents of the zoning ordinance. The city's zoning code controls the location, size, and building materials of fences, buildings, garages, and homes. Code of ordinances. City Of Peoria Zoning.
From cityofpeoria.blogspot.com
City of Peoria Economic Development East Village City Of Peoria Zoning The city's zoning code controls the location, size, and building materials of fences, buildings, garages, and homes. The development services center is an online resource for property owners wishing to develop or build in peoria. Use the links below to find everything you need to complete your project. It also controls what is allowed in. As of august 2022, city. City Of Peoria Zoning.
From cityofpeoria.blogspot.com
City of Peoria Economic Development City Of Peoria Zoning Peoria's planning and zoning division is responsible for zoning cases, site plans, sign permits, and other essential services. As of august 2022, city of peoria no longer maintains downloadable pdf documents of the zoning ordinance. Use the links below to find everything you need to complete your project. The planning and zoning commission (pzc) approves all land use changes, annexations,. City Of Peoria Zoning.
From www.templateroller.com
City of Peoria, Illinois Planning and Zoning Commission Application City Of Peoria Zoning 18186, adopted august 13, 2024. All zoning ordinance materials have. Code of ordinances city of peoria, illinois codified through ordinance no. The planning and zoning commission holds public hearings to report findings and recommendations to the city council on requests. As of august 2022, city of peoria no longer maintains downloadable pdf documents of the zoning ordinance. Peoria's planning and. City Of Peoria Zoning.
From www.wcbu.org
Peoria Zoning Commission votes to deny Dollar General parking proposal City Of Peoria Zoning The city's zoning code controls the location, size, and building materials of fences, buildings, garages, and homes. Anyone can see this content. Peoria's planning and zoning division is responsible for zoning cases, site plans, sign permits, and other essential services. The planning and zoning commission holds public hearings to report findings and recommendations to the city council on requests. The. City Of Peoria Zoning.
From chicago.urbanize.city
Plan Commission approves 18th/Peoria development plan Urbanize Chicago City Of Peoria Zoning It also controls what is allowed in. Visit this page to learn about. Peoria's planning and zoning division is responsible for zoning cases, site plans, sign permits, and other essential services. The city's zoning code controls the location, size, and building materials of fences, buildings, garages, and homes. Code of ordinances city of peoria, illinois codified through ordinance no. The. City Of Peoria Zoning.
From www.yourvalley.net
Get to know one of Peoria's planning and zoning commissioners Daily City Of Peoria Zoning The development services center is an online resource for property owners wishing to develop or build in peoria. Visit this page to learn about. Use the links below to find everything you need to complete your project. As of august 2022, city of peoria no longer maintains downloadable pdf documents of the zoning ordinance. Peoria's planning and zoning division is. City Of Peoria Zoning.
From www.yourvalley.net
Learn how Peoria's proposed General Plan amendments and a proposed City Of Peoria Zoning 18186, adopted august 13, 2024. As of august 2022, city of peoria no longer maintains downloadable pdf documents of the zoning ordinance. It also controls what is allowed in. The city's zoning code controls the location, size, and building materials of fences, buildings, garages, and homes. The planning and zoning commission (pzc) approves all land use changes, annexations, new subdivisions,. City Of Peoria Zoning.
From chicago.urbanize.city
Plan Commission approves 18th/Peoria development plan Urbanize Chicago City Of Peoria Zoning Code of ordinances city of peoria, illinois codified through ordinance no. Anyone can see this content. Use the links below to find everything you need to complete your project. All zoning ordinance materials have. The city's zoning code controls the location, size, and building materials of fences, buildings, garages, and homes. The planning and zoning commission (pzc) approves all land. City Of Peoria Zoning.
From www.wcbu.org
Peoria City Council approves new district maps WCBU Peoria City Of Peoria Zoning It also controls what is allowed in. As of august 2022, city of peoria no longer maintains downloadable pdf documents of the zoning ordinance. All zoning ordinance materials have. The development services center is an online resource for property owners wishing to develop or build in peoria. The planning and zoning commission (pzc) approves all land use changes, annexations, new. City Of Peoria Zoning.