Elkay Sink Installation Guide . Discover expert guidance for pro stainless steel undermount sink installation with elkay's comprehensive guide. Elkay recommends that undermount sinks be installed by a professional, experienced installer. Installation instructions quartz classic™ or quartz luxe™ sink • read these instructions thoroughly before you begin. Enclosed in the sink carton is a cutout template. Suggestions for the care and cleaning of sinks made with cuverro® antimicrobial copper. Enclosed in the sink carton is a cutout template. Wipe away any excess caulk with a rag. Find the right sink installation type for your project. Elkay recommends that undermount sinks be installed by a professional, experienced installer.
from giozzjdyy.blob.core.windows.net
Enclosed in the sink carton is a cutout template. Elkay recommends that undermount sinks be installed by a professional, experienced installer. Installation instructions quartz classic™ or quartz luxe™ sink • read these instructions thoroughly before you begin. Discover expert guidance for pro stainless steel undermount sink installation with elkay's comprehensive guide. Elkay recommends that undermount sinks be installed by a professional, experienced installer. Suggestions for the care and cleaning of sinks made with cuverro® antimicrobial copper. Find the right sink installation type for your project. Wipe away any excess caulk with a rag. Enclosed in the sink carton is a cutout template.
How To Install An Undermount Farmhouse Sink at Rory Luck blog
Elkay Sink Installation Guide Suggestions for the care and cleaning of sinks made with cuverro® antimicrobial copper. Wipe away any excess caulk with a rag. Elkay recommends that undermount sinks be installed by a professional, experienced installer. Installation instructions quartz classic™ or quartz luxe™ sink • read these instructions thoroughly before you begin. Enclosed in the sink carton is a cutout template. Discover expert guidance for pro stainless steel undermount sink installation with elkay's comprehensive guide. Enclosed in the sink carton is a cutout template. Suggestions for the care and cleaning of sinks made with cuverro® antimicrobial copper. Find the right sink installation type for your project. Elkay recommends that undermount sinks be installed by a professional, experienced installer.
From giozzjdyy.blob.core.windows.net
How To Install An Undermount Farmhouse Sink at Rory Luck blog Elkay Sink Installation Guide Find the right sink installation type for your project. Installation instructions quartz classic™ or quartz luxe™ sink • read these instructions thoroughly before you begin. Enclosed in the sink carton is a cutout template. Wipe away any excess caulk with a rag. Discover expert guidance for pro stainless steel undermount sink installation with elkay's comprehensive guide. Elkay recommends that undermount. Elkay Sink Installation Guide.
From www.manualslib.com
ELKAY SPACEETTE FD7003 1J SERIES INSTALLATION, CARE & USE MANUAL Pdf Elkay Sink Installation Guide Find the right sink installation type for your project. Wipe away any excess caulk with a rag. Enclosed in the sink carton is a cutout template. Installation instructions quartz classic™ or quartz luxe™ sink • read these instructions thoroughly before you begin. Elkay recommends that undermount sinks be installed by a professional, experienced installer. Discover expert guidance for pro stainless. Elkay Sink Installation Guide.
From www.manualslib.com
ELKAY EZFMK INSTALLATION MANUAL Pdf Download ManualsLib Elkay Sink Installation Guide Discover expert guidance for pro stainless steel undermount sink installation with elkay's comprehensive guide. Elkay recommends that undermount sinks be installed by a professional, experienced installer. Suggestions for the care and cleaning of sinks made with cuverro® antimicrobial copper. Wipe away any excess caulk with a rag. Find the right sink installation type for your project. Enclosed in the sink. Elkay Sink Installation Guide.
From www.youtube.com
How to install an Elkay ezH2O Bottle Filling Station YouTube Elkay Sink Installation Guide Elkay recommends that undermount sinks be installed by a professional, experienced installer. Installation instructions quartz classic™ or quartz luxe™ sink • read these instructions thoroughly before you begin. Elkay recommends that undermount sinks be installed by a professional, experienced installer. Find the right sink installation type for your project. Enclosed in the sink carton is a cutout template. Wipe away. Elkay Sink Installation Guide.
From duoprint.com.ec
Elkay 1 Compartment Professional Grade Commercial Kitchen Stainless Elkay Sink Installation Guide Installation instructions quartz classic™ or quartz luxe™ sink • read these instructions thoroughly before you begin. Suggestions for the care and cleaning of sinks made with cuverro® antimicrobial copper. Wipe away any excess caulk with a rag. Discover expert guidance for pro stainless steel undermount sink installation with elkay's comprehensive guide. Find the right sink installation type for your project.. Elkay Sink Installation Guide.
From www.lowes.com
Elkay Quartz Classic 33in x 19in Dusk Gray DoubleBasin Undermount Elkay Sink Installation Guide Elkay recommends that undermount sinks be installed by a professional, experienced installer. Enclosed in the sink carton is a cutout template. Wipe away any excess caulk with a rag. Enclosed in the sink carton is a cutout template. Find the right sink installation type for your project. Discover expert guidance for pro stainless steel undermount sink installation with elkay's comprehensive. Elkay Sink Installation Guide.
From manualzz.com
Elkay EZWSRK Installation Instructions Manualzz Elkay Sink Installation Guide Suggestions for the care and cleaning of sinks made with cuverro® antimicrobial copper. Discover expert guidance for pro stainless steel undermount sink installation with elkay's comprehensive guide. Elkay recommends that undermount sinks be installed by a professional, experienced installer. Enclosed in the sink carton is a cutout template. Installation instructions quartz classic™ or quartz luxe™ sink • read these instructions. Elkay Sink Installation Guide.
From www.manualslib.com
ELKAY EZS8WS 1G SERIES INSTALLATION & USE MANUAL Pdf Download ManualsLib Elkay Sink Installation Guide Suggestions for the care and cleaning of sinks made with cuverro® antimicrobial copper. Find the right sink installation type for your project. Elkay recommends that undermount sinks be installed by a professional, experienced installer. Wipe away any excess caulk with a rag. Enclosed in the sink carton is a cutout template. Enclosed in the sink carton is a cutout template.. Elkay Sink Installation Guide.
From www.grainger.com
ELKAY Elkay, Dayton Series, 21 in x 15 3/4 in, Stainless Steel, Single Elkay Sink Installation Guide Installation instructions quartz classic™ or quartz luxe™ sink • read these instructions thoroughly before you begin. Elkay recommends that undermount sinks be installed by a professional, experienced installer. Suggestions for the care and cleaning of sinks made with cuverro® antimicrobial copper. Elkay recommends that undermount sinks be installed by a professional, experienced installer. Find the right sink installation type for. Elkay Sink Installation Guide.
From www.lowes.com
Elkay 10in x 16.65in Stainless Steel Sink Grid at Elkay Sink Installation Guide Suggestions for the care and cleaning of sinks made with cuverro® antimicrobial copper. Wipe away any excess caulk with a rag. Elkay recommends that undermount sinks be installed by a professional, experienced installer. Installation instructions quartz classic™ or quartz luxe™ sink • read these instructions thoroughly before you begin. Enclosed in the sink carton is a cutout template. Discover expert. Elkay Sink Installation Guide.
From thecurioushome.com
Elkay Kitchen Sink Reviews 2022 Buyers Guide The Curious Home Elkay Sink Installation Guide Elkay recommends that undermount sinks be installed by a professional, experienced installer. Find the right sink installation type for your project. Discover expert guidance for pro stainless steel undermount sink installation with elkay's comprehensive guide. Elkay recommends that undermount sinks be installed by a professional, experienced installer. Enclosed in the sink carton is a cutout template. Enclosed in the sink. Elkay Sink Installation Guide.
From www.manualslib.com
ELKAY ESWA8 1E SERIES INSTALLATION, CARE & USE MANUAL Pdf Download Elkay Sink Installation Guide Wipe away any excess caulk with a rag. Suggestions for the care and cleaning of sinks made with cuverro® antimicrobial copper. Find the right sink installation type for your project. Enclosed in the sink carton is a cutout template. Elkay recommends that undermount sinks be installed by a professional, experienced installer. Elkay recommends that undermount sinks be installed by a. Elkay Sink Installation Guide.
From ipipeline.net
Kitchen Sink Installation Instructions Things In The Kitchen Elkay Sink Installation Guide Wipe away any excess caulk with a rag. Find the right sink installation type for your project. Discover expert guidance for pro stainless steel undermount sink installation with elkay's comprehensive guide. Enclosed in the sink carton is a cutout template. Elkay recommends that undermount sinks be installed by a professional, experienced installer. Enclosed in the sink carton is a cutout. Elkay Sink Installation Guide.
From www.pinterest.ca
Elkay ELG13322GY0 Quartz Classic 33 in 2021 Drop in kitchen sink, Top Elkay Sink Installation Guide Elkay recommends that undermount sinks be installed by a professional, experienced installer. Elkay recommends that undermount sinks be installed by a professional, experienced installer. Wipe away any excess caulk with a rag. Enclosed in the sink carton is a cutout template. Find the right sink installation type for your project. Suggestions for the care and cleaning of sinks made with. Elkay Sink Installation Guide.
From www.walmart.com
Elkay KP211515C Dayton Stainless Steel 15" x 15" x 53/16" Single Bowl Elkay Sink Installation Guide Find the right sink installation type for your project. Suggestions for the care and cleaning of sinks made with cuverro® antimicrobial copper. Wipe away any excess caulk with a rag. Installation instructions quartz classic™ or quartz luxe™ sink • read these instructions thoroughly before you begin. Discover expert guidance for pro stainless steel undermount sink installation with elkay's comprehensive guide.. Elkay Sink Installation Guide.
From www.manualslib.com
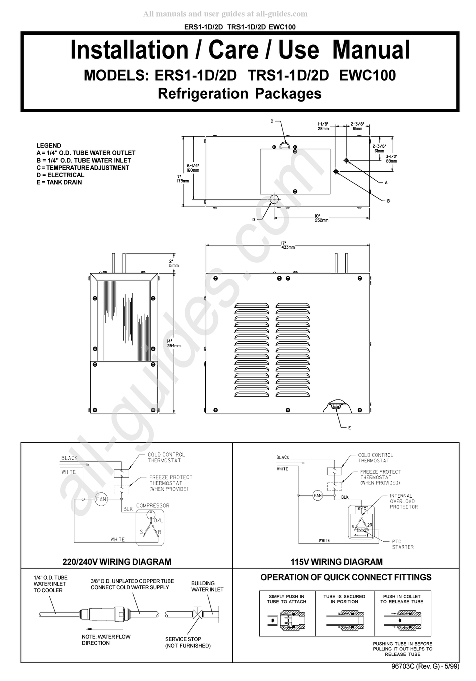
ELKAY ERS11D INSTALLATION, CARE & USE MANUAL Pdf Download ManualsLib Elkay Sink Installation Guide Installation instructions quartz classic™ or quartz luxe™ sink • read these instructions thoroughly before you begin. Suggestions for the care and cleaning of sinks made with cuverro® antimicrobial copper. Enclosed in the sink carton is a cutout template. Discover expert guidance for pro stainless steel undermount sink installation with elkay's comprehensive guide. Enclosed in the sink carton is a cutout. Elkay Sink Installation Guide.
From www.grainger.com
ELKAY Elkay, Elkay Commercial Series, 18 in x 14 in, Stainless Steel Elkay Sink Installation Guide Elkay recommends that undermount sinks be installed by a professional, experienced installer. Installation instructions quartz classic™ or quartz luxe™ sink • read these instructions thoroughly before you begin. Suggestions for the care and cleaning of sinks made with cuverro® antimicrobial copper. Find the right sink installation type for your project. Elkay recommends that undermount sinks be installed by a professional,. Elkay Sink Installation Guide.
From www.manualslib.com
ELKAY LK6000CR INSTALLATION & OWNER'S MANUAL Pdf Download ManualsLib Elkay Sink Installation Guide Elkay recommends that undermount sinks be installed by a professional, experienced installer. Wipe away any excess caulk with a rag. Enclosed in the sink carton is a cutout template. Discover expert guidance for pro stainless steel undermount sink installation with elkay's comprehensive guide. Enclosed in the sink carton is a cutout template. Find the right sink installation type for your. Elkay Sink Installation Guide.
From www.qualitybath.com
Kitchen Sink Materials The Ultimate Buying Guide Elkay Sink Installation Guide Discover expert guidance for pro stainless steel undermount sink installation with elkay's comprehensive guide. Suggestions for the care and cleaning of sinks made with cuverro® antimicrobial copper. Find the right sink installation type for your project. Wipe away any excess caulk with a rag. Installation instructions quartz classic™ or quartz luxe™ sink • read these instructions thoroughly before you begin.. Elkay Sink Installation Guide.
From www.manualslib.com
ELKAY EZH2O LZWSM8 SERIES INSTALLATION, CARE & USE MANUAL Pdf Download Elkay Sink Installation Guide Wipe away any excess caulk with a rag. Suggestions for the care and cleaning of sinks made with cuverro® antimicrobial copper. Discover expert guidance for pro stainless steel undermount sink installation with elkay's comprehensive guide. Elkay recommends that undermount sinks be installed by a professional, experienced installer. Elkay recommends that undermount sinks be installed by a professional, experienced installer. Find. Elkay Sink Installation Guide.
From giozzjdyy.blob.core.windows.net
How To Install An Undermount Farmhouse Sink at Rory Luck blog Elkay Sink Installation Guide Elkay recommends that undermount sinks be installed by a professional, experienced installer. Wipe away any excess caulk with a rag. Find the right sink installation type for your project. Installation instructions quartz classic™ or quartz luxe™ sink • read these instructions thoroughly before you begin. Enclosed in the sink carton is a cutout template. Enclosed in the sink carton is. Elkay Sink Installation Guide.
From www.manualslib.com
ELKAY EZH2O LBWD06BKK INSTALLATION MANUAL Pdf Download ManualsLib Elkay Sink Installation Guide Find the right sink installation type for your project. Elkay recommends that undermount sinks be installed by a professional, experienced installer. Enclosed in the sink carton is a cutout template. Enclosed in the sink carton is a cutout template. Discover expert guidance for pro stainless steel undermount sink installation with elkay's comprehensive guide. Suggestions for the care and cleaning of. Elkay Sink Installation Guide.
From www.phcppros.com
Elkay ADA DualDepth Stainless Steel Farmhouse Sink 20191213 phcppros Elkay Sink Installation Guide Suggestions for the care and cleaning of sinks made with cuverro® antimicrobial copper. Discover expert guidance for pro stainless steel undermount sink installation with elkay's comprehensive guide. Installation instructions quartz classic™ or quartz luxe™ sink • read these instructions thoroughly before you begin. Enclosed in the sink carton is a cutout template. Find the right sink installation type for your. Elkay Sink Installation Guide.
From shop.rplumber.com
Buy Elkay Double Stainless Steel Sink 33 In. X 22 In. X 7 In. Deep Elkay Sink Installation Guide Elkay recommends that undermount sinks be installed by a professional, experienced installer. Enclosed in the sink carton is a cutout template. Enclosed in the sink carton is a cutout template. Discover expert guidance for pro stainless steel undermount sink installation with elkay's comprehensive guide. Elkay recommends that undermount sinks be installed by a professional, experienced installer. Suggestions for the care. Elkay Sink Installation Guide.
From www.manualslib.com
ELKAY EZH2O EMABFTL8WS 1E SERIES INSTALLATION, CARE & USE MANUAL Pdf Elkay Sink Installation Guide Elkay recommends that undermount sinks be installed by a professional, experienced installer. Enclosed in the sink carton is a cutout template. Discover expert guidance for pro stainless steel undermount sink installation with elkay's comprehensive guide. Suggestions for the care and cleaning of sinks made with cuverro® antimicrobial copper. Enclosed in the sink carton is a cutout template. Elkay recommends that. Elkay Sink Installation Guide.
From www.manualslib.com
ELKAY EZF8 1G SERIES INSTALLATION, CARE & USE MANUAL Pdf Download Elkay Sink Installation Guide Elkay recommends that undermount sinks be installed by a professional, experienced installer. Enclosed in the sink carton is a cutout template. Suggestions for the care and cleaning of sinks made with cuverro® antimicrobial copper. Wipe away any excess caulk with a rag. Installation instructions quartz classic™ or quartz luxe™ sink • read these instructions thoroughly before you begin. Discover expert. Elkay Sink Installation Guide.
From www.manualslib.com
ELKAY LZOD 1D SERIES INSTALLATION INSTRUCTIONS MANUAL Pdf Download Elkay Sink Installation Guide Wipe away any excess caulk with a rag. Installation instructions quartz classic™ or quartz luxe™ sink • read these instructions thoroughly before you begin. Discover expert guidance for pro stainless steel undermount sink installation with elkay's comprehensive guide. Enclosed in the sink carton is a cutout template. Enclosed in the sink carton is a cutout template. Elkay recommends that undermount. Elkay Sink Installation Guide.
From www.youtube.com
How to Install an Elkay Quartz Sink YouTube Elkay Sink Installation Guide Discover expert guidance for pro stainless steel undermount sink installation with elkay's comprehensive guide. Find the right sink installation type for your project. Wipe away any excess caulk with a rag. Elkay recommends that undermount sinks be installed by a professional, experienced installer. Enclosed in the sink carton is a cutout template. Elkay recommends that undermount sinks be installed by. Elkay Sink Installation Guide.
From www.manualslib.com
ELKAY LZWSRKEZH2O INSTALLATION, CARE & USE MANUAL Pdf Download Elkay Sink Installation Guide Discover expert guidance for pro stainless steel undermount sink installation with elkay's comprehensive guide. Wipe away any excess caulk with a rag. Enclosed in the sink carton is a cutout template. Elkay recommends that undermount sinks be installed by a professional, experienced installer. Enclosed in the sink carton is a cutout template. Elkay recommends that undermount sinks be installed by. Elkay Sink Installation Guide.
From www.manualslib.com
ELKAY EZFSTL8 2BJO SERIES INSTALLATION, CARE & USE MANUAL Pdf Download Elkay Sink Installation Guide Installation instructions quartz classic™ or quartz luxe™ sink • read these instructions thoroughly before you begin. Wipe away any excess caulk with a rag. Discover expert guidance for pro stainless steel undermount sink installation with elkay's comprehensive guide. Enclosed in the sink carton is a cutout template. Enclosed in the sink carton is a cutout template. Elkay recommends that undermount. Elkay Sink Installation Guide.
From watchesok.me
ELKAY LRAD1918 PDF Elkay Sink Installation Guide Suggestions for the care and cleaning of sinks made with cuverro® antimicrobial copper. Discover expert guidance for pro stainless steel undermount sink installation with elkay's comprehensive guide. Enclosed in the sink carton is a cutout template. Wipe away any excess caulk with a rag. Elkay recommends that undermount sinks be installed by a professional, experienced installer. Elkay recommends that undermount. Elkay Sink Installation Guide.
From www.thisoldhouse.com
Kitchen Sink Installation StepbyStep Guide This Old House Elkay Sink Installation Guide Discover expert guidance for pro stainless steel undermount sink installation with elkay's comprehensive guide. Suggestions for the care and cleaning of sinks made with cuverro® antimicrobial copper. Elkay recommends that undermount sinks be installed by a professional, experienced installer. Installation instructions quartz classic™ or quartz luxe™ sink • read these instructions thoroughly before you begin. Enclosed in the sink carton. Elkay Sink Installation Guide.
From www.walmart.com
Elkay Sink Installation Undermount Support Kit 25" Long Rails Elkay Sink Installation Guide Suggestions for the care and cleaning of sinks made with cuverro® antimicrobial copper. Find the right sink installation type for your project. Wipe away any excess caulk with a rag. Enclosed in the sink carton is a cutout template. Installation instructions quartz classic™ or quartz luxe™ sink • read these instructions thoroughly before you begin. Discover expert guidance for pro. Elkay Sink Installation Guide.
From www.manualslib.com
ELKAY EHFSA8 1K SERIES INSTALLATION, CARE & USE MANUAL Pdf Download Elkay Sink Installation Guide Suggestions for the care and cleaning of sinks made with cuverro® antimicrobial copper. Find the right sink installation type for your project. Enclosed in the sink carton is a cutout template. Discover expert guidance for pro stainless steel undermount sink installation with elkay's comprehensive guide. Elkay recommends that undermount sinks be installed by a professional, experienced installer. Enclosed in the. Elkay Sink Installation Guide.
From www.lowes.com
Elkay Dualmount 33in x 22in Satin Stainless Steel Double Equal Bowl Elkay Sink Installation Guide Elkay recommends that undermount sinks be installed by a professional, experienced installer. Enclosed in the sink carton is a cutout template. Enclosed in the sink carton is a cutout template. Elkay recommends that undermount sinks be installed by a professional, experienced installer. Find the right sink installation type for your project. Discover expert guidance for pro stainless steel undermount sink. Elkay Sink Installation Guide.