Cd Plans Construction .   construction documentation (cd) is the phase where the finalized design is turned into detailed instructions for the.   understanding construction documents (cd) construction documents are a comprehensive set of drawings and.   what is construction document (cd) in construction?   construction documents (cds) are the detailed set of construction drawings that translate the architect’s vision into a tangible plan for builders and contractors. Cd stands for construction documents, the comprehensive set of documents that serve as. They are created during the third phase in the architectural design process, which takes place after design development but before bidding. These comprehensive plans encompass every facet of the construction process, from structural components to mechanical systems, electrical layouts and plumbing installations.   what do construction documents (cd) mean?   construction documents (cds) are a detailed set of documents that include the final specifications, materials, and other details required for managing a building project. Construction documents are prepared to document the entire design process.   the construction documentation (cd) phase is where the project's design is translated into detailed.
        
         
         
        from www.pinterest.com 
     
        
        They are created during the third phase in the architectural design process, which takes place after design development but before bidding.   the construction documentation (cd) phase is where the project's design is translated into detailed. Construction documents are prepared to document the entire design process.   construction documents (cds) are the detailed set of construction drawings that translate the architect’s vision into a tangible plan for builders and contractors.   construction documents (cds) are a detailed set of documents that include the final specifications, materials, and other details required for managing a building project.   what do construction documents (cd) mean?   construction documentation (cd) is the phase where the finalized design is turned into detailed instructions for the. Cd stands for construction documents, the comprehensive set of documents that serve as.   what is construction document (cd) in construction? These comprehensive plans encompass every facet of the construction process, from structural components to mechanical systems, electrical layouts and plumbing installations.
    
    	
            
	
		 
	 
         
    Pin by David James on Habitat Homes Mid century modern house plans 
    Cd Plans Construction    what do construction documents (cd) mean? These comprehensive plans encompass every facet of the construction process, from structural components to mechanical systems, electrical layouts and plumbing installations.   construction documents (cds) are a detailed set of documents that include the final specifications, materials, and other details required for managing a building project.   what is construction document (cd) in construction?   the construction documentation (cd) phase is where the project's design is translated into detailed. They are created during the third phase in the architectural design process, which takes place after design development but before bidding.   construction documents (cds) are the detailed set of construction drawings that translate the architect’s vision into a tangible plan for builders and contractors. Cd stands for construction documents, the comprehensive set of documents that serve as. Construction documents are prepared to document the entire design process.   what do construction documents (cd) mean?   construction documentation (cd) is the phase where the finalized design is turned into detailed instructions for the.   understanding construction documents (cd) construction documents are a comprehensive set of drawings and.
            
	
		 
	 
         
 
    
         
        From www.thepowerfulplayteachers.com 
                    Construction labels — The Powerful Play Teachers Cd Plans Construction  Cd stands for construction documents, the comprehensive set of documents that serve as.   what is construction document (cd) in construction?   understanding construction documents (cd) construction documents are a comprehensive set of drawings and. They are created during the third phase in the architectural design process, which takes place after design development but before bidding.   construction documents (cds). Cd Plans Construction.
     
    
         
        From houseplanarchitecture.blogspot.com 
                    15+ Floor Plans PDF Files Cd Plans Construction  They are created during the third phase in the architectural design process, which takes place after design development but before bidding.   construction documents (cds) are a detailed set of documents that include the final specifications, materials, and other details required for managing a building project.   what is construction document (cd) in construction?   understanding construction documents (cd) construction. Cd Plans Construction.
     
    
         
        From www.cdrecycler.com 
                    Ohio plans ballot measure on infrastructure spending Construction Cd Plans Construction    construction documents (cds) are the detailed set of construction drawings that translate the architect’s vision into a tangible plan for builders and contractors. They are created during the third phase in the architectural design process, which takes place after design development but before bidding. These comprehensive plans encompass every facet of the construction process, from structural components to mechanical. Cd Plans Construction.
     
    
         
        From exobfetmk.blob.core.windows.net 
                    New Construction Homes For Sale In Calera Al at Ellis Burg blog Cd Plans Construction  These comprehensive plans encompass every facet of the construction process, from structural components to mechanical systems, electrical layouts and plumbing installations.   the construction documentation (cd) phase is where the project's design is translated into detailed. They are created during the third phase in the architectural design process, which takes place after design development but before bidding.   what do. Cd Plans Construction.
     
    
         
        From www.pinterest.co.uk 
                    Pin by Leesa Mayfield Architecture on Drafting Title block, How to Cd Plans Construction  These comprehensive plans encompass every facet of the construction process, from structural components to mechanical systems, electrical layouts and plumbing installations.   construction documentation (cd) is the phase where the finalized design is turned into detailed instructions for the. They are created during the third phase in the architectural design process, which takes place after design development but before bidding.. Cd Plans Construction.
     
    
         
        From rocketswire.usatoday.com 
                    Augustana, USF submit development plans to city Cd Plans Construction  Construction documents are prepared to document the entire design process.   understanding construction documents (cd) construction documents are a comprehensive set of drawings and. They are created during the third phase in the architectural design process, which takes place after design development but before bidding. Cd stands for construction documents, the comprehensive set of documents that serve as. These comprehensive. Cd Plans Construction.
     
    
         
        From www.pinterest.com 
                    Pin by David James on Habitat Homes Mid century modern house plans Cd Plans Construction    construction documents (cds) are the detailed set of construction drawings that translate the architect’s vision into a tangible plan for builders and contractors. They are created during the third phase in the architectural design process, which takes place after design development but before bidding.   construction documents (cds) are a detailed set of documents that include the final specifications,. Cd Plans Construction.
     
    
         
        From www.advenser.net 
                    Structural Construction Documentation services Cd Plans Construction  These comprehensive plans encompass every facet of the construction process, from structural components to mechanical systems, electrical layouts and plumbing installations. They are created during the third phase in the architectural design process, which takes place after design development but before bidding.   what is construction document (cd) in construction?   construction documents (cds) are the detailed set of construction. Cd Plans Construction.
     
    
         
        From www.coroflot.com 
                    Workplace SD & CD Plans by Natalie M. at Cd Plans Construction    what do construction documents (cd) mean?   construction documents (cds) are the detailed set of construction drawings that translate the architect’s vision into a tangible plan for builders and contractors. Cd stands for construction documents, the comprehensive set of documents that serve as. These comprehensive plans encompass every facet of the construction process, from structural components to mechanical systems,. Cd Plans Construction.
     
    
         
        From www.pinterest.com 
                    Pin on cd shelf plans Cd Plans Construction    the construction documentation (cd) phase is where the project's design is translated into detailed. They are created during the third phase in the architectural design process, which takes place after design development but before bidding.   understanding construction documents (cd) construction documents are a comprehensive set of drawings and. These comprehensive plans encompass every facet of the construction process,. Cd Plans Construction.
     
    
         
        From www.pinterest.com.au 
                    Architecture details, Architecture, Floor plans Cd Plans Construction    what is construction document (cd) in construction?   construction documents (cds) are a detailed set of documents that include the final specifications, materials, and other details required for managing a building project.   what do construction documents (cd) mean?   construction documents (cds) are the detailed set of construction drawings that translate the architect’s vision into a tangible plan. Cd Plans Construction.
     
    
         
        From www.vrogue.co 
                    Vantage Ground Floorplan Construction Documents Const vrogue.co Cd Plans Construction    understanding construction documents (cd) construction documents are a comprehensive set of drawings and. Cd stands for construction documents, the comprehensive set of documents that serve as.   construction documents (cds) are the detailed set of construction drawings that translate the architect’s vision into a tangible plan for builders and contractors.   construction documents (cds) are a detailed set of. Cd Plans Construction.
     
    
         
        From allthingsconstructionpm.com 
                    Construction MEP Plans Everything You Need to Know All Things Cd Plans Construction    construction documents (cds) are the detailed set of construction drawings that translate the architect’s vision into a tangible plan for builders and contractors.   understanding construction documents (cd) construction documents are a comprehensive set of drawings and. These comprehensive plans encompass every facet of the construction process, from structural components to mechanical systems, electrical layouts and plumbing installations. Construction. Cd Plans Construction.
     
    
         
        From howtostylechelseabootswomenwithskirts.blogspot.com 
                    construction drawing cover page howtostylechelseabootswomenwithskirts Cd Plans Construction  Construction documents are prepared to document the entire design process.   construction documents (cds) are the detailed set of construction drawings that translate the architect’s vision into a tangible plan for builders and contractors.   construction documents (cds) are a detailed set of documents that include the final specifications, materials, and other details required for managing a building project. These. Cd Plans Construction.
     
    
         
        From cdplans.com 
                    Elevation Samples CD Plans Cd Plans Construction    construction documents (cds) are the detailed set of construction drawings that translate the architect’s vision into a tangible plan for builders and contractors.   what is construction document (cd) in construction? Cd stands for construction documents, the comprehensive set of documents that serve as.   construction documents (cds) are a detailed set of documents that include the final specifications,. Cd Plans Construction.
     
    
         
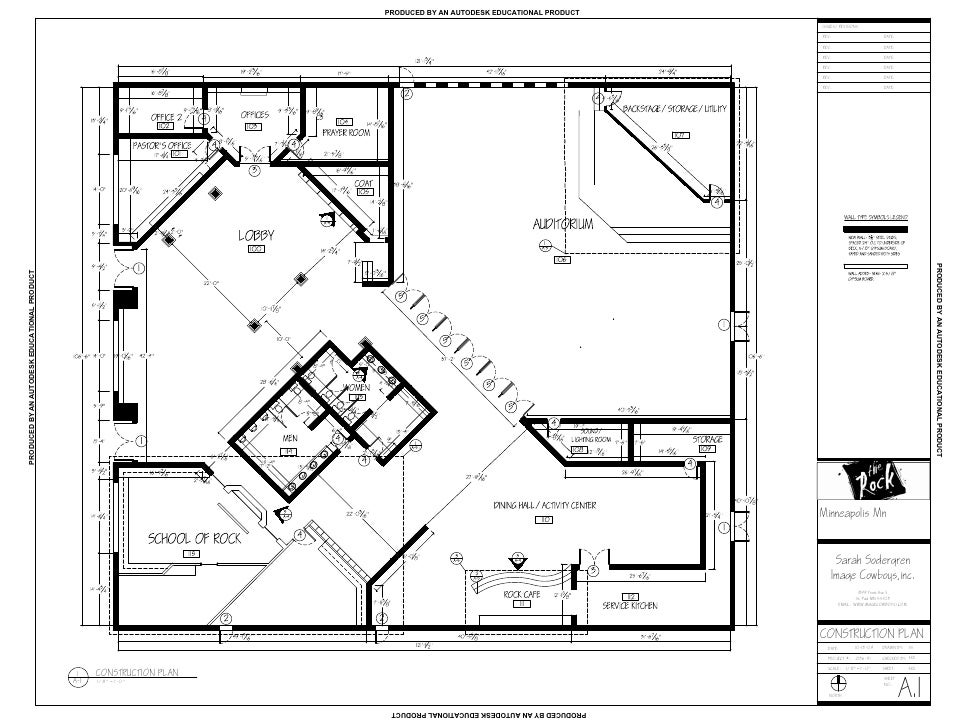
        From www.slideshare.net 
                    Rock Cd A1 Construction Plan Cd Plans Construction    the construction documentation (cd) phase is where the project's design is translated into detailed.   understanding construction documents (cd) construction documents are a comprehensive set of drawings and.   what do construction documents (cd) mean? Cd stands for construction documents, the comprehensive set of documents that serve as. They are created during the third phase in the architectural design. Cd Plans Construction.
     
    
         
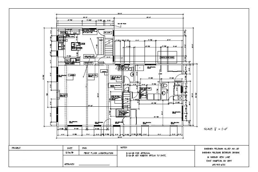
        From www.hamptonsinteriordesign.net 
                    What's a CD? Cd Plans Construction    what do construction documents (cd) mean? They are created during the third phase in the architectural design process, which takes place after design development but before bidding.   the construction documentation (cd) phase is where the project's design is translated into detailed.   what is construction document (cd) in construction?   understanding construction documents (cd) construction documents are a. Cd Plans Construction.
     
    
         
        From www.davidldesign.com 
                    Construction Documents The Grind To The Finish Line Cd Plans Construction    the construction documentation (cd) phase is where the project's design is translated into detailed.   understanding construction documents (cd) construction documents are a comprehensive set of drawings and.   construction documentation (cd) is the phase where the finalized design is turned into detailed instructions for the. Cd stands for construction documents, the comprehensive set of documents that serve as.. Cd Plans Construction.
     
    
         
        From www.coroflot.com 
                    Workplace SD & CD Plans by Natalie M. at Cd Plans Construction  These comprehensive plans encompass every facet of the construction process, from structural components to mechanical systems, electrical layouts and plumbing installations. They are created during the third phase in the architectural design process, which takes place after design development but before bidding. Construction documents are prepared to document the entire design process. Cd stands for construction documents, the comprehensive set. Cd Plans Construction.
     
    
         
        From cl.pinterest.com 
                    Small and Tiny Homes Shipping Container Home 40 Foot Full Construction Cd Plans Construction    construction documentation (cd) is the phase where the finalized design is turned into detailed instructions for the. They are created during the third phase in the architectural design process, which takes place after design development but before bidding. These comprehensive plans encompass every facet of the construction process, from structural components to mechanical systems, electrical layouts and plumbing installations.. Cd Plans Construction.
     
    
         
        From nz.pinterest.com 
                    Stair Design in 2024 Container house plans, House layout plans Cd Plans Construction  Cd stands for construction documents, the comprehensive set of documents that serve as. These comprehensive plans encompass every facet of the construction process, from structural components to mechanical systems, electrical layouts and plumbing installations.   understanding construction documents (cd) construction documents are a comprehensive set of drawings and.   construction documentation (cd) is the phase where the finalized design is. Cd Plans Construction.
     
    
         
        From cdplans.com 
                    3D Rendering CD Plans Cd Plans Construction    construction documents (cds) are the detailed set of construction drawings that translate the architect’s vision into a tangible plan for builders and contractors. Construction documents are prepared to document the entire design process. These comprehensive plans encompass every facet of the construction process, from structural components to mechanical systems, electrical layouts and plumbing installations.   construction documentation (cd) is. Cd Plans Construction.
     
    
         
        From marsbiminternational.com 
                    Construction Documentation Drawings CD Set Cd Plans Construction  These comprehensive plans encompass every facet of the construction process, from structural components to mechanical systems, electrical layouts and plumbing installations.   the construction documentation (cd) phase is where the project's design is translated into detailed.   construction documents (cds) are a detailed set of documents that include the final specifications, materials, and other details required for managing a building. Cd Plans Construction.
     
    
         
        From www.lifeofanarchitect.com 
                    Architectural Graphics 101 Cover SheetLife of an Architect Cd Plans Construction    the construction documentation (cd) phase is where the project's design is translated into detailed.   construction documents (cds) are the detailed set of construction drawings that translate the architect’s vision into a tangible plan for builders and contractors. Cd stands for construction documents, the comprehensive set of documents that serve as.   understanding construction documents (cd) construction documents are. Cd Plans Construction.
     
    
         
        From dbachman.substack.com 
                    Housing construction pulls the forecast down Cd Plans Construction    construction documents (cds) are the detailed set of construction drawings that translate the architect’s vision into a tangible plan for builders and contractors.   construction documents (cds) are a detailed set of documents that include the final specifications, materials, and other details required for managing a building project. They are created during the third phase in the architectural design. Cd Plans Construction.
     
    
         
        From maricamckeel.com 
                    What To Expect from Your Architect Construction Documents Studio MM Cd Plans Construction    what do construction documents (cd) mean?   construction documents (cds) are a detailed set of documents that include the final specifications, materials, and other details required for managing a building project.   the construction documentation (cd) phase is where the project's design is translated into detailed.   what is construction document (cd) in construction? These comprehensive plans encompass every. Cd Plans Construction.
     
    
         
        From uk.pinterest.com 
                    Architectural Plans Green building design, Construction details Cd Plans Construction    construction documents (cds) are the detailed set of construction drawings that translate the architect’s vision into a tangible plan for builders and contractors. Cd stands for construction documents, the comprehensive set of documents that serve as.   the construction documentation (cd) phase is where the project's design is translated into detailed. These comprehensive plans encompass every facet of the. Cd Plans Construction.
     
    
         
        From www.pinterest.jp 
                    design sketches Planos de arquitectura, Planos, Planos de casas Cd Plans Construction    what is construction document (cd) in construction?   the construction documentation (cd) phase is where the project's design is translated into detailed. Construction documents are prepared to document the entire design process. They are created during the third phase in the architectural design process, which takes place after design development but before bidding.   what do construction documents (cd). Cd Plans Construction.
     
    
         
        From therookiewire.usatoday.com 
                    Construction of new Redding PACE plant starts in Stillwater Business Park Cd Plans Construction    construction documentation (cd) is the phase where the finalized design is turned into detailed instructions for the. Cd stands for construction documents, the comprehensive set of documents that serve as.   construction documents (cds) are the detailed set of construction drawings that translate the architect’s vision into a tangible plan for builders and contractors.   understanding construction documents (cd). Cd Plans Construction.
     
    
         
        From www.advenser.com 
                    Structural Construction Documentation Services, CD Set Advenser Cd Plans Construction  Cd stands for construction documents, the comprehensive set of documents that serve as.   understanding construction documents (cd) construction documents are a comprehensive set of drawings and.   construction documents (cds) are the detailed set of construction drawings that translate the architect’s vision into a tangible plan for builders and contractors. These comprehensive plans encompass every facet of the construction. Cd Plans Construction.
     
    
         
        From www.kut.org 
                    Austin will use AI to evaluate residential construction plans KUT Cd Plans Construction  These comprehensive plans encompass every facet of the construction process, from structural components to mechanical systems, electrical layouts and plumbing installations.   what is construction document (cd) in construction?   construction documents (cds) are a detailed set of documents that include the final specifications, materials, and other details required for managing a building project.   understanding construction documents (cd) construction. Cd Plans Construction.
     
    
         
        From www.ktnv.com 
                    Harry Reid International Airport announces plans to renovate terminals Cd Plans Construction    the construction documentation (cd) phase is where the project's design is translated into detailed.   construction documentation (cd) is the phase where the finalized design is turned into detailed instructions for the. Cd stands for construction documents, the comprehensive set of documents that serve as. These comprehensive plans encompass every facet of the construction process, from structural components to. Cd Plans Construction.
     
    
         
        From www.pinterest.com 
                    Pin by Shadreck Chipempele on power by umuntu nomunakwe construction Cd Plans Construction    what do construction documents (cd) mean? Construction documents are prepared to document the entire design process.   construction documentation (cd) is the phase where the finalized design is turned into detailed instructions for the.   what is construction document (cd) in construction? These comprehensive plans encompass every facet of the construction process, from structural components to mechanical systems, electrical. Cd Plans Construction.
     
    
         
        From www.hitechbimservices.com 
                    What does SD, DD & CD mean in the construction world? Hitech BIM Services Cd Plans Construction    what do construction documents (cd) mean?   construction documents (cds) are the detailed set of construction drawings that translate the architect’s vision into a tangible plan for builders and contractors. Cd stands for construction documents, the comprehensive set of documents that serve as. They are created during the third phase in the architectural design process, which takes place after. Cd Plans Construction.
     
    
         
        From www.advenser.com 
                    Construction Documents and Services CD Sets Advenser Cd Plans Construction  Construction documents are prepared to document the entire design process.   the construction documentation (cd) phase is where the project's design is translated into detailed.   understanding construction documents (cd) construction documents are a comprehensive set of drawings and. They are created during the third phase in the architectural design process, which takes place after design development but before bidding.. Cd Plans Construction.