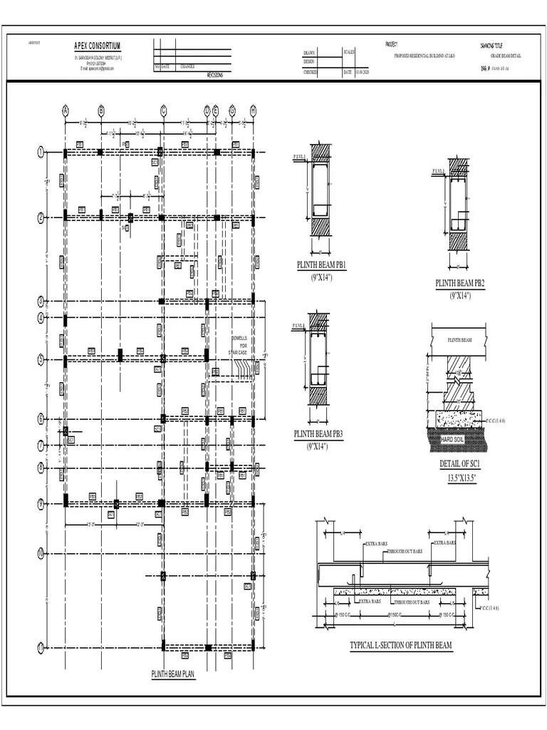
Grade Beam Schedule . They should be reinforced with continuous reinforcement that is developed. We'd like the rebar from the. Crete industry are stated more clearly by providing. It provides details of reinforcement cutting length, type of. The ga plan is usually provided with a beam schedule, which is a table of beam tags with their corresponding beam depths/widths (an. There is a basic difference between a grade beam and a strip footing. Bar bending schedule provides the reinforcement calculation for reinforced concrete beam. This video explains how to read the beam schedule and apply it on site as well as how to read the beam detail.if you have suggestions and. It consists of a reinforced concrete beam that transmits the load from a. A grade beam or grade beam footing is a component of a building's foundation. Was wondering if anyone has been able to find a way to add rebar to their concrete beam schedules. Grade beams are commonly concrete beams which are designed to act as horizontal ties between footings or pile caps.
from www.scribd.com
Grade beams are commonly concrete beams which are designed to act as horizontal ties between footings or pile caps. This video explains how to read the beam schedule and apply it on site as well as how to read the beam detail.if you have suggestions and. A grade beam or grade beam footing is a component of a building's foundation. They should be reinforced with continuous reinforcement that is developed. It provides details of reinforcement cutting length, type of. It consists of a reinforced concrete beam that transmits the load from a. There is a basic difference between a grade beam and a strip footing. The ga plan is usually provided with a beam schedule, which is a table of beam tags with their corresponding beam depths/widths (an. Bar bending schedule provides the reinforcement calculation for reinforced concrete beam. We'd like the rebar from the.
Grade Beam Detail PDF
Grade Beam Schedule The ga plan is usually provided with a beam schedule, which is a table of beam tags with their corresponding beam depths/widths (an. The ga plan is usually provided with a beam schedule, which is a table of beam tags with their corresponding beam depths/widths (an. A grade beam or grade beam footing is a component of a building's foundation. We'd like the rebar from the. Was wondering if anyone has been able to find a way to add rebar to their concrete beam schedules. This video explains how to read the beam schedule and apply it on site as well as how to read the beam detail.if you have suggestions and. There is a basic difference between a grade beam and a strip footing. Bar bending schedule provides the reinforcement calculation for reinforced concrete beam. It consists of a reinforced concrete beam that transmits the load from a. Crete industry are stated more clearly by providing. Grade beams are commonly concrete beams which are designed to act as horizontal ties between footings or pile caps. It provides details of reinforcement cutting length, type of. They should be reinforced with continuous reinforcement that is developed.
From cadbull.com
Beam schedules, sections and constructive structure for apartment Grade Beam Schedule We'd like the rebar from the. They should be reinforced with continuous reinforcement that is developed. Was wondering if anyone has been able to find a way to add rebar to their concrete beam schedules. The ga plan is usually provided with a beam schedule, which is a table of beam tags with their corresponding beam depths/widths (an. Crete industry. Grade Beam Schedule.
From www.flickr.com
Grade Beam Layout Plan Md Mamun Shak Flickr Grade Beam Schedule Grade beams are commonly concrete beams which are designed to act as horizontal ties between footings or pile caps. We'd like the rebar from the. It consists of a reinforced concrete beam that transmits the load from a. This video explains how to read the beam schedule and apply it on site as well as how to read the beam. Grade Beam Schedule.
From www.onlinecivilforum.com
Bar Bending Schedule of Beam Grade Beam Schedule Grade beams are commonly concrete beams which are designed to act as horizontal ties between footings or pile caps. The ga plan is usually provided with a beam schedule, which is a table of beam tags with their corresponding beam depths/widths (an. Was wondering if anyone has been able to find a way to add rebar to their concrete beam. Grade Beam Schedule.
From za.pinterest.com
Beam schedule structure and construction details dwg file Grade Beam Schedule Bar bending schedule provides the reinforcement calculation for reinforced concrete beam. They should be reinforced with continuous reinforcement that is developed. Was wondering if anyone has been able to find a way to add rebar to their concrete beam schedules. We'd like the rebar from the. Grade beams are commonly concrete beams which are designed to act as horizontal ties. Grade Beam Schedule.
From www.chegg.com
Solved Sample Schedule of Beams and Typical Beam Detail BEAM Grade Beam Schedule They should be reinforced with continuous reinforcement that is developed. We'd like the rebar from the. This video explains how to read the beam schedule and apply it on site as well as how to read the beam detail.if you have suggestions and. There is a basic difference between a grade beam and a strip footing. Was wondering if anyone. Grade Beam Schedule.
From www.cannondigi.com
How To Create Beam Schedule In Revit The Best Picture Of Beam Grade Beam Schedule Grade beams are commonly concrete beams which are designed to act as horizontal ties between footings or pile caps. They should be reinforced with continuous reinforcement that is developed. The ga plan is usually provided with a beam schedule, which is a table of beam tags with their corresponding beam depths/widths (an. Bar bending schedule provides the reinforcement calculation for. Grade Beam Schedule.
From www.cannondigi.com
How To Create Beam Schedule In Revit The Best Picture Of Beam Grade Beam Schedule They should be reinforced with continuous reinforcement that is developed. The ga plan is usually provided with a beam schedule, which is a table of beam tags with their corresponding beam depths/widths (an. Grade beams are commonly concrete beams which are designed to act as horizontal ties between footings or pile caps. It consists of a reinforced concrete beam that. Grade Beam Schedule.
From mavink.com
Grade Beam Detail Grade Beam Schedule Bar bending schedule provides the reinforcement calculation for reinforced concrete beam. This video explains how to read the beam schedule and apply it on site as well as how to read the beam detail.if you have suggestions and. They should be reinforced with continuous reinforcement that is developed. Grade beams are commonly concrete beams which are designed to act as. Grade Beam Schedule.
From cadbull.com
Plan with beam and footing detail and schedule with structure view dwg Grade Beam Schedule Crete industry are stated more clearly by providing. This video explains how to read the beam schedule and apply it on site as well as how to read the beam detail.if you have suggestions and. There is a basic difference between a grade beam and a strip footing. They should be reinforced with continuous reinforcement that is developed. It consists. Grade Beam Schedule.
From www.studocu.com
anything in this world GRADE BEAM PROFILE GB GB GB GRADE BEAM Grade Beam Schedule This video explains how to read the beam schedule and apply it on site as well as how to read the beam detail.if you have suggestions and. Bar bending schedule provides the reinforcement calculation for reinforced concrete beam. The ga plan is usually provided with a beam schedule, which is a table of beam tags with their corresponding beam depths/widths. Grade Beam Schedule.
From mungfali.com
Grade Beam Plan Grade Beam Schedule The ga plan is usually provided with a beam schedule, which is a table of beam tags with their corresponding beam depths/widths (an. We'd like the rebar from the. Bar bending schedule provides the reinforcement calculation for reinforced concrete beam. It consists of a reinforced concrete beam that transmits the load from a. There is a basic difference between a. Grade Beam Schedule.
From www.scribd.com
Stirrup Bar Schedule For Grade Beams PDF Grade Beam Schedule They should be reinforced with continuous reinforcement that is developed. The ga plan is usually provided with a beam schedule, which is a table of beam tags with their corresponding beam depths/widths (an. We'd like the rebar from the. Crete industry are stated more clearly by providing. It consists of a reinforced concrete beam that transmits the load from a.. Grade Beam Schedule.
From mungfali.com
Grade Beam Drawing Grade Beam Schedule The ga plan is usually provided with a beam schedule, which is a table of beam tags with their corresponding beam depths/widths (an. It provides details of reinforcement cutting length, type of. A grade beam or grade beam footing is a component of a building's foundation. Bar bending schedule provides the reinforcement calculation for reinforced concrete beam. This video explains. Grade Beam Schedule.
From www.youtube.com
Grade Beam & Grade Slab Construction Process YouTube Grade Beam Schedule A grade beam or grade beam footing is a component of a building's foundation. It provides details of reinforcement cutting length, type of. They should be reinforced with continuous reinforcement that is developed. Bar bending schedule provides the reinforcement calculation for reinforced concrete beam. Grade beams are commonly concrete beams which are designed to act as horizontal ties between footings. Grade Beam Schedule.
From www.pinterest.com
Steel Beam Load/Span Tables Steel beams, Beams, Metal beam Grade Beam Schedule Grade beams are commonly concrete beams which are designed to act as horizontal ties between footings or pile caps. The ga plan is usually provided with a beam schedule, which is a table of beam tags with their corresponding beam depths/widths (an. It provides details of reinforcement cutting length, type of. A grade beam or grade beam footing is a. Grade Beam Schedule.
From www.scribd.com
Reinforcement Schedules and Details for Roof Deck Beams, Second Floor Grade Beam Schedule The ga plan is usually provided with a beam schedule, which is a table of beam tags with their corresponding beam depths/widths (an. This video explains how to read the beam schedule and apply it on site as well as how to read the beam detail.if you have suggestions and. Grade beams are commonly concrete beams which are designed to. Grade Beam Schedule.
From engineeringdiscoveries.com
Bar Bending Schedule For Tie Beams And Strap Beams Engineering Grade Beam Schedule Bar bending schedule provides the reinforcement calculation for reinforced concrete beam. It provides details of reinforcement cutting length, type of. Was wondering if anyone has been able to find a way to add rebar to their concrete beam schedules. Crete industry are stated more clearly by providing. They should be reinforced with continuous reinforcement that is developed. A grade beam. Grade Beam Schedule.
From engineering.stackexchange.com
structural engineering At what level is the Grade Beam most effective Grade Beam Schedule A grade beam or grade beam footing is a component of a building's foundation. Crete industry are stated more clearly by providing. This video explains how to read the beam schedule and apply it on site as well as how to read the beam detail.if you have suggestions and. It consists of a reinforced concrete beam that transmits the load. Grade Beam Schedule.
From mungfali.com
Grade Beam Plan Grade Beam Schedule Bar bending schedule provides the reinforcement calculation for reinforced concrete beam. Crete industry are stated more clearly by providing. Grade beams are commonly concrete beams which are designed to act as horizontal ties between footings or pile caps. A grade beam or grade beam footing is a component of a building's foundation. It provides details of reinforcement cutting length, type. Grade Beam Schedule.
From www.eng-tips.com
Grade Beam with elevation changes Structural engineering general Grade Beam Schedule It consists of a reinforced concrete beam that transmits the load from a. They should be reinforced with continuous reinforcement that is developed. Crete industry are stated more clearly by providing. A grade beam or grade beam footing is a component of a building's foundation. There is a basic difference between a grade beam and a strip footing. Bar bending. Grade Beam Schedule.
From www.scribd.com
Grade Beam Detail PDF Grade Beam Schedule Bar bending schedule provides the reinforcement calculation for reinforced concrete beam. We'd like the rebar from the. It provides details of reinforcement cutting length, type of. The ga plan is usually provided with a beam schedule, which is a table of beam tags with their corresponding beam depths/widths (an. This video explains how to read the beam schedule and apply. Grade Beam Schedule.
From wesleysenior.blogspot.com
Wesley's Senior Blog January Post Grade Beam Detail Grade Beam Schedule This video explains how to read the beam schedule and apply it on site as well as how to read the beam detail.if you have suggestions and. It consists of a reinforced concrete beam that transmits the load from a. The ga plan is usually provided with a beam schedule, which is a table of beam tags with their corresponding. Grade Beam Schedule.
From www.researchgate.net
Load Vs deflection results for M40 Grade of Beam Download Table Grade Beam Schedule There is a basic difference between a grade beam and a strip footing. It provides details of reinforcement cutting length, type of. A grade beam or grade beam footing is a component of a building's foundation. Grade beams are commonly concrete beams which are designed to act as horizontal ties between footings or pile caps. Bar bending schedule provides the. Grade Beam Schedule.
From azmemory.azlibrary.gov
Sheet No. BG201. Structural. Column & Footings; Schedule & Details Grade Beam Schedule A grade beam or grade beam footing is a component of a building's foundation. The ga plan is usually provided with a beam schedule, which is a table of beam tags with their corresponding beam depths/widths (an. Was wondering if anyone has been able to find a way to add rebar to their concrete beam schedules. Grade beams are commonly. Grade Beam Schedule.
From www.cannondigi.com
Plinth Beam Bar Bending Schedule The Best Picture Of Beam Grade Beam Schedule Was wondering if anyone has been able to find a way to add rebar to their concrete beam schedules. They should be reinforced with continuous reinforcement that is developed. It provides details of reinforcement cutting length, type of. A grade beam or grade beam footing is a component of a building's foundation. It consists of a reinforced concrete beam that. Grade Beam Schedule.
From www.oas.org
Building Guidelines Drawings. Section B Concrete Construction Grade Beam Schedule It consists of a reinforced concrete beam that transmits the load from a. We'd like the rebar from the. It provides details of reinforcement cutting length, type of. A grade beam or grade beam footing is a component of a building's foundation. Was wondering if anyone has been able to find a way to add rebar to their concrete beam. Grade Beam Schedule.
From cadbull.com
Beam schedule cad construction details dwg file Cadbull Grade Beam Schedule They should be reinforced with continuous reinforcement that is developed. Grade beams are commonly concrete beams which are designed to act as horizontal ties between footings or pile caps. It consists of a reinforced concrete beam that transmits the load from a. We'd like the rebar from the. The ga plan is usually provided with a beam schedule, which is. Grade Beam Schedule.
From mavink.com
Grade Beam Layout Plan Grade Beam Schedule Was wondering if anyone has been able to find a way to add rebar to their concrete beam schedules. There is a basic difference between a grade beam and a strip footing. Crete industry are stated more clearly by providing. Grade beams are commonly concrete beams which are designed to act as horizontal ties between footings or pile caps. They. Grade Beam Schedule.
From cadbull.com
Grade beam detail of the 73x19m industrial plan Cadbull Grade Beam Schedule The ga plan is usually provided with a beam schedule, which is a table of beam tags with their corresponding beam depths/widths (an. There is a basic difference between a grade beam and a strip footing. We'd like the rebar from the. It provides details of reinforcement cutting length, type of. Was wondering if anyone has been able to find. Grade Beam Schedule.
From www.scribd.com
Schedule of beam and slab sample Economic Sectors Equipment Grade Beam Schedule There is a basic difference between a grade beam and a strip footing. They should be reinforced with continuous reinforcement that is developed. This video explains how to read the beam schedule and apply it on site as well as how to read the beam detail.if you have suggestions and. It consists of a reinforced concrete beam that transmits the. Grade Beam Schedule.
From www.cannondigi.com
How To Calculate Grade Beam Reinforcement The Best Picture Of Beam Grade Beam Schedule The ga plan is usually provided with a beam schedule, which is a table of beam tags with their corresponding beam depths/widths (an. Crete industry are stated more clearly by providing. It consists of a reinforced concrete beam that transmits the load from a. Bar bending schedule provides the reinforcement calculation for reinforced concrete beam. This video explains how to. Grade Beam Schedule.
From 7ces.com
Rebar Detailing Companies Rebar Shop Drawings Grade Beam Schedule We'd like the rebar from the. They should be reinforced with continuous reinforcement that is developed. Bar bending schedule provides the reinforcement calculation for reinforced concrete beam. The ga plan is usually provided with a beam schedule, which is a table of beam tags with their corresponding beam depths/widths (an. Grade beams are commonly concrete beams which are designed to. Grade Beam Schedule.
From civiljungle.com
What Is Grade Beam What Is Grade Beam Foundation Grade Beam Grade Beam Schedule A grade beam or grade beam footing is a component of a building's foundation. Crete industry are stated more clearly by providing. This video explains how to read the beam schedule and apply it on site as well as how to read the beam detail.if you have suggestions and. It provides details of reinforcement cutting length, type of. Bar bending. Grade Beam Schedule.
From soilstructure.com
Grade Beam Analysis Software SoilStructure Software Grade Beam Schedule This video explains how to read the beam schedule and apply it on site as well as how to read the beam detail.if you have suggestions and. We'd like the rebar from the. They should be reinforced with continuous reinforcement that is developed. There is a basic difference between a grade beam and a strip footing. It provides details of. Grade Beam Schedule.
From www.pinterest.com.au
bar bending schedule of rcc beam bar bending schedule spreadsheet Grade Beam Schedule They should be reinforced with continuous reinforcement that is developed. Bar bending schedule provides the reinforcement calculation for reinforced concrete beam. The ga plan is usually provided with a beam schedule, which is a table of beam tags with their corresponding beam depths/widths (an. It provides details of reinforcement cutting length, type of. We'd like the rebar from the. Was. Grade Beam Schedule.