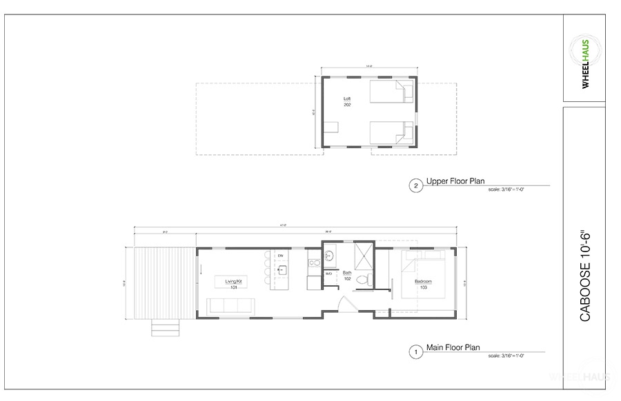
Caboose House Plans . Weighing in at around 15 tons or so, but typically measuring only about 10 by 30 feet, old cabooses are massive marvels no longer made by the rail industry. Railroad caboose to cabin conversion. While the idea of using a real retired caboose seems like a good idea, the logistics of. It’s a luxurious 400 sq. The caboose is a design by wheelhaus, similar to their wedge model. The gabled roof system coupled with the timber frame. This 30′ home includes tall ceilings, a sizable bathroom with a glass shower, a private bedroom with a captain’s bed, a convertible dining booth, and more! The design offers a stairs/ladder into a sleeping loft that adds an additional 120 square feet that’s great for additional sleeping quarters. Well, here’s the latest tiny home they’re wrapping up, which is for sale. They share the same floor plan, but the caboose has a flat roof that allows for a 120 sq.ft. The caboose can easily be customized for your own style and needs with a basic floor plan including simple adaptations. It's about 31ft long and 8.5ft wide. Originally built in 1910 in. Right now i’m glad to be showing you the caboose cabin designed by wheelhaus. This is a 228 sq.
from www.itinyhouses.com
The gabled roof system coupled with the timber frame. It’s a luxurious 400 sq. They share the same floor plan, but the caboose has a flat roof that allows for a 120 sq.ft. Right now i’m glad to be showing you the caboose cabin designed by wheelhaus. The caboose is a design by wheelhaus, similar to their wedge model. Railroad caboose to cabin conversion. The caboose can easily be customized for your own style and needs with a basic floor plan including simple adaptations. It's about 31ft long and 8.5ft wide. This is a 228 sq. This 30′ home includes tall ceilings, a sizable bathroom with a glass shower, a private bedroom with a captain’s bed, a convertible dining booth, and more!
Caboose Transformed Into a Tiny House. Check out How This Couple Lives
Caboose House Plans The design offers a stairs/ladder into a sleeping loft that adds an additional 120 square feet that’s great for additional sleeping quarters. Weighing in at around 15 tons or so, but typically measuring only about 10 by 30 feet, old cabooses are massive marvels no longer made by the rail industry. Right now i’m glad to be showing you the caboose cabin designed by wheelhaus. It's about 31ft long and 8.5ft wide. Well, here’s the latest tiny home they’re wrapping up, which is for sale. While the idea of using a real retired caboose seems like a good idea, the logistics of. This 30′ home includes tall ceilings, a sizable bathroom with a glass shower, a private bedroom with a captain’s bed, a convertible dining booth, and more! This is a 228 sq. They share the same floor plan, but the caboose has a flat roof that allows for a 120 sq.ft. It’s a luxurious 400 sq. The caboose can easily be customized for your own style and needs with a basic floor plan including simple adaptations. The design offers a stairs/ladder into a sleeping loft that adds an additional 120 square feet that’s great for additional sleeping quarters. The caboose is a design by wheelhaus, similar to their wedge model. Railroad caboose to cabin conversion. Originally built in 1910 in. The gabled roof system coupled with the timber frame.
From ar.inspiredpencil.com
Caboose House Plans Caboose House Plans While the idea of using a real retired caboose seems like a good idea, the logistics of. Well, here’s the latest tiny home they’re wrapping up, which is for sale. The design offers a stairs/ladder into a sleeping loft that adds an additional 120 square feet that’s great for additional sleeping quarters. This is a 228 sq. Originally built in. Caboose House Plans.
From www.blogto.com
Here's why a train caboose turned into tiny home sits in limbo outside Caboose House Plans Railroad caboose to cabin conversion. This is a 228 sq. Weighing in at around 15 tons or so, but typically measuring only about 10 by 30 feet, old cabooses are massive marvels no longer made by the rail industry. Originally built in 1910 in. While the idea of using a real retired caboose seems like a good idea, the logistics. Caboose House Plans.
From www.pinterest.com
Tiny Houses A Red Caboose Tiny house living, Tiny house hotel, Small Caboose House Plans This 30′ home includes tall ceilings, a sizable bathroom with a glass shower, a private bedroom with a captain’s bed, a convertible dining booth, and more! This is a 228 sq. It's about 31ft long and 8.5ft wide. The caboose can easily be customized for your own style and needs with a basic floor plan including simple adaptations. They share. Caboose House Plans.
From ar.inspiredpencil.com
Caboose House Plans Caboose House Plans While the idea of using a real retired caboose seems like a good idea, the logistics of. It’s a luxurious 400 sq. Originally built in 1910 in. Weighing in at around 15 tons or so, but typically measuring only about 10 by 30 feet, old cabooses are massive marvels no longer made by the rail industry. They share the same. Caboose House Plans.
From ar.inspiredpencil.com
Caboose House Plans Caboose House Plans While the idea of using a real retired caboose seems like a good idea, the logistics of. Railroad caboose to cabin conversion. Originally built in 1910 in. Weighing in at around 15 tons or so, but typically measuring only about 10 by 30 feet, old cabooses are massive marvels no longer made by the rail industry. The caboose can easily. Caboose House Plans.
From www.autoevolution.com
Arthur Is a CabooseInspired Tiny Home Trying to Get You Into Caboose House Plans Originally built in 1910 in. The caboose can easily be customized for your own style and needs with a basic floor plan including simple adaptations. They share the same floor plan, but the caboose has a flat roof that allows for a 120 sq.ft. While the idea of using a real retired caboose seems like a good idea, the logistics. Caboose House Plans.
From www.tinyhousetown.net
Caboose Tiny House (240 Sq Ft) [ TINY HOUSE TOWN ] Caboose House Plans While the idea of using a real retired caboose seems like a good idea, the logistics of. The caboose is a design by wheelhaus, similar to their wedge model. This is a 228 sq. Railroad caboose to cabin conversion. Originally built in 1910 in. It’s a luxurious 400 sq. This 30′ home includes tall ceilings, a sizable bathroom with a. Caboose House Plans.
From viewfloor.co
Caboose Floor Plans Viewfloor.co Caboose House Plans They share the same floor plan, but the caboose has a flat roof that allows for a 120 sq.ft. Right now i’m glad to be showing you the caboose cabin designed by wheelhaus. The caboose can easily be customized for your own style and needs with a basic floor plan including simple adaptations. The gabled roof system coupled with the. Caboose House Plans.
From tinyhousetalk.com
228 Sq. Ft. Railroad Caboose Cabin Caboose House Plans Weighing in at around 15 tons or so, but typically measuring only about 10 by 30 feet, old cabooses are massive marvels no longer made by the rail industry. Originally built in 1910 in. Railroad caboose to cabin conversion. The gabled roof system coupled with the timber frame. This 30′ home includes tall ceilings, a sizable bathroom with a glass. Caboose House Plans.
From highendfurnitur.blogspot.com
Must Know Home Interior Design Plans Article HighEnd Furniture Caboose House Plans Railroad caboose to cabin conversion. This is a 228 sq. They share the same floor plan, but the caboose has a flat roof that allows for a 120 sq.ft. The caboose is a design by wheelhaus, similar to their wedge model. The design offers a stairs/ladder into a sleeping loft that adds an additional 120 square feet that’s great for. Caboose House Plans.
From www.itinyhouses.com
Caboose Transformed Into a Tiny House. Check out How This Couple Lives Caboose House Plans It’s a luxurious 400 sq. The design offers a stairs/ladder into a sleeping loft that adds an additional 120 square feet that’s great for additional sleeping quarters. Well, here’s the latest tiny home they’re wrapping up, which is for sale. Right now i’m glad to be showing you the caboose cabin designed by wheelhaus. The caboose is a design by. Caboose House Plans.
From www.pinterest.co.uk
Real Caboose Dimensions > Community > Forums Caboose House Plans Right now i’m glad to be showing you the caboose cabin designed by wheelhaus. They share the same floor plan, but the caboose has a flat roof that allows for a 120 sq.ft. Railroad caboose to cabin conversion. This is a 228 sq. Originally built in 1910 in. This 30′ home includes tall ceilings, a sizable bathroom with a glass. Caboose House Plans.
From ar.inspiredpencil.com
Caboose House Plans Caboose House Plans The gabled roof system coupled with the timber frame. The design offers a stairs/ladder into a sleeping loft that adds an additional 120 square feet that’s great for additional sleeping quarters. They share the same floor plan, but the caboose has a flat roof that allows for a 120 sq.ft. Originally built in 1910 in. Weighing in at around 15. Caboose House Plans.
From ar.inspiredpencil.com
Caboose House Plans Caboose House Plans The gabled roof system coupled with the timber frame. The caboose is a design by wheelhaus, similar to their wedge model. It's about 31ft long and 8.5ft wide. Well, here’s the latest tiny home they’re wrapping up, which is for sale. Railroad caboose to cabin conversion. They share the same floor plan, but the caboose has a flat roof that. Caboose House Plans.
From www.pinterest.com
February 2013 Back to Yellowstone Caboose, Small cottages, Metal Caboose House Plans While the idea of using a real retired caboose seems like a good idea, the logistics of. Well, here’s the latest tiny home they’re wrapping up, which is for sale. This is a 228 sq. The caboose is a design by wheelhaus, similar to their wedge model. The gabled roof system coupled with the timber frame. Right now i’m glad. Caboose House Plans.
From tinyhousetalk.com
228 Sq. Ft. Railroad Caboose Cabin Caboose House Plans The gabled roof system coupled with the timber frame. The caboose is a design by wheelhaus, similar to their wedge model. This 30′ home includes tall ceilings, a sizable bathroom with a glass shower, a private bedroom with a captain’s bed, a convertible dining booth, and more! This is a 228 sq. Weighing in at around 15 tons or so,. Caboose House Plans.
From www.youtube.com
Beautiful Train Caboose Inspired Tiny House At Portland Hotel YouTube Caboose House Plans Railroad caboose to cabin conversion. This 30′ home includes tall ceilings, a sizable bathroom with a glass shower, a private bedroom with a captain’s bed, a convertible dining booth, and more! The caboose is a design by wheelhaus, similar to their wedge model. Weighing in at around 15 tons or so, but typically measuring only about 10 by 30 feet,. Caboose House Plans.
From ar.inspiredpencil.com
Caboose House Plans Caboose House Plans Originally built in 1910 in. Railroad caboose to cabin conversion. The gabled roof system coupled with the timber frame. Well, here’s the latest tiny home they’re wrapping up, which is for sale. This is a 228 sq. The caboose is a design by wheelhaus, similar to their wedge model. It’s a luxurious 400 sq. Weighing in at around 15 tons. Caboose House Plans.
From mavink.com
Tiny House Caboose Plans Caboose House Plans Right now i’m glad to be showing you the caboose cabin designed by wheelhaus. The design offers a stairs/ladder into a sleeping loft that adds an additional 120 square feet that’s great for additional sleeping quarters. This is a 228 sq. It’s a luxurious 400 sq. Originally built in 1910 in. They share the same floor plan, but the caboose. Caboose House Plans.
From ar.inspiredpencil.com
Caboose House Plans Caboose House Plans This 30′ home includes tall ceilings, a sizable bathroom with a glass shower, a private bedroom with a captain’s bed, a convertible dining booth, and more! The caboose can easily be customized for your own style and needs with a basic floor plan including simple adaptations. Railroad caboose to cabin conversion. Well, here’s the latest tiny home they’re wrapping up,. Caboose House Plans.
From ar.inspiredpencil.com
Caboose House Plans Caboose House Plans Right now i’m glad to be showing you the caboose cabin designed by wheelhaus. The design offers a stairs/ladder into a sleeping loft that adds an additional 120 square feet that’s great for additional sleeping quarters. They share the same floor plan, but the caboose has a flat roof that allows for a 120 sq.ft. The caboose is a design. Caboose House Plans.
From ar.inspiredpencil.com
Caboose House Plans Caboose House Plans The design offers a stairs/ladder into a sleeping loft that adds an additional 120 square feet that’s great for additional sleeping quarters. Well, here’s the latest tiny home they’re wrapping up, which is for sale. Originally built in 1910 in. Weighing in at around 15 tons or so, but typically measuring only about 10 by 30 feet, old cabooses are. Caboose House Plans.
From tinyhousefor.us
Bespoke Park Model RV Home Built From a Train Caboose Caboose House Plans The caboose is a design by wheelhaus, similar to their wedge model. It's about 31ft long and 8.5ft wide. Well, here’s the latest tiny home they’re wrapping up, which is for sale. It’s a luxurious 400 sq. This 30′ home includes tall ceilings, a sizable bathroom with a glass shower, a private bedroom with a captain’s bed, a convertible dining. Caboose House Plans.
From pitsnipesgripes.blogspot.com
Pitsnipes Gripes Caboose homes Caboose House Plans Railroad caboose to cabin conversion. Right now i’m glad to be showing you the caboose cabin designed by wheelhaus. Weighing in at around 15 tons or so, but typically measuring only about 10 by 30 feet, old cabooses are massive marvels no longer made by the rail industry. The gabled roof system coupled with the timber frame. This is a. Caboose House Plans.
From ar.inspiredpencil.com
Caboose House Plans Caboose House Plans While the idea of using a real retired caboose seems like a good idea, the logistics of. They share the same floor plan, but the caboose has a flat roof that allows for a 120 sq.ft. Originally built in 1910 in. It’s a luxurious 400 sq. Right now i’m glad to be showing you the caboose cabin designed by wheelhaus.. Caboose House Plans.
From viewfloor.co
Caboose Floor Plans Viewfloor.co Caboose House Plans The caboose can easily be customized for your own style and needs with a basic floor plan including simple adaptations. Weighing in at around 15 tons or so, but typically measuring only about 10 by 30 feet, old cabooses are massive marvels no longer made by the rail industry. Originally built in 1910 in. It’s a luxurious 400 sq. Railroad. Caboose House Plans.
From ar.inspiredpencil.com
Caboose House Plans Caboose House Plans This is a 228 sq. Well, here’s the latest tiny home they’re wrapping up, which is for sale. This 30′ home includes tall ceilings, a sizable bathroom with a glass shower, a private bedroom with a captain’s bed, a convertible dining booth, and more! Railroad caboose to cabin conversion. The gabled roof system coupled with the timber frame. The caboose. Caboose House Plans.
From fpictures.homes
Caboose House Plans Caboose House Plans This 30′ home includes tall ceilings, a sizable bathroom with a glass shower, a private bedroom with a captain’s bed, a convertible dining booth, and more! Railroad caboose to cabin conversion. Weighing in at around 15 tons or so, but typically measuring only about 10 by 30 feet, old cabooses are massive marvels no longer made by the rail industry.. Caboose House Plans.
From paulsplayhouses.com
Caboose Playhouse Plan 90ft² Wood Plan for Kids Paul's Playhouses Caboose House Plans This is a 228 sq. While the idea of using a real retired caboose seems like a good idea, the logistics of. Right now i’m glad to be showing you the caboose cabin designed by wheelhaus. This 30′ home includes tall ceilings, a sizable bathroom with a glass shower, a private bedroom with a captain’s bed, a convertible dining booth,. Caboose House Plans.
From www.pinterest.fr
Caboose Transformed Into a Tiny House. Check out How This Couple Lives Caboose House Plans While the idea of using a real retired caboose seems like a good idea, the logistics of. The caboose is a design by wheelhaus, similar to their wedge model. It’s a luxurious 400 sq. The gabled roof system coupled with the timber frame. Right now i’m glad to be showing you the caboose cabin designed by wheelhaus. The design offers. Caboose House Plans.
From fpictures.homes
Caboose House Plans Caboose House Plans Right now i’m glad to be showing you the caboose cabin designed by wheelhaus. Originally built in 1910 in. It’s a luxurious 400 sq. This 30′ home includes tall ceilings, a sizable bathroom with a glass shower, a private bedroom with a captain’s bed, a convertible dining booth, and more! Weighing in at around 15 tons or so, but typically. Caboose House Plans.
From www.apartmenttherapy.com
Peek Inside This Converted Caboose Tiny House For Sale Apartment Therapy Caboose House Plans It's about 31ft long and 8.5ft wide. The caboose is a design by wheelhaus, similar to their wedge model. The design offers a stairs/ladder into a sleeping loft that adds an additional 120 square feet that’s great for additional sleeping quarters. It’s a luxurious 400 sq. Right now i’m glad to be showing you the caboose cabin designed by wheelhaus.. Caboose House Plans.
From www.pinterest.com
Cliffside Caboose Tiny House Swoon Tiny House Swoon, Diy Tiny House Caboose House Plans The caboose can easily be customized for your own style and needs with a basic floor plan including simple adaptations. Weighing in at around 15 tons or so, but typically measuring only about 10 by 30 feet, old cabooses are massive marvels no longer made by the rail industry. The design offers a stairs/ladder into a sleeping loft that adds. Caboose House Plans.
From www.reddit.com
Inside a converted caboose r/CozyPlaces Caboose House Plans Railroad caboose to cabin conversion. They share the same floor plan, but the caboose has a flat roof that allows for a 120 sq.ft. This 30′ home includes tall ceilings, a sizable bathroom with a glass shower, a private bedroom with a captain’s bed, a convertible dining booth, and more! It's about 31ft long and 8.5ft wide. It’s a luxurious. Caboose House Plans.
From ar.inspiredpencil.com
Caboose House Plans Caboose House Plans The caboose is a design by wheelhaus, similar to their wedge model. This is a 228 sq. While the idea of using a real retired caboose seems like a good idea, the logistics of. They share the same floor plan, but the caboose has a flat roof that allows for a 120 sq.ft. This 30′ home includes tall ceilings, a. Caboose House Plans.