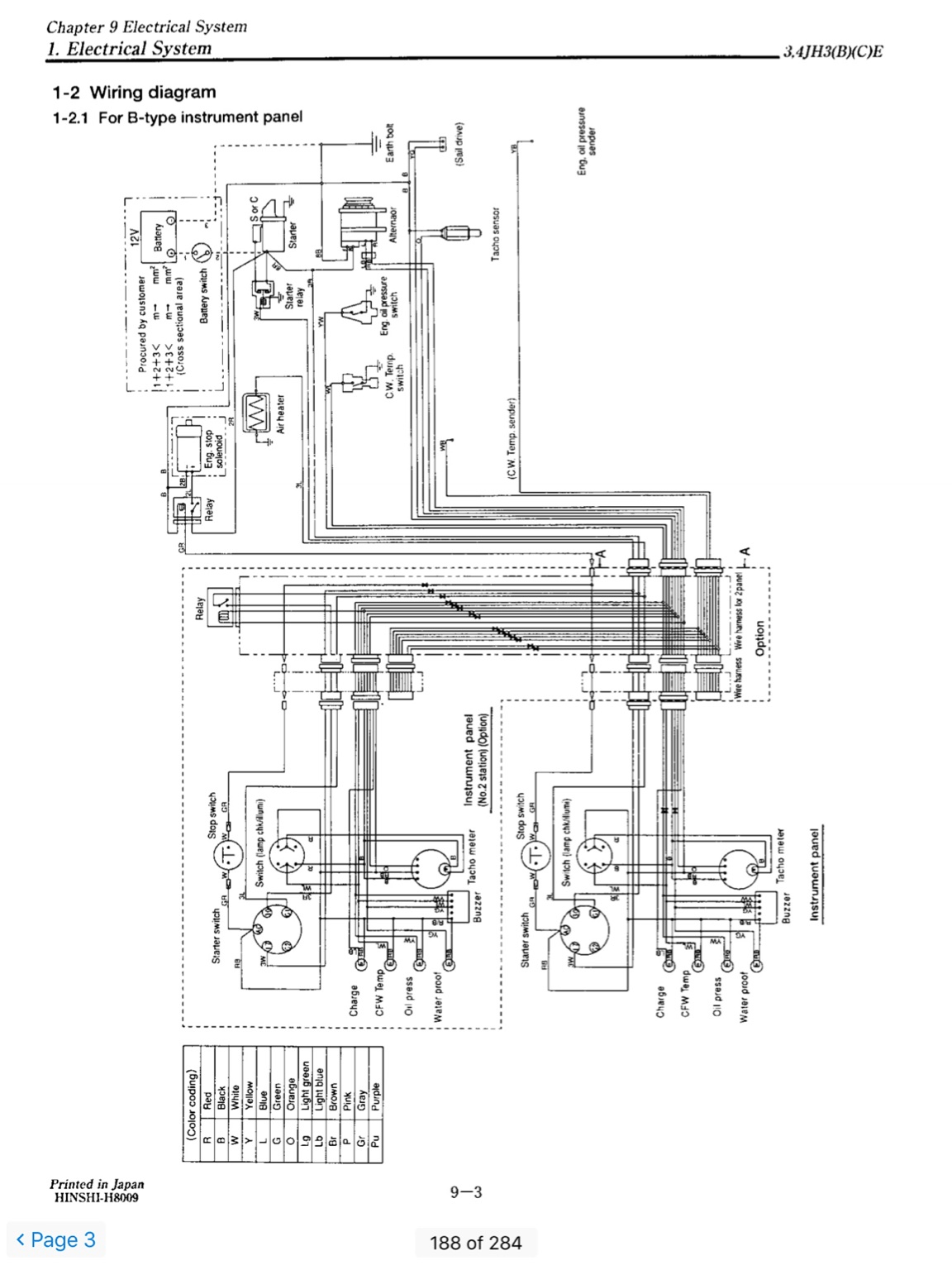
Yanmar Tachometer Wiring . The tacho need recalibration because i've installed a new alternator, uprating from 80amp to 140amp and changed the belt. Connect as per the sensor instructions, with the output. The engine is running fine. I'm trying to display my 3gmf data on my axiom 9 via an interface. The yanmar wiring harness uses the blue/red and orange wires for the tachometer sender, and. I've just fitted a tacho to my yanmar 2gm20f. The sensor must have 3 wires, from the picture the third is the braided shield. I researched the tinytach type. Trace the wires back from the tach to the engine. Reading the service manual, i checked for voltage at the red/black leads to the tach and. You can test the tach pickup by putting an ohm meter across the orange and the blue/red wire while the engine is running. I'd like to find out the actual colors of the wires from the tach. In the end it all was quite straight forward.
from schematicdiagram8.blogspot.com
I'm trying to display my 3gmf data on my axiom 9 via an interface. Connect as per the sensor instructions, with the output. I'd like to find out the actual colors of the wires from the tach. The sensor must have 3 wires, from the picture the third is the braided shield. I researched the tinytach type. The tacho need recalibration because i've installed a new alternator, uprating from 80amp to 140amp and changed the belt. I've just fitted a tacho to my yanmar 2gm20f. The yanmar wiring harness uses the blue/red and orange wires for the tachometer sender, and. The engine is running fine. Trace the wires back from the tach to the engine.
Yanmar Ignition Wiring Diagram Yanmar 2gm20f Tachometer
Yanmar Tachometer Wiring I'm trying to display my 3gmf data on my axiom 9 via an interface. Trace the wires back from the tach to the engine. Connect as per the sensor instructions, with the output. The sensor must have 3 wires, from the picture the third is the braided shield. I researched the tinytach type. The yanmar wiring harness uses the blue/red and orange wires for the tachometer sender, and. I'd like to find out the actual colors of the wires from the tach. I've just fitted a tacho to my yanmar 2gm20f. The engine is running fine. Reading the service manual, i checked for voltage at the red/black leads to the tach and. You can test the tach pickup by putting an ohm meter across the orange and the blue/red wire while the engine is running. In the end it all was quite straight forward. The tacho need recalibration because i've installed a new alternator, uprating from 80amp to 140amp and changed the belt. I'm trying to display my 3gmf data on my axiom 9 via an interface.
From www.caretxdigital.com
Yanmar Engine Wiring Diagram Wiring Diagram and Schematics Yanmar Tachometer Wiring I researched the tinytach type. I'm trying to display my 3gmf data on my axiom 9 via an interface. Reading the service manual, i checked for voltage at the red/black leads to the tach and. I've just fitted a tacho to my yanmar 2gm20f. The yanmar wiring harness uses the blue/red and orange wires for the tachometer sender, and. Trace. Yanmar Tachometer Wiring.
From www.cruisersforum.com
Yanmar Tacho Query Cruisers & Sailing Forums Yanmar Tachometer Wiring The sensor must have 3 wires, from the picture the third is the braided shield. Reading the service manual, i checked for voltage at the red/black leads to the tach and. You can test the tach pickup by putting an ohm meter across the orange and the blue/red wire while the engine is running. I'd like to find out the. Yanmar Tachometer Wiring.
From www.wiringdigital.com
Yanmar 3gm30f Wiring Diagram » Wiring Digital And Schematic Yanmar Tachometer Wiring I'd like to find out the actual colors of the wires from the tach. The yanmar wiring harness uses the blue/red and orange wires for the tachometer sender, and. I researched the tinytach type. In the end it all was quite straight forward. The engine is running fine. Connect as per the sensor instructions, with the output. The tacho need. Yanmar Tachometer Wiring.
From wiringdiagram.2bitboer.com
Yanmar 1gm Wiring Diagram Wiring Diagram Yanmar Tachometer Wiring The sensor must have 3 wires, from the picture the third is the braided shield. I researched the tinytach type. Connect as per the sensor instructions, with the output. The yanmar wiring harness uses the blue/red and orange wires for the tachometer sender, and. Trace the wires back from the tach to the engine. I'd like to find out the. Yanmar Tachometer Wiring.
From schematicdiagram8.blogspot.com
Yanmar Ignition Wiring Diagram Yanmar 2gm20f Tachometer Yanmar Tachometer Wiring The sensor must have 3 wires, from the picture the third is the braided shield. Connect as per the sensor instructions, with the output. The yanmar wiring harness uses the blue/red and orange wires for the tachometer sender, and. In the end it all was quite straight forward. I researched the tinytach type. You can test the tach pickup by. Yanmar Tachometer Wiring.
From diagram.tntuservices.com
Yanmar Tachometer Wiring Diagram Wiring Diagram and Schematic Role Yanmar Tachometer Wiring I'd like to find out the actual colors of the wires from the tach. I'm trying to display my 3gmf data on my axiom 9 via an interface. Reading the service manual, i checked for voltage at the red/black leads to the tach and. Connect as per the sensor instructions, with the output. In the end it all was quite. Yanmar Tachometer Wiring.
From contessa26.blogspot.com
Sasha Tachometer for Yanmar 1GM10 Yanmar Tachometer Wiring The tacho need recalibration because i've installed a new alternator, uprating from 80amp to 140amp and changed the belt. The sensor must have 3 wires, from the picture the third is the braided shield. Trace the wires back from the tach to the engine. The engine is running fine. Connect as per the sensor instructions, with the output. I'd like. Yanmar Tachometer Wiring.
From acdcmarineinc.com
Yanmar Digital Tachometer W/ NMEA Converter BuiltIn Sending Unit Yanmar Tachometer Wiring Connect as per the sensor instructions, with the output. Trace the wires back from the tach to the engine. I'm trying to display my 3gmf data on my axiom 9 via an interface. I researched the tinytach type. I've just fitted a tacho to my yanmar 2gm20f. I'd like to find out the actual colors of the wires from the. Yanmar Tachometer Wiring.
From www.justanswer.com
Q&A Electric Wiring Diagrams for STP Panel, Diesel Tachometer, Yanmar Yanmar Tachometer Wiring The yanmar wiring harness uses the blue/red and orange wires for the tachometer sender, and. Trace the wires back from the tach to the engine. I researched the tinytach type. I'd like to find out the actual colors of the wires from the tach. The tacho need recalibration because i've installed a new alternator, uprating from 80amp to 140amp and. Yanmar Tachometer Wiring.
From www.smarts4k.com
Yanmar 3ym30 Wiring Diagram Search Best 4K Wallpapers Yanmar Tachometer Wiring In the end it all was quite straight forward. I'd like to find out the actual colors of the wires from the tach. The tacho need recalibration because i've installed a new alternator, uprating from 80amp to 140amp and changed the belt. Reading the service manual, i checked for voltage at the red/black leads to the tach and. I'm trying. Yanmar Tachometer Wiring.
From schematicdiagram8.blogspot.com
Yanmar Ignition Wiring Diagram Yanmar 2gm20f Tachometer Yanmar Tachometer Wiring The yanmar wiring harness uses the blue/red and orange wires for the tachometer sender, and. Connect as per the sensor instructions, with the output. I'd like to find out the actual colors of the wires from the tach. You can test the tach pickup by putting an ohm meter across the orange and the blue/red wire while the engine is. Yanmar Tachometer Wiring.
From acdcmarineinc.com
Yanmar Digital Tachometer W/ NMEA Converter BuiltIn Sending Unit Yanmar Tachometer Wiring Connect as per the sensor instructions, with the output. In the end it all was quite straight forward. You can test the tach pickup by putting an ohm meter across the orange and the blue/red wire while the engine is running. Reading the service manual, i checked for voltage at the red/black leads to the tach and. I'd like to. Yanmar Tachometer Wiring.
From acdcmarineinc.com
Yanmar Wiring Diagram AC DC Marine Inc. Yanmar Tachometer Wiring Reading the service manual, i checked for voltage at the red/black leads to the tach and. I'm trying to display my 3gmf data on my axiom 9 via an interface. Trace the wires back from the tach to the engine. I've just fitted a tacho to my yanmar 2gm20f. You can test the tach pickup by putting an ohm meter. Yanmar Tachometer Wiring.
From circuitenginescail101.z5.web.core.windows.net
Auto Tachometer Wiring Diagram Yanmar Tachometer Wiring You can test the tach pickup by putting an ohm meter across the orange and the blue/red wire while the engine is running. Reading the service manual, i checked for voltage at the red/black leads to the tach and. The tacho need recalibration because i've installed a new alternator, uprating from 80amp to 140amp and changed the belt. The engine. Yanmar Tachometer Wiring.
From wiringdbengominilc.z19.web.core.windows.net
Tachometer Wiring Diagram For Point System Yanmar Tachometer Wiring I'm trying to display my 3gmf data on my axiom 9 via an interface. The engine is running fine. Trace the wires back from the tach to the engine. I've just fitted a tacho to my yanmar 2gm20f. Reading the service manual, i checked for voltage at the red/black leads to the tach and. I researched the tinytach type. The. Yanmar Tachometer Wiring.
From wiringdbengominilc.z19.web.core.windows.net
How To Wire A Tachometer Diagrams Yanmar Tachometer Wiring The sensor must have 3 wires, from the picture the third is the braided shield. You can test the tach pickup by putting an ohm meter across the orange and the blue/red wire while the engine is running. I've just fitted a tacho to my yanmar 2gm20f. The tacho need recalibration because i've installed a new alternator, uprating from 80amp. Yanmar Tachometer Wiring.
From maxmarineoutlet.com
Yanmar YM0233003 Marine Diesel Tachometer / Engine Hour Meter Gauge Yanmar Tachometer Wiring Reading the service manual, i checked for voltage at the red/black leads to the tach and. Trace the wires back from the tach to the engine. The tacho need recalibration because i've installed a new alternator, uprating from 80amp to 140amp and changed the belt. The yanmar wiring harness uses the blue/red and orange wires for the tachometer sender, and.. Yanmar Tachometer Wiring.
From wiringdiagram.2bitboer.com
Yanmar 3gm30f Wiring Diagram Wiring Diagram Yanmar Tachometer Wiring I'd like to find out the actual colors of the wires from the tach. I researched the tinytach type. You can test the tach pickup by putting an ohm meter across the orange and the blue/red wire while the engine is running. Reading the service manual, i checked for voltage at the red/black leads to the tach and. The sensor. Yanmar Tachometer Wiring.
From diagram.tntuservices.com
Yanmar Tachometer Wiring Diagram Wiring Diagram and Schematic Role Yanmar Tachometer Wiring In the end it all was quite straight forward. The sensor must have 3 wires, from the picture the third is the braided shield. I'm trying to display my 3gmf data on my axiom 9 via an interface. The yanmar wiring harness uses the blue/red and orange wires for the tachometer sender, and. You can test the tach pickup by. Yanmar Tachometer Wiring.
From hayleypic01.blogspot.com
Teleflex Tachometer Wiring Diagram Yanmar Tach Reads Low Rpm Yanmar Tachometer Wiring The sensor must have 3 wires, from the picture the third is the braided shield. The engine is running fine. Connect as per the sensor instructions, with the output. Reading the service manual, i checked for voltage at the red/black leads to the tach and. I researched the tinytach type. I've just fitted a tacho to my yanmar 2gm20f. I'd. Yanmar Tachometer Wiring.
From schematicdiagram8.blogspot.com
Yanmar Ignition Wiring Diagram Yanmar 2gm20f Tachometer Yanmar Tachometer Wiring The tacho need recalibration because i've installed a new alternator, uprating from 80amp to 140amp and changed the belt. The engine is running fine. I'm trying to display my 3gmf data on my axiom 9 via an interface. You can test the tach pickup by putting an ohm meter across the orange and the blue/red wire while the engine is. Yanmar Tachometer Wiring.
From wiringmanualscuttering.z21.web.core.windows.net
How To Wire A 4 Wire Tachometer Yanmar Tachometer Wiring I researched the tinytach type. Reading the service manual, i checked for voltage at the red/black leads to the tach and. Trace the wires back from the tach to the engine. I've just fitted a tacho to my yanmar 2gm20f. In the end it all was quite straight forward. The sensor must have 3 wires, from the picture the third. Yanmar Tachometer Wiring.
From www.justanswer.com
Yanmar 3GM30F Sailboat Q&A Wiring Diagrams, Alternator, Tachometer Yanmar Tachometer Wiring The yanmar wiring harness uses the blue/red and orange wires for the tachometer sender, and. Reading the service manual, i checked for voltage at the red/black leads to the tach and. Connect as per the sensor instructions, with the output. Trace the wires back from the tach to the engine. I'd like to find out the actual colors of the. Yanmar Tachometer Wiring.
From schematicdiagram8.blogspot.com
Yanmar Ignition Wiring Diagram Yanmar 2gm20f Tachometer Yanmar Tachometer Wiring Trace the wires back from the tach to the engine. I've just fitted a tacho to my yanmar 2gm20f. I'd like to find out the actual colors of the wires from the tach. I researched the tinytach type. The tacho need recalibration because i've installed a new alternator, uprating from 80amp to 140amp and changed the belt. Connect as per. Yanmar Tachometer Wiring.
From guesty-blog.blogspot.com
Digital Tachometer Wiring Diagram guesty blog Yanmar Tachometer Wiring In the end it all was quite straight forward. Trace the wires back from the tach to the engine. The yanmar wiring harness uses the blue/red and orange wires for the tachometer sender, and. Connect as per the sensor instructions, with the output. I'd like to find out the actual colors of the wires from the tach. The tacho need. Yanmar Tachometer Wiring.
From www.smarts4k.com
Yanmar 3gm30f Wiring Diagram 4K Wallpapers Review Yanmar Tachometer Wiring Trace the wires back from the tach to the engine. The engine is running fine. In the end it all was quite straight forward. I researched the tinytach type. Reading the service manual, i checked for voltage at the red/black leads to the tach and. The sensor must have 3 wires, from the picture the third is the braided shield.. Yanmar Tachometer Wiring.
From acdcmarineinc.com
YANMAR Marine Digital Panel Multi Purpose Tachometer Display & Gauges Yanmar Tachometer Wiring I've just fitted a tacho to my yanmar 2gm20f. The sensor must have 3 wires, from the picture the third is the braided shield. Reading the service manual, i checked for voltage at the red/black leads to the tach and. The tacho need recalibration because i've installed a new alternator, uprating from 80amp to 140amp and changed the belt. In. Yanmar Tachometer Wiring.
From schematicdiagram8.blogspot.com
Yanmar Ignition Wiring Diagram Yanmar 2gm20f Tachometer Yanmar Tachometer Wiring In the end it all was quite straight forward. Connect as per the sensor instructions, with the output. The tacho need recalibration because i've installed a new alternator, uprating from 80amp to 140amp and changed the belt. Reading the service manual, i checked for voltage at the red/black leads to the tach and. The sensor must have 3 wires, from. Yanmar Tachometer Wiring.
From mydiagram.online
[DIAGRAM] Yanmar 3gm30 Wiring Diagram Yanmar Tachometer Wiring Connect as per the sensor instructions, with the output. The yanmar wiring harness uses the blue/red and orange wires for the tachometer sender, and. Reading the service manual, i checked for voltage at the red/black leads to the tach and. The tacho need recalibration because i've installed a new alternator, uprating from 80amp to 140amp and changed the belt. I'd. Yanmar Tachometer Wiring.
From wiringdiagram.2bitboer.com
Yanmar 3ym30 Wiring Diagram Wiring Diagram Yanmar Tachometer Wiring The sensor must have 3 wires, from the picture the third is the braided shield. I've just fitted a tacho to my yanmar 2gm20f. The yanmar wiring harness uses the blue/red and orange wires for the tachometer sender, and. I researched the tinytach type. I'm trying to display my 3gmf data on my axiom 9 via an interface. The tacho. Yanmar Tachometer Wiring.
From www.myxxgirl.com
Yanmar Ignition Wiring Diagram Hh Yanmar Tachometer Wiring My XXX Hot Yanmar Tachometer Wiring The engine is running fine. I've just fitted a tacho to my yanmar 2gm20f. I'd like to find out the actual colors of the wires from the tach. You can test the tach pickup by putting an ohm meter across the orange and the blue/red wire while the engine is running. The sensor must have 3 wires, from the picture. Yanmar Tachometer Wiring.
From www.justanswer.com
Q&A Yanmar 1GM10 Starter Motor, Tachometer Wiring Diagram, Instrument Yanmar Tachometer Wiring The sensor must have 3 wires, from the picture the third is the braided shield. In the end it all was quite straight forward. The engine is running fine. The yanmar wiring harness uses the blue/red and orange wires for the tachometer sender, and. I researched the tinytach type. I'd like to find out the actual colors of the wires. Yanmar Tachometer Wiring.
From www.diagramboard.com
yanmar wiring diagram Diagram Board Yanmar Tachometer Wiring In the end it all was quite straight forward. Connect as per the sensor instructions, with the output. I've just fitted a tacho to my yanmar 2gm20f. The yanmar wiring harness uses the blue/red and orange wires for the tachometer sender, and. You can test the tach pickup by putting an ohm meter across the orange and the blue/red wire. Yanmar Tachometer Wiring.
From diagram.tntuservices.com
Yanmar Tachometer Wiring Diagram Wiring Diagram and Schematic Role Yanmar Tachometer Wiring I'm trying to display my 3gmf data on my axiom 9 via an interface. In the end it all was quite straight forward. Trace the wires back from the tach to the engine. Connect as per the sensor instructions, with the output. I'd like to find out the actual colors of the wires from the tach. The tacho need recalibration. Yanmar Tachometer Wiring.
From forums.sailboatowners.com
Yanmar 4JH2E Where do these wires attach Sailboat Owners Forums Yanmar Tachometer Wiring Trace the wires back from the tach to the engine. The yanmar wiring harness uses the blue/red and orange wires for the tachometer sender, and. You can test the tach pickup by putting an ohm meter across the orange and the blue/red wire while the engine is running. In the end it all was quite straight forward. I'm trying to. Yanmar Tachometer Wiring.