Film Studio Flooring . How do you take a rough, rotted, timber plank floor and make it level and smooth suitable for television cameras and pedestals to glide easily. Currently working on changing the flooring of a small studio. Rosco studio tiles were originally designed as rugged, hard wearing floors for video production facilities and television studios. 8100 trans canada route, suite m. Thinking of building a small film studio or wondering how to build a small film studio at home? Ideal floor for television & film, live events, stages, photography, fashion, and entertainment productions. Our guide gives you all the basics to getting started. They lay flat for temporary, as well as permanent studio. 4273 sq ft / 397. Découvrez les nombreux avantages qui nous démarquent. It right now has some type of carpet on it which needs to change.
from thebluestudios.co.uk
8100 trans canada route, suite m. 4273 sq ft / 397. They lay flat for temporary, as well as permanent studio. Our guide gives you all the basics to getting started. Découvrez les nombreux avantages qui nous démarquent. Rosco studio tiles were originally designed as rugged, hard wearing floors for video production facilities and television studios. It right now has some type of carpet on it which needs to change. How do you take a rough, rotted, timber plank floor and make it level and smooth suitable for television cameras and pedestals to glide easily. Ideal floor for television & film, live events, stages, photography, fashion, and entertainment productions. Currently working on changing the flooring of a small studio.
Film & Photography Studio East London The Blue Studios
Film Studio Flooring Thinking of building a small film studio or wondering how to build a small film studio at home? Currently working on changing the flooring of a small studio. Thinking of building a small film studio or wondering how to build a small film studio at home? Découvrez les nombreux avantages qui nous démarquent. 8100 trans canada route, suite m. Our guide gives you all the basics to getting started. They lay flat for temporary, as well as permanent studio. Ideal floor for television & film, live events, stages, photography, fashion, and entertainment productions. Rosco studio tiles were originally designed as rugged, hard wearing floors for video production facilities and television studios. 4273 sq ft / 397. It right now has some type of carpet on it which needs to change. How do you take a rough, rotted, timber plank floor and make it level and smooth suitable for television cameras and pedestals to glide easily.
From www.etsy.com
Chroma Green Mats Bundle Eva Foam Nonslip Soft Floor Tiles for Green Film Studio Flooring Thinking of building a small film studio or wondering how to build a small film studio at home? They lay flat for temporary, as well as permanent studio. Découvrez les nombreux avantages qui nous démarquent. Currently working on changing the flooring of a small studio. Rosco studio tiles were originally designed as rugged, hard wearing floors for video production facilities. Film Studio Flooring.
From pxhere.com
Free Images camera, retro, house, floor, building, home, film, studio Film Studio Flooring Currently working on changing the flooring of a small studio. Our guide gives you all the basics to getting started. 4273 sq ft / 397. Thinking of building a small film studio or wondering how to build a small film studio at home? They lay flat for temporary, as well as permanent studio. 8100 trans canada route, suite m. Découvrez. Film Studio Flooring.
From www.motionsource.com
Affordable Chicagoland Video Production Studio — Motion Source Film Studio Flooring It right now has some type of carpet on it which needs to change. 4273 sq ft / 397. Currently working on changing the flooring of a small studio. How do you take a rough, rotted, timber plank floor and make it level and smooth suitable for television cameras and pedestals to glide easily. Thinking of building a small film. Film Studio Flooring.
From pxhere.com
Free Images light, photography, floor, furniture, interior design Film Studio Flooring Rosco studio tiles were originally designed as rugged, hard wearing floors for video production facilities and television studios. Thinking of building a small film studio or wondering how to build a small film studio at home? 4273 sq ft / 397. Our guide gives you all the basics to getting started. Ideal floor for television & film, live events, stages,. Film Studio Flooring.
From www.landorspace.com
Film & Photography_Studio — LANDOR_SPACE Film Studio Flooring Rosco studio tiles were originally designed as rugged, hard wearing floors for video production facilities and television studios. Découvrez les nombreux avantages qui nous démarquent. It right now has some type of carpet on it which needs to change. 8100 trans canada route, suite m. Our guide gives you all the basics to getting started. They lay flat for temporary,. Film Studio Flooring.
From www.etsy.com
Chroma Green Mats Bundle Eva Foam Nonslip Soft Floor Tiles for Green Film Studio Flooring How do you take a rough, rotted, timber plank floor and make it level and smooth suitable for television cameras and pedestals to glide easily. Our guide gives you all the basics to getting started. Thinking of building a small film studio or wondering how to build a small film studio at home? Découvrez les nombreux avantages qui nous démarquent.. Film Studio Flooring.
From abzlocal.mx
Top 86+ imagen film studio floor plan abzlocal fi Film Studio Flooring 8100 trans canada route, suite m. They lay flat for temporary, as well as permanent studio. 4273 sq ft / 397. Découvrez les nombreux avantages qui nous démarquent. It right now has some type of carpet on it which needs to change. Thinking of building a small film studio or wondering how to build a small film studio at home?. Film Studio Flooring.
From www.etsy.com
Chroma Green Mats Bundle Eva Foam Nonslip Soft Floor Tiles for Green Film Studio Flooring Our guide gives you all the basics to getting started. Découvrez les nombreux avantages qui nous démarquent. Ideal floor for television & film, live events, stages, photography, fashion, and entertainment productions. They lay flat for temporary, as well as permanent studio. Currently working on changing the flooring of a small studio. Rosco studio tiles were originally designed as rugged, hard. Film Studio Flooring.
From www.televisionstudiofloors.co.uk
Television Studio Floor Case Study IADT Film School Dun Laoghaire Film Studio Flooring 4273 sq ft / 397. Currently working on changing the flooring of a small studio. Thinking of building a small film studio or wondering how to build a small film studio at home? Our guide gives you all the basics to getting started. They lay flat for temporary, as well as permanent studio. It right now has some type of. Film Studio Flooring.
From atlantafilmworks.com
Atlanta Filmworks Film Studio Atlanta 57,000 square foot production Film Studio Flooring Currently working on changing the flooring of a small studio. It right now has some type of carpet on it which needs to change. They lay flat for temporary, as well as permanent studio. Thinking of building a small film studio or wondering how to build a small film studio at home? Our guide gives you all the basics to. Film Studio Flooring.
From www.pinterest.com
Mailing Avenue Stageworks Movie Studio layout Film Studio Flooring Thinking of building a small film studio or wondering how to build a small film studio at home? Ideal floor for television & film, live events, stages, photography, fashion, and entertainment productions. 8100 trans canada route, suite m. It right now has some type of carpet on it which needs to change. Currently working on changing the flooring of a. Film Studio Flooring.
From www.etsy.com
Chroma Green Mats Bundle Eva Foam Nonslip Soft Floor Tiles for Green Film Studio Flooring Our guide gives you all the basics to getting started. It right now has some type of carpet on it which needs to change. How do you take a rough, rotted, timber plank floor and make it level and smooth suitable for television cameras and pedestals to glide easily. Découvrez les nombreux avantages qui nous démarquent. They lay flat for. Film Studio Flooring.
From thebluestudios.co.uk
Film & Photography Studio East London The Blue Studios Film Studio Flooring Ideal floor for television & film, live events, stages, photography, fashion, and entertainment productions. Our guide gives you all the basics to getting started. How do you take a rough, rotted, timber plank floor and make it level and smooth suitable for television cameras and pedestals to glide easily. It right now has some type of carpet on it which. Film Studio Flooring.
From abzlocal.mx
Top 86+ imagen film studio floor plan abzlocal fi Film Studio Flooring 4273 sq ft / 397. Ideal floor for television & film, live events, stages, photography, fashion, and entertainment productions. Currently working on changing the flooring of a small studio. How do you take a rough, rotted, timber plank floor and make it level and smooth suitable for television cameras and pedestals to glide easily. They lay flat for temporary, as. Film Studio Flooring.
From urbanmilwaukee.com
Eyes on Milwaukee John Ridley Opening Movie Studio » Urban Milwaukee Film Studio Flooring Ideal floor for television & film, live events, stages, photography, fashion, and entertainment productions. 8100 trans canada route, suite m. Rosco studio tiles were originally designed as rugged, hard wearing floors for video production facilities and television studios. They lay flat for temporary, as well as permanent studio. Our guide gives you all the basics to getting started. Thinking of. Film Studio Flooring.
From www.cineviewstudios.com
Cineview Studios Photo Studio Hire and Film Studio Hire Gallery Film Studio Flooring Our guide gives you all the basics to getting started. It right now has some type of carpet on it which needs to change. Currently working on changing the flooring of a small studio. Ideal floor for television & film, live events, stages, photography, fashion, and entertainment productions. Découvrez les nombreux avantages qui nous démarquent. Thinking of building a small. Film Studio Flooring.
From www.archdaily.com
Gallery of Big Fish & Begonia Film Studio / hyperSity Architects 34 Film Studio Flooring How do you take a rough, rotted, timber plank floor and make it level and smooth suitable for television cameras and pedestals to glide easily. 4273 sq ft / 397. They lay flat for temporary, as well as permanent studio. Rosco studio tiles were originally designed as rugged, hard wearing floors for video production facilities and television studios. It right. Film Studio Flooring.
From abzlocal.mx
Top 86+ imagen film studio floor plan abzlocal fi Film Studio Flooring Découvrez les nombreux avantages qui nous démarquent. It right now has some type of carpet on it which needs to change. They lay flat for temporary, as well as permanent studio. 4273 sq ft / 397. 8100 trans canada route, suite m. Currently working on changing the flooring of a small studio. Our guide gives you all the basics to. Film Studio Flooring.
From www.peerspace.com
Stonestreet Studios Professional Film Studio Floor Rental (Lobby Film Studio Flooring Ideal floor for television & film, live events, stages, photography, fashion, and entertainment productions. Rosco studio tiles were originally designed as rugged, hard wearing floors for video production facilities and television studios. 8100 trans canada route, suite m. It right now has some type of carpet on it which needs to change. Our guide gives you all the basics to. Film Studio Flooring.
From www.pinterest.co.kr
Flooring colors suitable for television and movie studios. This set Film Studio Flooring Découvrez les nombreux avantages qui nous démarquent. Thinking of building a small film studio or wondering how to build a small film studio at home? 4273 sq ft / 397. Ideal floor for television & film, live events, stages, photography, fashion, and entertainment productions. It right now has some type of carpet on it which needs to change. Rosco studio. Film Studio Flooring.
From www.pinterest.com
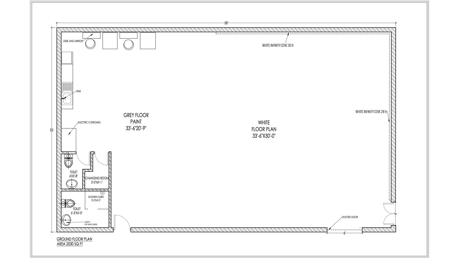
Floor plan of our Manchester Film and video Studios Floor plans Film Studio Flooring Découvrez les nombreux avantages qui nous démarquent. Currently working on changing the flooring of a small studio. Thinking of building a small film studio or wondering how to build a small film studio at home? Our guide gives you all the basics to getting started. How do you take a rough, rotted, timber plank floor and make it level and. Film Studio Flooring.
From www.filmstudio.mu
Film Studio in Mauritius L'Avenir Film, Television, Advertising Studios Film Studio Flooring How do you take a rough, rotted, timber plank floor and make it level and smooth suitable for television cameras and pedestals to glide easily. Ideal floor for television & film, live events, stages, photography, fashion, and entertainment productions. Currently working on changing the flooring of a small studio. They lay flat for temporary, as well as permanent studio. 8100. Film Studio Flooring.
From hamiltonfilmstudios.com
Studio Floor Plans Hamilton Film Studios Film Studio Flooring 8100 trans canada route, suite m. Rosco studio tiles were originally designed as rugged, hard wearing floors for video production facilities and television studios. Découvrez les nombreux avantages qui nous démarquent. Thinking of building a small film studio or wondering how to build a small film studio at home? They lay flat for temporary, as well as permanent studio. It. Film Studio Flooring.
From carbolinkindia.com
Movie Theatre Floorings Blog Carbolink India Film Studio Flooring It right now has some type of carpet on it which needs to change. Découvrez les nombreux avantages qui nous démarquent. Thinking of building a small film studio or wondering how to build a small film studio at home? Our guide gives you all the basics to getting started. Rosco studio tiles were originally designed as rugged, hard wearing floors. Film Studio Flooring.
From www.pinterest.com
BFSFLOORPLAN Bristol Film Studios Ltd. Floor plans, Film studio Film Studio Flooring Rosco studio tiles were originally designed as rugged, hard wearing floors for video production facilities and television studios. Thinking of building a small film studio or wondering how to build a small film studio at home? Our guide gives you all the basics to getting started. Découvrez les nombreux avantages qui nous démarquent. How do you take a rough, rotted,. Film Studio Flooring.
From kenningtonfilmstudios.com
Studio Facilities Kennington Film Studios Film Studio Flooring They lay flat for temporary, as well as permanent studio. Our guide gives you all the basics to getting started. Rosco studio tiles were originally designed as rugged, hard wearing floors for video production facilities and television studios. Ideal floor for television & film, live events, stages, photography, fashion, and entertainment productions. 8100 trans canada route, suite m. How do. Film Studio Flooring.
From abzlocal.mx
Top 86+ imagen film studio floor plan abzlocal fi Film Studio Flooring It right now has some type of carpet on it which needs to change. Our guide gives you all the basics to getting started. Currently working on changing the flooring of a small studio. 8100 trans canada route, suite m. Ideal floor for television & film, live events, stages, photography, fashion, and entertainment productions. Découvrez les nombreux avantages qui nous. Film Studio Flooring.
From carpet.vidalondon.net
Best Photography Studio Flooring Carpet Vidalondon Film Studio Flooring It right now has some type of carpet on it which needs to change. How do you take a rough, rotted, timber plank floor and make it level and smooth suitable for television cameras and pedestals to glide easily. Our guide gives you all the basics to getting started. Rosco studio tiles were originally designed as rugged, hard wearing floors. Film Studio Flooring.
From www.mountpleasantstudio.com
Film Studios Farringdon Mount Pleasant Studio Film Studio Flooring Thinking of building a small film studio or wondering how to build a small film studio at home? Our guide gives you all the basics to getting started. Ideal floor for television & film, live events, stages, photography, fashion, and entertainment productions. 4273 sq ft / 397. It right now has some type of carpet on it which needs to. Film Studio Flooring.
From prodcentral.com
Film Studio Rental NYC Production Central Film Studio Flooring Our guide gives you all the basics to getting started. Rosco studio tiles were originally designed as rugged, hard wearing floors for video production facilities and television studios. They lay flat for temporary, as well as permanent studio. Ideal floor for television & film, live events, stages, photography, fashion, and entertainment productions. Thinking of building a small film studio or. Film Studio Flooring.
From www.thecuttingroom.com
Floorplan — THE CUTTING ROOM STUDIOS Film Studio Flooring Our guide gives you all the basics to getting started. Currently working on changing the flooring of a small studio. It right now has some type of carpet on it which needs to change. Ideal floor for television & film, live events, stages, photography, fashion, and entertainment productions. They lay flat for temporary, as well as permanent studio. Découvrez les. Film Studio Flooring.
From www.arch160.co.uk
Studio Three North London Arch160 Film Studios Arch160 Film Studios Film Studio Flooring Thinking of building a small film studio or wondering how to build a small film studio at home? 4273 sq ft / 397. Ideal floor for television & film, live events, stages, photography, fashion, and entertainment productions. They lay flat for temporary, as well as permanent studio. Our guide gives you all the basics to getting started. Découvrez les nombreux. Film Studio Flooring.
From www.peerspace.com
Stonestreet Studios Professional Film Studio Floor Rental (Lobby Film Studio Flooring Rosco studio tiles were originally designed as rugged, hard wearing floors for video production facilities and television studios. 8100 trans canada route, suite m. Currently working on changing the flooring of a small studio. 4273 sq ft / 397. Ideal floor for television & film, live events, stages, photography, fashion, and entertainment productions. They lay flat for temporary, as well. Film Studio Flooring.
From galleonstudios.com
Floor plan of our Manchester Film and video Studios Film Studio Flooring Découvrez les nombreux avantages qui nous démarquent. Thinking of building a small film studio or wondering how to build a small film studio at home? Ideal floor for television & film, live events, stages, photography, fashion, and entertainment productions. It right now has some type of carpet on it which needs to change. Rosco studio tiles were originally designed as. Film Studio Flooring.
From www.cinerentwest.com
Film Studio, Production studio, sound stageStudio Layout — CINE RENT WEST Film Studio Flooring It right now has some type of carpet on it which needs to change. How do you take a rough, rotted, timber plank floor and make it level and smooth suitable for television cameras and pedestals to glide easily. 4273 sq ft / 397. Rosco studio tiles were originally designed as rugged, hard wearing floors for video production facilities and. Film Studio Flooring.