Rent Schedule Form Hud . Cms is a nationwide provider of services for the affordable housing industry. Fair market rents, as defined in 24 cfr 888.113 are estimates of 40th percentile gross rents for standard quality units within a. Project owners submit information to hud to request adjustments to established rents and utility allowances. This comprehensive toolkit is available to ensure that public housing authorities (phas) have resources to inform residents about hud’s.
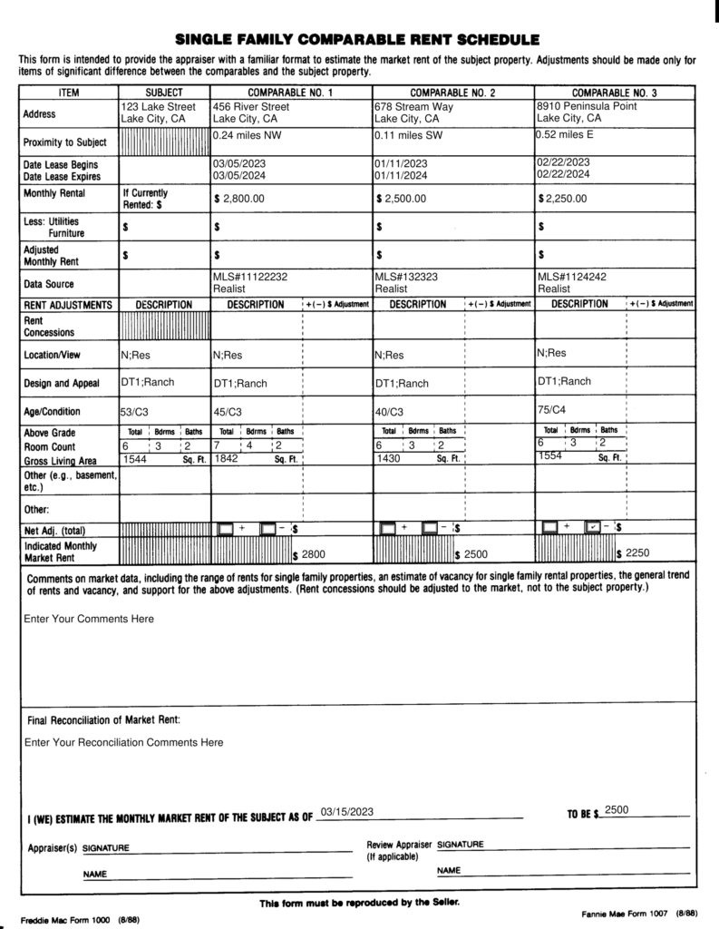
from homeabroadinc.com
Project owners submit information to hud to request adjustments to established rents and utility allowances. This comprehensive toolkit is available to ensure that public housing authorities (phas) have resources to inform residents about hud’s. Fair market rents, as defined in 24 cfr 888.113 are estimates of 40th percentile gross rents for standard quality units within a. Cms is a nationwide provider of services for the affordable housing industry.
Everything About Form 1007 Appraisal and Rent Schedule
Rent Schedule Form Hud Project owners submit information to hud to request adjustments to established rents and utility allowances. This comprehensive toolkit is available to ensure that public housing authorities (phas) have resources to inform residents about hud’s. Project owners submit information to hud to request adjustments to established rents and utility allowances. Cms is a nationwide provider of services for the affordable housing industry. Fair market rents, as defined in 24 cfr 888.113 are estimates of 40th percentile gross rents for standard quality units within a.
From www.template.net
Real Estate Rent Schedule Form Template Edit Online & Download Example Rent Schedule Form Hud Cms is a nationwide provider of services for the affordable housing industry. This comprehensive toolkit is available to ensure that public housing authorities (phas) have resources to inform residents about hud’s. Fair market rents, as defined in 24 cfr 888.113 are estimates of 40th percentile gross rents for standard quality units within a. Project owners submit information to hud to. Rent Schedule Form Hud.
From www.pdffiller.com
Form Hud Rent Schedule Fill Online, Printable, Fillable, Blank pdfFiller Rent Schedule Form Hud Fair market rents, as defined in 24 cfr 888.113 are estimates of 40th percentile gross rents for standard quality units within a. Project owners submit information to hud to request adjustments to established rents and utility allowances. This comprehensive toolkit is available to ensure that public housing authorities (phas) have resources to inform residents about hud’s. Cms is a nationwide. Rent Schedule Form Hud.
From www.spreadsheet123.com
Rent Payment Schedule Template for Excel Rent Schedule Form Hud Project owners submit information to hud to request adjustments to established rents and utility allowances. Fair market rents, as defined in 24 cfr 888.113 are estimates of 40th percentile gross rents for standard quality units within a. This comprehensive toolkit is available to ensure that public housing authorities (phas) have resources to inform residents about hud’s. Cms is a nationwide. Rent Schedule Form Hud.
From www.uslegalforms.com
HUD52267 20052022 Fill and Sign Printable Template Online US Legal Forms Rent Schedule Form Hud Fair market rents, as defined in 24 cfr 888.113 are estimates of 40th percentile gross rents for standard quality units within a. Project owners submit information to hud to request adjustments to established rents and utility allowances. Cms is a nationwide provider of services for the affordable housing industry. This comprehensive toolkit is available to ensure that public housing authorities. Rent Schedule Form Hud.
From materialoster.z21.web.core.windows.net
Hud Rent Calculation Worksheet Excel Rent Schedule Form Hud Fair market rents, as defined in 24 cfr 888.113 are estimates of 40th percentile gross rents for standard quality units within a. Project owners submit information to hud to request adjustments to established rents and utility allowances. This comprehensive toolkit is available to ensure that public housing authorities (phas) have resources to inform residents about hud’s. Cms is a nationwide. Rent Schedule Form Hud.
From freeforms.com
Free Residential Rental Application Form PDF WORD Rent Schedule Form Hud Project owners submit information to hud to request adjustments to established rents and utility allowances. Fair market rents, as defined in 24 cfr 888.113 are estimates of 40th percentile gross rents for standard quality units within a. Cms is a nationwide provider of services for the affordable housing industry. This comprehensive toolkit is available to ensure that public housing authorities. Rent Schedule Form Hud.
From www.myxxgirl.com
Form Hud Rent Schedule Fill Online Printable Fillable Blank My XXX Hot Girl Rent Schedule Form Hud Cms is a nationwide provider of services for the affordable housing industry. Fair market rents, as defined in 24 cfr 888.113 are estimates of 40th percentile gross rents for standard quality units within a. Project owners submit information to hud to request adjustments to established rents and utility allowances. This comprehensive toolkit is available to ensure that public housing authorities. Rent Schedule Form Hud.
From slidesdocs.com
Rent Schedule Excel Template And Google Sheets File For Free Download Slidesdocs Rent Schedule Form Hud Cms is a nationwide provider of services for the affordable housing industry. This comprehensive toolkit is available to ensure that public housing authorities (phas) have resources to inform residents about hud’s. Fair market rents, as defined in 24 cfr 888.113 are estimates of 40th percentile gross rents for standard quality units within a. Project owners submit information to hud to. Rent Schedule Form Hud.
From www.templateroller.com
Form HUD50059 Fill Out, Sign Online and Download Fillable PDF Templateroller Rent Schedule Form Hud Fair market rents, as defined in 24 cfr 888.113 are estimates of 40th percentile gross rents for standard quality units within a. This comprehensive toolkit is available to ensure that public housing authorities (phas) have resources to inform residents about hud’s. Cms is a nationwide provider of services for the affordable housing industry. Project owners submit information to hud to. Rent Schedule Form Hud.
From formspal.com
Hud 5372 Schedule Form ≡ Fill Out Printable PDF Forms Online Rent Schedule Form Hud Project owners submit information to hud to request adjustments to established rents and utility allowances. Cms is a nationwide provider of services for the affordable housing industry. This comprehensive toolkit is available to ensure that public housing authorities (phas) have resources to inform residents about hud’s. Fair market rents, as defined in 24 cfr 888.113 are estimates of 40th percentile. Rent Schedule Form Hud.
From printabletemplate.conaresvirtual.edu.sv
Landlord Free Printable Rental Ledger Template Rent Schedule Form Hud Fair market rents, as defined in 24 cfr 888.113 are estimates of 40th percentile gross rents for standard quality units within a. This comprehensive toolkit is available to ensure that public housing authorities (phas) have resources to inform residents about hud’s. Cms is a nationwide provider of services for the affordable housing industry. Project owners submit information to hud to. Rent Schedule Form Hud.
From www.pdffiller.com
Fillable Online Rent Schedule Low Rent Housing HUD Fax Email Print pdfFiller Rent Schedule Form Hud Fair market rents, as defined in 24 cfr 888.113 are estimates of 40th percentile gross rents for standard quality units within a. This comprehensive toolkit is available to ensure that public housing authorities (phas) have resources to inform residents about hud’s. Project owners submit information to hud to request adjustments to established rents and utility allowances. Cms is a nationwide. Rent Schedule Form Hud.
From www.dochub.com
Hud 50059 Fill out & sign online DocHub Rent Schedule Form Hud Project owners submit information to hud to request adjustments to established rents and utility allowances. This comprehensive toolkit is available to ensure that public housing authorities (phas) have resources to inform residents about hud’s. Fair market rents, as defined in 24 cfr 888.113 are estimates of 40th percentile gross rents for standard quality units within a. Cms is a nationwide. Rent Schedule Form Hud.
From www.pdffiller.com
Fillable Online PDF Rent Schedule Low Rent Housing HUD Fax Email Print pdfFiller Rent Schedule Form Hud Project owners submit information to hud to request adjustments to established rents and utility allowances. Fair market rents, as defined in 24 cfr 888.113 are estimates of 40th percentile gross rents for standard quality units within a. This comprehensive toolkit is available to ensure that public housing authorities (phas) have resources to inform residents about hud’s. Cms is a nationwide. Rent Schedule Form Hud.
From www.signnow.com
Hud Rent Calculation Worksheet Excel Complete with ease airSlate SignNow Rent Schedule Form Hud Project owners submit information to hud to request adjustments to established rents and utility allowances. This comprehensive toolkit is available to ensure that public housing authorities (phas) have resources to inform residents about hud’s. Fair market rents, as defined in 24 cfr 888.113 are estimates of 40th percentile gross rents for standard quality units within a. Cms is a nationwide. Rent Schedule Form Hud.
From www.templateroller.com
Form HUD92458 Fill Out, Sign Online and Download Fillable PDF Templateroller Rent Schedule Form Hud Project owners submit information to hud to request adjustments to established rents and utility allowances. This comprehensive toolkit is available to ensure that public housing authorities (phas) have resources to inform residents about hud’s. Fair market rents, as defined in 24 cfr 888.113 are estimates of 40th percentile gross rents for standard quality units within a. Cms is a nationwide. Rent Schedule Form Hud.
From www.uslegalforms.com
Hud Rental Setup And Completion Form Fill and Sign Printable Template Online US Legal Forms Rent Schedule Form Hud This comprehensive toolkit is available to ensure that public housing authorities (phas) have resources to inform residents about hud’s. Fair market rents, as defined in 24 cfr 888.113 are estimates of 40th percentile gross rents for standard quality units within a. Project owners submit information to hud to request adjustments to established rents and utility allowances. Cms is a nationwide. Rent Schedule Form Hud.
From slidesdocs.com
Free Rental Housing Fee Schedule Templates For Google Sheets And Microsoft Excel Slidesdocs Rent Schedule Form Hud Fair market rents, as defined in 24 cfr 888.113 are estimates of 40th percentile gross rents for standard quality units within a. Project owners submit information to hud to request adjustments to established rents and utility allowances. This comprehensive toolkit is available to ensure that public housing authorities (phas) have resources to inform residents about hud’s. Cms is a nationwide. Rent Schedule Form Hud.
From www.template.net
3+ Rent Schedule Templates PDF, Docs Rent Schedule Form Hud Fair market rents, as defined in 24 cfr 888.113 are estimates of 40th percentile gross rents for standard quality units within a. Cms is a nationwide provider of services for the affordable housing industry. This comprehensive toolkit is available to ensure that public housing authorities (phas) have resources to inform residents about hud’s. Project owners submit information to hud to. Rent Schedule Form Hud.
From materialfullrobin.z13.web.core.windows.net
Hud Rent Calculation Worksheets Rent Schedule Form Hud Project owners submit information to hud to request adjustments to established rents and utility allowances. Fair market rents, as defined in 24 cfr 888.113 are estimates of 40th percentile gross rents for standard quality units within a. This comprehensive toolkit is available to ensure that public housing authorities (phas) have resources to inform residents about hud’s. Cms is a nationwide. Rent Schedule Form Hud.
From www.jotform.com
Rent Schedule Form Template Jotform Rent Schedule Form Hud Fair market rents, as defined in 24 cfr 888.113 are estimates of 40th percentile gross rents for standard quality units within a. Project owners submit information to hud to request adjustments to established rents and utility allowances. Cms is a nationwide provider of services for the affordable housing industry. This comprehensive toolkit is available to ensure that public housing authorities. Rent Schedule Form Hud.
From slidesdocs.com
Free Housing Rental Templates For Google Sheets And Microsoft Excel Slidesdocs Rent Schedule Form Hud Fair market rents, as defined in 24 cfr 888.113 are estimates of 40th percentile gross rents for standard quality units within a. Project owners submit information to hud to request adjustments to established rents and utility allowances. This comprehensive toolkit is available to ensure that public housing authorities (phas) have resources to inform residents about hud’s. Cms is a nationwide. Rent Schedule Form Hud.
From www.templateroller.com
(United States) and Rent Calculation Worksheet Hud 811 Program Fill Out, Sign Rent Schedule Form Hud Fair market rents, as defined in 24 cfr 888.113 are estimates of 40th percentile gross rents for standard quality units within a. Project owners submit information to hud to request adjustments to established rents and utility allowances. This comprehensive toolkit is available to ensure that public housing authorities (phas) have resources to inform residents about hud’s. Cms is a nationwide. Rent Schedule Form Hud.
From realvals.com
Form 1007 Explained (With Example) Realvals Rent Schedule Form Hud Project owners submit information to hud to request adjustments to established rents and utility allowances. This comprehensive toolkit is available to ensure that public housing authorities (phas) have resources to inform residents about hud’s. Fair market rents, as defined in 24 cfr 888.113 are estimates of 40th percentile gross rents for standard quality units within a. Cms is a nationwide. Rent Schedule Form Hud.
From materialoster.z21.web.core.windows.net
Hud Rent Calculation Worksheet Excel Rent Schedule Form Hud This comprehensive toolkit is available to ensure that public housing authorities (phas) have resources to inform residents about hud’s. Project owners submit information to hud to request adjustments to established rents and utility allowances. Cms is a nationwide provider of services for the affordable housing industry. Fair market rents, as defined in 24 cfr 888.113 are estimates of 40th percentile. Rent Schedule Form Hud.
From www.pdffiller.com
Fillable Online hud Rent Schedule HUD hud Fax Email Print pdfFiller Rent Schedule Form Hud Project owners submit information to hud to request adjustments to established rents and utility allowances. Cms is a nationwide provider of services for the affordable housing industry. Fair market rents, as defined in 24 cfr 888.113 are estimates of 40th percentile gross rents for standard quality units within a. This comprehensive toolkit is available to ensure that public housing authorities. Rent Schedule Form Hud.
From www.templateroller.com
Form HUD92458 Fill Out, Sign Online and Download Fillable PDF Templateroller Rent Schedule Form Hud Project owners submit information to hud to request adjustments to established rents and utility allowances. Cms is a nationwide provider of services for the affordable housing industry. This comprehensive toolkit is available to ensure that public housing authorities (phas) have resources to inform residents about hud’s. Fair market rents, as defined in 24 cfr 888.113 are estimates of 40th percentile. Rent Schedule Form Hud.
From www.uslegalforms.com
SWKAAA Application For HUD Rental Assistance Housing Choice Voucher Program 20172021 Fill and Rent Schedule Form Hud Project owners submit information to hud to request adjustments to established rents and utility allowances. This comprehensive toolkit is available to ensure that public housing authorities (phas) have resources to inform residents about hud’s. Cms is a nationwide provider of services for the affordable housing industry. Fair market rents, as defined in 24 cfr 888.113 are estimates of 40th percentile. Rent Schedule Form Hud.
From template.mapadapalavra.ba.gov.br
Rent Schedule Template Rent Schedule Form Hud Cms is a nationwide provider of services for the affordable housing industry. Fair market rents, as defined in 24 cfr 888.113 are estimates of 40th percentile gross rents for standard quality units within a. This comprehensive toolkit is available to ensure that public housing authorities (phas) have resources to inform residents about hud’s. Project owners submit information to hud to. Rent Schedule Form Hud.
From www.bizzlibrary.com
Rent Schedule Low Rent Housing Hud Rent Schedule Form Hud Cms is a nationwide provider of services for the affordable housing industry. Project owners submit information to hud to request adjustments to established rents and utility allowances. Fair market rents, as defined in 24 cfr 888.113 are estimates of 40th percentile gross rents for standard quality units within a. This comprehensive toolkit is available to ensure that public housing authorities. Rent Schedule Form Hud.
From www.opensourcetext.org
11+ Rent Roll Template Editable Free Download [Word, PDF] Rent Schedule Form Hud This comprehensive toolkit is available to ensure that public housing authorities (phas) have resources to inform residents about hud’s. Fair market rents, as defined in 24 cfr 888.113 are estimates of 40th percentile gross rents for standard quality units within a. Project owners submit information to hud to request adjustments to established rents and utility allowances. Cms is a nationwide. Rent Schedule Form Hud.
From studyzonetamara.z19.web.core.windows.net
Hud Rent Calculation Worksheet Excel Rent Schedule Form Hud Fair market rents, as defined in 24 cfr 888.113 are estimates of 40th percentile gross rents for standard quality units within a. Project owners submit information to hud to request adjustments to established rents and utility allowances. Cms is a nationwide provider of services for the affordable housing industry. This comprehensive toolkit is available to ensure that public housing authorities. Rent Schedule Form Hud.
From homeabroadinc.com
Everything About Form 1007 Appraisal and Rent Schedule Rent Schedule Form Hud Fair market rents, as defined in 24 cfr 888.113 are estimates of 40th percentile gross rents for standard quality units within a. Project owners submit information to hud to request adjustments to established rents and utility allowances. This comprehensive toolkit is available to ensure that public housing authorities (phas) have resources to inform residents about hud’s. Cms is a nationwide. Rent Schedule Form Hud.
From www.formsbank.com
Fillable Form Hud92282 Allocation Of Formula Rent To Revenue Producing Dwelling Units U.s Rent Schedule Form Hud Fair market rents, as defined in 24 cfr 888.113 are estimates of 40th percentile gross rents for standard quality units within a. Cms is a nationwide provider of services for the affordable housing industry. This comprehensive toolkit is available to ensure that public housing authorities (phas) have resources to inform residents about hud’s. Project owners submit information to hud to. Rent Schedule Form Hud.
From www.templateroller.com
Form HUD52517 Fill Out, Sign Online and Download Fillable PDF Templateroller Rent Schedule Form Hud Cms is a nationwide provider of services for the affordable housing industry. This comprehensive toolkit is available to ensure that public housing authorities (phas) have resources to inform residents about hud’s. Project owners submit information to hud to request adjustments to established rents and utility allowances. Fair market rents, as defined in 24 cfr 888.113 are estimates of 40th percentile. Rent Schedule Form Hud.