Step Iron Australian Standard . disclaimer while every reasonable effort is made to ensure that the information provided on this site is correct, no warranty is made. galvanized 400mpa steel step iron. For use in sewer and drainage manholes or pits. This standard sets out requirements for the design, selection, construction and installation of fixed. Wide non slip tread with. as 1657 2018 sets out requirements for the design, selection, construction and installation of fixed platforms, walkways,. Full plastic encapsulation to resist corrosion and chemical attack.
from civilcast.com.au
disclaimer while every reasonable effort is made to ensure that the information provided on this site is correct, no warranty is made. For use in sewer and drainage manholes or pits. Full plastic encapsulation to resist corrosion and chemical attack. This standard sets out requirements for the design, selection, construction and installation of fixed. as 1657 2018 sets out requirements for the design, selection, construction and installation of fixed platforms, walkways,. galvanized 400mpa steel step iron. Wide non slip tread with.
Plastic Encapsulated & Galvanised Storm Water Step Irons Civilcast
Step Iron Australian Standard Wide non slip tread with. Full plastic encapsulation to resist corrosion and chemical attack. For use in sewer and drainage manholes or pits. Wide non slip tread with. disclaimer while every reasonable effort is made to ensure that the information provided on this site is correct, no warranty is made. galvanized 400mpa steel step iron. as 1657 2018 sets out requirements for the design, selection, construction and installation of fixed platforms, walkways,. This standard sets out requirements for the design, selection, construction and installation of fixed.
From iverna2000.com
Manhole Step Irons IVERNA 2000 Step Iron Australian Standard galvanized 400mpa steel step iron. disclaimer while every reasonable effort is made to ensure that the information provided on this site is correct, no warranty is made. as 1657 2018 sets out requirements for the design, selection, construction and installation of fixed platforms, walkways,. Wide non slip tread with. Full plastic encapsulation to resist corrosion and chemical. Step Iron Australian Standard.
From www.designlibrary.com.au
Ultimate Guide to Stairs Stair Riser and Going Step Iron Australian Standard as 1657 2018 sets out requirements for the design, selection, construction and installation of fixed platforms, walkways,. galvanized 400mpa steel step iron. disclaimer while every reasonable effort is made to ensure that the information provided on this site is correct, no warranty is made. Wide non slip tread with. Full plastic encapsulation to resist corrosion and chemical. Step Iron Australian Standard.
From civilcast.com.au
Plastic Encapsulated & Galvanised Storm Water Step Irons Civilcast Step Iron Australian Standard Full plastic encapsulation to resist corrosion and chemical attack. Wide non slip tread with. For use in sewer and drainage manholes or pits. disclaimer while every reasonable effort is made to ensure that the information provided on this site is correct, no warranty is made. galvanized 400mpa steel step iron. as 1657 2018 sets out requirements for. Step Iron Australian Standard.
From www.scribd.com
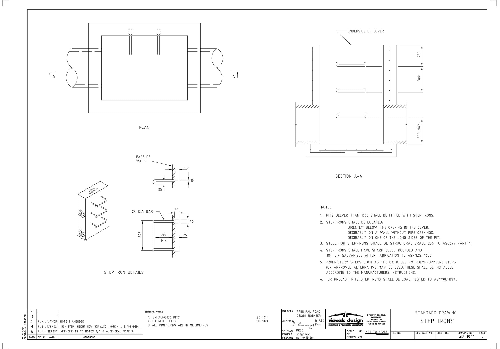
Standard Drawing 1041 Step Irons PDF Step Iron Australian Standard This standard sets out requirements for the design, selection, construction and installation of fixed. For use in sewer and drainage manholes or pits. Full plastic encapsulation to resist corrosion and chemical attack. Wide non slip tread with. galvanized 400mpa steel step iron. as 1657 2018 sets out requirements for the design, selection, construction and installation of fixed platforms,. Step Iron Australian Standard.
From australianpipelinevalve.com.au
Equivalent Grades of Iron Australian Pipeline Valve Step Iron Australian Standard Full plastic encapsulation to resist corrosion and chemical attack. galvanized 400mpa steel step iron. as 1657 2018 sets out requirements for the design, selection, construction and installation of fixed platforms, walkways,. disclaimer while every reasonable effort is made to ensure that the information provided on this site is correct, no warranty is made. This standard sets out. Step Iron Australian Standard.
From civilcast.com.au
Galvanized Storm Water Step Irons Civilcast Australia Step Iron Australian Standard For use in sewer and drainage manholes or pits. as 1657 2018 sets out requirements for the design, selection, construction and installation of fixed platforms, walkways,. galvanized 400mpa steel step iron. Wide non slip tread with. Full plastic encapsulation to resist corrosion and chemical attack. This standard sets out requirements for the design, selection, construction and installation of. Step Iron Australian Standard.
From www.jaybro.com.au
Manhole Step Irons Sewer Steps Step Irons For Concrete Step Iron Australian Standard disclaimer while every reasonable effort is made to ensure that the information provided on this site is correct, no warranty is made. as 1657 2018 sets out requirements for the design, selection, construction and installation of fixed platforms, walkways,. Full plastic encapsulation to resist corrosion and chemical attack. galvanized 400mpa steel step iron. Wide non slip tread. Step Iron Australian Standard.
From www.alibaba.com
Australia Galvanised Steel Manhole Stormwater Pit Step Irons Buy Step Step Iron Australian Standard Wide non slip tread with. For use in sewer and drainage manholes or pits. This standard sets out requirements for the design, selection, construction and installation of fixed. galvanized 400mpa steel step iron. as 1657 2018 sets out requirements for the design, selection, construction and installation of fixed platforms, walkways,. Full plastic encapsulation to resist corrosion and chemical. Step Iron Australian Standard.
From www.accesscoversaustralia.com.au
SD1041 Step Irons Step Iron Australian Standard Wide non slip tread with. as 1657 2018 sets out requirements for the design, selection, construction and installation of fixed platforms, walkways,. For use in sewer and drainage manholes or pits. Full plastic encapsulation to resist corrosion and chemical attack. galvanized 400mpa steel step iron. This standard sets out requirements for the design, selection, construction and installation of. Step Iron Australian Standard.
From allcongroup.com.au
286mm SureStep Plastic Coated Step Iron Allcon Step Iron Australian Standard Full plastic encapsulation to resist corrosion and chemical attack. galvanized 400mpa steel step iron. This standard sets out requirements for the design, selection, construction and installation of fixed. Wide non slip tread with. For use in sewer and drainage manholes or pits. as 1657 2018 sets out requirements for the design, selection, construction and installation of fixed platforms,. Step Iron Australian Standard.
From www.cadia.com.au
Steel Step Iron 20 x 150 mm ,Materials Fittings and Components,Sewer Step Iron Australian Standard as 1657 2018 sets out requirements for the design, selection, construction and installation of fixed platforms, walkways,. For use in sewer and drainage manholes or pits. disclaimer while every reasonable effort is made to ensure that the information provided on this site is correct, no warranty is made. This standard sets out requirements for the design, selection, construction. Step Iron Australian Standard.
From www.caswick.org
Manhole Step Irons — Caswick Step Iron Australian Standard Wide non slip tread with. Full plastic encapsulation to resist corrosion and chemical attack. galvanized 400mpa steel step iron. For use in sewer and drainage manholes or pits. disclaimer while every reasonable effort is made to ensure that the information provided on this site is correct, no warranty is made. This standard sets out requirements for the design,. Step Iron Australian Standard.
From astraders.com.au
Understanding The Australian Standards For Steel Australian Steel Step Iron Australian Standard For use in sewer and drainage manholes or pits. Wide non slip tread with. disclaimer while every reasonable effort is made to ensure that the information provided on this site is correct, no warranty is made. as 1657 2018 sets out requirements for the design, selection, construction and installation of fixed platforms, walkways,. Full plastic encapsulation to resist. Step Iron Australian Standard.
From iverna2000.com
Manhole Step Irons IVERNA 2000 Step Iron Australian Standard This standard sets out requirements for the design, selection, construction and installation of fixed. disclaimer while every reasonable effort is made to ensure that the information provided on this site is correct, no warranty is made. Wide non slip tread with. galvanized 400mpa steel step iron. Full plastic encapsulation to resist corrosion and chemical attack. as 1657. Step Iron Australian Standard.
From www.buda.com.au
Galvanised Stormwater Pit Step Irons Vincent Buda & Co Step Iron Australian Standard Full plastic encapsulation to resist corrosion and chemical attack. For use in sewer and drainage manholes or pits. This standard sets out requirements for the design, selection, construction and installation of fixed. as 1657 2018 sets out requirements for the design, selection, construction and installation of fixed platforms, walkways,. Wide non slip tread with. galvanized 400mpa steel step. Step Iron Australian Standard.
From civilcast.com.au
Plastic Encapsulated & Galvanised Storm Water Step Irons Civilcast Step Iron Australian Standard This standard sets out requirements for the design, selection, construction and installation of fixed. as 1657 2018 sets out requirements for the design, selection, construction and installation of fixed platforms, walkways,. disclaimer while every reasonable effort is made to ensure that the information provided on this site is correct, no warranty is made. For use in sewer and. Step Iron Australian Standard.
From www.clark-drain.com
CD 213 Build In Step Iron Clark Drain Step Iron Australian Standard This standard sets out requirements for the design, selection, construction and installation of fixed. Wide non slip tread with. Full plastic encapsulation to resist corrosion and chemical attack. as 1657 2018 sets out requirements for the design, selection, construction and installation of fixed platforms, walkways,. disclaimer while every reasonable effort is made to ensure that the information provided. Step Iron Australian Standard.
From pfawater.com
Manhole Accessories Pipe Fittings And Accessories Step Iron Australian Standard as 1657 2018 sets out requirements for the design, selection, construction and installation of fixed platforms, walkways,. Full plastic encapsulation to resist corrosion and chemical attack. This standard sets out requirements for the design, selection, construction and installation of fixed. disclaimer while every reasonable effort is made to ensure that the information provided on this site is correct,. Step Iron Australian Standard.
From www.directrawmaterials.com.au
Galvanised Stormwater Pit Step Iron Bolt On Style DIRECT RAW MATERIALS Step Iron Australian Standard galvanized 400mpa steel step iron. as 1657 2018 sets out requirements for the design, selection, construction and installation of fixed platforms, walkways,. disclaimer while every reasonable effort is made to ensure that the information provided on this site is correct, no warranty is made. Full plastic encapsulation to resist corrosion and chemical attack. This standard sets out. Step Iron Australian Standard.
From www.myersbuildingsupplies.co.uk
Clark Drain Step Irons 115mm Tail Galvanised Myers Building & Timber Step Iron Australian Standard For use in sewer and drainage manholes or pits. This standard sets out requirements for the design, selection, construction and installation of fixed. Full plastic encapsulation to resist corrosion and chemical attack. Wide non slip tread with. galvanized 400mpa steel step iron. disclaimer while every reasonable effort is made to ensure that the information provided on this site. Step Iron Australian Standard.
From www.alibaba.com
Australia Galvanised Steel Manhole Stormwater Pit Step Irons Buy Step Step Iron Australian Standard For use in sewer and drainage manholes or pits. Full plastic encapsulation to resist corrosion and chemical attack. This standard sets out requirements for the design, selection, construction and installation of fixed. galvanized 400mpa steel step iron. as 1657 2018 sets out requirements for the design, selection, construction and installation of fixed platforms, walkways,. Wide non slip tread. Step Iron Australian Standard.
From convicaustralia.com.au
283mm Plastic Coated Step Irons Convic Australia Step Iron Australian Standard Wide non slip tread with. This standard sets out requirements for the design, selection, construction and installation of fixed. disclaimer while every reasonable effort is made to ensure that the information provided on this site is correct, no warranty is made. For use in sewer and drainage manholes or pits. as 1657 2018 sets out requirements for the. Step Iron Australian Standard.
From golfergeeks.com
Ping G425 Irons Vs Taylormade Stealth Irons Golfer Geeks Step Iron Australian Standard This standard sets out requirements for the design, selection, construction and installation of fixed. Wide non slip tread with. as 1657 2018 sets out requirements for the design, selection, construction and installation of fixed platforms, walkways,. For use in sewer and drainage manholes or pits. disclaimer while every reasonable effort is made to ensure that the information provided. Step Iron Australian Standard.
From civilcast.com.au
Plastic Encapsulated & Galvanised Storm Water Step Irons Civilcast Step Iron Australian Standard This standard sets out requirements for the design, selection, construction and installation of fixed. For use in sewer and drainage manholes or pits. Full plastic encapsulation to resist corrosion and chemical attack. galvanized 400mpa steel step iron. Wide non slip tread with. disclaimer while every reasonable effort is made to ensure that the information provided on this site. Step Iron Australian Standard.
From drainstore.com
Plastic Coated Manhole Chamber Step Irons (Pack of 10) Drainstore Step Iron Australian Standard Full plastic encapsulation to resist corrosion and chemical attack. Wide non slip tread with. disclaimer while every reasonable effort is made to ensure that the information provided on this site is correct, no warranty is made. galvanized 400mpa steel step iron. This standard sets out requirements for the design, selection, construction and installation of fixed. For use in. Step Iron Australian Standard.
From civilcast.com.au
Plastic Encapsulated & Galvanised Storm Water Step Irons Civilcast Step Iron Australian Standard Full plastic encapsulation to resist corrosion and chemical attack. This standard sets out requirements for the design, selection, construction and installation of fixed. Wide non slip tread with. galvanized 400mpa steel step iron. For use in sewer and drainage manholes or pits. as 1657 2018 sets out requirements for the design, selection, construction and installation of fixed platforms,. Step Iron Australian Standard.
From ferrum.com.au
Step Irons Ferrum Step Iron Australian Standard disclaimer while every reasonable effort is made to ensure that the information provided on this site is correct, no warranty is made. galvanized 400mpa steel step iron. Wide non slip tread with. Full plastic encapsulation to resist corrosion and chemical attack. For use in sewer and drainage manholes or pits. This standard sets out requirements for the design,. Step Iron Australian Standard.
From www.rmcspl.co.za
Step Irons, Hoop Iron, Ferrule Dolly & Ferrule RoseRubble chutes, wire Step Iron Australian Standard disclaimer while every reasonable effort is made to ensure that the information provided on this site is correct, no warranty is made. Wide non slip tread with. Full plastic encapsulation to resist corrosion and chemical attack. galvanized 400mpa steel step iron. For use in sewer and drainage manholes or pits. as 1657 2018 sets out requirements for. Step Iron Australian Standard.
From www.alibaba.com
Australia Galvanised Steel Manhole Stormwater Pit Step Irons Buy Step Step Iron Australian Standard Wide non slip tread with. galvanized 400mpa steel step iron. Full plastic encapsulation to resist corrosion and chemical attack. disclaimer while every reasonable effort is made to ensure that the information provided on this site is correct, no warranty is made. This standard sets out requirements for the design, selection, construction and installation of fixed. For use in. Step Iron Australian Standard.
From www.stepform.com.au
Step Ladders Australian Standard AS16572018 StepForm™ Modular Step Iron Australian Standard galvanized 400mpa steel step iron. Wide non slip tread with. disclaimer while every reasonable effort is made to ensure that the information provided on this site is correct, no warranty is made. For use in sewer and drainage manholes or pits. This standard sets out requirements for the design, selection, construction and installation of fixed. Full plastic encapsulation. Step Iron Australian Standard.
From civilmart.com.au
GRC Step Irons Civilmart Step Iron Australian Standard galvanized 400mpa steel step iron. This standard sets out requirements for the design, selection, construction and installation of fixed. as 1657 2018 sets out requirements for the design, selection, construction and installation of fixed platforms, walkways,. Full plastic encapsulation to resist corrosion and chemical attack. disclaimer while every reasonable effort is made to ensure that the information. Step Iron Australian Standard.
From www.steelbuilders.com.au
Step Irons & Steel Pit Ladders Steel Builders Step Iron Australian Standard galvanized 400mpa steel step iron. Wide non slip tread with. disclaimer while every reasonable effort is made to ensure that the information provided on this site is correct, no warranty is made. Full plastic encapsulation to resist corrosion and chemical attack. This standard sets out requirements for the design, selection, construction and installation of fixed. as 1657. Step Iron Australian Standard.
From www.buda.com.au
Galvanised Stormwater Pit Step Irons Vincent Buda & Co Step Iron Australian Standard Full plastic encapsulation to resist corrosion and chemical attack. Wide non slip tread with. galvanized 400mpa steel step iron. This standard sets out requirements for the design, selection, construction and installation of fixed. disclaimer while every reasonable effort is made to ensure that the information provided on this site is correct, no warranty is made. as 1657. Step Iron Australian Standard.
From www.4evr.co.za
4EVR Step Iron 4EVR Plastic Products Step Iron Australian Standard Wide non slip tread with. Full plastic encapsulation to resist corrosion and chemical attack. as 1657 2018 sets out requirements for the design, selection, construction and installation of fixed platforms, walkways,. galvanized 400mpa steel step iron. For use in sewer and drainage manholes or pits. This standard sets out requirements for the design, selection, construction and installation of. Step Iron Australian Standard.
From www.aymroo.com.au
Aymroo Australia — Civil Products Step Iron Australian Standard disclaimer while every reasonable effort is made to ensure that the information provided on this site is correct, no warranty is made. galvanized 400mpa steel step iron. as 1657 2018 sets out requirements for the design, selection, construction and installation of fixed platforms, walkways,. Wide non slip tread with. This standard sets out requirements for the design,. Step Iron Australian Standard.