Construction Bid Bond . Learn what a bid bond is, how it works, and who requires it for public and private construction projects. Sureties do not charge for bid bonds. Find out how to secure a bond, when to make a claim, and what are the benefits and risks of using bonds. A bid bond, provided by a surety company, is the most common form of bid security used in construction in the u.s. Find out how to get a bid bond, how. Bid bond requirements may differ from job to job. Find out how to apply for bid bonds,. Learn about the different types of construction bonds, such as bid, performance, payment, and retention bonds, and how they protect project owners and contractors. A bid bond provides assurance to the project owner that if the contractor is chosen, they will accept the contract award. When you get bonds for construction projects, whether it's a bid bond or performance bond, the surety company is providing you a form of. For any public improvement shall file with the bid, a bid guaranty in the form of either: Learn what bid bonds are, how they work, and why they are important for construction projects. Summary of ohio bond claim and notice laws and requirements for private ohio projects including free forms, faqs, resources and more. A construction manager who enters into a contract pursuant to sections 9.33 to 9.333 of the revised code, if. If the contractor meets the surety’s underwriting criteria, the.
from www.templateroller.com
Learn what bid bonds are, how they work, and why they are important for construction projects. Find out how to secure a bond, when to make a claim, and what are the benefits and risks of using bonds. Summary of ohio bond claim and notice laws and requirements for private ohio projects including free forms, faqs, resources and more. When you get bonds for construction projects, whether it's a bid bond or performance bond, the surety company is providing you a form of. For any public improvement shall file with the bid, a bid guaranty in the form of either: Find out how to apply for bid bonds,. Sureties do not charge for bid bonds. A construction manager who enters into a contract pursuant to sections 9.33 to 9.333 of the revised code, if. If the contractor meets the surety’s underwriting criteria, the. Bid bond requirements may differ from job to job.
Bid Bond Form Fill Out, Sign Online and Download PDF Templateroller
Construction Bid Bond A bid bond, provided by a surety company, is the most common form of bid security used in construction in the u.s. Find out how to apply for bid bonds,. A bid bond provides assurance to the project owner that if the contractor is chosen, they will accept the contract award. If the contractor meets the surety’s underwriting criteria, the. Find out how to secure a bond, when to make a claim, and what are the benefits and risks of using bonds. Bid bond requirements may differ from job to job. When you get bonds for construction projects, whether it's a bid bond or performance bond, the surety company is providing you a form of. Learn about the different types of construction bonds, such as bid, performance, payment, and retention bonds, and how they protect project owners and contractors. For any public improvement shall file with the bid, a bid guaranty in the form of either: Find out how to get a bid bond, how. Sureties do not charge for bid bonds. Summary of ohio bond claim and notice laws and requirements for private ohio projects including free forms, faqs, resources and more. A construction manager who enters into a contract pursuant to sections 9.33 to 9.333 of the revised code, if. Learn what bid bonds are, how they work, and why they are important for construction projects. A bid bond, provided by a surety company, is the most common form of bid security used in construction in the u.s. Learn what a bid bond is, how it works, and who requires it for public and private construction projects.
From bizfluent.com
What Is a Bid Bond in Construction? Bizfluent Construction Bid Bond For any public improvement shall file with the bid, a bid guaranty in the form of either: Bid bond requirements may differ from job to job. Summary of ohio bond claim and notice laws and requirements for private ohio projects including free forms, faqs, resources and more. Find out how to apply for bid bonds,. A bid bond provides assurance. Construction Bid Bond.
From www.californiacontractorbonds.com
What Is a Bid Bond? A Guide for Contractors Surety First Construction Bid Bond A bid bond, provided by a surety company, is the most common form of bid security used in construction in the u.s. Learn about the different types of construction bonds, such as bid, performance, payment, and retention bonds, and how they protect project owners and contractors. If the contractor meets the surety’s underwriting criteria, the. Summary of ohio bond claim. Construction Bid Bond.
From www.templateroller.com
Bid Bond Form Fill Out, Sign Online and Download PDF Templateroller Construction Bid Bond When you get bonds for construction projects, whether it's a bid bond or performance bond, the surety company is providing you a form of. Learn what a bid bond is, how it works, and who requires it for public and private construction projects. Learn what bid bonds are, how they work, and why they are important for construction projects. If. Construction Bid Bond.
From www.pinterest.com
Construction Bid Project Form Template Simple Minimal Editable Construction Bid Bond A bid bond provides assurance to the project owner that if the contractor is chosen, they will accept the contract award. When you get bonds for construction projects, whether it's a bid bond or performance bond, the surety company is providing you a form of. Learn about the different types of construction bonds, such as bid, performance, payment, and retention. Construction Bid Bond.
From executivesuretybonds.com
Bid Bond Construction Construction Bid Bond A bid bond, provided by a surety company, is the most common form of bid security used in construction in the u.s. If the contractor meets the surety’s underwriting criteria, the. Find out how to get a bid bond, how. Learn what a bid bond is, how it works, and who requires it for public and private construction projects. When. Construction Bid Bond.
From www.suretynow.com
Bid Bond vs Performance Bond vs Payment Bond Construction Bid Bond Learn what bid bonds are, how they work, and why they are important for construction projects. Learn about the different types of construction bonds, such as bid, performance, payment, and retention bonds, and how they protect project owners and contractors. When you get bonds for construction projects, whether it's a bid bond or performance bond, the surety company is providing. Construction Bid Bond.
From www.levelset.com
An Overview of Construction Bid Bonds Construction Bid Bond Sureties do not charge for bid bonds. A construction manager who enters into a contract pursuant to sections 9.33 to 9.333 of the revised code, if. For any public improvement shall file with the bid, a bid guaranty in the form of either: A bid bond provides assurance to the project owner that if the contractor is chosen, they will. Construction Bid Bond.
From www.rocketlawyer.com
Free Bid Bond Make, Sign & Download Rocket Lawyer Construction Bid Bond A bid bond, provided by a surety company, is the most common form of bid security used in construction in the u.s. Find out how to apply for bid bonds,. Learn what bid bonds are, how they work, and why they are important for construction projects. Summary of ohio bond claim and notice laws and requirements for private ohio projects. Construction Bid Bond.
From www.segurosenhouston.com
Types of Construction Bonds You Need for Your Project Construction Bid Bond Learn about the different types of construction bonds, such as bid, performance, payment, and retention bonds, and how they protect project owners and contractors. Learn what bid bonds are, how they work, and why they are important for construction projects. A construction manager who enters into a contract pursuant to sections 9.33 to 9.333 of the revised code, if. A. Construction Bid Bond.
From www.youtube.com
[CONTRACT 3] Bid Bond Vs Performance Bond Front Loading Civil Construction Bid Bond A bid bond provides assurance to the project owner that if the contractor is chosen, they will accept the contract award. A construction manager who enters into a contract pursuant to sections 9.33 to 9.333 of the revised code, if. A bid bond, provided by a surety company, is the most common form of bid security used in construction in. Construction Bid Bond.
From old.sermitsiaq.ag
Bid Bond Template Construction Bid Bond Learn what bid bonds are, how they work, and why they are important for construction projects. When you get bonds for construction projects, whether it's a bid bond or performance bond, the surety company is providing you a form of. Find out how to get a bid bond, how. Learn what a bid bond is, how it works, and who. Construction Bid Bond.
From www.templateroller.com
Connecticut Annual Bid Bond Form for Construction Contracts Fill Construction Bid Bond If the contractor meets the surety’s underwriting criteria, the. Bid bond requirements may differ from job to job. Learn what bid bonds are, how they work, and why they are important for construction projects. Learn about the different types of construction bonds, such as bid, performance, payment, and retention bonds, and how they protect project owners and contractors. A bid. Construction Bid Bond.
From www.scribd.com
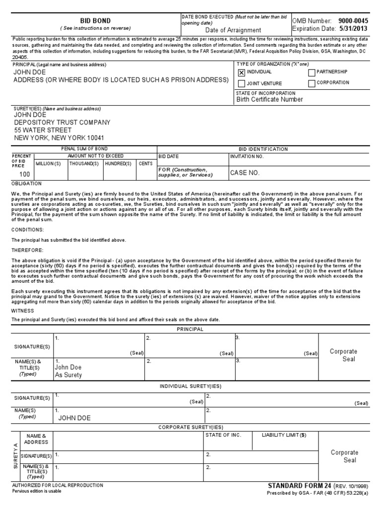
Bid Bond SF241 Bonds (Finance) Guarantee Construction Bid Bond Learn what bid bonds are, how they work, and why they are important for construction projects. Learn about the different types of construction bonds, such as bid, performance, payment, and retention bonds, and how they protect project owners and contractors. When you get bonds for construction projects, whether it's a bid bond or performance bond, the surety company is providing. Construction Bid Bond.
From studylib.net
Bid Bond Construction Bid Bond Learn what a bid bond is, how it works, and who requires it for public and private construction projects. A construction manager who enters into a contract pursuant to sections 9.33 to 9.333 of the revised code, if. Sureties do not charge for bid bonds. Find out how to secure a bond, when to make a claim, and what are. Construction Bid Bond.
From www.genieai.co
Draft a Construction Bid Bond Checklist & Templates Construction Bid Bond Find out how to apply for bid bonds,. Find out how to get a bid bond, how. A bid bond provides assurance to the project owner that if the contractor is chosen, they will accept the contract award. Learn about the different types of construction bonds, such as bid, performance, payment, and retention bonds, and how they protect project owners. Construction Bid Bond.
From swiftbonds.com
What is a Construction Bond Get One for a Great Price Construction Bid Bond Find out how to get a bid bond, how. Bid bond requirements may differ from job to job. When you get bonds for construction projects, whether it's a bid bond or performance bond, the surety company is providing you a form of. A bid bond, provided by a surety company, is the most common form of bid security used in. Construction Bid Bond.
From billyforinsurance.com
How to Select Software to Manage Your Certificates Billy Construction Bid Bond A bid bond provides assurance to the project owner that if the contractor is chosen, they will accept the contract award. A bid bond, provided by a surety company, is the most common form of bid security used in construction in the u.s. Summary of ohio bond claim and notice laws and requirements for private ohio projects including free forms,. Construction Bid Bond.
From oforms.onlyoffice.com
Bid bond template ONLYOFFICE Construction Bid Bond Summary of ohio bond claim and notice laws and requirements for private ohio projects including free forms, faqs, resources and more. Learn what bid bonds are, how they work, and why they are important for construction projects. Learn about the different types of construction bonds, such as bid, performance, payment, and retention bonds, and how they protect project owners and. Construction Bid Bond.
From www.youtube.com
Construction Bid Bond with Performance and Payment Bond YouTube Construction Bid Bond When you get bonds for construction projects, whether it's a bid bond or performance bond, the surety company is providing you a form of. A construction manager who enters into a contract pursuant to sections 9.33 to 9.333 of the revised code, if. A bid bond provides assurance to the project owner that if the contractor is chosen, they will. Construction Bid Bond.
From www.profitdig.com
Bid Bonds in Construction What They Are, Why You Need Them and How to Construction Bid Bond For any public improvement shall file with the bid, a bid guaranty in the form of either: Find out how to apply for bid bonds,. Find out how to secure a bond, when to make a claim, and what are the benefits and risks of using bonds. Learn what a bid bond is, how it works, and who requires it. Construction Bid Bond.
From www.youtube.com
How Construction Bid Bonds Work YouTube Construction Bid Bond A bid bond provides assurance to the project owner that if the contractor is chosen, they will accept the contract award. A construction manager who enters into a contract pursuant to sections 9.33 to 9.333 of the revised code, if. For any public improvement shall file with the bid, a bid guaranty in the form of either: If the contractor. Construction Bid Bond.
From bondingsolutions.com
Types Of Construction Bonds Know Which One You'll Need For Your Next Construction Bid Bond Bid bond requirements may differ from job to job. Sureties do not charge for bid bonds. Learn about the different types of construction bonds, such as bid, performance, payment, and retention bonds, and how they protect project owners and contractors. A bid bond, provided by a surety company, is the most common form of bid security used in construction in. Construction Bid Bond.
From www.pinterest.com
Bid Bonds Are Like Insurance for Construction Bids Bid, Bond Construction Bid Bond A bid bond provides assurance to the project owner that if the contractor is chosen, they will accept the contract award. A construction manager who enters into a contract pursuant to sections 9.33 to 9.333 of the revised code, if. Bid bond requirements may differ from job to job. Find out how to get a bid bond, how. Learn what. Construction Bid Bond.
From allthingsconstructionpm.com
The Ultimate Construction Bond Guide for Contractors All Things Construction Bid Bond Find out how to get a bid bond, how. A bid bond, provided by a surety company, is the most common form of bid security used in construction in the u.s. Sureties do not charge for bid bonds. For any public improvement shall file with the bid, a bid guaranty in the form of either: Learn what a bid bond. Construction Bid Bond.
From www.performancesuretybonds.com
A Guide to Bid Bonds [Infographic] Viking Bond Service, Inc. Construction Bid Bond Find out how to apply for bid bonds,. A construction manager who enters into a contract pursuant to sections 9.33 to 9.333 of the revised code, if. Summary of ohio bond claim and notice laws and requirements for private ohio projects including free forms, faqs, resources and more. Learn what bid bonds are, how they work, and why they are. Construction Bid Bond.
From storables.com
What Is Bid Bond In Construction Storables Construction Bid Bond Learn what bid bonds are, how they work, and why they are important for construction projects. Find out how to apply for bid bonds,. A construction manager who enters into a contract pursuant to sections 9.33 to 9.333 of the revised code, if. For any public improvement shall file with the bid, a bid guaranty in the form of either:. Construction Bid Bond.
From mgsuretybonds.com
Annual Bid Bonds MG Surety Bonds Construction Surety Bonds Construction Bid Bond Learn what a bid bond is, how it works, and who requires it for public and private construction projects. When you get bonds for construction projects, whether it's a bid bond or performance bond, the surety company is providing you a form of. If the contractor meets the surety’s underwriting criteria, the. A construction manager who enters into a contract. Construction Bid Bond.
From www.bank2home.com
Construction Bonds Bid Performance And Payment Construction Bid Bond If the contractor meets the surety’s underwriting criteria, the. Summary of ohio bond claim and notice laws and requirements for private ohio projects including free forms, faqs, resources and more. A bid bond provides assurance to the project owner that if the contractor is chosen, they will accept the contract award. Learn what bid bonds are, how they work, and. Construction Bid Bond.
From dl-uk.apowersoft.com
Printable Construction Bid Template Construction Bid Bond A bid bond provides assurance to the project owner that if the contractor is chosen, they will accept the contract award. Learn about the different types of construction bonds, such as bid, performance, payment, and retention bonds, and how they protect project owners and contractors. Find out how to apply for bid bonds,. Find out how to get a bid. Construction Bid Bond.
From www.awesomefintech.com
Bid Bond AwesomeFinTech Blog Construction Bid Bond Learn about the different types of construction bonds, such as bid, performance, payment, and retention bonds, and how they protect project owners and contractors. Find out how to apply for bid bonds,. When you get bonds for construction projects, whether it's a bid bond or performance bond, the surety company is providing you a form of. Bid bond requirements may. Construction Bid Bond.
From finodha.in
Bid Bonds Ensuring Project Completion in Construction Bidding Online Construction Bid Bond Learn about the different types of construction bonds, such as bid, performance, payment, and retention bonds, and how they protect project owners and contractors. A construction manager who enters into a contract pursuant to sections 9.33 to 9.333 of the revised code, if. Bid bond requirements may differ from job to job. Learn what a bid bond is, how it. Construction Bid Bond.
From alphasuretybonds.com
How Is Bid Bond In Construction? Construction Bid Bond Find out how to get a bid bond, how. Learn what a bid bond is, how it works, and who requires it for public and private construction projects. If the contractor meets the surety’s underwriting criteria, the. For any public improvement shall file with the bid, a bid guaranty in the form of either: Summary of ohio bond claim and. Construction Bid Bond.
From studylib.net
BID BOND Construction Bid Bond If the contractor meets the surety’s underwriting criteria, the. Find out how to secure a bond, when to make a claim, and what are the benefits and risks of using bonds. For any public improvement shall file with the bid, a bid guaranty in the form of either: A construction manager who enters into a contract pursuant to sections 9.33. Construction Bid Bond.
From www.suretybondprofessionals.com
Bid Bonds Construction Bid Bonds Apply Now Surety Bond Pros Construction Bid Bond If the contractor meets the surety’s underwriting criteria, the. Find out how to apply for bid bonds,. When you get bonds for construction projects, whether it's a bid bond or performance bond, the surety company is providing you a form of. Learn about the different types of construction bonds, such as bid, performance, payment, and retention bonds, and how they. Construction Bid Bond.
From www.performancesuretybonds.com
Bid Bonds How Do They Work? Viking Bond Service Construction Bid Bond Learn what bid bonds are, how they work, and why they are important for construction projects. A bid bond, provided by a surety company, is the most common form of bid security used in construction in the u.s. When you get bonds for construction projects, whether it's a bid bond or performance bond, the surety company is providing you a. Construction Bid Bond.