Boat Building Workshop Layout . Whether temporary or permanent, creating a boatbuilding. in this video, i'll go through the basic features and functionalities you will want in a workshop for building small boats. A look at basic boat construction, fiberglass. Fiberglass, resin, composites and cores. A sanding table ( essentially an open wooden grid top on a pan with legs),. each boatbuilder he visits shares the processes and strategies that went into the design and layout of their floor plans. boat building basics: you should be ready to launch your new boat by fall. a boatbuilding workshop is in many ways similar to other woodshops. every couple of weeks i post a boat building or boat repai. one idea from the boat school i attended: First of all, you will need.
from www.pinterest.ca
each boatbuilder he visits shares the processes and strategies that went into the design and layout of their floor plans. Whether temporary or permanent, creating a boatbuilding. every couple of weeks i post a boat building or boat repai. First of all, you will need. Fiberglass, resin, composites and cores. in this video, i'll go through the basic features and functionalities you will want in a workshop for building small boats. A sanding table ( essentially an open wooden grid top on a pan with legs),. boat building basics: one idea from the boat school i attended: a boatbuilding workshop is in many ways similar to other woodshops.
Layout Yacht design, Boat building, Layout
Boat Building Workshop Layout each boatbuilder he visits shares the processes and strategies that went into the design and layout of their floor plans. a boatbuilding workshop is in many ways similar to other woodshops. A sanding table ( essentially an open wooden grid top on a pan with legs),. each boatbuilder he visits shares the processes and strategies that went into the design and layout of their floor plans. in this video, i'll go through the basic features and functionalities you will want in a workshop for building small boats. Fiberglass, resin, composites and cores. you should be ready to launch your new boat by fall. boat building basics: A look at basic boat construction, fiberglass. Whether temporary or permanent, creating a boatbuilding. one idea from the boat school i attended: every couple of weeks i post a boat building or boat repai. First of all, you will need.
From www.urbanrealm.com
Portsoy boat plan goes on public display June 2013 News Boat Building Workshop Layout First of all, you will need. one idea from the boat school i attended: A sanding table ( essentially an open wooden grid top on a pan with legs),. A look at basic boat construction, fiberglass. boat building basics: a boatbuilding workshop is in many ways similar to other woodshops. you should be ready to launch. Boat Building Workshop Layout.
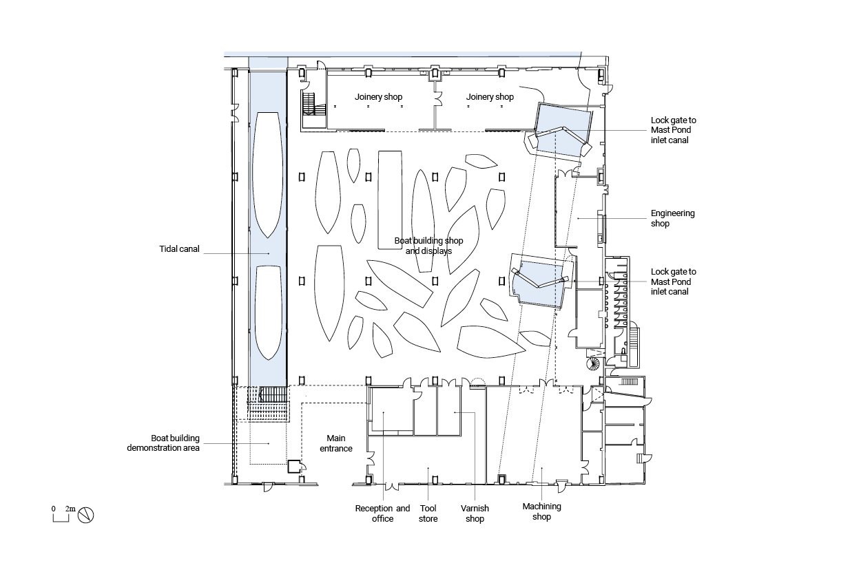
From www.finlaygeddes.co.uk
Boat Finlay Geddes Boat Building Workshop Layout Whether temporary or permanent, creating a boatbuilding. in this video, i'll go through the basic features and functionalities you will want in a workshop for building small boats. Fiberglass, resin, composites and cores. each boatbuilder he visits shares the processes and strategies that went into the design and layout of their floor plans. you should be ready. Boat Building Workshop Layout.
From www.pinterest.com
Rough sketchup layout of the new shop. Filled it already. Time for a Boat Building Workshop Layout each boatbuilder he visits shares the processes and strategies that went into the design and layout of their floor plans. Whether temporary or permanent, creating a boatbuilding. in this video, i'll go through the basic features and functionalities you will want in a workshop for building small boats. a boatbuilding workshop is in many ways similar to. Boat Building Workshop Layout.
From www.pinterest.co.kr
Wood Boat Classic wooden boats, Wood boats, Wood boat building Boat Building Workshop Layout First of all, you will need. A sanding table ( essentially an open wooden grid top on a pan with legs),. in this video, i'll go through the basic features and functionalities you will want in a workshop for building small boats. each boatbuilder he visits shares the processes and strategies that went into the design and layout. Boat Building Workshop Layout.
From toxovybys.wordpress.com
Building Boat Plans 3 Tips to Find the Perfect Boat Plan toxovybys Boat Building Workshop Layout one idea from the boat school i attended: boat building basics: First of all, you will need. in this video, i'll go through the basic features and functionalities you will want in a workshop for building small boats. every couple of weeks i post a boat building or boat repai. you should be ready to. Boat Building Workshop Layout.
From www.popularwoodworking.com
Boatbuilder’s Shop Popular Woodworking Boat Building Workshop Layout boat building basics: you should be ready to launch your new boat by fall. A sanding table ( essentially an open wooden grid top on a pan with legs),. a boatbuilding workshop is in many ways similar to other woodshops. A look at basic boat construction, fiberglass. every couple of weeks i post a boat building. Boat Building Workshop Layout.
From www.youtube.com
Temptress Build 2 Boat Building Setup YouTube Boat Building Workshop Layout A sanding table ( essentially an open wooden grid top on a pan with legs),. A look at basic boat construction, fiberglass. a boatbuilding workshop is in many ways similar to other woodshops. Whether temporary or permanent, creating a boatbuilding. you should be ready to launch your new boat by fall. in this video, i'll go through. Boat Building Workshop Layout.
From www.dreamstime.com
A Boat in a Large Building in a Warehouse Editorial Stock Photo Image Boat Building Workshop Layout you should be ready to launch your new boat by fall. Whether temporary or permanent, creating a boatbuilding. boat building basics: each boatbuilder he visits shares the processes and strategies that went into the design and layout of their floor plans. A sanding table ( essentially an open wooden grid top on a pan with legs),. . Boat Building Workshop Layout.
From www.navyk.com
Marine engineering NAVYK Naval architecture, Yacht drawing Boat Building Workshop Layout every couple of weeks i post a boat building or boat repai. each boatbuilder he visits shares the processes and strategies that went into the design and layout of their floor plans. you should be ready to launch your new boat by fall. Fiberglass, resin, composites and cores. A look at basic boat construction, fiberglass. a. Boat Building Workshop Layout.
From boatbuildingacademy.com
40Week Boat Building Course Boat Building Academy and Furniture School Boat Building Workshop Layout First of all, you will need. you should be ready to launch your new boat by fall. in this video, i'll go through the basic features and functionalities you will want in a workshop for building small boats. boat building basics: A sanding table ( essentially an open wooden grid top on a pan with legs),. Whether. Boat Building Workshop Layout.
From www.alamy.com
Richmond Bridge Boathouse Interior Boat Building London UK Boat Building Workshop Layout A look at basic boat construction, fiberglass. each boatbuilder he visits shares the processes and strategies that went into the design and layout of their floor plans. every couple of weeks i post a boat building or boat repai. you should be ready to launch your new boat by fall. First of all, you will need. . Boat Building Workshop Layout.
From www.architectsjournal.co.uk
Boathouse 4 by Walters & Cohen Architects Boat Building Workshop Layout a boatbuilding workshop is in many ways similar to other woodshops. A look at basic boat construction, fiberglass. Fiberglass, resin, composites and cores. First of all, you will need. you should be ready to launch your new boat by fall. A sanding table ( essentially an open wooden grid top on a pan with legs),. Whether temporary or. Boat Building Workshop Layout.
From www.alamy.com
Boat building hires stock photography and images Alamy Boat Building Workshop Layout boat building basics: every couple of weeks i post a boat building or boat repai. A look at basic boat construction, fiberglass. Whether temporary or permanent, creating a boatbuilding. each boatbuilder he visits shares the processes and strategies that went into the design and layout of their floor plans. Fiberglass, resin, composites and cores. you should. Boat Building Workshop Layout.
From boatplanmaker.blogspot.com
Couta boat building plans Plans for boat Boat Building Workshop Layout every couple of weeks i post a boat building or boat repai. First of all, you will need. Fiberglass, resin, composites and cores. in this video, i'll go through the basic features and functionalities you will want in a workshop for building small boats. Whether temporary or permanent, creating a boatbuilding. A look at basic boat construction, fiberglass.. Boat Building Workshop Layout.
From www.youtube.com
How to set up a boatbuilding YouTube Boat Building Workshop Layout A sanding table ( essentially an open wooden grid top on a pan with legs),. Whether temporary or permanent, creating a boatbuilding. Fiberglass, resin, composites and cores. in this video, i'll go through the basic features and functionalities you will want in a workshop for building small boats. every couple of weeks i post a boat building or. Boat Building Workshop Layout.
From www.dreamstime.com
Boat Building stock image. Image of boat, wooden 25053815 Boat Building Workshop Layout First of all, you will need. A sanding table ( essentially an open wooden grid top on a pan with legs),. Fiberglass, resin, composites and cores. in this video, i'll go through the basic features and functionalities you will want in a workshop for building small boats. every couple of weeks i post a boat building or boat. Boat Building Workshop Layout.
From boat291.blog.fc2.com
Layout Boat Plans How To Build DIY PDF Download UK Australia Boat Boat Building Workshop Layout each boatbuilder he visits shares the processes and strategies that went into the design and layout of their floor plans. Fiberglass, resin, composites and cores. A look at basic boat construction, fiberglass. one idea from the boat school i attended: every couple of weeks i post a boat building or boat repai. Whether temporary or permanent, creating. Boat Building Workshop Layout.
From www.smallboatschool.com
How to set up your boatbuilding Boat Building Workshop Layout A sanding table ( essentially an open wooden grid top on a pan with legs),. First of all, you will need. every couple of weeks i post a boat building or boat repai. boat building basics: Whether temporary or permanent, creating a boatbuilding. a boatbuilding workshop is in many ways similar to other woodshops. A look at. Boat Building Workshop Layout.
From www.newfoundlandlabrador.com
Boat Building Winterton Newfoundland and Labrador, Canada Boat Building Workshop Layout A look at basic boat construction, fiberglass. Fiberglass, resin, composites and cores. in this video, i'll go through the basic features and functionalities you will want in a workshop for building small boats. First of all, you will need. every couple of weeks i post a boat building or boat repai. boat building basics: each boatbuilder. Boat Building Workshop Layout.
From www.irishboatshop.com
Irish Boat Shop Site Plan Submission Boat Building Workshop Layout A sanding table ( essentially an open wooden grid top on a pan with legs),. First of all, you will need. a boatbuilding workshop is in many ways similar to other woodshops. each boatbuilder he visits shares the processes and strategies that went into the design and layout of their floor plans. you should be ready to. Boat Building Workshop Layout.
From boatbuildingzushitsume.blogspot.com
Boat Building Boat Building Boat Building Workshop Layout each boatbuilder he visits shares the processes and strategies that went into the design and layout of their floor plans. Fiberglass, resin, composites and cores. First of all, you will need. in this video, i'll go through the basic features and functionalities you will want in a workshop for building small boats. A sanding table ( essentially an. Boat Building Workshop Layout.
From www.fyneboatkits.co.uk
Boat Building Hire Fyne Boat Kits Boat Building Workshop Layout a boatbuilding workshop is in many ways similar to other woodshops. First of all, you will need. one idea from the boat school i attended: you should be ready to launch your new boat by fall. boat building basics: A look at basic boat construction, fiberglass. Fiberglass, resin, composites and cores. every couple of weeks. Boat Building Workshop Layout.
From www.fao.org
3. SITE, EQUIPMENT, TOOLS AND LAUNCHING SYSTEMS Boat Building Workshop Layout a boatbuilding workshop is in many ways similar to other woodshops. A sanding table ( essentially an open wooden grid top on a pan with legs),. you should be ready to launch your new boat by fall. every couple of weeks i post a boat building or boat repai. each boatbuilder he visits shares the processes. Boat Building Workshop Layout.
From www.fyneboatkits.co.uk
BoatBuilding Courses Fyne Boat Kits Boat Building Workshop Layout Fiberglass, resin, composites and cores. boat building basics: you should be ready to launch your new boat by fall. in this video, i'll go through the basic features and functionalities you will want in a workshop for building small boats. First of all, you will need. A sanding table ( essentially an open wooden grid top on. Boat Building Workshop Layout.
From www.popularmechanics.com
How To Build a Boat DIY Boat Plans Boat Building Workshop Layout A look at basic boat construction, fiberglass. A sanding table ( essentially an open wooden grid top on a pan with legs),. in this video, i'll go through the basic features and functionalities you will want in a workshop for building small boats. boat building basics: you should be ready to launch your new boat by fall.. Boat Building Workshop Layout.
From www.mckenziediscoverycenter.org
Boat Building Mckenzie River Discovery Center Boat Building Workshop Layout in this video, i'll go through the basic features and functionalities you will want in a workshop for building small boats. A sanding table ( essentially an open wooden grid top on a pan with legs),. Fiberglass, resin, composites and cores. Whether temporary or permanent, creating a boatbuilding. each boatbuilder he visits shares the processes and strategies that. Boat Building Workshop Layout.
From sketchfab.com
Scottish Boatbuilding School Download Free 3D model by Boat Building Workshop Layout boat building basics: a boatbuilding workshop is in many ways similar to other woodshops. one idea from the boat school i attended: Whether temporary or permanent, creating a boatbuilding. Fiberglass, resin, composites and cores. you should be ready to launch your new boat by fall. every couple of weeks i post a boat building or. Boat Building Workshop Layout.
From www.flbm.org
Boat Building Series flbm Boat Building Workshop Layout each boatbuilder he visits shares the processes and strategies that went into the design and layout of their floor plans. Fiberglass, resin, composites and cores. one idea from the boat school i attended: Whether temporary or permanent, creating a boatbuilding. boat building basics: First of all, you will need. in this video, i'll go through the. Boat Building Workshop Layout.
From mortonbuildings.com
Boat Storage Buildings & Garages Metal Small Vehicle Storage Boat Building Workshop Layout Whether temporary or permanent, creating a boatbuilding. A sanding table ( essentially an open wooden grid top on a pan with legs),. each boatbuilder he visits shares the processes and strategies that went into the design and layout of their floor plans. First of all, you will need. Fiberglass, resin, composites and cores. A look at basic boat construction,. Boat Building Workshop Layout.
From www.fyneboatkits.co.uk
BoatBuilding Courses Fyne Boat Kits Boat Building Workshop Layout Whether temporary or permanent, creating a boatbuilding. every couple of weeks i post a boat building or boat repai. boat building basics: in this video, i'll go through the basic features and functionalities you will want in a workshop for building small boats. a boatbuilding workshop is in many ways similar to other woodshops. Fiberglass, resin,. Boat Building Workshop Layout.
From buyfromturkey.co
Building a Boat Different Stages Buyfromturkey Boat Building Workshop Layout A sanding table ( essentially an open wooden grid top on a pan with legs),. one idea from the boat school i attended: in this video, i'll go through the basic features and functionalities you will want in a workshop for building small boats. Fiberglass, resin, composites and cores. every couple of weeks i post a boat. Boat Building Workshop Layout.
From www.offcenterharbor.com
A Sneak Peek Into the World's First Houseboat Design Contest Boat Building Workshop Layout A sanding table ( essentially an open wooden grid top on a pan with legs),. a boatbuilding workshop is in many ways similar to other woodshops. Whether temporary or permanent, creating a boatbuilding. each boatbuilder he visits shares the processes and strategies that went into the design and layout of their floor plans. one idea from the. Boat Building Workshop Layout.
From www.pinterest.co.uk
Free Boat Blueprints Mini Tugboat Plans Free Joy Studio Design Boat Building Workshop Layout A look at basic boat construction, fiberglass. Fiberglass, resin, composites and cores. you should be ready to launch your new boat by fall. First of all, you will need. in this video, i'll go through the basic features and functionalities you will want in a workshop for building small boats. every couple of weeks i post a. Boat Building Workshop Layout.
From www.pinterest.ca
Layout Yacht design, Boat building, Layout Boat Building Workshop Layout a boatbuilding workshop is in many ways similar to other woodshops. Fiberglass, resin, composites and cores. Whether temporary or permanent, creating a boatbuilding. A sanding table ( essentially an open wooden grid top on a pan with legs),. every couple of weeks i post a boat building or boat repai. in this video, i'll go through the. Boat Building Workshop Layout.
From www.pinterest.com
Boat Maritime Museum, St. Michaels, Maryland, USA Maritime Boat Building Workshop Layout in this video, i'll go through the basic features and functionalities you will want in a workshop for building small boats. every couple of weeks i post a boat building or boat repai. each boatbuilder he visits shares the processes and strategies that went into the design and layout of their floor plans. A look at basic. Boat Building Workshop Layout.