Sand Bed Filter Types . Three types of sand filters are most common: A settling chamber and a filter bed with sand or other filtering media.   types of rapid sand filter. First, buried sand filters are built onsite. There are a number of different types of rapid sand filters depending upon bed depth (e.g., shallow, conventional and deep bed).   types of sand filters. Rapid (gravity) sand filters and slow sand filters.  there are primarily two types of sand filters used in the wastewater treatment process:  the three types of sand filter on which wastewater filters are based are known as pressure filters, rapid gravity filters, and.   slow sand filtration uses a deep layer of sand and a slow flow rate to achieve high removal efficiency, while rapid sand.  a sand filter typically consists of two chambers:  a large particle bed supports the filter media to prevent fine sand or anthracite from escaping into the underdrain system.
        
        from diagramdatacheyennes.z21.web.core.windows.net 
     
        
         the three types of sand filter on which wastewater filters are based are known as pressure filters, rapid gravity filters, and.   types of rapid sand filter. Three types of sand filters are most common:   types of sand filters.   slow sand filtration uses a deep layer of sand and a slow flow rate to achieve high removal efficiency, while rapid sand. First, buried sand filters are built onsite.  there are primarily two types of sand filters used in the wastewater treatment process:  a large particle bed supports the filter media to prevent fine sand or anthracite from escaping into the underdrain system. A settling chamber and a filter bed with sand or other filtering media. There are a number of different types of rapid sand filters depending upon bed depth (e.g., shallow, conventional and deep bed).
    
    	
            
	
		 
         
    Rapid Sand Filter Diagram 
    Sand Bed Filter Types  First, buried sand filters are built onsite.  the three types of sand filter on which wastewater filters are based are known as pressure filters, rapid gravity filters, and.  a sand filter typically consists of two chambers: There are a number of different types of rapid sand filters depending upon bed depth (e.g., shallow, conventional and deep bed). Three types of sand filters are most common:  a large particle bed supports the filter media to prevent fine sand or anthracite from escaping into the underdrain system.   types of rapid sand filter.  there are primarily two types of sand filters used in the wastewater treatment process: First, buried sand filters are built onsite.   types of sand filters. A settling chamber and a filter bed with sand or other filtering media.   slow sand filtration uses a deep layer of sand and a slow flow rate to achieve high removal efficiency, while rapid sand. Rapid (gravity) sand filters and slow sand filters.
            
	
		 
         
 
    
        From www.takuma.co.jp 
                    Upflow Movingbed Sand Filtration system "Uniflow Sand Filter"|Water Sand Bed Filter Types  Three types of sand filters are most common: First, buried sand filters are built onsite.  a sand filter typically consists of two chambers:  a large particle bed supports the filter media to prevent fine sand or anthracite from escaping into the underdrain system.   types of rapid sand filter. A settling chamber and a filter bed with sand. Sand Bed Filter Types.
     
    
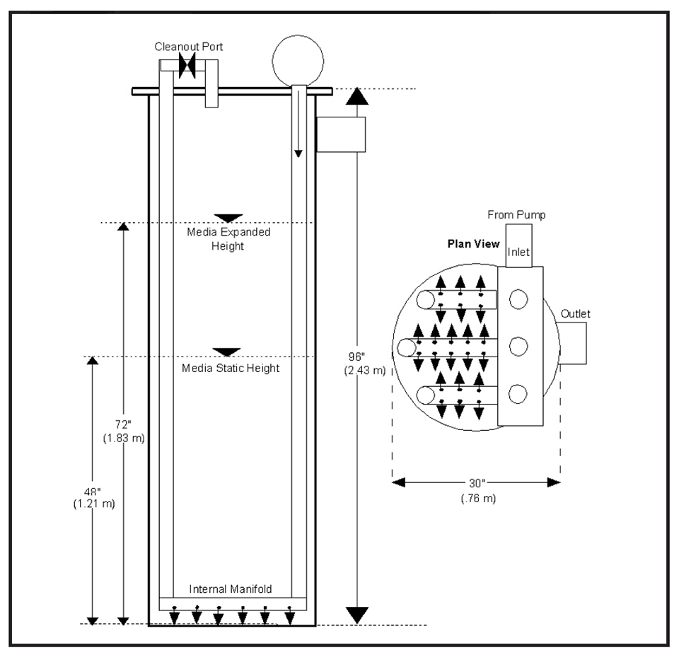
        From netsolwater.com 
                    How to design a pressure sand filter? Pressure Sand Filter Calculator Sand Bed Filter Types  Three types of sand filters are most common:  a sand filter typically consists of two chambers:  there are primarily two types of sand filters used in the wastewater treatment process: A settling chamber and a filter bed with sand or other filtering media. First, buried sand filters are built onsite.   types of rapid sand filter.   slow. Sand Bed Filter Types.
     
    
        From usermanual.wiki 
                    V2Bio Fluid Sand Bed Filter instructions Sand Bed Filter Types   a sand filter typically consists of two chambers:  the three types of sand filter on which wastewater filters are based are known as pressure filters, rapid gravity filters, and.   slow sand filtration uses a deep layer of sand and a slow flow rate to achieve high removal efficiency, while rapid sand.  a large particle bed supports. Sand Bed Filter Types.
     
    
        From portfolio.cept.ac.in 
                    DESIGN OF RAPID SAND FILTER CEPT Portfolio Sand Bed Filter Types   there are primarily two types of sand filters used in the wastewater treatment process:   slow sand filtration uses a deep layer of sand and a slow flow rate to achieve high removal efficiency, while rapid sand.   types of sand filters.  a sand filter typically consists of two chambers:  the three types of sand filter on. Sand Bed Filter Types.
     
    
        From buildersontario.com 
                    Sand filter bed Ontario Home Builders Sand Bed Filter Types  Three types of sand filters are most common:   types of sand filters. There are a number of different types of rapid sand filters depending upon bed depth (e.g., shallow, conventional and deep bed).  a sand filter typically consists of two chambers:   slow sand filtration uses a deep layer of sand and a slow flow rate to achieve. Sand Bed Filter Types.
     
    
        From www.indiamart.com 
                    Deep Bed Sand Filter at Rs 35000 Swimming Pool Sand Filter in Chennai Sand Bed Filter Types    types of sand filters. There are a number of different types of rapid sand filters depending upon bed depth (e.g., shallow, conventional and deep bed). First, buried sand filters are built onsite. Rapid (gravity) sand filters and slow sand filters.   types of rapid sand filter.   slow sand filtration uses a deep layer of sand and a slow. Sand Bed Filter Types.
     
    
        From www.indiamart.com 
                    SS Deep Bed Sand Filters, Vessel Height 600 mm, 300 mm at Rs 22000 in Sand Bed Filter Types  First, buried sand filters are built onsite.   slow sand filtration uses a deep layer of sand and a slow flow rate to achieve high removal efficiency, while rapid sand.   types of sand filters. Rapid (gravity) sand filters and slow sand filters.  the three types of sand filter on which wastewater filters are based are known as pressure. Sand Bed Filter Types.
     
    
        From hydroflotech.com 
                    Deep Bed Sand Filters Hydroflotech Sand Bed Filter Types    types of rapid sand filter. There are a number of different types of rapid sand filters depending upon bed depth (e.g., shallow, conventional and deep bed).   types of sand filters. First, buried sand filters are built onsite.  a large particle bed supports the filter media to prevent fine sand or anthracite from escaping into the underdrain system.. Sand Bed Filter Types.
     
    
        From www.youtube.com 
                    DIY Aquarium Filter with FSB Fluidized Sand Bed YouTube Sand Bed Filter Types    slow sand filtration uses a deep layer of sand and a slow flow rate to achieve high removal efficiency, while rapid sand. There are a number of different types of rapid sand filters depending upon bed depth (e.g., shallow, conventional and deep bed).  there are primarily two types of sand filters used in the wastewater treatment process: . Sand Bed Filter Types.
     
    
        From inspectapedia.com 
                    Recirculating Sand Filters & Sand Beds Septic Systems Design Specifications Sand Bed Filter Types   the three types of sand filter on which wastewater filters are based are known as pressure filters, rapid gravity filters, and. There are a number of different types of rapid sand filters depending upon bed depth (e.g., shallow, conventional and deep bed).   types of rapid sand filter.   types of sand filters. Rapid (gravity) sand filters and slow. Sand Bed Filter Types.
     
    
        From www.pvas.com 
                    DIY Fluidized Sand Bed (Biological Filter) Sand Bed Filter Types  There are a number of different types of rapid sand filters depending upon bed depth (e.g., shallow, conventional and deep bed).  the three types of sand filter on which wastewater filters are based are known as pressure filters, rapid gravity filters, and. A settling chamber and a filter bed with sand or other filtering media.  a large particle. Sand Bed Filter Types.
     
    
        From diagramdatacheyennes.z21.web.core.windows.net 
                    Rapid Sand Filter Diagram Sand Bed Filter Types  Three types of sand filters are most common:  a large particle bed supports the filter media to prevent fine sand or anthracite from escaping into the underdrain system.  a sand filter typically consists of two chambers: A settling chamber and a filter bed with sand or other filtering media. Rapid (gravity) sand filters and slow sand filters. . Sand Bed Filter Types.
     
    
        From circuitlibrarydonat.z21.web.core.windows.net 
                    Sand Filter Septic System Diagram Sand Bed Filter Types  Three types of sand filters are most common:   slow sand filtration uses a deep layer of sand and a slow flow rate to achieve high removal efficiency, while rapid sand.  the three types of sand filter on which wastewater filters are based are known as pressure filters, rapid gravity filters, and.   types of sand filters.  a. Sand Bed Filter Types.
     
    
        From www.lemna.com 
                    LemTec™ Recirculating Sand Filter Lemna Environmental Technologies Sand Bed Filter Types    types of sand filters. There are a number of different types of rapid sand filters depending upon bed depth (e.g., shallow, conventional and deep bed). Three types of sand filters are most common: A settling chamber and a filter bed with sand or other filtering media.  a large particle bed supports the filter media to prevent fine sand. Sand Bed Filter Types.
     
    
        From www.globalseafood.org 
                    Advances in fluidized sand bed biofilters Responsible Seafood Advocate Sand Bed Filter Types  There are a number of different types of rapid sand filters depending upon bed depth (e.g., shallow, conventional and deep bed). First, buried sand filters are built onsite. Rapid (gravity) sand filters and slow sand filters. A settling chamber and a filter bed with sand or other filtering media.  there are primarily two types of sand filters used in. Sand Bed Filter Types.
     
    
        From netsolwater.com 
                    What is Use of Sand Filter In Commercial RO Plants Netsol Water Sand Bed Filter Types    types of sand filters. There are a number of different types of rapid sand filters depending upon bed depth (e.g., shallow, conventional and deep bed).  a sand filter typically consists of two chambers:  there are primarily two types of sand filters used in the wastewater treatment process:   types of rapid sand filter.  a large particle. Sand Bed Filter Types.
     
    
        From depositphotos.com 
                    Sand and Gravel Filter Bed Stock Photo by ©PlazacCameraman 89001570 Sand Bed Filter Types    types of rapid sand filter. A settling chamber and a filter bed with sand or other filtering media.  a sand filter typically consists of two chambers:  a large particle bed supports the filter media to prevent fine sand or anthracite from escaping into the underdrain system.  there are primarily two types of sand filters used in. Sand Bed Filter Types.
     
    
        From netsolwater.com 
                    Working of Pressure Sand Filter (PSF) in detail Netsol Water Sand Bed Filter Types    types of sand filters. Three types of sand filters are most common:  there are primarily two types of sand filters used in the wastewater treatment process:  a sand filter typically consists of two chambers:  a large particle bed supports the filter media to prevent fine sand or anthracite from escaping into the underdrain system. Rapid (gravity). Sand Bed Filter Types.
     
    
        From www.semanticscholar.org 
                    Development and Design of a Fluidized Bed/Upflow Sand Filter Sand Bed Filter Types    types of rapid sand filter.  the three types of sand filter on which wastewater filters are based are known as pressure filters, rapid gravity filters, and. A settling chamber and a filter bed with sand or other filtering media.  a sand filter typically consists of two chambers: First, buried sand filters are built onsite. Three types of. Sand Bed Filter Types.
     
    
        From shawresources.ca 
                    How Does Septic Sand Filtration Work and What Kind of Sand Should be Sand Bed Filter Types  Three types of sand filters are most common: First, buried sand filters are built onsite.  there are primarily two types of sand filters used in the wastewater treatment process:   types of sand filters.  the three types of sand filter on which wastewater filters are based are known as pressure filters, rapid gravity filters, and.   types of. Sand Bed Filter Types.
     
    
        From www.globalseafood.org 
                    Advances in fluidized sand bed biofilters Responsible Seafood Advocate Sand Bed Filter Types    types of sand filters.   slow sand filtration uses a deep layer of sand and a slow flow rate to achieve high removal efficiency, while rapid sand.  a sand filter typically consists of two chambers:  the three types of sand filter on which wastewater filters are based are known as pressure filters, rapid gravity filters, and. A. Sand Bed Filter Types.
     
    
        From nuagaon.com 
                    Slow Sand Filter and Rapid sand FilterPractical Approach Sand Bed Filter Types   there are primarily two types of sand filters used in the wastewater treatment process: First, buried sand filters are built onsite. Rapid (gravity) sand filters and slow sand filters.  a sand filter typically consists of two chambers: Three types of sand filters are most common: There are a number of different types of rapid sand filters depending upon. Sand Bed Filter Types.
     
    
        From schematiclistpyot123.z21.web.core.windows.net 
                    Sand Filter Assembly Instructions Sand Bed Filter Types   a large particle bed supports the filter media to prevent fine sand or anthracite from escaping into the underdrain system. First, buried sand filters are built onsite.   types of rapid sand filter.  the three types of sand filter on which wastewater filters are based are known as pressure filters, rapid gravity filters, and. There are a number. Sand Bed Filter Types.
     
    
        From dreamcivil.com 
                    Rapid Sand Filter Parts, Working, Advantages & Disadvantages of Rapid Sand Bed Filter Types    types of sand filters.  a large particle bed supports the filter media to prevent fine sand or anthracite from escaping into the underdrain system.  there are primarily two types of sand filters used in the wastewater treatment process:  the three types of sand filter on which wastewater filters are based are known as pressure filters, rapid. Sand Bed Filter Types.
     
    
        From www.benbellsoftenersystems.in 
                    Sand Filter Benbell Softener System Sand Bed Filter Types   there are primarily two types of sand filters used in the wastewater treatment process:  a large particle bed supports the filter media to prevent fine sand or anthracite from escaping into the underdrain system.   types of rapid sand filter. A settling chamber and a filter bed with sand or other filtering media. First, buried sand filters are. Sand Bed Filter Types.
     
    
        From www.britishtrade.co 
                    Deep Bed Sand Filters British Trading Sand Bed Filter Types    types of sand filters.  there are primarily two types of sand filters used in the wastewater treatment process:  the three types of sand filter on which wastewater filters are based are known as pressure filters, rapid gravity filters, and. Rapid (gravity) sand filters and slow sand filters. Three types of sand filters are most common: A settling. Sand Bed Filter Types.
     
    
        From www.at-minerals.com 
                    Continuous filter bed cleaning with the Leiblein FlowSand filter Sand Bed Filter Types  A settling chamber and a filter bed with sand or other filtering media.  a sand filter typically consists of two chambers:   types of rapid sand filter. Rapid (gravity) sand filters and slow sand filters.  there are primarily two types of sand filters used in the wastewater treatment process: Three types of sand filters are most common: First,. Sand Bed Filter Types.
     
    
        From www.petmetwice.com 
                    Sand Filters For Aquariums Benefits And Types Sand Bed Filter Types  Rapid (gravity) sand filters and slow sand filters.  the three types of sand filter on which wastewater filters are based are known as pressure filters, rapid gravity filters, and.   types of rapid sand filter.   types of sand filters.   slow sand filtration uses a deep layer of sand and a slow flow rate to achieve high removal. Sand Bed Filter Types.
     
    
        From diagramdatacheyennes.z21.web.core.windows.net 
                    Rapid Sand Filter Diagram Sand Bed Filter Types    types of sand filters.   slow sand filtration uses a deep layer of sand and a slow flow rate to achieve high removal efficiency, while rapid sand.  a large particle bed supports the filter media to prevent fine sand or anthracite from escaping into the underdrain system.   types of rapid sand filter. First, buried sand filters are. Sand Bed Filter Types.
     
    
        From www.indiamart.com 
                    Sand Bed Multigrade Filters, For Industrial at Rs 200000/piece in Sand Bed Filter Types  First, buried sand filters are built onsite.  the three types of sand filter on which wastewater filters are based are known as pressure filters, rapid gravity filters, and.   slow sand filtration uses a deep layer of sand and a slow flow rate to achieve high removal efficiency, while rapid sand.  there are primarily two types of sand. Sand Bed Filter Types.
     
    
        From www.practicalfishkeeping.co.uk 
                    New Fluidised Sand Bed Filters from TMC Practical Fishkeeping Sand Bed Filter Types    slow sand filtration uses a deep layer of sand and a slow flow rate to achieve high removal efficiency, while rapid sand.  a sand filter typically consists of two chambers: There are a number of different types of rapid sand filters depending upon bed depth (e.g., shallow, conventional and deep bed).  the three types of sand filter. Sand Bed Filter Types.
     
    
        From www.youtube.com 
                    DIY Sand and Gravel Filter with Moving Bed of K1. Part 1 YouTube Sand Bed Filter Types    types of rapid sand filter. There are a number of different types of rapid sand filters depending upon bed depth (e.g., shallow, conventional and deep bed).   slow sand filtration uses a deep layer of sand and a slow flow rate to achieve high removal efficiency, while rapid sand. First, buried sand filters are built onsite. A settling chamber. Sand Bed Filter Types.
     
    
        From ideasforhomeandoffice.blogspot.com 
                    Fluidized sand bed filter Sand Bed Filter Types  A settling chamber and a filter bed with sand or other filtering media. There are a number of different types of rapid sand filters depending upon bed depth (e.g., shallow, conventional and deep bed).  a sand filter typically consists of two chambers: Rapid (gravity) sand filters and slow sand filters. Three types of sand filters are most common: . Sand Bed Filter Types.
     
    
        From www.austinreefclub.com 
                    Fluidized sand bed filter Reef Keeping Austin Reef Club Sand Bed Filter Types   a sand filter typically consists of two chambers: Rapid (gravity) sand filters and slow sand filters. There are a number of different types of rapid sand filters depending upon bed depth (e.g., shallow, conventional and deep bed). A settling chamber and a filter bed with sand or other filtering media.   types of sand filters.  there are primarily. Sand Bed Filter Types.
     
    
        From www.researchgate.net 
                    A filter is made up of beds of fine sand, fine gravel and coarse gravel Sand Bed Filter Types  There are a number of different types of rapid sand filters depending upon bed depth (e.g., shallow, conventional and deep bed). Three types of sand filters are most common:   slow sand filtration uses a deep layer of sand and a slow flow rate to achieve high removal efficiency, while rapid sand.  a large particle bed supports the filter. Sand Bed Filter Types.