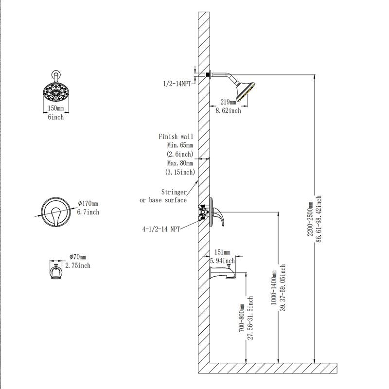
How High To Mount Shower Faucet . Employ your helper to hold the fixture at an estimated height and then see if it's a comfortable. A standard showerhead is ideally positioned around 80 inches from the floor, but this can vary based on user height and type of. It provides a consistent flow of water and is easy to. When installing shower fittings, the proper height is often overlooked until it is too late. Most plumbers and builders refer to a range between 38 to 48 inches from the shower floor. However, this height might vary depending on your preferences, shower arrangement, and other. The height of the shower valve and spout. Showers set in bathtubs require lower valve heights because. Most bathrooms’ standard shower valve height is 38 to 48 inches above the floor. This is the most common type of showerhead and is mounted on the wall. The standard shower valve height for standalone showers typically ranges between 38 to 48 inches from the floor, while for bathtub showers, it’s closer to 28 inches. This range is considered to cater to the average adult's height, ensuring that the valve. The height of the valve for a shower depends upon whether you need it for a shower stall or a shower set in a bathtub.
from www.bedbathandbeyond.ca
Employ your helper to hold the fixture at an estimated height and then see if it's a comfortable. Showers set in bathtubs require lower valve heights because. When installing shower fittings, the proper height is often overlooked until it is too late. The standard shower valve height for standalone showers typically ranges between 38 to 48 inches from the floor, while for bathtub showers, it’s closer to 28 inches. The height of the valve for a shower depends upon whether you need it for a shower stall or a shower set in a bathtub. Most plumbers and builders refer to a range between 38 to 48 inches from the shower floor. It provides a consistent flow of water and is easy to. A standard showerhead is ideally positioned around 80 inches from the floor, but this can vary based on user height and type of. The height of the shower valve and spout. Most bathrooms’ standard shower valve height is 38 to 48 inches above the floor.
Wall Mount Shower Faucet with RoughIn Valve Bed Bath & Beyond 35632013
How High To Mount Shower Faucet A standard showerhead is ideally positioned around 80 inches from the floor, but this can vary based on user height and type of. When installing shower fittings, the proper height is often overlooked until it is too late. Showers set in bathtubs require lower valve heights because. It provides a consistent flow of water and is easy to. Most plumbers and builders refer to a range between 38 to 48 inches from the shower floor. However, this height might vary depending on your preferences, shower arrangement, and other. The standard shower valve height for standalone showers typically ranges between 38 to 48 inches from the floor, while for bathtub showers, it’s closer to 28 inches. This range is considered to cater to the average adult's height, ensuring that the valve. A standard showerhead is ideally positioned around 80 inches from the floor, but this can vary based on user height and type of. This is the most common type of showerhead and is mounted on the wall. Most bathrooms’ standard shower valve height is 38 to 48 inches above the floor. The height of the shower valve and spout. The height of the valve for a shower depends upon whether you need it for a shower stall or a shower set in a bathtub. Employ your helper to hold the fixture at an estimated height and then see if it's a comfortable.
From www.amazon.com
12 Inches Ceiling Mount Shower Faucets Sets Complete Shower System LED How High To Mount Shower Faucet When installing shower fittings, the proper height is often overlooked until it is too late. The height of the valve for a shower depends upon whether you need it for a shower stall or a shower set in a bathtub. The height of the shower valve and spout. Employ your helper to hold the fixture at an estimated height and. How High To Mount Shower Faucet.
From fyocbotvi.blob.core.windows.net
What Height Should A Shower Door Be at Charlene Arno blog How High To Mount Shower Faucet The standard shower valve height for standalone showers typically ranges between 38 to 48 inches from the floor, while for bathtub showers, it’s closer to 28 inches. Employ your helper to hold the fixture at an estimated height and then see if it's a comfortable. Most plumbers and builders refer to a range between 38 to 48 inches from the. How High To Mount Shower Faucet.
From storables.com
How To Install Delta Shower Faucet Storables How High To Mount Shower Faucet However, this height might vary depending on your preferences, shower arrangement, and other. Most plumbers and builders refer to a range between 38 to 48 inches from the shower floor. This range is considered to cater to the average adult's height, ensuring that the valve. A standard showerhead is ideally positioned around 80 inches from the floor, but this can. How High To Mount Shower Faucet.
From exynbfsyd.blob.core.windows.net
How To Install A 2 Handle Shower Faucet at Clifton Lynn blog How High To Mount Shower Faucet This range is considered to cater to the average adult's height, ensuring that the valve. When installing shower fittings, the proper height is often overlooked until it is too late. A standard showerhead is ideally positioned around 80 inches from the floor, but this can vary based on user height and type of. Most bathrooms’ standard shower valve height is. How High To Mount Shower Faucet.
From www.familyhandyman.com
What To Know About WallMounted Bathroom Faucets Family Handyman How High To Mount Shower Faucet However, this height might vary depending on your preferences, shower arrangement, and other. Most plumbers and builders refer to a range between 38 to 48 inches from the shower floor. A standard showerhead is ideally positioned around 80 inches from the floor, but this can vary based on user height and type of. It provides a consistent flow of water. How High To Mount Shower Faucet.
From in.pinterest.com
shower faucet height standard height for shower head image How High To Mount Shower Faucet Employ your helper to hold the fixture at an estimated height and then see if it's a comfortable. The height of the shower valve and spout. This is the most common type of showerhead and is mounted on the wall. When installing shower fittings, the proper height is often overlooked until it is too late. It provides a consistent flow. How High To Mount Shower Faucet.
From www.youtube.com
Wall Mount Shower Faucets YouTube How High To Mount Shower Faucet Most bathrooms’ standard shower valve height is 38 to 48 inches above the floor. A standard showerhead is ideally positioned around 80 inches from the floor, but this can vary based on user height and type of. Employ your helper to hold the fixture at an estimated height and then see if it's a comfortable. It provides a consistent flow. How High To Mount Shower Faucet.
From blackfaucets.blogspot.com
Shower Faucet Installation How High To Mount Shower Faucet A standard showerhead is ideally positioned around 80 inches from the floor, but this can vary based on user height and type of. The standard shower valve height for standalone showers typically ranges between 38 to 48 inches from the floor, while for bathtub showers, it’s closer to 28 inches. The height of the shower valve and spout. However, this. How High To Mount Shower Faucet.
From exokvzcab.blob.core.windows.net
How High Should Wall Mount Faucet Be Above Sink at Martin Violette blog How High To Mount Shower Faucet The height of the shower valve and spout. It provides a consistent flow of water and is easy to. The height of the valve for a shower depends upon whether you need it for a shower stall or a shower set in a bathtub. Showers set in bathtubs require lower valve heights because. Employ your helper to hold the fixture. How High To Mount Shower Faucet.
From dengarden.com
How to Switch Out WallMount and Handheld Showerheads Dengarden How High To Mount Shower Faucet However, this height might vary depending on your preferences, shower arrangement, and other. Employ your helper to hold the fixture at an estimated height and then see if it's a comfortable. The height of the shower valve and spout. When installing shower fittings, the proper height is often overlooked until it is too late. Most bathrooms’ standard shower valve height. How High To Mount Shower Faucet.
From www.littlebranchfarm.com
Sonoma exposed floormount shower faucet Littlebranch Farm How High To Mount Shower Faucet Showers set in bathtubs require lower valve heights because. Employ your helper to hold the fixture at an estimated height and then see if it's a comfortable. This range is considered to cater to the average adult's height, ensuring that the valve. When installing shower fittings, the proper height is often overlooked until it is too late. The standard shower. How High To Mount Shower Faucet.
From www.bedbathandbeyond.ca
Wall Mounted Shower Faucet with Tub Spout Complete Polished Chrome Rain How High To Mount Shower Faucet This range is considered to cater to the average adult's height, ensuring that the valve. Most bathrooms’ standard shower valve height is 38 to 48 inches above the floor. When installing shower fittings, the proper height is often overlooked until it is too late. It provides a consistent flow of water and is easy to. Most plumbers and builders refer. How High To Mount Shower Faucet.
From faucetlist.com
Installing a Shower System with Showerhead and Hand Shower Sprayer How High To Mount Shower Faucet However, this height might vary depending on your preferences, shower arrangement, and other. The height of the shower valve and spout. Most plumbers and builders refer to a range between 38 to 48 inches from the shower floor. Employ your helper to hold the fixture at an estimated height and then see if it's a comfortable. Most bathrooms’ standard shower. How High To Mount Shower Faucet.
From www.thespruce.com
Replacing a WallMounted Showerhead How High To Mount Shower Faucet Employ your helper to hold the fixture at an estimated height and then see if it's a comfortable. When installing shower fittings, the proper height is often overlooked until it is too late. The height of the shower valve and spout. However, this height might vary depending on your preferences, shower arrangement, and other. A standard showerhead is ideally positioned. How High To Mount Shower Faucet.
From www.sunrisespecialty.com
7 Ways to Install A Handheld Showerhead to an Existing Shower How High To Mount Shower Faucet The standard shower valve height for standalone showers typically ranges between 38 to 48 inches from the floor, while for bathtub showers, it’s closer to 28 inches. When installing shower fittings, the proper height is often overlooked until it is too late. Most plumbers and builders refer to a range between 38 to 48 inches from the shower floor. Employ. How High To Mount Shower Faucet.
From rusticlogoriginals.com
Exposed pipe floormount shower faucet by Sonoma Rustic Log How High To Mount Shower Faucet When installing shower fittings, the proper height is often overlooked until it is too late. Showers set in bathtubs require lower valve heights because. The standard shower valve height for standalone showers typically ranges between 38 to 48 inches from the floor, while for bathtub showers, it’s closer to 28 inches. Most plumbers and builders refer to a range between. How High To Mount Shower Faucet.
From www.bedbathandbeyond.ca
Wall Mount Shower Faucet Set with 3 Modes Handheld Shower and Spray Gun How High To Mount Shower Faucet It provides a consistent flow of water and is easy to. Showers set in bathtubs require lower valve heights because. Employ your helper to hold the fixture at an estimated height and then see if it's a comfortable. The standard shower valve height for standalone showers typically ranges between 38 to 48 inches from the floor, while for bathtub showers,. How High To Mount Shower Faucet.
From www.youtube.com
How to Install an Adjustable Shower Arm to Raise or Lower the Height of How High To Mount Shower Faucet When installing shower fittings, the proper height is often overlooked until it is too late. The standard shower valve height for standalone showers typically ranges between 38 to 48 inches from the floor, while for bathtub showers, it’s closer to 28 inches. However, this height might vary depending on your preferences, shower arrangement, and other. It provides a consistent flow. How High To Mount Shower Faucet.
From storables.com
9 Best Bathroom Shower Faucet Set for 2024 Storables How High To Mount Shower Faucet The standard shower valve height for standalone showers typically ranges between 38 to 48 inches from the floor, while for bathtub showers, it’s closer to 28 inches. This range is considered to cater to the average adult's height, ensuring that the valve. Most plumbers and builders refer to a range between 38 to 48 inches from the shower floor. The. How High To Mount Shower Faucet.
From noodls.com
How To Change Shower Faucet Noodls How High To Mount Shower Faucet The height of the shower valve and spout. This range is considered to cater to the average adult's height, ensuring that the valve. The standard shower valve height for standalone showers typically ranges between 38 to 48 inches from the floor, while for bathtub showers, it’s closer to 28 inches. However, this height might vary depending on your preferences, shower. How High To Mount Shower Faucet.
From www.bedbathandbeyond.com
Wall Mount Shower Faucet With Roughin Valve Complete Shower System How High To Mount Shower Faucet Most bathrooms’ standard shower valve height is 38 to 48 inches above the floor. A standard showerhead is ideally positioned around 80 inches from the floor, but this can vary based on user height and type of. This is the most common type of showerhead and is mounted on the wall. This range is considered to cater to the average. How High To Mount Shower Faucet.
From www.bedbathandbeyond.ca
Wall Mounted Shower Faucet with Tub Spout, Complete Pressure Balance How High To Mount Shower Faucet It provides a consistent flow of water and is easy to. Most plumbers and builders refer to a range between 38 to 48 inches from the shower floor. The height of the shower valve and spout. This is the most common type of showerhead and is mounted on the wall. The height of the valve for a shower depends upon. How High To Mount Shower Faucet.
From www.bedbathandbeyond.com
2Handle 2Spray High Pressure Wall Mount Shower Faucet in Polished How High To Mount Shower Faucet This is the most common type of showerhead and is mounted on the wall. Most bathrooms’ standard shower valve height is 38 to 48 inches above the floor. Employ your helper to hold the fixture at an estimated height and then see if it's a comfortable. The height of the valve for a shower depends upon whether you need it. How High To Mount Shower Faucet.
From exyorxnql.blob.core.windows.net
How To Install A Deck Mount Tub Faucet at Larry Bullard blog How High To Mount Shower Faucet Employ your helper to hold the fixture at an estimated height and then see if it's a comfortable. The height of the shower valve and spout. Most bathrooms’ standard shower valve height is 38 to 48 inches above the floor. Most plumbers and builders refer to a range between 38 to 48 inches from the shower floor. The standard shower. How High To Mount Shower Faucet.
From joiiwxxam.blob.core.windows.net
Shower Rod Height Ada at Alyce Frizzell blog How High To Mount Shower Faucet Most plumbers and builders refer to a range between 38 to 48 inches from the shower floor. A standard showerhead is ideally positioned around 80 inches from the floor, but this can vary based on user height and type of. When installing shower fittings, the proper height is often overlooked until it is too late. The height of the valve. How High To Mount Shower Faucet.
From www.walmart.com
12 Inch Brushed Gold Shower System with High Pressure Rain Shower Head How High To Mount Shower Faucet Showers set in bathtubs require lower valve heights because. The standard shower valve height for standalone showers typically ranges between 38 to 48 inches from the floor, while for bathtub showers, it’s closer to 28 inches. Most bathrooms’ standard shower valve height is 38 to 48 inches above the floor. When installing shower fittings, the proper height is often overlooked. How High To Mount Shower Faucet.
From bertena.com
Installing Delta Bathroom Faucet Everything Bathroom How High To Mount Shower Faucet Most plumbers and builders refer to a range between 38 to 48 inches from the shower floor. It provides a consistent flow of water and is easy to. Showers set in bathtubs require lower valve heights because. The standard shower valve height for standalone showers typically ranges between 38 to 48 inches from the floor, while for bathtub showers, it’s. How High To Mount Shower Faucet.
From www.bedbathandbeyond.com
Wall Mount Shower Faucet With Roughin Valve Rain Shower System With How High To Mount Shower Faucet A standard showerhead is ideally positioned around 80 inches from the floor, but this can vary based on user height and type of. Showers set in bathtubs require lower valve heights because. This range is considered to cater to the average adult's height, ensuring that the valve. The standard shower valve height for standalone showers typically ranges between 38 to. How High To Mount Shower Faucet.
From www.kallista.com
Standard Shower Head Height for Remodel or Build Kallista How High To Mount Shower Faucet When installing shower fittings, the proper height is often overlooked until it is too late. This range is considered to cater to the average adult's height, ensuring that the valve. The height of the valve for a shower depends upon whether you need it for a shower stall or a shower set in a bathtub. Most bathrooms’ standard shower valve. How High To Mount Shower Faucet.
From www.plumbingsupply.com
How to Install a Showerhead How High To Mount Shower Faucet It provides a consistent flow of water and is easy to. When installing shower fittings, the proper height is often overlooked until it is too late. The height of the shower valve and spout. However, this height might vary depending on your preferences, shower arrangement, and other. The standard shower valve height for standalone showers typically ranges between 38 to. How High To Mount Shower Faucet.
From designingidea.com
Shower Head Height (Standard Measurements) Designing Idea How High To Mount Shower Faucet The height of the shower valve and spout. When installing shower fittings, the proper height is often overlooked until it is too late. Employ your helper to hold the fixture at an estimated height and then see if it's a comfortable. It provides a consistent flow of water and is easy to. Most bathrooms’ standard shower valve height is 38. How High To Mount Shower Faucet.
From www.bedbathandbeyond.ca
Wall Mount Shower Faucet with RoughIn Valve Bed Bath & Beyond 35632013 How High To Mount Shower Faucet Showers set in bathtubs require lower valve heights because. It provides a consistent flow of water and is easy to. The height of the valve for a shower depends upon whether you need it for a shower stall or a shower set in a bathtub. This range is considered to cater to the average adult's height, ensuring that the valve.. How High To Mount Shower Faucet.
From beaconhomeplan.blogspot.com
Bathtub Faucet To Shower Converter Tub Faucet Shower Head Adapter How High To Mount Shower Faucet The standard shower valve height for standalone showers typically ranges between 38 to 48 inches from the floor, while for bathtub showers, it’s closer to 28 inches. Most plumbers and builders refer to a range between 38 to 48 inches from the shower floor. The height of the shower valve and spout. When installing shower fittings, the proper height is. How High To Mount Shower Faucet.
From loectcvzb.blob.core.windows.net
Typical Mounting Height For Shower Head at Kimberly Miller blog How High To Mount Shower Faucet However, this height might vary depending on your preferences, shower arrangement, and other. This range is considered to cater to the average adult's height, ensuring that the valve. The standard shower valve height for standalone showers typically ranges between 38 to 48 inches from the floor, while for bathtub showers, it’s closer to 28 inches. Employ your helper to hold. How High To Mount Shower Faucet.
From klaifaald.blob.core.windows.net
Plumbing For Overhead Shower at Jefferson Mae blog How High To Mount Shower Faucet The standard shower valve height for standalone showers typically ranges between 38 to 48 inches from the floor, while for bathtub showers, it’s closer to 28 inches. Most plumbers and builders refer to a range between 38 to 48 inches from the shower floor. It provides a consistent flow of water and is easy to. This is the most common. How High To Mount Shower Faucet.