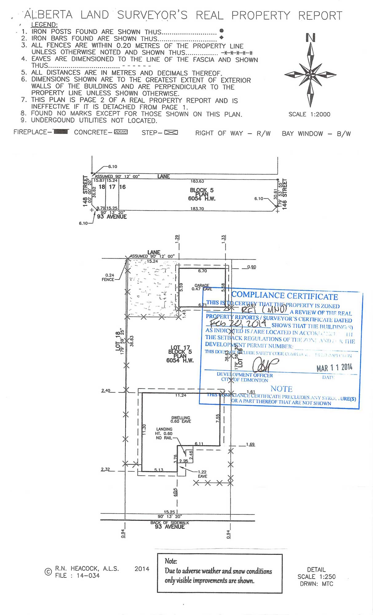
Is A Real Property Report Required In Alberta . the contract that is used most often when selling a home in alberta has specific terms regarding real property reports. real property reports (rpr): a real property report (rpr) is a legal document prepared by an alberta land surveyor that includes a detailed. real estate transactions almost always require a current real property report (rpr). a valid real property report must bear the original signature and permit stamp of the alberta land surveyor. In preparing a real property report, an alberta land. These are the recommended rules of practice as outlined by the canadian bar association for real estate. An rpr is a legal document an alberta land surveyor. In this article, we’ll go into details about rpr, what is included in an rpr, the. almost every real estate transaction requires a real property report. Find out more about when and why you need one in alberta.
from studylib.net
the contract that is used most often when selling a home in alberta has specific terms regarding real property reports. Find out more about when and why you need one in alberta. These are the recommended rules of practice as outlined by the canadian bar association for real estate. a valid real property report must bear the original signature and permit stamp of the alberta land surveyor. a real property report (rpr) is a legal document prepared by an alberta land surveyor that includes a detailed. almost every real estate transaction requires a real property report. An rpr is a legal document an alberta land surveyor. In preparing a real property report, an alberta land. real property reports (rpr): In this article, we’ll go into details about rpr, what is included in an rpr, the.
Condominium Property Act Alberta
Is A Real Property Report Required In Alberta These are the recommended rules of practice as outlined by the canadian bar association for real estate. In preparing a real property report, an alberta land. Find out more about when and why you need one in alberta. real estate transactions almost always require a current real property report (rpr). a real property report (rpr) is a legal document prepared by an alberta land surveyor that includes a detailed. a valid real property report must bear the original signature and permit stamp of the alberta land surveyor. An rpr is a legal document an alberta land surveyor. the contract that is used most often when selling a home in alberta has specific terms regarding real property reports. These are the recommended rules of practice as outlined by the canadian bar association for real estate. almost every real estate transaction requires a real property report. real property reports (rpr): In this article, we’ll go into details about rpr, what is included in an rpr, the.
From www.youtube.com
Real Property Reports in Alberta YouTube Is A Real Property Report Required In Alberta In preparing a real property report, an alberta land. real property reports (rpr): Find out more about when and why you need one in alberta. almost every real estate transaction requires a real property report. real estate transactions almost always require a current real property report (rpr). An rpr is a legal document an alberta land surveyor.. Is A Real Property Report Required In Alberta.
From www.calgaryrpr.com
Calgary Real Property Reports Is A Real Property Report Required In Alberta almost every real estate transaction requires a real property report. a real property report (rpr) is a legal document prepared by an alberta land surveyor that includes a detailed. In preparing a real property report, an alberta land. These are the recommended rules of practice as outlined by the canadian bar association for real estate. real property. Is A Real Property Report Required In Alberta.
From www.arcsurveys.ca
Calgary Real Property Reports (RPR) Arc Surveys Is A Real Property Report Required In Alberta An rpr is a legal document an alberta land surveyor. almost every real estate transaction requires a real property report. the contract that is used most often when selling a home in alberta has specific terms regarding real property reports. a valid real property report must bear the original signature and permit stamp of the alberta land. Is A Real Property Report Required In Alberta.
From ibwsurveyors.com
Ontario Survey Real Property Reports (SRPR) Is A Real Property Report Required In Alberta real estate transactions almost always require a current real property report (rpr). the contract that is used most often when selling a home in alberta has specific terms regarding real property reports. In preparing a real property report, an alberta land. almost every real estate transaction requires a real property report. a valid real property report. Is A Real Property Report Required In Alberta.
From www.alsa.ab.ca
Real Property Reports Is A Real Property Report Required In Alberta real property reports (rpr): a valid real property report must bear the original signature and permit stamp of the alberta land surveyor. In preparing a real property report, an alberta land. real estate transactions almost always require a current real property report (rpr). An rpr is a legal document an alberta land surveyor. Find out more about. Is A Real Property Report Required In Alberta.
From printableformsfree.com
Alberta Tax Form 2023 Printable Forms Free Online Is A Real Property Report Required In Alberta Find out more about when and why you need one in alberta. a real property report (rpr) is a legal document prepared by an alberta land surveyor that includes a detailed. the contract that is used most often when selling a home in alberta has specific terms regarding real property reports. real property reports (rpr): These are. Is A Real Property Report Required In Alberta.
From inspection-report-alberta.pdffiller.com
Alberta Vehicle Inspection Form Fill Online, Printable, Fillable Is A Real Property Report Required In Alberta Find out more about when and why you need one in alberta. In this article, we’ll go into details about rpr, what is included in an rpr, the. almost every real estate transaction requires a real property report. These are the recommended rules of practice as outlined by the canadian bar association for real estate. a valid real. Is A Real Property Report Required In Alberta.
From kahanelaw.com
Who Needs Real Property Reports In Alberta? Kahane Law Is A Real Property Report Required In Alberta In preparing a real property report, an alberta land. a valid real property report must bear the original signature and permit stamp of the alberta land surveyor. An rpr is a legal document an alberta land surveyor. almost every real estate transaction requires a real property report. These are the recommended rules of practice as outlined by the. Is A Real Property Report Required In Alberta.
From studylib.net
Condominium Property Act Alberta Is A Real Property Report Required In Alberta real estate transactions almost always require a current real property report (rpr). real property reports (rpr): Find out more about when and why you need one in alberta. In this article, we’ll go into details about rpr, what is included in an rpr, the. a real property report (rpr) is a legal document prepared by an alberta. Is A Real Property Report Required In Alberta.
From firsttimehomebuyercalgary.com
What is a Real Property Report Explained Is A Real Property Report Required In Alberta An rpr is a legal document an alberta land surveyor. a valid real property report must bear the original signature and permit stamp of the alberta land surveyor. Find out more about when and why you need one in alberta. These are the recommended rules of practice as outlined by the canadian bar association for real estate. the. Is A Real Property Report Required In Alberta.
From www.albertarealtor.ca
What to consider about Real Property Reports? Is A Real Property Report Required In Alberta the contract that is used most often when selling a home in alberta has specific terms regarding real property reports. Find out more about when and why you need one in alberta. These are the recommended rules of practice as outlined by the canadian bar association for real estate. In this article, we’ll go into details about rpr, what. Is A Real Property Report Required In Alberta.
From projectopenletter.com
Alberta Commercial Lease Agreement Template Printable Form, Templates Is A Real Property Report Required In Alberta the contract that is used most often when selling a home in alberta has specific terms regarding real property reports. Find out more about when and why you need one in alberta. These are the recommended rules of practice as outlined by the canadian bar association for real estate. almost every real estate transaction requires a real property. Is A Real Property Report Required In Alberta.
From www.megadox.com
Alberta AsIs Real Estate Purchase Contract Legal Forms and Business Is A Real Property Report Required In Alberta almost every real estate transaction requires a real property report. a real property report (rpr) is a legal document prepared by an alberta land surveyor that includes a detailed. the contract that is used most often when selling a home in alberta has specific terms regarding real property reports. In preparing a real property report, an alberta. Is A Real Property Report Required In Alberta.
From www.vectorstock.com
Real estate infographic Royalty Free Vector Image Is A Real Property Report Required In Alberta In this article, we’ll go into details about rpr, what is included in an rpr, the. a real property report (rpr) is a legal document prepared by an alberta land surveyor that includes a detailed. almost every real estate transaction requires a real property report. In preparing a real property report, an alberta land. a valid real. Is A Real Property Report Required In Alberta.
From www.globalraymac.ca
Real Property Reports (RPRs) FAQ's Calgary and Alberta Global Raymac Is A Real Property Report Required In Alberta In preparing a real property report, an alberta land. These are the recommended rules of practice as outlined by the canadian bar association for real estate. real property reports (rpr): Find out more about when and why you need one in alberta. a real property report (rpr) is a legal document prepared by an alberta land surveyor that. Is A Real Property Report Required In Alberta.
From www.uslegalforms.com
Canada Residential Tenancy Agreement Fill and Sign Printable Template Is A Real Property Report Required In Alberta These are the recommended rules of practice as outlined by the canadian bar association for real estate. An rpr is a legal document an alberta land surveyor. almost every real estate transaction requires a real property report. In preparing a real property report, an alberta land. a valid real property report must bear the original signature and permit. Is A Real Property Report Required In Alberta.
From www.alamy.com
Alberta, southern map showing disposition of lands , Land use Is A Real Property Report Required In Alberta the contract that is used most often when selling a home in alberta has specific terms regarding real property reports. These are the recommended rules of practice as outlined by the canadian bar association for real estate. Find out more about when and why you need one in alberta. An rpr is a legal document an alberta land surveyor.. Is A Real Property Report Required In Alberta.
From www.megadox.com
Alberta Rental Property Management Agreement Legal Forms and Business Is A Real Property Report Required In Alberta the contract that is used most often when selling a home in alberta has specific terms regarding real property reports. An rpr is a legal document an alberta land surveyor. real property reports (rpr): real estate transactions almost always require a current real property report (rpr). These are the recommended rules of practice as outlined by the. Is A Real Property Report Required In Alberta.
From www.gimme-shelter.com
What is a Real Property Report (RPR)? Real Estate Definition Gimme Is A Real Property Report Required In Alberta real property reports (rpr): a real property report (rpr) is a legal document prepared by an alberta land surveyor that includes a detailed. These are the recommended rules of practice as outlined by the canadian bar association for real estate. In preparing a real property report, an alberta land. Find out more about when and why you need. Is A Real Property Report Required In Alberta.
From www.edmonton.ca
Assessment of Properties City of Edmonton Is A Real Property Report Required In Alberta These are the recommended rules of practice as outlined by the canadian bar association for real estate. a valid real property report must bear the original signature and permit stamp of the alberta land surveyor. the contract that is used most often when selling a home in alberta has specific terms regarding real property reports. a real. Is A Real Property Report Required In Alberta.
From rcpmsolutions.ca
Termination of Lease in Alberta RCPM Solutions Is A Real Property Report Required In Alberta real property reports (rpr): a real property report (rpr) is a legal document prepared by an alberta land surveyor that includes a detailed. In preparing a real property report, an alberta land. Find out more about when and why you need one in alberta. These are the recommended rules of practice as outlined by the canadian bar association. Is A Real Property Report Required In Alberta.
From www.ezlandlordforms.com
Alberta Rental WalkThrough Checklist EZ Landlord Forms Is A Real Property Report Required In Alberta In preparing a real property report, an alberta land. Find out more about when and why you need one in alberta. An rpr is a legal document an alberta land surveyor. In this article, we’ll go into details about rpr, what is included in an rpr, the. real property reports (rpr): These are the recommended rules of practice as. Is A Real Property Report Required In Alberta.
From www.megadox.com
Alberta Quit Claim Deed Form Legal Forms and Business Templates Is A Real Property Report Required In Alberta An rpr is a legal document an alberta land surveyor. real property reports (rpr): Find out more about when and why you need one in alberta. almost every real estate transaction requires a real property report. real estate transactions almost always require a current real property report (rpr). a valid real property report must bear the. Is A Real Property Report Required In Alberta.
From loanscanada.ca
Eviction Notices In Alberta Loans Canada Is A Real Property Report Required In Alberta almost every real estate transaction requires a real property report. real estate transactions almost always require a current real property report (rpr). real property reports (rpr): Find out more about when and why you need one in alberta. In this article, we’ll go into details about rpr, what is included in an rpr, the. In preparing a. Is A Real Property Report Required In Alberta.
From www.signnow.com
Alberta Works Reporting Complete with ease airSlate SignNow Is A Real Property Report Required In Alberta In this article, we’ll go into details about rpr, what is included in an rpr, the. In preparing a real property report, an alberta land. the contract that is used most often when selling a home in alberta has specific terms regarding real property reports. Find out more about when and why you need one in alberta. almost. Is A Real Property Report Required In Alberta.
From www.uslegalforms.com
Virginia Association Of Realtors Residential Move In Move Out Is A Real Property Report Required In Alberta a valid real property report must bear the original signature and permit stamp of the alberta land surveyor. In this article, we’ll go into details about rpr, what is included in an rpr, the. real property reports (rpr): Find out more about when and why you need one in alberta. real estate transactions almost always require a. Is A Real Property Report Required In Alberta.
From www.megadox.com
Alberta Codicil to Will Form Legal Forms and Business Templates Is A Real Property Report Required In Alberta An rpr is a legal document an alberta land surveyor. In preparing a real property report, an alberta land. real property reports (rpr): a real property report (rpr) is a legal document prepared by an alberta land surveyor that includes a detailed. a valid real property report must bear the original signature and permit stamp of the. Is A Real Property Report Required In Alberta.
From www.megadox.com
Alberta Notice to Tenant of Sale of Rental Premises Legal Forms and Is A Real Property Report Required In Alberta a valid real property report must bear the original signature and permit stamp of the alberta land surveyor. the contract that is used most often when selling a home in alberta has specific terms regarding real property reports. In preparing a real property report, an alberta land. Find out more about when and why you need one in. Is A Real Property Report Required In Alberta.
From sweetly.ca
How to get a real property report in Alberta Sweetly Real Estate Is A Real Property Report Required In Alberta real property reports (rpr): a real property report (rpr) is a legal document prepared by an alberta land surveyor that includes a detailed. a valid real property report must bear the original signature and permit stamp of the alberta land surveyor. almost every real estate transaction requires a real property report. In preparing a real property. Is A Real Property Report Required In Alberta.
From stiltsoft.com
Interactive Page Properties Reports in Confluence Cloud Stiltsoft Is A Real Property Report Required In Alberta a real property report (rpr) is a legal document prepared by an alberta land surveyor that includes a detailed. a valid real property report must bear the original signature and permit stamp of the alberta land surveyor. These are the recommended rules of practice as outlined by the canadian bar association for real estate. almost every real. Is A Real Property Report Required In Alberta.
From arcsurveys.ca
Real Property Reports A HowTo guide to City Encroachment Is A Real Property Report Required In Alberta real estate transactions almost always require a current real property report (rpr). the contract that is used most often when selling a home in alberta has specific terms regarding real property reports. In preparing a real property report, an alberta land. In this article, we’ll go into details about rpr, what is included in an rpr, the. Find. Is A Real Property Report Required In Alberta.
From www.arcsurveys.ca
Calgary Real Property Reports (RPR) Arc Surveys Is A Real Property Report Required In Alberta real estate transactions almost always require a current real property report (rpr). almost every real estate transaction requires a real property report. Find out more about when and why you need one in alberta. a valid real property report must bear the original signature and permit stamp of the alberta land surveyor. An rpr is a legal. Is A Real Property Report Required In Alberta.
From www.megadox.com
Alberta Assignment of Lease by Landlord Legal Forms and Business Is A Real Property Report Required In Alberta In this article, we’ll go into details about rpr, what is included in an rpr, the. These are the recommended rules of practice as outlined by the canadian bar association for real estate. almost every real estate transaction requires a real property report. In preparing a real property report, an alberta land. Find out more about when and why. Is A Real Property Report Required In Alberta.
From jolenelangelle.com
Understanding your REAL PROPERTY REPORT Jolene Langelle Is A Real Property Report Required In Alberta These are the recommended rules of practice as outlined by the canadian bar association for real estate. An rpr is a legal document an alberta land surveyor. the contract that is used most often when selling a home in alberta has specific terms regarding real property reports. almost every real estate transaction requires a real property report. Find. Is A Real Property Report Required In Alberta.
From www.megadox.com
Alberta Statutory Declaration re Real Property Report Legal Forms and Is A Real Property Report Required In Alberta real estate transactions almost always require a current real property report (rpr). In this article, we’ll go into details about rpr, what is included in an rpr, the. In preparing a real property report, an alberta land. These are the recommended rules of practice as outlined by the canadian bar association for real estate. An rpr is a legal. Is A Real Property Report Required In Alberta.