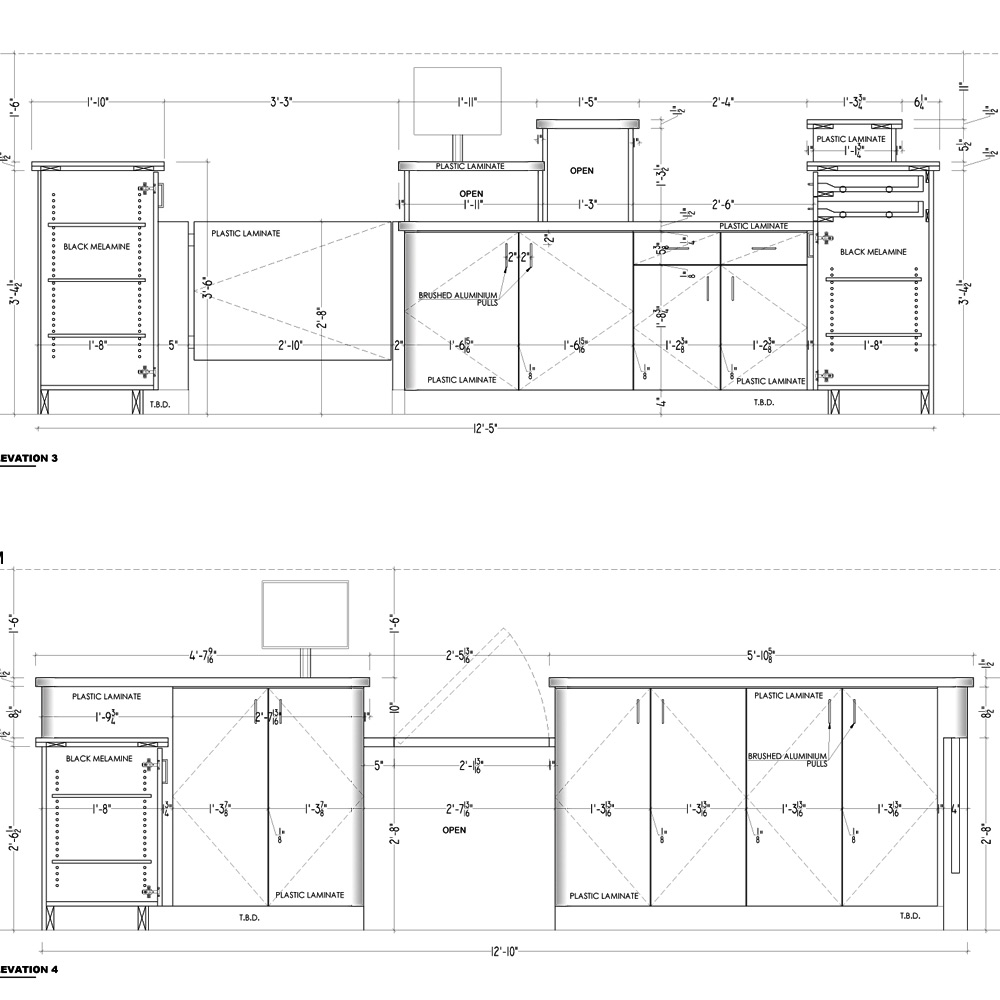
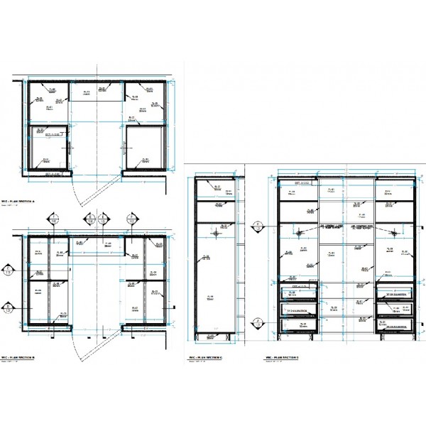
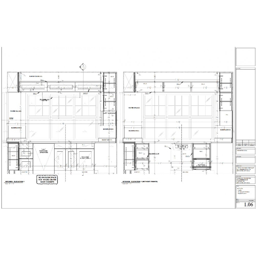
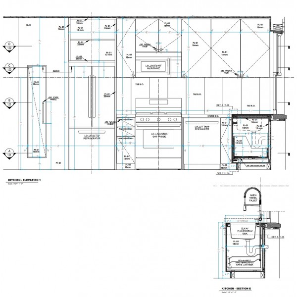
Kitchen Cabinets Shop Drawings . They provide a comprehensive view of the structure,. Using cabinet drawings in a kitchen cabinet shop. There are several things you should ensure are included in your cabinet shop drawings. If you work in a kitchen cabinet shop, dimensioned cabinet drawings are an invaluable tool that can. Cabinet shop drawings are an essential part of the cabinetmaking process. We’ll cut right to the chase. They provide detailed illustrations and measurements that guide cabinetmakers in constructing. The shop drawings provide details that guide the construction of cabinets. Key elements to include are: Show the layout of cabinets, appliances, sinks, and other fixtures in the kitchen space, including dimensions and clearances. What to include in cabinet shop drawings. Cabinet shop drawings are crucial in the cabinet manufacturing process, as they communicate the design intent and ensure.
from www.idrawpro.com
The shop drawings provide details that guide the construction of cabinets. We’ll cut right to the chase. They provide a comprehensive view of the structure,. They provide detailed illustrations and measurements that guide cabinetmakers in constructing. Cabinet shop drawings are crucial in the cabinet manufacturing process, as they communicate the design intent and ensure. There are several things you should ensure are included in your cabinet shop drawings. Cabinet shop drawings are an essential part of the cabinetmaking process. Using cabinet drawings in a kitchen cabinet shop. What to include in cabinet shop drawings. If you work in a kitchen cabinet shop, dimensioned cabinet drawings are an invaluable tool that can.
Kitchen countertop shop drawings
Kitchen Cabinets Shop Drawings Key elements to include are: If you work in a kitchen cabinet shop, dimensioned cabinet drawings are an invaluable tool that can. Show the layout of cabinets, appliances, sinks, and other fixtures in the kitchen space, including dimensions and clearances. Using cabinet drawings in a kitchen cabinet shop. They provide a comprehensive view of the structure,. We’ll cut right to the chase. Cabinet shop drawings are crucial in the cabinet manufacturing process, as they communicate the design intent and ensure. They provide detailed illustrations and measurements that guide cabinetmakers in constructing. There are several things you should ensure are included in your cabinet shop drawings. Cabinet shop drawings are an essential part of the cabinetmaking process. The shop drawings provide details that guide the construction of cabinets. Key elements to include are: What to include in cabinet shop drawings.
From www.chicoschoolofrock.com
Wood Shop Drawings PDF Plans Kitchen Cabinets Shop Drawings There are several things you should ensure are included in your cabinet shop drawings. The shop drawings provide details that guide the construction of cabinets. Show the layout of cabinets, appliances, sinks, and other fixtures in the kitchen space, including dimensions and clearances. Cabinet shop drawings are crucial in the cabinet manufacturing process, as they communicate the design intent and. Kitchen Cabinets Shop Drawings.
From www.agcaddesigns.com
Architectural Rendering Studio, Photorealistic Renderings (310) 431 Kitchen Cabinets Shop Drawings Show the layout of cabinets, appliances, sinks, and other fixtures in the kitchen space, including dimensions and clearances. They provide detailed illustrations and measurements that guide cabinetmakers in constructing. We’ll cut right to the chase. If you work in a kitchen cabinet shop, dimensioned cabinet drawings are an invaluable tool that can. Key elements to include are: The shop drawings. Kitchen Cabinets Shop Drawings.
From www.pinterest.com
55+ How to Draw Kitchen Chalkboard Ideas for Kitchen Check Kitchen Cabinets Shop Drawings They provide a comprehensive view of the structure,. Using cabinet drawings in a kitchen cabinet shop. We’ll cut right to the chase. They provide detailed illustrations and measurements that guide cabinetmakers in constructing. Cabinet shop drawings are crucial in the cabinet manufacturing process, as they communicate the design intent and ensure. Show the layout of cabinets, appliances, sinks, and other. Kitchen Cabinets Shop Drawings.
From the-bsea.blogspot.com
Kiosk Design Cad File Kitchen Cabinets Shop Drawings They provide detailed illustrations and measurements that guide cabinetmakers in constructing. Cabinet shop drawings are an essential part of the cabinetmaking process. What to include in cabinet shop drawings. Using cabinet drawings in a kitchen cabinet shop. There are several things you should ensure are included in your cabinet shop drawings. Cabinet shop drawings are crucial in the cabinet manufacturing. Kitchen Cabinets Shop Drawings.
From www.agcaddesigns.com
Millwork CAD Shop Drawing, Casework drawing service USA (310) 431 Kitchen Cabinets Shop Drawings Key elements to include are: Using cabinet drawings in a kitchen cabinet shop. They provide detailed illustrations and measurements that guide cabinetmakers in constructing. The shop drawings provide details that guide the construction of cabinets. We’ll cut right to the chase. They provide a comprehensive view of the structure,. Show the layout of cabinets, appliances, sinks, and other fixtures in. Kitchen Cabinets Shop Drawings.
From ipipeline.net
Kitchen Section Drawing Things In The Kitchen Kitchen Cabinets Shop Drawings Cabinet shop drawings are an essential part of the cabinetmaking process. Cabinet shop drawings are crucial in the cabinet manufacturing process, as they communicate the design intent and ensure. There are several things you should ensure are included in your cabinet shop drawings. They provide detailed illustrations and measurements that guide cabinetmakers in constructing. Using cabinet drawings in a kitchen. Kitchen Cabinets Shop Drawings.
From shirleymarshall.blogspot.com
Kitchen Shop Drawings ShirleyMarshall Kitchen Cabinets Shop Drawings Show the layout of cabinets, appliances, sinks, and other fixtures in the kitchen space, including dimensions and clearances. Using cabinet drawings in a kitchen cabinet shop. We’ll cut right to the chase. The shop drawings provide details that guide the construction of cabinets. There are several things you should ensure are included in your cabinet shop drawings. Key elements to. Kitchen Cabinets Shop Drawings.
From getdrawings.com
Kitchen Drawing at GetDrawings Free download Kitchen Cabinets Shop Drawings We’ll cut right to the chase. If you work in a kitchen cabinet shop, dimensioned cabinet drawings are an invaluable tool that can. There are several things you should ensure are included in your cabinet shop drawings. Show the layout of cabinets, appliances, sinks, and other fixtures in the kitchen space, including dimensions and clearances. Key elements to include are:. Kitchen Cabinets Shop Drawings.
From www.idrawpro.com
Kitchen Shop Drawings Kitchen Cabinets Shop Drawings Cabinet shop drawings are crucial in the cabinet manufacturing process, as they communicate the design intent and ensure. Using cabinet drawings in a kitchen cabinet shop. They provide detailed illustrations and measurements that guide cabinetmakers in constructing. Show the layout of cabinets, appliances, sinks, and other fixtures in the kitchen space, including dimensions and clearances. Key elements to include are:. Kitchen Cabinets Shop Drawings.
From www.idrawpro.com
Shop Drawings for Bar Restaurant (simplified) Kitchen Cabinets Shop Drawings Key elements to include are: There are several things you should ensure are included in your cabinet shop drawings. Using cabinet drawings in a kitchen cabinet shop. Show the layout of cabinets, appliances, sinks, and other fixtures in the kitchen space, including dimensions and clearances. The shop drawings provide details that guide the construction of cabinets. What to include in. Kitchen Cabinets Shop Drawings.
From www.idrawpro.com
Kitchen Shop Drawings Kitchen Cabinets Shop Drawings The shop drawings provide details that guide the construction of cabinets. Show the layout of cabinets, appliances, sinks, and other fixtures in the kitchen space, including dimensions and clearances. They provide a comprehensive view of the structure,. Key elements to include are: Using cabinet drawings in a kitchen cabinet shop. If you work in a kitchen cabinet shop, dimensioned cabinet. Kitchen Cabinets Shop Drawings.
From getdrawings.com
Kitchen Drawing at GetDrawings Free download Kitchen Cabinets Shop Drawings They provide detailed illustrations and measurements that guide cabinetmakers in constructing. Key elements to include are: Cabinet shop drawings are an essential part of the cabinetmaking process. There are several things you should ensure are included in your cabinet shop drawings. The shop drawings provide details that guide the construction of cabinets. Show the layout of cabinets, appliances, sinks, and. Kitchen Cabinets Shop Drawings.
From becelebpicsonlineuxr.blogspot.com
Kitchen Section Detail Drawing Kitchen Cabinets Shop Drawings Using cabinet drawings in a kitchen cabinet shop. They provide a comprehensive view of the structure,. Cabinet shop drawings are an essential part of the cabinetmaking process. Cabinet shop drawings are crucial in the cabinet manufacturing process, as they communicate the design intent and ensure. Key elements to include are: They provide detailed illustrations and measurements that guide cabinetmakers in. Kitchen Cabinets Shop Drawings.
From readwatchdo.com
& Millwork Kitchen Cabinets Shop Drawings Cabinet shop drawings are an essential part of the cabinetmaking process. There are several things you should ensure are included in your cabinet shop drawings. Show the layout of cabinets, appliances, sinks, and other fixtures in the kitchen space, including dimensions and clearances. If you work in a kitchen cabinet shop, dimensioned cabinet drawings are an invaluable tool that can.. Kitchen Cabinets Shop Drawings.
From www.agcaddesigns.com
Blog Archives (310) 4317860 Kitchen Cabinets Shop Drawings What to include in cabinet shop drawings. Cabinet shop drawings are crucial in the cabinet manufacturing process, as they communicate the design intent and ensure. They provide detailed illustrations and measurements that guide cabinetmakers in constructing. Using cabinet drawings in a kitchen cabinet shop. The shop drawings provide details that guide the construction of cabinets. Cabinet shop drawings are an. Kitchen Cabinets Shop Drawings.
From paintingvalley.com
paintings search result at Kitchen Cabinets Shop Drawings If you work in a kitchen cabinet shop, dimensioned cabinet drawings are an invaluable tool that can. Cabinet shop drawings are crucial in the cabinet manufacturing process, as they communicate the design intent and ensure. We’ll cut right to the chase. Show the layout of cabinets, appliances, sinks, and other fixtures in the kitchen space, including dimensions and clearances. Key. Kitchen Cabinets Shop Drawings.
From readwatchdo.com
& Millwork Kitchen Cabinets Shop Drawings Using cabinet drawings in a kitchen cabinet shop. If you work in a kitchen cabinet shop, dimensioned cabinet drawings are an invaluable tool that can. They provide detailed illustrations and measurements that guide cabinetmakers in constructing. Key elements to include are: There are several things you should ensure are included in your cabinet shop drawings. What to include in cabinet. Kitchen Cabinets Shop Drawings.
From www.pinterest.co.uk
elevation2.JPG (1564×1012) Kitchen layout, Drafting software Kitchen Cabinets Shop Drawings Show the layout of cabinets, appliances, sinks, and other fixtures in the kitchen space, including dimensions and clearances. There are several things you should ensure are included in your cabinet shop drawings. Key elements to include are: What to include in cabinet shop drawings. Using cabinet drawings in a kitchen cabinet shop. Cabinet shop drawings are an essential part of. Kitchen Cabinets Shop Drawings.
From www.lifeofanarchitect.com
Who Doesn't Love a Nice Bar? Life of an Architect Kitchen Cabinets Shop Drawings They provide a comprehensive view of the structure,. Show the layout of cabinets, appliances, sinks, and other fixtures in the kitchen space, including dimensions and clearances. Key elements to include are: If you work in a kitchen cabinet shop, dimensioned cabinet drawings are an invaluable tool that can. Cabinet shop drawings are crucial in the cabinet manufacturing process, as they. Kitchen Cabinets Shop Drawings.
From www.idrawpro.com
Kitchen Shop Drawings Kitchen Cabinets Shop Drawings If you work in a kitchen cabinet shop, dimensioned cabinet drawings are an invaluable tool that can. Cabinet shop drawings are an essential part of the cabinetmaking process. The shop drawings provide details that guide the construction of cabinets. They provide detailed illustrations and measurements that guide cabinetmakers in constructing. What to include in cabinet shop drawings. Using cabinet drawings. Kitchen Cabinets Shop Drawings.
From www.pinterest.com
Sample Cad Drawings Casewood Shop Drawings Cad Kitchen Cabinets Shop Drawings Cabinet shop drawings are crucial in the cabinet manufacturing process, as they communicate the design intent and ensure. The shop drawings provide details that guide the construction of cabinets. We’ll cut right to the chase. What to include in cabinet shop drawings. There are several things you should ensure are included in your cabinet shop drawings. Show the layout of. Kitchen Cabinets Shop Drawings.
From getdrawings.com
Detail Drawing at GetDrawings Free download Kitchen Cabinets Shop Drawings If you work in a kitchen cabinet shop, dimensioned cabinet drawings are an invaluable tool that can. Using cabinet drawings in a kitchen cabinet shop. The shop drawings provide details that guide the construction of cabinets. They provide a comprehensive view of the structure,. They provide detailed illustrations and measurements that guide cabinetmakers in constructing. Key elements to include are:. Kitchen Cabinets Shop Drawings.
From atonce.com
Easy Kitchen Dimensions Drawings 2023 AtOnce Kitchen Cabinets Shop Drawings Cabinet shop drawings are crucial in the cabinet manufacturing process, as they communicate the design intent and ensure. The shop drawings provide details that guide the construction of cabinets. They provide a comprehensive view of the structure,. If you work in a kitchen cabinet shop, dimensioned cabinet drawings are an invaluable tool that can. Cabinet shop drawings are an essential. Kitchen Cabinets Shop Drawings.
From xiiaomaoloves.blogspot.com
Kitchen Cad Software Yatak Odaları panosundaki Pin Designed Kitchen Cabinets Shop Drawings The shop drawings provide details that guide the construction of cabinets. Using cabinet drawings in a kitchen cabinet shop. Show the layout of cabinets, appliances, sinks, and other fixtures in the kitchen space, including dimensions and clearances. There are several things you should ensure are included in your cabinet shop drawings. Cabinet shop drawings are crucial in the cabinet manufacturing. Kitchen Cabinets Shop Drawings.
From www.idrawpro.com
Kitchen Shop Drawings Kitchen Cabinets Shop Drawings If you work in a kitchen cabinet shop, dimensioned cabinet drawings are an invaluable tool that can. They provide detailed illustrations and measurements that guide cabinetmakers in constructing. We’ll cut right to the chase. Cabinet shop drawings are crucial in the cabinet manufacturing process, as they communicate the design intent and ensure. Show the layout of cabinets, appliances, sinks, and. Kitchen Cabinets Shop Drawings.
From www.idrawpro.com
Kitchen Shop Drawings Kitchen Cabinets Shop Drawings There are several things you should ensure are included in your cabinet shop drawings. The shop drawings provide details that guide the construction of cabinets. Key elements to include are: What to include in cabinet shop drawings. Cabinet shop drawings are an essential part of the cabinetmaking process. They provide detailed illustrations and measurements that guide cabinetmakers in constructing. Cabinet. Kitchen Cabinets Shop Drawings.
From shopdrawingservices.com
Millwork Archives Shop Drawing Services Ltd Kitchen Cabinets Shop Drawings Cabinet shop drawings are crucial in the cabinet manufacturing process, as they communicate the design intent and ensure. There are several things you should ensure are included in your cabinet shop drawings. The shop drawings provide details that guide the construction of cabinets. Using cabinet drawings in a kitchen cabinet shop. Cabinet shop drawings are an essential part of the. Kitchen Cabinets Shop Drawings.
From www.pinterest.com
sections drawing Google Search Kitchen Cabinets Shop Drawings Show the layout of cabinets, appliances, sinks, and other fixtures in the kitchen space, including dimensions and clearances. They provide detailed illustrations and measurements that guide cabinetmakers in constructing. If you work in a kitchen cabinet shop, dimensioned cabinet drawings are an invaluable tool that can. They provide a comprehensive view of the structure,. We’ll cut right to the chase.. Kitchen Cabinets Shop Drawings.
From www.idrawpro.com
Kitchen Shop Drawings Kitchen Cabinets Shop Drawings Show the layout of cabinets, appliances, sinks, and other fixtures in the kitchen space, including dimensions and clearances. Cabinet shop drawings are crucial in the cabinet manufacturing process, as they communicate the design intent and ensure. What to include in cabinet shop drawings. Key elements to include are: The shop drawings provide details that guide the construction of cabinets. They. Kitchen Cabinets Shop Drawings.
From www.lifeofanarchitect.com
Graphic Standards for Architectural Life of an Architect Kitchen Cabinets Shop Drawings Cabinet shop drawings are crucial in the cabinet manufacturing process, as they communicate the design intent and ensure. They provide detailed illustrations and measurements that guide cabinetmakers in constructing. Key elements to include are: Using cabinet drawings in a kitchen cabinet shop. We’ll cut right to the chase. What to include in cabinet shop drawings. Show the layout of cabinets,. Kitchen Cabinets Shop Drawings.
From getdrawings.com
Kitchen Drawing at GetDrawings Free download Kitchen Cabinets Shop Drawings We’ll cut right to the chase. Show the layout of cabinets, appliances, sinks, and other fixtures in the kitchen space, including dimensions and clearances. Cabinet shop drawings are an essential part of the cabinetmaking process. Key elements to include are: If you work in a kitchen cabinet shop, dimensioned cabinet drawings are an invaluable tool that can. They provide a. Kitchen Cabinets Shop Drawings.
From www.drawingskill.com
Drawing, Pencil, Sketch, Colorful, Realistic Art Images Kitchen Cabinets Shop Drawings What to include in cabinet shop drawings. Show the layout of cabinets, appliances, sinks, and other fixtures in the kitchen space, including dimensions and clearances. Using cabinet drawings in a kitchen cabinet shop. The shop drawings provide details that guide the construction of cabinets. There are several things you should ensure are included in your cabinet shop drawings. They provide. Kitchen Cabinets Shop Drawings.
From www.idrawpro.com
Kitchen countertop shop drawings Kitchen Cabinets Shop Drawings There are several things you should ensure are included in your cabinet shop drawings. If you work in a kitchen cabinet shop, dimensioned cabinet drawings are an invaluable tool that can. We’ll cut right to the chase. Using cabinet drawings in a kitchen cabinet shop. They provide a comprehensive view of the structure,. Show the layout of cabinets, appliances, sinks,. Kitchen Cabinets Shop Drawings.
From jenwoodhouse.com
We have our kitchen designs! Kitchen Cabinets Shop Drawings Cabinet shop drawings are crucial in the cabinet manufacturing process, as they communicate the design intent and ensure. They provide detailed illustrations and measurements that guide cabinetmakers in constructing. Using cabinet drawings in a kitchen cabinet shop. Show the layout of cabinets, appliances, sinks, and other fixtures in the kitchen space, including dimensions and clearances. They provide a comprehensive view. Kitchen Cabinets Shop Drawings.
From www.idrawpro.com
Kitchen Shop Drawings Kitchen Cabinets Shop Drawings They provide a comprehensive view of the structure,. Using cabinet drawings in a kitchen cabinet shop. We’ll cut right to the chase. There are several things you should ensure are included in your cabinet shop drawings. They provide detailed illustrations and measurements that guide cabinetmakers in constructing. Show the layout of cabinets, appliances, sinks, and other fixtures in the kitchen. Kitchen Cabinets Shop Drawings.