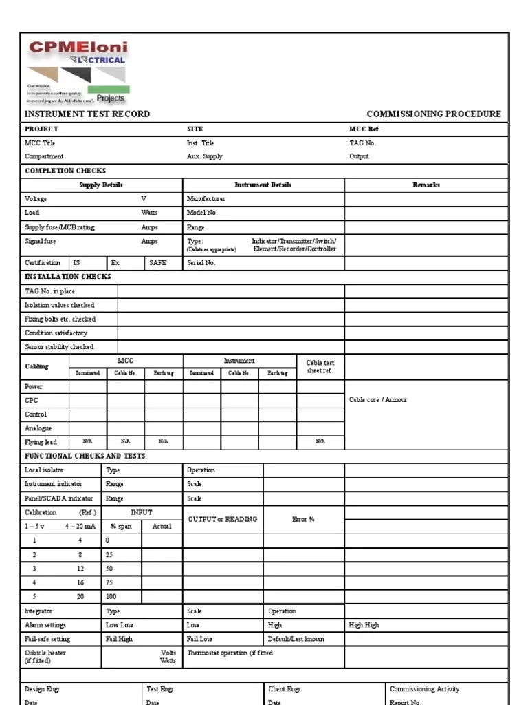
Instrument Testing Sheet . The following order of the loop folder index or. An instrumentation calibration template is a document used to record the results of a calibration procedure performed on an instrument. The following documents are the requirements prior to the conduct of function or loop test known to be as loop folder. It outlines common procedures for loop and. Prior to functional performance testing, all sensors and instruments. This document is a loop test sheet used to record the testing of a control loop. Location correct per loop diagram and p&id. It includes sections to document the loop number, alarm settings, instruments needing. The template typically includes sections for identifying the instrument, the calibration method used, the standards used, and the results of the calibration.
from slidesdocs.com
The following documents are the requirements prior to the conduct of function or loop test known to be as loop folder. Prior to functional performance testing, all sensors and instruments. This document is a loop test sheet used to record the testing of a control loop. The template typically includes sections for identifying the instrument, the calibration method used, the standards used, and the results of the calibration. It outlines common procedures for loop and. It includes sections to document the loop number, alarm settings, instruments needing. Location correct per loop diagram and p&id. The following order of the loop folder index or. An instrumentation calibration template is a document used to record the results of a calibration procedure performed on an instrument.
Free Instrument Calibration Templates For Google Sheets And Microsoft
Instrument Testing Sheet Prior to functional performance testing, all sensors and instruments. Location correct per loop diagram and p&id. The following documents are the requirements prior to the conduct of function or loop test known to be as loop folder. This document is a loop test sheet used to record the testing of a control loop. An instrumentation calibration template is a document used to record the results of a calibration procedure performed on an instrument. Prior to functional performance testing, all sensors and instruments. The template typically includes sections for identifying the instrument, the calibration method used, the standards used, and the results of the calibration. It includes sections to document the loop number, alarm settings, instruments needing. It outlines common procedures for loop and. The following order of the loop folder index or.
From www.scribd.com
Instrument Calibration Test Report Format Instrument Testing Sheet Prior to functional performance testing, all sensors and instruments. It outlines common procedures for loop and. The following documents are the requirements prior to the conduct of function or loop test known to be as loop folder. The following order of the loop folder index or. The template typically includes sections for identifying the instrument, the calibration method used, the. Instrument Testing Sheet.
From www.pdffiller.com
Gas Detector Calibration Record Sheet Fill Online, Printable Instrument Testing Sheet It includes sections to document the loop number, alarm settings, instruments needing. The following order of the loop folder index or. It outlines common procedures for loop and. Prior to functional performance testing, all sensors and instruments. The following documents are the requirements prior to the conduct of function or loop test known to be as loop folder. This document. Instrument Testing Sheet.
From instrumentationforum.com
Instrumentation Calibration Forms Instrumentation Instrumentation Forum Instrument Testing Sheet It includes sections to document the loop number, alarm settings, instruments needing. This document is a loop test sheet used to record the testing of a control loop. The following order of the loop folder index or. Location correct per loop diagram and p&id. The template typically includes sections for identifying the instrument, the calibration method used, the standards used,. Instrument Testing Sheet.
From instrumentationbasic.com
Instrument Calibration Report Instrumentation basics Instrument Testing Sheet The following order of the loop folder index or. Location correct per loop diagram and p&id. The template typically includes sections for identifying the instrument, the calibration method used, the standards used, and the results of the calibration. An instrumentation calibration template is a document used to record the results of a calibration procedure performed on an instrument. This document. Instrument Testing Sheet.
From www.researchgate.net
(PDF) Validation Instrument for Undergraduate Qualitative Research Instrument Testing Sheet An instrumentation calibration template is a document used to record the results of a calibration procedure performed on an instrument. Prior to functional performance testing, all sensors and instruments. Location correct per loop diagram and p&id. This document is a loop test sheet used to record the testing of a control loop. The following order of the loop folder index. Instrument Testing Sheet.
From www.slideshare.net
Loop test sheet Instrument Testing Sheet Prior to functional performance testing, all sensors and instruments. The following order of the loop folder index or. This document is a loop test sheet used to record the testing of a control loop. Location correct per loop diagram and p&id. It includes sections to document the loop number, alarm settings, instruments needing. An instrumentation calibration template is a document. Instrument Testing Sheet.
From www.electriciantalk.com
Residential Testing Page 4 Electrician Talk Professional Instrument Testing Sheet The following order of the loop folder index or. The template typically includes sections for identifying the instrument, the calibration method used, the standards used, and the results of the calibration. Prior to functional performance testing, all sensors and instruments. It outlines common procedures for loop and. The following documents are the requirements prior to the conduct of function or. Instrument Testing Sheet.
From www.pinterest.com
Pin on Testing Instruments Data Sheets Instrument Testing Sheet It outlines common procedures for loop and. Location correct per loop diagram and p&id. Prior to functional performance testing, all sensors and instruments. The template typically includes sections for identifying the instrument, the calibration method used, the standards used, and the results of the calibration. This document is a loop test sheet used to record the testing of a control. Instrument Testing Sheet.
From www.airbestpractices.com
Compressed Air System Commissioning Part 3 Testing Compressed Air Instrument Testing Sheet Prior to functional performance testing, all sensors and instruments. This document is a loop test sheet used to record the testing of a control loop. Location correct per loop diagram and p&id. It outlines common procedures for loop and. The following documents are the requirements prior to the conduct of function or loop test known to be as loop folder.. Instrument Testing Sheet.
From www.scribd.com
(2).pdf Instrumentation Instrument Testing Sheet Prior to functional performance testing, all sensors and instruments. Location correct per loop diagram and p&id. This document is a loop test sheet used to record the testing of a control loop. It includes sections to document the loop number, alarm settings, instruments needing. The template typically includes sections for identifying the instrument, the calibration method used, the standards used,. Instrument Testing Sheet.
From instrumentationtools.com
Sample Raw DataSheet for Pressure Calibration Inst Tools Instrument Testing Sheet Location correct per loop diagram and p&id. An instrumentation calibration template is a document used to record the results of a calibration procedure performed on an instrument. This document is a loop test sheet used to record the testing of a control loop. The following documents are the requirements prior to the conduct of function or loop test known to. Instrument Testing Sheet.
From instrumentationtools.com
How to Create Calibration Records? Instrumentation and Control Instrument Testing Sheet An instrumentation calibration template is a document used to record the results of a calibration procedure performed on an instrument. The following documents are the requirements prior to the conduct of function or loop test known to be as loop folder. It outlines common procedures for loop and. Location correct per loop diagram and p&id. Prior to functional performance testing,. Instrument Testing Sheet.
From electrical.theiet.org
Model Forms Instrument Testing Sheet This document is a loop test sheet used to record the testing of a control loop. It includes sections to document the loop number, alarm settings, instruments needing. It outlines common procedures for loop and. The template typically includes sections for identifying the instrument, the calibration method used, the standards used, and the results of the calibration. An instrumentation calibration. Instrument Testing Sheet.
From electricalqc.blogspot.com
ELECTRICAL QC WORKS RELATED Test Report for Wire & Cables Instrument Testing Sheet It outlines common procedures for loop and. Location correct per loop diagram and p&id. This document is a loop test sheet used to record the testing of a control loop. Prior to functional performance testing, all sensors and instruments. The following order of the loop folder index or. An instrumentation calibration template is a document used to record the results. Instrument Testing Sheet.
From slidesdocs.com
Quotation Request Form For Measuring Instrument Testing Excel Template Instrument Testing Sheet The template typically includes sections for identifying the instrument, the calibration method used, the standards used, and the results of the calibration. The following documents are the requirements prior to the conduct of function or loop test known to be as loop folder. Prior to functional performance testing, all sensors and instruments. It outlines common procedures for loop and. This. Instrument Testing Sheet.
From forumautomation.com
Checklist download Field Instrumentation Instrument Testing Sheet This document is a loop test sheet used to record the testing of a control loop. Location correct per loop diagram and p&id. The following documents are the requirements prior to the conduct of function or loop test known to be as loop folder. The template typically includes sections for identifying the instrument, the calibration method used, the standards used,. Instrument Testing Sheet.
From www.scribd.com
Instrument Test Sheet PDF Amplifier Fuse (Electrical) Instrument Testing Sheet It outlines common procedures for loop and. Location correct per loop diagram and p&id. Prior to functional performance testing, all sensors and instruments. This document is a loop test sheet used to record the testing of a control loop. The following order of the loop folder index or. The following documents are the requirements prior to the conduct of function. Instrument Testing Sheet.
From www.pinterest.com
Pin on Testing Instruments Data Sheets Instrument Testing Sheet It outlines common procedures for loop and. It includes sections to document the loop number, alarm settings, instruments needing. The template typically includes sections for identifying the instrument, the calibration method used, the standards used, and the results of the calibration. This document is a loop test sheet used to record the testing of a control loop. An instrumentation calibration. Instrument Testing Sheet.
From www.pinterest.com
the test report is shown in this document Instrument Testing Sheet Location correct per loop diagram and p&id. The template typically includes sections for identifying the instrument, the calibration method used, the standards used, and the results of the calibration. An instrumentation calibration template is a document used to record the results of a calibration procedure performed on an instrument. Prior to functional performance testing, all sensors and instruments. It outlines. Instrument Testing Sheet.
From cmlenterprisesinc.com
Instrument Calibration Services Chicago,IL CML Enterprises Instrument Testing Sheet It includes sections to document the loop number, alarm settings, instruments needing. This document is a loop test sheet used to record the testing of a control loop. The following order of the loop folder index or. An instrumentation calibration template is a document used to record the results of a calibration procedure performed on an instrument. Location correct per. Instrument Testing Sheet.
From www.mermed.com.au
Surgical Instrument Tray List Poly A4 Sheet Mermed Medical Supplies Instrument Testing Sheet It outlines common procedures for loop and. This document is a loop test sheet used to record the testing of a control loop. Location correct per loop diagram and p&id. An instrumentation calibration template is a document used to record the results of a calibration procedure performed on an instrument. The template typically includes sections for identifying the instrument, the. Instrument Testing Sheet.
From www.eslprintables.com
Musical Instruments and Instrument Families Test ESL worksheet by Instrument Testing Sheet The template typically includes sections for identifying the instrument, the calibration method used, the standards used, and the results of the calibration. This document is a loop test sheet used to record the testing of a control loop. Prior to functional performance testing, all sensors and instruments. The following documents are the requirements prior to the conduct of function or. Instrument Testing Sheet.
From www.dexform.com
2 Sample TTest download free documents for PDF, Word and Excel Instrument Testing Sheet Prior to functional performance testing, all sensors and instruments. The following documents are the requirements prior to the conduct of function or loop test known to be as loop folder. It outlines common procedures for loop and. The template typically includes sections for identifying the instrument, the calibration method used, the standards used, and the results of the calibration. The. Instrument Testing Sheet.
From besttemplate-ideas.blogspot.com
Megger Test Report Template Best Template Ideas Instrument Testing Sheet It outlines common procedures for loop and. An instrumentation calibration template is a document used to record the results of a calibration procedure performed on an instrument. The template typically includes sections for identifying the instrument, the calibration method used, the standards used, and the results of the calibration. This document is a loop test sheet used to record the. Instrument Testing Sheet.
From forumautomation.com
Checklist for Loop check Field Instrumentation Industrial Instrument Testing Sheet It outlines common procedures for loop and. The template typically includes sections for identifying the instrument, the calibration method used, the standards used, and the results of the calibration. Location correct per loop diagram and p&id. It includes sections to document the loop number, alarm settings, instruments needing. This document is a loop test sheet used to record the testing. Instrument Testing Sheet.
From slidesdocs.com
Free Instrument Calibration Templates For Google Sheets And Microsoft Instrument Testing Sheet The template typically includes sections for identifying the instrument, the calibration method used, the standards used, and the results of the calibration. Location correct per loop diagram and p&id. Prior to functional performance testing, all sensors and instruments. This document is a loop test sheet used to record the testing of a control loop. The following documents are the requirements. Instrument Testing Sheet.
From dlaczegokurna.blogspot.com
Electrical Checklist In Excel Format / Inspection and Test Plan for Instrument Testing Sheet The following order of the loop folder index or. It outlines common procedures for loop and. It includes sections to document the loop number, alarm settings, instruments needing. The following documents are the requirements prior to the conduct of function or loop test known to be as loop folder. An instrumentation calibration template is a document used to record the. Instrument Testing Sheet.
From ciqa.net
How to Fill a Calibration Record Form as per cGMP? Instrument Testing Sheet This document is a loop test sheet used to record the testing of a control loop. The template typically includes sections for identifying the instrument, the calibration method used, the standards used, and the results of the calibration. The following documents are the requirements prior to the conduct of function or loop test known to be as loop folder. It. Instrument Testing Sheet.
From www.scribd.com
Loop Checking and Field Instrument Testing Procedure Instrumentation Instrument Testing Sheet It includes sections to document the loop number, alarm settings, instruments needing. An instrumentation calibration template is a document used to record the results of a calibration procedure performed on an instrument. Location correct per loop diagram and p&id. The template typically includes sections for identifying the instrument, the calibration method used, the standards used, and the results of the. Instrument Testing Sheet.
From www.youtube.com
Instrument loop test procedure Loop test method YouTube Instrument Testing Sheet It outlines common procedures for loop and. An instrumentation calibration template is a document used to record the results of a calibration procedure performed on an instrument. The following documents are the requirements prior to the conduct of function or loop test known to be as loop folder. The following order of the loop folder index or. This document is. Instrument Testing Sheet.
From www.inpaspages.com
Calibration Standard Record Instrument Testing Sheet The template typically includes sections for identifying the instrument, the calibration method used, the standards used, and the results of the calibration. An instrumentation calibration template is a document used to record the results of a calibration procedure performed on an instrument. It outlines common procedures for loop and. This document is a loop test sheet used to record the. Instrument Testing Sheet.
From documents.thegreenerleithsocial.org
Megger Test Report Template Instrument Testing Sheet The following order of the loop folder index or. The template typically includes sections for identifying the instrument, the calibration method used, the standards used, and the results of the calibration. An instrumentation calibration template is a document used to record the results of a calibration procedure performed on an instrument. This document is a loop test sheet used to. Instrument Testing Sheet.
From safetyspecialists.com.au
Electrical Installation Testing Record Sheet NECA Safety Specialists Instrument Testing Sheet It outlines common procedures for loop and. The following order of the loop folder index or. It includes sections to document the loop number, alarm settings, instruments needing. The template typically includes sections for identifying the instrument, the calibration method used, the standards used, and the results of the calibration. Prior to functional performance testing, all sensors and instruments. An. Instrument Testing Sheet.
From www.inpaspages.com
Calibration Status Verification Report format Instrument Testing Sheet This document is a loop test sheet used to record the testing of a control loop. The following order of the loop folder index or. It outlines common procedures for loop and. The template typically includes sections for identifying the instrument, the calibration method used, the standards used, and the results of the calibration. It includes sections to document the. Instrument Testing Sheet.
From www.inpaspages.com
Equipment test records Instrument Testing Sheet The template typically includes sections for identifying the instrument, the calibration method used, the standards used, and the results of the calibration. An instrumentation calibration template is a document used to record the results of a calibration procedure performed on an instrument. It outlines common procedures for loop and. Location correct per loop diagram and p&id. The following order of. Instrument Testing Sheet.