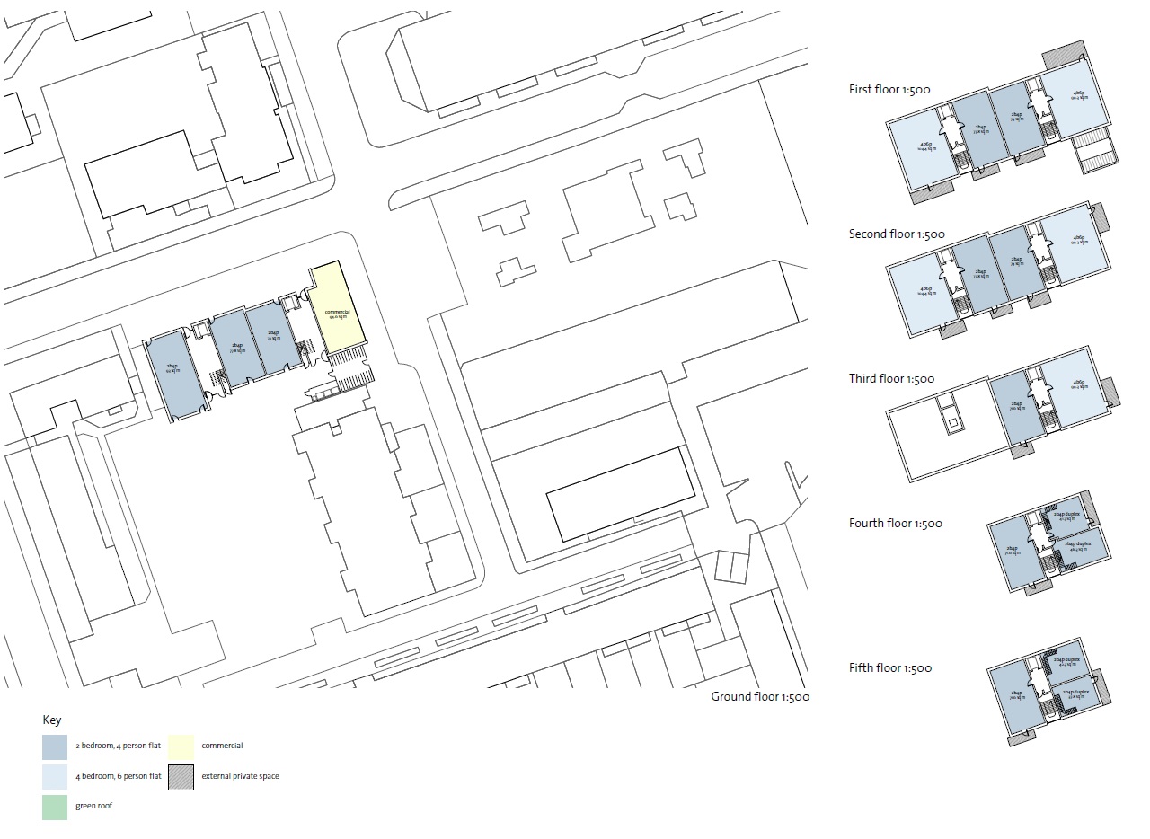
Hackney Housing Supply Programme . The housing supply programme aims to build hundreds of new homes for hackney people across 14 sites, with 70 per cent for. ‘develop a further building programme of council homes for rent and shared ownership, to continue increasing the housing supply for local people’. The development is a key part of hackney council’s housing supply programme, developing underused infill sites within existing estates to create much needed affordable housing. There are now 13,400 households on the waiting list for around 40,000 social housing stock properties in hackney, with the register. Councillors have unanimously welcomed the latest stage in the town hall’s housing supply programme (hsp), with an empty car park on the fairbank estate in hoxton set to be. Hackney’s innovative housing supply programme aims to build more than 400 homes on 11 infill sites. Seventy per cent will be for social rent and shared ownership.
from www.architectsjournal.co.uk
Councillors have unanimously welcomed the latest stage in the town hall’s housing supply programme (hsp), with an empty car park on the fairbank estate in hoxton set to be. Seventy per cent will be for social rent and shared ownership. ‘develop a further building programme of council homes for rent and shared ownership, to continue increasing the housing supply for local people’. The development is a key part of hackney council’s housing supply programme, developing underused infill sites within existing estates to create much needed affordable housing. There are now 13,400 households on the waiting list for around 40,000 social housing stock properties in hackney, with the register. The housing supply programme aims to build hundreds of new homes for hackney people across 14 sites, with 70 per cent for. Hackney’s innovative housing supply programme aims to build more than 400 homes on 11 infill sites.
Ash Sakula bags Hackney housing job
Hackney Housing Supply Programme Seventy per cent will be for social rent and shared ownership. Councillors have unanimously welcomed the latest stage in the town hall’s housing supply programme (hsp), with an empty car park on the fairbank estate in hoxton set to be. There are now 13,400 households on the waiting list for around 40,000 social housing stock properties in hackney, with the register. The development is a key part of hackney council’s housing supply programme, developing underused infill sites within existing estates to create much needed affordable housing. Seventy per cent will be for social rent and shared ownership. ‘develop a further building programme of council homes for rent and shared ownership, to continue increasing the housing supply for local people’. The housing supply programme aims to build hundreds of new homes for hackney people across 14 sites, with 70 per cent for. Hackney’s innovative housing supply programme aims to build more than 400 homes on 11 infill sites.
From www.architectsjournal.co.uk
Revealed winner of latest Hackney council housing job Hackney Housing Supply Programme Councillors have unanimously welcomed the latest stage in the town hall’s housing supply programme (hsp), with an empty car park on the fairbank estate in hoxton set to be. Hackney’s innovative housing supply programme aims to build more than 400 homes on 11 infill sites. ‘develop a further building programme of council homes for rent and shared ownership, to continue. Hackney Housing Supply Programme.
From www.architectsjournal.co.uk
Double victory latest Hackney council housing winner named Hackney Housing Supply Programme Seventy per cent will be for social rent and shared ownership. Councillors have unanimously welcomed the latest stage in the town hall’s housing supply programme (hsp), with an empty car park on the fairbank estate in hoxton set to be. Hackney’s innovative housing supply programme aims to build more than 400 homes on 11 infill sites. There are now 13,400. Hackney Housing Supply Programme.
From www.denizenworks.com
Hackney Housing — DENIZEN WORKS Hackney Housing Supply Programme Councillors have unanimously welcomed the latest stage in the town hall’s housing supply programme (hsp), with an empty car park on the fairbank estate in hoxton set to be. The development is a key part of hackney council’s housing supply programme, developing underused infill sites within existing estates to create much needed affordable housing. There are now 13,400 households on. Hackney Housing Supply Programme.
From www.architectsjournal.co.uk
DLA wins planning for Hackney housing Hackney Housing Supply Programme There are now 13,400 households on the waiting list for around 40,000 social housing stock properties in hackney, with the register. Councillors have unanimously welcomed the latest stage in the town hall’s housing supply programme (hsp), with an empty car park on the fairbank estate in hoxton set to be. ‘develop a further building programme of council homes for rent. Hackney Housing Supply Programme.
From www.architectsjournal.co.uk
DLA wins planning for Hackney housing Hackney Housing Supply Programme There are now 13,400 households on the waiting list for around 40,000 social housing stock properties in hackney, with the register. Seventy per cent will be for social rent and shared ownership. Councillors have unanimously welcomed the latest stage in the town hall’s housing supply programme (hsp), with an empty car park on the fairbank estate in hoxton set to. Hackney Housing Supply Programme.
From www.ribaj.com
AlJawad Pike’s Hackney housing schemes succeed on contract and context Hackney Housing Supply Programme Councillors have unanimously welcomed the latest stage in the town hall’s housing supply programme (hsp), with an empty car park on the fairbank estate in hoxton set to be. The housing supply programme aims to build hundreds of new homes for hackney people across 14 sites, with 70 per cent for. Seventy per cent will be for social rent and. Hackney Housing Supply Programme.
From www.madetech.com
Housing needs modernisation at Hackney Council Made Tech Hackney Housing Supply Programme ‘develop a further building programme of council homes for rent and shared ownership, to continue increasing the housing supply for local people’. Councillors have unanimously welcomed the latest stage in the town hall’s housing supply programme (hsp), with an empty car park on the fairbank estate in hoxton set to be. There are now 13,400 households on the waiting list. Hackney Housing Supply Programme.
From villalba.studio
Villalba Studio → Spatial → Hackney Housing Supply Programme Hackney Housing Supply Programme The development is a key part of hackney council’s housing supply programme, developing underused infill sites within existing estates to create much needed affordable housing. The housing supply programme aims to build hundreds of new homes for hackney people across 14 sites, with 70 per cent for. Councillors have unanimously welcomed the latest stage in the town hall’s housing supply. Hackney Housing Supply Programme.
From www.architectsjournal.co.uk
Ash Sakula bags Hackney housing job Hackney Housing Supply Programme Councillors have unanimously welcomed the latest stage in the town hall’s housing supply programme (hsp), with an empty car park on the fairbank estate in hoxton set to be. There are now 13,400 households on the waiting list for around 40,000 social housing stock properties in hackney, with the register. The housing supply programme aims to build hundreds of new. Hackney Housing Supply Programme.
From www.architectsjournal.co.uk
DLA wins planning for Hackney housing Hackney Housing Supply Programme Seventy per cent will be for social rent and shared ownership. The development is a key part of hackney council’s housing supply programme, developing underused infill sites within existing estates to create much needed affordable housing. The housing supply programme aims to build hundreds of new homes for hackney people across 14 sites, with 70 per cent for. Councillors have. Hackney Housing Supply Programme.
From www.madetech.com
Housing collection at Hackney Council Made Tech Hackney Housing Supply Programme There are now 13,400 households on the waiting list for around 40,000 social housing stock properties in hackney, with the register. ‘develop a further building programme of council homes for rent and shared ownership, to continue increasing the housing supply for local people’. Councillors have unanimously welcomed the latest stage in the town hall’s housing supply programme (hsp), with an. Hackney Housing Supply Programme.
From laptrinhx.com
Major social housing construction schemes launched in Hackney Hackney Housing Supply Programme There are now 13,400 households on the waiting list for around 40,000 social housing stock properties in hackney, with the register. Councillors have unanimously welcomed the latest stage in the town hall’s housing supply programme (hsp), with an empty car park on the fairbank estate in hoxton set to be. Seventy per cent will be for social rent and shared. Hackney Housing Supply Programme.
From www.architectsjournal.co.uk
Ash Sakula bags Hackney housing job Hackney Housing Supply Programme There are now 13,400 households on the waiting list for around 40,000 social housing stock properties in hackney, with the register. The development is a key part of hackney council’s housing supply programme, developing underused infill sites within existing estates to create much needed affordable housing. Hackney’s innovative housing supply programme aims to build more than 400 homes on 11. Hackney Housing Supply Programme.
From www.denizenworks.com
Hackney Housing — DENIZEN WORKS Hackney Housing Supply Programme Seventy per cent will be for social rent and shared ownership. Hackney’s innovative housing supply programme aims to build more than 400 homes on 11 infill sites. The housing supply programme aims to build hundreds of new homes for hackney people across 14 sites, with 70 per cent for. ‘develop a further building programme of council homes for rent and. Hackney Housing Supply Programme.
From consultation.hackney.gov.uk
New Housing Development in Hackney the Living in Hackney Scrutiny Hackney Housing Supply Programme ‘develop a further building programme of council homes for rent and shared ownership, to continue increasing the housing supply for local people’. There are now 13,400 households on the waiting list for around 40,000 social housing stock properties in hackney, with the register. Hackney’s innovative housing supply programme aims to build more than 400 homes on 11 infill sites. Councillors. Hackney Housing Supply Programme.
From www.alamy.com
New luxury housing development next to rundown social housing estate Hackney Housing Supply Programme The development is a key part of hackney council’s housing supply programme, developing underused infill sites within existing estates to create much needed affordable housing. Councillors have unanimously welcomed the latest stage in the town hall’s housing supply programme (hsp), with an empty car park on the fairbank estate in hoxton set to be. The housing supply programme aims to. Hackney Housing Supply Programme.
From www.denizenworks.com
Hackney Housing — DENIZEN WORKS Hackney Housing Supply Programme Seventy per cent will be for social rent and shared ownership. Hackney’s innovative housing supply programme aims to build more than 400 homes on 11 infill sites. Councillors have unanimously welcomed the latest stage in the town hall’s housing supply programme (hsp), with an empty car park on the fairbank estate in hoxton set to be. The development is a. Hackney Housing Supply Programme.
From southerngrove.co.uk
New student housing project planned in Hackney Wick Southern Grove Hackney Housing Supply Programme Seventy per cent will be for social rent and shared ownership. The development is a key part of hackney council’s housing supply programme, developing underused infill sites within existing estates to create much needed affordable housing. The housing supply programme aims to build hundreds of new homes for hackney people across 14 sites, with 70 per cent for. There are. Hackney Housing Supply Programme.
From www.architectsjournal.co.uk
St John’s saviour DLA completes Hackney housing Hackney Housing Supply Programme Seventy per cent will be for social rent and shared ownership. The housing supply programme aims to build hundreds of new homes for hackney people across 14 sites, with 70 per cent for. Hackney’s innovative housing supply programme aims to build more than 400 homes on 11 infill sites. Councillors have unanimously welcomed the latest stage in the town hall’s. Hackney Housing Supply Programme.
From www.linkedin.com
Higgins Partnerships on LinkedIn development london housing Hackney Housing Supply Programme The housing supply programme aims to build hundreds of new homes for hackney people across 14 sites, with 70 per cent for. Hackney’s innovative housing supply programme aims to build more than 400 homes on 11 infill sites. Seventy per cent will be for social rent and shared ownership. ‘develop a further building programme of council homes for rent and. Hackney Housing Supply Programme.
From www.denizenworks.com
Hackney Housing — DENIZEN WORKS Hackney Housing Supply Programme ‘develop a further building programme of council homes for rent and shared ownership, to continue increasing the housing supply for local people’. The development is a key part of hackney council’s housing supply programme, developing underused infill sites within existing estates to create much needed affordable housing. Seventy per cent will be for social rent and shared ownership. Councillors have. Hackney Housing Supply Programme.
From www.architectsjournal.co.uk
Latest Hackney council housing competition winner revealed Hackney Housing Supply Programme ‘develop a further building programme of council homes for rent and shared ownership, to continue increasing the housing supply for local people’. The housing supply programme aims to build hundreds of new homes for hackney people across 14 sites, with 70 per cent for. Hackney’s innovative housing supply programme aims to build more than 400 homes on 11 infill sites.. Hackney Housing Supply Programme.
From architectureforlondon.com
Hackney Housing — Architecture for London Hackney Housing Supply Programme Seventy per cent will be for social rent and shared ownership. The housing supply programme aims to build hundreds of new homes for hackney people across 14 sites, with 70 per cent for. Councillors have unanimously welcomed the latest stage in the town hall’s housing supply programme (hsp), with an empty car park on the fairbank estate in hoxton set. Hackney Housing Supply Programme.
From www.denizenworks.com
Hackney Housing — DENIZEN WORKS Hackney Housing Supply Programme Seventy per cent will be for social rent and shared ownership. Councillors have unanimously welcomed the latest stage in the town hall’s housing supply programme (hsp), with an empty car park on the fairbank estate in hoxton set to be. The housing supply programme aims to build hundreds of new homes for hackney people across 14 sites, with 70 per. Hackney Housing Supply Programme.
From www.linkedin.com
Higgins Partnerships on LinkedIn development london housing Hackney Housing Supply Programme There are now 13,400 households on the waiting list for around 40,000 social housing stock properties in hackney, with the register. ‘develop a further building programme of council homes for rent and shared ownership, to continue increasing the housing supply for local people’. Councillors have unanimously welcomed the latest stage in the town hall’s housing supply programme (hsp), with an. Hackney Housing Supply Programme.
From villalba.studio
Hackney Housing Supply Programme → Villalba Studio Hackney Housing Supply Programme ‘develop a further building programme of council homes for rent and shared ownership, to continue increasing the housing supply for local people’. There are now 13,400 households on the waiting list for around 40,000 social housing stock properties in hackney, with the register. Seventy per cent will be for social rent and shared ownership. Councillors have unanimously welcomed the latest. Hackney Housing Supply Programme.
From www.e-architect.co.uk
Supported Housing Hackney East London Homes earchitect Hackney Housing Supply Programme Seventy per cent will be for social rent and shared ownership. The development is a key part of hackney council’s housing supply programme, developing underused infill sites within existing estates to create much needed affordable housing. ‘develop a further building programme of council homes for rent and shared ownership, to continue increasing the housing supply for local people’. Councillors have. Hackney Housing Supply Programme.
From cm.macegroup.com
Hackney Improvement Programme (Decent Homes) Upgrading thousands of Hackney Housing Supply Programme The development is a key part of hackney council’s housing supply programme, developing underused infill sites within existing estates to create much needed affordable housing. There are now 13,400 households on the waiting list for around 40,000 social housing stock properties in hackney, with the register. ‘develop a further building programme of council homes for rent and shared ownership, to. Hackney Housing Supply Programme.
From www.architectsjournal.co.uk
St John’s saviour DLA completes Hackney housing Hackney Housing Supply Programme Seventy per cent will be for social rent and shared ownership. The development is a key part of hackney council’s housing supply programme, developing underused infill sites within existing estates to create much needed affordable housing. ‘develop a further building programme of council homes for rent and shared ownership, to continue increasing the housing supply for local people’. Hackney’s innovative. Hackney Housing Supply Programme.
From news.hackney.gov.uk
Construction starts on latest Hackney Council housing Hackney Housing Supply Programme Councillors have unanimously welcomed the latest stage in the town hall’s housing supply programme (hsp), with an empty car park on the fairbank estate in hoxton set to be. ‘develop a further building programme of council homes for rent and shared ownership, to continue increasing the housing supply for local people’. Hackney’s innovative housing supply programme aims to build more. Hackney Housing Supply Programme.
From www.architectsjournal.co.uk
Ash Sakula bags Hackney housing job Hackney Housing Supply Programme The housing supply programme aims to build hundreds of new homes for hackney people across 14 sites, with 70 per cent for. ‘develop a further building programme of council homes for rent and shared ownership, to continue increasing the housing supply for local people’. The development is a key part of hackney council’s housing supply programme, developing underused infill sites. Hackney Housing Supply Programme.
From www.architectsjournal.co.uk
Mikhail Riches reveals new images of approved Hackney housing duo Hackney Housing Supply Programme The housing supply programme aims to build hundreds of new homes for hackney people across 14 sites, with 70 per cent for. Seventy per cent will be for social rent and shared ownership. There are now 13,400 households on the waiting list for around 40,000 social housing stock properties in hackney, with the register. Hackney’s innovative housing supply programme aims. Hackney Housing Supply Programme.
From villalba.studio
Hackney Housing Supply Programme → Villalba Studio Hackney Housing Supply Programme The development is a key part of hackney council’s housing supply programme, developing underused infill sites within existing estates to create much needed affordable housing. Councillors have unanimously welcomed the latest stage in the town hall’s housing supply programme (hsp), with an empty car park on the fairbank estate in hoxton set to be. Hackney’s innovative housing supply programme aims. Hackney Housing Supply Programme.
From villalba.studio
Villalba Studio → Spatial → Hackney Housing Supply Programme Hackney Housing Supply Programme The development is a key part of hackney council’s housing supply programme, developing underused infill sites within existing estates to create much needed affordable housing. There are now 13,400 households on the waiting list for around 40,000 social housing stock properties in hackney, with the register. Seventy per cent will be for social rent and shared ownership. The housing supply. Hackney Housing Supply Programme.
From www.architectsjournal.co.uk
Plans lodged for two Hackney Council housing schemes Hackney Housing Supply Programme The development is a key part of hackney council’s housing supply programme, developing underused infill sites within existing estates to create much needed affordable housing. Hackney’s innovative housing supply programme aims to build more than 400 homes on 11 infill sites. The housing supply programme aims to build hundreds of new homes for hackney people across 14 sites, with 70. Hackney Housing Supply Programme.