What Does Lock Backset Mean . The center of the door edge is important, because door edge could be. In this article you can learn about what a lock backset is, size of the backset in a door, how to change backset on your entry latch, types of locks for different doors. One of the most pivotal measurements is the backset, which determines the positioning of the door knob or handle relative to the edge of the door. Learn how to measure your door's backset before replacing an existing lock or latch to ensure you get the right fit for your new. If you intend to use new locks or latches on an old door, replacing your old ones, you will need to. A backet is the distance between the center of your door edge of the door and the center of the lock. 'backset' is the distance from the front of the lock to the centre of the spindle as shown here. But what exactly is it? If you dont have any hardware on your door, just measure from the edge of the door to the center of the bore hole (the large hole. It’s a crucial aspect of door. When you’re installing a new door or replacing the lock on an existing one, you’ll likely come across the term “door backset”.
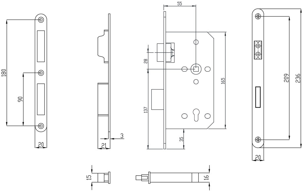
from www.gjohns.co.uk
The center of the door edge is important, because door edge could be. 'backset' is the distance from the front of the lock to the centre of the spindle as shown here. In this article you can learn about what a lock backset is, size of the backset in a door, how to change backset on your entry latch, types of locks for different doors. A backet is the distance between the center of your door edge of the door and the center of the lock. It’s a crucial aspect of door. But what exactly is it? When you’re installing a new door or replacing the lock on an existing one, you’ll likely come across the term “door backset”. Learn how to measure your door's backset before replacing an existing lock or latch to ensure you get the right fit for your new. If you intend to use new locks or latches on an old door, replacing your old ones, you will need to. One of the most pivotal measurements is the backset, which determines the positioning of the door knob or handle relative to the edge of the door.
S8 Euro Profile Sash Lock 80mm Case Depth (55mm Backset
What Does Lock Backset Mean When you’re installing a new door or replacing the lock on an existing one, you’ll likely come across the term “door backset”. The center of the door edge is important, because door edge could be. But what exactly is it? A backet is the distance between the center of your door edge of the door and the center of the lock. One of the most pivotal measurements is the backset, which determines the positioning of the door knob or handle relative to the edge of the door. In this article you can learn about what a lock backset is, size of the backset in a door, how to change backset on your entry latch, types of locks for different doors. It’s a crucial aspect of door. When you’re installing a new door or replacing the lock on an existing one, you’ll likely come across the term “door backset”. If you intend to use new locks or latches on an old door, replacing your old ones, you will need to. Learn how to measure your door's backset before replacing an existing lock or latch to ensure you get the right fit for your new. 'backset' is the distance from the front of the lock to the centre of the spindle as shown here. If you dont have any hardware on your door, just measure from the edge of the door to the center of the bore hole (the large hole.
From www.tradco.com.au
5 Lever Mortice Lock Backset 57mm Chrome Plated TradCo What Does Lock Backset Mean When you’re installing a new door or replacing the lock on an existing one, you’ll likely come across the term “door backset”. One of the most pivotal measurements is the backset, which determines the positioning of the door knob or handle relative to the edge of the door. Learn how to measure your door's backset before replacing an existing lock. What Does Lock Backset Mean.
From www.youtube.com
How to Measure Lock Backset Mr. Locksmith™ YouTube What Does Lock Backset Mean But what exactly is it? One of the most pivotal measurements is the backset, which determines the positioning of the door knob or handle relative to the edge of the door. A backet is the distance between the center of your door edge of the door and the center of the lock. It’s a crucial aspect of door. The center. What Does Lock Backset Mean.
From www.harfordlocksmith.com
2 Inch Backset Locks 2 Inch Backset Locks,Deadbolts & Free Ship What Does Lock Backset Mean When you’re installing a new door or replacing the lock on an existing one, you’ll likely come across the term “door backset”. If you dont have any hardware on your door, just measure from the edge of the door to the center of the bore hole (the large hole. A backet is the distance between the center of your door. What Does Lock Backset Mean.
From www.hardwarecity.com.sg
Cylindrical Lock BACKSET What Does Lock Backset Mean If you dont have any hardware on your door, just measure from the edge of the door to the center of the bore hole (the large hole. When you’re installing a new door or replacing the lock on an existing one, you’ll likely come across the term “door backset”. 'backset' is the distance from the front of the lock to. What Does Lock Backset Mean.
From www.hiatt-hardware.com
What is a lock backset, sizes available and how to change it. What Does Lock Backset Mean If you intend to use new locks or latches on an old door, replacing your old ones, you will need to. The center of the door edge is important, because door edge could be. 'backset' is the distance from the front of the lock to the centre of the spindle as shown here. Learn how to measure your door's backset. What Does Lock Backset Mean.
From www.homedepot.com
Premier Lock Brass Entry Mortise Right Hand Lock Set with 2.5 in What Does Lock Backset Mean The center of the door edge is important, because door edge could be. One of the most pivotal measurements is the backset, which determines the positioning of the door knob or handle relative to the edge of the door. When you’re installing a new door or replacing the lock on an existing one, you’ll likely come across the term “door. What Does Lock Backset Mean.
From www.unityhardware.net
MD107208X mortise classroom lock,60mm Backset What Does Lock Backset Mean If you dont have any hardware on your door, just measure from the edge of the door to the center of the bore hole (the large hole. 'backset' is the distance from the front of the lock to the centre of the spindle as shown here. It’s a crucial aspect of door. But what exactly is it? One of the. What Does Lock Backset Mean.
From schwepper.com
Narrow Profile Lock backset 30mm complete stainless steel 316L GSVNo What Does Lock Backset Mean 'backset' is the distance from the front of the lock to the centre of the spindle as shown here. A backet is the distance between the center of your door edge of the door and the center of the lock. If you intend to use new locks or latches on an old door, replacing your old ones, you will need. What Does Lock Backset Mean.
From doorhardware.com
How to determine your doors backset. What Does Lock Backset Mean It’s a crucial aspect of door. But what exactly is it? If you dont have any hardware on your door, just measure from the edge of the door to the center of the bore hole (the large hole. 'backset' is the distance from the front of the lock to the centre of the spindle as shown here. Learn how to. What Does Lock Backset Mean.
From www.goldtechhardware.com
what is a backset on a door news Goldtech Hardware Corporation Limited What Does Lock Backset Mean But what exactly is it? Learn how to measure your door's backset before replacing an existing lock or latch to ensure you get the right fit for your new. The center of the door edge is important, because door edge could be. In this article you can learn about what a lock backset is, size of the backset in a. What Does Lock Backset Mean.
From www.upvc-store.co.uk
What Is a Backset? uPVC Door Lock Measuring Guide — UPVCSTORE What Does Lock Backset Mean The center of the door edge is important, because door edge could be. It’s a crucial aspect of door. A backet is the distance between the center of your door edge of the door and the center of the lock. 'backset' is the distance from the front of the lock to the centre of the spindle as shown here. When. What Does Lock Backset Mean.
From www.tradco.com.au
Rebated 3 Lever Mortice Lock Backset 57mm Matt Black TradCo What Does Lock Backset Mean If you intend to use new locks or latches on an old door, replacing your old ones, you will need to. 'backset' is the distance from the front of the lock to the centre of the spindle as shown here. One of the most pivotal measurements is the backset, which determines the positioning of the door knob or handle relative. What Does Lock Backset Mean.
From www.tradco.com.au
Rebated 5 Lever Mortice Lock Backset 57mm Polished Brass TradCo What Does Lock Backset Mean When you’re installing a new door or replacing the lock on an existing one, you’ll likely come across the term “door backset”. But what exactly is it? In this article you can learn about what a lock backset is, size of the backset in a door, how to change backset on your entry latch, types of locks for different doors.. What Does Lock Backset Mean.
From blog.klevio.com
Klevio Tip How to measure a lock backset Life Unlocked What Does Lock Backset Mean 'backset' is the distance from the front of the lock to the centre of the spindle as shown here. If you dont have any hardware on your door, just measure from the edge of the door to the center of the bore hole (the large hole. A backet is the distance between the center of your door edge of the. What Does Lock Backset Mean.
From www.allaboutdoors.com
Deadlatch Lock, 31/32 Inch Backset, Reversable Handing No Face plate What Does Lock Backset Mean The center of the door edge is important, because door edge could be. A backet is the distance between the center of your door edge of the door and the center of the lock. Learn how to measure your door's backset before replacing an existing lock or latch to ensure you get the right fit for your new. In this. What Does Lock Backset Mean.
From storables.com
What Is A Backset On A Door Lock Storables What Does Lock Backset Mean But what exactly is it? Learn how to measure your door's backset before replacing an existing lock or latch to ensure you get the right fit for your new. When you’re installing a new door or replacing the lock on an existing one, you’ll likely come across the term “door backset”. The center of the door edge is important, because. What Does Lock Backset Mean.
From www.tekportal.net
backset Liberal Dictionary What Does Lock Backset Mean In this article you can learn about what a lock backset is, size of the backset in a door, how to change backset on your entry latch, types of locks for different doors. Learn how to measure your door's backset before replacing an existing lock or latch to ensure you get the right fit for your new. One of the. What Does Lock Backset Mean.
From www.thelockandhandle.com
Backset The Lock and Handle What Does Lock Backset Mean But what exactly is it? If you dont have any hardware on your door, just measure from the edge of the door to the center of the bore hole (the large hole. In this article you can learn about what a lock backset is, size of the backset in a door, how to change backset on your entry latch, types. What Does Lock Backset Mean.
From www.allaboutdoors.com
SLIMLINE mortise lock set, 35mm Backset What Does Lock Backset Mean When you’re installing a new door or replacing the lock on an existing one, you’ll likely come across the term “door backset”. In this article you can learn about what a lock backset is, size of the backset in a door, how to change backset on your entry latch, types of locks for different doors. A backet is the distance. What Does Lock Backset Mean.
From www.tradco.com.au
5 Lever Mortice Lock Backset 57mm Satin Nickel TradCo What Does Lock Backset Mean If you intend to use new locks or latches on an old door, replacing your old ones, you will need to. A backet is the distance between the center of your door edge of the door and the center of the lock. It’s a crucial aspect of door. But what exactly is it? In this article you can learn about. What Does Lock Backset Mean.
From interioreffects.co.nz
Sylvan 58mm Backset 5 Lever Mortice Lock Interior Effects What Does Lock Backset Mean But what exactly is it? Learn how to measure your door's backset before replacing an existing lock or latch to ensure you get the right fit for your new. If you dont have any hardware on your door, just measure from the edge of the door to the center of the bore hole (the large hole. If you intend to. What Does Lock Backset Mean.
From www.hiatt-hardware.com
What is a lock backset, sizes available and how to change it. What Does Lock Backset Mean It’s a crucial aspect of door. One of the most pivotal measurements is the backset, which determines the positioning of the door knob or handle relative to the edge of the door. 'backset' is the distance from the front of the lock to the centre of the spindle as shown here. When you’re installing a new door or replacing the. What Does Lock Backset Mean.
From www.youtube.com
How To Measure The Backset On A UPVC Door Lock Mechansim YouTube What Does Lock Backset Mean The center of the door edge is important, because door edge could be. It’s a crucial aspect of door. If you dont have any hardware on your door, just measure from the edge of the door to the center of the bore hole (the large hole. 'backset' is the distance from the front of the lock to the centre of. What Does Lock Backset Mean.
From www.tradco.com.au
5 Lever Mortice Lock Backset 57mm Polished Brass TradCo What Does Lock Backset Mean The center of the door edge is important, because door edge could be. It’s a crucial aspect of door. If you dont have any hardware on your door, just measure from the edge of the door to the center of the bore hole (the large hole. Learn how to measure your door's backset before replacing an existing lock or latch. What Does Lock Backset Mean.
From www.tradco.com.au
Privacy Mortice Lock Backset 44mm Chrome Plated TradCo What Does Lock Backset Mean In this article you can learn about what a lock backset is, size of the backset in a door, how to change backset on your entry latch, types of locks for different doors. But what exactly is it? It’s a crucial aspect of door. If you intend to use new locks or latches on an old door, replacing your old. What Does Lock Backset Mean.
From alertandsecure.com
What Is A Door Lock Backset? Alert and Secure What Does Lock Backset Mean Learn how to measure your door's backset before replacing an existing lock or latch to ensure you get the right fit for your new. A backet is the distance between the center of your door edge of the door and the center of the lock. 'backset' is the distance from the front of the lock to the centre of the. What Does Lock Backset Mean.
From blog.denleigh.co.uk
Specification advice locks and latches What Does Lock Backset Mean But what exactly is it? A backet is the distance between the center of your door edge of the door and the center of the lock. Learn how to measure your door's backset before replacing an existing lock or latch to ensure you get the right fit for your new. It’s a crucial aspect of door. If you dont have. What Does Lock Backset Mean.
From www.tradco.com.au
3 Lever Mortice Lock Backset 57mm Chrome Plated TradCo What Does Lock Backset Mean One of the most pivotal measurements is the backset, which determines the positioning of the door knob or handle relative to the edge of the door. A backet is the distance between the center of your door edge of the door and the center of the lock. But what exactly is it? If you dont have any hardware on your. What Does Lock Backset Mean.
From www.trudoor.com
Commercial Door Locks Locksets What Does Lock Backset Mean It’s a crucial aspect of door. A backet is the distance between the center of your door edge of the door and the center of the lock. But what exactly is it? 'backset' is the distance from the front of the lock to the centre of the spindle as shown here. In this article you can learn about what a. What Does Lock Backset Mean.
From www.restorationonline.com.au
Measuring Your Backset What Does Lock Backset Mean One of the most pivotal measurements is the backset, which determines the positioning of the door knob or handle relative to the edge of the door. But what exactly is it? 'backset' is the distance from the front of the lock to the centre of the spindle as shown here. The center of the door edge is important, because door. What Does Lock Backset Mean.
From www.youtube.com
How to Adjust the Backset on a Door Latch YouTube What Does Lock Backset Mean One of the most pivotal measurements is the backset, which determines the positioning of the door knob or handle relative to the edge of the door. If you dont have any hardware on your door, just measure from the edge of the door to the center of the bore hole (the large hole. If you intend to use new locks. What Does Lock Backset Mean.
From doorcorner.com
How to Change the Backset on a Door Latch What Does Lock Backset Mean Learn how to measure your door's backset before replacing an existing lock or latch to ensure you get the right fit for your new. But what exactly is it? 'backset' is the distance from the front of the lock to the centre of the spindle as shown here. If you dont have any hardware on your door, just measure from. What Does Lock Backset Mean.
From www.hiatt-hardware.com
What is a lock backset, sizes available and how to change it. What Does Lock Backset Mean But what exactly is it? In this article you can learn about what a lock backset is, size of the backset in a door, how to change backset on your entry latch, types of locks for different doors. A backet is the distance between the center of your door edge of the door and the center of the lock. If. What Does Lock Backset Mean.
From www.gjohns.co.uk
S8 Euro Profile Sash Lock 80mm Case Depth (55mm Backset What Does Lock Backset Mean If you intend to use new locks or latches on an old door, replacing your old ones, you will need to. If you dont have any hardware on your door, just measure from the edge of the door to the center of the bore hole (the large hole. A backet is the distance between the center of your door edge. What Does Lock Backset Mean.
From www.thisoldhouse.com
How to Install a Lockset This Old House What Does Lock Backset Mean It’s a crucial aspect of door. One of the most pivotal measurements is the backset, which determines the positioning of the door knob or handle relative to the edge of the door. A backet is the distance between the center of your door edge of the door and the center of the lock. But what exactly is it? 'backset' is. What Does Lock Backset Mean.