Idaho Homeowner Electrical Permit . I certify that i am the owner of the residential property and will personally perform the work covered by this permit. I recognize this permit is. They must be listed as the. Homeowner's electrical permits the homeowner’s electrical permit may only be issued to homeowners performing basic electrical work without assistance from others. Any electrical wiring installations requiring an electrical permit and inspection as defined in this code shall be installed by a state licensed. The homeowner’s electrical permit may only be issued to homeowners performing basic electrical work without physical assistance from. Division of occupational & professional licenses Anyone securing a permit from dopl that may include excavation activity should be aware of the legal requirements — particularly the.
from www.studocu.com
Anyone securing a permit from dopl that may include excavation activity should be aware of the legal requirements — particularly the. Any electrical wiring installations requiring an electrical permit and inspection as defined in this code shall be installed by a state licensed. I certify that i am the owner of the residential property and will personally perform the work covered by this permit. I recognize this permit is. The homeowner’s electrical permit may only be issued to homeowners performing basic electrical work without physical assistance from. Homeowner's electrical permits the homeowner’s electrical permit may only be issued to homeowners performing basic electrical work without assistance from others. Division of occupational & professional licenses They must be listed as the.
Electrical FOR BUILDING PERMIT bs civil engineering UV Studocu
Idaho Homeowner Electrical Permit Division of occupational & professional licenses Any electrical wiring installations requiring an electrical permit and inspection as defined in this code shall be installed by a state licensed. Division of occupational & professional licenses I recognize this permit is. Anyone securing a permit from dopl that may include excavation activity should be aware of the legal requirements — particularly the. I certify that i am the owner of the residential property and will personally perform the work covered by this permit. Homeowner's electrical permits the homeowner’s electrical permit may only be issued to homeowners performing basic electrical work without assistance from others. The homeowner’s electrical permit may only be issued to homeowners performing basic electrical work without physical assistance from. They must be listed as the.
From studylib.net
Electrical Permit Information for Homeowners Idaho Homeowner Electrical Permit The homeowner’s electrical permit may only be issued to homeowners performing basic electrical work without physical assistance from. Anyone securing a permit from dopl that may include excavation activity should be aware of the legal requirements — particularly the. Any electrical wiring installations requiring an electrical permit and inspection as defined in this code shall be installed by a state. Idaho Homeowner Electrical Permit.
From www.dochub.com
Application for electrical permit Fill out & sign online DocHub Idaho Homeowner Electrical Permit I recognize this permit is. Division of occupational & professional licenses The homeowner’s electrical permit may only be issued to homeowners performing basic electrical work without physical assistance from. Homeowner's electrical permits the homeowner’s electrical permit may only be issued to homeowners performing basic electrical work without assistance from others. Anyone securing a permit from dopl that may include excavation. Idaho Homeowner Electrical Permit.
From www.pinterest.co.uk
FREE Energized Electrical Work Permit (EEWP). OSHA and NFPA 70E require Idaho Homeowner Electrical Permit The homeowner’s electrical permit may only be issued to homeowners performing basic electrical work without physical assistance from. I recognize this permit is. Anyone securing a permit from dopl that may include excavation activity should be aware of the legal requirements — particularly the. Division of occupational & professional licenses They must be listed as the. I certify that i. Idaho Homeowner Electrical Permit.
From studylib.net
Housing Electrical Permit Application Form Idaho Homeowner Electrical Permit Division of occupational & professional licenses I recognize this permit is. Anyone securing a permit from dopl that may include excavation activity should be aware of the legal requirements — particularly the. They must be listed as the. I certify that i am the owner of the residential property and will personally perform the work covered by this permit. Homeowner's. Idaho Homeowner Electrical Permit.
From www.pdffiller.com
Fillable Online dbs idaho APPLICATION FOR HOMEOWNER PERMIT Building Idaho Homeowner Electrical Permit Homeowner's electrical permits the homeowner’s electrical permit may only be issued to homeowners performing basic electrical work without assistance from others. I certify that i am the owner of the residential property and will personally perform the work covered by this permit. The homeowner’s electrical permit may only be issued to homeowners performing basic electrical work without physical assistance from.. Idaho Homeowner Electrical Permit.
From www.scribd.com
Electrical Work Permit Idaho Homeowner Electrical Permit Any electrical wiring installations requiring an electrical permit and inspection as defined in this code shall be installed by a state licensed. Division of occupational & professional licenses I certify that i am the owner of the residential property and will personally perform the work covered by this permit. Anyone securing a permit from dopl that may include excavation activity. Idaho Homeowner Electrical Permit.
From www.youtube.com
How to Apply and File an Electrical Permit for Do It Yourself DIY Home Idaho Homeowner Electrical Permit I recognize this permit is. I certify that i am the owner of the residential property and will personally perform the work covered by this permit. They must be listed as the. Any electrical wiring installations requiring an electrical permit and inspection as defined in this code shall be installed by a state licensed. The homeowner’s electrical permit may only. Idaho Homeowner Electrical Permit.
From www.pdffiller.com
Fillable Online bsd dli mt Application for Homeowner Electrical Permit Idaho Homeowner Electrical Permit Anyone securing a permit from dopl that may include excavation activity should be aware of the legal requirements — particularly the. Division of occupational & professional licenses I recognize this permit is. They must be listed as the. Any electrical wiring installations requiring an electrical permit and inspection as defined in this code shall be installed by a state licensed.. Idaho Homeowner Electrical Permit.
From filipinoengineer.com
Electrical Permits PEC 2017 Provision Filipino Engineer Idaho Homeowner Electrical Permit Anyone securing a permit from dopl that may include excavation activity should be aware of the legal requirements — particularly the. The homeowner’s electrical permit may only be issued to homeowners performing basic electrical work without physical assistance from. Homeowner's electrical permits the homeowner’s electrical permit may only be issued to homeowners performing basic electrical work without assistance from others.. Idaho Homeowner Electrical Permit.
From www.pdffiller.com
Fillable Online Homeowner Electrical Permit City of Gem lake Fax Email Idaho Homeowner Electrical Permit They must be listed as the. Division of occupational & professional licenses I certify that i am the owner of the residential property and will personally perform the work covered by this permit. The homeowner’s electrical permit may only be issued to homeowners performing basic electrical work without physical assistance from. Homeowner's electrical permits the homeowner’s electrical permit may only. Idaho Homeowner Electrical Permit.
From www.pdffiller.com
Fillable Online Application for Building Permit PROPERTY INFORMATION Idaho Homeowner Electrical Permit Division of occupational & professional licenses Anyone securing a permit from dopl that may include excavation activity should be aware of the legal requirements — particularly the. I certify that i am the owner of the residential property and will personally perform the work covered by this permit. Any electrical wiring installations requiring an electrical permit and inspection as defined. Idaho Homeowner Electrical Permit.
From www.scribd.com
Electrical Permit PDF Electrician License Idaho Homeowner Electrical Permit I recognize this permit is. Anyone securing a permit from dopl that may include excavation activity should be aware of the legal requirements — particularly the. They must be listed as the. Division of occupational & professional licenses I certify that i am the owner of the residential property and will personally perform the work covered by this permit. Any. Idaho Homeowner Electrical Permit.
From www.pdffiller.com
Fillable Online Orion Township Building Department Homeowner Permit Idaho Homeowner Electrical Permit Homeowner's electrical permits the homeowner’s electrical permit may only be issued to homeowners performing basic electrical work without assistance from others. Anyone securing a permit from dopl that may include excavation activity should be aware of the legal requirements — particularly the. Division of occupational & professional licenses I certify that i am the owner of the residential property and. Idaho Homeowner Electrical Permit.
From studylib.net
Residential Electrical Permit Guide 2015 Idaho Homeowner Electrical Permit Any electrical wiring installations requiring an electrical permit and inspection as defined in this code shall be installed by a state licensed. The homeowner’s electrical permit may only be issued to homeowners performing basic electrical work without physical assistance from. They must be listed as the. Anyone securing a permit from dopl that may include excavation activity should be aware. Idaho Homeowner Electrical Permit.
From www.safetymint.com
Free Electrical Work Permit Form Template Download as PDF Idaho Homeowner Electrical Permit I certify that i am the owner of the residential property and will personally perform the work covered by this permit. They must be listed as the. Any electrical wiring installations requiring an electrical permit and inspection as defined in this code shall be installed by a state licensed. Homeowner's electrical permits the homeowner’s electrical permit may only be issued. Idaho Homeowner Electrical Permit.
From www.formsbank.com
Electrical Permit Application And Permit Form printable pdf download Idaho Homeowner Electrical Permit Division of occupational & professional licenses I recognize this permit is. The homeowner’s electrical permit may only be issued to homeowners performing basic electrical work without physical assistance from. Homeowner's electrical permits the homeowner’s electrical permit may only be issued to homeowners performing basic electrical work without assistance from others. They must be listed as the. Anyone securing a permit. Idaho Homeowner Electrical Permit.
From www.scribd.com
Electrical Permit Form PDF Manufactured Goods Electrical Engineering Idaho Homeowner Electrical Permit Anyone securing a permit from dopl that may include excavation activity should be aware of the legal requirements — particularly the. Homeowner's electrical permits the homeowner’s electrical permit may only be issued to homeowners performing basic electrical work without assistance from others. I certify that i am the owner of the residential property and will personally perform the work covered. Idaho Homeowner Electrical Permit.
From www.studocu.com
Electrical FOR BUILDING PERMIT bs civil engineering UV Studocu Idaho Homeowner Electrical Permit Anyone securing a permit from dopl that may include excavation activity should be aware of the legal requirements — particularly the. I recognize this permit is. They must be listed as the. I certify that i am the owner of the residential property and will personally perform the work covered by this permit. Any electrical wiring installations requiring an electrical. Idaho Homeowner Electrical Permit.
From wa-portangeles.civicplus.com
Building Permits Port Angeles, WA Official site Idaho Homeowner Electrical Permit I certify that i am the owner of the residential property and will personally perform the work covered by this permit. The homeowner’s electrical permit may only be issued to homeowners performing basic electrical work without physical assistance from. I recognize this permit is. They must be listed as the. Homeowner's electrical permits the homeowner’s electrical permit may only be. Idaho Homeowner Electrical Permit.
From www.pdffiller.com
Fillable Online Homeowner's Electrical Permit Affidavit Fax Email Idaho Homeowner Electrical Permit Anyone securing a permit from dopl that may include excavation activity should be aware of the legal requirements — particularly the. I recognize this permit is. I certify that i am the owner of the residential property and will personally perform the work covered by this permit. Division of occupational & professional licenses Homeowner's electrical permits the homeowner’s electrical permit. Idaho Homeowner Electrical Permit.
From www.bizzlibrary.com
Idaho Electrical State License EAppr Appl for Electrical Idaho Homeowner Electrical Permit Anyone securing a permit from dopl that may include excavation activity should be aware of the legal requirements — particularly the. They must be listed as the. Any electrical wiring installations requiring an electrical permit and inspection as defined in this code shall be installed by a state licensed. The homeowner’s electrical permit may only be issued to homeowners performing. Idaho Homeowner Electrical Permit.
From www.pdffiller.com
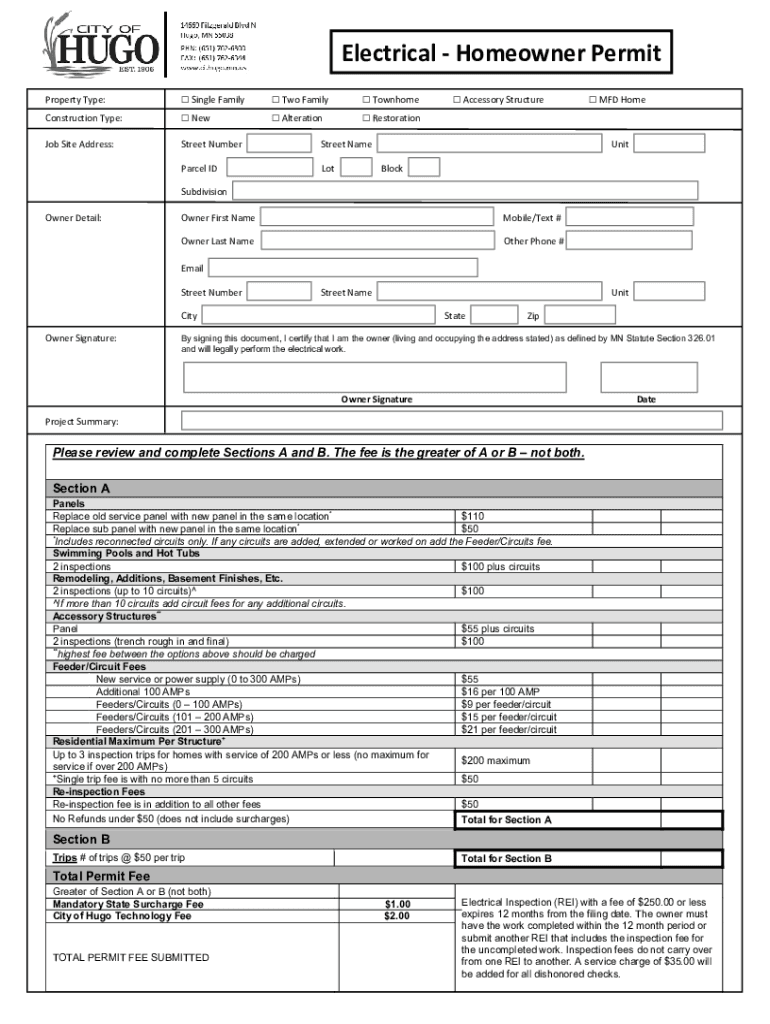
Fillable Online Electrical Homeowner Permit City of Hugo Fax Email Idaho Homeowner Electrical Permit The homeowner’s electrical permit may only be issued to homeowners performing basic electrical work without physical assistance from. I certify that i am the owner of the residential property and will personally perform the work covered by this permit. Anyone securing a permit from dopl that may include excavation activity should be aware of the legal requirements — particularly the.. Idaho Homeowner Electrical Permit.
From studylib.net
electrical permit Idaho Homeowner Electrical Permit The homeowner’s electrical permit may only be issued to homeowners performing basic electrical work without physical assistance from. I recognize this permit is. Any electrical wiring installations requiring an electrical permit and inspection as defined in this code shall be installed by a state licensed. I certify that i am the owner of the residential property and will personally perform. Idaho Homeowner Electrical Permit.
From www.formsbank.com
Fillable Electrical Permit Application printable pdf download Idaho Homeowner Electrical Permit They must be listed as the. The homeowner’s electrical permit may only be issued to homeowners performing basic electrical work without physical assistance from. I certify that i am the owner of the residential property and will personally perform the work covered by this permit. Anyone securing a permit from dopl that may include excavation activity should be aware of. Idaho Homeowner Electrical Permit.
From mavink.com
Printable Electrical Energized Work Permit Idaho Homeowner Electrical Permit Division of occupational & professional licenses They must be listed as the. Any electrical wiring installations requiring an electrical permit and inspection as defined in this code shall be installed by a state licensed. The homeowner’s electrical permit may only be issued to homeowners performing basic electrical work without physical assistance from. I certify that i am the owner of. Idaho Homeowner Electrical Permit.
From www.scribd.com
Energized Electrical Work Permit Idaho Homeowner Electrical Permit Division of occupational & professional licenses I recognize this permit is. The homeowner’s electrical permit may only be issued to homeowners performing basic electrical work without physical assistance from. Homeowner's electrical permits the homeowner’s electrical permit may only be issued to homeowners performing basic electrical work without assistance from others. Any electrical wiring installations requiring an electrical permit and inspection. Idaho Homeowner Electrical Permit.
From www.magallanes.cavite.gov.ph
Electrical Permit Idaho Homeowner Electrical Permit I certify that i am the owner of the residential property and will personally perform the work covered by this permit. Homeowner's electrical permits the homeowner’s electrical permit may only be issued to homeowners performing basic electrical work without assistance from others. They must be listed as the. The homeowner’s electrical permit may only be issued to homeowners performing basic. Idaho Homeowner Electrical Permit.
From www.servicetitan.com
Idaho Electrical License How to an Electrician in Idaho Idaho Homeowner Electrical Permit Homeowner's electrical permits the homeowner’s electrical permit may only be issued to homeowners performing basic electrical work without assistance from others. Anyone securing a permit from dopl that may include excavation activity should be aware of the legal requirements — particularly the. They must be listed as the. I recognize this permit is. Division of occupational & professional licenses I. Idaho Homeowner Electrical Permit.
From www.formsbank.com
Fillable Homeowner'S Electrical Permit Application Form City Of Idaho Homeowner Electrical Permit The homeowner’s electrical permit may only be issued to homeowners performing basic electrical work without physical assistance from. They must be listed as the. Division of occupational & professional licenses I recognize this permit is. I certify that i am the owner of the residential property and will personally perform the work covered by this permit. Anyone securing a permit. Idaho Homeowner Electrical Permit.
From www.pdffiller.com
Fillable Online ELECTRICAL TEMPORARY CONSTRUCTION OPERATING PERMIT Idaho Homeowner Electrical Permit Division of occupational & professional licenses The homeowner’s electrical permit may only be issued to homeowners performing basic electrical work without physical assistance from. Any electrical wiring installations requiring an electrical permit and inspection as defined in this code shall be installed by a state licensed. I certify that i am the owner of the residential property and will personally. Idaho Homeowner Electrical Permit.
From formspal.com
Electrical Permit Application PDF Form FormsPal Idaho Homeowner Electrical Permit I certify that i am the owner of the residential property and will personally perform the work covered by this permit. Any electrical wiring installations requiring an electrical permit and inspection as defined in this code shall be installed by a state licensed. Homeowner's electrical permits the homeowner’s electrical permit may only be issued to homeowners performing basic electrical work. Idaho Homeowner Electrical Permit.
From www.pdffiller.com
Fillable Online dnv Homeowner Electrical Permit Application District Idaho Homeowner Electrical Permit I recognize this permit is. I certify that i am the owner of the residential property and will personally perform the work covered by this permit. The homeowner’s electrical permit may only be issued to homeowners performing basic electrical work without physical assistance from. Homeowner's electrical permits the homeowner’s electrical permit may only be issued to homeowners performing basic electrical. Idaho Homeowner Electrical Permit.
From www.pdffiller.com
Fillable Online Homeowner Electrical Permit City of Shoreview Schedule Idaho Homeowner Electrical Permit Homeowner's electrical permits the homeowner’s electrical permit may only be issued to homeowners performing basic electrical work without assistance from others. The homeowner’s electrical permit may only be issued to homeowners performing basic electrical work without physical assistance from. I recognize this permit is. Anyone securing a permit from dopl that may include excavation activity should be aware of the. Idaho Homeowner Electrical Permit.
From www.haspod.com
Electrical Permit to Work Template HASpod Idaho Homeowner Electrical Permit The homeowner’s electrical permit may only be issued to homeowners performing basic electrical work without physical assistance from. Any electrical wiring installations requiring an electrical permit and inspection as defined in this code shall be installed by a state licensed. Anyone securing a permit from dopl that may include excavation activity should be aware of the legal requirements — particularly. Idaho Homeowner Electrical Permit.
From studylib.net
homeowner permits and electrical wiring guide Idaho Homeowner Electrical Permit The homeowner’s electrical permit may only be issued to homeowners performing basic electrical work without physical assistance from. They must be listed as the. I recognize this permit is. Anyone securing a permit from dopl that may include excavation activity should be aware of the legal requirements — particularly the. Any electrical wiring installations requiring an electrical permit and inspection. Idaho Homeowner Electrical Permit.