Arbroath Industrial Estate . Conveniently located between the lowlands and speyside, drambond arbroath is ideally situated for distillers from all corners of scotland. Plans to site a 50mw battery energy storage in the centre of an arbroath industrial estate have been lodged with angus council. Sir william smith road, kirkton industrial estate, arbroath, dd11 3rd. The company has submitted final plans to angus council for elliot industrial estate on dundee road in arbroath. Our prime location ensures easy access. As we build our bonded warehouse, please stay updated with our progress through the timeline below. Drambond specialises in bonded warehousing, with a particular emphasis on maturation warehouses for the scotch whisky. Passing rent £18,000 per annum offers over £200,000 niy 8.77% location the property is located on the east side of sir william smith.
from www.loopnet.com
Drambond specialises in bonded warehousing, with a particular emphasis on maturation warehouses for the scotch whisky. Sir william smith road, kirkton industrial estate, arbroath, dd11 3rd. Plans to site a 50mw battery energy storage in the centre of an arbroath industrial estate have been lodged with angus council. Conveniently located between the lowlands and speyside, drambond arbroath is ideally situated for distillers from all corners of scotland. Our prime location ensures easy access. The company has submitted final plans to angus council for elliot industrial estate on dundee road in arbroath. As we build our bonded warehouse, please stay updated with our progress through the timeline below. Passing rent £18,000 per annum offers over £200,000 niy 8.77% location the property is located on the east side of sir william smith.
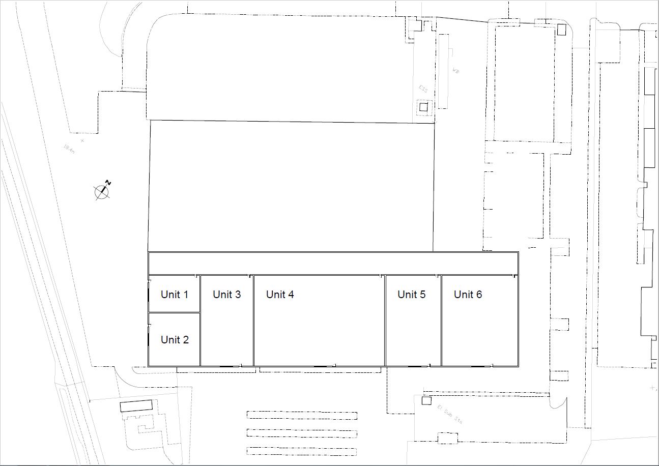
Peasiehill Rd, Arbroath, DD11 2NJ Industrial for Lease
Arbroath Industrial Estate Drambond specialises in bonded warehousing, with a particular emphasis on maturation warehouses for the scotch whisky. Passing rent £18,000 per annum offers over £200,000 niy 8.77% location the property is located on the east side of sir william smith. Our prime location ensures easy access. Conveniently located between the lowlands and speyside, drambond arbroath is ideally situated for distillers from all corners of scotland. Drambond specialises in bonded warehousing, with a particular emphasis on maturation warehouses for the scotch whisky. As we build our bonded warehouse, please stay updated with our progress through the timeline below. Plans to site a 50mw battery energy storage in the centre of an arbroath industrial estate have been lodged with angus council. The company has submitted final plans to angus council for elliot industrial estate on dundee road in arbroath. Sir william smith road, kirkton industrial estate, arbroath, dd11 3rd.
From www.loopnet.com
Peasiehill Rd, Arbroath, DD11 2NJ Industrial for Lease Arbroath Industrial Estate Sir william smith road, kirkton industrial estate, arbroath, dd11 3rd. The company has submitted final plans to angus council for elliot industrial estate on dundee road in arbroath. Conveniently located between the lowlands and speyside, drambond arbroath is ideally situated for distillers from all corners of scotland. Plans to site a 50mw battery energy storage in the centre of an. Arbroath Industrial Estate.
From www.galbraithgroup.com
Letham Grange Potato Sheds, Letham Grange, Arbroath, Angus, DD11 4RL Galbraith Arbroath Industrial Estate Drambond specialises in bonded warehousing, with a particular emphasis on maturation warehouses for the scotch whisky. Passing rent £18,000 per annum offers over £200,000 niy 8.77% location the property is located on the east side of sir william smith. The company has submitted final plans to angus council for elliot industrial estate on dundee road in arbroath. Sir william smith. Arbroath Industrial Estate.
From www.flickr.com
Eddie Stobart Location Elliot Industrial Estate, Arbroath… Flickr Arbroath Industrial Estate Our prime location ensures easy access. The company has submitted final plans to angus council for elliot industrial estate on dundee road in arbroath. Plans to site a 50mw battery energy storage in the centre of an arbroath industrial estate have been lodged with angus council. Passing rent £18,000 per annum offers over £200,000 niy 8.77% location the property is. Arbroath Industrial Estate.
From visitangus.com
Things to see and do in Arbroath Visit Angus Arbroath Industrial Estate The company has submitted final plans to angus council for elliot industrial estate on dundee road in arbroath. As we build our bonded warehouse, please stay updated with our progress through the timeline below. Passing rent £18,000 per annum offers over £200,000 niy 8.77% location the property is located on the east side of sir william smith. Plans to site. Arbroath Industrial Estate.
From levelbestconcreteflooring.co.uk
Concrete flooring contractors complete industrial warehouse in Arbroath Level Best Concrete Arbroath Industrial Estate Drambond specialises in bonded warehousing, with a particular emphasis on maturation warehouses for the scotch whisky. Plans to site a 50mw battery energy storage in the centre of an arbroath industrial estate have been lodged with angus council. Conveniently located between the lowlands and speyside, drambond arbroath is ideally situated for distillers from all corners of scotland. The company has. Arbroath Industrial Estate.
From www.alamy.com
The Munch Box, a Mobile Catering unit placed on Kirkton Industrial estate in Arbroath, and Arbroath Industrial Estate Sir william smith road, kirkton industrial estate, arbroath, dd11 3rd. The company has submitted final plans to angus council for elliot industrial estate on dundee road in arbroath. Passing rent £18,000 per annum offers over £200,000 niy 8.77% location the property is located on the east side of sir william smith. Our prime location ensures easy access. Drambond specialises in. Arbroath Industrial Estate.
From propertylink.estatesgazette.com
54 commercial properties for rent in Angus, UK Page 1 Arbroath Industrial Estate Plans to site a 50mw battery energy storage in the centre of an arbroath industrial estate have been lodged with angus council. Our prime location ensures easy access. Drambond specialises in bonded warehousing, with a particular emphasis on maturation warehouses for the scotch whisky. The company has submitted final plans to angus council for elliot industrial estate on dundee road. Arbroath Industrial Estate.
From www.zoopla.co.uk
Industrial to let in Kings Works, Sir William Smith Road, Kirkton Industrial Estate, Arbroath Arbroath Industrial Estate The company has submitted final plans to angus council for elliot industrial estate on dundee road in arbroath. Passing rent £18,000 per annum offers over £200,000 niy 8.77% location the property is located on the east side of sir william smith. Drambond specialises in bonded warehousing, with a particular emphasis on maturation warehouses for the scotch whisky. As we build. Arbroath Industrial Estate.
From www.galbraithgroup.com
Letham Grange Potato Sheds, Letham Grange, Arbroath, Angus, DD11 4RL Galbraith Arbroath Industrial Estate As we build our bonded warehouse, please stay updated with our progress through the timeline below. Sir william smith road, kirkton industrial estate, arbroath, dd11 3rd. Drambond specialises in bonded warehousing, with a particular emphasis on maturation warehouses for the scotch whisky. Passing rent £18,000 per annum offers over £200,000 niy 8.77% location the property is located on the east. Arbroath Industrial Estate.
From www.thecourier.co.uk
50MW Arbroath industrial estate battery plant bid lodged Arbroath Industrial Estate As we build our bonded warehouse, please stay updated with our progress through the timeline below. Sir william smith road, kirkton industrial estate, arbroath, dd11 3rd. Passing rent £18,000 per annum offers over £200,000 niy 8.77% location the property is located on the east side of sir william smith. The company has submitted final plans to angus council for elliot. Arbroath Industrial Estate.
From www.dreamstime.com
Arbroath Boat Building Yard, Arbroath Harbour, Angus, Scotland, UK Stock Photo Image of boats Arbroath Industrial Estate Our prime location ensures easy access. Sir william smith road, kirkton industrial estate, arbroath, dd11 3rd. The company has submitted final plans to angus council for elliot industrial estate on dundee road in arbroath. Plans to site a 50mw battery energy storage in the centre of an arbroath industrial estate have been lodged with angus council. Drambond specialises in bonded. Arbroath Industrial Estate.
From www.galbraithgroup.com
Letham Grange Potato Sheds, Letham Grange, Arbroath, Angus, DD11 4RL Galbraith Arbroath Industrial Estate Conveniently located between the lowlands and speyside, drambond arbroath is ideally situated for distillers from all corners of scotland. Our prime location ensures easy access. The company has submitted final plans to angus council for elliot industrial estate on dundee road in arbroath. Drambond specialises in bonded warehousing, with a particular emphasis on maturation warehouses for the scotch whisky. As. Arbroath Industrial Estate.
From www.alamy.com
Industrial Remains High Resolution Stock Photography and Images Alamy Arbroath Industrial Estate Drambond specialises in bonded warehousing, with a particular emphasis on maturation warehouses for the scotch whisky. The company has submitted final plans to angus council for elliot industrial estate on dundee road in arbroath. Our prime location ensures easy access. As we build our bonded warehouse, please stay updated with our progress through the timeline below. Conveniently located between the. Arbroath Industrial Estate.
From www.maplesteesdale.co.uk
Mileway Real Estate UK Maples Teesdale Arbroath Industrial Estate Conveniently located between the lowlands and speyside, drambond arbroath is ideally situated for distillers from all corners of scotland. Passing rent £18,000 per annum offers over £200,000 niy 8.77% location the property is located on the east side of sir william smith. Plans to site a 50mw battery energy storage in the centre of an arbroath industrial estate have been. Arbroath Industrial Estate.
From www.loopnet.com
Peasiehill Rd, Arbroath, DD11 2NJ Industrial for Lease Arbroath Industrial Estate The company has submitted final plans to angus council for elliot industrial estate on dundee road in arbroath. Passing rent £18,000 per annum offers over £200,000 niy 8.77% location the property is located on the east side of sir william smith. Conveniently located between the lowlands and speyside, drambond arbroath is ideally situated for distillers from all corners of scotland.. Arbroath Industrial Estate.
From www.alamy.com
Rnli arbroath hires stock photography and images Alamy Arbroath Industrial Estate Drambond specialises in bonded warehousing, with a particular emphasis on maturation warehouses for the scotch whisky. The company has submitted final plans to angus council for elliot industrial estate on dundee road in arbroath. Conveniently located between the lowlands and speyside, drambond arbroath is ideally situated for distillers from all corners of scotland. Plans to site a 50mw battery energy. Arbroath Industrial Estate.
From www.bbc.co.uk
Arbroath business park 'will boost' town BBC News Arbroath Industrial Estate Our prime location ensures easy access. Passing rent £18,000 per annum offers over £200,000 niy 8.77% location the property is located on the east side of sir william smith. Drambond specialises in bonded warehousing, with a particular emphasis on maturation warehouses for the scotch whisky. The company has submitted final plans to angus council for elliot industrial estate on dundee. Arbroath Industrial Estate.
From www.thecourier.co.uk
Jobs saved as collapsed Arbroath firm sold on Arbroath Industrial Estate The company has submitted final plans to angus council for elliot industrial estate on dundee road in arbroath. Plans to site a 50mw battery energy storage in the centre of an arbroath industrial estate have been lodged with angus council. Sir william smith road, kirkton industrial estate, arbroath, dd11 3rd. Conveniently located between the lowlands and speyside, drambond arbroath is. Arbroath Industrial Estate.
From www.dreamstime.com
A Derelict Industrial Building on the Kirkton Industrial Estate in Arbroath. Editorial Stock Arbroath Industrial Estate As we build our bonded warehouse, please stay updated with our progress through the timeline below. Plans to site a 50mw battery energy storage in the centre of an arbroath industrial estate have been lodged with angus council. The company has submitted final plans to angus council for elliot industrial estate on dundee road in arbroath. Passing rent £18,000 per. Arbroath Industrial Estate.
From www.zoopla.co.uk
Industrial to let in Elliot Industrial Estate, Arbroath DD11 Zoopla Arbroath Industrial Estate Plans to site a 50mw battery energy storage in the centre of an arbroath industrial estate have been lodged with angus council. Conveniently located between the lowlands and speyside, drambond arbroath is ideally situated for distillers from all corners of scotland. Sir william smith road, kirkton industrial estate, arbroath, dd11 3rd. The company has submitted final plans to angus council. Arbroath Industrial Estate.
From www.flickr.com
Arbroath Bradford estate A view of Hill Terrace, Arbroath,… Flickr Arbroath Industrial Estate The company has submitted final plans to angus council for elliot industrial estate on dundee road in arbroath. Sir william smith road, kirkton industrial estate, arbroath, dd11 3rd. As we build our bonded warehouse, please stay updated with our progress through the timeline below. Drambond specialises in bonded warehousing, with a particular emphasis on maturation warehouses for the scotch whisky.. Arbroath Industrial Estate.
From www.importyeti.com
Macintyre Chocolate Systems Sir William Smith Road Kirkton Industrial Estate Arbroath Arbroath Industrial Estate As we build our bonded warehouse, please stay updated with our progress through the timeline below. Our prime location ensures easy access. Passing rent £18,000 per annum offers over £200,000 niy 8.77% location the property is located on the east side of sir william smith. Plans to site a 50mw battery energy storage in the centre of an arbroath industrial. Arbroath Industrial Estate.
From www.proplist.com
To Let Sir William Smith Road, Kirkton Industrial Estate, Arbroath, DD11 3RD PropList Arbroath Industrial Estate Conveniently located between the lowlands and speyside, drambond arbroath is ideally situated for distillers from all corners of scotland. The company has submitted final plans to angus council for elliot industrial estate on dundee road in arbroath. Plans to site a 50mw battery energy storage in the centre of an arbroath industrial estate have been lodged with angus council. Our. Arbroath Industrial Estate.
From www.alamy.com
An aerial view of Trafford Park Industrial Estate, Manchester, North West England, UK Stock Arbroath Industrial Estate Drambond specialises in bonded warehousing, with a particular emphasis on maturation warehouses for the scotch whisky. The company has submitted final plans to angus council for elliot industrial estate on dundee road in arbroath. Sir william smith road, kirkton industrial estate, arbroath, dd11 3rd. Our prime location ensures easy access. Passing rent £18,000 per annum offers over £200,000 niy 8.77%. Arbroath Industrial Estate.
From www.zoopla.co.uk
Industrial for sale in Peasiehill Road, Elliot Industrial Estate, Arbroath DD11 Zoopla Arbroath Industrial Estate As we build our bonded warehouse, please stay updated with our progress through the timeline below. Conveniently located between the lowlands and speyside, drambond arbroath is ideally situated for distillers from all corners of scotland. Sir william smith road, kirkton industrial estate, arbroath, dd11 3rd. Our prime location ensures easy access. The company has submitted final plans to angus council. Arbroath Industrial Estate.
From www.proplist.com
To Let Unit 6, Peasiehill Road, Elliot Industrial Estate, Arbroath, DD11 2NJ PropList Arbroath Industrial Estate Plans to site a 50mw battery energy storage in the centre of an arbroath industrial estate have been lodged with angus council. Sir william smith road, kirkton industrial estate, arbroath, dd11 3rd. Passing rent £18,000 per annum offers over £200,000 niy 8.77% location the property is located on the east side of sir william smith. Our prime location ensures easy. Arbroath Industrial Estate.
From try.yorkshirepost.co.uk
Arbroath breakins Police appeal for information after two men break into industrial estate and Arbroath Industrial Estate Our prime location ensures easy access. Sir william smith road, kirkton industrial estate, arbroath, dd11 3rd. Drambond specialises in bonded warehousing, with a particular emphasis on maturation warehouses for the scotch whisky. Conveniently located between the lowlands and speyside, drambond arbroath is ideally situated for distillers from all corners of scotland. Plans to site a 50mw battery energy storage in. Arbroath Industrial Estate.
From www.loopnet.com
Peasiehill Rd, Arbroath, DD11 2NJ Industrial for Lease Arbroath Industrial Estate Sir william smith road, kirkton industrial estate, arbroath, dd11 3rd. Passing rent £18,000 per annum offers over £200,000 niy 8.77% location the property is located on the east side of sir william smith. The company has submitted final plans to angus council for elliot industrial estate on dundee road in arbroath. Drambond specialises in bonded warehousing, with a particular emphasis. Arbroath Industrial Estate.
From propertylink.estatesgazette.com
Property To Let Unit 6, Sands Ten Industrial Estate, High HP12 4HS Arbroath Industrial Estate As we build our bonded warehouse, please stay updated with our progress through the timeline below. The company has submitted final plans to angus council for elliot industrial estate on dundee road in arbroath. Conveniently located between the lowlands and speyside, drambond arbroath is ideally situated for distillers from all corners of scotland. Passing rent £18,000 per annum offers over. Arbroath Industrial Estate.
From 2022.photofringe.org
Unit of Work Adventures in Industrial Estates, Matthew Garbutt Photo Fringe 2022 Arbroath Industrial Estate Drambond specialises in bonded warehousing, with a particular emphasis on maturation warehouses for the scotch whisky. Conveniently located between the lowlands and speyside, drambond arbroath is ideally situated for distillers from all corners of scotland. As we build our bonded warehouse, please stay updated with our progress through the timeline below. Sir william smith road, kirkton industrial estate, arbroath, dd11. Arbroath Industrial Estate.
From www.thecourier.co.uk
Angus automation specialist wins new multimillionpound contract Arbroath Industrial Estate The company has submitted final plans to angus council for elliot industrial estate on dundee road in arbroath. Sir william smith road, kirkton industrial estate, arbroath, dd11 3rd. Passing rent £18,000 per annum offers over £200,000 niy 8.77% location the property is located on the east side of sir william smith. Conveniently located between the lowlands and speyside, drambond arbroath. Arbroath Industrial Estate.
From www.flickr.com
Eddie Stobart Location Elliot Industrial Estate, Arbroath… Flickr Arbroath Industrial Estate Drambond specialises in bonded warehousing, with a particular emphasis on maturation warehouses for the scotch whisky. Conveniently located between the lowlands and speyside, drambond arbroath is ideally situated for distillers from all corners of scotland. Our prime location ensures easy access. Passing rent £18,000 per annum offers over £200,000 niy 8.77% location the property is located on the east side. Arbroath Industrial Estate.
From www.flickr.com
Eddie Stobart Location Elliot Industrial Estate, Arbroath… Flickr Arbroath Industrial Estate Drambond specialises in bonded warehousing, with a particular emphasis on maturation warehouses for the scotch whisky. As we build our bonded warehouse, please stay updated with our progress through the timeline below. Our prime location ensures easy access. Conveniently located between the lowlands and speyside, drambond arbroath is ideally situated for distillers from all corners of scotland. Sir william smith. Arbroath Industrial Estate.
From workingmancapital.com
Closing Your Factory? Workingman Capital Arbroath Industrial Estate Passing rent £18,000 per annum offers over £200,000 niy 8.77% location the property is located on the east side of sir william smith. The company has submitted final plans to angus council for elliot industrial estate on dundee road in arbroath. Sir william smith road, kirkton industrial estate, arbroath, dd11 3rd. Our prime location ensures easy access. As we build. Arbroath Industrial Estate.
From www.loopnet.com
Peasiehill Rd, Arbroath, ANS DD11 2NN Industrial for Lease Arbroath Industrial Estate Plans to site a 50mw battery energy storage in the centre of an arbroath industrial estate have been lodged with angus council. Drambond specialises in bonded warehousing, with a particular emphasis on maturation warehouses for the scotch whisky. Conveniently located between the lowlands and speyside, drambond arbroath is ideally situated for distillers from all corners of scotland. As we build. Arbroath Industrial Estate.