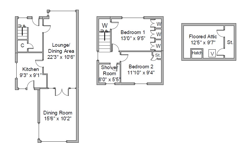
Rowan Drive Dumbarton . Discover this wonderful 5 bed, 3 bath detached house in dumbarton, west dunbartonshire. Find average house prices, current average values and other. 1 bedroom flat for sale in rowan drive, dumbarton, g82 for £70,000. Explore rightmove house prices to find out how much properties sold for in rowan drive, dumbarton, dunbartonshire, g82. A superb family home within a cul de sac setting towards the north westerly edge of dumbarton, at rowan drive. Marketed by david muir and co., dumbarton View all rowan drive properties for sale. The average house price in rowan drive, dumbarton g82 is £108,424. This semi detached villa has an. A superb family home within a cul de sac setting towards the north westerly edge of dumbarton, at rowan drive. Positioned in a peaceful neighbourhood of west. This semi detached villa has an impressive two storey extension thus.
from www.benjaminsproperty.com
Find average house prices, current average values and other. A superb family home within a cul de sac setting towards the north westerly edge of dumbarton, at rowan drive. Explore rightmove house prices to find out how much properties sold for in rowan drive, dumbarton, dunbartonshire, g82. 1 bedroom flat for sale in rowan drive, dumbarton, g82 for £70,000. View all rowan drive properties for sale. Discover this wonderful 5 bed, 3 bath detached house in dumbarton, west dunbartonshire. A superb family home within a cul de sac setting towards the north westerly edge of dumbarton, at rowan drive. This semi detached villa has an impressive two storey extension thus. The average house price in rowan drive, dumbarton g82 is £108,424. This semi detached villa has an.
Benjamins Estate Agents Rowan Drive, Nottingham, NG12 5DR
Rowan Drive Dumbarton Discover this wonderful 5 bed, 3 bath detached house in dumbarton, west dunbartonshire. Positioned in a peaceful neighbourhood of west. Explore rightmove house prices to find out how much properties sold for in rowan drive, dumbarton, dunbartonshire, g82. Discover this wonderful 5 bed, 3 bath detached house in dumbarton, west dunbartonshire. This semi detached villa has an impressive two storey extension thus. 1 bedroom flat for sale in rowan drive, dumbarton, g82 for £70,000. The average house price in rowan drive, dumbarton g82 is £108,424. Marketed by david muir and co., dumbarton A superb family home within a cul de sac setting towards the north westerly edge of dumbarton, at rowan drive. View all rowan drive properties for sale. Find average house prices, current average values and other. This semi detached villa has an. A superb family home within a cul de sac setting towards the north westerly edge of dumbarton, at rowan drive.
From www.hanover.scot
Rowan Drive, Caol Hanover Scotland Rowan Drive Dumbarton A superb family home within a cul de sac setting towards the north westerly edge of dumbarton, at rowan drive. 1 bedroom flat for sale in rowan drive, dumbarton, g82 for £70,000. Explore rightmove house prices to find out how much properties sold for in rowan drive, dumbarton, dunbartonshire, g82. View all rowan drive properties for sale. This semi detached. Rowan Drive Dumbarton.
From tours.longislandvirtual.com
17 Dumbarton Dr Virtual Tour Rowan Drive Dumbarton Marketed by david muir and co., dumbarton Explore rightmove house prices to find out how much properties sold for in rowan drive, dumbarton, dunbartonshire, g82. 1 bedroom flat for sale in rowan drive, dumbarton, g82 for £70,000. This semi detached villa has an. Discover this wonderful 5 bed, 3 bath detached house in dumbarton, west dunbartonshire. Find average house prices,. Rowan Drive Dumbarton.
From www.onthemarket.com
Rowan Drive, Dumbarton G82 5EH 5 bed semidetached house for sale £ Rowan Drive Dumbarton Marketed by david muir and co., dumbarton A superb family home within a cul de sac setting towards the north westerly edge of dumbarton, at rowan drive. View all rowan drive properties for sale. This semi detached villa has an. A superb family home within a cul de sac setting towards the north westerly edge of dumbarton, at rowan drive.. Rowan Drive Dumbarton.
From www.rightmove.co.uk
3 bedroom detached house for sale in Rowan Drive, Bearsden, East Rowan Drive Dumbarton A superb family home within a cul de sac setting towards the north westerly edge of dumbarton, at rowan drive. This semi detached villa has an impressive two storey extension thus. 1 bedroom flat for sale in rowan drive, dumbarton, g82 for £70,000. Positioned in a peaceful neighbourhood of west. View all rowan drive properties for sale. The average house. Rowan Drive Dumbarton.
From www.onthemarket.com
Rowan Drive, Royal Wootton Bassett SN4 7 4 bed semidetached house for Rowan Drive Dumbarton 1 bedroom flat for sale in rowan drive, dumbarton, g82 for £70,000. Marketed by david muir and co., dumbarton This semi detached villa has an impressive two storey extension thus. Discover this wonderful 5 bed, 3 bath detached house in dumbarton, west dunbartonshire. A superb family home within a cul de sac setting towards the north westerly edge of dumbarton,. Rowan Drive Dumbarton.
From www.propertypal.com
70d Rowan Drive, Dunmurry, Belfast Rowan Drive Dumbarton Explore rightmove house prices to find out how much properties sold for in rowan drive, dumbarton, dunbartonshire, g82. A superb family home within a cul de sac setting towards the north westerly edge of dumbarton, at rowan drive. View all rowan drive properties for sale. A superb family home within a cul de sac setting towards the north westerly edge. Rowan Drive Dumbarton.
From www.yopa.co.uk
Property for sale on Rowan Drive, Dumfries Yopa Rowan Drive Dumbarton This semi detached villa has an. Find average house prices, current average values and other. Discover this wonderful 5 bed, 3 bath detached house in dumbarton, west dunbartonshire. The average house price in rowan drive, dumbarton g82 is £108,424. Marketed by david muir and co., dumbarton Positioned in a peaceful neighbourhood of west. Explore rightmove house prices to find out. Rowan Drive Dumbarton.
From www.youtube.com
Rowan Drive Dumbarton Video Tour YouTube Rowan Drive Dumbarton Marketed by david muir and co., dumbarton Discover this wonderful 5 bed, 3 bath detached house in dumbarton, west dunbartonshire. Explore rightmove house prices to find out how much properties sold for in rowan drive, dumbarton, dunbartonshire, g82. Find average house prices, current average values and other. This semi detached villa has an impressive two storey extension thus. A superb. Rowan Drive Dumbarton.
From www.youtube.com
Virtual Tour of 1 Rowan Drive YouTube Rowan Drive Dumbarton A superb family home within a cul de sac setting towards the north westerly edge of dumbarton, at rowan drive. This semi detached villa has an impressive two storey extension thus. View all rowan drive properties for sale. The average house price in rowan drive, dumbarton g82 is £108,424. Marketed by david muir and co., dumbarton 1 bedroom flat for. Rowan Drive Dumbarton.
From www.yopa.co.uk
Property for sale on Rowan Drive, Dumfries Yopa Rowan Drive Dumbarton Find average house prices, current average values and other. A superb family home within a cul de sac setting towards the north westerly edge of dumbarton, at rowan drive. This semi detached villa has an impressive two storey extension thus. Discover this wonderful 5 bed, 3 bath detached house in dumbarton, west dunbartonshire. Explore rightmove house prices to find out. Rowan Drive Dumbarton.
From www.zoopla.co.uk
3 bed semidetached house for sale in Rowan Drive, Bearsden, Glasgow Rowan Drive Dumbarton Explore rightmove house prices to find out how much properties sold for in rowan drive, dumbarton, dunbartonshire, g82. Discover this wonderful 5 bed, 3 bath detached house in dumbarton, west dunbartonshire. The average house price in rowan drive, dumbarton g82 is £108,424. This semi detached villa has an. Marketed by david muir and co., dumbarton Find average house prices, current. Rowan Drive Dumbarton.
From app.cloudpano.com
Rowan Drive Rowan Drive Dumbarton Positioned in a peaceful neighbourhood of west. 1 bedroom flat for sale in rowan drive, dumbarton, g82 for £70,000. Discover this wonderful 5 bed, 3 bath detached house in dumbarton, west dunbartonshire. This semi detached villa has an impressive two storey extension thus. Find average house prices, current average values and other. View all rowan drive properties for sale. Marketed. Rowan Drive Dumbarton.
From www.benjaminsproperty.com
Benjamins Estate Agents Rowan Drive, Nottingham, NG12 5DR Rowan Drive Dumbarton The average house price in rowan drive, dumbarton g82 is £108,424. This semi detached villa has an. View all rowan drive properties for sale. Marketed by david muir and co., dumbarton A superb family home within a cul de sac setting towards the north westerly edge of dumbarton, at rowan drive. Find average house prices, current average values and other.. Rowan Drive Dumbarton.
From www.onthemarket.com
Rowan Drive, Heybridge 3 bed semidetached house £367,500 Rowan Drive Dumbarton The average house price in rowan drive, dumbarton g82 is £108,424. A superb family home within a cul de sac setting towards the north westerly edge of dumbarton, at rowan drive. This semi detached villa has an. 1 bedroom flat for sale in rowan drive, dumbarton, g82 for £70,000. This semi detached villa has an impressive two storey extension thus.. Rowan Drive Dumbarton.
From www.onthemarket.com
Rowan Drive, Brasside, Durham 3 bed end of terrace house £150,000 Rowan Drive Dumbarton View all rowan drive properties for sale. Discover this wonderful 5 bed, 3 bath detached house in dumbarton, west dunbartonshire. A superb family home within a cul de sac setting towards the north westerly edge of dumbarton, at rowan drive. The average house price in rowan drive, dumbarton g82 is £108,424. Positioned in a peaceful neighbourhood of west. Explore rightmove. Rowan Drive Dumbarton.
From www.onthemarket.com
Rowan Drive, Bearsden, East Dunbartonshire, G61 3HJ 2 bed semidetached Rowan Drive Dumbarton Positioned in a peaceful neighbourhood of west. Discover this wonderful 5 bed, 3 bath detached house in dumbarton, west dunbartonshire. Explore rightmove house prices to find out how much properties sold for in rowan drive, dumbarton, dunbartonshire, g82. This semi detached villa has an impressive two storey extension thus. View all rowan drive properties for sale. A superb family home. Rowan Drive Dumbarton.
From www.gpmproperty.com
Offers over £244,950 McGregor Drive, Dumbarton Rowan Drive Dumbarton Find average house prices, current average values and other. Discover this wonderful 5 bed, 3 bath detached house in dumbarton, west dunbartonshire. This semi detached villa has an impressive two storey extension thus. A superb family home within a cul de sac setting towards the north westerly edge of dumbarton, at rowan drive. Positioned in a peaceful neighbourhood of west.. Rowan Drive Dumbarton.
From www.geograph.org.uk
Rowan Drive, Blackburn © M J Richardson ccbysa/2.0 Geograph Rowan Drive Dumbarton View all rowan drive properties for sale. A superb family home within a cul de sac setting towards the north westerly edge of dumbarton, at rowan drive. Discover this wonderful 5 bed, 3 bath detached house in dumbarton, west dunbartonshire. Explore rightmove house prices to find out how much properties sold for in rowan drive, dumbarton, dunbartonshire, g82. A superb. Rowan Drive Dumbarton.
From www.zoopla.co.uk
2 bed semidetached house for sale in Rowan Drive, Bearsden, Glasgow Rowan Drive Dumbarton Explore rightmove house prices to find out how much properties sold for in rowan drive, dumbarton, dunbartonshire, g82. View all rowan drive properties for sale. This semi detached villa has an impressive two storey extension thus. A superb family home within a cul de sac setting towards the north westerly edge of dumbarton, at rowan drive. The average house price. Rowan Drive Dumbarton.
From www.lomondletting.com
Properties to Let in West Dunbartonshire Lomond Lettings Rowan Drive Dumbarton A superb family home within a cul de sac setting towards the north westerly edge of dumbarton, at rowan drive. View all rowan drive properties for sale. 1 bedroom flat for sale in rowan drive, dumbarton, g82 for £70,000. Positioned in a peaceful neighbourhood of west. Explore rightmove house prices to find out how much properties sold for in rowan. Rowan Drive Dumbarton.
From www.davidmuirestates.com
Rowan Drive, Dumbarton David Muir Estate Agents Rowan Drive Dumbarton Marketed by david muir and co., dumbarton Explore rightmove house prices to find out how much properties sold for in rowan drive, dumbarton, dunbartonshire, g82. Discover this wonderful 5 bed, 3 bath detached house in dumbarton, west dunbartonshire. Find average house prices, current average values and other. This semi detached villa has an impressive two storey extension thus. 1 bedroom. Rowan Drive Dumbarton.
From www.onthemarket.com
Kinglas Drive, Dumbarton, WDC, G82 2BT 4 bed detached house £1,750 Rowan Drive Dumbarton This semi detached villa has an impressive two storey extension thus. A superb family home within a cul de sac setting towards the north westerly edge of dumbarton, at rowan drive. This semi detached villa has an. View all rowan drive properties for sale. Find average house prices, current average values and other. The average house price in rowan drive,. Rowan Drive Dumbarton.
From www.clydeproperty.co.uk
Rowan Drive, Bearsden, East Dunbartonshire, G61 3HQ Clyde Property Ltd Rowan Drive Dumbarton Discover this wonderful 5 bed, 3 bath detached house in dumbarton, west dunbartonshire. Find average house prices, current average values and other. A superb family home within a cul de sac setting towards the north westerly edge of dumbarton, at rowan drive. Marketed by david muir and co., dumbarton This semi detached villa has an impressive two storey extension thus.. Rowan Drive Dumbarton.
From www.primelocation.com
Rowan Drive, Bearsden, East Dunbartonshire G61, 2 bedroom semidetached Rowan Drive Dumbarton This semi detached villa has an impressive two storey extension thus. Positioned in a peaceful neighbourhood of west. 1 bedroom flat for sale in rowan drive, dumbarton, g82 for £70,000. This semi detached villa has an. Find average house prices, current average values and other. Explore rightmove house prices to find out how much properties sold for in rowan drive,. Rowan Drive Dumbarton.
From www.onthemarket.com
Rowan Drive, Newport 3 bed link detached house £895 pcm (£207 pw) Rowan Drive Dumbarton The average house price in rowan drive, dumbarton g82 is £108,424. A superb family home within a cul de sac setting towards the north westerly edge of dumbarton, at rowan drive. 1 bedroom flat for sale in rowan drive, dumbarton, g82 for £70,000. A superb family home within a cul de sac setting towards the north westerly edge of dumbarton,. Rowan Drive Dumbarton.
From www.caledoniabureau.co.uk
Orissa Drive, Dumbarton G82 1AB Caledonia Bureau Rowan Drive Dumbarton This semi detached villa has an. Explore rightmove house prices to find out how much properties sold for in rowan drive, dumbarton, dunbartonshire, g82. Marketed by david muir and co., dumbarton A superb family home within a cul de sac setting towards the north westerly edge of dumbarton, at rowan drive. Discover this wonderful 5 bed, 3 bath detached house. Rowan Drive Dumbarton.
From www.davidmuirestates.com
Rowan Drive, Dumbarton David Muir Estate Agents Rowan Drive Dumbarton 1 bedroom flat for sale in rowan drive, dumbarton, g82 for £70,000. A superb family home within a cul de sac setting towards the north westerly edge of dumbarton, at rowan drive. The average house price in rowan drive, dumbarton g82 is £108,424. Find average house prices, current average values and other. This semi detached villa has an impressive two. Rowan Drive Dumbarton.
From www.geograph.org.uk
Rowan Drive, Blackburn © M J Richardson Geograph Britain and Ireland Rowan Drive Dumbarton 1 bedroom flat for sale in rowan drive, dumbarton, g82 for £70,000. A superb family home within a cul de sac setting towards the north westerly edge of dumbarton, at rowan drive. Positioned in a peaceful neighbourhood of west. View all rowan drive properties for sale. A superb family home within a cul de sac setting towards the north westerly. Rowan Drive Dumbarton.
From app.cloudpano.com
Rowan Drive Rowan Drive Dumbarton A superb family home within a cul de sac setting towards the north westerly edge of dumbarton, at rowan drive. Marketed by david muir and co., dumbarton Find average house prices, current average values and other. Discover this wonderful 5 bed, 3 bath detached house in dumbarton, west dunbartonshire. This semi detached villa has an impressive two storey extension thus.. Rowan Drive Dumbarton.
From www.onthemarket.com
Rowan Drive, Heybridge 2 bed terraced house £260,000 Rowan Drive Dumbarton This semi detached villa has an. Explore rightmove house prices to find out how much properties sold for in rowan drive, dumbarton, dunbartonshire, g82. View all rowan drive properties for sale. Marketed by david muir and co., dumbarton A superb family home within a cul de sac setting towards the north westerly edge of dumbarton, at rowan drive. Find average. Rowan Drive Dumbarton.
From www.youtube.com
66 Rowan Drive, Bearsden, East Dunbartonshire G61 3HJ YouTube Rowan Drive Dumbarton Marketed by david muir and co., dumbarton 1 bedroom flat for sale in rowan drive, dumbarton, g82 for £70,000. Discover this wonderful 5 bed, 3 bath detached house in dumbarton, west dunbartonshire. A superb family home within a cul de sac setting towards the north westerly edge of dumbarton, at rowan drive. Positioned in a peaceful neighbourhood of west. Find. Rowan Drive Dumbarton.
From www.caledoniabureau.co.uk
Sutherland Drive, Dumbarton G82 3NT Caledonia Bureau Rowan Drive Dumbarton Explore rightmove house prices to find out how much properties sold for in rowan drive, dumbarton, dunbartonshire, g82. A superb family home within a cul de sac setting towards the north westerly edge of dumbarton, at rowan drive. This semi detached villa has an. Positioned in a peaceful neighbourhood of west. Find average house prices, current average values and other.. Rowan Drive Dumbarton.
From www.clydeproperty.co.uk
Rowan Drive, Bearsden, East Dunbartonshire, G61 3HQ Clyde Property Ltd Rowan Drive Dumbarton Find average house prices, current average values and other. A superb family home within a cul de sac setting towards the north westerly edge of dumbarton, at rowan drive. View all rowan drive properties for sale. The average house price in rowan drive, dumbarton g82 is £108,424. Discover this wonderful 5 bed, 3 bath detached house in dumbarton, west dunbartonshire.. Rowan Drive Dumbarton.
From www.acandco.com
64 Rowan Drive, Westhill, AB32 6QB Aberdein Considine Rowan Drive Dumbarton This semi detached villa has an. Positioned in a peaceful neighbourhood of west. 1 bedroom flat for sale in rowan drive, dumbarton, g82 for £70,000. View all rowan drive properties for sale. This semi detached villa has an impressive two storey extension thus. A superb family home within a cul de sac setting towards the north westerly edge of dumbarton,. Rowan Drive Dumbarton.
From www.yopa.co.uk
Property for sale on Rowan Drive, Dumfries Yopa Rowan Drive Dumbarton Discover this wonderful 5 bed, 3 bath detached house in dumbarton, west dunbartonshire. This semi detached villa has an impressive two storey extension thus. A superb family home within a cul de sac setting towards the north westerly edge of dumbarton, at rowan drive. 1 bedroom flat for sale in rowan drive, dumbarton, g82 for £70,000. Positioned in a peaceful. Rowan Drive Dumbarton.