Water Bore Drilling Licence Qld . New application for a queensland water bore driller’s licence or upgrade an existing queensland water bore driller’s licence. Information about authorisations in water areas, rural water use and groundwater in queensland. Learn how to apply for a water bore driller's licence, find a driller, and comply with construction standards in queensland. You will need this licence to undertake water bore activities, such as to carry out drilling operations in artesian and subartesian aquifer systems. Learn how to access, construct and licence water bores in queensland. Find out about bore reports, underground water extraction and construction. Licences, permits, approvals for water use. This helps protect groundwater resources by. Guidelines apply to the use and allocation of water resources in queensland. Queensland is part of a national licensing system for water bore drillers. In queensland, all water bore drilling activities must be undertaken by, or under the constant physical supervision of, an appropriately.
from www.gibsondrilling.com.au
Information about authorisations in water areas, rural water use and groundwater in queensland. Find out about bore reports, underground water extraction and construction. New application for a queensland water bore driller’s licence or upgrade an existing queensland water bore driller’s licence. Learn how to apply for a water bore driller's licence, find a driller, and comply with construction standards in queensland. Queensland is part of a national licensing system for water bore drillers. Licences, permits, approvals for water use. You will need this licence to undertake water bore activities, such as to carry out drilling operations in artesian and subartesian aquifer systems. Guidelines apply to the use and allocation of water resources in queensland. This helps protect groundwater resources by. Learn how to access, construct and licence water bores in queensland.
Water Bore Drilling in Mitchell Gibson Drilling Services
Water Bore Drilling Licence Qld Learn how to access, construct and licence water bores in queensland. Guidelines apply to the use and allocation of water resources in queensland. This helps protect groundwater resources by. In queensland, all water bore drilling activities must be undertaken by, or under the constant physical supervision of, an appropriately. You will need this licence to undertake water bore activities, such as to carry out drilling operations in artesian and subartesian aquifer systems. Learn how to apply for a water bore driller's licence, find a driller, and comply with construction standards in queensland. Learn how to access, construct and licence water bores in queensland. Licences, permits, approvals for water use. Queensland is part of a national licensing system for water bore drillers. Information about authorisations in water areas, rural water use and groundwater in queensland. New application for a queensland water bore driller’s licence or upgrade an existing queensland water bore driller’s licence. Find out about bore reports, underground water extraction and construction.
From cheyennedrilling.com.au
Water Bore Drilling in Wide Cheyenne Drilling Water Bore Drilling Licence Qld Find out about bore reports, underground water extraction and construction. Queensland is part of a national licensing system for water bore drillers. You will need this licence to undertake water bore activities, such as to carry out drilling operations in artesian and subartesian aquifer systems. Guidelines apply to the use and allocation of water resources in queensland. Learn how to. Water Bore Drilling Licence Qld.
From www.centrestatedrilling.com.au
Centre State Drilling Water Bores Centre State Drilling Water Bores Information Water Bore Drilling Licence Qld You will need this licence to undertake water bore activities, such as to carry out drilling operations in artesian and subartesian aquifer systems. Information about authorisations in water areas, rural water use and groundwater in queensland. Queensland is part of a national licensing system for water bore drillers. Find out about bore reports, underground water extraction and construction. This helps. Water Bore Drilling Licence Qld.
From qldgroundwater.com.au
Services Water Bore Drilling Pump Supply Queensland Groundwater Solutions Water Bore Drilling Licence Qld Find out about bore reports, underground water extraction and construction. This helps protect groundwater resources by. Guidelines apply to the use and allocation of water resources in queensland. Licences, permits, approvals for water use. You will need this licence to undertake water bore activities, such as to carry out drilling operations in artesian and subartesian aquifer systems. Queensland is part. Water Bore Drilling Licence Qld.
From www.kowaltzkedrilling.com.au
Water Bore Driller in Toowoomba Region Kowaltzke Drilling Services Water Bore Drilling Licence Qld Learn how to access, construct and licence water bores in queensland. In queensland, all water bore drilling activities must be undertaken by, or under the constant physical supervision of, an appropriately. Learn how to apply for a water bore driller's licence, find a driller, and comply with construction standards in queensland. Licences, permits, approvals for water use. Guidelines apply to. Water Bore Drilling Licence Qld.
From www.griddrilling.com
Water Bore Drilling Near Me in Queensland Grid Drilling Water Bore Drilling Licence Qld Learn how to access, construct and licence water bores in queensland. You will need this licence to undertake water bore activities, such as to carry out drilling operations in artesian and subartesian aquifer systems. Guidelines apply to the use and allocation of water resources in queensland. This helps protect groundwater resources by. In queensland, all water bore drilling activities must. Water Bore Drilling Licence Qld.
From www.kimaculla.com
Water Boring Kimaculla Drilling & Boring Water Bore Drilling Licence Qld Learn how to apply for a water bore driller's licence, find a driller, and comply with construction standards in queensland. New application for a queensland water bore driller’s licence or upgrade an existing queensland water bore driller’s licence. Learn how to access, construct and licence water bores in queensland. This helps protect groundwater resources by. Information about authorisations in water. Water Bore Drilling Licence Qld.
From www.rockwelldrilling.com.au
Rockwell Drilling Services, NSW, VIC, QLD Geotechnical, Environmental, Testing, Plant Hire Water Bore Drilling Licence Qld Information about authorisations in water areas, rural water use and groundwater in queensland. You will need this licence to undertake water bore activities, such as to carry out drilling operations in artesian and subartesian aquifer systems. Learn how to access, construct and licence water bores in queensland. Guidelines apply to the use and allocation of water resources in queensland. Licences,. Water Bore Drilling Licence Qld.
From cheyennedrilling.com.au
Water Boring in Bundaberg Cheyenne Drilling Water Bore Drilling Licence Qld Queensland is part of a national licensing system for water bore drillers. This helps protect groundwater resources by. Find out about bore reports, underground water extraction and construction. Guidelines apply to the use and allocation of water resources in queensland. Information about authorisations in water areas, rural water use and groundwater in queensland. Learn how to access, construct and licence. Water Bore Drilling Licence Qld.
From borewell.com.au
The Bore Process Water Boring process Mornington Peninsula Borewell Water Bore Drilling Licence Qld You will need this licence to undertake water bore activities, such as to carry out drilling operations in artesian and subartesian aquifer systems. Guidelines apply to the use and allocation of water resources in queensland. Queensland is part of a national licensing system for water bore drillers. Licences, permits, approvals for water use. In queensland, all water bore drilling activities. Water Bore Drilling Licence Qld.
From www.legiondrilling.com.au
Expert Water Bore Installation Legion Drilling Australia Water Bore Drilling Licence Qld This helps protect groundwater resources by. Learn how to apply for a water bore driller's licence, find a driller, and comply with construction standards in queensland. Guidelines apply to the use and allocation of water resources in queensland. New application for a queensland water bore driller’s licence or upgrade an existing queensland water bore driller’s licence. Learn how to access,. Water Bore Drilling Licence Qld.
From qldgroundwater.com.au
Water Bore Drilling Service Queensland Groundwater Solutions Water Bore Drilling Licence Qld Queensland is part of a national licensing system for water bore drillers. Learn how to access, construct and licence water bores in queensland. Guidelines apply to the use and allocation of water resources in queensland. In queensland, all water bore drilling activities must be undertaken by, or under the constant physical supervision of, an appropriately. Find out about bore reports,. Water Bore Drilling Licence Qld.
From www.jmdrilling.com.au
Experienced Water Drilling Contractors » JMDrilling Water Bore Drilling Licence Qld Find out about bore reports, underground water extraction and construction. Learn how to apply for a water bore driller's licence, find a driller, and comply with construction standards in queensland. This helps protect groundwater resources by. Learn how to access, construct and licence water bores in queensland. You will need this licence to undertake water bore activities, such as to. Water Bore Drilling Licence Qld.
From www.mkdrilling.com.au
Drilling Water Bores MK Drilling Sunshine Coast Queensland Water Bore Drilling Licence Qld Queensland is part of a national licensing system for water bore drillers. Licences, permits, approvals for water use. New application for a queensland water bore driller’s licence or upgrade an existing queensland water bore driller’s licence. Guidelines apply to the use and allocation of water resources in queensland. This helps protect groundwater resources by. Learn how to access, construct and. Water Bore Drilling Licence Qld.
From hxeaegafg.blob.core.windows.net
Water Bore Drilling Gold Coast at Eric Deanda blog Water Bore Drilling Licence Qld You will need this licence to undertake water bore activities, such as to carry out drilling operations in artesian and subartesian aquifer systems. Learn how to apply for a water bore driller's licence, find a driller, and comply with construction standards in queensland. Learn how to access, construct and licence water bores in queensland. Find out about bore reports, underground. Water Bore Drilling Licence Qld.
From www.centrestatedrilling.com.au
Centre State Drilling Water Bore Information Centre State Drilling Water Bore Drilling Information Water Bore Drilling Licence Qld Information about authorisations in water areas, rural water use and groundwater in queensland. This helps protect groundwater resources by. Licences, permits, approvals for water use. In queensland, all water bore drilling activities must be undertaken by, or under the constant physical supervision of, an appropriately. Queensland is part of a national licensing system for water bore drillers. Learn how to. Water Bore Drilling Licence Qld.
From cheyennedrilling.com.au
Water Boring in Queensland Cheyenne Drilling Water Bore Drilling Licence Qld Learn how to apply for a water bore driller's licence, find a driller, and comply with construction standards in queensland. You will need this licence to undertake water bore activities, such as to carry out drilling operations in artesian and subartesian aquifer systems. Find out about bore reports, underground water extraction and construction. Queensland is part of a national licensing. Water Bore Drilling Licence Qld.
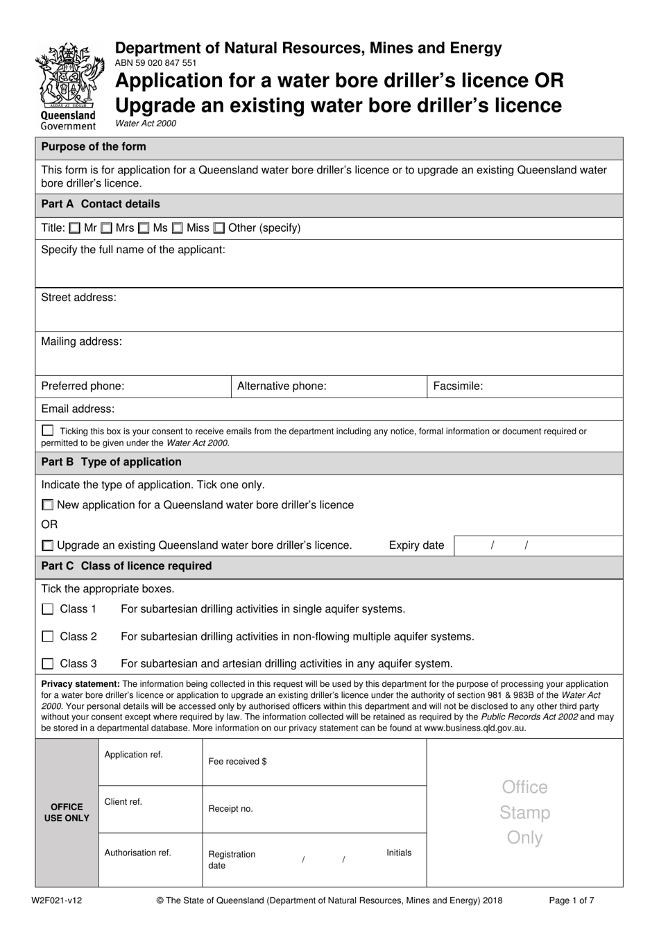
From www.templateroller.com
Form W2F021 Fill Out, Sign Online and Download Fillable PDF, Queensland Australia Templateroller Water Bore Drilling Licence Qld Learn how to apply for a water bore driller's licence, find a driller, and comply with construction standards in queensland. You will need this licence to undertake water bore activities, such as to carry out drilling operations in artesian and subartesian aquifer systems. In queensland, all water bore drilling activities must be undertaken by, or under the constant physical supervision. Water Bore Drilling Licence Qld.
From gympieonline.com.au
Water Bores Gympie Region Water Well Drilling Services Water Bore Drilling Licence Qld You will need this licence to undertake water bore activities, such as to carry out drilling operations in artesian and subartesian aquifer systems. This helps protect groundwater resources by. Queensland is part of a national licensing system for water bore drillers. Find out about bore reports, underground water extraction and construction. Learn how to apply for a water bore driller's. Water Bore Drilling Licence Qld.
From www.griddrilling.com
Water Bore Drilling in Bundaberg Region Grid Drilling Water Bore Drilling Licence Qld Learn how to apply for a water bore driller's licence, find a driller, and comply with construction standards in queensland. Information about authorisations in water areas, rural water use and groundwater in queensland. Queensland is part of a national licensing system for water bore drillers. New application for a queensland water bore driller’s licence or upgrade an existing queensland water. Water Bore Drilling Licence Qld.
From www.romandrilling.com.au
Roman Drilling Townsville Water Bore Drilling & Bore Repairs Water Bore Drilling Licence Qld Queensland is part of a national licensing system for water bore drillers. In queensland, all water bore drilling activities must be undertaken by, or under the constant physical supervision of, an appropriately. Information about authorisations in water areas, rural water use and groundwater in queensland. New application for a queensland water bore driller’s licence or upgrade an existing queensland water. Water Bore Drilling Licence Qld.
From cheyennedrilling.com.au
Water Boring in Queensland Cheyenne Drilling Water Bore Drilling Licence Qld Queensland is part of a national licensing system for water bore drillers. This helps protect groundwater resources by. You will need this licence to undertake water bore activities, such as to carry out drilling operations in artesian and subartesian aquifer systems. In queensland, all water bore drilling activities must be undertaken by, or under the constant physical supervision of, an. Water Bore Drilling Licence Qld.
From www.youtube.com
A and N Drilling Water Bore Drillers In Queensland YouTube Water Bore Drilling Licence Qld Information about authorisations in water areas, rural water use and groundwater in queensland. New application for a queensland water bore driller’s licence or upgrade an existing queensland water bore driller’s licence. Find out about bore reports, underground water extraction and construction. Licences, permits, approvals for water use. Guidelines apply to the use and allocation of water resources in queensland. In. Water Bore Drilling Licence Qld.
From cheyennedrilling.com.au
Water Boring on the Fraser Coast Cheyenne Drilling Water Bore Drilling Licence Qld Find out about bore reports, underground water extraction and construction. Learn how to access, construct and licence water bores in queensland. Learn how to apply for a water bore driller's licence, find a driller, and comply with construction standards in queensland. New application for a queensland water bore driller’s licence or upgrade an existing queensland water bore driller’s licence. Information. Water Bore Drilling Licence Qld.
From darrdrilling.com.au
Water Bore Drilling Darr Drilling Water Bore Drilling Queensland Water Bore Drilling Licence Qld Information about authorisations in water areas, rural water use and groundwater in queensland. Learn how to access, construct and licence water bores in queensland. You will need this licence to undertake water bore activities, such as to carry out drilling operations in artesian and subartesian aquifer systems. Find out about bore reports, underground water extraction and construction. Queensland is part. Water Bore Drilling Licence Qld.
From kroghiesdrilling.weebly.com
Water Bore Jobs completed Kroghie's Drilling Queensland Water Bore Drilling Licence Qld This helps protect groundwater resources by. New application for a queensland water bore driller’s licence or upgrade an existing queensland water bore driller’s licence. Information about authorisations in water areas, rural water use and groundwater in queensland. Find out about bore reports, underground water extraction and construction. Licences, permits, approvals for water use. Learn how to apply for a water. Water Bore Drilling Licence Qld.
From cheyennedrilling.com.au
Water Divining in Hervey Bay Cheyenne Drilling Water Bore Drilling Licence Qld In queensland, all water bore drilling activities must be undertaken by, or under the constant physical supervision of, an appropriately. New application for a queensland water bore driller’s licence or upgrade an existing queensland water bore driller’s licence. Queensland is part of a national licensing system for water bore drillers. Information about authorisations in water areas, rural water use and. Water Bore Drilling Licence Qld.
From www.gibsondrilling.com.au
Water Bore Drilling in Mitchell Gibson Drilling Services Water Bore Drilling Licence Qld Find out about bore reports, underground water extraction and construction. Learn how to access, construct and licence water bores in queensland. Queensland is part of a national licensing system for water bore drillers. You will need this licence to undertake water bore activities, such as to carry out drilling operations in artesian and subartesian aquifer systems. Guidelines apply to the. Water Bore Drilling Licence Qld.
From kroghiesdrilling.weebly.com
Water Bore Jobs completed Kroghie's Drilling Queensland Water Bore Drilling Licence Qld In queensland, all water bore drilling activities must be undertaken by, or under the constant physical supervision of, an appropriately. Learn how to apply for a water bore driller's licence, find a driller, and comply with construction standards in queensland. Information about authorisations in water areas, rural water use and groundwater in queensland. Find out about bore reports, underground water. Water Bore Drilling Licence Qld.
From www.waterdrill.com.au
Water Drill Specialists in Water Bore drilling Water Bore Drilling Licence Qld Licences, permits, approvals for water use. Learn how to apply for a water bore driller's licence, find a driller, and comply with construction standards in queensland. Guidelines apply to the use and allocation of water resources in queensland. This helps protect groundwater resources by. You will need this licence to undertake water bore activities, such as to carry out drilling. Water Bore Drilling Licence Qld.
From cheyennedrilling.com.au
Cheyenne Drilling Bore Drilling in Hervey Bay Water Bore Drilling Licence Qld In queensland, all water bore drilling activities must be undertaken by, or under the constant physical supervision of, an appropriately. Learn how to access, construct and licence water bores in queensland. You will need this licence to undertake water bore activities, such as to carry out drilling operations in artesian and subartesian aquifer systems. Find out about bore reports, underground. Water Bore Drilling Licence Qld.
From www.rpmdrilling.co.za
Water Borehole Drilling Process In Only 4 Steps RPM Drilling Water Bore Drilling Licence Qld Guidelines apply to the use and allocation of water resources in queensland. Find out about bore reports, underground water extraction and construction. You will need this licence to undertake water bore activities, such as to carry out drilling operations in artesian and subartesian aquifer systems. Learn how to apply for a water bore driller's licence, find a driller, and comply. Water Bore Drilling Licence Qld.
From www.centrestatedrilling.com.au
Centre State Drilling Water Boring Centre State Drilling Water Boring Water Bore Drilling Licence Qld Licences, permits, approvals for water use. New application for a queensland water bore driller’s licence or upgrade an existing queensland water bore driller’s licence. Learn how to access, construct and licence water bores in queensland. In queensland, all water bore drilling activities must be undertaken by, or under the constant physical supervision of, an appropriately. Guidelines apply to the use. Water Bore Drilling Licence Qld.
From www.localsearch.com.au
10 BEST Bore Drilling in Sunshine Coast QLD Localsearch Water Bore Drilling Licence Qld Queensland is part of a national licensing system for water bore drillers. Learn how to access, construct and licence water bores in queensland. Learn how to apply for a water bore driller's licence, find a driller, and comply with construction standards in queensland. New application for a queensland water bore driller’s licence or upgrade an existing queensland water bore driller’s. Water Bore Drilling Licence Qld.
From darrdrilling.com.au
History of Water Bore Drilling & Its Benefits Darr Drilling Water Bore Drilling Licence Qld Learn how to access, construct and licence water bores in queensland. Information about authorisations in water areas, rural water use and groundwater in queensland. This helps protect groundwater resources by. Guidelines apply to the use and allocation of water resources in queensland. In queensland, all water bore drilling activities must be undertaken by, or under the constant physical supervision of,. Water Bore Drilling Licence Qld.
From saboreholes.co.za
Water Borehole Drilling Water Borehole Drilling Services Water Bore Drilling Licence Qld Licences, permits, approvals for water use. This helps protect groundwater resources by. Learn how to apply for a water bore driller's licence, find a driller, and comply with construction standards in queensland. You will need this licence to undertake water bore activities, such as to carry out drilling operations in artesian and subartesian aquifer systems. New application for a queensland. Water Bore Drilling Licence Qld.