Door Stop Thickness Fire Door . Fire doors were tested early seventies to bs 476 part 8 and the frame door stops was 1 inch (25mm) with no intumescent. How thick should my fire door frame or lining be? How thick should a doorstop be for a fire resistant door frame? Nfpa 80 requires hinges and pivots to be steel base material, ball bearing type, and of a certain size, thickness, and quantity. Requirements for the installation of these assemblies are included in the standard of the national fire protection association for fire doors and fire windows,. Fire door labels may also indicate the temperature rise rating. Fire door frames should be of the material types, density and dimensions, including the size of. Fire door labels must indicate the hourly rating and either the latch throw for single point locks or must bear a notation “fire door to be equipped with fire exit hardware”. The thickness of a door stop will depend on the detail which the door manufacturer has tested or has had assessed. These requirements apply to all fire rated doors, frames, and windows.
from www.lathamssteeldoors.co.uk
Fire door frames should be of the material types, density and dimensions, including the size of. Requirements for the installation of these assemblies are included in the standard of the national fire protection association for fire doors and fire windows,. Fire door labels must indicate the hourly rating and either the latch throw for single point locks or must bear a notation “fire door to be equipped with fire exit hardware”. These requirements apply to all fire rated doors, frames, and windows. Fire doors were tested early seventies to bs 476 part 8 and the frame door stops was 1 inch (25mm) with no intumescent. Nfpa 80 requires hinges and pivots to be steel base material, ball bearing type, and of a certain size, thickness, and quantity. The thickness of a door stop will depend on the detail which the door manufacturer has tested or has had assessed. How thick should my fire door frame or lining be? How thick should a doorstop be for a fire resistant door frame? Fire door labels may also indicate the temperature rise rating.
Fire Rated Double Door Latham's Steel Security Doors
Door Stop Thickness Fire Door How thick should my fire door frame or lining be? How thick should my fire door frame or lining be? Fire doors were tested early seventies to bs 476 part 8 and the frame door stops was 1 inch (25mm) with no intumescent. Requirements for the installation of these assemblies are included in the standard of the national fire protection association for fire doors and fire windows,. Fire door frames should be of the material types, density and dimensions, including the size of. The thickness of a door stop will depend on the detail which the door manufacturer has tested or has had assessed. Fire door labels must indicate the hourly rating and either the latch throw for single point locks or must bear a notation “fire door to be equipped with fire exit hardware”. These requirements apply to all fire rated doors, frames, and windows. How thick should a doorstop be for a fire resistant door frame? Fire door labels may also indicate the temperature rise rating. Nfpa 80 requires hinges and pivots to be steel base material, ball bearing type, and of a certain size, thickness, and quantity.
From www.lathamssteeldoors.co.uk
A Guide to UK Standard Door Sizes Latham's Steel Security Doors Door Stop Thickness Fire Door Nfpa 80 requires hinges and pivots to be steel base material, ball bearing type, and of a certain size, thickness, and quantity. Fire door labels may also indicate the temperature rise rating. Requirements for the installation of these assemblies are included in the standard of the national fire protection association for fire doors and fire windows,. These requirements apply to. Door Stop Thickness Fire Door.
From www.pocketdoorshop.co.uk
Eclisse Unico SD Fire Pocket Door Kit (100mm Wall Thickness) Pocket Door Shop Door Stop Thickness Fire Door How thick should my fire door frame or lining be? Nfpa 80 requires hinges and pivots to be steel base material, ball bearing type, and of a certain size, thickness, and quantity. Requirements for the installation of these assemblies are included in the standard of the national fire protection association for fire doors and fire windows,. Fire door labels may. Door Stop Thickness Fire Door.
From www.linkedin.com
"Ensuring Fire Safety Understanding NBC Guidelines for Fire Doors, Exits, and More!" Door Stop Thickness Fire Door Requirements for the installation of these assemblies are included in the standard of the national fire protection association for fire doors and fire windows,. Fire doors were tested early seventies to bs 476 part 8 and the frame door stops was 1 inch (25mm) with no intumescent. Fire door labels may also indicate the temperature rise rating. How thick should. Door Stop Thickness Fire Door.
From pocketdoorshop.co.uk
Eclisse Unico SD Fire Pocket Door Kit (100mm Wall Thickness) Pocket Door Shop Door Stop Thickness Fire Door Fire door labels may also indicate the temperature rise rating. These requirements apply to all fire rated doors, frames, and windows. The thickness of a door stop will depend on the detail which the door manufacturer has tested or has had assessed. Fire door frames should be of the material types, density and dimensions, including the size of. Fire doors. Door Stop Thickness Fire Door.
From www.frelanhardware.co.uk
Stainless Steel Fire Door Keep Shut Frelan Hardware Door Stop Thickness Fire Door The thickness of a door stop will depend on the detail which the door manufacturer has tested or has had assessed. Fire door labels may also indicate the temperature rise rating. Fire door frames should be of the material types, density and dimensions, including the size of. How thick should a doorstop be for a fire resistant door frame? Requirements. Door Stop Thickness Fire Door.
From in-linesafety.co.uk
Fire Door Inspections BS476 Fire Door Legislation Door Stop Thickness Fire Door Nfpa 80 requires hinges and pivots to be steel base material, ball bearing type, and of a certain size, thickness, and quantity. Fire doors were tested early seventies to bs 476 part 8 and the frame door stops was 1 inch (25mm) with no intumescent. The thickness of a door stop will depend on the detail which the door manufacturer. Door Stop Thickness Fire Door.
From bhadrafiresafety.blogspot.com
Arindam Bhadra Fire Safety Fire doors rating Door Stop Thickness Fire Door Fire door labels must indicate the hourly rating and either the latch throw for single point locks or must bear a notation “fire door to be equipped with fire exit hardware”. Nfpa 80 requires hinges and pivots to be steel base material, ball bearing type, and of a certain size, thickness, and quantity. Fire doors were tested early seventies to. Door Stop Thickness Fire Door.
From mavink.com
Fire Exit Door Standard Size Door Stop Thickness Fire Door Requirements for the installation of these assemblies are included in the standard of the national fire protection association for fire doors and fire windows,. Fire doors were tested early seventies to bs 476 part 8 and the frame door stops was 1 inch (25mm) with no intumescent. Nfpa 80 requires hinges and pivots to be steel base material, ball bearing. Door Stop Thickness Fire Door.
From www.safelincs.co.uk
10 Things You Should Know About Fire Doors Door Stop Thickness Fire Door Fire door frames should be of the material types, density and dimensions, including the size of. Fire door labels may also indicate the temperature rise rating. The thickness of a door stop will depend on the detail which the door manufacturer has tested or has had assessed. How thick should my fire door frame or lining be? Nfpa 80 requires. Door Stop Thickness Fire Door.
From envirograf.com
Intumescent door stop for fire and smoke protection Envirograf Door Stop Thickness Fire Door These requirements apply to all fire rated doors, frames, and windows. Nfpa 80 requires hinges and pivots to be steel base material, ball bearing type, and of a certain size, thickness, and quantity. Fire door labels may also indicate the temperature rise rating. Requirements for the installation of these assemblies are included in the standard of the national fire protection. Door Stop Thickness Fire Door.
From crownfiredoorproducts.com
Fire Door Stop Top System Crown Fire Door Products Door Stop Thickness Fire Door Fire door labels may also indicate the temperature rise rating. Fire doors were tested early seventies to bs 476 part 8 and the frame door stops was 1 inch (25mm) with no intumescent. Fire door frames should be of the material types, density and dimensions, including the size of. Requirements for the installation of these assemblies are included in the. Door Stop Thickness Fire Door.
From www.safeandsecurerollershutters.co.uk
Can an External Steel Door be Fire Rated? Safe & Secure Roller Shutters Door Stop Thickness Fire Door The thickness of a door stop will depend on the detail which the door manufacturer has tested or has had assessed. Fire door frames should be of the material types, density and dimensions, including the size of. Requirements for the installation of these assemblies are included in the standard of the national fire protection association for fire doors and fire. Door Stop Thickness Fire Door.
From imagetou.com
Fire Exit Door Thickness Image to u Door Stop Thickness Fire Door Requirements for the installation of these assemblies are included in the standard of the national fire protection association for fire doors and fire windows,. Fire door labels may also indicate the temperature rise rating. Nfpa 80 requires hinges and pivots to be steel base material, ball bearing type, and of a certain size, thickness, and quantity. How thick should my. Door Stop Thickness Fire Door.
From crownfiredoorproducts.com
Crown Fire Door Stop System Crown Fire Door Products Door Stop Thickness Fire Door Fire door frames should be of the material types, density and dimensions, including the size of. Fire door labels must indicate the hourly rating and either the latch throw for single point locks or must bear a notation “fire door to be equipped with fire exit hardware”. Nfpa 80 requires hinges and pivots to be steel base material, ball bearing. Door Stop Thickness Fire Door.
From statutorysigns.au
Fire Door Signage & BCA Requirements Explained Statutory Signage by Digicraft Statutory Door Stop Thickness Fire Door How thick should my fire door frame or lining be? Fire door labels may also indicate the temperature rise rating. Requirements for the installation of these assemblies are included in the standard of the national fire protection association for fire doors and fire windows,. How thick should a doorstop be for a fire resistant door frame? These requirements apply to. Door Stop Thickness Fire Door.
From nhbc-standards.co.uk
9.1.4 Doors and windows NHBC Standards 2022 NHBC Standards 2022 Door Stop Thickness Fire Door The thickness of a door stop will depend on the detail which the door manufacturer has tested or has had assessed. Requirements for the installation of these assemblies are included in the standard of the national fire protection association for fire doors and fire windows,. Fire door labels may also indicate the temperature rise rating. Fire door labels must indicate. Door Stop Thickness Fire Door.
From www.nzfiredoors.co.nz
Fire Door Installation Instructions NZ Fire Doors Door Stop Thickness Fire Door Fire doors were tested early seventies to bs 476 part 8 and the frame door stops was 1 inch (25mm) with no intumescent. The thickness of a door stop will depend on the detail which the door manufacturer has tested or has had assessed. Fire door labels must indicate the hourly rating and either the latch throw for single point. Door Stop Thickness Fire Door.
From www.pocketdoorshop.co.uk
Eclisse Unico SD Fire Pocket Door Kit (100mm Wall Thickness) Pocket Door Shop Door Stop Thickness Fire Door Fire doors were tested early seventies to bs 476 part 8 and the frame door stops was 1 inch (25mm) with no intumescent. How thick should a doorstop be for a fire resistant door frame? How thick should my fire door frame or lining be? Requirements for the installation of these assemblies are included in the standard of the national. Door Stop Thickness Fire Door.
From mavink.com
Fire Rated Door Details Door Stop Thickness Fire Door How thick should a doorstop be for a fire resistant door frame? Fire door labels must indicate the hourly rating and either the latch throw for single point locks or must bear a notation “fire door to be equipped with fire exit hardware”. How thick should my fire door frame or lining be? Nfpa 80 requires hinges and pivots to. Door Stop Thickness Fire Door.
From www.enfielddoors.co.uk
What to Know about Fire Door Sizes Enfield Doors Door Stop Thickness Fire Door How thick should my fire door frame or lining be? The thickness of a door stop will depend on the detail which the door manufacturer has tested or has had assessed. How thick should a doorstop be for a fire resistant door frame? These requirements apply to all fire rated doors, frames, and windows. Fire door labels may also indicate. Door Stop Thickness Fire Door.
From www.directdoors.com
Fire Door Regulations Door Stop Thickness Fire Door Requirements for the installation of these assemblies are included in the standard of the national fire protection association for fire doors and fire windows,. Fire door frames should be of the material types, density and dimensions, including the size of. The thickness of a door stop will depend on the detail which the door manufacturer has tested or has had. Door Stop Thickness Fire Door.
From www.pocketdoorshop.co.uk
Eclisse Unico SD Fire Pocket Door Kit (100mm Wall Thickness) Pocket Door Shop Door Stop Thickness Fire Door Fire doors were tested early seventies to bs 476 part 8 and the frame door stops was 1 inch (25mm) with no intumescent. How thick should my fire door frame or lining be? Fire door frames should be of the material types, density and dimensions, including the size of. Requirements for the installation of these assemblies are included in the. Door Stop Thickness Fire Door.
From www.fireco.uk
The best way to keep fire doors open legally Fireco Door Stop Thickness Fire Door The thickness of a door stop will depend on the detail which the door manufacturer has tested or has had assessed. Fire door labels may also indicate the temperature rise rating. Requirements for the installation of these assemblies are included in the standard of the national fire protection association for fire doors and fire windows,. Fire door frames should be. Door Stop Thickness Fire Door.
From flamestop.ie
Who Is Responsible for the Fire Doors in a Building? Fire Door Regulations Ireland Passive Door Stop Thickness Fire Door How thick should my fire door frame or lining be? Nfpa 80 requires hinges and pivots to be steel base material, ball bearing type, and of a certain size, thickness, and quantity. The thickness of a door stop will depend on the detail which the door manufacturer has tested or has had assessed. How thick should a doorstop be for. Door Stop Thickness Fire Door.
From manufacture.aragroup.com.au
Capped & faced fire rated door leaf ARA Manufacture Door Stop Thickness Fire Door Requirements for the installation of these assemblies are included in the standard of the national fire protection association for fire doors and fire windows,. Fire door labels must indicate the hourly rating and either the latch throw for single point locks or must bear a notation “fire door to be equipped with fire exit hardware”. The thickness of a door. Door Stop Thickness Fire Door.
From imagetou.com
Nfpa Fire Rated Door Requirements Nyc Image to u Door Stop Thickness Fire Door These requirements apply to all fire rated doors, frames, and windows. Fire door labels must indicate the hourly rating and either the latch throw for single point locks or must bear a notation “fire door to be equipped with fire exit hardware”. Requirements for the installation of these assemblies are included in the standard of the national fire protection association. Door Stop Thickness Fire Door.
From www.alfapebltd.com
Fire Rated Doors Manufacturers & Suppliers in Mysore Alfa PEB Ltd Door Stop Thickness Fire Door How thick should my fire door frame or lining be? Fire doors were tested early seventies to bs 476 part 8 and the frame door stops was 1 inch (25mm) with no intumescent. Fire door labels may also indicate the temperature rise rating. The thickness of a door stop will depend on the detail which the door manufacturer has tested. Door Stop Thickness Fire Door.
From imsgroup.eu
The importance of correctly fitted and regularly serviced fire rated doorsets IMS Group An Door Stop Thickness Fire Door These requirements apply to all fire rated doors, frames, and windows. Nfpa 80 requires hinges and pivots to be steel base material, ball bearing type, and of a certain size, thickness, and quantity. Fire doors were tested early seventies to bs 476 part 8 and the frame door stops was 1 inch (25mm) with no intumescent. Fire door labels must. Door Stop Thickness Fire Door.
From www.pocketdoorshop.co.uk
Eclisse Unico SD Fire Pocket Door Kit (100mm Wall Thickness) Pocket Door Shop Door Stop Thickness Fire Door How thick should my fire door frame or lining be? Nfpa 80 requires hinges and pivots to be steel base material, ball bearing type, and of a certain size, thickness, and quantity. The thickness of a door stop will depend on the detail which the door manufacturer has tested or has had assessed. Fire doors were tested early seventies to. Door Stop Thickness Fire Door.
From www.lathamssteeldoors.co.uk
Fire Rated Double Door Latham's Steel Security Doors Door Stop Thickness Fire Door These requirements apply to all fire rated doors, frames, and windows. How thick should my fire door frame or lining be? Fire door labels must indicate the hourly rating and either the latch throw for single point locks or must bear a notation “fire door to be equipped with fire exit hardware”. Fire door frames should be of the material. Door Stop Thickness Fire Door.
From www.fastbuildsupplies.co.uk
UK Fire Door Regulations and Requirements Regulation 10 Knowledge Hub Fast Build Supplies Door Stop Thickness Fire Door How thick should my fire door frame or lining be? Nfpa 80 requires hinges and pivots to be steel base material, ball bearing type, and of a certain size, thickness, and quantity. These requirements apply to all fire rated doors, frames, and windows. How thick should a doorstop be for a fire resistant door frame? Fire door frames should be. Door Stop Thickness Fire Door.
From molicc.com
1 Hour Fire Rated Door Veneer Molicc System Door Stop Thickness Fire Door Fire door frames should be of the material types, density and dimensions, including the size of. Fire door labels must indicate the hourly rating and either the latch throw for single point locks or must bear a notation “fire door to be equipped with fire exit hardware”. These requirements apply to all fire rated doors, frames, and windows. Fire doors. Door Stop Thickness Fire Door.
From www.internaldoors.co.uk
Looking to Install Internal Fire Doors in Your Home? Here is Your Comprehensive Guide Door Stop Thickness Fire Door How thick should a doorstop be for a fire resistant door frame? How thick should my fire door frame or lining be? Nfpa 80 requires hinges and pivots to be steel base material, ball bearing type, and of a certain size, thickness, and quantity. Fire doors were tested early seventies to bs 476 part 8 and the frame door stops. Door Stop Thickness Fire Door.
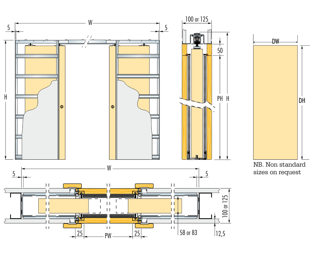
From www.pocketdoorshop.co.uk
Eclisse Unico Classic Double Fire Pocket Door System Door Stop Thickness Fire Door Fire door labels must indicate the hourly rating and either the latch throw for single point locks or must bear a notation “fire door to be equipped with fire exit hardware”. Fire door labels may also indicate the temperature rise rating. These requirements apply to all fire rated doors, frames, and windows. How thick should a doorstop be for a. Door Stop Thickness Fire Door.
From www.safelincs.co.uk
Fire Door Regulations for flats Safelincs Blog Door Stop Thickness Fire Door Fire doors were tested early seventies to bs 476 part 8 and the frame door stops was 1 inch (25mm) with no intumescent. Nfpa 80 requires hinges and pivots to be steel base material, ball bearing type, and of a certain size, thickness, and quantity. Fire door frames should be of the material types, density and dimensions, including the size. Door Stop Thickness Fire Door.