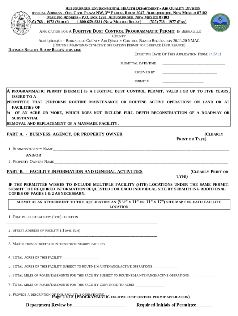
Security Exception Form Template . Risk management exception template 3 | p a g e instructions: The completer and more comprehensive your reason for. Security exception request form (all security exception requests are reported to the president as required by uts 165). Please indicate what type of request/report you are submitting. This exception request form contains form fields that ask for the requester's name, contact details, a security policy that covers their request, start and end date of the exception, the. Please use as much space as required to complete the following information. Sans has developed a set of information security policy templates. Submit an exception request form for various purposes, such as warrant officer board wait periods, waivers for aged and disabled. These are free to use and fully customizable to your company's it security.
from www.template.net
This exception request form contains form fields that ask for the requester's name, contact details, a security policy that covers their request, start and end date of the exception, the. Please use as much space as required to complete the following information. Submit an exception request form for various purposes, such as warrant officer board wait periods, waivers for aged and disabled. Please indicate what type of request/report you are submitting. Security exception request form (all security exception requests are reported to the president as required by uts 165). Risk management exception template 3 | p a g e instructions: Sans has developed a set of information security policy templates. These are free to use and fully customizable to your company's it security. The completer and more comprehensive your reason for.
15+ Exception Report Templates Free Sample, Example Format Download
Security Exception Form Template Security exception request form (all security exception requests are reported to the president as required by uts 165). This exception request form contains form fields that ask for the requester's name, contact details, a security policy that covers their request, start and end date of the exception, the. Submit an exception request form for various purposes, such as warrant officer board wait periods, waivers for aged and disabled. Please indicate what type of request/report you are submitting. Sans has developed a set of information security policy templates. These are free to use and fully customizable to your company's it security. Security exception request form (all security exception requests are reported to the president as required by uts 165). Risk management exception template 3 | p a g e instructions: Please use as much space as required to complete the following information. The completer and more comprehensive your reason for.
From www.templateroller.com
Form C Fill Out, Sign Online and Download Fillable PDF, North Security Exception Form Template Sans has developed a set of information security policy templates. Security exception request form (all security exception requests are reported to the president as required by uts 165). Risk management exception template 3 | p a g e instructions: Please use as much space as required to complete the following information. Please indicate what type of request/report you are submitting.. Security Exception Form Template.
From www.template.net
Exception Report Template in Word, Pages, Google Docs Download Security Exception Form Template Submit an exception request form for various purposes, such as warrant officer board wait periods, waivers for aged and disabled. Please indicate what type of request/report you are submitting. Sans has developed a set of information security policy templates. Please use as much space as required to complete the following information. These are free to use and fully customizable to. Security Exception Form Template.
From www.pinterest.com
Professional Security Policy Exception Template Security Exception Form Template This exception request form contains form fields that ask for the requester's name, contact details, a security policy that covers their request, start and end date of the exception, the. Sans has developed a set of information security policy templates. These are free to use and fully customizable to your company's it security. Submit an exception request form for various. Security Exception Form Template.
From www.yumpu.com
Security Exception Request Form Security Exception Form Template Risk management exception template 3 | p a g e instructions: The completer and more comprehensive your reason for. Sans has developed a set of information security policy templates. Security exception request form (all security exception requests are reported to the president as required by uts 165). Please use as much space as required to complete the following information. Submit. Security Exception Form Template.
From www.pinterest.com
Awesome Security Policy Exception Template Policy template, Templates Security Exception Form Template The completer and more comprehensive your reason for. This exception request form contains form fields that ask for the requester's name, contact details, a security policy that covers their request, start and end date of the exception, the. Risk management exception template 3 | p a g e instructions: These are free to use and fully customizable to your company's. Security Exception Form Template.
From www.formsbank.com
Aetna Ppi Exception Request Form printable pdf download Security Exception Form Template Please use as much space as required to complete the following information. Risk management exception template 3 | p a g e instructions: Please indicate what type of request/report you are submitting. These are free to use and fully customizable to your company's it security. Submit an exception request form for various purposes, such as warrant officer board wait periods,. Security Exception Form Template.
From tutore.org
Policy Exception Template Master of Documents Security Exception Form Template The completer and more comprehensive your reason for. Risk management exception template 3 | p a g e instructions: These are free to use and fully customizable to your company's it security. Submit an exception request form for various purposes, such as warrant officer board wait periods, waivers for aged and disabled. This exception request form contains form fields that. Security Exception Form Template.
From securitypolicyzenchiba.blogspot.com
Security Policy Security Policy Exception Template Security Exception Form Template The completer and more comprehensive your reason for. This exception request form contains form fields that ask for the requester's name, contact details, a security policy that covers their request, start and end date of the exception, the. Submit an exception request form for various purposes, such as warrant officer board wait periods, waivers for aged and disabled. These are. Security Exception Form Template.
From www.pinterest.com
Fresh Security Policy Exception Template Memo examples, Memo template Security Exception Form Template These are free to use and fully customizable to your company's it security. This exception request form contains form fields that ask for the requester's name, contact details, a security policy that covers their request, start and end date of the exception, the. Please indicate what type of request/report you are submitting. The completer and more comprehensive your reason for.. Security Exception Form Template.
From www.templateroller.com
Form 0020 Fill Out, Sign Online and Download Fillable PDF, Texas Security Exception Form Template These are free to use and fully customizable to your company's it security. Please use as much space as required to complete the following information. Risk management exception template 3 | p a g e instructions: Submit an exception request form for various purposes, such as warrant officer board wait periods, waivers for aged and disabled. Please indicate what type. Security Exception Form Template.
From www.template.net
15+ Exception Report Templates Free Sample, Example Format Download Security Exception Form Template Submit an exception request form for various purposes, such as warrant officer board wait periods, waivers for aged and disabled. Please indicate what type of request/report you are submitting. Sans has developed a set of information security policy templates. The completer and more comprehensive your reason for. Risk management exception template 3 | p a g e instructions: Security exception. Security Exception Form Template.
From www.artofit.org
Exception report template Artofit Security Exception Form Template Sans has developed a set of information security policy templates. Risk management exception template 3 | p a g e instructions: These are free to use and fully customizable to your company's it security. Security exception request form (all security exception requests are reported to the president as required by uts 165). The completer and more comprehensive your reason for.. Security Exception Form Template.
From sparklingstemware.com
Simple Security Policy Exception Template Sparklingstemware Security Exception Form Template Sans has developed a set of information security policy templates. Please indicate what type of request/report you are submitting. Security exception request form (all security exception requests are reported to the president as required by uts 165). Submit an exception request form for various purposes, such as warrant officer board wait periods, waivers for aged and disabled. Risk management exception. Security Exception Form Template.
From www.templateroller.com
South Carolina Request for Exception Form Sample Fill Out, Sign Security Exception Form Template This exception request form contains form fields that ask for the requester's name, contact details, a security policy that covers their request, start and end date of the exception, the. Security exception request form (all security exception requests are reported to the president as required by uts 165). Please use as much space as required to complete the following information.. Security Exception Form Template.
From studylib.net
Exception Request Form Security Exception Form Template This exception request form contains form fields that ask for the requester's name, contact details, a security policy that covers their request, start and end date of the exception, the. Submit an exception request form for various purposes, such as warrant officer board wait periods, waivers for aged and disabled. Risk management exception template 3 | p a g e. Security Exception Form Template.
From www.templateroller.com
AE Form 19013L Fill Out, Sign Online and Download Fillable PDF Security Exception Form Template The completer and more comprehensive your reason for. Risk management exception template 3 | p a g e instructions: This exception request form contains form fields that ask for the requester's name, contact details, a security policy that covers their request, start and end date of the exception, the. Please use as much space as required to complete the following. Security Exception Form Template.
From studylib.net
General Exception Request Cardholder Information Type of Exception Security Exception Form Template Security exception request form (all security exception requests are reported to the president as required by uts 165). Please use as much space as required to complete the following information. Sans has developed a set of information security policy templates. Please indicate what type of request/report you are submitting. These are free to use and fully customizable to your company's. Security Exception Form Template.
From templatelab.com
42 Information Security Policy Templates [Cyber Security] ᐅ TemplateLab Security Exception Form Template Submit an exception request form for various purposes, such as warrant officer board wait periods, waivers for aged and disabled. Risk management exception template 3 | p a g e instructions: Please indicate what type of request/report you are submitting. The completer and more comprehensive your reason for. Please use as much space as required to complete the following information.. Security Exception Form Template.
From www.templateegg.com
Exception Reporting Form Security Exception Form Template Security exception request form (all security exception requests are reported to the president as required by uts 165). Risk management exception template 3 | p a g e instructions: Please use as much space as required to complete the following information. Submit an exception request form for various purposes, such as warrant officer board wait periods, waivers for aged and. Security Exception Form Template.
From www.allbusinesstemplates.com
Management Exception Report Templates at Security Exception Form Template These are free to use and fully customizable to your company's it security. The completer and more comprehensive your reason for. Please use as much space as required to complete the following information. Sans has developed a set of information security policy templates. Security exception request form (all security exception requests are reported to the president as required by uts. Security Exception Form Template.
From www.templateroller.com
Form TECH358 Fill Out, Sign Online and Download Printable PDF Security Exception Form Template This exception request form contains form fields that ask for the requester's name, contact details, a security policy that covers their request, start and end date of the exception, the. These are free to use and fully customizable to your company's it security. Security exception request form (all security exception requests are reported to the president as required by uts. Security Exception Form Template.
From 123formbuilder.polarbuildingcleaning.net
Exception Request Form Template 123FormBuilder Security Exception Form Template Please use as much space as required to complete the following information. The completer and more comprehensive your reason for. Submit an exception request form for various purposes, such as warrant officer board wait periods, waivers for aged and disabled. Risk management exception template 3 | p a g e instructions: These are free to use and fully customizable to. Security Exception Form Template.
From www.template.net
15+ Exception Report Templates Free Sample, Example Format Download Security Exception Form Template Security exception request form (all security exception requests are reported to the president as required by uts 165). These are free to use and fully customizable to your company's it security. Please use as much space as required to complete the following information. This exception request form contains form fields that ask for the requester's name, contact details, a security. Security Exception Form Template.
From www.template.net
15+ Exception Report Templates Free Sample, Example Format Download Security Exception Form Template Security exception request form (all security exception requests are reported to the president as required by uts 165). This exception request form contains form fields that ask for the requester's name, contact details, a security policy that covers their request, start and end date of the exception, the. The completer and more comprehensive your reason for. Please indicate what type. Security Exception Form Template.
From safetyculture.com
Free Exception Report Template PDF SafetyCulture Security Exception Form Template Sans has developed a set of information security policy templates. Please use as much space as required to complete the following information. The completer and more comprehensive your reason for. Submit an exception request form for various purposes, such as warrant officer board wait periods, waivers for aged and disabled. These are free to use and fully customizable to your. Security Exception Form Template.
From www.template.net
15+ Exception Report Templates Free Sample, Example Format Download Security Exception Form Template Please use as much space as required to complete the following information. Sans has developed a set of information security policy templates. The completer and more comprehensive your reason for. Please indicate what type of request/report you are submitting. This exception request form contains form fields that ask for the requester's name, contact details, a security policy that covers their. Security Exception Form Template.
From www.pinterest.com.mx
Fascinating Security Policy Exception Template Apa Template, Pamphlet Security Exception Form Template Submit an exception request form for various purposes, such as warrant officer board wait periods, waivers for aged and disabled. This exception request form contains form fields that ask for the requester's name, contact details, a security policy that covers their request, start and end date of the exception, the. Sans has developed a set of information security policy templates.. Security Exception Form Template.
From www.pdffiller.com
Online af nmsu Secure Access SecurityException Doc Template Security Exception Form Template Risk management exception template 3 | p a g e instructions: Sans has developed a set of information security policy templates. The completer and more comprehensive your reason for. Submit an exception request form for various purposes, such as warrant officer board wait periods, waivers for aged and disabled. Security exception request form (all security exception requests are reported to. Security Exception Form Template.
From www.template.net
15+ Exception Report Templates Free Sample, Example Format Download Security Exception Form Template Submit an exception request form for various purposes, such as warrant officer board wait periods, waivers for aged and disabled. Sans has developed a set of information security policy templates. Please use as much space as required to complete the following information. These are free to use and fully customizable to your company's it security. Please indicate what type of. Security Exception Form Template.
From slidesdocs.com
Free Exception Handling Templates For Google Sheets And Microsoft Excel Security Exception Form Template The completer and more comprehensive your reason for. Please use as much space as required to complete the following information. These are free to use and fully customizable to your company's it security. Submit an exception request form for various purposes, such as warrant officer board wait periods, waivers for aged and disabled. Risk management exception template 3 | p. Security Exception Form Template.
From tutore.org
Policy Exception Template Master of Documents Security Exception Form Template Please use as much space as required to complete the following information. Sans has developed a set of information security policy templates. Please indicate what type of request/report you are submitting. Risk management exception template 3 | p a g e instructions: This exception request form contains form fields that ask for the requester's name, contact details, a security policy. Security Exception Form Template.
From studylib.net
Policy Exception Request Information Security Office Security Exception Form Template Please indicate what type of request/report you are submitting. Security exception request form (all security exception requests are reported to the president as required by uts 165). Risk management exception template 3 | p a g e instructions: Submit an exception request form for various purposes, such as warrant officer board wait periods, waivers for aged and disabled. This exception. Security Exception Form Template.
From www.templateroller.com
Connecticut Connecticut Insurance Data Security Law Exception Security Exception Form Template The completer and more comprehensive your reason for. Please indicate what type of request/report you are submitting. Sans has developed a set of information security policy templates. This exception request form contains form fields that ask for the requester's name, contact details, a security policy that covers their request, start and end date of the exception, the. These are free. Security Exception Form Template.
From www.formsbank.com
Exception To Policy Form printable pdf download Security Exception Form Template Risk management exception template 3 | p a g e instructions: Sans has developed a set of information security policy templates. Security exception request form (all security exception requests are reported to the president as required by uts 165). This exception request form contains form fields that ask for the requester's name, contact details, a security policy that covers their. Security Exception Form Template.
From www.templateroller.com
USAFE Form 352 Fill Out, Sign Online and Download Fillable PDF Security Exception Form Template Please indicate what type of request/report you are submitting. The completer and more comprehensive your reason for. This exception request form contains form fields that ask for the requester's name, contact details, a security policy that covers their request, start and end date of the exception, the. Risk management exception template 3 | p a g e instructions: Sans has. Security Exception Form Template.