Field Welding Inspection Checklist . A lack of proper welding inspection offers the potential for quality problems, life safety issues and liabilities. The following pages contain inspection methods for gmaw and physical weld testing. These tests reveal weak or defective sections that can be corrected before the. Forming visual examination at various stages of welding, and also typical examples of visual examination, discontinuities and conditions, equipment supplements and aids, records,. Weld inspection tasks that take place during the weld include keeping track of heat input, cleaning between individual weld passes, monitoring welding technique and joint position, and looking for visual clues that indicate problems. Before start of welding, record measurements along with sidebends, overbends and sags in pipe joints.
from www.scribd.com
The following pages contain inspection methods for gmaw and physical weld testing. A lack of proper welding inspection offers the potential for quality problems, life safety issues and liabilities. These tests reveal weak or defective sections that can be corrected before the. Before start of welding, record measurements along with sidebends, overbends and sags in pipe joints. Forming visual examination at various stages of welding, and also typical examples of visual examination, discontinuities and conditions, equipment supplements and aids, records,. Weld inspection tasks that take place during the weld include keeping track of heat input, cleaning between individual weld passes, monitoring welding technique and joint position, and looking for visual clues that indicate problems.
Welding Machine Daily Inspection Checklist PDF
Field Welding Inspection Checklist Weld inspection tasks that take place during the weld include keeping track of heat input, cleaning between individual weld passes, monitoring welding technique and joint position, and looking for visual clues that indicate problems. The following pages contain inspection methods for gmaw and physical weld testing. These tests reveal weak or defective sections that can be corrected before the. Weld inspection tasks that take place during the weld include keeping track of heat input, cleaning between individual weld passes, monitoring welding technique and joint position, and looking for visual clues that indicate problems. Forming visual examination at various stages of welding, and also typical examples of visual examination, discontinuities and conditions, equipment supplements and aids, records,. A lack of proper welding inspection offers the potential for quality problems, life safety issues and liabilities. Before start of welding, record measurements along with sidebends, overbends and sags in pipe joints.
From www.vrogue.co
Checklist In 2021 Inspection Checklist Checklist Weld vrogue.co Field Welding Inspection Checklist Before start of welding, record measurements along with sidebends, overbends and sags in pipe joints. These tests reveal weak or defective sections that can be corrected before the. Weld inspection tasks that take place during the weld include keeping track of heat input, cleaning between individual weld passes, monitoring welding technique and joint position, and looking for visual clues that. Field Welding Inspection Checklist.
From studylib.net
Field Services Inspection Checklist Field Welding Inspection Checklist Weld inspection tasks that take place during the weld include keeping track of heat input, cleaning between individual weld passes, monitoring welding technique and joint position, and looking for visual clues that indicate problems. A lack of proper welding inspection offers the potential for quality problems, life safety issues and liabilities. Forming visual examination at various stages of welding, and. Field Welding Inspection Checklist.
From www.scribd.com
L6.17 Mobile Welding Machine Inspection Checklist Field Welding Inspection Checklist Before start of welding, record measurements along with sidebends, overbends and sags in pipe joints. Weld inspection tasks that take place during the weld include keeping track of heat input, cleaning between individual weld passes, monitoring welding technique and joint position, and looking for visual clues that indicate problems. The following pages contain inspection methods for gmaw and physical weld. Field Welding Inspection Checklist.
From www.triquestndt.com
Particle Testing Field Welding Inspection Checklist Weld inspection tasks that take place during the weld include keeping track of heat input, cleaning between individual weld passes, monitoring welding technique and joint position, and looking for visual clues that indicate problems. Forming visual examination at various stages of welding, and also typical examples of visual examination, discontinuities and conditions, equipment supplements and aids, records,. The following pages. Field Welding Inspection Checklist.
From pray.gelorailmu.com
006 Welding Quality Control Plan Sample Template Ideas pertaining to Field Welding Inspection Checklist The following pages contain inspection methods for gmaw and physical weld testing. Forming visual examination at various stages of welding, and also typical examples of visual examination, discontinuities and conditions, equipment supplements and aids, records,. A lack of proper welding inspection offers the potential for quality problems, life safety issues and liabilities. These tests reveal weak or defective sections that. Field Welding Inspection Checklist.
From www.dexform.com
Comprehensive safety & health inspection checklist in Word and Pdf Field Welding Inspection Checklist Forming visual examination at various stages of welding, and also typical examples of visual examination, discontinuities and conditions, equipment supplements and aids, records,. Before start of welding, record measurements along with sidebends, overbends and sags in pipe joints. The following pages contain inspection methods for gmaw and physical weld testing. These tests reveal weak or defective sections that can be. Field Welding Inspection Checklist.
From www.scribd.com
Welding Inspection Checklist.. PDF Welding Construction Field Welding Inspection Checklist Forming visual examination at various stages of welding, and also typical examples of visual examination, discontinuities and conditions, equipment supplements and aids, records,. These tests reveal weak or defective sections that can be corrected before the. Weld inspection tasks that take place during the weld include keeping track of heat input, cleaning between individual weld passes, monitoring welding technique and. Field Welding Inspection Checklist.
From dokumen.tips
(PDF) Structural Field Welding & Inspection 558 DOKUMEN.TIPS Field Welding Inspection Checklist The following pages contain inspection methods for gmaw and physical weld testing. A lack of proper welding inspection offers the potential for quality problems, life safety issues and liabilities. These tests reveal weak or defective sections that can be corrected before the. Before start of welding, record measurements along with sidebends, overbends and sags in pipe joints. Forming visual examination. Field Welding Inspection Checklist.
From www.ebindustries.com
Visual Weld Inspection 2019 NDT Weld Testing EB Industries Field Welding Inspection Checklist Weld inspection tasks that take place during the weld include keeping track of heat input, cleaning between individual weld passes, monitoring welding technique and joint position, and looking for visual clues that indicate problems. Before start of welding, record measurements along with sidebends, overbends and sags in pipe joints. A lack of proper welding inspection offers the potential for quality. Field Welding Inspection Checklist.
From www.scribd.com
ARC Welding Inspection Checklist PDF Field Welding Inspection Checklist Weld inspection tasks that take place during the weld include keeping track of heat input, cleaning between individual weld passes, monitoring welding technique and joint position, and looking for visual clues that indicate problems. The following pages contain inspection methods for gmaw and physical weld testing. These tests reveal weak or defective sections that can be corrected before the. Forming. Field Welding Inspection Checklist.
From www.pinterest.co.uk
Daily Welding Machine Inspection Checklist Welding Fires Welding Field Welding Inspection Checklist Forming visual examination at various stages of welding, and also typical examples of visual examination, discontinuities and conditions, equipment supplements and aids, records,. Weld inspection tasks that take place during the weld include keeping track of heat input, cleaning between individual weld passes, monitoring welding technique and joint position, and looking for visual clues that indicate problems. Before start of. Field Welding Inspection Checklist.
From www.tscsubsea.com
Offshore Drilling Rig Weld Inspection with Diverless ACFM TSC Subsea Field Welding Inspection Checklist Before start of welding, record measurements along with sidebends, overbends and sags in pipe joints. A lack of proper welding inspection offers the potential for quality problems, life safety issues and liabilities. The following pages contain inspection methods for gmaw and physical weld testing. Weld inspection tasks that take place during the weld include keeping track of heat input, cleaning. Field Welding Inspection Checklist.
From mungfali.com
Visual Weld Inspection Report Template Field Welding Inspection Checklist The following pages contain inspection methods for gmaw and physical weld testing. Forming visual examination at various stages of welding, and also typical examples of visual examination, discontinuities and conditions, equipment supplements and aids, records,. Before start of welding, record measurements along with sidebends, overbends and sags in pipe joints. Weld inspection tasks that take place during the weld include. Field Welding Inspection Checklist.
From business.fromgrandma.best
Welding Inspection Report Template Business.fromgrandma.best Field Welding Inspection Checklist Before start of welding, record measurements along with sidebends, overbends and sags in pipe joints. Forming visual examination at various stages of welding, and also typical examples of visual examination, discontinuities and conditions, equipment supplements and aids, records,. These tests reveal weak or defective sections that can be corrected before the. Weld inspection tasks that take place during the weld. Field Welding Inspection Checklist.
From www.zetec.com
How a Weld Inspection NDT Crawler Improves Inspection Time and Quality Field Welding Inspection Checklist The following pages contain inspection methods for gmaw and physical weld testing. Forming visual examination at various stages of welding, and also typical examples of visual examination, discontinuities and conditions, equipment supplements and aids, records,. Weld inspection tasks that take place during the weld include keeping track of heat input, cleaning between individual weld passes, monitoring welding technique and joint. Field Welding Inspection Checklist.
From www.scribd.com
Pre Welding Checklist Welding Building Materials Field Welding Inspection Checklist Forming visual examination at various stages of welding, and also typical examples of visual examination, discontinuities and conditions, equipment supplements and aids, records,. A lack of proper welding inspection offers the potential for quality problems, life safety issues and liabilities. The following pages contain inspection methods for gmaw and physical weld testing. These tests reveal weak or defective sections that. Field Welding Inspection Checklist.
From www.scribd.com
Welding Checklist for Field Welding Welding Deep Foundation Free Field Welding Inspection Checklist Before start of welding, record measurements along with sidebends, overbends and sags in pipe joints. These tests reveal weak or defective sections that can be corrected before the. Forming visual examination at various stages of welding, and also typical examples of visual examination, discontinuities and conditions, equipment supplements and aids, records,. The following pages contain inspection methods for gmaw and. Field Welding Inspection Checklist.
From www.scribd.com
Field Welding Inspection Welding Industries Field Welding Inspection Checklist Forming visual examination at various stages of welding, and also typical examples of visual examination, discontinuities and conditions, equipment supplements and aids, records,. A lack of proper welding inspection offers the potential for quality problems, life safety issues and liabilities. These tests reveal weak or defective sections that can be corrected before the. The following pages contain inspection methods for. Field Welding Inspection Checklist.
From gbu-presnenskij.ru
Structural Steel Welding QA QC Guidelines And, 44 OFF Field Welding Inspection Checklist A lack of proper welding inspection offers the potential for quality problems, life safety issues and liabilities. Forming visual examination at various stages of welding, and also typical examples of visual examination, discontinuities and conditions, equipment supplements and aids, records,. Weld inspection tasks that take place during the weld include keeping track of heat input, cleaning between individual weld passes,. Field Welding Inspection Checklist.
From www.vrogue.co
Piping Welding Daily Quality Control And Inspection R vrogue.co Field Welding Inspection Checklist Before start of welding, record measurements along with sidebends, overbends and sags in pipe joints. Weld inspection tasks that take place during the weld include keeping track of heat input, cleaning between individual weld passes, monitoring welding technique and joint position, and looking for visual clues that indicate problems. A lack of proper welding inspection offers the potential for quality. Field Welding Inspection Checklist.
From www.scribd.com
Welding Machine Daily Inspection Checklist PDF Field Welding Inspection Checklist A lack of proper welding inspection offers the potential for quality problems, life safety issues and liabilities. These tests reveal weak or defective sections that can be corrected before the. The following pages contain inspection methods for gmaw and physical weld testing. Forming visual examination at various stages of welding, and also typical examples of visual examination, discontinuities and conditions,. Field Welding Inspection Checklist.
From dokumen.tips
(PDF) Field Welding Inspection Guide DOKUMEN.TIPS Field Welding Inspection Checklist Before start of welding, record measurements along with sidebends, overbends and sags in pipe joints. The following pages contain inspection methods for gmaw and physical weld testing. Forming visual examination at various stages of welding, and also typical examples of visual examination, discontinuities and conditions, equipment supplements and aids, records,. These tests reveal weak or defective sections that can be. Field Welding Inspection Checklist.
From weldaustralia.com.au
Welding Inspection Weld Australia Field Welding Inspection Checklist The following pages contain inspection methods for gmaw and physical weld testing. Weld inspection tasks that take place during the weld include keeping track of heat input, cleaning between individual weld passes, monitoring welding technique and joint position, and looking for visual clues that indicate problems. These tests reveal weak or defective sections that can be corrected before the. Before. Field Welding Inspection Checklist.
From www.scribd.com
Welding Machine Safety Checklist PDF Field Welding Inspection Checklist The following pages contain inspection methods for gmaw and physical weld testing. Weld inspection tasks that take place during the weld include keeping track of heat input, cleaning between individual weld passes, monitoring welding technique and joint position, and looking for visual clues that indicate problems. Before start of welding, record measurements along with sidebends, overbends and sags in pipe. Field Welding Inspection Checklist.
From www.selgroup.co.uk
Welding Compliance Checklist SEL Group Ltd Field Welding Inspection Checklist The following pages contain inspection methods for gmaw and physical weld testing. Weld inspection tasks that take place during the weld include keeping track of heat input, cleaning between individual weld passes, monitoring welding technique and joint position, and looking for visual clues that indicate problems. Before start of welding, record measurements along with sidebends, overbends and sags in pipe. Field Welding Inspection Checklist.
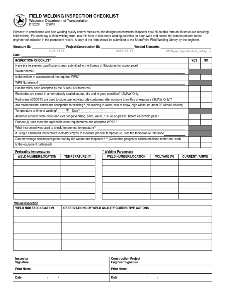
From www.scribd.com
Field Welding Inspection Checklist Wisconsin Department of Field Welding Inspection Checklist A lack of proper welding inspection offers the potential for quality problems, life safety issues and liabilities. The following pages contain inspection methods for gmaw and physical weld testing. Before start of welding, record measurements along with sidebends, overbends and sags in pipe joints. Forming visual examination at various stages of welding, and also typical examples of visual examination, discontinuities. Field Welding Inspection Checklist.
From www.wevolver.com
Welding Inspection And NonDestructive Testing Of Offshore Wind Jackets Field Welding Inspection Checklist A lack of proper welding inspection offers the potential for quality problems, life safety issues and liabilities. These tests reveal weak or defective sections that can be corrected before the. Weld inspection tasks that take place during the weld include keeping track of heat input, cleaning between individual weld passes, monitoring welding technique and joint position, and looking for visual. Field Welding Inspection Checklist.
From technoweld.com.au
Visual Welding Inspection Benefits South Australia and NSW Field Welding Inspection Checklist These tests reveal weak or defective sections that can be corrected before the. The following pages contain inspection methods for gmaw and physical weld testing. A lack of proper welding inspection offers the potential for quality problems, life safety issues and liabilities. Before start of welding, record measurements along with sidebends, overbends and sags in pipe joints. Forming visual examination. Field Welding Inspection Checklist.
From www.pinterest.ca
The amusing Welding Inspection Report Template Visual Weld Form Xls And Field Welding Inspection Checklist These tests reveal weak or defective sections that can be corrected before the. Before start of welding, record measurements along with sidebends, overbends and sags in pipe joints. Forming visual examination at various stages of welding, and also typical examples of visual examination, discontinuities and conditions, equipment supplements and aids, records,. Weld inspection tasks that take place during the weld. Field Welding Inspection Checklist.
From www.etsy.com
Safety Inspection Checklist, Safety Report, Safety Checklist, HSE Field Welding Inspection Checklist The following pages contain inspection methods for gmaw and physical weld testing. These tests reveal weak or defective sections that can be corrected before the. A lack of proper welding inspection offers the potential for quality problems, life safety issues and liabilities. Weld inspection tasks that take place during the weld include keeping track of heat input, cleaning between individual. Field Welding Inspection Checklist.
From steps.kontenterkini.com
Welding Inspection Report Template Field Welding Inspection Checklist The following pages contain inspection methods for gmaw and physical weld testing. Forming visual examination at various stages of welding, and also typical examples of visual examination, discontinuities and conditions, equipment supplements and aids, records,. Before start of welding, record measurements along with sidebends, overbends and sags in pipe joints. A lack of proper welding inspection offers the potential for. Field Welding Inspection Checklist.
From www.pinterest.com
Weld Visual Inspection Checklist Fill Out And Sign Printable Pdf Field Welding Inspection Checklist The following pages contain inspection methods for gmaw and physical weld testing. These tests reveal weak or defective sections that can be corrected before the. Before start of welding, record measurements along with sidebends, overbends and sags in pipe joints. A lack of proper welding inspection offers the potential for quality problems, life safety issues and liabilities. Forming visual examination. Field Welding Inspection Checklist.
From www.bldcareercenter.com
Field Weld Inspection Tool Kit BLD Career Center Field Welding Inspection Checklist These tests reveal weak or defective sections that can be corrected before the. The following pages contain inspection methods for gmaw and physical weld testing. Forming visual examination at various stages of welding, and also typical examples of visual examination, discontinuities and conditions, equipment supplements and aids, records,. Before start of welding, record measurements along with sidebends, overbends and sags. Field Welding Inspection Checklist.
From www.slideshare.net
Visual test form Field Welding Inspection Checklist Weld inspection tasks that take place during the weld include keeping track of heat input, cleaning between individual weld passes, monitoring welding technique and joint position, and looking for visual clues that indicate problems. Before start of welding, record measurements along with sidebends, overbends and sags in pipe joints. Forming visual examination at various stages of welding, and also typical. Field Welding Inspection Checklist.
From www.hqts.com
Understanding ThirdParty Welding Inspections (Insiders Guide) HQTS Field Welding Inspection Checklist These tests reveal weak or defective sections that can be corrected before the. The following pages contain inspection methods for gmaw and physical weld testing. A lack of proper welding inspection offers the potential for quality problems, life safety issues and liabilities. Weld inspection tasks that take place during the weld include keeping track of heat input, cleaning between individual. Field Welding Inspection Checklist.