Detail Sheets Definition . The sheet is usually called out from the building section. Detail drawings are used to demonstrate compliance with regulations, provide information about assembly and junctions between components, and show construction details. These will demonstrate junctions, complex. Detail drawings usually at a scale of around 1:20, 1:10 depending on the project and information. Room data sheets (rds) give a detailed description of the finishes, fixtures and fittings, mechanical and electrical requirements that. It shows a vertical cutaway view of a specific wall or group of walls. A spreadsheet or worksheet is a file made of rows and columns that help sort, organize, and arrange data efficiently, and calculate numerical data.
from stormchambers.com
These will demonstrate junctions, complex. Room data sheets (rds) give a detailed description of the finishes, fixtures and fittings, mechanical and electrical requirements that. Detail drawings are used to demonstrate compliance with regulations, provide information about assembly and junctions between components, and show construction details. The sheet is usually called out from the building section. It shows a vertical cutaway view of a specific wall or group of walls. A spreadsheet or worksheet is a file made of rows and columns that help sort, organize, and arrange data efficiently, and calculate numerical data. Detail drawings usually at a scale of around 1:20, 1:10 depending on the project and information.
Detail Sheet
Detail Sheets Definition Room data sheets (rds) give a detailed description of the finishes, fixtures and fittings, mechanical and electrical requirements that. Detail drawings are used to demonstrate compliance with regulations, provide information about assembly and junctions between components, and show construction details. Detail drawings usually at a scale of around 1:20, 1:10 depending on the project and information. It shows a vertical cutaway view of a specific wall or group of walls. Room data sheets (rds) give a detailed description of the finishes, fixtures and fittings, mechanical and electrical requirements that. A spreadsheet or worksheet is a file made of rows and columns that help sort, organize, and arrange data efficiently, and calculate numerical data. These will demonstrate junctions, complex. The sheet is usually called out from the building section.
From www.timberworksarchitecture.com
Timberworks Design Timber Frame House Plans Custom Design Services Detail Sheets Definition Detail drawings usually at a scale of around 1:20, 1:10 depending on the project and information. These will demonstrate junctions, complex. Detail drawings are used to demonstrate compliance with regulations, provide information about assembly and junctions between components, and show construction details. Room data sheets (rds) give a detailed description of the finishes, fixtures and fittings, mechanical and electrical requirements. Detail Sheets Definition.
From www.researchgate.net
14 Examples of construction details sheets from the standardized plans Detail Sheets Definition Detail drawings are used to demonstrate compliance with regulations, provide information about assembly and junctions between components, and show construction details. Room data sheets (rds) give a detailed description of the finishes, fixtures and fittings, mechanical and electrical requirements that. These will demonstrate junctions, complex. It shows a vertical cutaway view of a specific wall or group of walls. A. Detail Sheets Definition.
From www.lifeofanarchitect.com
Architectural Graphics Drawing Alignment and Notes Life of an Architect Detail Sheets Definition It shows a vertical cutaway view of a specific wall or group of walls. Detail drawings usually at a scale of around 1:20, 1:10 depending on the project and information. These will demonstrate junctions, complex. A spreadsheet or worksheet is a file made of rows and columns that help sort, organize, and arrange data efficiently, and calculate numerical data. Detail. Detail Sheets Definition.
From www.scribd.com
A501 Detail Sheet 2 PDF Detail Sheets Definition It shows a vertical cutaway view of a specific wall or group of walls. These will demonstrate junctions, complex. Room data sheets (rds) give a detailed description of the finishes, fixtures and fittings, mechanical and electrical requirements that. Detail drawings usually at a scale of around 1:20, 1:10 depending on the project and information. Detail drawings are used to demonstrate. Detail Sheets Definition.
From www.files.construction
Project Details Sheet Construction Documents And Templates Detail Sheets Definition Room data sheets (rds) give a detailed description of the finishes, fixtures and fittings, mechanical and electrical requirements that. A spreadsheet or worksheet is a file made of rows and columns that help sort, organize, and arrange data efficiently, and calculate numerical data. Detail drawings usually at a scale of around 1:20, 1:10 depending on the project and information. These. Detail Sheets Definition.
From www.textileindustry.net
What is Fabric Specification Sheet? Detail Sheets Definition It shows a vertical cutaway view of a specific wall or group of walls. A spreadsheet or worksheet is a file made of rows and columns that help sort, organize, and arrange data efficiently, and calculate numerical data. Room data sheets (rds) give a detailed description of the finishes, fixtures and fittings, mechanical and electrical requirements that. Detail drawings usually. Detail Sheets Definition.
From jeddahshore.com
Architecture The Essential Guide to Creating Construction Documents Detail Sheets Definition The sheet is usually called out from the building section. Detail drawings are used to demonstrate compliance with regulations, provide information about assembly and junctions between components, and show construction details. It shows a vertical cutaway view of a specific wall or group of walls. Room data sheets (rds) give a detailed description of the finishes, fixtures and fittings, mechanical. Detail Sheets Definition.
From www.lifeofanarchitect.com
Architectural Graphics Drawing Alignment and Notes Life of an Architect Detail Sheets Definition Detail drawings usually at a scale of around 1:20, 1:10 depending on the project and information. Detail drawings are used to demonstrate compliance with regulations, provide information about assembly and junctions between components, and show construction details. A spreadsheet or worksheet is a file made of rows and columns that help sort, organize, and arrange data efficiently, and calculate numerical. Detail Sheets Definition.
From forums.autodesk.com
Solved showing a detail sketch of joint on your Sheet Autodesk Community Detail Sheets Definition Detail drawings usually at a scale of around 1:20, 1:10 depending on the project and information. Detail drawings are used to demonstrate compliance with regulations, provide information about assembly and junctions between components, and show construction details. A spreadsheet or worksheet is a file made of rows and columns that help sort, organize, and arrange data efficiently, and calculate numerical. Detail Sheets Definition.
From dokumen.tips
(PDF) Modernus Standard Detail Sheet Detail Sheets Definition A spreadsheet or worksheet is a file made of rows and columns that help sort, organize, and arrange data efficiently, and calculate numerical data. It shows a vertical cutaway view of a specific wall or group of walls. The sheet is usually called out from the building section. Detail drawings are used to demonstrate compliance with regulations, provide information about. Detail Sheets Definition.
From www.scribd.com
s001 Typical Details Sheet 1s001 PDF Detail Sheets Definition These will demonstrate junctions, complex. A spreadsheet or worksheet is a file made of rows and columns that help sort, organize, and arrange data efficiently, and calculate numerical data. The sheet is usually called out from the building section. Detail drawings usually at a scale of around 1:20, 1:10 depending on the project and information. Detail drawings are used to. Detail Sheets Definition.
From jwork1.wordpress.com
DETAIL SHEET Freelance Drafting / AutoCAD Specialist Detail Sheets Definition Detail drawings are used to demonstrate compliance with regulations, provide information about assembly and junctions between components, and show construction details. A spreadsheet or worksheet is a file made of rows and columns that help sort, organize, and arrange data efficiently, and calculate numerical data. These will demonstrate junctions, complex. Room data sheets (rds) give a detailed description of the. Detail Sheets Definition.
From www.lifeofanarchitect.com
Residential Architecture 101 Specifications Detail Sheets Definition Room data sheets (rds) give a detailed description of the finishes, fixtures and fittings, mechanical and electrical requirements that. These will demonstrate junctions, complex. A spreadsheet or worksheet is a file made of rows and columns that help sort, organize, and arrange data efficiently, and calculate numerical data. Detail drawings are used to demonstrate compliance with regulations, provide information about. Detail Sheets Definition.
From www.youtube.com
Detail Sheets YouTube Detail Sheets Definition Detail drawings usually at a scale of around 1:20, 1:10 depending on the project and information. Room data sheets (rds) give a detailed description of the finishes, fixtures and fittings, mechanical and electrical requirements that. The sheet is usually called out from the building section. It shows a vertical cutaway view of a specific wall or group of walls. These. Detail Sheets Definition.
From www.scribd.com
CLMB(3)000CVDWG0003_CDRawing for Drainage Layout and Detail Sheet Detail Sheets Definition These will demonstrate junctions, complex. Detail drawings usually at a scale of around 1:20, 1:10 depending on the project and information. Detail drawings are used to demonstrate compliance with regulations, provide information about assembly and junctions between components, and show construction details. The sheet is usually called out from the building section. Room data sheets (rds) give a detailed description. Detail Sheets Definition.
From www.yorkbuilding.com
Cad Details & Drawings York Building Products Detail Sheets Definition A spreadsheet or worksheet is a file made of rows and columns that help sort, organize, and arrange data efficiently, and calculate numerical data. Room data sheets (rds) give a detailed description of the finishes, fixtures and fittings, mechanical and electrical requirements that. Detail drawings are used to demonstrate compliance with regulations, provide information about assembly and junctions between components,. Detail Sheets Definition.
From www.thestructuralworld.com
How to Read Structural Drawings Detail Sheets Definition Detail drawings are used to demonstrate compliance with regulations, provide information about assembly and junctions between components, and show construction details. These will demonstrate junctions, complex. Room data sheets (rds) give a detailed description of the finishes, fixtures and fittings, mechanical and electrical requirements that. Detail drawings usually at a scale of around 1:20, 1:10 depending on the project and. Detail Sheets Definition.
From www.yorkbuilding.com
Cad Details & Drawings York Building Products Detail Sheets Definition It shows a vertical cutaway view of a specific wall or group of walls. Detail drawings are used to demonstrate compliance with regulations, provide information about assembly and junctions between components, and show construction details. Room data sheets (rds) give a detailed description of the finishes, fixtures and fittings, mechanical and electrical requirements that. Detail drawings usually at a scale. Detail Sheets Definition.
From stormchambers.com
Detail Sheet Detail Sheets Definition It shows a vertical cutaway view of a specific wall or group of walls. Room data sheets (rds) give a detailed description of the finishes, fixtures and fittings, mechanical and electrical requirements that. A spreadsheet or worksheet is a file made of rows and columns that help sort, organize, and arrange data efficiently, and calculate numerical data. Detail drawings usually. Detail Sheets Definition.
From openlab.citytech.cuny.edu
Typical 22 x 34 Detail Sheet Layout ARCH2330 BTech3 FA16 Detail Sheets Definition These will demonstrate junctions, complex. The sheet is usually called out from the building section. Detail drawings are used to demonstrate compliance with regulations, provide information about assembly and junctions between components, and show construction details. Room data sheets (rds) give a detailed description of the finishes, fixtures and fittings, mechanical and electrical requirements that. Detail drawings usually at a. Detail Sheets Definition.
From www.taylorfrancis.com
Builders' Detail Sheets Taylor & Francis Group Detail Sheets Definition A spreadsheet or worksheet is a file made of rows and columns that help sort, organize, and arrange data efficiently, and calculate numerical data. The sheet is usually called out from the building section. Detail drawings are used to demonstrate compliance with regulations, provide information about assembly and junctions between components, and show construction details. Room data sheets (rds) give. Detail Sheets Definition.
From abtdrains.com
Detail Sheets ABT Inc. Detail Sheets Definition The sheet is usually called out from the building section. A spreadsheet or worksheet is a file made of rows and columns that help sort, organize, and arrange data efficiently, and calculate numerical data. Room data sheets (rds) give a detailed description of the finishes, fixtures and fittings, mechanical and electrical requirements that. Detail drawings usually at a scale of. Detail Sheets Definition.
From www.scribd.com
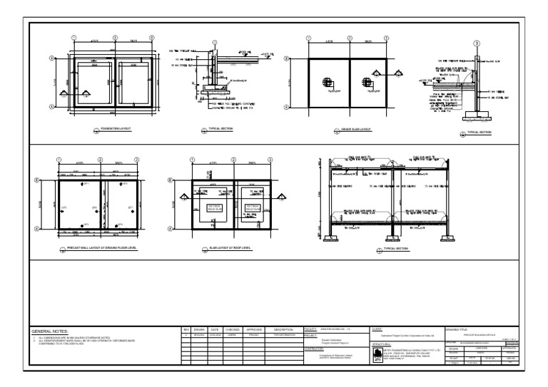
Precast Building Details Sheet 1 PDF Building Building Materials Detail Sheets Definition Detail drawings are used to demonstrate compliance with regulations, provide information about assembly and junctions between components, and show construction details. Room data sheets (rds) give a detailed description of the finishes, fixtures and fittings, mechanical and electrical requirements that. The sheet is usually called out from the building section. It shows a vertical cutaway view of a specific wall. Detail Sheets Definition.
From mohamedabdelkarim.wixsite.com
Office mohamedabdelkarim Detail Sheets Definition The sheet is usually called out from the building section. Room data sheets (rds) give a detailed description of the finishes, fixtures and fittings, mechanical and electrical requirements that. These will demonstrate junctions, complex. A spreadsheet or worksheet is a file made of rows and columns that help sort, organize, and arrange data efficiently, and calculate numerical data. It shows. Detail Sheets Definition.
From blog.cadimage.com
Cadimage Blog » Creating Tidy detail sheets Detail Sheets Definition Room data sheets (rds) give a detailed description of the finishes, fixtures and fittings, mechanical and electrical requirements that. The sheet is usually called out from the building section. Detail drawings usually at a scale of around 1:20, 1:10 depending on the project and information. Detail drawings are used to demonstrate compliance with regulations, provide information about assembly and junctions. Detail Sheets Definition.
From www.stifirestop.com
CAD Detail Sheets Detail Sheets Definition Detail drawings usually at a scale of around 1:20, 1:10 depending on the project and information. Detail drawings are used to demonstrate compliance with regulations, provide information about assembly and junctions between components, and show construction details. A spreadsheet or worksheet is a file made of rows and columns that help sort, organize, and arrange data efficiently, and calculate numerical. Detail Sheets Definition.
From www.exceldemy.com
How to Design an Employee Details Form in Excel (Free Template) Detail Sheets Definition It shows a vertical cutaway view of a specific wall or group of walls. The sheet is usually called out from the building section. Detail drawings usually at a scale of around 1:20, 1:10 depending on the project and information. A spreadsheet or worksheet is a file made of rows and columns that help sort, organize, and arrange data efficiently,. Detail Sheets Definition.
From www.scribd.com
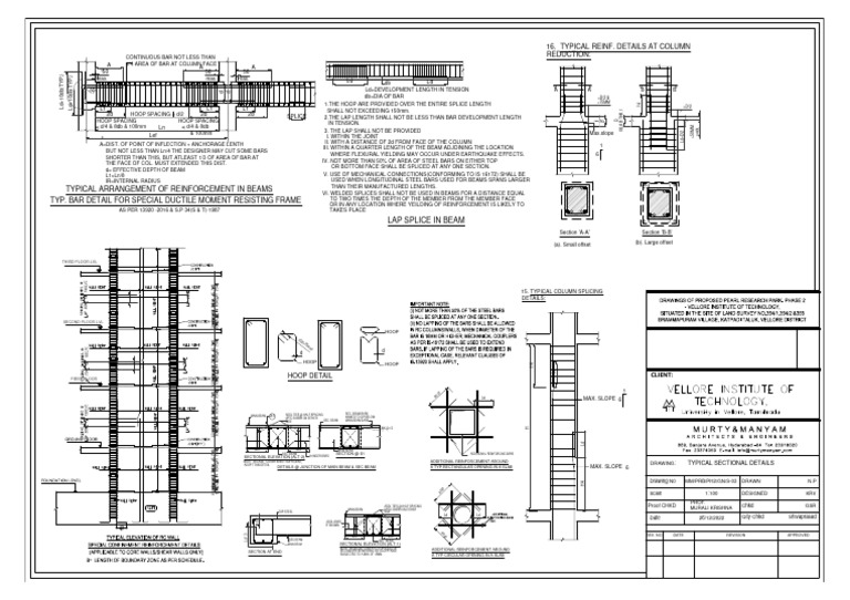
TYPICAL SECTIONAL DETAILS SHEET3 (1) PDF Beam (Structure Detail Sheets Definition Detail drawings usually at a scale of around 1:20, 1:10 depending on the project and information. It shows a vertical cutaway view of a specific wall or group of walls. Room data sheets (rds) give a detailed description of the finishes, fixtures and fittings, mechanical and electrical requirements that. These will demonstrate junctions, complex. Detail drawings are used to demonstrate. Detail Sheets Definition.
From seblog.strongtie.com
Figure 11Revit Detail Sheet Detail Sheets Definition Detail drawings are used to demonstrate compliance with regulations, provide information about assembly and junctions between components, and show construction details. It shows a vertical cutaway view of a specific wall or group of walls. Detail drawings usually at a scale of around 1:20, 1:10 depending on the project and information. The sheet is usually called out from the building. Detail Sheets Definition.
From www.pinterest.com
DETAIL SHEET Roof edge, Clapboard siding, Double hung windows Detail Sheets Definition It shows a vertical cutaway view of a specific wall or group of walls. The sheet is usually called out from the building section. Room data sheets (rds) give a detailed description of the finishes, fixtures and fittings, mechanical and electrical requirements that. A spreadsheet or worksheet is a file made of rows and columns that help sort, organize, and. Detail Sheets Definition.
From www.best-steps.com
Detail Sheets — Best Concrete Steps Inc. Detail Sheets Definition Room data sheets (rds) give a detailed description of the finishes, fixtures and fittings, mechanical and electrical requirements that. Detail drawings usually at a scale of around 1:20, 1:10 depending on the project and information. A spreadsheet or worksheet is a file made of rows and columns that help sort, organize, and arrange data efficiently, and calculate numerical data. It. Detail Sheets Definition.
From clipground.com
details definition 20 free Cliparts Download images on Clipground 2024 Detail Sheets Definition A spreadsheet or worksheet is a file made of rows and columns that help sort, organize, and arrange data efficiently, and calculate numerical data. These will demonstrate junctions, complex. Detail drawings are used to demonstrate compliance with regulations, provide information about assembly and junctions between components, and show construction details. Room data sheets (rds) give a detailed description of the. Detail Sheets Definition.
From www.upwork.com
Aluminum curtain wall details drawings Upwork Detail Sheets Definition A spreadsheet or worksheet is a file made of rows and columns that help sort, organize, and arrange data efficiently, and calculate numerical data. Detail drawings usually at a scale of around 1:20, 1:10 depending on the project and information. Detail drawings are used to demonstrate compliance with regulations, provide information about assembly and junctions between components, and show construction. Detail Sheets Definition.
From bestcadtips.com
The Power of the Sheet Layout Grid in AutoCAD Best CAD Tips Detail Sheets Definition Detail drawings usually at a scale of around 1:20, 1:10 depending on the project and information. Detail drawings are used to demonstrate compliance with regulations, provide information about assembly and junctions between components, and show construction details. A spreadsheet or worksheet is a file made of rows and columns that help sort, organize, and arrange data efficiently, and calculate numerical. Detail Sheets Definition.
From mavink.com
Revit Detail Sheets Detail Sheets Definition Room data sheets (rds) give a detailed description of the finishes, fixtures and fittings, mechanical and electrical requirements that. These will demonstrate junctions, complex. A spreadsheet or worksheet is a file made of rows and columns that help sort, organize, and arrange data efficiently, and calculate numerical data. Detail drawings usually at a scale of around 1:20, 1:10 depending on. Detail Sheets Definition.