Step Through Ladder Dimensions . There are simple, sensible precautions you should take to stay safe when using portable leaning ladders and stepladders in the workplace. Per osha 1910.23 (d) (4), the side rails of through or sidestep ladders must extend 42 inches above the top of the access level or landing platform served by the ladder. The step ladder will need. Only pick a step ladder with a closed length that will comfortable fit within your transport or storage! Calculating the right step ladder length is a little easier because you don't need to take pitch into account. Then using this measurement, work out the right sized product to buy with. Looking for the perfect step ladder? Before you buy a ladder or step, first measure the height that you are looking to work at or to reach. Our guide covers everything from en131 safety standards to wide step options, folding designs,.
from www.dimensions.com
Looking for the perfect step ladder? There are simple, sensible precautions you should take to stay safe when using portable leaning ladders and stepladders in the workplace. The step ladder will need. Our guide covers everything from en131 safety standards to wide step options, folding designs,. Per osha 1910.23 (d) (4), the side rails of through or sidestep ladders must extend 42 inches above the top of the access level or landing platform served by the ladder. Then using this measurement, work out the right sized product to buy with. Calculating the right step ladder length is a little easier because you don't need to take pitch into account. Only pick a step ladder with a closed length that will comfortable fit within your transport or storage! Before you buy a ladder or step, first measure the height that you are looking to work at or to reach.
Access Ladders Dimensions & Drawings
Step Through Ladder Dimensions There are simple, sensible precautions you should take to stay safe when using portable leaning ladders and stepladders in the workplace. Before you buy a ladder or step, first measure the height that you are looking to work at or to reach. There are simple, sensible precautions you should take to stay safe when using portable leaning ladders and stepladders in the workplace. Only pick a step ladder with a closed length that will comfortable fit within your transport or storage! Calculating the right step ladder length is a little easier because you don't need to take pitch into account. The step ladder will need. Then using this measurement, work out the right sized product to buy with. Looking for the perfect step ladder? Our guide covers everything from en131 safety standards to wide step options, folding designs,. Per osha 1910.23 (d) (4), the side rails of through or sidestep ladders must extend 42 inches above the top of the access level or landing platform served by the ladder.
From www.fsindustries.com
Welded Aluminum Flush Top Tread Ships Ladder, Flush Top Tread Ships Step Through Ladder Dimensions Only pick a step ladder with a closed length that will comfortable fit within your transport or storage! The step ladder will need. Then using this measurement, work out the right sized product to buy with. Our guide covers everything from en131 safety standards to wide step options, folding designs,. Looking for the perfect step ladder? Before you buy a. Step Through Ladder Dimensions.
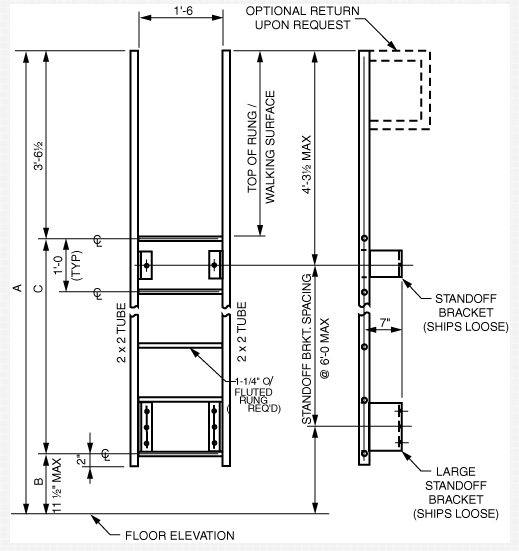
From continuingeducation.bnpmedia.com
CE Center Reaching the Roof Specifying Fixed Access Aluminum Ladders Step Through Ladder Dimensions There are simple, sensible precautions you should take to stay safe when using portable leaning ladders and stepladders in the workplace. Before you buy a ladder or step, first measure the height that you are looking to work at or to reach. Per osha 1910.23 (d) (4), the side rails of through or sidestep ladders must extend 42 inches above. Step Through Ladder Dimensions.
From mavink.com
Step Ladder Height Chart Step Through Ladder Dimensions There are simple, sensible precautions you should take to stay safe when using portable leaning ladders and stepladders in the workplace. Looking for the perfect step ladder? The step ladder will need. Calculating the right step ladder length is a little easier because you don't need to take pitch into account. Then using this measurement, work out the right sized. Step Through Ladder Dimensions.
From www.dimensions.com
Access Ladders Dimensions & Drawings Step Through Ladder Dimensions Before you buy a ladder or step, first measure the height that you are looking to work at or to reach. The step ladder will need. Then using this measurement, work out the right sized product to buy with. Only pick a step ladder with a closed length that will comfortable fit within your transport or storage! Calculating the right. Step Through Ladder Dimensions.
From www.dimensions.com
Access Ladders Dimensions & Drawings Step Through Ladder Dimensions Per osha 1910.23 (d) (4), the side rails of through or sidestep ladders must extend 42 inches above the top of the access level or landing platform served by the ladder. Our guide covers everything from en131 safety standards to wide step options, folding designs,. Looking for the perfect step ladder? Calculating the right step ladder length is a little. Step Through Ladder Dimensions.
From caisafety.com
Request a Quote Fixed Vertical Ladder & Ladder Cable Fall Arrest Step Through Ladder Dimensions Our guide covers everything from en131 safety standards to wide step options, folding designs,. There are simple, sensible precautions you should take to stay safe when using portable leaning ladders and stepladders in the workplace. The step ladder will need. Then using this measurement, work out the right sized product to buy with. Before you buy a ladder or step,. Step Through Ladder Dimensions.
From www.dcgraves.com
Fixed Ladder with Walk Thru Handrails Fixed Steel Ladders Step Through Ladder Dimensions There are simple, sensible precautions you should take to stay safe when using portable leaning ladders and stepladders in the workplace. Only pick a step ladder with a closed length that will comfortable fit within your transport or storage! Our guide covers everything from en131 safety standards to wide step options, folding designs,. Per osha 1910.23 (d) (4), the side. Step Through Ladder Dimensions.
From www.dimensions.com
Access Ladder Dropdown, Cage Dimensions & Drawings Step Through Ladder Dimensions Calculating the right step ladder length is a little easier because you don't need to take pitch into account. Only pick a step ladder with a closed length that will comfortable fit within your transport or storage! There are simple, sensible precautions you should take to stay safe when using portable leaning ladders and stepladders in the workplace. The step. Step Through Ladder Dimensions.
From www.egaproducts.com
OSHA Fixed Ladder Requirements EGA Products, Inc. Step Through Ladder Dimensions The step ladder will need. Before you buy a ladder or step, first measure the height that you are looking to work at or to reach. Calculating the right step ladder length is a little easier because you don't need to take pitch into account. Only pick a step ladder with a closed length that will comfortable fit within your. Step Through Ladder Dimensions.
From www.dimensions.com
Access Ladder Vertical, Parapet Dimensions & Drawings Step Through Ladder Dimensions Only pick a step ladder with a closed length that will comfortable fit within your transport or storage! Our guide covers everything from en131 safety standards to wide step options, folding designs,. Looking for the perfect step ladder? Per osha 1910.23 (d) (4), the side rails of through or sidestep ladders must extend 42 inches above the top of the. Step Through Ladder Dimensions.
From www.spacepac.com.au
StepThru Mobile Access Platform Ladders Spacepac Industries Step Through Ladder Dimensions There are simple, sensible precautions you should take to stay safe when using portable leaning ladders and stepladders in the workplace. Looking for the perfect step ladder? Per osha 1910.23 (d) (4), the side rails of through or sidestep ladders must extend 42 inches above the top of the access level or landing platform served by the ladder. Our guide. Step Through Ladder Dimensions.
From littlejumboladders.com.au
Order Pickers Stockmaster™ StepThru Little Jumbo Ladders Step Through Ladder Dimensions Our guide covers everything from en131 safety standards to wide step options, folding designs,. The step ladder will need. Per osha 1910.23 (d) (4), the side rails of through or sidestep ladders must extend 42 inches above the top of the access level or landing platform served by the ladder. Only pick a step ladder with a closed length that. Step Through Ladder Dimensions.
From laddershop.com.au
Telescopic Ladder TL10 The Ladder Shop Step Through Ladder Dimensions Per osha 1910.23 (d) (4), the side rails of through or sidestep ladders must extend 42 inches above the top of the access level or landing platform served by the ladder. Before you buy a ladder or step, first measure the height that you are looking to work at or to reach. Calculating the right step ladder length is a. Step Through Ladder Dimensions.
From www.bunnings.com.au
Bailey Ladders Step Thru Safety Device Bunnings Australia Step Through Ladder Dimensions The step ladder will need. There are simple, sensible precautions you should take to stay safe when using portable leaning ladders and stepladders in the workplace. Per osha 1910.23 (d) (4), the side rails of through or sidestep ladders must extend 42 inches above the top of the access level or landing platform served by the ladder. Looking for the. Step Through Ladder Dimensions.
From size-charts.com
Ladder Size Chart and Dimensions What size of ladder do I need? Step Through Ladder Dimensions The step ladder will need. There are simple, sensible precautions you should take to stay safe when using portable leaning ladders and stepladders in the workplace. Only pick a step ladder with a closed length that will comfortable fit within your transport or storage! Then using this measurement, work out the right sized product to buy with. Looking for the. Step Through Ladder Dimensions.
From www.stepform.com.au
Step Ladders Australian Standard AS16572018 StepForm™ Modular Step Through Ladder Dimensions Calculating the right step ladder length is a little easier because you don't need to take pitch into account. Our guide covers everything from en131 safety standards to wide step options, folding designs,. Looking for the perfect step ladder? Only pick a step ladder with a closed length that will comfortable fit within your transport or storage! The step ladder. Step Through Ladder Dimensions.
From cadbull.com
Detail of step through type ladder for ladder 8 is given in this 2D Step Through Ladder Dimensions Our guide covers everything from en131 safety standards to wide step options, folding designs,. Only pick a step ladder with a closed length that will comfortable fit within your transport or storage! Calculating the right step ladder length is a little easier because you don't need to take pitch into account. Looking for the perfect step ladder? Before you buy. Step Through Ladder Dimensions.
From www.dimensions.com
Access Ladders Dimensions & Drawings Step Through Ladder Dimensions The step ladder will need. Per osha 1910.23 (d) (4), the side rails of through or sidestep ladders must extend 42 inches above the top of the access level or landing platform served by the ladder. There are simple, sensible precautions you should take to stay safe when using portable leaning ladders and stepladders in the workplace. Our guide covers. Step Through Ladder Dimensions.
From www.archtoolbox.com
Fixed Ladder Design Standards Archtoolbox Step Through Ladder Dimensions Looking for the perfect step ladder? Then using this measurement, work out the right sized product to buy with. Per osha 1910.23 (d) (4), the side rails of through or sidestep ladders must extend 42 inches above the top of the access level or landing platform served by the ladder. Only pick a step ladder with a closed length that. Step Through Ladder Dimensions.
From www.unitran.ca
Walk Through Ladder Available in 216 Stair Tread Options Step Through Ladder Dimensions There are simple, sensible precautions you should take to stay safe when using portable leaning ladders and stepladders in the workplace. Our guide covers everything from en131 safety standards to wide step options, folding designs,. Looking for the perfect step ladder? Only pick a step ladder with a closed length that will comfortable fit within your transport or storage! Before. Step Through Ladder Dimensions.
From arcon-cc.com
Ladders Arcon Group Step Through Ladder Dimensions Per osha 1910.23 (d) (4), the side rails of through or sidestep ladders must extend 42 inches above the top of the access level or landing platform served by the ladder. Our guide covers everything from en131 safety standards to wide step options, folding designs,. Then using this measurement, work out the right sized product to buy with. Calculating the. Step Through Ladder Dimensions.
From ladders-online.com.my
Heavy Duty Light Weight Step Ladder Step Through Ladder Dimensions The step ladder will need. Calculating the right step ladder length is a little easier because you don't need to take pitch into account. Before you buy a ladder or step, first measure the height that you are looking to work at or to reach. There are simple, sensible precautions you should take to stay safe when using portable leaning. Step Through Ladder Dimensions.
From www.gefinc.com
Quote Worksheet Standard WalkThrough Ladder with Wall Mount GEF, Inc. Step Through Ladder Dimensions Then using this measurement, work out the right sized product to buy with. There are simple, sensible precautions you should take to stay safe when using portable leaning ladders and stepladders in the workplace. Before you buy a ladder or step, first measure the height that you are looking to work at or to reach. The step ladder will need.. Step Through Ladder Dimensions.
From littlejumboladders.com.au
Platform Ladders Ladderweld PS 8Steps Little Jumbo Ladders Step Through Ladder Dimensions Per osha 1910.23 (d) (4), the side rails of through or sidestep ladders must extend 42 inches above the top of the access level or landing platform served by the ladder. Our guide covers everything from en131 safety standards to wide step options, folding designs,. Before you buy a ladder or step, first measure the height that you are looking. Step Through Ladder Dimensions.
From ladderproducts.com
Step Ladder Diagram Ladder Products LLC Step Through Ladder Dimensions The step ladder will need. Per osha 1910.23 (d) (4), the side rails of through or sidestep ladders must extend 42 inches above the top of the access level or landing platform served by the ladder. Looking for the perfect step ladder? Our guide covers everything from en131 safety standards to wide step options, folding designs,. Only pick a step. Step Through Ladder Dimensions.
From www.stepform.com.au
Rung Ladders Australian Standard AS16572018 StepForm™ Modular Step Through Ladder Dimensions Looking for the perfect step ladder? Per osha 1910.23 (d) (4), the side rails of through or sidestep ladders must extend 42 inches above the top of the access level or landing platform served by the ladder. The step ladder will need. Then using this measurement, work out the right sized product to buy with. Our guide covers everything from. Step Through Ladder Dimensions.
From ladders-online.com.my
How to Choose a Suitable Step Ladder? Step Through Ladder Dimensions Our guide covers everything from en131 safety standards to wide step options, folding designs,. Before you buy a ladder or step, first measure the height that you are looking to work at or to reach. The step ladder will need. Only pick a step ladder with a closed length that will comfortable fit within your transport or storage! There are. Step Through Ladder Dimensions.
From mungfali.com
Ladder Details Standard Drawings Step Through Ladder Dimensions The step ladder will need. Per osha 1910.23 (d) (4), the side rails of through or sidestep ladders must extend 42 inches above the top of the access level or landing platform served by the ladder. Looking for the perfect step ladder? Then using this measurement, work out the right sized product to buy with. Only pick a step ladder. Step Through Ladder Dimensions.
From continuingeducation.bnpmedia.com
CE Center Reaching the Roof Specifying Fixed Access Aluminum Ladders Step Through Ladder Dimensions The step ladder will need. Only pick a step ladder with a closed length that will comfortable fit within your transport or storage! Then using this measurement, work out the right sized product to buy with. There are simple, sensible precautions you should take to stay safe when using portable leaning ladders and stepladders in the workplace. Looking for the. Step Through Ladder Dimensions.
From designingidea.com
Ladder Sizes (Types & Dimensions Guide) Step Through Ladder Dimensions Only pick a step ladder with a closed length that will comfortable fit within your transport or storage! Before you buy a ladder or step, first measure the height that you are looking to work at or to reach. Looking for the perfect step ladder? Per osha 1910.23 (d) (4), the side rails of through or sidestep ladders must extend. Step Through Ladder Dimensions.
From bceweb.org
Step Ladder Size Chart A Visual Reference of Charts Chart Master Step Through Ladder Dimensions Per osha 1910.23 (d) (4), the side rails of through or sidestep ladders must extend 42 inches above the top of the access level or landing platform served by the ladder. The step ladder will need. Before you buy a ladder or step, first measure the height that you are looking to work at or to reach. There are simple,. Step Through Ladder Dimensions.
From alacoladder.com
H60 60° Ships Ladder Alaco Ladder Step Through Ladder Dimensions Calculating the right step ladder length is a little easier because you don't need to take pitch into account. The step ladder will need. Before you buy a ladder or step, first measure the height that you are looking to work at or to reach. There are simple, sensible precautions you should take to stay safe when using portable leaning. Step Through Ladder Dimensions.
From safesitehq.com
OSHA Ladder Safety for General Industry Safesite Step Through Ladder Dimensions Looking for the perfect step ladder? Calculating the right step ladder length is a little easier because you don't need to take pitch into account. Then using this measurement, work out the right sized product to buy with. Only pick a step ladder with a closed length that will comfortable fit within your transport or storage! Our guide covers everything. Step Through Ladder Dimensions.
From www.backsafeaustralia.com.au
Buy A Step Thru Platform Ladder Materials Handling Equipment Step Through Ladder Dimensions Then using this measurement, work out the right sized product to buy with. Per osha 1910.23 (d) (4), the side rails of through or sidestep ladders must extend 42 inches above the top of the access level or landing platform served by the ladder. Calculating the right step ladder length is a little easier because you don't need to take. Step Through Ladder Dimensions.
From roc-aluminum.com
36 Steps Folding Household Aluminum Step Ladder Aluminum Step Through Ladder Dimensions Then using this measurement, work out the right sized product to buy with. Looking for the perfect step ladder? Our guide covers everything from en131 safety standards to wide step options, folding designs,. Per osha 1910.23 (d) (4), the side rails of through or sidestep ladders must extend 42 inches above the top of the access level or landing platform. Step Through Ladder Dimensions.