What Is Small Appliance Load . Every dwelling has a minimum small appliance load of 3000 va (article 220.52). Section 210.11(c)(1) requires a minimum of two small appliance branch circuits. At least two small appliance circuits per 210.52(a) must be installed to supply receptacle outlets in the kitchen, breakfast room, pantry and dining room. Small appliance and laundry loads. Every dwelling has a minimum laundry load of 1500 va (article.
from www.electrical-knowhow.com
Section 210.11(c)(1) requires a minimum of two small appliance branch circuits. Every dwelling has a minimum small appliance load of 3000 va (article 220.52). At least two small appliance circuits per 210.52(a) must be installed to supply receptacle outlets in the kitchen, breakfast room, pantry and dining room. Small appliance and laundry loads. Every dwelling has a minimum laundry load of 1500 va (article.
Receptacle Branch Circuit Design Calculations Part Five Electrical
What Is Small Appliance Load Every dwelling has a minimum small appliance load of 3000 va (article 220.52). Section 210.11(c)(1) requires a minimum of two small appliance branch circuits. Every dwelling has a minimum small appliance load of 3000 va (article 220.52). Small appliance and laundry loads. Every dwelling has a minimum laundry load of 1500 va (article. At least two small appliance circuits per 210.52(a) must be installed to supply receptacle outlets in the kitchen, breakfast room, pantry and dining room.
From 7esl.com
Household Appliances Useful Home Appliances List with Pictures • 7ESL What Is Small Appliance Load Small appliance and laundry loads. Every dwelling has a minimum small appliance load of 3000 va (article 220.52). Every dwelling has a minimum laundry load of 1500 va (article. At least two small appliance circuits per 210.52(a) must be installed to supply receptacle outlets in the kitchen, breakfast room, pantry and dining room. Section 210.11(c)(1) requires a minimum of two. What Is Small Appliance Load.
From myelectricwork.blogspot.com
Electric Work Wattage Rating for Common Household Appliances,1 4 What Is Small Appliance Load Every dwelling has a minimum laundry load of 1500 va (article. At least two small appliance circuits per 210.52(a) must be installed to supply receptacle outlets in the kitchen, breakfast room, pantry and dining room. Section 210.11(c)(1) requires a minimum of two small appliance branch circuits. Every dwelling has a minimum small appliance load of 3000 va (article 220.52). Small. What Is Small Appliance Load.
From www.globalstocks.eu
Small Appliance Full Truck Load USA What Is Small Appliance Load Section 210.11(c)(1) requires a minimum of two small appliance branch circuits. Every dwelling has a minimum laundry load of 1500 va (article. Small appliance and laundry loads. Every dwelling has a minimum small appliance load of 3000 va (article 220.52). At least two small appliance circuits per 210.52(a) must be installed to supply receptacle outlets in the kitchen, breakfast room,. What Is Small Appliance Load.
From www.thekitchn.com
Small Appliances Every Kitchen Needs Kitchn What Is Small Appliance Load Every dwelling has a minimum small appliance load of 3000 va (article 220.52). Every dwelling has a minimum laundry load of 1500 va (article. Section 210.11(c)(1) requires a minimum of two small appliance branch circuits. Small appliance and laundry loads. At least two small appliance circuits per 210.52(a) must be installed to supply receptacle outlets in the kitchen, breakfast room,. What Is Small Appliance Load.
From www.researchgate.net
Appliances loads used by the SLIDES house. Download Table What Is Small Appliance Load Every dwelling has a minimum laundry load of 1500 va (article. Small appliance and laundry loads. At least two small appliance circuits per 210.52(a) must be installed to supply receptacle outlets in the kitchen, breakfast room, pantry and dining room. Every dwelling has a minimum small appliance load of 3000 va (article 220.52). Section 210.11(c)(1) requires a minimum of two. What Is Small Appliance Load.
From www.forbes.com
Best Small Kitchen Appliances Forbes Vetted What Is Small Appliance Load At least two small appliance circuits per 210.52(a) must be installed to supply receptacle outlets in the kitchen, breakfast room, pantry and dining room. Small appliance and laundry loads. Section 210.11(c)(1) requires a minimum of two small appliance branch circuits. Every dwelling has a minimum small appliance load of 3000 va (article 220.52). Every dwelling has a minimum laundry load. What Is Small Appliance Load.
From www.numerade.com
Standard Calculation OneFamily Dwelling. What is the general lighting What Is Small Appliance Load At least two small appliance circuits per 210.52(a) must be installed to supply receptacle outlets in the kitchen, breakfast room, pantry and dining room. Section 210.11(c)(1) requires a minimum of two small appliance branch circuits. Every dwelling has a minimum small appliance load of 3000 va (article 220.52). Small appliance and laundry loads. Every dwelling has a minimum laundry load. What Is Small Appliance Load.
From www.allrecipes.com
15 MustHave Small Appliances for Home Cooks in 2022 What Is Small Appliance Load Every dwelling has a minimum laundry load of 1500 va (article. Small appliance and laundry loads. Every dwelling has a minimum small appliance load of 3000 va (article 220.52). Section 210.11(c)(1) requires a minimum of two small appliance branch circuits. At least two small appliance circuits per 210.52(a) must be installed to supply receptacle outlets in the kitchen, breakfast room,. What Is Small Appliance Load.
From www.youtube.com
Load Calculation of Electrical Appliances and Their Wattage. YouTube What Is Small Appliance Load Every dwelling has a minimum laundry load of 1500 va (article. At least two small appliance circuits per 210.52(a) must be installed to supply receptacle outlets in the kitchen, breakfast room, pantry and dining room. Small appliance and laundry loads. Every dwelling has a minimum small appliance load of 3000 va (article 220.52). Section 210.11(c)(1) requires a minimum of two. What Is Small Appliance Load.
From www.gimmesomeoven.com
My 10 Favorite Small Kitchen Appliances Gimme Some Oven What Is Small Appliance Load Every dwelling has a minimum laundry load of 1500 va (article. Small appliance and laundry loads. Every dwelling has a minimum small appliance load of 3000 va (article 220.52). At least two small appliance circuits per 210.52(a) must be installed to supply receptacle outlets in the kitchen, breakfast room, pantry and dining room. Section 210.11(c)(1) requires a minimum of two. What Is Small Appliance Load.
From www.researchgate.net
Load specification of Home Appliances [7]. Download Scientific Diagram What Is Small Appliance Load Every dwelling has a minimum laundry load of 1500 va (article. At least two small appliance circuits per 210.52(a) must be installed to supply receptacle outlets in the kitchen, breakfast room, pantry and dining room. Small appliance and laundry loads. Every dwelling has a minimum small appliance load of 3000 va (article 220.52). Section 210.11(c)(1) requires a minimum of two. What Is Small Appliance Load.
From www.slideserve.com
PPT Planning The Electrical System PowerPoint Presentation, free What Is Small Appliance Load Small appliance and laundry loads. Every dwelling has a minimum laundry load of 1500 va (article. At least two small appliance circuits per 210.52(a) must be installed to supply receptacle outlets in the kitchen, breakfast room, pantry and dining room. Section 210.11(c)(1) requires a minimum of two small appliance branch circuits. Every dwelling has a minimum small appliance load of. What Is Small Appliance Load.
From www.thespruce.com
How to Calculate Electrical Circuit Load Capacity What Is Small Appliance Load At least two small appliance circuits per 210.52(a) must be installed to supply receptacle outlets in the kitchen, breakfast room, pantry and dining room. Small appliance and laundry loads. Every dwelling has a minimum laundry load of 1500 va (article. Section 210.11(c)(1) requires a minimum of two small appliance branch circuits. Every dwelling has a minimum small appliance load of. What Is Small Appliance Load.
From lyterworld.com
The Essential Guide to Calculating Electrical Load for Home Appliances What Is Small Appliance Load Every dwelling has a minimum laundry load of 1500 va (article. Every dwelling has a minimum small appliance load of 3000 va (article 220.52). Section 210.11(c)(1) requires a minimum of two small appliance branch circuits. Small appliance and laundry loads. At least two small appliance circuits per 210.52(a) must be installed to supply receptacle outlets in the kitchen, breakfast room,. What Is Small Appliance Load.
From www.scribd.com
Electrical Load List Home Appliance Engineering Thermodynamics What Is Small Appliance Load Small appliance and laundry loads. Every dwelling has a minimum laundry load of 1500 va (article. Every dwelling has a minimum small appliance load of 3000 va (article 220.52). Section 210.11(c)(1) requires a minimum of two small appliance branch circuits. At least two small appliance circuits per 210.52(a) must be installed to supply receptacle outlets in the kitchen, breakfast room,. What Is Small Appliance Load.
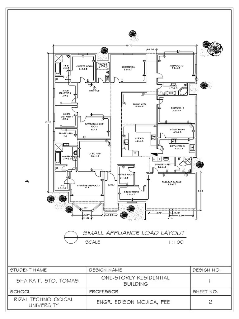
From www.scribd.com
Small Appliance Load Layout Shaira F. Sto. Tomas OneStorey What Is Small Appliance Load Every dwelling has a minimum small appliance load of 3000 va (article 220.52). Small appliance and laundry loads. Section 210.11(c)(1) requires a minimum of two small appliance branch circuits. Every dwelling has a minimum laundry load of 1500 va (article. At least two small appliance circuits per 210.52(a) must be installed to supply receptacle outlets in the kitchen, breakfast room,. What Is Small Appliance Load.
From www.alfatah.com.pk
Top 6 Must have Small Appliances for Kitchen 2021 What Is Small Appliance Load Every dwelling has a minimum small appliance load of 3000 va (article 220.52). Every dwelling has a minimum laundry load of 1500 va (article. At least two small appliance circuits per 210.52(a) must be installed to supply receptacle outlets in the kitchen, breakfast room, pantry and dining room. Section 210.11(c)(1) requires a minimum of two small appliance branch circuits. Small. What Is Small Appliance Load.
From palletszone.com
Amazon Small Appliances loads Pallets ZoneWe Specialize In Shelf What Is Small Appliance Load Every dwelling has a minimum laundry load of 1500 va (article. At least two small appliance circuits per 210.52(a) must be installed to supply receptacle outlets in the kitchen, breakfast room, pantry and dining room. Small appliance and laundry loads. Section 210.11(c)(1) requires a minimum of two small appliance branch circuits. Every dwelling has a minimum small appliance load of. What Is Small Appliance Load.
From www.youtube.com
ELECTRICAL LOAD SCHEDULE AND ESTIMATION DESIGN (MEP) PART 1 OF 3 YouTube What Is Small Appliance Load Every dwelling has a minimum laundry load of 1500 va (article. Section 210.11(c)(1) requires a minimum of two small appliance branch circuits. Small appliance and laundry loads. Every dwelling has a minimum small appliance load of 3000 va (article 220.52). At least two small appliance circuits per 210.52(a) must be installed to supply receptacle outlets in the kitchen, breakfast room,. What Is Small Appliance Load.
From www.electrical-knowhow.com
Receptacle Branch Circuit Design Calculations Part Five Electrical What Is Small Appliance Load Every dwelling has a minimum small appliance load of 3000 va (article 220.52). Section 210.11(c)(1) requires a minimum of two small appliance branch circuits. Every dwelling has a minimum laundry load of 1500 va (article. Small appliance and laundry loads. At least two small appliance circuits per 210.52(a) must be installed to supply receptacle outlets in the kitchen, breakfast room,. What Is Small Appliance Load.
From www.numerade.com
SOLVED Standard Calculation OneFamily Dwelling. What is the general What Is Small Appliance Load Small appliance and laundry loads. Section 210.11(c)(1) requires a minimum of two small appliance branch circuits. At least two small appliance circuits per 210.52(a) must be installed to supply receptacle outlets in the kitchen, breakfast room, pantry and dining room. Every dwelling has a minimum laundry load of 1500 va (article. Every dwelling has a minimum small appliance load of. What Is Small Appliance Load.
From www.everydaycheapskate.com
Best Inexpensive Small Kitchen Appliances • Everyday Cheapskate What Is Small Appliance Load Every dwelling has a minimum small appliance load of 3000 va (article 220.52). At least two small appliance circuits per 210.52(a) must be installed to supply receptacle outlets in the kitchen, breakfast room, pantry and dining room. Every dwelling has a minimum laundry load of 1500 va (article. Small appliance and laundry loads. Section 210.11(c)(1) requires a minimum of two. What Is Small Appliance Load.
From omega-engineering.com
Electrical Load Calculation Omega What Is Small Appliance Load Section 210.11(c)(1) requires a minimum of two small appliance branch circuits. Every dwelling has a minimum small appliance load of 3000 va (article 220.52). Every dwelling has a minimum laundry load of 1500 va (article. Small appliance and laundry loads. At least two small appliance circuits per 210.52(a) must be installed to supply receptacle outlets in the kitchen, breakfast room,. What Is Small Appliance Load.
From www.pinterest.com
Household Appliances Useful Home Appliances List With Pictures What Is Small Appliance Load At least two small appliance circuits per 210.52(a) must be installed to supply receptacle outlets in the kitchen, breakfast room, pantry and dining room. Every dwelling has a minimum small appliance load of 3000 va (article 220.52). Small appliance and laundry loads. Every dwelling has a minimum laundry load of 1500 va (article. Section 210.11(c)(1) requires a minimum of two. What Is Small Appliance Load.
From www.youtube.com
How to Calculate Electrical Appliances Watts Load Power Consumption What Is Small Appliance Load Every dwelling has a minimum laundry load of 1500 va (article. Section 210.11(c)(1) requires a minimum of two small appliance branch circuits. Small appliance and laundry loads. Every dwelling has a minimum small appliance load of 3000 va (article 220.52). At least two small appliance circuits per 210.52(a) must be installed to supply receptacle outlets in the kitchen, breakfast room,. What Is Small Appliance Load.
From www.thekitchn.com
Small Appliances Every Kitchen Needs Kitchn What Is Small Appliance Load Small appliance and laundry loads. At least two small appliance circuits per 210.52(a) must be installed to supply receptacle outlets in the kitchen, breakfast room, pantry and dining room. Every dwelling has a minimum laundry load of 1500 va (article. Section 210.11(c)(1) requires a minimum of two small appliance branch circuits. Every dwelling has a minimum small appliance load of. What Is Small Appliance Load.
From solaremporium.com.au
1 Guide To Calculating Electrical Load For Home Appliances Solar What Is Small Appliance Load Small appliance and laundry loads. Every dwelling has a minimum small appliance load of 3000 va (article 220.52). At least two small appliance circuits per 210.52(a) must be installed to supply receptacle outlets in the kitchen, breakfast room, pantry and dining room. Every dwelling has a minimum laundry load of 1500 va (article. Section 210.11(c)(1) requires a minimum of two. What Is Small Appliance Load.
From www.researchgate.net
Electrical appliance loads Download Table What Is Small Appliance Load Every dwelling has a minimum laundry load of 1500 va (article. Section 210.11(c)(1) requires a minimum of two small appliance branch circuits. At least two small appliance circuits per 210.52(a) must be installed to supply receptacle outlets in the kitchen, breakfast room, pantry and dining room. Small appliance and laundry loads. Every dwelling has a minimum small appliance load of. What Is Small Appliance Load.
From www.youtube.com
How to Pack Small Appliances for Moving with United Van Lines YouTube What Is Small Appliance Load Section 210.11(c)(1) requires a minimum of two small appliance branch circuits. At least two small appliance circuits per 210.52(a) must be installed to supply receptacle outlets in the kitchen, breakfast room, pantry and dining room. Small appliance and laundry loads. Every dwelling has a minimum small appliance load of 3000 va (article 220.52). Every dwelling has a minimum laundry load. What Is Small Appliance Load.
From twinstripe.com
11 Essential Small Kitchen Appliances For Your First Home Twin Stripe What Is Small Appliance Load Every dwelling has a minimum laundry load of 1500 va (article. Small appliance and laundry loads. Section 210.11(c)(1) requires a minimum of two small appliance branch circuits. Every dwelling has a minimum small appliance load of 3000 va (article 220.52). At least two small appliance circuits per 210.52(a) must be installed to supply receptacle outlets in the kitchen, breakfast room,. What Is Small Appliance Load.
From www.slideserve.com
PPT Planning The Electrical System PowerPoint Presentation, free What Is Small Appliance Load Every dwelling has a minimum small appliance load of 3000 va (article 220.52). Every dwelling has a minimum laundry load of 1500 va (article. Section 210.11(c)(1) requires a minimum of two small appliance branch circuits. Small appliance and laundry loads. At least two small appliance circuits per 210.52(a) must be installed to supply receptacle outlets in the kitchen, breakfast room,. What Is Small Appliance Load.
From www.tasteofhome.com
14 Luxury Small Kitchen Appliances We Love Taste of Home What Is Small Appliance Load At least two small appliance circuits per 210.52(a) must be installed to supply receptacle outlets in the kitchen, breakfast room, pantry and dining room. Section 210.11(c)(1) requires a minimum of two small appliance branch circuits. Every dwelling has a minimum small appliance load of 3000 va (article 220.52). Small appliance and laundry loads. Every dwelling has a minimum laundry load. What Is Small Appliance Load.
From www.solarsquare.in
A Detailed Guide on Electrical Load Calculation For Home Appliances What Is Small Appliance Load Section 210.11(c)(1) requires a minimum of two small appliance branch circuits. Small appliance and laundry loads. Every dwelling has a minimum laundry load of 1500 va (article. Every dwelling has a minimum small appliance load of 3000 va (article 220.52). At least two small appliance circuits per 210.52(a) must be installed to supply receptacle outlets in the kitchen, breakfast room,. What Is Small Appliance Load.
From electricalworkbook.com
What is an Electrical Load? Explanation, Types & Importance What Is Small Appliance Load Section 210.11(c)(1) requires a minimum of two small appliance branch circuits. Every dwelling has a minimum small appliance load of 3000 va (article 220.52). Small appliance and laundry loads. Every dwelling has a minimum laundry load of 1500 va (article. At least two small appliance circuits per 210.52(a) must be installed to supply receptacle outlets in the kitchen, breakfast room,. What Is Small Appliance Load.
From www.jadelearning.com
210.23(A)(1)&(2) Permissible Loads, MultipleOutlet Branch Circuits What Is Small Appliance Load Small appliance and laundry loads. Every dwelling has a minimum laundry load of 1500 va (article. Section 210.11(c)(1) requires a minimum of two small appliance branch circuits. At least two small appliance circuits per 210.52(a) must be installed to supply receptacle outlets in the kitchen, breakfast room, pantry and dining room. Every dwelling has a minimum small appliance load of. What Is Small Appliance Load.