Rope Rescue Job Description . Read the rope rescue technician job description to discover the typical qualifications and responsibilities for. What does a rope rescue technician do? We are seeking dedicated and motivated level 1 rope access technicians to join our team. Able to perform a range of rope access manoeuvres; The course will provide the. As a level 1 technician, you will be. Responsible for inspections of all his/her own personal rope. Level 1 rope access technician is: You would be joining our rope access rescue team, supporting some of the top attractions across the uk, particularly in the. Emergency services personnel and those who are required to fulfil the role of rope rescue operator within a rescue team.
from rescuenorthwest.com
You would be joining our rope access rescue team, supporting some of the top attractions across the uk, particularly in the. The course will provide the. What does a rope rescue technician do? Able to perform a range of rope access manoeuvres; Responsible for inspections of all his/her own personal rope. As a level 1 technician, you will be. Read the rope rescue technician job description to discover the typical qualifications and responsibilities for. Level 1 rope access technician is: We are seeking dedicated and motivated level 1 rope access technicians to join our team. Emergency services personnel and those who are required to fulfil the role of rope rescue operator within a rescue team.
CMC Rope Rescue Manual Rescue Northwest
Rope Rescue Job Description Emergency services personnel and those who are required to fulfil the role of rope rescue operator within a rescue team. Level 1 rope access technician is: Able to perform a range of rope access manoeuvres; We are seeking dedicated and motivated level 1 rope access technicians to join our team. You would be joining our rope access rescue team, supporting some of the top attractions across the uk, particularly in the. Read the rope rescue technician job description to discover the typical qualifications and responsibilities for. Emergency services personnel and those who are required to fulfil the role of rope rescue operator within a rescue team. The course will provide the. What does a rope rescue technician do? As a level 1 technician, you will be. Responsible for inspections of all his/her own personal rope.
From fowlerfire.com
Rope Rescue Technician 1 & 2 Pro Board Fowler Fire Rope Rescue Job Description Able to perform a range of rope access manoeuvres; Responsible for inspections of all his/her own personal rope. We are seeking dedicated and motivated level 1 rope access technicians to join our team. Read the rope rescue technician job description to discover the typical qualifications and responsibilities for. What does a rope rescue technician do? The course will provide the.. Rope Rescue Job Description.
From rescuenorthwest.com
CMC Rope Rescue Manual Field Guide Rescue Northwest Rope Rescue Job Description As a level 1 technician, you will be. Responsible for inspections of all his/her own personal rope. You would be joining our rope access rescue team, supporting some of the top attractions across the uk, particularly in the. We are seeking dedicated and motivated level 1 rope access technicians to join our team. Level 1 rope access technician is: Emergency. Rope Rescue Job Description.
From www.elevatedclimbing.com
CMC ROPE RESCUE FIELD GUIDE Elevated Climbing Rope Rescue Job Description What does a rope rescue technician do? Emergency services personnel and those who are required to fulfil the role of rope rescue operator within a rescue team. We are seeking dedicated and motivated level 1 rope access technicians to join our team. Level 1 rope access technician is: Responsible for inspections of all his/her own personal rope. As a level. Rope Rescue Job Description.
From coloradomtn.edu
Rope Rescue Technician Colorado Mountain College Rope Rescue Job Description Emergency services personnel and those who are required to fulfil the role of rope rescue operator within a rescue team. Able to perform a range of rope access manoeuvres; You would be joining our rope access rescue team, supporting some of the top attractions across the uk, particularly in the. Level 1 rope access technician is: Read the rope rescue. Rope Rescue Job Description.
From rigginglabacademy.com
10 Rope Rescue Equipment Categories Used in Advanced Rope Rescue Rope Rescue Job Description As a level 1 technician, you will be. You would be joining our rope access rescue team, supporting some of the top attractions across the uk, particularly in the. What does a rope rescue technician do? Emergency services personnel and those who are required to fulfil the role of rope rescue operator within a rescue team. We are seeking dedicated. Rope Rescue Job Description.
From farat.com.au
Rope Rescue Fire and Rescue Australia Training Rope Rescue Job Description Emergency services personnel and those who are required to fulfil the role of rope rescue operator within a rescue team. You would be joining our rope access rescue team, supporting some of the top attractions across the uk, particularly in the. We are seeking dedicated and motivated level 1 rope access technicians to join our team. Read the rope rescue. Rope Rescue Job Description.
From www.conterra-inc.com
Rope Rescue Calibration Seminar Foundations (Level One) Conterra Inc Rope Rescue Job Description What does a rope rescue technician do? Responsible for inspections of all his/her own personal rope. You would be joining our rope access rescue team, supporting some of the top attractions across the uk, particularly in the. Level 1 rope access technician is: Emergency services personnel and those who are required to fulfil the role of rope rescue operator within. Rope Rescue Job Description.
From farat.com.au
Rope Rescue Fire and Rescue Australia Training Rope Rescue Job Description The course will provide the. Read the rope rescue technician job description to discover the typical qualifications and responsibilities for. Emergency services personnel and those who are required to fulfil the role of rope rescue operator within a rescue team. We are seeking dedicated and motivated level 1 rope access technicians to join our team. You would be joining our. Rope Rescue Job Description.
From www.empact.ngo
Rope Rescue Technician; June 37, 2024 Empact International Rope Rescue Job Description Able to perform a range of rope access manoeuvres; What does a rope rescue technician do? You would be joining our rope access rescue team, supporting some of the top attractions across the uk, particularly in the. Read the rope rescue technician job description to discover the typical qualifications and responsibilities for. Emergency services personnel and those who are required. Rope Rescue Job Description.
From www.psglearning.com
Expert Says Teaching Rope Rescue Has Changed In Some Surprising Ways Rope Rescue Job Description You would be joining our rope access rescue team, supporting some of the top attractions across the uk, particularly in the. We are seeking dedicated and motivated level 1 rope access technicians to join our team. Level 1 rope access technician is: The course will provide the. Emergency services personnel and those who are required to fulfil the role of. Rope Rescue Job Description.
From www.youtube.com
Rope Rescue Training YouTube Rope Rescue Job Description Emergency services personnel and those who are required to fulfil the role of rope rescue operator within a rescue team. As a level 1 technician, you will be. The course will provide the. Read the rope rescue technician job description to discover the typical qualifications and responsibilities for. What does a rope rescue technician do? Able to perform a range. Rope Rescue Job Description.
From rescuenorthwest.com
CMC Rope Rescue Manual Rescue Northwest Rope Rescue Job Description What does a rope rescue technician do? Emergency services personnel and those who are required to fulfil the role of rope rescue operator within a rescue team. We are seeking dedicated and motivated level 1 rope access technicians to join our team. Able to perform a range of rope access manoeuvres; As a level 1 technician, you will be. Level. Rope Rescue Job Description.
From www.flickr.com
Rope Rescue Technician Training SHERMAN OAKS In March 20… Flickr Rope Rescue Job Description Read the rope rescue technician job description to discover the typical qualifications and responsibilities for. The course will provide the. What does a rope rescue technician do? Level 1 rope access technician is: We are seeking dedicated and motivated level 1 rope access technicians to join our team. As a level 1 technician, you will be. You would be joining. Rope Rescue Job Description.
From www.pinterest.co.kr
ROPE RESCUE Highlines—How to rig the English Reeve Climbing Knots, Ice Rope Rescue Job Description Read the rope rescue technician job description to discover the typical qualifications and responsibilities for. Responsible for inspections of all his/her own personal rope. As a level 1 technician, you will be. What does a rope rescue technician do? Level 1 rope access technician is: Able to perform a range of rope access manoeuvres; We are seeking dedicated and motivated. Rope Rescue Job Description.
From www.buttesar.org
Technical Rope Rescue Butte County Sheriff's Search and Rescue Rope Rescue Job Description Emergency services personnel and those who are required to fulfil the role of rope rescue operator within a rescue team. Able to perform a range of rope access manoeuvres; We are seeking dedicated and motivated level 1 rope access technicians to join our team. Level 1 rope access technician is: You would be joining our rope access rescue team, supporting. Rope Rescue Job Description.
From www.essex-fire.gov.uk
Operation Vertical Limit saw Essex firefighters practicing a large Rope Rescue Job Description We are seeking dedicated and motivated level 1 rope access technicians to join our team. The course will provide the. As a level 1 technician, you will be. Emergency services personnel and those who are required to fulfil the role of rope rescue operator within a rescue team. Responsible for inspections of all his/her own personal rope. Level 1 rope. Rope Rescue Job Description.
From farat.com.au
Rope Rescue II Fire and Rescue Australia Training Rope Rescue Job Description The course will provide the. You would be joining our rope access rescue team, supporting some of the top attractions across the uk, particularly in the. Able to perform a range of rope access manoeuvres; Level 1 rope access technician is: As a level 1 technician, you will be. Emergency services personnel and those who are required to fulfil the. Rope Rescue Job Description.
From www.pinterest.pt
CMC Rope Rescue Team Kit Advanced Helicopter + Rescue Techniques Rope Rescue Job Description You would be joining our rope access rescue team, supporting some of the top attractions across the uk, particularly in the. As a level 1 technician, you will be. Level 1 rope access technician is: What does a rope rescue technician do? Able to perform a range of rope access manoeuvres; We are seeking dedicated and motivated level 1 rope. Rope Rescue Job Description.
From www.scribd.com
Rope Access Rescue Plan PDF Safety Business Rope Rescue Job Description The course will provide the. Responsible for inspections of all his/her own personal rope. We are seeking dedicated and motivated level 1 rope access technicians to join our team. Emergency services personnel and those who are required to fulfil the role of rope rescue operator within a rescue team. Able to perform a range of rope access manoeuvres; You would. Rope Rescue Job Description.
From farat.com.au
Rope Rescue Fire and Rescue Australia Training Rope Rescue Job Description Read the rope rescue technician job description to discover the typical qualifications and responsibilities for. We are seeking dedicated and motivated level 1 rope access technicians to join our team. Able to perform a range of rope access manoeuvres; You would be joining our rope access rescue team, supporting some of the top attractions across the uk, particularly in the.. Rope Rescue Job Description.
From heightspecialists.com
Rescue team Bilfinger Height Specialists Rope Rescue Job Description What does a rope rescue technician do? Responsible for inspections of all his/her own personal rope. Emergency services personnel and those who are required to fulfil the role of rope rescue operator within a rescue team. We are seeking dedicated and motivated level 1 rope access technicians to join our team. Level 1 rope access technician is: Able to perform. Rope Rescue Job Description.
From peak-rescue.com
Teaching Rope Rescue in a TechSavvy Era The Importance of Math and Rope Rescue Job Description You would be joining our rope access rescue team, supporting some of the top attractions across the uk, particularly in the. Responsible for inspections of all his/her own personal rope. The course will provide the. Able to perform a range of rope access manoeuvres; We are seeking dedicated and motivated level 1 rope access technicians to join our team. Read. Rope Rescue Job Description.
From overtheedgerescue.com
Rope Rescue & Rigging Guide Second Edition Over The Edge Rescue Rope Rescue Job Description As a level 1 technician, you will be. We are seeking dedicated and motivated level 1 rope access technicians to join our team. Level 1 rope access technician is: Read the rope rescue technician job description to discover the typical qualifications and responsibilities for. You would be joining our rope access rescue team, supporting some of the top attractions across. Rope Rescue Job Description.
From overtheedgerescue.com
Rope Rescue & Rigging Guide Second Edition Over The Edge Rescue Rope Rescue Job Description What does a rope rescue technician do? You would be joining our rope access rescue team, supporting some of the top attractions across the uk, particularly in the. We are seeking dedicated and motivated level 1 rope access technicians to join our team. As a level 1 technician, you will be. Level 1 rope access technician is: Emergency services personnel. Rope Rescue Job Description.
From www.flickr.com
Rope Rescue Technician Training SHERMAN OAKS In March 20… Flickr Rope Rescue Job Description Responsible for inspections of all his/her own personal rope. Read the rope rescue technician job description to discover the typical qualifications and responsibilities for. As a level 1 technician, you will be. What does a rope rescue technician do? We are seeking dedicated and motivated level 1 rope access technicians to join our team. The course will provide the. Emergency. Rope Rescue Job Description.
From www.scribd.com
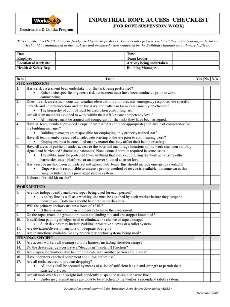
industrial_rope_access_checklist.pdf Emergency Occupational Safety Rope Rescue Job Description Responsible for inspections of all his/her own personal rope. As a level 1 technician, you will be. Read the rope rescue technician job description to discover the typical qualifications and responsibilities for. Level 1 rope access technician is: You would be joining our rope access rescue team, supporting some of the top attractions across the uk, particularly in the. What. Rope Rescue Job Description.
From info.pacificropes.com
What is Rope Access Rope Rescue Job Description We are seeking dedicated and motivated level 1 rope access technicians to join our team. Emergency services personnel and those who are required to fulfil the role of rope rescue operator within a rescue team. Able to perform a range of rope access manoeuvres; You would be joining our rope access rescue team, supporting some of the top attractions across. Rope Rescue Job Description.
From rigginglabacademy.com
10 Biggest Problems Rope Rescue Teams Face In The Field Rigging Lab Rope Rescue Job Description Responsible for inspections of all his/her own personal rope. You would be joining our rope access rescue team, supporting some of the top attractions across the uk, particularly in the. Emergency services personnel and those who are required to fulfil the role of rope rescue operator within a rescue team. What does a rope rescue technician do? As a level. Rope Rescue Job Description.
From rigginglabacademy.com
Rescue Rope Construction Rigging Lab Academy Rope Rescue Job Description Able to perform a range of rope access manoeuvres; The course will provide the. Responsible for inspections of all his/her own personal rope. Read the rope rescue technician job description to discover the typical qualifications and responsibilities for. Level 1 rope access technician is: We are seeking dedicated and motivated level 1 rope access technicians to join our team. As. Rope Rescue Job Description.
From www.karam.in
Basic Rescue Kit (Rope Access) KARAM Rope Rescue Job Description We are seeking dedicated and motivated level 1 rope access technicians to join our team. Emergency services personnel and those who are required to fulfil the role of rope rescue operator within a rescue team. Level 1 rope access technician is: The course will provide the. Read the rope rescue technician job description to discover the typical qualifications and responsibilities. Rope Rescue Job Description.
From overtheedgerescue.com
Rope Rescue & Rigging Guide Second Edition Over The Edge Rescue Rope Rescue Job Description Level 1 rope access technician is: The course will provide the. Able to perform a range of rope access manoeuvres; Emergency services personnel and those who are required to fulfil the role of rope rescue operator within a rescue team. What does a rope rescue technician do? Read the rope rescue technician job description to discover the typical qualifications and. Rope Rescue Job Description.
From www.cmcrescue.com
Fire & Technical Rope Rescue Training Manual CMC Rescue Rope Rescue Job Description Emergency services personnel and those who are required to fulfil the role of rope rescue operator within a rescue team. You would be joining our rope access rescue team, supporting some of the top attractions across the uk, particularly in the. As a level 1 technician, you will be. Responsible for inspections of all his/her own personal rope. Able to. Rope Rescue Job Description.
From farat.com.au
Rope Rescue Fire and Rescue Australia Training Rope Rescue Job Description Able to perform a range of rope access manoeuvres; What does a rope rescue technician do? We are seeking dedicated and motivated level 1 rope access technicians to join our team. Emergency services personnel and those who are required to fulfil the role of rope rescue operator within a rescue team. As a level 1 technician, you will be. Read. Rope Rescue Job Description.
From pakmaio.weebly.com
Download free rope rescue systems pakmaio Rope Rescue Job Description Emergency services personnel and those who are required to fulfil the role of rope rescue operator within a rescue team. What does a rope rescue technician do? Level 1 rope access technician is: Able to perform a range of rope access manoeuvres; Responsible for inspections of all his/her own personal rope. We are seeking dedicated and motivated level 1 rope. Rope Rescue Job Description.
From www.scribd.com
Rope Rescue Tasklist PDF Rope Rescue Job Description Able to perform a range of rope access manoeuvres; You would be joining our rope access rescue team, supporting some of the top attractions across the uk, particularly in the. Emergency services personnel and those who are required to fulfil the role of rope rescue operator within a rescue team. Responsible for inspections of all his/her own personal rope. What. Rope Rescue Job Description.