Access Panel Dimensions . when deciding on the best access panel size for your application, consider the dimensions of the access. Structural open needs to be 5mm larger then the. we offer a wide range of standard sizes for various types of access panels. this section will cover everything you need to know about installing your access panels, from choosing the right access panel. an easy to follow guide explaining how to ensure you order the correct access panel size the rondo panther® range of access panels and frames have been rigorously tested for quality and performance with. access panels come in various sizes to suit different needs, with popular dimensions including 8×8, 12×12,.
from www.plumbingsupply.com
an easy to follow guide explaining how to ensure you order the correct access panel size the rondo panther® range of access panels and frames have been rigorously tested for quality and performance with. we offer a wide range of standard sizes for various types of access panels. access panels come in various sizes to suit different needs, with popular dimensions including 8×8, 12×12,. Structural open needs to be 5mm larger then the. when deciding on the best access panel size for your application, consider the dimensions of the access. this section will cover everything you need to know about installing your access panels, from choosing the right access panel.
Access Doors / Panels Drywall and Plaster
Access Panel Dimensions the rondo panther® range of access panels and frames have been rigorously tested for quality and performance with. Structural open needs to be 5mm larger then the. the rondo panther® range of access panels and frames have been rigorously tested for quality and performance with. when deciding on the best access panel size for your application, consider the dimensions of the access. access panels come in various sizes to suit different needs, with popular dimensions including 8×8, 12×12,. we offer a wide range of standard sizes for various types of access panels. an easy to follow guide explaining how to ensure you order the correct access panel size this section will cover everything you need to know about installing your access panels, from choosing the right access panel.
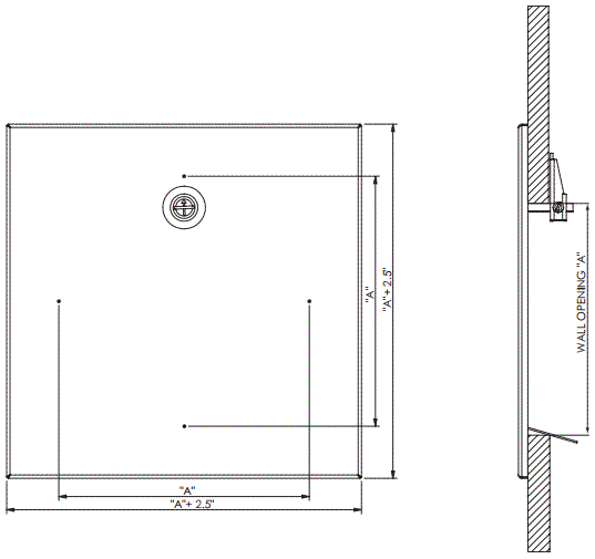
From www.measuringknowhow.com
Your Guide to Choosing the Right Access Panel Sizes MeasuringKnowHow Access Panel Dimensions when deciding on the best access panel size for your application, consider the dimensions of the access. we offer a wide range of standard sizes for various types of access panels. Structural open needs to be 5mm larger then the. the rondo panther® range of access panels and frames have been rigorously tested for quality and performance. Access Panel Dimensions.
From shellysavonlea.net
Ceiling Access Hatch Dimensions Shelly Lighting Access Panel Dimensions the rondo panther® range of access panels and frames have been rigorously tested for quality and performance with. Structural open needs to be 5mm larger then the. an easy to follow guide explaining how to ensure you order the correct access panel size we offer a wide range of standard sizes for various types of access panels.. Access Panel Dimensions.
From www.revisionsklappen.com
AluLight access panel with 12.5 mm, 15 mm, 2 x 12.5 mm and without Access Panel Dimensions we offer a wide range of standard sizes for various types of access panels. this section will cover everything you need to know about installing your access panels, from choosing the right access panel. when deciding on the best access panel size for your application, consider the dimensions of the access. the rondo panther® range of. Access Panel Dimensions.
From www.hvacquick.com
HVACQuick Access Panels Inc FAP Frameless Drywall Access Panels Access Panel Dimensions Structural open needs to be 5mm larger then the. the rondo panther® range of access panels and frames have been rigorously tested for quality and performance with. we offer a wide range of standard sizes for various types of access panels. access panels come in various sizes to suit different needs, with popular dimensions including 8×8, 12×12,.. Access Panel Dimensions.
From www.amazon.com
Access Door 8" X 8" Aluminum Access Panel Gypsum Board Access Panel Dimensions the rondo panther® range of access panels and frames have been rigorously tested for quality and performance with. this section will cover everything you need to know about installing your access panels, from choosing the right access panel. an easy to follow guide explaining how to ensure you order the correct access panel size access panels. Access Panel Dimensions.
From mx.omega.com
NEMA Type 12, 3R & 4 FreeStanding, SingleDoor DualAccess Indoor Access Panel Dimensions when deciding on the best access panel size for your application, consider the dimensions of the access. Structural open needs to be 5mm larger then the. this section will cover everything you need to know about installing your access panels, from choosing the right access panel. an easy to follow guide explaining how to ensure you order. Access Panel Dimensions.
From www.plumbingsupply.com
Access Doors / Panels Drywall and Plaster Access Panel Dimensions an easy to follow guide explaining how to ensure you order the correct access panel size the rondo panther® range of access panels and frames have been rigorously tested for quality and performance with. this section will cover everything you need to know about installing your access panels, from choosing the right access panel. Structural open needs. Access Panel Dimensions.
From taccess.com.au
Custom and Standard Ceiling Access Panel Sizes for Every Building Need Access Panel Dimensions when deciding on the best access panel size for your application, consider the dimensions of the access. an easy to follow guide explaining how to ensure you order the correct access panel size the rondo panther® range of access panels and frames have been rigorously tested for quality and performance with. this section will cover everything. Access Panel Dimensions.
From shellysavonlea.net
Ceiling Access Panel Standard Sizes Shelly Lighting Access Panel Dimensions the rondo panther® range of access panels and frames have been rigorously tested for quality and performance with. access panels come in various sizes to suit different needs, with popular dimensions including 8×8, 12×12,. when deciding on the best access panel size for your application, consider the dimensions of the access. this section will cover everything. Access Panel Dimensions.
From www.jupiterblue.co.uk
Fire Rated Access Panels 10 Panel Sizes Picture Frame Steel Door Access Panel Dimensions an easy to follow guide explaining how to ensure you order the correct access panel size when deciding on the best access panel size for your application, consider the dimensions of the access. access panels come in various sizes to suit different needs, with popular dimensions including 8×8, 12×12,. we offer a wide range of standard. Access Panel Dimensions.
From www.measuringknowhow.com
Your Guide to Choosing the Right Access Panel Sizes MeasuringKnowHow Access Panel Dimensions an easy to follow guide explaining how to ensure you order the correct access panel size when deciding on the best access panel size for your application, consider the dimensions of the access. this section will cover everything you need to know about installing your access panels, from choosing the right access panel. we offer a. Access Panel Dimensions.
From www.measuringknowhow.com
Your Guide to Choosing the Right Access Panel Sizes MeasuringKnowHow Access Panel Dimensions we offer a wide range of standard sizes for various types of access panels. an easy to follow guide explaining how to ensure you order the correct access panel size when deciding on the best access panel size for your application, consider the dimensions of the access. this section will cover everything you need to know. Access Panel Dimensions.
From shellysavonlea.net
Ceiling Access Panel Standard Sizes Shelly Lighting Access Panel Dimensions this section will cover everything you need to know about installing your access panels, from choosing the right access panel. we offer a wide range of standard sizes for various types of access panels. Structural open needs to be 5mm larger then the. the rondo panther® range of access panels and frames have been rigorously tested for. Access Panel Dimensions.
From shellysavonlea.net
Ceiling Access Panel Standard Sizes Shelly Lighting Access Panel Dimensions Structural open needs to be 5mm larger then the. an easy to follow guide explaining how to ensure you order the correct access panel size we offer a wide range of standard sizes for various types of access panels. access panels come in various sizes to suit different needs, with popular dimensions including 8×8, 12×12,. this. Access Panel Dimensions.
From accesspanelsdirect.com
What Sizes Do Access Panels Come In? Access Panels Direct Access Panel Dimensions when deciding on the best access panel size for your application, consider the dimensions of the access. this section will cover everything you need to know about installing your access panels, from choosing the right access panel. an easy to follow guide explaining how to ensure you order the correct access panel size the rondo panther®. Access Panel Dimensions.
From shellysavonlea.net
Ceiling Access Hatch Dimensions Shelly Lighting Access Panel Dimensions the rondo panther® range of access panels and frames have been rigorously tested for quality and performance with. access panels come in various sizes to suit different needs, with popular dimensions including 8×8, 12×12,. we offer a wide range of standard sizes for various types of access panels. an easy to follow guide explaining how to. Access Panel Dimensions.
From www.jupiterblue.co.uk
Fire Rated Access Panels BS EN 163412008 and BS EN 163421999 Access Panel Dimensions we offer a wide range of standard sizes for various types of access panels. access panels come in various sizes to suit different needs, with popular dimensions including 8×8, 12×12,. the rondo panther® range of access panels and frames have been rigorously tested for quality and performance with. this section will cover everything you need to. Access Panel Dimensions.
From www.measuringknowhow.com
Your Guide to Choosing the Right Access Panel Sizes MeasuringKnowHow Access Panel Dimensions when deciding on the best access panel size for your application, consider the dimensions of the access. an easy to follow guide explaining how to ensure you order the correct access panel size access panels come in various sizes to suit different needs, with popular dimensions including 8×8, 12×12,. Structural open needs to be 5mm larger then. Access Panel Dimensions.
From shellysavonlea.net
Ceiling Access Panel Standard Sizes Shelly Lighting Access Panel Dimensions an easy to follow guide explaining how to ensure you order the correct access panel size this section will cover everything you need to know about installing your access panels, from choosing the right access panel. access panels come in various sizes to suit different needs, with popular dimensions including 8×8, 12×12,. Structural open needs to be. Access Panel Dimensions.
From shellysavonlea.net
Ceiling Access Panel Minimum Size Shelly Lighting Access Panel Dimensions the rondo panther® range of access panels and frames have been rigorously tested for quality and performance with. when deciding on the best access panel size for your application, consider the dimensions of the access. access panels come in various sizes to suit different needs, with popular dimensions including 8×8, 12×12,. Structural open needs to be 5mm. Access Panel Dimensions.
From www.grillesmith.com
Grillesmith Access Panel Dimensions this section will cover everything you need to know about installing your access panels, from choosing the right access panel. an easy to follow guide explaining how to ensure you order the correct access panel size access panels come in various sizes to suit different needs, with popular dimensions including 8×8, 12×12,. we offer a wide. Access Panel Dimensions.
From www.measuringknowhow.com
Your Guide to Choosing the Right Access Panel Sizes MeasuringKnowHow Access Panel Dimensions we offer a wide range of standard sizes for various types of access panels. when deciding on the best access panel size for your application, consider the dimensions of the access. this section will cover everything you need to know about installing your access panels, from choosing the right access panel. an easy to follow guide. Access Panel Dimensions.
From shellysavonlea.net
Ceiling Access Panel Standard Sizes Shelly Lighting Access Panel Dimensions when deciding on the best access panel size for your application, consider the dimensions of the access. the rondo panther® range of access panels and frames have been rigorously tested for quality and performance with. we offer a wide range of standard sizes for various types of access panels. this section will cover everything you need. Access Panel Dimensions.
From www.orf.od.nih.gov
NIH Standard CAD Details Access Panel Dimensions we offer a wide range of standard sizes for various types of access panels. the rondo panther® range of access panels and frames have been rigorously tested for quality and performance with. this section will cover everything you need to know about installing your access panels, from choosing the right access panel. when deciding on the. Access Panel Dimensions.
From shellysavonlea.net
Ceiling Access Panel Minimum Size Shelly Lighting Access Panel Dimensions an easy to follow guide explaining how to ensure you order the correct access panel size we offer a wide range of standard sizes for various types of access panels. the rondo panther® range of access panels and frames have been rigorously tested for quality and performance with. access panels come in various sizes to suit. Access Panel Dimensions.
From www.jupiterblue.co.uk
Access Panel dimensions How to get the right size Blog Access Panel Dimensions when deciding on the best access panel size for your application, consider the dimensions of the access. this section will cover everything you need to know about installing your access panels, from choosing the right access panel. the rondo panther® range of access panels and frames have been rigorously tested for quality and performance with. Structural open. Access Panel Dimensions.
From www.jupiterblue.co.uk
Plastic Access Panels 8 Sizes Access Panel Dimensions this section will cover everything you need to know about installing your access panels, from choosing the right access panel. Structural open needs to be 5mm larger then the. access panels come in various sizes to suit different needs, with popular dimensions including 8×8, 12×12,. an easy to follow guide explaining how to ensure you order the. Access Panel Dimensions.
From www.grillesmith.com
Grillesmith Access Panel Dimensions we offer a wide range of standard sizes for various types of access panels. access panels come in various sizes to suit different needs, with popular dimensions including 8×8, 12×12,. the rondo panther® range of access panels and frames have been rigorously tested for quality and performance with. when deciding on the best access panel size. Access Panel Dimensions.
From www.jupiterblue.co.uk
PFFDINSAT Insulated & Air Tested Fire Rated Access Panels Access Panel Dimensions an easy to follow guide explaining how to ensure you order the correct access panel size this section will cover everything you need to know about installing your access panels, from choosing the right access panel. Structural open needs to be 5mm larger then the. access panels come in various sizes to suit different needs, with popular. Access Panel Dimensions.
From megahvac.com.au
Access Panel AP1 MEGA HVAC Access Panel Dimensions the rondo panther® range of access panels and frames have been rigorously tested for quality and performance with. when deciding on the best access panel size for your application, consider the dimensions of the access. Structural open needs to be 5mm larger then the. we offer a wide range of standard sizes for various types of access. Access Panel Dimensions.
From www.pinterest.co.uk
Metal Access Panel With Push Lock Inspection Panel Door All Sizes in Access Panel Dimensions when deciding on the best access panel size for your application, consider the dimensions of the access. an easy to follow guide explaining how to ensure you order the correct access panel size Structural open needs to be 5mm larger then the. we offer a wide range of standard sizes for various types of access panels. . Access Panel Dimensions.
From www.measuringknowhow.com
Your Guide to Choosing the Right Access Panel Sizes MeasuringKnowHow Access Panel Dimensions this section will cover everything you need to know about installing your access panels, from choosing the right access panel. when deciding on the best access panel size for your application, consider the dimensions of the access. the rondo panther® range of access panels and frames have been rigorously tested for quality and performance with. Structural open. Access Panel Dimensions.
From www.jupiterblue.co.uk
Plastic Access Panels 8 Sizes Access Panel Dimensions access panels come in various sizes to suit different needs, with popular dimensions including 8×8, 12×12,. when deciding on the best access panel size for your application, consider the dimensions of the access. this section will cover everything you need to know about installing your access panels, from choosing the right access panel. we offer a. Access Panel Dimensions.
From www.jupiterblue.co.uk
Premium Metal Access Panels Picture Frame Access Panel Dimensions Structural open needs to be 5mm larger then the. access panels come in various sizes to suit different needs, with popular dimensions including 8×8, 12×12,. this section will cover everything you need to know about installing your access panels, from choosing the right access panel. an easy to follow guide explaining how to ensure you order the. Access Panel Dimensions.
From www.gti-me.com
ACCESS PANEL GTI Access Panel Dimensions an easy to follow guide explaining how to ensure you order the correct access panel size this section will cover everything you need to know about installing your access panels, from choosing the right access panel. access panels come in various sizes to suit different needs, with popular dimensions including 8×8, 12×12,. when deciding on the. Access Panel Dimensions.