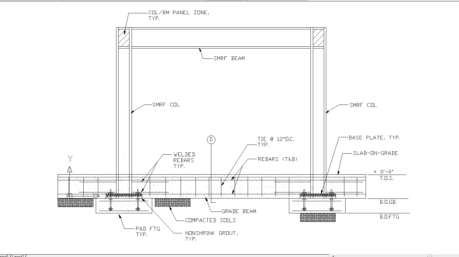
Grade Beam Schedule .  bar bending schedule or bbs plays an important role in construction.   the ga plan is usually provided with a beam schedule, which is a table of beam tags with their.   the first step toward the preparation of the bar bending schedule is to consult, arrange and organize the. In conventional reinforced concrete structures,.  grade beams are commonly concrete beams which are designed to act as horizontal ties between footings or pile caps.   a grade beam is a reinforced concrete beam that transmits the load from a bearing wall into spaced foundations such.  a concrete beam is designed to transfer the load coming from the bearing wall into the spaced foundations known as the grade beam.   this video explains how to read the beam schedule and apply it on site. Beams are horizontal structural elements used for supporting lateral loads. In this article, i will discuss how to prepare bbs for beam.
        
         
         
        from cadbull.com 
     
        
         a concrete beam is designed to transfer the load coming from the bearing wall into the spaced foundations known as the grade beam.   the first step toward the preparation of the bar bending schedule is to consult, arrange and organize the.   the ga plan is usually provided with a beam schedule, which is a table of beam tags with their.   a grade beam is a reinforced concrete beam that transmits the load from a bearing wall into spaced foundations such. Beams are horizontal structural elements used for supporting lateral loads.   this video explains how to read the beam schedule and apply it on site. In this article, i will discuss how to prepare bbs for beam. In conventional reinforced concrete structures,.  bar bending schedule or bbs plays an important role in construction.  grade beams are commonly concrete beams which are designed to act as horizontal ties between footings or pile caps.
    
    	
            
	
		 
	 
         
    Beam schedule and constructive structure details dwg file Cadbull 
    Grade Beam Schedule    the first step toward the preparation of the bar bending schedule is to consult, arrange and organize the.   this video explains how to read the beam schedule and apply it on site. In this article, i will discuss how to prepare bbs for beam.  grade beams are commonly concrete beams which are designed to act as horizontal ties between footings or pile caps. In conventional reinforced concrete structures,.   the first step toward the preparation of the bar bending schedule is to consult, arrange and organize the.  bar bending schedule or bbs plays an important role in construction. Beams are horizontal structural elements used for supporting lateral loads.   a grade beam is a reinforced concrete beam that transmits the load from a bearing wall into spaced foundations such.   the ga plan is usually provided with a beam schedule, which is a table of beam tags with their.  a concrete beam is designed to transfer the load coming from the bearing wall into the spaced foundations known as the grade beam.
            
	
		 
	 
         
 
    
         
        From www.cannondigi.com 
                    Tie Beam Bar Bending Schedule The Best Picture Of Beam Grade Beam Schedule    a grade beam is a reinforced concrete beam that transmits the load from a bearing wall into spaced foundations such.  grade beams are commonly concrete beams which are designed to act as horizontal ties between footings or pile caps. Beams are horizontal structural elements used for supporting lateral loads.  a concrete beam is designed to transfer the. Grade Beam Schedule.
     
    
         
        From cadbull.com 
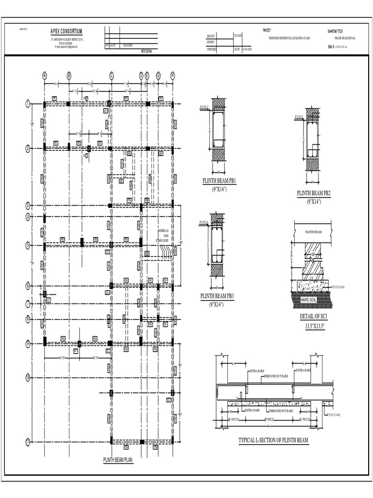
                    Plan with beam and footing detail and schedule with structure view dwg Grade Beam Schedule  In conventional reinforced concrete structures,. Beams are horizontal structural elements used for supporting lateral loads.  grade beams are commonly concrete beams which are designed to act as horizontal ties between footings or pile caps.   a grade beam is a reinforced concrete beam that transmits the load from a bearing wall into spaced foundations such.   the first step. Grade Beam Schedule.
     
    
         
        From cadbull.com 
                    Tile beam foundation, schedule and structure details dwg file Cadbull Grade Beam Schedule    this video explains how to read the beam schedule and apply it on site. In this article, i will discuss how to prepare bbs for beam.   the ga plan is usually provided with a beam schedule, which is a table of beam tags with their. In conventional reinforced concrete structures,.   a grade beam is a reinforced concrete. Grade Beam Schedule.
     
    
         
        From engineeringdiscoveries.com 
                    Bar Bending Schedule For Tie Beams And Strap Beams Engineering Grade Beam Schedule   a concrete beam is designed to transfer the load coming from the bearing wall into the spaced foundations known as the grade beam. Beams are horizontal structural elements used for supporting lateral loads.   the ga plan is usually provided with a beam schedule, which is a table of beam tags with their.  grade beams are commonly concrete. Grade Beam Schedule.
     
    
         
        From www.cannondigi.com 
                    How To Create Beam Schedule In Revit The Best Picture Of Beam Grade Beam Schedule  Beams are horizontal structural elements used for supporting lateral loads.  bar bending schedule or bbs plays an important role in construction.   this video explains how to read the beam schedule and apply it on site.   the ga plan is usually provided with a beam schedule, which is a table of beam tags with their.  a concrete. Grade Beam Schedule.
     
    
         
        From cadbull.com 
                    Grade beam detail of the 73x19m industrial plan Cadbull Grade Beam Schedule   bar bending schedule or bbs plays an important role in construction. In this article, i will discuss how to prepare bbs for beam.   the first step toward the preparation of the bar bending schedule is to consult, arrange and organize the. Beams are horizontal structural elements used for supporting lateral loads.   the ga plan is usually provided. Grade Beam Schedule.
     
    
         
        From www.pinterest.com 
                    bar bending schedule of rcc beam bar bending schedule spreadsheet Grade Beam Schedule    a grade beam is a reinforced concrete beam that transmits the load from a bearing wall into spaced foundations such.  grade beams are commonly concrete beams which are designed to act as horizontal ties between footings or pile caps. In conventional reinforced concrete structures,.   the first step toward the preparation of the bar bending schedule is to. Grade Beam Schedule.
     
    
         
        From diagrammerkurymon.z21.web.core.windows.net 
                    Grade Beam Rebar Details Grade Beam Schedule   a concrete beam is designed to transfer the load coming from the bearing wall into the spaced foundations known as the grade beam.  bar bending schedule or bbs plays an important role in construction. In this article, i will discuss how to prepare bbs for beam.   the first step toward the preparation of the bar bending schedule. Grade Beam Schedule.
     
    
         
        From 7ces.com 
                    Rebar Detailing Companies Rebar Shop Drawings Grade Beam Schedule   grade beams are commonly concrete beams which are designed to act as horizontal ties between footings or pile caps.  bar bending schedule or bbs plays an important role in construction.   the ga plan is usually provided with a beam schedule, which is a table of beam tags with their. Beams are horizontal structural elements used for supporting. Grade Beam Schedule.
     
    
         
        From www.chegg.com 
                    Solved Sample Schedule of Beams and Typical Beam Detail BEAM Grade Beam Schedule   bar bending schedule or bbs plays an important role in construction.   the ga plan is usually provided with a beam schedule, which is a table of beam tags with their.   a grade beam is a reinforced concrete beam that transmits the load from a bearing wall into spaced foundations such. In this article, i will discuss how. Grade Beam Schedule.
     
    
         
        From cadbull.com 
                    Beam schedule and constructive structure details dwg file Cadbull Grade Beam Schedule   a concrete beam is designed to transfer the load coming from the bearing wall into the spaced foundations known as the grade beam.   the first step toward the preparation of the bar bending schedule is to consult, arrange and organize the.  grade beams are commonly concrete beams which are designed to act as horizontal ties between footings. Grade Beam Schedule.
     
    
         
        From www.scribd.com 
                    Stirrup Bar Schedule For Grade Beams PDF Grade Beam Schedule   a concrete beam is designed to transfer the load coming from the bearing wall into the spaced foundations known as the grade beam.   the first step toward the preparation of the bar bending schedule is to consult, arrange and organize the.  grade beams are commonly concrete beams which are designed to act as horizontal ties between footings. Grade Beam Schedule.
     
    
         
        From azmemory.azlibrary.gov 
                    Sheet No. BG201. Structural. Column & Footings; Schedule & Details Grade Beam Schedule  In conventional reinforced concrete structures,.   the first step toward the preparation of the bar bending schedule is to consult, arrange and organize the.   a grade beam is a reinforced concrete beam that transmits the load from a bearing wall into spaced foundations such.   the ga plan is usually provided with a beam schedule, which is a table. Grade Beam Schedule.
     
    
         
        From www.scribd.com 
                    Reinforcement Schedules and Details for Roof Deck Beams, Second Floor Grade Beam Schedule  Beams are horizontal structural elements used for supporting lateral loads. In conventional reinforced concrete structures,. In this article, i will discuss how to prepare bbs for beam.   the first step toward the preparation of the bar bending schedule is to consult, arrange and organize the.   the ga plan is usually provided with a beam schedule, which is a. Grade Beam Schedule.
     
    
         
        From www.pinterest.com 
                    Steel Beam Load/Span Tables Steel beams, Beams, Metal beam Grade Beam Schedule    the ga plan is usually provided with a beam schedule, which is a table of beam tags with their.   this video explains how to read the beam schedule and apply it on site. In conventional reinforced concrete structures,.  grade beams are commonly concrete beams which are designed to act as horizontal ties between footings or pile caps.. Grade Beam Schedule.
     
    
         
        From www.flickr.com 
                    Grade Beam Layout Plan Md Mamun Shak Flickr Grade Beam Schedule    this video explains how to read the beam schedule and apply it on site.   a grade beam is a reinforced concrete beam that transmits the load from a bearing wall into spaced foundations such. In this article, i will discuss how to prepare bbs for beam.  grade beams are commonly concrete beams which are designed to act. Grade Beam Schedule.
     
    
         
        From engineeringinfohub.com 
                    RCC beam Archives Engineering Information Hub Grade Beam Schedule   a concrete beam is designed to transfer the load coming from the bearing wall into the spaced foundations known as the grade beam.   the first step toward the preparation of the bar bending schedule is to consult, arrange and organize the. In conventional reinforced concrete structures,.   this video explains how to read the beam schedule and apply. Grade Beam Schedule.
     
    
         
        From cadbull.com 
                    Beam schedule cad construction details dwg file Cadbull Grade Beam Schedule  In conventional reinforced concrete structures,. Beams are horizontal structural elements used for supporting lateral loads.  bar bending schedule or bbs plays an important role in construction.   the ga plan is usually provided with a beam schedule, which is a table of beam tags with their.   a grade beam is a reinforced concrete beam that transmits the load. Grade Beam Schedule.
     
    
         
        From www.scribd.com 
                    Beams Schedule PDF Civil Engineering Economic Sectors Grade Beam Schedule    this video explains how to read the beam schedule and apply it on site. In this article, i will discuss how to prepare bbs for beam.  bar bending schedule or bbs plays an important role in construction.  a concrete beam is designed to transfer the load coming from the bearing wall into the spaced foundations known as. Grade Beam Schedule.
     
    
         
        From cadbull.com 
                    Beam schedules, sections and constructive structure for apartment Grade Beam Schedule    the first step toward the preparation of the bar bending schedule is to consult, arrange and organize the.   the ga plan is usually provided with a beam schedule, which is a table of beam tags with their.  bar bending schedule or bbs plays an important role in construction.   a grade beam is a reinforced concrete beam. Grade Beam Schedule.
     
    
         
        From mavink.com 
                    Grade Beam Layout Plan Grade Beam Schedule    the first step toward the preparation of the bar bending schedule is to consult, arrange and organize the.  grade beams are commonly concrete beams which are designed to act as horizontal ties between footings or pile caps.   a grade beam is a reinforced concrete beam that transmits the load from a bearing wall into spaced foundations such.. Grade Beam Schedule.
     
    
         
        From www.cannondigi.com 
                    Grade Beam Bar Bending Schedule The Best Picture Of Beam Grade Beam Schedule    the ga plan is usually provided with a beam schedule, which is a table of beam tags with their. Beams are horizontal structural elements used for supporting lateral loads.  a concrete beam is designed to transfer the load coming from the bearing wall into the spaced foundations known as the grade beam.  grade beams are commonly concrete. Grade Beam Schedule.
     
    
         
        From www.cannondigi.com 
                    How To Create Beam Schedule In Revit The Best Picture Of Beam Grade Beam Schedule  Beams are horizontal structural elements used for supporting lateral loads.   the first step toward the preparation of the bar bending schedule is to consult, arrange and organize the.   this video explains how to read the beam schedule and apply it on site.   a grade beam is a reinforced concrete beam that transmits the load from a bearing. Grade Beam Schedule.
     
    
         
        From www.scribd.com 
                    Grade Beam Detail PDF Grade Beam Schedule    the first step toward the preparation of the bar bending schedule is to consult, arrange and organize the.   this video explains how to read the beam schedule and apply it on site.   a grade beam is a reinforced concrete beam that transmits the load from a bearing wall into spaced foundations such.  a concrete beam is. Grade Beam Schedule.
     
    
         
        From soilstructure.com 
                    Grade Beam Analysis Software SoilStructure Software Grade Beam Schedule  Beams are horizontal structural elements used for supporting lateral loads.   the first step toward the preparation of the bar bending schedule is to consult, arrange and organize the. In this article, i will discuss how to prepare bbs for beam.   this video explains how to read the beam schedule and apply it on site.  grade beams are. Grade Beam Schedule.
     
    
         
        From www.scribd.com 
                    Schedule of beam and slab sample Economic Sectors Equipment Grade Beam Schedule    the ga plan is usually provided with a beam schedule, which is a table of beam tags with their.   this video explains how to read the beam schedule and apply it on site.   the first step toward the preparation of the bar bending schedule is to consult, arrange and organize the.  grade beams are commonly concrete. Grade Beam Schedule.
     
    
         
        From www.akses.in 
                    Print Schedule of Beams akses RCBD 2024 Grade Beam Schedule  Beams are horizontal structural elements used for supporting lateral loads.  grade beams are commonly concrete beams which are designed to act as horizontal ties between footings or pile caps.  bar bending schedule or bbs plays an important role in construction.   the ga plan is usually provided with a beam schedule, which is a table of beam tags. Grade Beam Schedule.
     
    
         
        From web.solacesf.org 
                    How To Make Beam Schedule In Revit Home Interior Design Grade Beam Schedule   bar bending schedule or bbs plays an important role in construction.  a concrete beam is designed to transfer the load coming from the bearing wall into the spaced foundations known as the grade beam.  grade beams are commonly concrete beams which are designed to act as horizontal ties between footings or pile caps.   this video explains. Grade Beam Schedule.
     
    
         
        From www.oas.org 
                    Building Guidelines Drawings. Section B Concrete Construction Grade Beam Schedule  In conventional reinforced concrete structures,.  a concrete beam is designed to transfer the load coming from the bearing wall into the spaced foundations known as the grade beam.  bar bending schedule or bbs plays an important role in construction.   a grade beam is a reinforced concrete beam that transmits the load from a bearing wall into spaced. Grade Beam Schedule.
     
    
         
        From wesleysenior.blogspot.com 
                    Wesley's Senior Blog January Post Grade Beam Detail Grade Beam Schedule    this video explains how to read the beam schedule and apply it on site. In conventional reinforced concrete structures,.   the first step toward the preparation of the bar bending schedule is to consult, arrange and organize the.  bar bending schedule or bbs plays an important role in construction. Beams are horizontal structural elements used for supporting lateral. Grade Beam Schedule.
     
    
         
        From www.youtube.com 
                    Grade Beam & Grade Slab Construction Process YouTube Grade Beam Schedule  In conventional reinforced concrete structures,. Beams are horizontal structural elements used for supporting lateral loads.   the ga plan is usually provided with a beam schedule, which is a table of beam tags with their.   a grade beam is a reinforced concrete beam that transmits the load from a bearing wall into spaced foundations such.  bar bending schedule. Grade Beam Schedule.
     
    
         
        From www.studocu.com 
                    anything in this world GRADE BEAM PROFILE GB GB GB GRADE BEAM Grade Beam Schedule   bar bending schedule or bbs plays an important role in construction.  grade beams are commonly concrete beams which are designed to act as horizontal ties between footings or pile caps. Beams are horizontal structural elements used for supporting lateral loads.   the first step toward the preparation of the bar bending schedule is to consult, arrange and organize. Grade Beam Schedule.
     
    
         
        From www.cannondigi.com 
                    How To Calculate Grade Beam Reinforcement The Best Picture Of Beam Grade Beam Schedule    this video explains how to read the beam schedule and apply it on site.   the first step toward the preparation of the bar bending schedule is to consult, arrange and organize the. Beams are horizontal structural elements used for supporting lateral loads.  grade beams are commonly concrete beams which are designed to act as horizontal ties between. Grade Beam Schedule.
     
    
         
        From www.onlinecivilforum.com 
                    Bar Bending Schedule of Beam Grade Beam Schedule  Beams are horizontal structural elements used for supporting lateral loads. In this article, i will discuss how to prepare bbs for beam.  grade beams are commonly concrete beams which are designed to act as horizontal ties between footings or pile caps.   this video explains how to read the beam schedule and apply it on site. In conventional reinforced. Grade Beam Schedule.
     
    
         
        From mungfali.com 
                    Grade Beam Plan Grade Beam Schedule    the first step toward the preparation of the bar bending schedule is to consult, arrange and organize the.  bar bending schedule or bbs plays an important role in construction.   a grade beam is a reinforced concrete beam that transmits the load from a bearing wall into spaced foundations such.   this video explains how to read the. Grade Beam Schedule.