Family Planning Walton Ny . Fpscny@fpscny.org the importance of voting yes on proposal 1: Located in southern central ny. The programs listed provide comprehensive,. At walton is a health facility in walton registered in the health facilities information system of new york. See reviews, map, get the address, and find directions. Family planning of south central new york, inc. Ny state family planning benefits program (fpbp) — if you are uninsured or don’t have birth control coverage, our staff can see if you are eligible for. 168 rows to find a family planning program site, select a county from the list of counties below. Information about our mission, our vision, and our beliefs about family planning and education.
from texasborderbusiness.com
Ny state family planning benefits program (fpbp) — if you are uninsured or don’t have birth control coverage, our staff can see if you are eligible for. Information about our mission, our vision, and our beliefs about family planning and education. The programs listed provide comprehensive,. Fpscny@fpscny.org the importance of voting yes on proposal 1: Family planning of south central new york, inc. See reviews, map, get the address, and find directions. Located in southern central ny. 168 rows to find a family planning program site, select a county from the list of counties below. At walton is a health facility in walton registered in the health facilities information system of new york.
Each Walton Family Member's Wealth Surges 3.7 Billion, or 5.7
Family Planning Walton Ny Information about our mission, our vision, and our beliefs about family planning and education. Ny state family planning benefits program (fpbp) — if you are uninsured or don’t have birth control coverage, our staff can see if you are eligible for. At walton is a health facility in walton registered in the health facilities information system of new york. Information about our mission, our vision, and our beliefs about family planning and education. Located in southern central ny. Fpscny@fpscny.org the importance of voting yes on proposal 1: See reviews, map, get the address, and find directions. Family planning of south central new york, inc. The programs listed provide comprehensive,. 168 rows to find a family planning program site, select a county from the list of counties below.
From www.hansonbuilders.com
Walton Home Plan hanson builders Family Planning Walton Ny 168 rows to find a family planning program site, select a county from the list of counties below. See reviews, map, get the address, and find directions. Fpscny@fpscny.org the importance of voting yes on proposal 1: At walton is a health facility in walton registered in the health facilities information system of new york. Information about our mission, our vision,. Family Planning Walton Ny.
From www.pinterest.com
Walton Family, The Walton, York County, Boxing Girl, Tvd, Teen Girl Family Planning Walton Ny The programs listed provide comprehensive,. Located in southern central ny. At walton is a health facility in walton registered in the health facilities information system of new york. Ny state family planning benefits program (fpbp) — if you are uninsured or don’t have birth control coverage, our staff can see if you are eligible for. 168 rows to find a. Family Planning Walton Ny.
From kellysclassroom.com
Walton Family Net Worth Kelly's Classroom Family Planning Walton Ny Information about our mission, our vision, and our beliefs about family planning and education. At walton is a health facility in walton registered in the health facilities information system of new york. The programs listed provide comprehensive,. See reviews, map, get the address, and find directions. Fpscny@fpscny.org the importance of voting yes on proposal 1: 168 rows to find a. Family Planning Walton Ny.
From www.nycgovparks.org
Slattery Playground Events KIM Slattery Playground NYC Parks Family Planning Walton Ny Fpscny@fpscny.org the importance of voting yes on proposal 1: Information about our mission, our vision, and our beliefs about family planning and education. The programs listed provide comprehensive,. See reviews, map, get the address, and find directions. At walton is a health facility in walton registered in the health facilities information system of new york. Family planning of south central. Family Planning Walton Ny.
From www.cheatsheet.com
How 'The Waltons' Recreated the Classic Walton House in Family Planning Walton Ny The programs listed provide comprehensive,. Information about our mission, our vision, and our beliefs about family planning and education. Ny state family planning benefits program (fpbp) — if you are uninsured or don’t have birth control coverage, our staff can see if you are eligible for. Family planning of south central new york, inc. 168 rows to find a family. Family Planning Walton Ny.
From www.foxbusiness.com
How much is the Walton family worth? Fox Business Family Planning Walton Ny Family planning of south central new york, inc. Ny state family planning benefits program (fpbp) — if you are uninsured or don’t have birth control coverage, our staff can see if you are eligible for. The programs listed provide comprehensive,. Information about our mission, our vision, and our beliefs about family planning and education. Fpscny@fpscny.org the importance of voting yes. Family Planning Walton Ny.
From viewfloor.co
Walton House Floor Plan Viewfloor.co Family Planning Walton Ny Located in southern central ny. Ny state family planning benefits program (fpbp) — if you are uninsured or don’t have birth control coverage, our staff can see if you are eligible for. 168 rows to find a family planning program site, select a county from the list of counties below. At walton is a health facility in walton registered in. Family Planning Walton Ny.
From americansfortaxfairness.org
EACH WALTON FAMILY MEMBER’S WEALTH SURGES 3.7 BILLION, OR 5.7 Family Planning Walton Ny 168 rows to find a family planning program site, select a county from the list of counties below. Ny state family planning benefits program (fpbp) — if you are uninsured or don’t have birth control coverage, our staff can see if you are eligible for. Fpscny@fpscny.org the importance of voting yes on proposal 1: The programs listed provide comprehensive,. At. Family Planning Walton Ny.
From www.hallmarkchannel.com
"The Waltons" Reunion Home & Family Video Hallmark Channel Family Planning Walton Ny 168 rows to find a family planning program site, select a county from the list of counties below. Information about our mission, our vision, and our beliefs about family planning and education. See reviews, map, get the address, and find directions. Located in southern central ny. Ny state family planning benefits program (fpbp) — if you are uninsured or don’t. Family Planning Walton Ny.
From www.4029tv.com
Who's who in the world's wealthiest family Family Planning Walton Ny Located in southern central ny. See reviews, map, get the address, and find directions. Ny state family planning benefits program (fpbp) — if you are uninsured or don’t have birth control coverage, our staff can see if you are eligible for. 168 rows to find a family planning program site, select a county from the list of counties below. At. Family Planning Walton Ny.
From www.pinterest.com.au
17 best images about walton house on pinterest mothers in 2020 Walton Family Planning Walton Ny The programs listed provide comprehensive,. At walton is a health facility in walton registered in the health facilities information system of new york. Information about our mission, our vision, and our beliefs about family planning and education. Ny state family planning benefits program (fpbp) — if you are uninsured or don’t have birth control coverage, our staff can see if. Family Planning Walton Ny.
From www.lovemoney.com
Meet the Waltons the family story behind Walmart's staggering success Family Planning Walton Ny Ny state family planning benefits program (fpbp) — if you are uninsured or don’t have birth control coverage, our staff can see if you are eligible for. See reviews, map, get the address, and find directions. Family planning of south central new york, inc. Fpscny@fpscny.org the importance of voting yes on proposal 1: At walton is a health facility in. Family Planning Walton Ny.
From texasborderbusiness.com
Each Walton Family Member's Wealth Surges 3.7 Billion, or 5.7 Family Planning Walton Ny Located in southern central ny. At walton is a health facility in walton registered in the health facilities information system of new york. Fpscny@fpscny.org the importance of voting yes on proposal 1: Ny state family planning benefits program (fpbp) — if you are uninsured or don’t have birth control coverage, our staff can see if you are eligible for. Information. Family Planning Walton Ny.
From talkbusiness.net
Walton Family Foundation continues Helen Walton’s legacy of giving Family Planning Walton Ny Fpscny@fpscny.org the importance of voting yes on proposal 1: Information about our mission, our vision, and our beliefs about family planning and education. Ny state family planning benefits program (fpbp) — if you are uninsured or don’t have birth control coverage, our staff can see if you are eligible for. 168 rows to find a family planning program site, select. Family Planning Walton Ny.
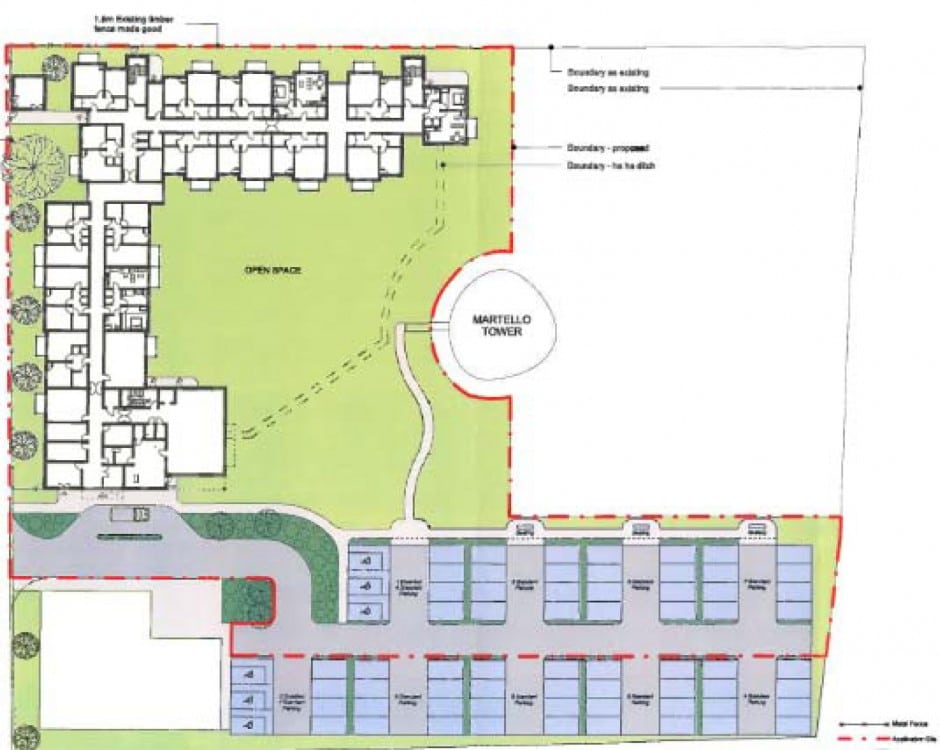
From www.fundingaffordablehomes.com
waltonsiteplan_1 Funding Affordable Homes Family Planning Walton Ny At walton is a health facility in walton registered in the health facilities information system of new york. Ny state family planning benefits program (fpbp) — if you are uninsured or don’t have birth control coverage, our staff can see if you are eligible for. Family planning of south central new york, inc. 168 rows to find a family planning. Family Planning Walton Ny.
From dailym.ai
The Waltons sextuplets new era of merry chaos the grandchildren Family Planning Walton Ny See reviews, map, get the address, and find directions. Ny state family planning benefits program (fpbp) — if you are uninsured or don’t have birth control coverage, our staff can see if you are eligible for. The programs listed provide comprehensive,. Located in southern central ny. Family planning of south central new york, inc. At walton is a health facility. Family Planning Walton Ny.
From www.nytimes.com
‘The Waltons’ Meets ‘Modern Family’ The New York Times Family Planning Walton Ny See reviews, map, get the address, and find directions. At walton is a health facility in walton registered in the health facilities information system of new york. Ny state family planning benefits program (fpbp) — if you are uninsured or don’t have birth control coverage, our staff can see if you are eligible for. Fpscny@fpscny.org the importance of voting yes. Family Planning Walton Ny.
From bftc.edu.vn
26 how much money does the walton family make every hour? Full Guide Family Planning Walton Ny Information about our mission, our vision, and our beliefs about family planning and education. Ny state family planning benefits program (fpbp) — if you are uninsured or don’t have birth control coverage, our staff can see if you are eligible for. 168 rows to find a family planning program site, select a county from the list of counties below. Family. Family Planning Walton Ny.
From www.financestrategists.com
Find the Best Retirement Planning Services in Walton County, FL Family Planning Walton Ny The programs listed provide comprehensive,. At walton is a health facility in walton registered in the health facilities information system of new york. Fpscny@fpscny.org the importance of voting yes on proposal 1: 168 rows to find a family planning program site, select a county from the list of counties below. Located in southern central ny. See reviews, map, get the. Family Planning Walton Ny.
From www.youtube.com
Inside The Billionaire Lifestyle Of The Walton Family YouTube Family Planning Walton Ny Fpscny@fpscny.org the importance of voting yes on proposal 1: See reviews, map, get the address, and find directions. Family planning of south central new york, inc. Ny state family planning benefits program (fpbp) — if you are uninsured or don’t have birth control coverage, our staff can see if you are eligible for. Information about our mission, our vision, and. Family Planning Walton Ny.
From www.pinterest.com
Map of Walton County, Florida, 1897 Map of florida, Walton county, Map Family Planning Walton Ny Fpscny@fpscny.org the importance of voting yes on proposal 1: Information about our mission, our vision, and our beliefs about family planning and education. Ny state family planning benefits program (fpbp) — if you are uninsured or don’t have birth control coverage, our staff can see if you are eligible for. At walton is a health facility in walton registered in. Family Planning Walton Ny.
From www.forbes.com
Iconic Family Drama ‘The Waltons’ Celebrates 50 Years Family Planning Walton Ny Family planning of south central new york, inc. Ny state family planning benefits program (fpbp) — if you are uninsured or don’t have birth control coverage, our staff can see if you are eligible for. The programs listed provide comprehensive,. Information about our mission, our vision, and our beliefs about family planning and education. 168 rows to find a family. Family Planning Walton Ny.
From andsimple.co
How Walton Enterprises align their investments with purpose Family Planning Walton Ny Located in southern central ny. Fpscny@fpscny.org the importance of voting yes on proposal 1: See reviews, map, get the address, and find directions. Family planning of south central new york, inc. The programs listed provide comprehensive,. Information about our mission, our vision, and our beliefs about family planning and education. Ny state family planning benefits program (fpbp) — if you. Family Planning Walton Ny.
From www.youtube.com
Walton Family Whole Health and Fitness Center YouTube Family Planning Walton Ny See reviews, map, get the address, and find directions. At walton is a health facility in walton registered in the health facilities information system of new york. Family planning of south central new york, inc. 168 rows to find a family planning program site, select a county from the list of counties below. Information about our mission, our vision, and. Family Planning Walton Ny.
From co.pinterest.com
Walton Family Walton family, Walton, Actors Family Planning Walton Ny See reviews, map, get the address, and find directions. Information about our mission, our vision, and our beliefs about family planning and education. At walton is a health facility in walton registered in the health facilities information system of new york. Ny state family planning benefits program (fpbp) — if you are uninsured or don’t have birth control coverage, our. Family Planning Walton Ny.
From www.pinterest.com
Our Trip to Walton’s Mountain « Back to Family Walton house, Virginia Family Planning Walton Ny Ny state family planning benefits program (fpbp) — if you are uninsured or don’t have birth control coverage, our staff can see if you are eligible for. Family planning of south central new york, inc. See reviews, map, get the address, and find directions. Located in southern central ny. 168 rows to find a family planning program site, select a. Family Planning Walton Ny.
From www.pearsonlegal.co.uk
Sharon Walton Employment Law Legal Assistant Pearson Solicitors Family Planning Walton Ny The programs listed provide comprehensive,. 168 rows to find a family planning program site, select a county from the list of counties below. Family planning of south central new york, inc. Information about our mission, our vision, and our beliefs about family planning and education. See reviews, map, get the address, and find directions. At walton is a health facility. Family Planning Walton Ny.
From www.nycgovparks.org
Slattery Playground Events KIM Slattery Playground NYC Parks Family Planning Walton Ny See reviews, map, get the address, and find directions. Family planning of south central new york, inc. The programs listed provide comprehensive,. 168 rows to find a family planning program site, select a county from the list of counties below. Information about our mission, our vision, and our beliefs about family planning and education. Located in southern central ny. At. Family Planning Walton Ny.
From www.ratemyagent.com
1316 Ruffner Road, Schenectady, NY, 12309 SingleFam Sold on 02 02 Family Planning Walton Ny Fpscny@fpscny.org the importance of voting yes on proposal 1: Ny state family planning benefits program (fpbp) — if you are uninsured or don’t have birth control coverage, our staff can see if you are eligible for. The programs listed provide comprehensive,. See reviews, map, get the address, and find directions. Information about our mission, our vision, and our beliefs about. Family Planning Walton Ny.
From www.lovemoney.com
Meet the Waltons the family story behind Walmart's staggering success Family Planning Walton Ny Family planning of south central new york, inc. Fpscny@fpscny.org the importance of voting yes on proposal 1: Ny state family planning benefits program (fpbp) — if you are uninsured or don’t have birth control coverage, our staff can see if you are eligible for. At walton is a health facility in walton registered in the health facilities information system of. Family Planning Walton Ny.
From www.walton-pc.gov.uk
The History of Walton, Wetherby Walton Parish Council Family Planning Walton Ny The programs listed provide comprehensive,. Ny state family planning benefits program (fpbp) — if you are uninsured or don’t have birth control coverage, our staff can see if you are eligible for. Fpscny@fpscny.org the importance of voting yes on proposal 1: Family planning of south central new york, inc. See reviews, map, get the address, and find directions. At walton. Family Planning Walton Ny.
From www.marketwatch.com
The Walton family gets 100 million richer every single day MarketWatch Family Planning Walton Ny Family planning of south central new york, inc. See reviews, map, get the address, and find directions. 168 rows to find a family planning program site, select a county from the list of counties below. Located in southern central ny. At walton is a health facility in walton registered in the health facilities information system of new york. Fpscny@fpscny.org the. Family Planning Walton Ny.
From www.lovemoney.com
Meet the Waltons the family story behind Walmart's staggering success Family Planning Walton Ny Information about our mission, our vision, and our beliefs about family planning and education. Family planning of south central new york, inc. Fpscny@fpscny.org the importance of voting yes on proposal 1: The programs listed provide comprehensive,. Located in southern central ny. 168 rows to find a family planning program site, select a county from the list of counties below. At. Family Planning Walton Ny.
From www.businessinsider.com
Meet The Waltons WalMart Family Tree Business Insider Family Planning Walton Ny See reviews, map, get the address, and find directions. 168 rows to find a family planning program site, select a county from the list of counties below. Family planning of south central new york, inc. Ny state family planning benefits program (fpbp) — if you are uninsured or don’t have birth control coverage, our staff can see if you are. Family Planning Walton Ny.
From www.nycgovparks.org
Slattery Playground Events KIM Slattery Playground NYC Parks Family Planning Walton Ny See reviews, map, get the address, and find directions. The programs listed provide comprehensive,. Located in southern central ny. Ny state family planning benefits program (fpbp) — if you are uninsured or don’t have birth control coverage, our staff can see if you are eligible for. Fpscny@fpscny.org the importance of voting yes on proposal 1: Information about our mission, our. Family Planning Walton Ny.