Engineering Drawing Envelope Requirement . Gd&t rule #1, also known as the envelope principle, states that the form of a regular feature of size is controlled by its “limits of size. limits of size, or otherwise known as size. More accurately is defined in section 3.8 envelope requirement. Envelope requirement (ref bs iso 8015 clause 6,1 for a component feature e.g a cyliderical surface or a feature based on two parallel plane. This page explains the envelop requirement, which can be applied to the maximum material requirement, from the basic theory of feature of. The gsfc engineering drawing standards manual is the official source for the requirements and interpretations to be used in the development and presentation of engineering drawings and. The envelope requirement according to iso 8015 specifies that the surface of a single feature of size (cylindrical surface or a feature established by two parallel opposite plane. The envelope requirement symbol is used on iso drawings to declare that size is to control form. The upper value of a external feature defines a virtual cylinder that the entire feature has to fit inside.
from www.pinterest.cl
The envelope requirement symbol is used on iso drawings to declare that size is to control form. This page explains the envelop requirement, which can be applied to the maximum material requirement, from the basic theory of feature of. The gsfc engineering drawing standards manual is the official source for the requirements and interpretations to be used in the development and presentation of engineering drawings and. Envelope requirement (ref bs iso 8015 clause 6,1 for a component feature e.g a cyliderical surface or a feature based on two parallel plane. Gd&t rule #1, also known as the envelope principle, states that the form of a regular feature of size is controlled by its “limits of size. limits of size, or otherwise known as size. The upper value of a external feature defines a virtual cylinder that the entire feature has to fit inside. More accurately is defined in section 3.8 envelope requirement. The envelope requirement according to iso 8015 specifies that the surface of a single feature of size (cylindrical surface or a feature established by two parallel opposite plane.
Quiz Question Answers Mechanical design, Mechanical engineering
Engineering Drawing Envelope Requirement More accurately is defined in section 3.8 envelope requirement. The envelope requirement according to iso 8015 specifies that the surface of a single feature of size (cylindrical surface or a feature established by two parallel opposite plane. This page explains the envelop requirement, which can be applied to the maximum material requirement, from the basic theory of feature of. More accurately is defined in section 3.8 envelope requirement. Envelope requirement (ref bs iso 8015 clause 6,1 for a component feature e.g a cyliderical surface or a feature based on two parallel plane. Gd&t rule #1, also known as the envelope principle, states that the form of a regular feature of size is controlled by its “limits of size. limits of size, or otherwise known as size. The gsfc engineering drawing standards manual is the official source for the requirements and interpretations to be used in the development and presentation of engineering drawings and. The envelope requirement symbol is used on iso drawings to declare that size is to control form. The upper value of a external feature defines a virtual cylinder that the entire feature has to fit inside.
From tuningjohn.com
drawing format Archives TuningJohn Engineering Drawing Envelope Requirement The envelope requirement according to iso 8015 specifies that the surface of a single feature of size (cylindrical surface or a feature established by two parallel opposite plane. The envelope requirement symbol is used on iso drawings to declare that size is to control form. The upper value of a external feature defines a virtual cylinder that the entire feature. Engineering Drawing Envelope Requirement.
From www.easylinedrawing.com
How to Drawn an Envelope Step by Step EasyLineDrawing Engineering Drawing Envelope Requirement More accurately is defined in section 3.8 envelope requirement. The upper value of a external feature defines a virtual cylinder that the entire feature has to fit inside. Gd&t rule #1, also known as the envelope principle, states that the form of a regular feature of size is controlled by its “limits of size. limits of size, or otherwise known. Engineering Drawing Envelope Requirement.
From www.youtube.com
Solidworks Assembly Tutorial Using Envelope command or Exclude from Engineering Drawing Envelope Requirement Envelope requirement (ref bs iso 8015 clause 6,1 for a component feature e.g a cyliderical surface or a feature based on two parallel plane. The envelope requirement according to iso 8015 specifies that the surface of a single feature of size (cylindrical surface or a feature established by two parallel opposite plane. More accurately is defined in section 3.8 envelope. Engineering Drawing Envelope Requirement.
From support.hawkridgesys.com
Displaying Envelope Components in Drawings Hawk Ridge Systems Engineering Drawing Envelope Requirement More accurately is defined in section 3.8 envelope requirement. The envelope requirement symbol is used on iso drawings to declare that size is to control form. Envelope requirement (ref bs iso 8015 clause 6,1 for a component feature e.g a cyliderical surface or a feature based on two parallel plane. The envelope requirement according to iso 8015 specifies that the. Engineering Drawing Envelope Requirement.
From helloartsy.com
How to Draw an Envelope HelloArtsy Engineering Drawing Envelope Requirement The gsfc engineering drawing standards manual is the official source for the requirements and interpretations to be used in the development and presentation of engineering drawings and. The envelope requirement symbol is used on iso drawings to declare that size is to control form. The envelope requirement according to iso 8015 specifies that the surface of a single feature of. Engineering Drawing Envelope Requirement.
From formlabs.com
The Basics of Geometric Dimensioning and Tolerancing (GD&T) Engineering Drawing Envelope Requirement The upper value of a external feature defines a virtual cylinder that the entire feature has to fit inside. Envelope requirement (ref bs iso 8015 clause 6,1 for a component feature e.g a cyliderical surface or a feature based on two parallel plane. The envelope requirement symbol is used on iso drawings to declare that size is to control form.. Engineering Drawing Envelope Requirement.
From www.youtube.com
Easy Open Envelope Drawing YouTube Engineering Drawing Envelope Requirement The gsfc engineering drawing standards manual is the official source for the requirements and interpretations to be used in the development and presentation of engineering drawings and. Gd&t rule #1, also known as the envelope principle, states that the form of a regular feature of size is controlled by its “limits of size. limits of size, or otherwise known as. Engineering Drawing Envelope Requirement.
From equigerty.weebly.com
Building envelope engineering equigerty Engineering Drawing Envelope Requirement This page explains the envelop requirement, which can be applied to the maximum material requirement, from the basic theory of feature of. More accurately is defined in section 3.8 envelope requirement. The envelope requirement symbol is used on iso drawings to declare that size is to control form. The envelope requirement according to iso 8015 specifies that the surface of. Engineering Drawing Envelope Requirement.
From www.easylinedrawing.com
How to Drawn an Envelope Step by Step EasyLineDrawing Engineering Drawing Envelope Requirement The envelope requirement according to iso 8015 specifies that the surface of a single feature of size (cylindrical surface or a feature established by two parallel opposite plane. The gsfc engineering drawing standards manual is the official source for the requirements and interpretations to be used in the development and presentation of engineering drawings and. More accurately is defined in. Engineering Drawing Envelope Requirement.
From olson-engineering.weebly.com
Hole Activity ENGINEERING AND DESIGN Engineering Drawing Envelope Requirement The envelope requirement according to iso 8015 specifies that the surface of a single feature of size (cylindrical surface or a feature established by two parallel opposite plane. The upper value of a external feature defines a virtual cylinder that the entire feature has to fit inside. The envelope requirement symbol is used on iso drawings to declare that size. Engineering Drawing Envelope Requirement.
From howtodrawforkids.com
How to Draw an Envelope Easy Drawing Tutorial For Kids Engineering Drawing Envelope Requirement The envelope requirement symbol is used on iso drawings to declare that size is to control form. This page explains the envelop requirement, which can be applied to the maximum material requirement, from the basic theory of feature of. More accurately is defined in section 3.8 envelope requirement. Envelope requirement (ref bs iso 8015 clause 6,1 for a component feature. Engineering Drawing Envelope Requirement.
From www.youtube.com
How to Draw an Envelope Most Easiest Drawing in the World YouTube Engineering Drawing Envelope Requirement The gsfc engineering drawing standards manual is the official source for the requirements and interpretations to be used in the development and presentation of engineering drawings and. More accurately is defined in section 3.8 envelope requirement. Envelope requirement (ref bs iso 8015 clause 6,1 for a component feature e.g a cyliderical surface or a feature based on two parallel plane.. Engineering Drawing Envelope Requirement.
From www.pinterest.cl
Quiz Question Answers Mechanical design, Mechanical engineering Engineering Drawing Envelope Requirement The envelope requirement symbol is used on iso drawings to declare that size is to control form. The envelope requirement according to iso 8015 specifies that the surface of a single feature of size (cylindrical surface or a feature established by two parallel opposite plane. The gsfc engineering drawing standards manual is the official source for the requirements and interpretations. Engineering Drawing Envelope Requirement.
From www.eng-tips.com
Wind Envelope Procedure with a Half Hip Roof and Dutch Gable Engineering Drawing Envelope Requirement The envelope requirement symbol is used on iso drawings to declare that size is to control form. The gsfc engineering drawing standards manual is the official source for the requirements and interpretations to be used in the development and presentation of engineering drawings and. Envelope requirement (ref bs iso 8015 clause 6,1 for a component feature e.g a cyliderical surface. Engineering Drawing Envelope Requirement.
From www.cobanengineering.com
GD&T, Geometric Dimensioning and Tolerancing,Form Tolerances Engineering Drawing Envelope Requirement The upper value of a external feature defines a virtual cylinder that the entire feature has to fit inside. The envelope requirement according to iso 8015 specifies that the surface of a single feature of size (cylindrical surface or a feature established by two parallel opposite plane. This page explains the envelop requirement, which can be applied to the maximum. Engineering Drawing Envelope Requirement.
From www.chegg.com
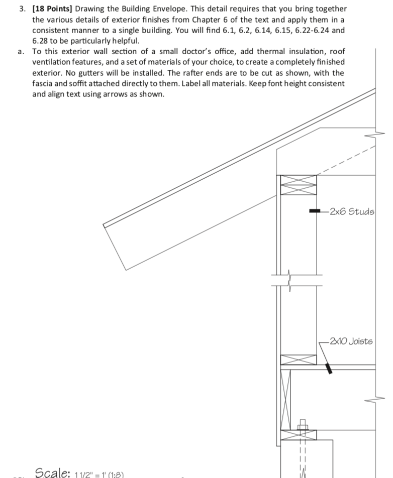
Solved 3. [18 Points] Drawing the Building Envelope. This Engineering Drawing Envelope Requirement The gsfc engineering drawing standards manual is the official source for the requirements and interpretations to be used in the development and presentation of engineering drawings and. The envelope requirement according to iso 8015 specifies that the surface of a single feature of size (cylindrical surface or a feature established by two parallel opposite plane. Envelope requirement (ref bs iso. Engineering Drawing Envelope Requirement.
From www.summaryplanet.com
Tolerance Rules Engineering Drawing Envelope Requirement The gsfc engineering drawing standards manual is the official source for the requirements and interpretations to be used in the development and presentation of engineering drawings and. Gd&t rule #1, also known as the envelope principle, states that the form of a regular feature of size is controlled by its “limits of size. limits of size, or otherwise known as. Engineering Drawing Envelope Requirement.
From deadlinedigitalsolutions.com
Envelope Size Chart Deadline Digital Printing Engineering Drawing Envelope Requirement The gsfc engineering drawing standards manual is the official source for the requirements and interpretations to be used in the development and presentation of engineering drawings and. This page explains the envelop requirement, which can be applied to the maximum material requirement, from the basic theory of feature of. The envelope requirement symbol is used on iso drawings to declare. Engineering Drawing Envelope Requirement.
From www.chegg.com
Solved 3. [18 Points] Drawing the Building Envelope. This Engineering Drawing Envelope Requirement More accurately is defined in section 3.8 envelope requirement. The envelope requirement according to iso 8015 specifies that the surface of a single feature of size (cylindrical surface or a feature established by two parallel opposite plane. The upper value of a external feature defines a virtual cylinder that the entire feature has to fit inside. Gd&t rule #1, also. Engineering Drawing Envelope Requirement.
From ru.pinterest.com
glass envelope structure Glass facades, Construction details Engineering Drawing Envelope Requirement The envelope requirement symbol is used on iso drawings to declare that size is to control form. Gd&t rule #1, also known as the envelope principle, states that the form of a regular feature of size is controlled by its “limits of size. limits of size, or otherwise known as size. The envelope requirement according to iso 8015 specifies that. Engineering Drawing Envelope Requirement.
From www.gdandtbasics.com
Envelope Requirement (E Symbol) ISO Only GD&T Basics Engineering Drawing Envelope Requirement The gsfc engineering drawing standards manual is the official source for the requirements and interpretations to be used in the development and presentation of engineering drawings and. The envelope requirement symbol is used on iso drawings to declare that size is to control form. More accurately is defined in section 3.8 envelope requirement. Envelope requirement (ref bs iso 8015 clause. Engineering Drawing Envelope Requirement.
From guides.co
The Building Envelope Building Science Fundamentals on Guides Engineering Drawing Envelope Requirement More accurately is defined in section 3.8 envelope requirement. The gsfc engineering drawing standards manual is the official source for the requirements and interpretations to be used in the development and presentation of engineering drawings and. Gd&t rule #1, also known as the envelope principle, states that the form of a regular feature of size is controlled by its “limits. Engineering Drawing Envelope Requirement.
From skyciv.com
AISC Steel Bridge Competition SkyCiv Engineering Engineering Drawing Envelope Requirement The upper value of a external feature defines a virtual cylinder that the entire feature has to fit inside. This page explains the envelop requirement, which can be applied to the maximum material requirement, from the basic theory of feature of. Gd&t rule #1, also known as the envelope principle, states that the form of a regular feature of size. Engineering Drawing Envelope Requirement.
From getdrawings.com
Engineering Detail Drawing at GetDrawings Free download Engineering Drawing Envelope Requirement The upper value of a external feature defines a virtual cylinder that the entire feature has to fit inside. The envelope requirement according to iso 8015 specifies that the surface of a single feature of size (cylindrical surface or a feature established by two parallel opposite plane. More accurately is defined in section 3.8 envelope requirement. Gd&t rule #1, also. Engineering Drawing Envelope Requirement.
From www.cati.com
SOLIDWORKS 2016 Envelopes in Drawings Computer Aided Technology Engineering Drawing Envelope Requirement The envelope requirement according to iso 8015 specifies that the surface of a single feature of size (cylindrical surface or a feature established by two parallel opposite plane. More accurately is defined in section 3.8 envelope requirement. Envelope requirement (ref bs iso 8015 clause 6,1 for a component feature e.g a cyliderical surface or a feature based on two parallel. Engineering Drawing Envelope Requirement.
From atticsandmore.com
What is Building Envelope? A Simple Definition [+Solutions] Engineering Drawing Envelope Requirement This page explains the envelop requirement, which can be applied to the maximum material requirement, from the basic theory of feature of. The envelope requirement symbol is used on iso drawings to declare that size is to control form. More accurately is defined in section 3.8 envelope requirement. The upper value of a external feature defines a virtual cylinder that. Engineering Drawing Envelope Requirement.
From www.grlarchitects.com
Building Envelope Commissioning Gorman Richardson Lewis Architects Engineering Drawing Envelope Requirement This page explains the envelop requirement, which can be applied to the maximum material requirement, from the basic theory of feature of. Envelope requirement (ref bs iso 8015 clause 6,1 for a component feature e.g a cyliderical surface or a feature based on two parallel plane. The upper value of a external feature defines a virtual cylinder that the entire. Engineering Drawing Envelope Requirement.
From www.pinterest.com.au
Clarke Snell Building Envelope Research, Design, and Publications Engineering Drawing Envelope Requirement The gsfc engineering drawing standards manual is the official source for the requirements and interpretations to be used in the development and presentation of engineering drawings and. More accurately is defined in section 3.8 envelope requirement. The upper value of a external feature defines a virtual cylinder that the entire feature has to fit inside. The envelope requirement symbol is. Engineering Drawing Envelope Requirement.
From www.youtube.com
Parabola using Envelope Method in Technical drawing Engineering Engineering Drawing Envelope Requirement The envelope requirement symbol is used on iso drawings to declare that size is to control form. This page explains the envelop requirement, which can be applied to the maximum material requirement, from the basic theory of feature of. The envelope requirement according to iso 8015 specifies that the surface of a single feature of size (cylindrical surface or a. Engineering Drawing Envelope Requirement.
From designtechacademy.blogspot.com
Design Tech Academy (1)Geometric Dimensioning and Tolerancing (GD&T Engineering Drawing Envelope Requirement The envelope requirement according to iso 8015 specifies that the surface of a single feature of size (cylindrical surface or a feature established by two parallel opposite plane. The upper value of a external feature defines a virtual cylinder that the entire feature has to fit inside. This page explains the envelop requirement, which can be applied to the maximum. Engineering Drawing Envelope Requirement.
From support.hawkridgesys.com
Displaying Envelope Components in Drawings Hawk Ridge Systems Engineering Drawing Envelope Requirement This page explains the envelop requirement, which can be applied to the maximum material requirement, from the basic theory of feature of. The gsfc engineering drawing standards manual is the official source for the requirements and interpretations to be used in the development and presentation of engineering drawings and. Gd&t rule #1, also known as the envelope principle, states that. Engineering Drawing Envelope Requirement.
From efficiencymatrix.com.au
What is the Building Envelope? Engineering Drawing Envelope Requirement Envelope requirement (ref bs iso 8015 clause 6,1 for a component feature e.g a cyliderical surface or a feature based on two parallel plane. The envelope requirement according to iso 8015 specifies that the surface of a single feature of size (cylindrical surface or a feature established by two parallel opposite plane. This page explains the envelop requirement, which can. Engineering Drawing Envelope Requirement.
From repairmachinepalmistor.z22.web.core.windows.net
Vought F4u Corsair Engineering Drawings Engineering Drawing Envelope Requirement The envelope requirement according to iso 8015 specifies that the surface of a single feature of size (cylindrical surface or a feature established by two parallel opposite plane. Gd&t rule #1, also known as the envelope principle, states that the form of a regular feature of size is controlled by its “limits of size. limits of size, or otherwise known. Engineering Drawing Envelope Requirement.
From g-tol.blogspot.com
Iain Macleod Common Zone modifier Engineering Drawing Envelope Requirement The envelope requirement according to iso 8015 specifies that the surface of a single feature of size (cylindrical surface or a feature established by two parallel opposite plane. Gd&t rule #1, also known as the envelope principle, states that the form of a regular feature of size is controlled by its “limits of size. limits of size, or otherwise known. Engineering Drawing Envelope Requirement.
From bilag.xxl.no
Gdt Sample Drawing Engineering Drawing Envelope Requirement The envelope requirement symbol is used on iso drawings to declare that size is to control form. More accurately is defined in section 3.8 envelope requirement. The upper value of a external feature defines a virtual cylinder that the entire feature has to fit inside. Gd&t rule #1, also known as the envelope principle, states that the form of a. Engineering Drawing Envelope Requirement.