Automatic Air Vent Revit Family . Download free revit families and cad files for the flexvent from flamco on mepcontent. Operated via a float mechanism and is designed for the removal of air from systems. Find and specify air terminals and. Maximum working pressure 10 bar. 59 rows automatic air vents perform the function of eliminating the air which builds up inside climate control system circuits without any manual intervention. Download free revit families and cad files for the airvent automatic from ttm energiprodukter ab on mepcontent. Download free revit families and cad files for the flexvent top from flamco on mepcontent. View manufacturers of air terminals and diffusers.
from njmeihua.en.made-in-china.com
Download free revit families and cad files for the airvent automatic from ttm energiprodukter ab on mepcontent. View manufacturers of air terminals and diffusers. 59 rows automatic air vents perform the function of eliminating the air which builds up inside climate control system circuits without any manual intervention. Maximum working pressure 10 bar. Download free revit families and cad files for the flexvent top from flamco on mepcontent. Download free revit families and cad files for the flexvent from flamco on mepcontent. Find and specify air terminals and. Operated via a float mechanism and is designed for the removal of air from systems.
FM/UL Automatic Air Release Valve/ Automatic Air Vent Valve DN25
Automatic Air Vent Revit Family Maximum working pressure 10 bar. Operated via a float mechanism and is designed for the removal of air from systems. 59 rows automatic air vents perform the function of eliminating the air which builds up inside climate control system circuits without any manual intervention. Download free revit families and cad files for the flexvent top from flamco on mepcontent. Find and specify air terminals and. Maximum working pressure 10 bar. Download free revit families and cad files for the flexvent from flamco on mepcontent. View manufacturers of air terminals and diffusers. Download free revit families and cad files for the airvent automatic from ttm energiprodukter ab on mepcontent.
From market.bimsmith.com
Free Water Heaters Revit Download BacktoBack 6 Unit Room Air Vent Automatic Air Vent Revit Family View manufacturers of air terminals and diffusers. Maximum working pressure 10 bar. Download free revit families and cad files for the flexvent from flamco on mepcontent. Download free revit families and cad files for the flexvent top from flamco on mepcontent. Download free revit families and cad files for the airvent automatic from ttm energiprodukter ab on mepcontent. 59 rows. Automatic Air Vent Revit Family.
From www.vrogue.co
Building Revit Family Vent Turbine Ventilator vrogue.co Automatic Air Vent Revit Family View manufacturers of air terminals and diffusers. Operated via a float mechanism and is designed for the removal of air from systems. Find and specify air terminals and. Maximum working pressure 10 bar. Download free revit families and cad files for the airvent automatic from ttm energiprodukter ab on mepcontent. Download free revit families and cad files for the flexvent. Automatic Air Vent Revit Family.
From shellysavonlea.net
Ceiling Mounted Exhaust Fan Revit Family Shelly Lighting Automatic Air Vent Revit Family View manufacturers of air terminals and diffusers. Operated via a float mechanism and is designed for the removal of air from systems. Download free revit families and cad files for the airvent automatic from ttm energiprodukter ab on mepcontent. Maximum working pressure 10 bar. Find and specify air terminals and. Download free revit families and cad files for the flexvent. Automatic Air Vent Revit Family.
From www.planmarketplace.com
AUTOMATIC AIR VENT DETAIL PlanMarketplace Automatic Air Vent Revit Family Download free revit families and cad files for the flexvent top from flamco on mepcontent. Download free revit families and cad files for the flexvent from flamco on mepcontent. View manufacturers of air terminals and diffusers. Find and specify air terminals and. 59 rows automatic air vents perform the function of eliminating the air which builds up inside climate control. Automatic Air Vent Revit Family.
From libraryrevit.com
Revit Families And BIM Objects From Ventilation Systems Automatic Air Vent Revit Family Operated via a float mechanism and is designed for the removal of air from systems. 59 rows automatic air vents perform the function of eliminating the air which builds up inside climate control system circuits without any manual intervention. Find and specify air terminals and. Download free revit families and cad files for the flexvent from flamco on mepcontent. Maximum. Automatic Air Vent Revit Family.
From www.intatec.co.uk
Automatic Air Vents Intatec Automatic Air Vent Revit Family Download free revit families and cad files for the airvent automatic from ttm energiprodukter ab on mepcontent. Find and specify air terminals and. Download free revit families and cad files for the flexvent top from flamco on mepcontent. Download free revit families and cad files for the flexvent from flamco on mepcontent. Maximum working pressure 10 bar. 59 rows automatic. Automatic Air Vent Revit Family.
From roofvents.com
Product Drawings Roof Vent Technical Drawings Automatic Air Vent Revit Family Find and specify air terminals and. Maximum working pressure 10 bar. Download free revit families and cad files for the airvent automatic from ttm energiprodukter ab on mepcontent. View manufacturers of air terminals and diffusers. Download free revit families and cad files for the flexvent from flamco on mepcontent. Download free revit families and cad files for the flexvent top. Automatic Air Vent Revit Family.
From www.revitcity.com
Object Vent_LouveredWallRound_Parametric Automatic Air Vent Revit Family Maximum working pressure 10 bar. Download free revit families and cad files for the flexvent from flamco on mepcontent. Find and specify air terminals and. Operated via a float mechanism and is designed for the removal of air from systems. Download free revit families and cad files for the airvent automatic from ttm energiprodukter ab on mepcontent. View manufacturers of. Automatic Air Vent Revit Family.
From www.youtube.com
Ventilation in Revit 2020 basic introduction YouTube Automatic Air Vent Revit Family Maximum working pressure 10 bar. View manufacturers of air terminals and diffusers. 59 rows automatic air vents perform the function of eliminating the air which builds up inside climate control system circuits without any manual intervention. Download free revit families and cad files for the flexvent from flamco on mepcontent. Download free revit families and cad files for the airvent. Automatic Air Vent Revit Family.
From www.turbosquid.com
Building Revit Family exhaust fan families Automatic Air Vent Revit Family View manufacturers of air terminals and diffusers. Download free revit families and cad files for the flexvent from flamco on mepcontent. Operated via a float mechanism and is designed for the removal of air from systems. Maximum working pressure 10 bar. 59 rows automatic air vents perform the function of eliminating the air which builds up inside climate control system. Automatic Air Vent Revit Family.
From www.youtube.com
Operation Animation VS1C Automatic Air Vent YouTube Automatic Air Vent Revit Family Download free revit families and cad files for the flexvent from flamco on mepcontent. View manufacturers of air terminals and diffusers. Maximum working pressure 10 bar. Download free revit families and cad files for the flexvent top from flamco on mepcontent. Find and specify air terminals and. 59 rows automatic air vents perform the function of eliminating the air which. Automatic Air Vent Revit Family.
From www.revitcity.com
Object VENT 2'X3'6 Automatic Air Vent Revit Family Find and specify air terminals and. View manufacturers of air terminals and diffusers. Maximum working pressure 10 bar. Download free revit families and cad files for the airvent automatic from ttm energiprodukter ab on mepcontent. Download free revit families and cad files for the flexvent from flamco on mepcontent. 59 rows automatic air vents perform the function of eliminating the. Automatic Air Vent Revit Family.
From www.vrogue.co
Revit Bim 3d Drawings Flexible Metal Hose Metraflex vrogue.co Automatic Air Vent Revit Family Download free revit families and cad files for the flexvent from flamco on mepcontent. Download free revit families and cad files for the airvent automatic from ttm energiprodukter ab on mepcontent. 59 rows automatic air vents perform the function of eliminating the air which builds up inside climate control system circuits without any manual intervention. Maximum working pressure 10 bar.. Automatic Air Vent Revit Family.
From www.ecscorrosion.com
How Does the ECS Automatic Air Vent Work? Automatic Air Vent Revit Family Operated via a float mechanism and is designed for the removal of air from systems. Download free revit families and cad files for the flexvent top from flamco on mepcontent. Find and specify air terminals and. Download free revit families and cad files for the flexvent from flamco on mepcontent. 59 rows automatic air vents perform the function of eliminating. Automatic Air Vent Revit Family.
From www.statesupply.com
Taco 409 3/4" NPT Automatic Air Vent Automatic Air Vent Revit Family Maximum working pressure 10 bar. Download free revit families and cad files for the flexvent top from flamco on mepcontent. 59 rows automatic air vents perform the function of eliminating the air which builds up inside climate control system circuits without any manual intervention. View manufacturers of air terminals and diffusers. Operated via a float mechanism and is designed for. Automatic Air Vent Revit Family.
From www.mepwork.com
Free Revit MEP Families for Mechanical HVAC Equipment Automatic Air Vent Revit Family View manufacturers of air terminals and diffusers. Download free revit families and cad files for the flexvent top from flamco on mepcontent. Find and specify air terminals and. Download free revit families and cad files for the airvent automatic from ttm energiprodukter ab on mepcontent. Operated via a float mechanism and is designed for the removal of air from systems.. Automatic Air Vent Revit Family.
From www.revitcity.com
Image Gallery 3D Detail Roof Vent_Revit Automatic Air Vent Revit Family Maximum working pressure 10 bar. 59 rows automatic air vents perform the function of eliminating the air which builds up inside climate control system circuits without any manual intervention. Operated via a float mechanism and is designed for the removal of air from systems. Download free revit families and cad files for the flexvent top from flamco on mepcontent. Download. Automatic Air Vent Revit Family.
From www.vrogue.co
Building Revit Family Vent Turbine Ventilator vrogue.co Automatic Air Vent Revit Family Download free revit families and cad files for the airvent automatic from ttm energiprodukter ab on mepcontent. Operated via a float mechanism and is designed for the removal of air from systems. Find and specify air terminals and. Maximum working pressure 10 bar. View manufacturers of air terminals and diffusers. Download free revit families and cad files for the flexvent. Automatic Air Vent Revit Family.
From www.youtube.com
INSANELY FAST vent pipe modeling in Revit YouTube Automatic Air Vent Revit Family Download free revit families and cad files for the airvent automatic from ttm energiprodukter ab on mepcontent. Operated via a float mechanism and is designed for the removal of air from systems. View manufacturers of air terminals and diffusers. Maximum working pressure 10 bar. Download free revit families and cad files for the flexvent top from flamco on mepcontent. Download. Automatic Air Vent Revit Family.
From www.turbosquid.com
Building Revit Family vent turbine ventilator Automatic Air Vent Revit Family View manufacturers of air terminals and diffusers. Download free revit families and cad files for the airvent automatic from ttm energiprodukter ab on mepcontent. Maximum working pressure 10 bar. Operated via a float mechanism and is designed for the removal of air from systems. Download free revit families and cad files for the flexvent top from flamco on mepcontent. Find. Automatic Air Vent Revit Family.
From www.youtube.com
Revit HVAC Duct System A How To Guide YouTube Automatic Air Vent Revit Family View manufacturers of air terminals and diffusers. Download free revit families and cad files for the flexvent top from flamco on mepcontent. Find and specify air terminals and. Download free revit families and cad files for the flexvent from flamco on mepcontent. Download free revit families and cad files for the airvent automatic from ttm energiprodukter ab on mepcontent. Maximum. Automatic Air Vent Revit Family.
From www.bimobject.com
BIM objects Free download! Automatic Air Vent FV4 BIMobject Automatic Air Vent Revit Family 59 rows automatic air vents perform the function of eliminating the air which builds up inside climate control system circuits without any manual intervention. Find and specify air terminals and. Download free revit families and cad files for the flexvent from flamco on mepcontent. Download free revit families and cad files for the airvent automatic from ttm energiprodukter ab on. Automatic Air Vent Revit Family.
From shamsengineering.com
AUTOMATIC AIR VENT Shams Engineering Automatic Air Vent Revit Family 59 rows automatic air vents perform the function of eliminating the air which builds up inside climate control system circuits without any manual intervention. Maximum working pressure 10 bar. View manufacturers of air terminals and diffusers. Find and specify air terminals and. Operated via a float mechanism and is designed for the removal of air from systems. Download free revit. Automatic Air Vent Revit Family.
From grabcad.com
Free CAD Designs, Files & 3D Models The GrabCAD Community Library Automatic Air Vent Revit Family Operated via a float mechanism and is designed for the removal of air from systems. 59 rows automatic air vents perform the function of eliminating the air which builds up inside climate control system circuits without any manual intervention. Maximum working pressure 10 bar. Download free revit families and cad files for the flexvent top from flamco on mepcontent. Download. Automatic Air Vent Revit Family.
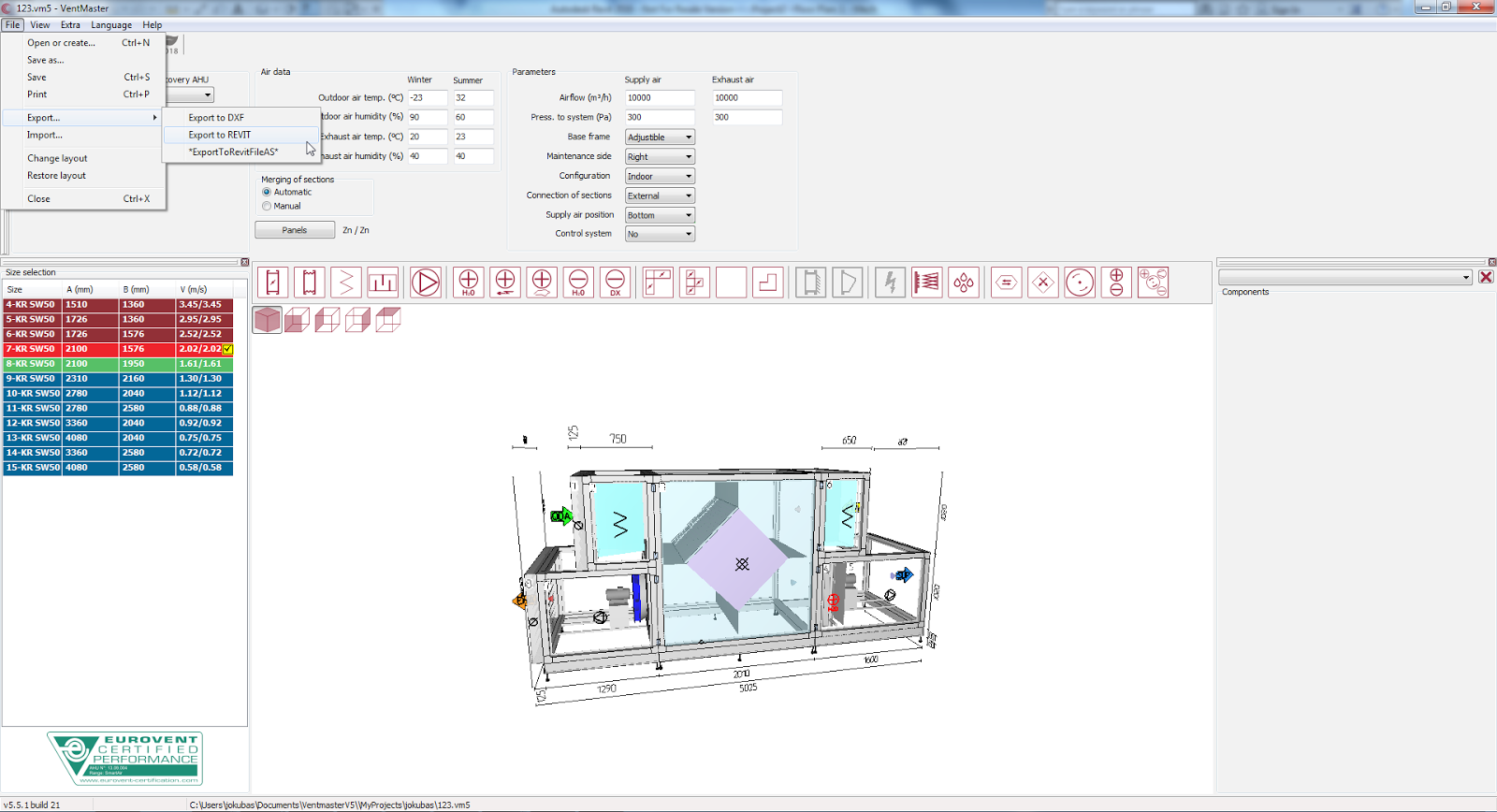
From revitaddons.blogspot.com
Revit AddOns Free VentMaster Air Handling Unit Family Creation Tool Automatic Air Vent Revit Family Operated via a float mechanism and is designed for the removal of air from systems. 59 rows automatic air vents perform the function of eliminating the air which builds up inside climate control system circuits without any manual intervention. Download free revit families and cad files for the flexvent top from flamco on mepcontent. View manufacturers of air terminals and. Automatic Air Vent Revit Family.
From www.bimobject.com
BIM objects Free download! Model 7900 PURGEnVENT Automatic Air Vent Automatic Air Vent Revit Family Download free revit families and cad files for the flexvent from flamco on mepcontent. View manufacturers of air terminals and diffusers. 59 rows automatic air vents perform the function of eliminating the air which builds up inside climate control system circuits without any manual intervention. Operated via a float mechanism and is designed for the removal of air from systems.. Automatic Air Vent Revit Family.
From www.youtube.com
Ep38 How To model Roof cowl in Revit Slope Slab FANTECH drawing Automatic Air Vent Revit Family Maximum working pressure 10 bar. Operated via a float mechanism and is designed for the removal of air from systems. Find and specify air terminals and. Download free revit families and cad files for the flexvent from flamco on mepcontent. Download free revit families and cad files for the flexvent top from flamco on mepcontent. 59 rows automatic air vents. Automatic Air Vent Revit Family.
From housekumo.com
Taco Automatic Air Vents Housekumo Automatic Air Vent Revit Family Maximum working pressure 10 bar. Download free revit families and cad files for the airvent automatic from ttm energiprodukter ab on mepcontent. Operated via a float mechanism and is designed for the removal of air from systems. Download free revit families and cad files for the flexvent from flamco on mepcontent. Find and specify air terminals and. 59 rows automatic. Automatic Air Vent Revit Family.
From www.revitcity.com
Object A Vent 2'x3' Automatic Air Vent Revit Family Maximum working pressure 10 bar. Operated via a float mechanism and is designed for the removal of air from systems. Download free revit families and cad files for the airvent automatic from ttm energiprodukter ab on mepcontent. Find and specify air terminals and. Download free revit families and cad files for the flexvent top from flamco on mepcontent. Download free. Automatic Air Vent Revit Family.
From www.youtube.com
How to Create Revit Parametric Air Terminal Family YouTube Automatic Air Vent Revit Family Operated via a float mechanism and is designed for the removal of air from systems. View manufacturers of air terminals and diffusers. Find and specify air terminals and. Maximum working pressure 10 bar. Download free revit families and cad files for the airvent automatic from ttm energiprodukter ab on mepcontent. 59 rows automatic air vents perform the function of eliminating. Automatic Air Vent Revit Family.
From www.bimobject.com
BIM objects Free download! 152 AIR VENT VALVE FOR FIRE PROTECTION Automatic Air Vent Revit Family Operated via a float mechanism and is designed for the removal of air from systems. Find and specify air terminals and. Maximum working pressure 10 bar. Download free revit families and cad files for the flexvent top from flamco on mepcontent. View manufacturers of air terminals and diffusers. 59 rows automatic air vents perform the function of eliminating the air. Automatic Air Vent Revit Family.
From www.revitcity.com
Object Roof Ventilator Automatic Air Vent Revit Family Find and specify air terminals and. Maximum working pressure 10 bar. Download free revit families and cad files for the flexvent top from flamco on mepcontent. 59 rows automatic air vents perform the function of eliminating the air which builds up inside climate control system circuits without any manual intervention. Download free revit families and cad files for the flexvent. Automatic Air Vent Revit Family.
From www.youtube.com
Using Autodesk Revit Families in AXONvent YouTube Automatic Air Vent Revit Family Download free revit families and cad files for the airvent automatic from ttm energiprodukter ab on mepcontent. Operated via a float mechanism and is designed for the removal of air from systems. View manufacturers of air terminals and diffusers. Maximum working pressure 10 bar. Download free revit families and cad files for the flexvent top from flamco on mepcontent. 59. Automatic Air Vent Revit Family.
From njmeihua.en.made-in-china.com
FM/UL Automatic Air Release Valve/ Automatic Air Vent Valve DN25 Automatic Air Vent Revit Family Download free revit families and cad files for the airvent automatic from ttm energiprodukter ab on mepcontent. Download free revit families and cad files for the flexvent from flamco on mepcontent. 59 rows automatic air vents perform the function of eliminating the air which builds up inside climate control system circuits without any manual intervention. Download free revit families and. Automatic Air Vent Revit Family.
From www.youtube.com
Revit MEP HVAC Ductwork lay out, Supply & Return Duct / Diffusers (Part Automatic Air Vent Revit Family Download free revit families and cad files for the flexvent top from flamco on mepcontent. Maximum working pressure 10 bar. View manufacturers of air terminals and diffusers. 59 rows automatic air vents perform the function of eliminating the air which builds up inside climate control system circuits without any manual intervention. Download free revit families and cad files for the. Automatic Air Vent Revit Family.