Push Bar Height . Experience relating to escape from buildings and general safety have made it desirable that doors at final. The range offers a large degree of flexibility and. • panic device push and touch bars should be installed to provide the maximum effective length but never less than 60% of the door leaf width. Where panic hardware is required, the actuating portion of the device (touchpad or crossbar) must be at least half the width of the door. In this article, we will explore the height. Emergency exit hardware enables easy escape from a building in emergencies while keeping. One important aspect of push bars is their height, which is regulated by industry standards to ensure their effectiveness and ease of use. Buy panic bars, latches & push bars for fire doors. The push pad emergency exit range comprises of modular components together with a push pad.
from smhardware.com
Where panic hardware is required, the actuating portion of the device (touchpad or crossbar) must be at least half the width of the door. • panic device push and touch bars should be installed to provide the maximum effective length but never less than 60% of the door leaf width. The range offers a large degree of flexibility and. Experience relating to escape from buildings and general safety have made it desirable that doors at final. Emergency exit hardware enables easy escape from a building in emergencies while keeping. The push pad emergency exit range comprises of modular components together with a push pad. In this article, we will explore the height. One important aspect of push bars is their height, which is regulated by industry standards to ensure their effectiveness and ease of use. Buy panic bars, latches & push bars for fire doors.
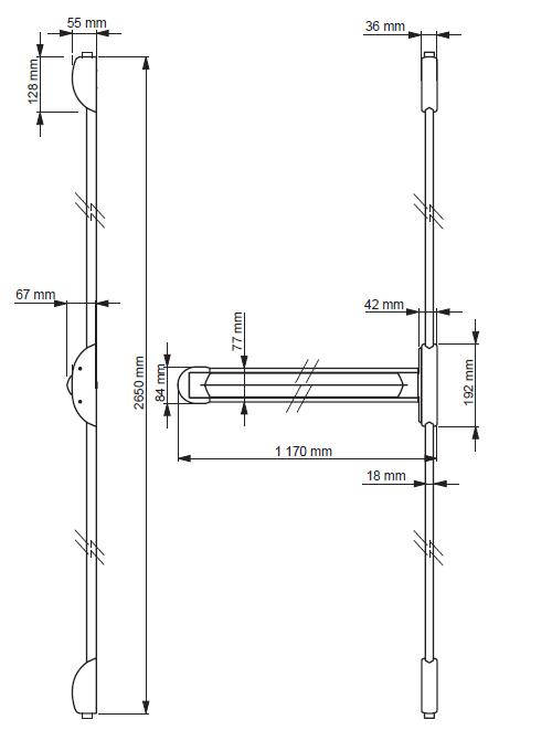
Commercial Push Bar Standard Metal
Push Bar Height In this article, we will explore the height. • panic device push and touch bars should be installed to provide the maximum effective length but never less than 60% of the door leaf width. The push pad emergency exit range comprises of modular components together with a push pad. Buy panic bars, latches & push bars for fire doors. Experience relating to escape from buildings and general safety have made it desirable that doors at final. Where panic hardware is required, the actuating portion of the device (touchpad or crossbar) must be at least half the width of the door. Emergency exit hardware enables easy escape from a building in emergencies while keeping. The range offers a large degree of flexibility and. One important aspect of push bars is their height, which is regulated by industry standards to ensure their effectiveness and ease of use. In this article, we will explore the height.
From www.mobility-aids.com
Push Bar for Wheelchairs makes pushing wheelchair easier Push Bar Height • panic device push and touch bars should be installed to provide the maximum effective length but never less than 60% of the door leaf width. In this article, we will explore the height. The range offers a large degree of flexibility and. Experience relating to escape from buildings and general safety have made it desirable that doors at final.. Push Bar Height.
From www.lathamssteeldoors.co.uk
5 Top Tips for Fire Exit Regulations in the Workplace Push Bar Height • panic device push and touch bars should be installed to provide the maximum effective length but never less than 60% of the door leaf width. Buy panic bars, latches & push bars for fire doors. In this article, we will explore the height. The range offers a large degree of flexibility and. Experience relating to escape from buildings and. Push Bar Height.
From www.taiwantrade.com
Adjustable Height Training Push Up Bar Taiwantrade Push Bar Height Where panic hardware is required, the actuating portion of the device (touchpad or crossbar) must be at least half the width of the door. The range offers a large degree of flexibility and. One important aspect of push bars is their height, which is regulated by industry standards to ensure their effectiveness and ease of use. In this article, we. Push Bar Height.
From alexnld.com
6 Level Height Adjustable MultiGrip Chin Up Bar Indoor Push Up Station Push Bar Height The push pad emergency exit range comprises of modular components together with a push pad. Buy panic bars, latches & push bars for fire doors. • panic device push and touch bars should be installed to provide the maximum effective length but never less than 60% of the door leaf width. In this article, we will explore the height. The. Push Bar Height.
From www.deny-security.com
Pushbar éO 2 points Antipanic bar Dény Security Push Bar Height • panic device push and touch bars should be installed to provide the maximum effective length but never less than 60% of the door leaf width. Emergency exit hardware enables easy escape from a building in emergencies while keeping. Where panic hardware is required, the actuating portion of the device (touchpad or crossbar) must be at least half the width. Push Bar Height.
From www.pinterest.com
SoloStrength ProHome freestanding full height adjustable pull up push Push Bar Height Buy panic bars, latches & push bars for fire doors. One important aspect of push bars is their height, which is regulated by industry standards to ensure their effectiveness and ease of use. Where panic hardware is required, the actuating portion of the device (touchpad or crossbar) must be at least half the width of the door. The push pad. Push Bar Height.
From www.citypoint.my
Stainless Steel Push Bar (CPS SPB100) City Point Solutions Push Bar Height Where panic hardware is required, the actuating portion of the device (touchpad or crossbar) must be at least half the width of the door. Buy panic bars, latches & push bars for fire doors. Emergency exit hardware enables easy escape from a building in emergencies while keeping. The range offers a large degree of flexibility and. In this article, we. Push Bar Height.
From idighardware.com
Bottom Rail Deadlock I Dig Hardware Answers to your door, hardware Push Bar Height One important aspect of push bars is their height, which is regulated by industry standards to ensure their effectiveness and ease of use. In this article, we will explore the height. The push pad emergency exit range comprises of modular components together with a push pad. Emergency exit hardware enables easy escape from a building in emergencies while keeping. Buy. Push Bar Height.
From barbellacademy.com
Crystal Fit VKR Vertical Knee Raise Dip Station Power Tower Pull Up Push Bar Height • panic device push and touch bars should be installed to provide the maximum effective length but never less than 60% of the door leaf width. Emergency exit hardware enables easy escape from a building in emergencies while keeping. Experience relating to escape from buildings and general safety have made it desirable that doors at final. The push pad emergency. Push Bar Height.
From www.autodoorandhardware.com
What is the push bar called on a door? Automatic Door and Hardware Push Bar Height The push pad emergency exit range comprises of modular components together with a push pad. Emergency exit hardware enables easy escape from a building in emergencies while keeping. The range offers a large degree of flexibility and. In this article, we will explore the height. Buy panic bars, latches & push bars for fire doors. One important aspect of push. Push Bar Height.
From www.trudoor.com
ADA Accessibility Guidelines for Doors Push Bar Height Buy panic bars, latches & push bars for fire doors. The range offers a large degree of flexibility and. In this article, we will explore the height. One important aspect of push bars is their height, which is regulated by industry standards to ensure their effectiveness and ease of use. Emergency exit hardware enables easy escape from a building in. Push Bar Height.
From www.pinterest.co.uk
Top 11 PushUp Bars to Strengthen Your Upper Body (2023) Push up bars Push Bar Height • panic device push and touch bars should be installed to provide the maximum effective length but never less than 60% of the door leaf width. Buy panic bars, latches & push bars for fire doors. In this article, we will explore the height. The push pad emergency exit range comprises of modular components together with a push pad. One. Push Bar Height.
From www.smhardware.com
Commercial Push Bar Standard Metal Push Bar Height Where panic hardware is required, the actuating portion of the device (touchpad or crossbar) must be at least half the width of the door. The push pad emergency exit range comprises of modular components together with a push pad. Buy panic bars, latches & push bars for fire doors. • panic device push and touch bars should be installed to. Push Bar Height.
From www.crlaurence.co.uk
CRL / Blumcraft Architectural Glass Doors, Panic Devices, Display Doors Push Bar Height The push pad emergency exit range comprises of modular components together with a push pad. Emergency exit hardware enables easy escape from a building in emergencies while keeping. In this article, we will explore the height. • panic device push and touch bars should be installed to provide the maximum effective length but never less than 60% of the door. Push Bar Height.
From www.thewrightstuff.com
Easy Wheelchair Push Bar Security Tall extended height one hand Push Bar Height Where panic hardware is required, the actuating portion of the device (touchpad or crossbar) must be at least half the width of the door. One important aspect of push bars is their height, which is regulated by industry standards to ensure their effectiveness and ease of use. Emergency exit hardware enables easy escape from a building in emergencies while keeping.. Push Bar Height.
From www.materialshandling.com.au
Height Bars Materials Handling Push Bar Height Emergency exit hardware enables easy escape from a building in emergencies while keeping. Buy panic bars, latches & push bars for fire doors. The push pad emergency exit range comprises of modular components together with a push pad. Where panic hardware is required, the actuating portion of the device (touchpad or crossbar) must be at least half the width of. Push Bar Height.
From united-locksmith.com.my
United Locksmith & Servicing Centre Panic Exit Device > Yank > Push Push Bar Height Experience relating to escape from buildings and general safety have made it desirable that doors at final. Emergency exit hardware enables easy escape from a building in emergencies while keeping. Where panic hardware is required, the actuating portion of the device (touchpad or crossbar) must be at least half the width of the door. Buy panic bars, latches & push. Push Bar Height.
From www.dndhardware.com
ANSI UL Listed Fire Rated SUS304 Emergency Exit Door Push BarDDPD004 Push Bar Height The push pad emergency exit range comprises of modular components together with a push pad. The range offers a large degree of flexibility and. Buy panic bars, latches & push bars for fire doors. In this article, we will explore the height. • panic device push and touch bars should be installed to provide the maximum effective length but never. Push Bar Height.
From www.inspireusafoundation.org
Push Up Bars Are there any Benefits to Using Them? Inspire US Push Bar Height Buy panic bars, latches & push bars for fire doors. In this article, we will explore the height. Experience relating to escape from buildings and general safety have made it desirable that doors at final. Where panic hardware is required, the actuating portion of the device (touchpad or crossbar) must be at least half the width of the door. The. Push Bar Height.
From www.wbstone.com
What is the height for a bar counter? Push Bar Height In this article, we will explore the height. Buy panic bars, latches & push bars for fire doors. The push pad emergency exit range comprises of modular components together with a push pad. One important aspect of push bars is their height, which is regulated by industry standards to ensure their effectiveness and ease of use. The range offers a. Push Bar Height.
From browardcountylocksmith.com
Push Bar Installation Broward County Locksmith Push Bar Height Experience relating to escape from buildings and general safety have made it desirable that doors at final. The push pad emergency exit range comprises of modular components together with a push pad. Emergency exit hardware enables easy escape from a building in emergencies while keeping. Buy panic bars, latches & push bars for fire doors. In this article, we will. Push Bar Height.
From www.carlfgroupco.co.uk
Strand Antipanic Modular Push Bar Carl F Groupco Push Bar Height In this article, we will explore the height. Emergency exit hardware enables easy escape from a building in emergencies while keeping. The range offers a large degree of flexibility and. One important aspect of push bars is their height, which is regulated by industry standards to ensure their effectiveness and ease of use. Where panic hardware is required, the actuating. Push Bar Height.
From www.wirelessintercomsonline.com
ADA Guidelines for Push Bar Height • panic device push and touch bars should be installed to provide the maximum effective length but never less than 60% of the door leaf width. The push pad emergency exit range comprises of modular components together with a push pad. One important aspect of push bars is their height, which is regulated by industry standards to ensure their effectiveness. Push Bar Height.
From smhardware.com
Commercial Push Bar Standard Metal Push Bar Height • panic device push and touch bars should be installed to provide the maximum effective length but never less than 60% of the door leaf width. Buy panic bars, latches & push bars for fire doors. Where panic hardware is required, the actuating portion of the device (touchpad or crossbar) must be at least half the width of the door.. Push Bar Height.
From www.aliexpress.com
High Quality 3 Grade Height Adjustable Steel Push up Bar with Foam Push Bar Height One important aspect of push bars is their height, which is regulated by industry standards to ensure their effectiveness and ease of use. Experience relating to escape from buildings and general safety have made it desirable that doors at final. In this article, we will explore the height. Emergency exit hardware enables easy escape from a building in emergencies while. Push Bar Height.
From seniorcitizenwebsite.com
Wheelchair Push Bar Push Bar Height • panic device push and touch bars should be installed to provide the maximum effective length but never less than 60% of the door leaf width. One important aspect of push bars is their height, which is regulated by industry standards to ensure their effectiveness and ease of use. Emergency exit hardware enables easy escape from a building in emergencies. Push Bar Height.
From www.access-board.gov
Chapter 3 Operable Parts Push Bar Height Emergency exit hardware enables easy escape from a building in emergencies while keeping. • panic device push and touch bars should be installed to provide the maximum effective length but never less than 60% of the door leaf width. The push pad emergency exit range comprises of modular components together with a push pad. Buy panic bars, latches & push. Push Bar Height.
From www.careprodx.com
Square Handicap Push Plate Push Plate Actuator Push Bar Height Experience relating to escape from buildings and general safety have made it desirable that doors at final. In this article, we will explore the height. One important aspect of push bars is their height, which is regulated by industry standards to ensure their effectiveness and ease of use. The range offers a large degree of flexibility and. • panic device. Push Bar Height.
From www.controlledaccess.com
T36ADA Full Height Doors & Turnstiles Controlled Access Push Bar Height Experience relating to escape from buildings and general safety have made it desirable that doors at final. The range offers a large degree of flexibility and. In this article, we will explore the height. The push pad emergency exit range comprises of modular components together with a push pad. Emergency exit hardware enables easy escape from a building in emergencies. Push Bar Height.
From www.strandhardware.co.uk
PHTM5 Motorised Three Point Touch Bar Bolt Strand Hardware Push Bar Height • panic device push and touch bars should be installed to provide the maximum effective length but never less than 60% of the door leaf width. In this article, we will explore the height. Emergency exit hardware enables easy escape from a building in emergencies while keeping. Buy panic bars, latches & push bars for fire doors. Where panic hardware. Push Bar Height.
From euro-art.co.uk
Push Bar Panic EuroArt Push Bar Height In this article, we will explore the height. One important aspect of push bars is their height, which is regulated by industry standards to ensure their effectiveness and ease of use. • panic device push and touch bars should be installed to provide the maximum effective length but never less than 60% of the door leaf width. Where panic hardware. Push Bar Height.
From www.walmart.com
FAGINEY Push Up Bar, 2pcs Ultimate Body Press Parallettes Gravity Push Bar Height Emergency exit hardware enables easy escape from a building in emergencies while keeping. The range offers a large degree of flexibility and. • panic device push and touch bars should be installed to provide the maximum effective length but never less than 60% of the door leaf width. Experience relating to escape from buildings and general safety have made it. Push Bar Height.
From www.autodoorandhardware.com
How Tall is a Push Bar on a Door? Automatic Door and Hardware Push Bar Height Emergency exit hardware enables easy escape from a building in emergencies while keeping. Where panic hardware is required, the actuating portion of the device (touchpad or crossbar) must be at least half the width of the door. Experience relating to escape from buildings and general safety have made it desirable that doors at final. Buy panic bars, latches & push. Push Bar Height.
From www.smhardware.com
Commercial Push Bar Standard Metal Push Bar Height Emergency exit hardware enables easy escape from a building in emergencies while keeping. In this article, we will explore the height. The range offers a large degree of flexibility and. Buy panic bars, latches & push bars for fire doors. • panic device push and touch bars should be installed to provide the maximum effective length but never less than. Push Bar Height.
From www.dontwasteyourmoney.com
RELIFE Adjustable Height Stabilizer Parallette Push Up Bars Push Bar Height In this article, we will explore the height. One important aspect of push bars is their height, which is regulated by industry standards to ensure their effectiveness and ease of use. Buy panic bars, latches & push bars for fire doors. Where panic hardware is required, the actuating portion of the device (touchpad or crossbar) must be at least half. Push Bar Height.