Surveillance Report Writing . Essentially, it involves using video surveillance, audio surveillance,. Find out what an investigation report is, how to summarize allegations, details,. Learn how to write an investigation report with a clear and concise format, including preliminary case information, incident summary, allegation subject, investigation details,. If you would like to know what belongs in a private investigator surveillance report i have written and podcasted about it. Learn the elements, tips, and best practices for writing effective investigation reports as a private investigator. Use these guidelines and you will be well on your way to writing clear and concise reports that will be easy for How to write a surveillance report, and how to get a copy of my surveillance report template. A proper private investigator surveillance report will need to be written with five reporting concepts: Surveillance reporting is the practice of collecting and analyzing data to monitor and report on suspicious or criminal activity. Follow steps, tips and an example of how. A surveillance report provides details about a particular project, outlining events that occurred during the time of a surveillance. Learn how to document events, incidents and observations as a security officer or guard.
from douglasbaseball.com
Learn the elements, tips, and best practices for writing effective investigation reports as a private investigator. Learn how to document events, incidents and observations as a security officer or guard. Find out what an investigation report is, how to summarize allegations, details,. Essentially, it involves using video surveillance, audio surveillance,. Learn how to write an investigation report with a clear and concise format, including preliminary case information, incident summary, allegation subject, investigation details,. Surveillance reporting is the practice of collecting and analyzing data to monitor and report on suspicious or criminal activity. If you would like to know what belongs in a private investigator surveillance report i have written and podcasted about it. A surveillance report provides details about a particular project, outlining events that occurred during the time of a surveillance. A proper private investigator surveillance report will need to be written with five reporting concepts: Follow steps, tips and an example of how.
Private Investigator Surveillance Report Template
Surveillance Report Writing Learn how to write an investigation report with a clear and concise format, including preliminary case information, incident summary, allegation subject, investigation details,. A surveillance report provides details about a particular project, outlining events that occurred during the time of a surveillance. Learn the elements, tips, and best practices for writing effective investigation reports as a private investigator. Essentially, it involves using video surveillance, audio surveillance,. A proper private investigator surveillance report will need to be written with five reporting concepts: Learn how to write an investigation report with a clear and concise format, including preliminary case information, incident summary, allegation subject, investigation details,. Surveillance reporting is the practice of collecting and analyzing data to monitor and report on suspicious or criminal activity. How to write a surveillance report, and how to get a copy of my surveillance report template. Learn how to document events, incidents and observations as a security officer or guard. Find out what an investigation report is, how to summarize allegations, details,. Follow steps, tips and an example of how. If you would like to know what belongs in a private investigator surveillance report i have written and podcasted about it. Use these guidelines and you will be well on your way to writing clear and concise reports that will be easy for
From www.template.net
82+ Daily Report Templates Word, PDF, Excel, Google Docs Surveillance Report Writing How to write a surveillance report, and how to get a copy of my surveillance report template. Learn how to write an investigation report with a clear and concise format, including preliminary case information, incident summary, allegation subject, investigation details,. Follow steps, tips and an example of how. Surveillance reporting is the practice of collecting and analyzing data to monitor. Surveillance Report Writing.
From business.fromgrandma.best
Surveillance Report Template ] Report Templates Our for Private Surveillance Report Writing How to write a surveillance report, and how to get a copy of my surveillance report template. If you would like to know what belongs in a private investigator surveillance report i have written and podcasted about it. Follow steps, tips and an example of how. Learn the elements, tips, and best practices for writing effective investigation reports as a. Surveillance Report Writing.
From www.pinterest.co.uk
Private Investigator Surveillance Report Template (1) TEMPLATES Surveillance Report Writing How to write a surveillance report, and how to get a copy of my surveillance report template. Surveillance reporting is the practice of collecting and analyzing data to monitor and report on suspicious or criminal activity. Essentially, it involves using video surveillance, audio surveillance,. Use these guidelines and you will be well on your way to writing clear and concise. Surveillance Report Writing.
From www.scribd.com
Surveillance Report Format PDF Surveillance Report Writing Use these guidelines and you will be well on your way to writing clear and concise reports that will be easy for Essentially, it involves using video surveillance, audio surveillance,. Learn the elements, tips, and best practices for writing effective investigation reports as a private investigator. Follow steps, tips and an example of how. Learn how to document events, incidents. Surveillance Report Writing.
From www.pinterest.com
Private Investigator Surveillance Report Template (1) PROFESSIONAL Surveillance Report Writing A proper private investigator surveillance report will need to be written with five reporting concepts: Find out what an investigation report is, how to summarize allegations, details,. If you would like to know what belongs in a private investigator surveillance report i have written and podcasted about it. Learn the elements, tips, and best practices for writing effective investigation reports. Surveillance Report Writing.
From www.slideshare.net
Video Surveillance Report Surveillance Report Writing How to write a surveillance report, and how to get a copy of my surveillance report template. Use these guidelines and you will be well on your way to writing clear and concise reports that will be easy for Essentially, it involves using video surveillance, audio surveillance,. Learn how to document events, incidents and observations as a security officer or. Surveillance Report Writing.
From www.swiftsparks.com
Private Investigator Surveillance Report Template PROFESSIONAL Surveillance Report Writing Follow steps, tips and an example of how. Find out what an investigation report is, how to summarize allegations, details,. Learn the elements, tips, and best practices for writing effective investigation reports as a private investigator. A proper private investigator surveillance report will need to be written with five reporting concepts: Surveillance reporting is the practice of collecting and analyzing. Surveillance Report Writing.
From www.scribd.com
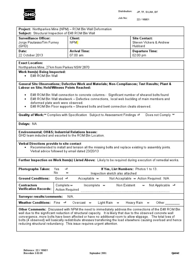
Sample Site Surveillance Report Engineering Civil Engineering Surveillance Report Writing Learn the elements, tips, and best practices for writing effective investigation reports as a private investigator. A proper private investigator surveillance report will need to be written with five reporting concepts: If you would like to know what belongs in a private investigator surveillance report i have written and podcasted about it. How to write a surveillance report, and how. Surveillance Report Writing.
From douglasbaseball.com
Private Investigator Surveillance Report Template Surveillance Report Writing Surveillance reporting is the practice of collecting and analyzing data to monitor and report on suspicious or criminal activity. Find out what an investigation report is, how to summarize allegations, details,. Use these guidelines and you will be well on your way to writing clear and concise reports that will be easy for Learn how to write an investigation report. Surveillance Report Writing.
From www.privateinvestigatoradvicehq.com
How To Write A Private Investigator Surveillance Report The Best Way Surveillance Report Writing Essentially, it involves using video surveillance, audio surveillance,. How to write a surveillance report, and how to get a copy of my surveillance report template. Follow steps, tips and an example of how. Surveillance reporting is the practice of collecting and analyzing data to monitor and report on suspicious or criminal activity. A surveillance report provides details about a particular. Surveillance Report Writing.
From www.slideshare.net
Video Surveillance Report Surveillance Report Writing A surveillance report provides details about a particular project, outlining events that occurred during the time of a surveillance. A proper private investigator surveillance report will need to be written with five reporting concepts: Follow steps, tips and an example of how. Surveillance reporting is the practice of collecting and analyzing data to monitor and report on suspicious or criminal. Surveillance Report Writing.
From www.rebeccachulew.com
Private Investigator Surveillance Report Template Surveillance Report Writing Use these guidelines and you will be well on your way to writing clear and concise reports that will be easy for Follow steps, tips and an example of how. Find out what an investigation report is, how to summarize allegations, details,. Essentially, it involves using video surveillance, audio surveillance,. How to write a surveillance report, and how to get. Surveillance Report Writing.
From creativedesignlayouttemplates.blogspot.com
Private Investigator Surveillance Report Template Surveillance Report Writing A proper private investigator surveillance report will need to be written with five reporting concepts: A surveillance report provides details about a particular project, outlining events that occurred during the time of a surveillance. Surveillance reporting is the practice of collecting and analyzing data to monitor and report on suspicious or criminal activity. If you would like to know what. Surveillance Report Writing.
From www.pinterest.co.uk
Private Investigator Surveillance Report Template (8) TEMPLATES Surveillance Report Writing Follow steps, tips and an example of how. How to write a surveillance report, and how to get a copy of my surveillance report template. A surveillance report provides details about a particular project, outlining events that occurred during the time of a surveillance. Surveillance reporting is the practice of collecting and analyzing data to monitor and report on suspicious. Surveillance Report Writing.
From www.pinterest.com
Private Investigator Surveillance Report Template (3) PROFESSIONAL Surveillance Report Writing Learn how to write an investigation report with a clear and concise format, including preliminary case information, incident summary, allegation subject, investigation details,. A proper private investigator surveillance report will need to be written with five reporting concepts: A surveillance report provides details about a particular project, outlining events that occurred during the time of a surveillance. Learn the elements,. Surveillance Report Writing.
From creativedesignlayouttemplates.blogspot.com
Private Investigator Surveillance Report Template Surveillance Report Writing A proper private investigator surveillance report will need to be written with five reporting concepts: Essentially, it involves using video surveillance, audio surveillance,. Learn how to write an investigation report with a clear and concise format, including preliminary case information, incident summary, allegation subject, investigation details,. Find out what an investigation report is, how to summarize allegations, details,. Learn the. Surveillance Report Writing.
From www.sampletemplate.my.id
Private Investigator Surveillance Report Template Surveillance Report Writing Essentially, it involves using video surveillance, audio surveillance,. If you would like to know what belongs in a private investigator surveillance report i have written and podcasted about it. A proper private investigator surveillance report will need to be written with five reporting concepts: Use these guidelines and you will be well on your way to writing clear and concise. Surveillance Report Writing.
From www.swiftsparks.com
Private Investigator Surveillance Report Template (4) PROFESSIONAL Surveillance Report Writing Essentially, it involves using video surveillance, audio surveillance,. Learn the elements, tips, and best practices for writing effective investigation reports as a private investigator. Learn how to write an investigation report with a clear and concise format, including preliminary case information, incident summary, allegation subject, investigation details,. A proper private investigator surveillance report will need to be written with five. Surveillance Report Writing.
From www.smithchavezlaw.com
Private Investigator Surveillance Report Template (2) TEMPLATES Surveillance Report Writing Find out what an investigation report is, how to summarize allegations, details,. A proper private investigator surveillance report will need to be written with five reporting concepts: Essentially, it involves using video surveillance, audio surveillance,. Learn how to write an investigation report with a clear and concise format, including preliminary case information, incident summary, allegation subject, investigation details,. Learn the. Surveillance Report Writing.
From www.pinterest.co.uk
Professional Surveillance Report Template Surveillance Report Writing Find out what an investigation report is, how to summarize allegations, details,. Learn the elements, tips, and best practices for writing effective investigation reports as a private investigator. Learn how to write an investigation report with a clear and concise format, including preliminary case information, incident summary, allegation subject, investigation details,. If you would like to know what belongs in. Surveillance Report Writing.
From www.ifsecglobal.com
The 2016 Video Surveillance Report Surveillance Report Writing Essentially, it involves using video surveillance, audio surveillance,. If you would like to know what belongs in a private investigator surveillance report i have written and podcasted about it. Use these guidelines and you will be well on your way to writing clear and concise reports that will be easy for Surveillance reporting is the practice of collecting and analyzing. Surveillance Report Writing.
From bestprofessionaltemplate.blogspot.com
Private Investigator Surveillance Report Template Surveillance Report Writing If you would like to know what belongs in a private investigator surveillance report i have written and podcasted about it. Follow steps, tips and an example of how. Surveillance reporting is the practice of collecting and analyzing data to monitor and report on suspicious or criminal activity. Essentially, it involves using video surveillance, audio surveillance,. Learn how to write. Surveillance Report Writing.
From pray.gelorailmu.com
Surveillance Report Template Post Market Quality intended for Private Surveillance Report Writing Follow steps, tips and an example of how. Learn how to write an investigation report with a clear and concise format, including preliminary case information, incident summary, allegation subject, investigation details,. If you would like to know what belongs in a private investigator surveillance report i have written and podcasted about it. Use these guidelines and you will be well. Surveillance Report Writing.
From www.dochub.com
Cctv incident report sample Fill out & sign online DocHub Surveillance Report Writing Follow steps, tips and an example of how. Use these guidelines and you will be well on your way to writing clear and concise reports that will be easy for A surveillance report provides details about a particular project, outlining events that occurred during the time of a surveillance. Find out what an investigation report is, how to summarize allegations,. Surveillance Report Writing.
From sarseh.com
Private Investigator Surveillance Report Template Surveillance Report Writing Learn how to write an investigation report with a clear and concise format, including preliminary case information, incident summary, allegation subject, investigation details,. If you would like to know what belongs in a private investigator surveillance report i have written and podcasted about it. How to write a surveillance report, and how to get a copy of my surveillance report. Surveillance Report Writing.
From douglasbaseball.com
Private Investigator Surveillance Report Template Surveillance Report Writing Use these guidelines and you will be well on your way to writing clear and concise reports that will be easy for Find out what an investigation report is, how to summarize allegations, details,. Surveillance reporting is the practice of collecting and analyzing data to monitor and report on suspicious or criminal activity. A surveillance report provides details about a. Surveillance Report Writing.
From www.swiftsparks.com
Private Investigator Surveillance Report Template PROFESSIONAL Surveillance Report Writing Use these guidelines and you will be well on your way to writing clear and concise reports that will be easy for A surveillance report provides details about a particular project, outlining events that occurred during the time of a surveillance. Learn how to write an investigation report with a clear and concise format, including preliminary case information, incident summary,. Surveillance Report Writing.
From www.xfanzexpo.com
9.4.6 Surveillance And Non Consensual Monitoring Internal In Private Surveillance Report Writing Learn the elements, tips, and best practices for writing effective investigation reports as a private investigator. Find out what an investigation report is, how to summarize allegations, details,. How to write a surveillance report, and how to get a copy of my surveillance report template. If you would like to know what belongs in a private investigator surveillance report i. Surveillance Report Writing.
From www.youtube.com
️ Writing a Surveillance Report Private Investigator Surveillance Surveillance Report Writing Use these guidelines and you will be well on your way to writing clear and concise reports that will be easy for Surveillance reporting is the practice of collecting and analyzing data to monitor and report on suspicious or criminal activity. Learn the elements, tips, and best practices for writing effective investigation reports as a private investigator. Follow steps, tips. Surveillance Report Writing.
From www.windward.solutions
Weekly security report template Surveillance Report Writing Find out what an investigation report is, how to summarize allegations, details,. Follow steps, tips and an example of how. A proper private investigator surveillance report will need to be written with five reporting concepts: A surveillance report provides details about a particular project, outlining events that occurred during the time of a surveillance. Essentially, it involves using video surveillance,. Surveillance Report Writing.
From pray.gelorailmu.com
Private Investigator Surveillance Report Template Surveillance Report Writing How to write a surveillance report, and how to get a copy of my surveillance report template. Learn how to document events, incidents and observations as a security officer or guard. If you would like to know what belongs in a private investigator surveillance report i have written and podcasted about it. Learn the elements, tips, and best practices for. Surveillance Report Writing.
From www.fieldepiinaction.com
Surveillance Report Template — Field Epidemiology in Action Surveillance Report Writing Learn the elements, tips, and best practices for writing effective investigation reports as a private investigator. If you would like to know what belongs in a private investigator surveillance report i have written and podcasted about it. How to write a surveillance report, and how to get a copy of my surveillance report template. Learn how to document events, incidents. Surveillance Report Writing.
From www.pinterest.com
Private Investigator Surveillance Report Template (1) TEMPLATES Surveillance Report Writing Use these guidelines and you will be well on your way to writing clear and concise reports that will be easy for A surveillance report provides details about a particular project, outlining events that occurred during the time of a surveillance. Learn how to write an investigation report with a clear and concise format, including preliminary case information, incident summary,. Surveillance Report Writing.
From pray.gelorailmu.com
Surveillance Report Template Best Examples Daily Free With Private Surveillance Report Writing Follow steps, tips and an example of how. Learn the elements, tips, and best practices for writing effective investigation reports as a private investigator. A surveillance report provides details about a particular project, outlining events that occurred during the time of a surveillance. Surveillance reporting is the practice of collecting and analyzing data to monitor and report on suspicious or. Surveillance Report Writing.
From www.slideshare.net
Fda postmarket surveillancereportseptemberremediated Surveillance Report Writing Find out what an investigation report is, how to summarize allegations, details,. If you would like to know what belongs in a private investigator surveillance report i have written and podcasted about it. Learn how to write an investigation report with a clear and concise format, including preliminary case information, incident summary, allegation subject, investigation details,. Learn how to document. Surveillance Report Writing.