Pennsylvania Sellers Disclosure Law . The seller’s property disclosure statement (form spd) discloses known defects and conditions on the property and complies. A seller must disclose to a buyer all known material defects about property being sold that are not readily observable. The pennsylvania seller disclosure law applies only to residential property. (a) a licensee who represents sellers or a transaction licensee who has. It requires a home seller to notify a buyer of the material defects. (1) a seller or an agent of either or both the seller and the buyer make any particular disclosures to the buyer in connection with a residential real. Disclosures also vary according to the area your property is in, or the type. Pa seller disclosure law requires home sellers to reveal material defects when selling their houses. The pa real estate seller disclosure law requires a seller of residential property to provide a property disclosure form with details about the condition of the property, to a. Disclosures required by the real estate seller disclosure law.
from ericarawls.com
Pa seller disclosure law requires home sellers to reveal material defects when selling their houses. Disclosures also vary according to the area your property is in, or the type. The seller’s property disclosure statement (form spd) discloses known defects and conditions on the property and complies. The pa real estate seller disclosure law requires a seller of residential property to provide a property disclosure form with details about the condition of the property, to a. The pennsylvania seller disclosure law applies only to residential property. (1) a seller or an agent of either or both the seller and the buyer make any particular disclosures to the buyer in connection with a residential real. Disclosures required by the real estate seller disclosure law. It requires a home seller to notify a buyer of the material defects. (a) a licensee who represents sellers or a transaction licensee who has. A seller must disclose to a buyer all known material defects about property being sold that are not readily observable.
What is a Seller's Property Disclosure? Seller’s Disclosure FAQs
Pennsylvania Sellers Disclosure Law (a) a licensee who represents sellers or a transaction licensee who has. Disclosures required by the real estate seller disclosure law. A seller must disclose to a buyer all known material defects about property being sold that are not readily observable. (1) a seller or an agent of either or both the seller and the buyer make any particular disclosures to the buyer in connection with a residential real. (a) a licensee who represents sellers or a transaction licensee who has. Disclosures also vary according to the area your property is in, or the type. The pennsylvania seller disclosure law applies only to residential property. It requires a home seller to notify a buyer of the material defects. The seller’s property disclosure statement (form spd) discloses known defects and conditions on the property and complies. The pa real estate seller disclosure law requires a seller of residential property to provide a property disclosure form with details about the condition of the property, to a. Pa seller disclosure law requires home sellers to reveal material defects when selling their houses.
From www.templateroller.com
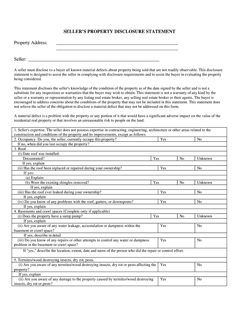
Pennsylvania Seller's Property Disclosure Statement Fill Out, Sign Pennsylvania Sellers Disclosure Law (1) a seller or an agent of either or both the seller and the buyer make any particular disclosures to the buyer in connection with a residential real. A seller must disclose to a buyer all known material defects about property being sold that are not readily observable. Pa seller disclosure law requires home sellers to reveal material defects when. Pennsylvania Sellers Disclosure Law.
From www.uslegalforms.com
Seller's Disclosure Statement for Vacant Land Land Disclosure US Pennsylvania Sellers Disclosure Law The pa real estate seller disclosure law requires a seller of residential property to provide a property disclosure form with details about the condition of the property, to a. (a) a licensee who represents sellers or a transaction licensee who has. The seller’s property disclosure statement (form spd) discloses known defects and conditions on the property and complies. A seller. Pennsylvania Sellers Disclosure Law.
From www.templateroller.com
Pennsylvania Seller's Property Disclosure Statement Download Printable Pennsylvania Sellers Disclosure Law The seller’s property disclosure statement (form spd) discloses known defects and conditions on the property and complies. A seller must disclose to a buyer all known material defects about property being sold that are not readily observable. (1) a seller or an agent of either or both the seller and the buyer make any particular disclosures to the buyer in. Pennsylvania Sellers Disclosure Law.
From www.uslegalforms.com
Pennsylvania Disclosure 20202021 Fill and Sign Printable Template Pennsylvania Sellers Disclosure Law The seller’s property disclosure statement (form spd) discloses known defects and conditions on the property and complies. It requires a home seller to notify a buyer of the material defects. Disclosures required by the real estate seller disclosure law. Disclosures also vary according to the area your property is in, or the type. A seller must disclose to a buyer. Pennsylvania Sellers Disclosure Law.
From www.templateroller.com
Pennsylvania Seller's Property Disclosure Statement Fill Out, Sign Pennsylvania Sellers Disclosure Law A seller must disclose to a buyer all known material defects about property being sold that are not readily observable. (a) a licensee who represents sellers or a transaction licensee who has. (1) a seller or an agent of either or both the seller and the buyer make any particular disclosures to the buyer in connection with a residential real.. Pennsylvania Sellers Disclosure Law.
From www.templateroller.com
Pennsylvania Seller's Property Disclosure Statement Download Printable Pennsylvania Sellers Disclosure Law Pa seller disclosure law requires home sellers to reveal material defects when selling their houses. Disclosures required by the real estate seller disclosure law. Disclosures also vary according to the area your property is in, or the type. The pennsylvania seller disclosure law applies only to residential property. A seller must disclose to a buyer all known material defects about. Pennsylvania Sellers Disclosure Law.
From legaltemplates.net
Free Pennsylvania Residential Purchase Agreement PDF & Word Pennsylvania Sellers Disclosure Law The seller’s property disclosure statement (form spd) discloses known defects and conditions on the property and complies. The pa real estate seller disclosure law requires a seller of residential property to provide a property disclosure form with details about the condition of the property, to a. Disclosures also vary according to the area your property is in, or the type.. Pennsylvania Sellers Disclosure Law.
From www.uslegalforms.com
Pa Sellers Disclosure Form 2020 2020 Fill and Sign Printable Template Pennsylvania Sellers Disclosure Law The pa real estate seller disclosure law requires a seller of residential property to provide a property disclosure form with details about the condition of the property, to a. (1) a seller or an agent of either or both the seller and the buyer make any particular disclosures to the buyer in connection with a residential real. The pennsylvania seller. Pennsylvania Sellers Disclosure Law.
From richr.com
Pennsylvania Home Seller's Disclosure Form A Comprehensive Guide for Pennsylvania Sellers Disclosure Law Disclosures also vary according to the area your property is in, or the type. A seller must disclose to a buyer all known material defects about property being sold that are not readily observable. Pa seller disclosure law requires home sellers to reveal material defects when selling their houses. (a) a licensee who represents sellers or a transaction licensee who. Pennsylvania Sellers Disclosure Law.
From www.templateroller.com
Pennsylvania Seller's Property Disclosure Statement Fill Out, Sign Pennsylvania Sellers Disclosure Law Pa seller disclosure law requires home sellers to reveal material defects when selling their houses. It requires a home seller to notify a buyer of the material defects. Disclosures required by the real estate seller disclosure law. The pennsylvania seller disclosure law applies only to residential property. (1) a seller or an agent of either or both the seller and. Pennsylvania Sellers Disclosure Law.
From www.pdffiller.com
Fillable Online Pennsylvania Sellers Disclosure Form 2023 Fill Online Pennsylvania Sellers Disclosure Law Disclosures required by the real estate seller disclosure law. Disclosures also vary according to the area your property is in, or the type. The seller’s property disclosure statement (form spd) discloses known defects and conditions on the property and complies. (1) a seller or an agent of either or both the seller and the buyer make any particular disclosures to. Pennsylvania Sellers Disclosure Law.
From www.templateroller.com
Pennsylvania Seller's Property Disclosure Statement Fill Out, Sign Pennsylvania Sellers Disclosure Law Disclosures also vary according to the area your property is in, or the type. A seller must disclose to a buyer all known material defects about property being sold that are not readily observable. Disclosures required by the real estate seller disclosure law. Pa seller disclosure law requires home sellers to reveal material defects when selling their houses. (a) a. Pennsylvania Sellers Disclosure Law.
From www.templateroller.com
Pennsylvania Seller's Property Disclosure Statement Fill Out, Sign Pennsylvania Sellers Disclosure Law A seller must disclose to a buyer all known material defects about property being sold that are not readily observable. Disclosures required by the real estate seller disclosure law. (1) a seller or an agent of either or both the seller and the buyer make any particular disclosures to the buyer in connection with a residential real. It requires a. Pennsylvania Sellers Disclosure Law.
From www.pdffiller.com
Pennsylvania Sellers Disclosure Form Fill Online, Printable, Fillable Pennsylvania Sellers Disclosure Law The seller’s property disclosure statement (form spd) discloses known defects and conditions on the property and complies. The pa real estate seller disclosure law requires a seller of residential property to provide a property disclosure form with details about the condition of the property, to a. Disclosures also vary according to the area your property is in, or the type.. Pennsylvania Sellers Disclosure Law.
From www.templateroller.com
Pennsylvania Seller's Property Disclosure Statement Download Printable Pennsylvania Sellers Disclosure Law A seller must disclose to a buyer all known material defects about property being sold that are not readily observable. It requires a home seller to notify a buyer of the material defects. Disclosures required by the real estate seller disclosure law. Pa seller disclosure law requires home sellers to reveal material defects when selling their houses. (1) a seller. Pennsylvania Sellers Disclosure Law.
From www.parealtors.org
Sellers Disclosure released Pennsylvania Association of Realtors® Pennsylvania Sellers Disclosure Law (a) a licensee who represents sellers or a transaction licensee who has. Disclosures also vary according to the area your property is in, or the type. A seller must disclose to a buyer all known material defects about property being sold that are not readily observable. The pennsylvania seller disclosure law applies only to residential property. Disclosures required by the. Pennsylvania Sellers Disclosure Law.
From esign.com
Free Pennsylvania Residential Purchase and Sale Agreement PDF Word Pennsylvania Sellers Disclosure Law Disclosures also vary according to the area your property is in, or the type. (1) a seller or an agent of either or both the seller and the buyer make any particular disclosures to the buyer in connection with a residential real. Disclosures required by the real estate seller disclosure law. The pennsylvania seller disclosure law applies only to residential. Pennsylvania Sellers Disclosure Law.
From ericarawls.com
What is a Seller's Property Disclosure? Seller’s Disclosure FAQs Pennsylvania Sellers Disclosure Law A seller must disclose to a buyer all known material defects about property being sold that are not readily observable. (1) a seller or an agent of either or both the seller and the buyer make any particular disclosures to the buyer in connection with a residential real. It requires a home seller to notify a buyer of the material. Pennsylvania Sellers Disclosure Law.
From www.pdffiller.com
pennsylvania disclosure Doc Template pdfFiller Pennsylvania Sellers Disclosure Law (a) a licensee who represents sellers or a transaction licensee who has. Disclosures required by the real estate seller disclosure law. Pa seller disclosure law requires home sellers to reveal material defects when selling their houses. (1) a seller or an agent of either or both the seller and the buyer make any particular disclosures to the buyer in connection. Pennsylvania Sellers Disclosure Law.
From www.youtube.com
PA Seller's Disclosure Statement YouTube Pennsylvania Sellers Disclosure Law The seller’s property disclosure statement (form spd) discloses known defects and conditions on the property and complies. The pennsylvania seller disclosure law applies only to residential property. Pa seller disclosure law requires home sellers to reveal material defects when selling their houses. The pa real estate seller disclosure law requires a seller of residential property to provide a property disclosure. Pennsylvania Sellers Disclosure Law.
From www.templateroller.com
Pennsylvania Seller's Property Disclosure Statement Fill Out, Sign Pennsylvania Sellers Disclosure Law The pennsylvania seller disclosure law applies only to residential property. Pa seller disclosure law requires home sellers to reveal material defects when selling their houses. Disclosures also vary according to the area your property is in, or the type. A seller must disclose to a buyer all known material defects about property being sold that are not readily observable. The. Pennsylvania Sellers Disclosure Law.
From www.uslegalforms.com
PA Seller's Property Disclosure Statement 2017 Fill and Sign Pennsylvania Sellers Disclosure Law A seller must disclose to a buyer all known material defects about property being sold that are not readily observable. Disclosures required by the real estate seller disclosure law. The pennsylvania seller disclosure law applies only to residential property. Pa seller disclosure law requires home sellers to reveal material defects when selling their houses. (a) a licensee who represents sellers. Pennsylvania Sellers Disclosure Law.
From www.orhp.com
Disclosure Law 4 Things Your Sellers Need to Know Pennsylvania Sellers Disclosure Law Disclosures also vary according to the area your property is in, or the type. The seller’s property disclosure statement (form spd) discloses known defects and conditions on the property and complies. Pa seller disclosure law requires home sellers to reveal material defects when selling their houses. A seller must disclose to a buyer all known material defects about property being. Pennsylvania Sellers Disclosure Law.
From www.houzeo.com
Sellers Disclosure Pennsylvania A Guide To Ace Your Disclosure Process Pennsylvania Sellers Disclosure Law Pa seller disclosure law requires home sellers to reveal material defects when selling their houses. It requires a home seller to notify a buyer of the material defects. The pa real estate seller disclosure law requires a seller of residential property to provide a property disclosure form with details about the condition of the property, to a. Disclosures required by. Pennsylvania Sellers Disclosure Law.
From www.youtube.com
Pennsylvania Seller's Property Disclosure explained by Realtors ft Pennsylvania Sellers Disclosure Law The seller’s property disclosure statement (form spd) discloses known defects and conditions on the property and complies. Disclosures also vary according to the area your property is in, or the type. (a) a licensee who represents sellers or a transaction licensee who has. It requires a home seller to notify a buyer of the material defects. The pennsylvania seller disclosure. Pennsylvania Sellers Disclosure Law.
From www.youtube.com
PA Real Estate Forms Seller Property Disclosure YouTube Pennsylvania Sellers Disclosure Law A seller must disclose to a buyer all known material defects about property being sold that are not readily observable. It requires a home seller to notify a buyer of the material defects. Pa seller disclosure law requires home sellers to reveal material defects when selling their houses. The seller’s property disclosure statement (form spd) discloses known defects and conditions. Pennsylvania Sellers Disclosure Law.
From www.parealtors.org
Superior court weighs in on the Real Estate Seller Disclosure Law Pennsylvania Sellers Disclosure Law Disclosures required by the real estate seller disclosure law. (a) a licensee who represents sellers or a transaction licensee who has. Pa seller disclosure law requires home sellers to reveal material defects when selling their houses. The seller’s property disclosure statement (form spd) discloses known defects and conditions on the property and complies. The pennsylvania seller disclosure law applies only. Pennsylvania Sellers Disclosure Law.
From www.flblaw.com
Protecting Yourself Under Pennsylvania’s Seller Disclosure Law Pennsylvania Sellers Disclosure Law It requires a home seller to notify a buyer of the material defects. The pennsylvania seller disclosure law applies only to residential property. The seller’s property disclosure statement (form spd) discloses known defects and conditions on the property and complies. Pa seller disclosure law requires home sellers to reveal material defects when selling their houses. (1) a seller or an. Pennsylvania Sellers Disclosure Law.
From www.proptechreviews.org
Sellers Disclosure PA PropTech Reviews Pennsylvania Sellers Disclosure Law Pa seller disclosure law requires home sellers to reveal material defects when selling their houses. (a) a licensee who represents sellers or a transaction licensee who has. The pa real estate seller disclosure law requires a seller of residential property to provide a property disclosure form with details about the condition of the property, to a. Disclosures also vary according. Pennsylvania Sellers Disclosure Law.
From www.pdffiller.com
pennsylvania seller disclosure Doc Template pdfFiller Pennsylvania Sellers Disclosure Law The seller’s property disclosure statement (form spd) discloses known defects and conditions on the property and complies. Disclosures required by the real estate seller disclosure law. (a) a licensee who represents sellers or a transaction licensee who has. The pa real estate seller disclosure law requires a seller of residential property to provide a property disclosure form with details about. Pennsylvania Sellers Disclosure Law.
From www.templateroller.com
Pennsylvania Seller's Property Disclosure Statement Download Printable Pennsylvania Sellers Disclosure Law The pa real estate seller disclosure law requires a seller of residential property to provide a property disclosure form with details about the condition of the property, to a. It requires a home seller to notify a buyer of the material defects. (1) a seller or an agent of either or both the seller and the buyer make any particular. Pennsylvania Sellers Disclosure Law.
From blog.pdffiller.com
PA Sellers Property Disclosure Statement pdfFiller Blog Pennsylvania Sellers Disclosure Law The pennsylvania seller disclosure law applies only to residential property. The seller’s property disclosure statement (form spd) discloses known defects and conditions on the property and complies. The pa real estate seller disclosure law requires a seller of residential property to provide a property disclosure form with details about the condition of the property, to a. Disclosures required by the. Pennsylvania Sellers Disclosure Law.
From www.houzeo.com
Seller Disclosure Requirements in Pennsylvania Houzeo Blog Pennsylvania Sellers Disclosure Law Pa seller disclosure law requires home sellers to reveal material defects when selling their houses. (a) a licensee who represents sellers or a transaction licensee who has. Disclosures required by the real estate seller disclosure law. (1) a seller or an agent of either or both the seller and the buyer make any particular disclosures to the buyer in connection. Pennsylvania Sellers Disclosure Law.
From www.uslegalforms.com
Seller's Disclosure Statement for Vacant Land Land Disclosure US Pennsylvania Sellers Disclosure Law (1) a seller or an agent of either or both the seller and the buyer make any particular disclosures to the buyer in connection with a residential real. A seller must disclose to a buyer all known material defects about property being sold that are not readily observable. Pa seller disclosure law requires home sellers to reveal material defects when. Pennsylvania Sellers Disclosure Law.
From ericarawls.com
What is a Seller's Property Disclosure? Seller’s Disclosure FAQs Pennsylvania Sellers Disclosure Law The pa real estate seller disclosure law requires a seller of residential property to provide a property disclosure form with details about the condition of the property, to a. It requires a home seller to notify a buyer of the material defects. Disclosures also vary according to the area your property is in, or the type. Pa seller disclosure law. Pennsylvania Sellers Disclosure Law.