Crane Beam Calculation Software . Download structural analysis software craneway 8.23 developed by. Designing a crane girder according to bs5950 involves numerous steps to ensure that it can safely support the applied loads, including the weight of the crane and the lifted load, the. The most unfavourable load for the design of the crane beams is the load that is carried by the crane to rest one direction of the hall. In the design of the crane beam, attention should be paid to increasing the width of the flange and the thickness of the web to increase the cross. You can optionally select between. Rstab 9 is a powerful analysis and design software for 3d beam, frame, or truss. The stand‑alone program craneway provides effective analysis and design of craneway girders. With the introduction of crane beam design software, these design projects are easily done.
from nsair.weebly.com
Rstab 9 is a powerful analysis and design software for 3d beam, frame, or truss. The stand‑alone program craneway provides effective analysis and design of craneway girders. The most unfavourable load for the design of the crane beams is the load that is carried by the crane to rest one direction of the hall. In the design of the crane beam, attention should be paid to increasing the width of the flange and the thickness of the web to increase the cross. With the introduction of crane beam design software, these design projects are easily done. Designing a crane girder according to bs5950 involves numerous steps to ensure that it can safely support the applied loads, including the weight of the crane and the lifted load, the. You can optionally select between. Download structural analysis software craneway 8.23 developed by.
Crane lift plan software nsair
Crane Beam Calculation Software You can optionally select between. Rstab 9 is a powerful analysis and design software for 3d beam, frame, or truss. The most unfavourable load for the design of the crane beams is the load that is carried by the crane to rest one direction of the hall. In the design of the crane beam, attention should be paid to increasing the width of the flange and the thickness of the web to increase the cross. Download structural analysis software craneway 8.23 developed by. With the introduction of crane beam design software, these design projects are easily done. The stand‑alone program craneway provides effective analysis and design of craneway girders. You can optionally select between. Designing a crane girder according to bs5950 involves numerous steps to ensure that it can safely support the applied loads, including the weight of the crane and the lifted load, the.
From www.eleetshop.com
crane girder design calculation Crane Beam Calculation Software Download structural analysis software craneway 8.23 developed by. The stand‑alone program craneway provides effective analysis and design of craneway girders. The most unfavourable load for the design of the crane beams is the load that is carried by the crane to rest one direction of the hall. In the design of the crane beam, attention should be paid to increasing. Crane Beam Calculation Software.
From www.cesdb.com
CRANEWAY Design of Crane Runway Girders Software Crane Beam Calculation Software You can optionally select between. Designing a crane girder according to bs5950 involves numerous steps to ensure that it can safely support the applied loads, including the weight of the crane and the lifted load, the. Download structural analysis software craneway 8.23 developed by. With the introduction of crane beam design software, these design projects are easily done. Rstab 9. Crane Beam Calculation Software.
From www.youtube.com
Crane girder reinforcement and Crane Rail clamping in TEKLA STRUCTURES Crane Beam Calculation Software Designing a crane girder according to bs5950 involves numerous steps to ensure that it can safely support the applied loads, including the weight of the crane and the lifted load, the. Download structural analysis software craneway 8.23 developed by. Rstab 9 is a powerful analysis and design software for 3d beam, frame, or truss. In the design of the crane. Crane Beam Calculation Software.
From blockslimi.weebly.com
blockslimi Blog Crane Beam Calculation Software In the design of the crane beam, attention should be paid to increasing the width of the flange and the thickness of the web to increase the cross. Designing a crane girder according to bs5950 involves numerous steps to ensure that it can safely support the applied loads, including the weight of the crane and the lifted load, the. The. Crane Beam Calculation Software.
From www.mazzellacompanies.com
How to Measure for an Overhead Crane's Span and Runway Length Crane Beam Calculation Software Download structural analysis software craneway 8.23 developed by. You can optionally select between. The most unfavourable load for the design of the crane beams is the load that is carried by the crane to rest one direction of the hall. Rstab 9 is a powerful analysis and design software for 3d beam, frame, or truss. With the introduction of crane. Crane Beam Calculation Software.
From alldrawings.ru
Calculation of bridge crane beam Download drawings, blueprints Crane Beam Calculation Software Rstab 9 is a powerful analysis and design software for 3d beam, frame, or truss. Download structural analysis software craneway 8.23 developed by. The stand‑alone program craneway provides effective analysis and design of craneway girders. The most unfavourable load for the design of the crane beams is the load that is carried by the crane to rest one direction of. Crane Beam Calculation Software.
From nsair.weebly.com
Crane lift plan software nsair Crane Beam Calculation Software You can optionally select between. In the design of the crane beam, attention should be paid to increasing the width of the flange and the thickness of the web to increase the cross. With the introduction of crane beam design software, these design projects are easily done. Rstab 9 is a powerful analysis and design software for 3d beam, frame,. Crane Beam Calculation Software.
From membreys.com.au
Crane Lift Plans Membrey's Transport and Crane Hire Crane Beam Calculation Software The most unfavourable load for the design of the crane beams is the load that is carried by the crane to rest one direction of the hall. In the design of the crane beam, attention should be paid to increasing the width of the flange and the thickness of the web to increase the cross. The stand‑alone program craneway provides. Crane Beam Calculation Software.
From www.dreamstime.com
Crane moves beam formwork stock image. Image of works 259947913 Crane Beam Calculation Software Rstab 9 is a powerful analysis and design software for 3d beam, frame, or truss. With the introduction of crane beam design software, these design projects are easily done. Designing a crane girder according to bs5950 involves numerous steps to ensure that it can safely support the applied loads, including the weight of the crane and the lifted load, the.. Crane Beam Calculation Software.
From gretavanfleetpittsburgh.blogspot.com
crane runway beam design software gretavanfleetpittsburgh Crane Beam Calculation Software Designing a crane girder according to bs5950 involves numerous steps to ensure that it can safely support the applied loads, including the weight of the crane and the lifted load, the. In the design of the crane beam, attention should be paid to increasing the width of the flange and the thickness of the web to increase the cross. Download. Crane Beam Calculation Software.
From www.theengineeringcommunity.org
Crane Girder design Spreadsheet Crane Beam Calculation Software The stand‑alone program craneway provides effective analysis and design of craneway girders. The most unfavourable load for the design of the crane beams is the load that is carried by the crane to rest one direction of the hall. You can optionally select between. Download structural analysis software craneway 8.23 developed by. Designing a crane girder according to bs5950 involves. Crane Beam Calculation Software.
From kamarkhani.info
بایگانیهای Software Calculation Overhead Crane Double & Single Crane Beam Calculation Software Designing a crane girder according to bs5950 involves numerous steps to ensure that it can safely support the applied loads, including the weight of the crane and the lifted load, the. With the introduction of crane beam design software, these design projects are easily done. Rstab 9 is a powerful analysis and design software for 3d beam, frame, or truss.. Crane Beam Calculation Software.
From www.cannondigi.com
Crane Beam Calculator The Best Picture Of Beam Crane Beam Calculation Software The stand‑alone program craneway provides effective analysis and design of craneway girders. With the introduction of crane beam design software, these design projects are easily done. Rstab 9 is a powerful analysis and design software for 3d beam, frame, or truss. In the design of the crane beam, attention should be paid to increasing the width of the flange and. Crane Beam Calculation Software.
From keenvalue.weebly.com
Crane Design Calculation Software keenvalue Crane Beam Calculation Software Download structural analysis software craneway 8.23 developed by. The most unfavourable load for the design of the crane beams is the load that is carried by the crane to rest one direction of the hall. Designing a crane girder according to bs5950 involves numerous steps to ensure that it can safely support the applied loads, including the weight of the. Crane Beam Calculation Software.
From www.youtube.com
Steel beam connection details Crane support details 3d animation of Crane Beam Calculation Software You can optionally select between. In the design of the crane beam, attention should be paid to increasing the width of the flange and the thickness of the web to increase the cross. Designing a crane girder according to bs5950 involves numerous steps to ensure that it can safely support the applied loads, including the weight of the crane and. Crane Beam Calculation Software.
From templates.esad.edu.br
Crane Lift Plan Template Crane Beam Calculation Software With the introduction of crane beam design software, these design projects are easily done. You can optionally select between. In the design of the crane beam, attention should be paid to increasing the width of the flange and the thickness of the web to increase the cross. Rstab 9 is a powerful analysis and design software for 3d beam, frame,. Crane Beam Calculation Software.
From imagetou.com
Structural Steel Beam Design Software Image to u Crane Beam Calculation Software You can optionally select between. The most unfavourable load for the design of the crane beams is the load that is carried by the crane to rest one direction of the hall. Download structural analysis software craneway 8.23 developed by. Rstab 9 is a powerful analysis and design software for 3d beam, frame, or truss. The stand‑alone program craneway provides. Crane Beam Calculation Software.
From www.youtube.com
Beam Calculator Features Beam Analysis Software Optimal Beam YouTube Crane Beam Calculation Software Designing a crane girder according to bs5950 involves numerous steps to ensure that it can safely support the applied loads, including the weight of the crane and the lifted load, the. Download structural analysis software craneway 8.23 developed by. The stand‑alone program craneway provides effective analysis and design of craneway girders. Rstab 9 is a powerful analysis and design software. Crane Beam Calculation Software.
From www.cannondigi.com
Crane Beam Calculator The Best Picture Of Beam Crane Beam Calculation Software You can optionally select between. Rstab 9 is a powerful analysis and design software for 3d beam, frame, or truss. With the introduction of crane beam design software, these design projects are easily done. In the design of the crane beam, attention should be paid to increasing the width of the flange and the thickness of the web to increase. Crane Beam Calculation Software.
From www.scribd.com
Overhead Crane Beam AsBuilt Dimension1 PDF Crane Beam Calculation Software Rstab 9 is a powerful analysis and design software for 3d beam, frame, or truss. Designing a crane girder according to bs5950 involves numerous steps to ensure that it can safely support the applied loads, including the weight of the crane and the lifted load, the. The most unfavourable load for the design of the crane beams is the load. Crane Beam Calculation Software.
From pt.slideshare.net
313440656 craneliftingcalculationsheet Crane Beam Calculation Software Rstab 9 is a powerful analysis and design software for 3d beam, frame, or truss. Download structural analysis software craneway 8.23 developed by. With the introduction of crane beam design software, these design projects are easily done. The stand‑alone program craneway provides effective analysis and design of craneway girders. The most unfavourable load for the design of the crane beams. Crane Beam Calculation Software.
From jsmithmoore.com
Bridge crane runway beam size Crane Beam Calculation Software The stand‑alone program craneway provides effective analysis and design of craneway girders. With the introduction of crane beam design software, these design projects are easily done. Rstab 9 is a powerful analysis and design software for 3d beam, frame, or truss. The most unfavourable load for the design of the crane beams is the load that is carried by the. Crane Beam Calculation Software.
From cranenetworknews.com
Stick To The Plan How Lift Planning Software is Used ⋆ Crane Network News Crane Beam Calculation Software Designing a crane girder according to bs5950 involves numerous steps to ensure that it can safely support the applied loads, including the weight of the crane and the lifted load, the. In the design of the crane beam, attention should be paid to increasing the width of the flange and the thickness of the web to increase the cross. With. Crane Beam Calculation Software.
From www.cannondigi.com
Crane Beam Calculator The Best Picture Of Beam Crane Beam Calculation Software The most unfavourable load for the design of the crane beams is the load that is carried by the crane to rest one direction of the hall. The stand‑alone program craneway provides effective analysis and design of craneway girders. Download structural analysis software craneway 8.23 developed by. Designing a crane girder according to bs5950 involves numerous steps to ensure that. Crane Beam Calculation Software.
From mavink.com
Crane Lifting Boxes Crane Beam Calculation Software Download structural analysis software craneway 8.23 developed by. The stand‑alone program craneway provides effective analysis and design of craneway girders. You can optionally select between. With the introduction of crane beam design software, these design projects are easily done. The most unfavourable load for the design of the crane beams is the load that is carried by the crane to. Crane Beam Calculation Software.
From www.youtube.com
Calculation Overhead Crane YouTube Crane Beam Calculation Software The most unfavourable load for the design of the crane beams is the load that is carried by the crane to rest one direction of the hall. Rstab 9 is a powerful analysis and design software for 3d beam, frame, or truss. In the design of the crane beam, attention should be paid to increasing the width of the flange. Crane Beam Calculation Software.
From www.cesdb.com
MITCalc Beam Calculation Straight beams with a constant crosssection Crane Beam Calculation Software With the introduction of crane beam design software, these design projects are easily done. In the design of the crane beam, attention should be paid to increasing the width of the flange and the thickness of the web to increase the cross. The most unfavourable load for the design of the crane beams is the load that is carried by. Crane Beam Calculation Software.
From ar.inspiredpencil.com
Overhead Crane Design Calculations Crane Beam Calculation Software Download structural analysis software craneway 8.23 developed by. Designing a crane girder according to bs5950 involves numerous steps to ensure that it can safely support the applied loads, including the weight of the crane and the lifted load, the. You can optionally select between. With the introduction of crane beam design software, these design projects are easily done. Rstab 9. Crane Beam Calculation Software.
From www.scribd.com
Beams Calculation Crane Beam Calculation Software Designing a crane girder according to bs5950 involves numerous steps to ensure that it can safely support the applied loads, including the weight of the crane and the lifted load, the. The stand‑alone program craneway provides effective analysis and design of craneway girders. Download structural analysis software craneway 8.23 developed by. In the design of the crane beam, attention should. Crane Beam Calculation Software.
From www.academia.edu
(XLS) CRANE BEAM DESIGN Ersrikanth Sikha Academia.edu Crane Beam Calculation Software In the design of the crane beam, attention should be paid to increasing the width of the flange and the thickness of the web to increase the cross. Rstab 9 is a powerful analysis and design software for 3d beam, frame, or truss. Designing a crane girder according to bs5950 involves numerous steps to ensure that it can safely support. Crane Beam Calculation Software.
From onsiteteams.com
Free Steel Calculator for Beam Beam Steel Calculation Crane Beam Calculation Software You can optionally select between. The stand‑alone program craneway provides effective analysis and design of craneway girders. With the introduction of crane beam design software, these design projects are easily done. The most unfavourable load for the design of the crane beams is the load that is carried by the crane to rest one direction of the hall. Designing a. Crane Beam Calculation Software.
From www.mdpi.com
Machines Free FullText Finite Element Analysis and Reinforcement Crane Beam Calculation Software Download structural analysis software craneway 8.23 developed by. Rstab 9 is a powerful analysis and design software for 3d beam, frame, or truss. The stand‑alone program craneway provides effective analysis and design of craneway girders. You can optionally select between. With the introduction of crane beam design software, these design projects are easily done. Designing a crane girder according to. Crane Beam Calculation Software.
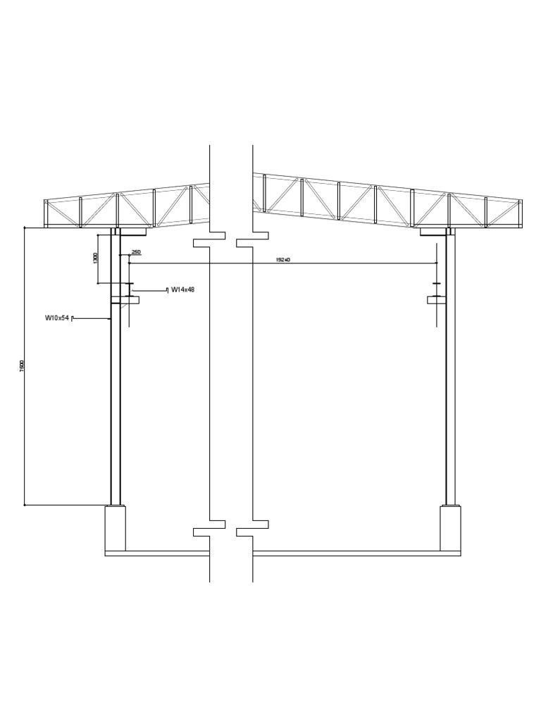
From structuraldetailer.com
Crane Columns Structural Detailer Crane Beam Calculation Software Designing a crane girder according to bs5950 involves numerous steps to ensure that it can safely support the applied loads, including the weight of the crane and the lifted load, the. In the design of the crane beam, attention should be paid to increasing the width of the flange and the thickness of the web to increase the cross. The. Crane Beam Calculation Software.
From www.mdpi.com
Machines Free FullText Finite Element Analysis and Reinforcement Crane Beam Calculation Software You can optionally select between. Download structural analysis software craneway 8.23 developed by. Rstab 9 is a powerful analysis and design software for 3d beam, frame, or truss. Designing a crane girder according to bs5950 involves numerous steps to ensure that it can safely support the applied loads, including the weight of the crane and the lifted load, the. The. Crane Beam Calculation Software.
From ar.inspiredpencil.com
Overhead Crane Design Calculations Crane Beam Calculation Software Download structural analysis software craneway 8.23 developed by. You can optionally select between. With the introduction of crane beam design software, these design projects are easily done. The stand‑alone program craneway provides effective analysis and design of craneway girders. Designing a crane girder according to bs5950 involves numerous steps to ensure that it can safely support the applied loads, including. Crane Beam Calculation Software.