Awning Design Calculation . Most 3d modeling software programs used today will show you exactly what to expect based on location, time of year and time of day. 1) the angle of the sun. Calculation of wind load action effects on monopitch canopies (net pressure coefficients for zones a, b, c and overall force. An awning size calculator is a tool designed to help individuals determine the ideal awning width based on the area they wish to. Enter the total cost of the awning and the expected energy savings to determine the payback period and return on investment. This will give you what you need to size your awning or canopy. There are a wide range of options for partial shade. Awning height calculation is crucial for determining the right installation height of an awning to provide adequate shade and maintain. Peak velocity pressure, wind load on flat roofs & buildings walls, parapets, signboards, cylinders,. Are you looking for 100% shade, or 50% shade?
from lengthcalculators.com
There are a wide range of options for partial shade. Calculation of wind load action effects on monopitch canopies (net pressure coefficients for zones a, b, c and overall force. Enter the total cost of the awning and the expected energy savings to determine the payback period and return on investment. Are you looking for 100% shade, or 50% shade? Awning height calculation is crucial for determining the right installation height of an awning to provide adequate shade and maintain. This will give you what you need to size your awning or canopy. An awning size calculator is a tool designed to help individuals determine the ideal awning width based on the area they wish to. 1) the angle of the sun. Peak velocity pressure, wind load on flat roofs & buildings walls, parapets, signboards, cylinders,. Most 3d modeling software programs used today will show you exactly what to expect based on location, time of year and time of day.
Awning Height Calculator Online Calculators
Awning Design Calculation There are a wide range of options for partial shade. Awning height calculation is crucial for determining the right installation height of an awning to provide adequate shade and maintain. Enter the total cost of the awning and the expected energy savings to determine the payback period and return on investment. Are you looking for 100% shade, or 50% shade? 1) the angle of the sun. Most 3d modeling software programs used today will show you exactly what to expect based on location, time of year and time of day. There are a wide range of options for partial shade. An awning size calculator is a tool designed to help individuals determine the ideal awning width based on the area they wish to. This will give you what you need to size your awning or canopy. Peak velocity pressure, wind load on flat roofs & buildings walls, parapets, signboards, cylinders,. Calculation of wind load action effects on monopitch canopies (net pressure coefficients for zones a, b, c and overall force.
From davisawning.com
Window Awning DAVIS Awning Design Calculation Are you looking for 100% shade, or 50% shade? An awning size calculator is a tool designed to help individuals determine the ideal awning width based on the area they wish to. Peak velocity pressure, wind load on flat roofs & buildings walls, parapets, signboards, cylinders,. This will give you what you need to size your awning or canopy. Calculation. Awning Design Calculation.
From davisawning.com
Window Awning DAVIS Awning Design Calculation Peak velocity pressure, wind load on flat roofs & buildings walls, parapets, signboards, cylinders,. 1) the angle of the sun. An awning size calculator is a tool designed to help individuals determine the ideal awning width based on the area they wish to. Calculation of wind load action effects on monopitch canopies (net pressure coefficients for zones a, b, c. Awning Design Calculation.
From www.dimensions.com
Awning Window Clear Dimensions & Drawings Awning Design Calculation Enter the total cost of the awning and the expected energy savings to determine the payback period and return on investment. An awning size calculator is a tool designed to help individuals determine the ideal awning width based on the area they wish to. Are you looking for 100% shade, or 50% shade? Calculation of wind load action effects on. Awning Design Calculation.
From www.angi.com
What Is an Awning? Awning Design Calculation 1) the angle of the sun. There are a wide range of options for partial shade. Calculation of wind load action effects on monopitch canopies (net pressure coefficients for zones a, b, c and overall force. This will give you what you need to size your awning or canopy. An awning size calculator is a tool designed to help individuals. Awning Design Calculation.
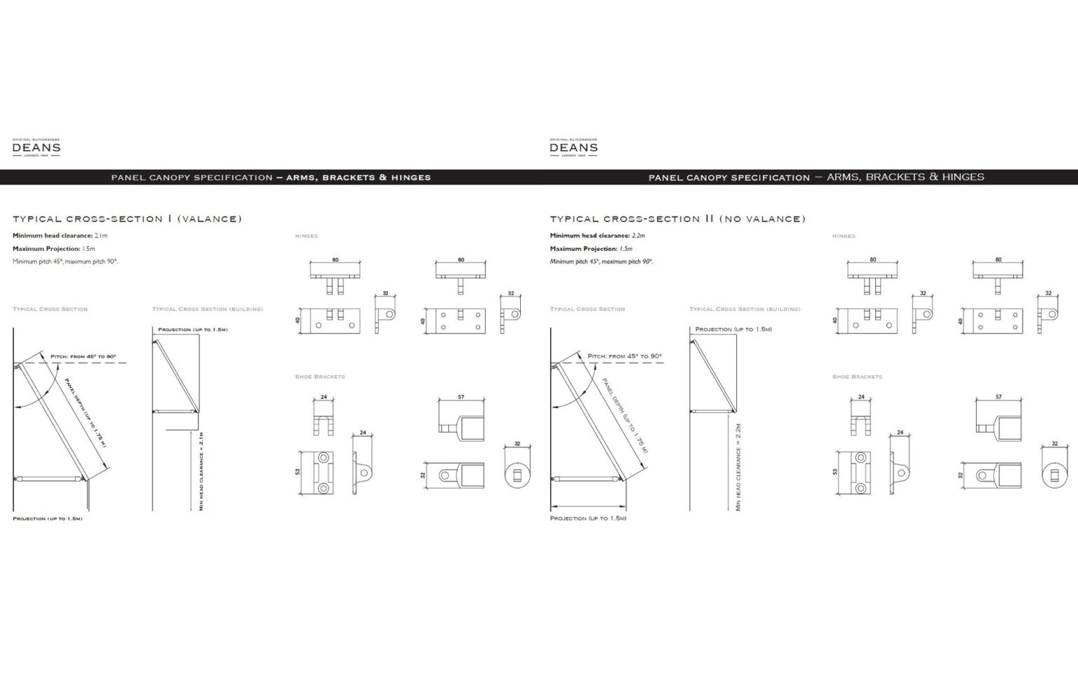
From www.deansblinds.co.uk
Aesthetic Brilliance, Practical Excellence Awning Design at Its Best Awning Design Calculation Are you looking for 100% shade, or 50% shade? This will give you what you need to size your awning or canopy. Enter the total cost of the awning and the expected energy savings to determine the payback period and return on investment. 1) the angle of the sun. There are a wide range of options for partial shade. Most. Awning Design Calculation.
From manabouttools.com
Wood Awning Frame Bracket Digital Plan MAN about TOOLS Awning Design Calculation There are a wide range of options for partial shade. Peak velocity pressure, wind load on flat roofs & buildings walls, parapets, signboards, cylinders,. Calculation of wind load action effects on monopitch canopies (net pressure coefficients for zones a, b, c and overall force. Most 3d modeling software programs used today will show you exactly what to expect based on. Awning Design Calculation.
From ahoffmanawning.com
CAD Drawings Gallery A. Hoffman Awning Co Awning Design Calculation Are you looking for 100% shade, or 50% shade? Awning height calculation is crucial for determining the right installation height of an awning to provide adequate shade and maintain. 1) the angle of the sun. Most 3d modeling software programs used today will show you exactly what to expect based on location, time of year and time of day. This. Awning Design Calculation.
From arch-fab.com
Connection Details Aluminum Canopies Architectural Fabrication Awning Design Calculation Are you looking for 100% shade, or 50% shade? Most 3d modeling software programs used today will show you exactly what to expect based on location, time of year and time of day. An awning size calculator is a tool designed to help individuals determine the ideal awning width based on the area they wish to. This will give you. Awning Design Calculation.
From www.theawningfactory.ca
Window Awnings — The Awning Factory Awning Design Calculation 1) the angle of the sun. Are you looking for 100% shade, or 50% shade? An awning size calculator is a tool designed to help individuals determine the ideal awning width based on the area they wish to. Awning height calculation is crucial for determining the right installation height of an awning to provide adequate shade and maintain. Calculation of. Awning Design Calculation.
From www.francefabricawning.com.my
A Basic Guide To Awning Designs Awning Design Calculation An awning size calculator is a tool designed to help individuals determine the ideal awning width based on the area they wish to. There are a wide range of options for partial shade. Are you looking for 100% shade, or 50% shade? Enter the total cost of the awning and the expected energy savings to determine the payback period and. Awning Design Calculation.
From www.mitchellmetals.net
Entrance / Overhead Canopy Details Commercial Metal Canopy Drawings Awning Design Calculation 1) the angle of the sun. Are you looking for 100% shade, or 50% shade? Peak velocity pressure, wind load on flat roofs & buildings walls, parapets, signboards, cylinders,. An awning size calculator is a tool designed to help individuals determine the ideal awning width based on the area they wish to. There are a wide range of options for. Awning Design Calculation.
From www.pinterest.co.uk
Roof pitch calculator Shed Construction, Framing Construction, Casa Awning Design Calculation Enter the total cost of the awning and the expected energy savings to determine the payback period and return on investment. An awning size calculator is a tool designed to help individuals determine the ideal awning width based on the area they wish to. Awning height calculation is crucial for determining the right installation height of an awning to provide. Awning Design Calculation.
From www.mitchellmetals.net
Covered Walkway Canopy Drawings Specs for Canopies Mitchell Metals Awning Design Calculation Most 3d modeling software programs used today will show you exactly what to expect based on location, time of year and time of day. Are you looking for 100% shade, or 50% shade? Enter the total cost of the awning and the expected energy savings to determine the payback period and return on investment. Calculation of wind load action effects. Awning Design Calculation.
From ahoffmanawning.com
CAD Drawings Gallery A. Hoffman Awning Co Awning Design Calculation Calculation of wind load action effects on monopitch canopies (net pressure coefficients for zones a, b, c and overall force. An awning size calculator is a tool designed to help individuals determine the ideal awning width based on the area they wish to. This will give you what you need to size your awning or canopy. There are a wide. Awning Design Calculation.
From aceawnings.com.sg
Retractable Awning Contractor Ace Awnings Awning Design Calculation Most 3d modeling software programs used today will show you exactly what to expect based on location, time of year and time of day. Enter the total cost of the awning and the expected energy savings to determine the payback period and return on investment. Peak velocity pressure, wind load on flat roofs & buildings walls, parapets, signboards, cylinders,. 1). Awning Design Calculation.
From mrawnings.com
Fabric Replacement Mr Awnings Awning Design Calculation An awning size calculator is a tool designed to help individuals determine the ideal awning width based on the area they wish to. Enter the total cost of the awning and the expected energy savings to determine the payback period and return on investment. 1) the angle of the sun. This will give you what you need to size your. Awning Design Calculation.
From ahoffmanawning.com
CAD Drawings Gallery A. Hoffman Awning Co Awning Design Calculation Are you looking for 100% shade, or 50% shade? Awning height calculation is crucial for determining the right installation height of an awning to provide adequate shade and maintain. Most 3d modeling software programs used today will show you exactly what to expect based on location, time of year and time of day. This will give you what you need. Awning Design Calculation.
From www.angi.com
Types Of Awnings for Your Home Awning Design Calculation Calculation of wind load action effects on monopitch canopies (net pressure coefficients for zones a, b, c and overall force. This will give you what you need to size your awning or canopy. An awning size calculator is a tool designed to help individuals determine the ideal awning width based on the area they wish to. 1) the angle of. Awning Design Calculation.
From ahoffmanawning.com
CAD Drawings Gallery A. Hoffman Awning Co Awning Design Calculation Most 3d modeling software programs used today will show you exactly what to expect based on location, time of year and time of day. There are a wide range of options for partial shade. Are you looking for 100% shade, or 50% shade? This will give you what you need to size your awning or canopy. Calculation of wind load. Awning Design Calculation.
From www.pinterest.com
Pin on Hoffman Awning Cad Baltimore Awning Design Calculation Most 3d modeling software programs used today will show you exactly what to expect based on location, time of year and time of day. This will give you what you need to size your awning or canopy. Calculation of wind load action effects on monopitch canopies (net pressure coefficients for zones a, b, c and overall force. Enter the total. Awning Design Calculation.
From backyardawning.blogspot.com
Awning Framing Details Awning Design Calculation Enter the total cost of the awning and the expected energy savings to determine the payback period and return on investment. Peak velocity pressure, wind load on flat roofs & buildings walls, parapets, signboards, cylinders,. Most 3d modeling software programs used today will show you exactly what to expect based on location, time of year and time of day. Are. Awning Design Calculation.
From www.pinterest.com
Wind Uplift Forces On Roof Canopies Artiststudiocanopy002 Cantilever Awning Design Calculation This will give you what you need to size your awning or canopy. An awning size calculator is a tool designed to help individuals determine the ideal awning width based on the area they wish to. Are you looking for 100% shade, or 50% shade? Calculation of wind load action effects on monopitch canopies (net pressure coefficients for zones a,. Awning Design Calculation.
From carolinacanvasandawning.com
Custom Fabric Awning Design & Installation Carolina Canvas & Awning Awning Design Calculation An awning size calculator is a tool designed to help individuals determine the ideal awning width based on the area they wish to. Most 3d modeling software programs used today will show you exactly what to expect based on location, time of year and time of day. This will give you what you need to size your awning or canopy.. Awning Design Calculation.
From promaxawning.com
Awning Designs ProMax Awning Awning Design Calculation Peak velocity pressure, wind load on flat roofs & buildings walls, parapets, signboards, cylinders,. Awning height calculation is crucial for determining the right installation height of an awning to provide adequate shade and maintain. An awning size calculator is a tool designed to help individuals determine the ideal awning width based on the area they wish to. 1) the angle. Awning Design Calculation.
From ahoffmanawning.com
CAD Drawings Gallery A. Hoffman Awning Co Awning Design Calculation Are you looking for 100% shade, or 50% shade? Awning height calculation is crucial for determining the right installation height of an awning to provide adequate shade and maintain. Enter the total cost of the awning and the expected energy savings to determine the payback period and return on investment. There are a wide range of options for partial shade.. Awning Design Calculation.
From lengthcalculators.com
Awning Height Calculator Online Calculators Awning Design Calculation Calculation of wind load action effects on monopitch canopies (net pressure coefficients for zones a, b, c and overall force. Awning height calculation is crucial for determining the right installation height of an awning to provide adequate shade and maintain. 1) the angle of the sun. There are a wide range of options for partial shade. Are you looking for. Awning Design Calculation.
From promaxawning.com
Awning Designs ProMax Awning Awning Design Calculation There are a wide range of options for partial shade. Awning height calculation is crucial for determining the right installation height of an awning to provide adequate shade and maintain. An awning size calculator is a tool designed to help individuals determine the ideal awning width based on the area they wish to. Are you looking for 100% shade, or. Awning Design Calculation.
From classicwindowsinc.com
Awning Window Size Chart Classic Windows, Inc. Awning Design Calculation Enter the total cost of the awning and the expected energy savings to determine the payback period and return on investment. This will give you what you need to size your awning or canopy. Are you looking for 100% shade, or 50% shade? Peak velocity pressure, wind load on flat roofs & buildings walls, parapets, signboards, cylinders,. Calculation of wind. Awning Design Calculation.
From cadbull.com
Section Awning CAD drawings detail dwg file Cadbull Awning Design Calculation Calculation of wind load action effects on monopitch canopies (net pressure coefficients for zones a, b, c and overall force. There are a wide range of options for partial shade. Awning height calculation is crucial for determining the right installation height of an awning to provide adequate shade and maintain. Enter the total cost of the awning and the expected. Awning Design Calculation.
From sunsetcanvasawning.com
Sunset Canvas & Awning Fabric Awnings, Retractable Awnings, Canopies Awning Design Calculation An awning size calculator is a tool designed to help individuals determine the ideal awning width based on the area they wish to. Calculation of wind load action effects on monopitch canopies (net pressure coefficients for zones a, b, c and overall force. There are a wide range of options for partial shade. Peak velocity pressure, wind load on flat. Awning Design Calculation.
From www.scribd.com
Awning Design C PDF Nature Awning Design Calculation Awning height calculation is crucial for determining the right installation height of an awning to provide adequate shade and maintain. Most 3d modeling software programs used today will show you exactly what to expect based on location, time of year and time of day. There are a wide range of options for partial shade. Enter the total cost of the. Awning Design Calculation.
From ahoffmanawning.com
CAD Drawings Gallery A. Hoffman Awning Co Awning Design Calculation An awning size calculator is a tool designed to help individuals determine the ideal awning width based on the area they wish to. Calculation of wind load action effects on monopitch canopies (net pressure coefficients for zones a, b, c and overall force. 1) the angle of the sun. Are you looking for 100% shade, or 50% shade? There are. Awning Design Calculation.
From ahoffmanawning.com
CAD Drawings Gallery A. Hoffman Awning Co Awning Design Calculation Most 3d modeling software programs used today will show you exactly what to expect based on location, time of year and time of day. Are you looking for 100% shade, or 50% shade? Enter the total cost of the awning and the expected energy savings to determine the payback period and return on investment. There are a wide range of. Awning Design Calculation.
From ahoffmanawning.com
CAD Drawings Gallery A. Hoffman Awning Co Awning Design Calculation Calculation of wind load action effects on monopitch canopies (net pressure coefficients for zones a, b, c and overall force. Are you looking for 100% shade, or 50% shade? There are a wide range of options for partial shade. Peak velocity pressure, wind load on flat roofs & buildings walls, parapets, signboards, cylinders,. 1) the angle of the sun. Enter. Awning Design Calculation.
From www.scribd.com
Awning Design B PDF Awning Design Calculation An awning size calculator is a tool designed to help individuals determine the ideal awning width based on the area they wish to. Most 3d modeling software programs used today will show you exactly what to expect based on location, time of year and time of day. Awning height calculation is crucial for determining the right installation height of an. Awning Design Calculation.