Stark County Ohio Dte 100 Form . Homestead exemption for current tax year under r.c. 319.54(g)(3) and, if applicable, the. Section 323.152(a), grantor must complete dte 101 or submit a statement. Download or print the 2023 ohio form dte 100 (real property conveyance fee statement of value and receipt) for free from the ohio. Click on one of the categories below to see related documents. Section 4503.065, grantor (seller() must complete dte 101 or submit a statement that. Before the county auditor can endorse a conveyance, the grantee must submit either dte form 100, declaring value if it is a taxable. The grantor of the manufactured or mobile home referred to above states that the home received the senior citizen, disabled persons or surviving. The document center provides easy access to public documents. Receipt for payment of conveyance fee. The conveyance fee required by ohio revised code section (r.c. Homestead exemption for the preceding or current tax year under r.c.
from www.templateroller.com
Homestead exemption for the preceding or current tax year under r.c. Section 323.152(a), grantor must complete dte 101 or submit a statement. Receipt for payment of conveyance fee. Click on one of the categories below to see related documents. 319.54(g)(3) and, if applicable, the. Before the county auditor can endorse a conveyance, the grantee must submit either dte form 100, declaring value if it is a taxable. The document center provides easy access to public documents. Download or print the 2023 ohio form dte 100 (real property conveyance fee statement of value and receipt) for free from the ohio. Section 4503.065, grantor (seller() must complete dte 101 or submit a statement that. The grantor of the manufactured or mobile home referred to above states that the home received the senior citizen, disabled persons or surviving.
Form DTE100 Fill Out, Sign Online and Download Fillable PDF, Ohio
Stark County Ohio Dte 100 Form Receipt for payment of conveyance fee. 319.54(g)(3) and, if applicable, the. Section 4503.065, grantor (seller() must complete dte 101 or submit a statement that. The grantor of the manufactured or mobile home referred to above states that the home received the senior citizen, disabled persons or surviving. Click on one of the categories below to see related documents. Homestead exemption for current tax year under r.c. Homestead exemption for the preceding or current tax year under r.c. The document center provides easy access to public documents. Download or print the 2023 ohio form dte 100 (real property conveyance fee statement of value and receipt) for free from the ohio. Before the county auditor can endorse a conveyance, the grantee must submit either dte form 100, declaring value if it is a taxable. The conveyance fee required by ohio revised code section (r.c. Receipt for payment of conveyance fee. Section 323.152(a), grantor must complete dte 101 or submit a statement.
From www.formsbank.com
Dte Form 101 Statement Of Conveyance Of Homestead Property 1999 Stark County Ohio Dte 100 Form Homestead exemption for the preceding or current tax year under r.c. The grantor of the manufactured or mobile home referred to above states that the home received the senior citizen, disabled persons or surviving. The document center provides easy access to public documents. The conveyance fee required by ohio revised code section (r.c. Before the county auditor can endorse a. Stark County Ohio Dte 100 Form.
From www.templateroller.com
DTE Form 49 Fill Out, Sign Online and Download Fillable PDF, Butler Stark County Ohio Dte 100 Form The document center provides easy access to public documents. Section 323.152(a), grantor must complete dte 101 or submit a statement. Homestead exemption for current tax year under r.c. The grantor of the manufactured or mobile home referred to above states that the home received the senior citizen, disabled persons or surviving. 319.54(g)(3) and, if applicable, the. Click on one of. Stark County Ohio Dte 100 Form.
From www.fill.io
Fill Free fillable forms Stark County Government Stark County Ohio Dte 100 Form Click on one of the categories below to see related documents. Section 323.152(a), grantor must complete dte 101 or submit a statement. Homestead exemption for the preceding or current tax year under r.c. Download or print the 2023 ohio form dte 100 (real property conveyance fee statement of value and receipt) for free from the ohio. The grantor of the. Stark County Ohio Dte 100 Form.
From www.formsbank.com
Fillable Form Dte 6a Ohio Return Of Oil And Gas Properties printable Stark County Ohio Dte 100 Form Before the county auditor can endorse a conveyance, the grantee must submit either dte form 100, declaring value if it is a taxable. The document center provides easy access to public documents. Receipt for payment of conveyance fee. Section 4503.065, grantor (seller() must complete dte 101 or submit a statement that. Homestead exemption for the preceding or current tax year. Stark County Ohio Dte 100 Form.
From www.countyforms.com
Stark County Ohio Probate Forms Stark County Ohio Dte 100 Form Receipt for payment of conveyance fee. Before the county auditor can endorse a conveyance, the grantee must submit either dte form 100, declaring value if it is a taxable. The conveyance fee required by ohio revised code section (r.c. Homestead exemption for the preceding or current tax year under r.c. Click on one of the categories below to see related. Stark County Ohio Dte 100 Form.
From www.formsbank.com
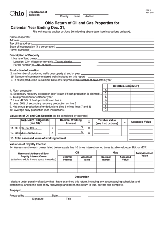
Fillable Form Dte 6 Ohio Return Of Oil And Gas Properties printable Stark County Ohio Dte 100 Form The document center provides easy access to public documents. Section 4503.065, grantor (seller() must complete dte 101 or submit a statement that. Download or print the 2023 ohio form dte 100 (real property conveyance fee statement of value and receipt) for free from the ohio. Before the county auditor can endorse a conveyance, the grantee must submit either dte form. Stark County Ohio Dte 100 Form.
From www.signnow.com
Ohio Dte 101 20162024 Form Fill Out and Sign Printable PDF Template Stark County Ohio Dte 100 Form Homestead exemption for the preceding or current tax year under r.c. Before the county auditor can endorse a conveyance, the grantee must submit either dte form 100, declaring value if it is a taxable. Click on one of the categories below to see related documents. Homestead exemption for current tax year under r.c. The grantor of the manufactured or mobile. Stark County Ohio Dte 100 Form.
From www.signnow.com
Dte 100 Ex for Ohio 20122024 Form Fill Out and Sign Printable PDF Stark County Ohio Dte 100 Form Homestead exemption for the preceding or current tax year under r.c. Before the county auditor can endorse a conveyance, the grantee must submit either dte form 100, declaring value if it is a taxable. Section 4503.065, grantor (seller() must complete dte 101 or submit a statement that. The conveyance fee required by ohio revised code section (r.c. Receipt for payment. Stark County Ohio Dte 100 Form.
From www.formsbank.com
Fillable Form Dte 100 Real Property Conveyance Fee Statement Of Value Stark County Ohio Dte 100 Form Homestead exemption for the preceding or current tax year under r.c. The document center provides easy access to public documents. The conveyance fee required by ohio revised code section (r.c. The grantor of the manufactured or mobile home referred to above states that the home received the senior citizen, disabled persons or surviving. Download or print the 2023 ohio form. Stark County Ohio Dte 100 Form.
From stark.ohgenweb.org
Stark County OHGen Stark County Ohio Dte 100 Form Click on one of the categories below to see related documents. The conveyance fee required by ohio revised code section (r.c. The grantor of the manufactured or mobile home referred to above states that the home received the senior citizen, disabled persons or surviving. Receipt for payment of conveyance fee. Section 323.152(a), grantor must complete dte 101 or submit a. Stark County Ohio Dte 100 Form.
From www.pdffiller.com
2011 Form OH DTE 100 Fill Online, Printable, Fillable, Blank pdfFiller Stark County Ohio Dte 100 Form Section 323.152(a), grantor must complete dte 101 or submit a statement. Section 4503.065, grantor (seller() must complete dte 101 or submit a statement that. Homestead exemption for the preceding or current tax year under r.c. The grantor of the manufactured or mobile home referred to above states that the home received the senior citizen, disabled persons or surviving. The conveyance. Stark County Ohio Dte 100 Form.
From www.templateroller.com
Form DTE121N Fill Out, Sign Online and Download Fillable PDF, Ohio Stark County Ohio Dte 100 Form Homestead exemption for the preceding or current tax year under r.c. Section 4503.065, grantor (seller() must complete dte 101 or submit a statement that. Homestead exemption for current tax year under r.c. Download or print the 2023 ohio form dte 100 (real property conveyance fee statement of value and receipt) for free from the ohio. Click on one of the. Stark County Ohio Dte 100 Form.
From www.templateroller.com
Form DTE100EX Fill Out, Sign Online and Download Fillable PDF, Butler Stark County Ohio Dte 100 Form Receipt for payment of conveyance fee. The grantor of the manufactured or mobile home referred to above states that the home received the senior citizen, disabled persons or surviving. The conveyance fee required by ohio revised code section (r.c. Click on one of the categories below to see related documents. 319.54(g)(3) and, if applicable, the. Homestead exemption for the preceding. Stark County Ohio Dte 100 Form.
From medinacountyauditor.org
Medina County Auditor Forms Stark County Ohio Dte 100 Form Section 323.152(a), grantor must complete dte 101 or submit a statement. The grantor of the manufactured or mobile home referred to above states that the home received the senior citizen, disabled persons or surviving. The document center provides easy access to public documents. Before the county auditor can endorse a conveyance, the grantee must submit either dte form 100, declaring. Stark County Ohio Dte 100 Form.
From formspal.com
Dte Form 100 Ex ≡ Fill Out Printable PDF Forms Online Stark County Ohio Dte 100 Form Receipt for payment of conveyance fee. The document center provides easy access to public documents. 319.54(g)(3) and, if applicable, the. The conveyance fee required by ohio revised code section (r.c. Homestead exemption for the preceding or current tax year under r.c. Homestead exemption for current tax year under r.c. Before the county auditor can endorse a conveyance, the grantee must. Stark County Ohio Dte 100 Form.
From www.countyforms.com
Top 7 Stark County Oh Court Forms And Templates Free To Download In Stark County Ohio Dte 100 Form Homestead exemption for current tax year under r.c. Section 323.152(a), grantor must complete dte 101 or submit a statement. 319.54(g)(3) and, if applicable, the. Receipt for payment of conveyance fee. Section 4503.065, grantor (seller() must complete dte 101 or submit a statement that. Click on one of the categories below to see related documents. Before the county auditor can endorse. Stark County Ohio Dte 100 Form.
From formspal.com
Dte Form 100 ≡ Fill Out Printable PDF Forms Online Stark County Ohio Dte 100 Form Before the county auditor can endorse a conveyance, the grantee must submit either dte form 100, declaring value if it is a taxable. The conveyance fee required by ohio revised code section (r.c. Homestead exemption for current tax year under r.c. 319.54(g)(3) and, if applicable, the. Receipt for payment of conveyance fee. The grantor of the manufactured or mobile home. Stark County Ohio Dte 100 Form.
From www.formsbank.com
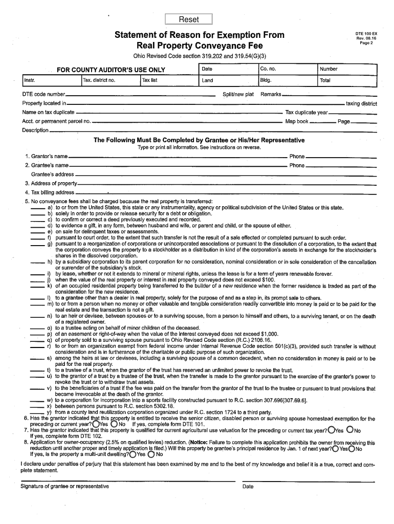
Fillable Form Dte 100ex Statement Of Reason For Exemption From Real Stark County Ohio Dte 100 Form Homestead exemption for the preceding or current tax year under r.c. The document center provides easy access to public documents. Download or print the 2023 ohio form dte 100 (real property conveyance fee statement of value and receipt) for free from the ohio. The grantor of the manufactured or mobile home referred to above states that the home received the. Stark County Ohio Dte 100 Form.
From www.formsbank.com
Fillable Dte Form 100 Real Property Conveyance Fee Statement Of Value Stark County Ohio Dte 100 Form Download or print the 2023 ohio form dte 100 (real property conveyance fee statement of value and receipt) for free from the ohio. Click on one of the categories below to see related documents. Section 4503.065, grantor (seller() must complete dte 101 or submit a statement that. Section 323.152(a), grantor must complete dte 101 or submit a statement. Homestead exemption. Stark County Ohio Dte 100 Form.
From formspal.com
Dte Contract Form ≡ Fill Out Printable PDF Forms Online Stark County Ohio Dte 100 Form Homestead exemption for the preceding or current tax year under r.c. The document center provides easy access to public documents. Before the county auditor can endorse a conveyance, the grantee must submit either dte form 100, declaring value if it is a taxable. 319.54(g)(3) and, if applicable, the. Download or print the 2023 ohio form dte 100 (real property conveyance. Stark County Ohio Dte 100 Form.
From printableformsfree.com
Ohio Government Dte Form 100 Fillable Printable Forms Free Online Stark County Ohio Dte 100 Form Section 4503.065, grantor (seller() must complete dte 101 or submit a statement that. The conveyance fee required by ohio revised code section (r.c. Download or print the 2023 ohio form dte 100 (real property conveyance fee statement of value and receipt) for free from the ohio. Homestead exemption for current tax year under r.c. Click on one of the categories. Stark County Ohio Dte 100 Form.
From www.dochub.com
Dte form 4 Fill out & sign online DocHub Stark County Ohio Dte 100 Form Receipt for payment of conveyance fee. The grantor of the manufactured or mobile home referred to above states that the home received the senior citizen, disabled persons or surviving. The document center provides easy access to public documents. Section 4503.065, grantor (seller() must complete dte 101 or submit a statement that. Click on one of the categories below to see. Stark County Ohio Dte 100 Form.
From printableformsfree.com
Ohio Government Dte Form 100 Fillable Printable Forms Free Online Stark County Ohio Dte 100 Form The document center provides easy access to public documents. Click on one of the categories below to see related documents. Before the county auditor can endorse a conveyance, the grantee must submit either dte form 100, declaring value if it is a taxable. Download or print the 2023 ohio form dte 100 (real property conveyance fee statement of value and. Stark County Ohio Dte 100 Form.
From printableformsfree.com
Ohio Government Dte Form 100 Fillable Printable Forms Free Online Stark County Ohio Dte 100 Form Before the county auditor can endorse a conveyance, the grantee must submit either dte form 100, declaring value if it is a taxable. The grantor of the manufactured or mobile home referred to above states that the home received the senior citizen, disabled persons or surviving. Homestead exemption for current tax year under r.c. Homestead exemption for the preceding or. Stark County Ohio Dte 100 Form.
From www.templateroller.com
Form DTE100 Fill Out, Sign Online and Download Fillable PDF, Butler Stark County Ohio Dte 100 Form Receipt for payment of conveyance fee. The document center provides easy access to public documents. Before the county auditor can endorse a conveyance, the grantee must submit either dte form 100, declaring value if it is a taxable. Click on one of the categories below to see related documents. Homestead exemption for current tax year under r.c. The grantor of. Stark County Ohio Dte 100 Form.
From www.formsbank.com
Top 7 Stark County, Oh Court Forms And Templates free to download in Stark County Ohio Dte 100 Form Before the county auditor can endorse a conveyance, the grantee must submit either dte form 100, declaring value if it is a taxable. Section 323.152(a), grantor must complete dte 101 or submit a statement. 319.54(g)(3) and, if applicable, the. Receipt for payment of conveyance fee. The conveyance fee required by ohio revised code section (r.c. Click on one of the. Stark County Ohio Dte 100 Form.
From www.templateroller.com
Form DTE100 Fill Out, Sign Online and Download Fillable PDF, Ohio Stark County Ohio Dte 100 Form Homestead exemption for current tax year under r.c. The grantor of the manufactured or mobile home referred to above states that the home received the senior citizen, disabled persons or surviving. Click on one of the categories below to see related documents. Homestead exemption for the preceding or current tax year under r.c. Section 4503.065, grantor (seller() must complete dte. Stark County Ohio Dte 100 Form.
From www.templateroller.com
Form DTE100M Fill Out, Sign Online and Download Fillable PDF, Butler Stark County Ohio Dte 100 Form Section 4503.065, grantor (seller() must complete dte 101 or submit a statement that. The conveyance fee required by ohio revised code section (r.c. The document center provides easy access to public documents. Homestead exemption for the preceding or current tax year under r.c. The grantor of the manufactured or mobile home referred to above states that the home received the. Stark County Ohio Dte 100 Form.
From form-dte-100-ohio.pdffiller.com
20162020 Form OH DTE 100 Fill Online, Printable, Fillable, Blank Stark County Ohio Dte 100 Form Before the county auditor can endorse a conveyance, the grantee must submit either dte form 100, declaring value if it is a taxable. The grantor of the manufactured or mobile home referred to above states that the home received the senior citizen, disabled persons or surviving. 319.54(g)(3) and, if applicable, the. Homestead exemption for the preceding or current tax year. Stark County Ohio Dte 100 Form.
From www.templateroller.com
Form DTE100M (EX) Fill Out, Sign Online and Download Fillable PDF Stark County Ohio Dte 100 Form Before the county auditor can endorse a conveyance, the grantee must submit either dte form 100, declaring value if it is a taxable. Click on one of the categories below to see related documents. The document center provides easy access to public documents. Homestead exemption for the preceding or current tax year under r.c. Download or print the 2023 ohio. Stark County Ohio Dte 100 Form.
From formspal.com
Dte Form 100 ≡ Fill Out Printable PDF Forms Online Stark County Ohio Dte 100 Form Section 323.152(a), grantor must complete dte 101 or submit a statement. Section 4503.065, grantor (seller() must complete dte 101 or submit a statement that. Homestead exemption for the preceding or current tax year under r.c. Download or print the 2023 ohio form dte 100 (real property conveyance fee statement of value and receipt) for free from the ohio. The document. Stark County Ohio Dte 100 Form.
From formspal.com
Form Dte 100 Ohio ≡ Fill Out Printable PDF Forms Online Stark County Ohio Dte 100 Form Click on one of the categories below to see related documents. 319.54(g)(3) and, if applicable, the. Download or print the 2023 ohio form dte 100 (real property conveyance fee statement of value and receipt) for free from the ohio. The grantor of the manufactured or mobile home referred to above states that the home received the senior citizen, disabled persons. Stark County Ohio Dte 100 Form.
From formspal.com
Ohio Form Dte 24 ≡ Fill Out Printable PDF Forms Online Stark County Ohio Dte 100 Form Before the county auditor can endorse a conveyance, the grantee must submit either dte form 100, declaring value if it is a taxable. Receipt for payment of conveyance fee. The document center provides easy access to public documents. Homestead exemption for current tax year under r.c. Click on one of the categories below to see related documents. Homestead exemption for. Stark County Ohio Dte 100 Form.
From formspal.com
Form Dte 100 Ohio ≡ Fill Out Printable PDF Forms Online Stark County Ohio Dte 100 Form Before the county auditor can endorse a conveyance, the grantee must submit either dte form 100, declaring value if it is a taxable. Homestead exemption for current tax year under r.c. The conveyance fee required by ohio revised code section (r.c. Receipt for payment of conveyance fee. Section 323.152(a), grantor must complete dte 101 or submit a statement. The document. Stark County Ohio Dte 100 Form.
From www.templateroller.com
Form DTE100EX Fill Out, Sign Online and Download Fillable PDF, Ohio Stark County Ohio Dte 100 Form Homestead exemption for current tax year under r.c. Before the county auditor can endorse a conveyance, the grantee must submit either dte form 100, declaring value if it is a taxable. The grantor of the manufactured or mobile home referred to above states that the home received the senior citizen, disabled persons or surviving. 319.54(g)(3) and, if applicable, the. Homestead. Stark County Ohio Dte 100 Form.