Post Concrete Test . this test evaluates the ease with which concrete can be mixed, placed, and finished. after water, it is the most used substance. post concrete inspection of concrete structures is essential to check for any damage or defects that may require repair. Concrete testing plays a fundamental role in the construction and engineering industries. concrete inspections test that concrete on a project matches the specifications in the design plan and is going to be safe, strong,. By meticulously coring, sampling and analyzing concrete samples, concrete testing provides vital information before, during and after construction.
from www.youtube.com
Concrete testing plays a fundamental role in the construction and engineering industries. concrete inspections test that concrete on a project matches the specifications in the design plan and is going to be safe, strong,. after water, it is the most used substance. post concrete inspection of concrete structures is essential to check for any damage or defects that may require repair. By meticulously coring, sampling and analyzing concrete samples, concrete testing provides vital information before, during and after construction. this test evaluates the ease with which concrete can be mixed, placed, and finished.
Slump Test For Concrete at Site What is Slump Cone Test for Concrete
Post Concrete Test after water, it is the most used substance. By meticulously coring, sampling and analyzing concrete samples, concrete testing provides vital information before, during and after construction. concrete inspections test that concrete on a project matches the specifications in the design plan and is going to be safe, strong,. this test evaluates the ease with which concrete can be mixed, placed, and finished. after water, it is the most used substance. post concrete inspection of concrete structures is essential to check for any damage or defects that may require repair. Concrete testing plays a fundamental role in the construction and engineering industries.
From www.timmons.com
Breaking Down Concrete Testing in Our CMT Lab Timmons Group Post Concrete Test this test evaluates the ease with which concrete can be mixed, placed, and finished. concrete inspections test that concrete on a project matches the specifications in the design plan and is going to be safe, strong,. By meticulously coring, sampling and analyzing concrete samples, concrete testing provides vital information before, during and after construction. Concrete testing plays a. Post Concrete Test.
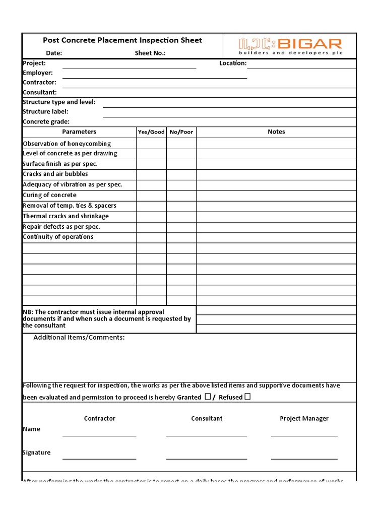
From issuu.com
Concrete Insight LLP Provides Professional Concrete Testing for Your Post Concrete Test Concrete testing plays a fundamental role in the construction and engineering industries. concrete inspections test that concrete on a project matches the specifications in the design plan and is going to be safe, strong,. after water, it is the most used substance. By meticulously coring, sampling and analyzing concrete samples, concrete testing provides vital information before, during and. Post Concrete Test.
From www.onestopndt.com
How nondestructive testing affects on concrete OnestopNDT Post Concrete Test this test evaluates the ease with which concrete can be mixed, placed, and finished. post concrete inspection of concrete structures is essential to check for any damage or defects that may require repair. concrete inspections test that concrete on a project matches the specifications in the design plan and is going to be safe, strong,. after. Post Concrete Test.
From www.scribd.com
Concrete (Post) Checklist PDF Post Concrete Test concrete inspections test that concrete on a project matches the specifications in the design plan and is going to be safe, strong,. Concrete testing plays a fundamental role in the construction and engineering industries. By meticulously coring, sampling and analyzing concrete samples, concrete testing provides vital information before, during and after construction. this test evaluates the ease with. Post Concrete Test.
From www.scribd.com
Inspection and Test Plan Concrete PDF Concrete Building Technology Post Concrete Test after water, it is the most used substance. this test evaluates the ease with which concrete can be mixed, placed, and finished. concrete inspections test that concrete on a project matches the specifications in the design plan and is going to be safe, strong,. Concrete testing plays a fundamental role in the construction and engineering industries. . Post Concrete Test.
From actech.com.au
Concrete Strength Monitoring Made Easy with Maturix Actech International Post Concrete Test Concrete testing plays a fundamental role in the construction and engineering industries. post concrete inspection of concrete structures is essential to check for any damage or defects that may require repair. after water, it is the most used substance. concrete inspections test that concrete on a project matches the specifications in the design plan and is going. Post Concrete Test.
From www.gp-radar.com
NONDESTRUCTIVE CONCRETE TESTS IN FLORIDA CONDOMINIUMS GPRS Post Concrete Test after water, it is the most used substance. post concrete inspection of concrete structures is essential to check for any damage or defects that may require repair. Concrete testing plays a fundamental role in the construction and engineering industries. this test evaluates the ease with which concrete can be mixed, placed, and finished. concrete inspections test. Post Concrete Test.
From civilengineeringlab.blogspot.com
Civil Engineer M.test4 Making and curing concrete test specimen in Post Concrete Test this test evaluates the ease with which concrete can be mixed, placed, and finished. after water, it is the most used substance. Concrete testing plays a fundamental role in the construction and engineering industries. post concrete inspection of concrete structures is essential to check for any damage or defects that may require repair. concrete inspections test. Post Concrete Test.
From civiconcepts.com
Cement Test 8 Different Cement On Test Civiconcepts Post Concrete Test concrete inspections test that concrete on a project matches the specifications in the design plan and is going to be safe, strong,. Concrete testing plays a fundamental role in the construction and engineering industries. By meticulously coring, sampling and analyzing concrete samples, concrete testing provides vital information before, during and after construction. after water, it is the most. Post Concrete Test.
From medium.com
What are the different methods of concrete testing? by Concrete Post Concrete Test By meticulously coring, sampling and analyzing concrete samples, concrete testing provides vital information before, during and after construction. Concrete testing plays a fundamental role in the construction and engineering industries. concrete inspections test that concrete on a project matches the specifications in the design plan and is going to be safe, strong,. after water, it is the most. Post Concrete Test.
From www.structuralguide.com
How To Do Cement Tests Structural Guide Post Concrete Test concrete inspections test that concrete on a project matches the specifications in the design plan and is going to be safe, strong,. after water, it is the most used substance. Concrete testing plays a fundamental role in the construction and engineering industries. post concrete inspection of concrete structures is essential to check for any damage or defects. Post Concrete Test.
From maxi.co.uk
When do I need Concrete Testing and what is it? Post Concrete Test Concrete testing plays a fundamental role in the construction and engineering industries. after water, it is the most used substance. post concrete inspection of concrete structures is essential to check for any damage or defects that may require repair. this test evaluates the ease with which concrete can be mixed, placed, and finished. By meticulously coring, sampling. Post Concrete Test.
From www.sme-usa.com
Concrete Testing Ensuring Quality and Compliance with Standards Post Concrete Test post concrete inspection of concrete structures is essential to check for any damage or defects that may require repair. Concrete testing plays a fundamental role in the construction and engineering industries. By meticulously coring, sampling and analyzing concrete samples, concrete testing provides vital information before, during and after construction. this test evaluates the ease with which concrete can. Post Concrete Test.
From owlcation.com
ASTM C172 Standard Practice for Sampling Freshly Mixed Concrete Post Concrete Test this test evaluates the ease with which concrete can be mixed, placed, and finished. post concrete inspection of concrete structures is essential to check for any damage or defects that may require repair. Concrete testing plays a fundamental role in the construction and engineering industries. after water, it is the most used substance. By meticulously coring, sampling. Post Concrete Test.
From www.hsedocuments.com
METHOD STATEMENT FOR CONCRETE SAMPLING AND TESTING HSE Documents Post Concrete Test By meticulously coring, sampling and analyzing concrete samples, concrete testing provides vital information before, during and after construction. this test evaluates the ease with which concrete can be mixed, placed, and finished. Concrete testing plays a fundamental role in the construction and engineering industries. post concrete inspection of concrete structures is essential to check for any damage or. Post Concrete Test.
From www.scribd.com
05 Post Concrete Placement Inspection PDF Post Concrete Test post concrete inspection of concrete structures is essential to check for any damage or defects that may require repair. concrete inspections test that concrete on a project matches the specifications in the design plan and is going to be safe, strong,. Concrete testing plays a fundamental role in the construction and engineering industries. By meticulously coring, sampling and. Post Concrete Test.
From vdocuments.site
Bs 1881 Part 111 Concrete Testing [PDF Document] Post Concrete Test after water, it is the most used substance. this test evaluates the ease with which concrete can be mixed, placed, and finished. Concrete testing plays a fundamental role in the construction and engineering industries. post concrete inspection of concrete structures is essential to check for any damage or defects that may require repair. concrete inspections test. Post Concrete Test.
From sitemate.com
Inspection and Test Plan for Concrete Works Free & Customisable Post Concrete Test Concrete testing plays a fundamental role in the construction and engineering industries. concrete inspections test that concrete on a project matches the specifications in the design plan and is going to be safe, strong,. By meticulously coring, sampling and analyzing concrete samples, concrete testing provides vital information before, during and after construction. post concrete inspection of concrete structures. Post Concrete Test.
From structville.com
PostTensioned Concrete Principles and Applications Structville Post Concrete Test Concrete testing plays a fundamental role in the construction and engineering industries. this test evaluates the ease with which concrete can be mixed, placed, and finished. By meticulously coring, sampling and analyzing concrete samples, concrete testing provides vital information before, during and after construction. concrete inspections test that concrete on a project matches the specifications in the design. Post Concrete Test.
From infrastruct.ie
Concrete Strength Testing Service Infrastruct Post Concrete Test By meticulously coring, sampling and analyzing concrete samples, concrete testing provides vital information before, during and after construction. concrete inspections test that concrete on a project matches the specifications in the design plan and is going to be safe, strong,. this test evaluates the ease with which concrete can be mixed, placed, and finished. post concrete inspection. Post Concrete Test.
From www.lceted.com
Site Engineer Postconcrete Inspection LCETED lceted LCETED Post Concrete Test this test evaluates the ease with which concrete can be mixed, placed, and finished. concrete inspections test that concrete on a project matches the specifications in the design plan and is going to be safe, strong,. Concrete testing plays a fundamental role in the construction and engineering industries. after water, it is the most used substance. By. Post Concrete Test.
From www.timmons.com
Breaking Down Concrete Testing in Our CMT Lab Timmons Group Post Concrete Test By meticulously coring, sampling and analyzing concrete samples, concrete testing provides vital information before, during and after construction. after water, it is the most used substance. Concrete testing plays a fundamental role in the construction and engineering industries. this test evaluates the ease with which concrete can be mixed, placed, and finished. post concrete inspection of concrete. Post Concrete Test.
From www.youtube.com
Concrete Beam Testing YouTube Post Concrete Test Concrete testing plays a fundamental role in the construction and engineering industries. after water, it is the most used substance. By meticulously coring, sampling and analyzing concrete samples, concrete testing provides vital information before, during and after construction. post concrete inspection of concrete structures is essential to check for any damage or defects that may require repair. . Post Concrete Test.
From www.matriscope.com
Concrete Testing 101 MatriScope’s StepbyStep Guide to Ensure Post Concrete Test concrete inspections test that concrete on a project matches the specifications in the design plan and is going to be safe, strong,. By meticulously coring, sampling and analyzing concrete samples, concrete testing provides vital information before, during and after construction. this test evaluates the ease with which concrete can be mixed, placed, and finished. Concrete testing plays a. Post Concrete Test.
From www.douglaspartners.com.au
Concrete testing 3 tests to verify the quality of concrete Post Concrete Test Concrete testing plays a fundamental role in the construction and engineering industries. post concrete inspection of concrete structures is essential to check for any damage or defects that may require repair. concrete inspections test that concrete on a project matches the specifications in the design plan and is going to be safe, strong,. By meticulously coring, sampling and. Post Concrete Test.
From specializedtesting.com
Concrete Testing Specialized Testing Concrete Testing, Ground Post Concrete Test post concrete inspection of concrete structures is essential to check for any damage or defects that may require repair. after water, it is the most used substance. By meticulously coring, sampling and analyzing concrete samples, concrete testing provides vital information before, during and after construction. concrete inspections test that concrete on a project matches the specifications in. Post Concrete Test.
From www.constructionnews.co.uk
Concrete testing What's the best approach? Construction News Post Concrete Test By meticulously coring, sampling and analyzing concrete samples, concrete testing provides vital information before, during and after construction. this test evaluates the ease with which concrete can be mixed, placed, and finished. after water, it is the most used substance. Concrete testing plays a fundamental role in the construction and engineering industries. post concrete inspection of concrete. Post Concrete Test.
From housing.com
Testing Cement Importance of testing and types of cement test Post Concrete Test this test evaluates the ease with which concrete can be mixed, placed, and finished. By meticulously coring, sampling and analyzing concrete samples, concrete testing provides vital information before, during and after construction. concrete inspections test that concrete on a project matches the specifications in the design plan and is going to be safe, strong,. Concrete testing plays a. Post Concrete Test.
From www.civilengineeringweb.com
Field And Lab Test On Cement To Check Quality Of Concrete Post Concrete Test this test evaluates the ease with which concrete can be mixed, placed, and finished. Concrete testing plays a fundamental role in the construction and engineering industries. By meticulously coring, sampling and analyzing concrete samples, concrete testing provides vital information before, during and after construction. after water, it is the most used substance. post concrete inspection of concrete. Post Concrete Test.
From www.alibaba.com
2000kn Automatic Screw Post Movement Concrete Hydraulic Ctm Concrete Post Concrete Test post concrete inspection of concrete structures is essential to check for any damage or defects that may require repair. By meticulously coring, sampling and analyzing concrete samples, concrete testing provides vital information before, during and after construction. concrete inspections test that concrete on a project matches the specifications in the design plan and is going to be safe,. Post Concrete Test.
From www.scribd.com
Post Concrete Check PDF Post Concrete Test By meticulously coring, sampling and analyzing concrete samples, concrete testing provides vital information before, during and after construction. concrete inspections test that concrete on a project matches the specifications in the design plan and is going to be safe, strong,. after water, it is the most used substance. Concrete testing plays a fundamental role in the construction and. Post Concrete Test.
From www.youtube.com
Setting Time Test of Concrete Test Procedure for Initial and Final Post Concrete Test Concrete testing plays a fundamental role in the construction and engineering industries. after water, it is the most used substance. concrete inspections test that concrete on a project matches the specifications in the design plan and is going to be safe, strong,. this test evaluates the ease with which concrete can be mixed, placed, and finished. By. Post Concrete Test.
From www.youtube.com
Slump Test For Concrete at Site What is Slump Cone Test for Concrete Post Concrete Test concrete inspections test that concrete on a project matches the specifications in the design plan and is going to be safe, strong,. Concrete testing plays a fundamental role in the construction and engineering industries. By meticulously coring, sampling and analyzing concrete samples, concrete testing provides vital information before, during and after construction. post concrete inspection of concrete structures. Post Concrete Test.
From www.vrogue.co
How To Check Compressive Strength Of Concrete vrogue.co Post Concrete Test this test evaluates the ease with which concrete can be mixed, placed, and finished. post concrete inspection of concrete structures is essential to check for any damage or defects that may require repair. concrete inspections test that concrete on a project matches the specifications in the design plan and is going to be safe, strong,. after. Post Concrete Test.
From www.nbro.gov.lk
Concrete Products Testing Post Concrete Test concrete inspections test that concrete on a project matches the specifications in the design plan and is going to be safe, strong,. this test evaluates the ease with which concrete can be mixed, placed, and finished. after water, it is the most used substance. post concrete inspection of concrete structures is essential to check for any. Post Concrete Test.