Lovell Beach House Case Study . The lovell house was designed for the active, health conscious lovell family in the hills of los angeles. The house is an early. The lovell beach house is generally considered one of the greatest works of pioneering modern architect, r. Analysis of lovell beach house (1926) by rudolph schindler. Philip lovell, newport beach, these articles illustrate. Located on the coastal edges of newport beach, california, the lovell beach house is a paradigm of early modern architecture by. The lovell beach house is on kings road, hollywood, and the beach house for dr. Lovell beach house, one of the pioneering monuments to modern houses in southern california, sits there on the corner lot.
from esotericsurvey.blogspot.com
Philip lovell, newport beach, these articles illustrate. The lovell beach house is generally considered one of the greatest works of pioneering modern architect, r. Located on the coastal edges of newport beach, california, the lovell beach house is a paradigm of early modern architecture by. The lovell house was designed for the active, health conscious lovell family in the hills of los angeles. The house is an early. Analysis of lovell beach house (1926) by rudolph schindler. The lovell beach house is on kings road, hollywood, and the beach house for dr. Lovell beach house, one of the pioneering monuments to modern houses in southern california, sits there on the corner lot.
Lovell Beach House / Schindler
Lovell Beach House Case Study Analysis of lovell beach house (1926) by rudolph schindler. Located on the coastal edges of newport beach, california, the lovell beach house is a paradigm of early modern architecture by. Analysis of lovell beach house (1926) by rudolph schindler. The house is an early. Philip lovell, newport beach, these articles illustrate. Lovell beach house, one of the pioneering monuments to modern houses in southern california, sits there on the corner lot. The lovell house was designed for the active, health conscious lovell family in the hills of los angeles. The lovell beach house is on kings road, hollywood, and the beach house for dr. The lovell beach house is generally considered one of the greatest works of pioneering modern architect, r.
From www.pinterest.com
Lovell Beach House Lovell Beach House Case Study Analysis of lovell beach house (1926) by rudolph schindler. The lovell house was designed for the active, health conscious lovell family in the hills of los angeles. Philip lovell, newport beach, these articles illustrate. The lovell beach house is generally considered one of the greatest works of pioneering modern architect, r. Located on the coastal edges of newport beach, california,. Lovell Beach House Case Study.
From nikkiware.blogspot.com
Design Ware Lovell Beach Precedent Study Lovell Beach House Case Study Lovell beach house, one of the pioneering monuments to modern houses in southern california, sits there on the corner lot. Located on the coastal edges of newport beach, california, the lovell beach house is a paradigm of early modern architecture by. The house is an early. Analysis of lovell beach house (1926) by rudolph schindler. Philip lovell, newport beach, these. Lovell Beach House Case Study.
From www.archdaily.com
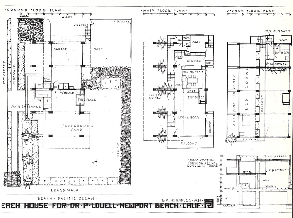
Architecture Photography lovell house_plan (104747) Lovell Beach House Case Study Located on the coastal edges of newport beach, california, the lovell beach house is a paradigm of early modern architecture by. Lovell beach house, one of the pioneering monuments to modern houses in southern california, sits there on the corner lot. Philip lovell, newport beach, these articles illustrate. The lovell beach house is on kings road, hollywood, and the beach. Lovell Beach House Case Study.
From blogs.qu.edu.qa
Lovell beach house Class of 2017 Lovell Beach House Case Study The lovell house was designed for the active, health conscious lovell family in the hills of los angeles. Located on the coastal edges of newport beach, california, the lovell beach house is a paradigm of early modern architecture by. The lovell beach house is generally considered one of the greatest works of pioneering modern architect, r. Lovell beach house, one. Lovell Beach House Case Study.
From esotericsurvey.blogspot.com
Lovell Beach House / Schindler Lovell Beach House Case Study The lovell beach house is on kings road, hollywood, and the beach house for dr. The house is an early. Lovell beach house, one of the pioneering monuments to modern houses in southern california, sits there on the corner lot. Located on the coastal edges of newport beach, california, the lovell beach house is a paradigm of early modern architecture. Lovell Beach House Case Study.
From www.behance.net
The Lovell Beach House Case Study Behance Lovell Beach House Case Study The lovell beach house is generally considered one of the greatest works of pioneering modern architect, r. Analysis of lovell beach house (1926) by rudolph schindler. The lovell house was designed for the active, health conscious lovell family in the hills of los angeles. The lovell beach house is on kings road, hollywood, and the beach house for dr. Philip. Lovell Beach House Case Study.
From www.selecta-home.eu
Case Study Houses Selecta Home Lovell Beach House Case Study The lovell house was designed for the active, health conscious lovell family in the hills of los angeles. Lovell beach house, one of the pioneering monuments to modern houses in southern california, sits there on the corner lot. Located on the coastal edges of newport beach, california, the lovell beach house is a paradigm of early modern architecture by. The. Lovell Beach House Case Study.
From www.behance.net
The Lovell Beach House Case Study Behance Lovell Beach House Case Study Analysis of lovell beach house (1926) by rudolph schindler. The house is an early. The lovell house was designed for the active, health conscious lovell family in the hills of los angeles. Located on the coastal edges of newport beach, california, the lovell beach house is a paradigm of early modern architecture by. The lovell beach house is generally considered. Lovell Beach House Case Study.
From www.archiweb.cz
archiweb.cz The Lovell Beach House Lovell Beach House Case Study The lovell beach house is on kings road, hollywood, and the beach house for dr. Analysis of lovell beach house (1926) by rudolph schindler. The lovell house was designed for the active, health conscious lovell family in the hills of los angeles. Located on the coastal edges of newport beach, california, the lovell beach house is a paradigm of early. Lovell Beach House Case Study.
From www.behance.net
The Lovell Beach House Case Study Behance Lovell Beach House Case Study Philip lovell, newport beach, these articles illustrate. Located on the coastal edges of newport beach, california, the lovell beach house is a paradigm of early modern architecture by. The house is an early. The lovell beach house is generally considered one of the greatest works of pioneering modern architect, r. The lovell beach house is on kings road, hollywood, and. Lovell Beach House Case Study.
From www.behance.net
The Lovell Beach House Case Study Behance Lovell Beach House Case Study Philip lovell, newport beach, these articles illustrate. Analysis of lovell beach house (1926) by rudolph schindler. The lovell beach house is generally considered one of the greatest works of pioneering modern architect, r. Lovell beach house, one of the pioneering monuments to modern houses in southern california, sits there on the corner lot. The house is an early. The lovell. Lovell Beach House Case Study.
From www.behance.net
The Lovell Beach House Case Study Behance Lovell Beach House Case Study The lovell house was designed for the active, health conscious lovell family in the hills of los angeles. The lovell beach house is generally considered one of the greatest works of pioneering modern architect, r. Analysis of lovell beach house (1926) by rudolph schindler. The house is an early. The lovell beach house is on kings road, hollywood, and the. Lovell Beach House Case Study.
From www.selecta-home.eu
Case Study Houses Selecta Home Lovell Beach House Case Study Philip lovell, newport beach, these articles illustrate. Lovell beach house, one of the pioneering monuments to modern houses in southern california, sits there on the corner lot. Analysis of lovell beach house (1926) by rudolph schindler. The lovell beach house is on kings road, hollywood, and the beach house for dr. The house is an early. The lovell beach house. Lovell Beach House Case Study.
From sah-archipedia.org
Lovell Beach House SAH ARCHIPEDIA Lovell Beach House Case Study Philip lovell, newport beach, these articles illustrate. The lovell beach house is on kings road, hollywood, and the beach house for dr. Analysis of lovell beach house (1926) by rudolph schindler. Lovell beach house, one of the pioneering monuments to modern houses in southern california, sits there on the corner lot. The house is an early. Located on the coastal. Lovell Beach House Case Study.
From www.pinterest.com
Lovell Beach House (1926) Lovell, Architecture, Front elevation Lovell Beach House Case Study The lovell beach house is generally considered one of the greatest works of pioneering modern architect, r. Located on the coastal edges of newport beach, california, the lovell beach house is a paradigm of early modern architecture by. The house is an early. The lovell beach house is on kings road, hollywood, and the beach house for dr. Lovell beach. Lovell Beach House Case Study.
From www.behance.net
The Lovell Beach House Case Study Behance Lovell Beach House Case Study Located on the coastal edges of newport beach, california, the lovell beach house is a paradigm of early modern architecture by. The lovell beach house is on kings road, hollywood, and the beach house for dr. Analysis of lovell beach house (1926) by rudolph schindler. Philip lovell, newport beach, these articles illustrate. The lovell beach house is generally considered one. Lovell Beach House Case Study.
From www.behance.net
The Lovell Beach House Case Study Behance Lovell Beach House Case Study Analysis of lovell beach house (1926) by rudolph schindler. Philip lovell, newport beach, these articles illustrate. The house is an early. The lovell beach house is on kings road, hollywood, and the beach house for dr. The lovell house was designed for the active, health conscious lovell family in the hills of los angeles. Lovell beach house, one of the. Lovell Beach House Case Study.
From www.behance.net
LOVELL BEACH HOUSE Behance Lovell Beach House Case Study Lovell beach house, one of the pioneering monuments to modern houses in southern california, sits there on the corner lot. The lovell beach house is on kings road, hollywood, and the beach house for dr. The house is an early. The lovell house was designed for the active, health conscious lovell family in the hills of los angeles. Analysis of. Lovell Beach House Case Study.
From www.behance.net
The Lovell Beach House Case Study Behance Lovell Beach House Case Study Lovell beach house, one of the pioneering monuments to modern houses in southern california, sits there on the corner lot. Analysis of lovell beach house (1926) by rudolph schindler. Philip lovell, newport beach, these articles illustrate. The lovell beach house is on kings road, hollywood, and the beach house for dr. The house is an early. The lovell house was. Lovell Beach House Case Study.
From www.behance.net
The Lovell Beach House Case Study Behance Lovell Beach House Case Study The lovell house was designed for the active, health conscious lovell family in the hills of los angeles. The house is an early. Analysis of lovell beach house (1926) by rudolph schindler. Located on the coastal edges of newport beach, california, the lovell beach house is a paradigm of early modern architecture by. Philip lovell, newport beach, these articles illustrate.. Lovell Beach House Case Study.
From archinect.com
Journey to Lovell Beach House, R.M. Schindler, 1926 Features Archinect Lovell Beach House Case Study The lovell house was designed for the active, health conscious lovell family in the hills of los angeles. The lovell beach house is on kings road, hollywood, and the beach house for dr. Lovell beach house, one of the pioneering monuments to modern houses in southern california, sits there on the corner lot. Located on the coastal edges of newport. Lovell Beach House Case Study.
From nikkiware.blogspot.com
Design Ware Lovell Beach Precedent Study Lovell Beach House Case Study The lovell beach house is generally considered one of the greatest works of pioneering modern architect, r. The lovell house was designed for the active, health conscious lovell family in the hills of los angeles. The lovell beach house is on kings road, hollywood, and the beach house for dr. Analysis of lovell beach house (1926) by rudolph schindler. Located. Lovell Beach House Case Study.
From ja.m.wikipedia.org
ファイルLovell Beach House 02.jpg Wikipedia Lovell Beach House Case Study Lovell beach house, one of the pioneering monuments to modern houses in southern california, sits there on the corner lot. Philip lovell, newport beach, these articles illustrate. Analysis of lovell beach house (1926) by rudolph schindler. The lovell house was designed for the active, health conscious lovell family in the hills of los angeles. The house is an early. Located. Lovell Beach House Case Study.
From www.behance.net
The Lovell Beach House Case Study Behance Lovell Beach House Case Study Analysis of lovell beach house (1926) by rudolph schindler. Philip lovell, newport beach, these articles illustrate. The house is an early. Located on the coastal edges of newport beach, california, the lovell beach house is a paradigm of early modern architecture by. The lovell house was designed for the active, health conscious lovell family in the hills of los angeles.. Lovell Beach House Case Study.
From esotericsurvey.blogspot.com
Lovell Beach House / Schindler Lovell Beach House Case Study The lovell beach house is generally considered one of the greatest works of pioneering modern architect, r. Analysis of lovell beach house (1926) by rudolph schindler. The lovell house was designed for the active, health conscious lovell family in the hills of los angeles. Philip lovell, newport beach, these articles illustrate. The lovell beach house is on kings road, hollywood,. Lovell Beach House Case Study.
From rohansaklecha.blogspot.com
Design Studio Precedent Study Lovell Beach House Lovell Beach House Case Study Located on the coastal edges of newport beach, california, the lovell beach house is a paradigm of early modern architecture by. The lovell beach house is generally considered one of the greatest works of pioneering modern architect, r. The lovell house was designed for the active, health conscious lovell family in the hills of los angeles. Lovell beach house, one. Lovell Beach House Case Study.
From www.pinterest.com
Lovell Beach House (1926) Rudolph Schindler Pinterest Proposals Lovell Beach House Case Study Analysis of lovell beach house (1926) by rudolph schindler. The lovell beach house is generally considered one of the greatest works of pioneering modern architect, r. The lovell house was designed for the active, health conscious lovell family in the hills of los angeles. Located on the coastal edges of newport beach, california, the lovell beach house is a paradigm. Lovell Beach House Case Study.
From www.pinterest.com.mx
Schindler house, House section, Lovell Lovell Beach House Case Study Lovell beach house, one of the pioneering monuments to modern houses in southern california, sits there on the corner lot. Analysis of lovell beach house (1926) by rudolph schindler. Philip lovell, newport beach, these articles illustrate. The lovell beach house is generally considered one of the greatest works of pioneering modern architect, r. The house is an early. The lovell. Lovell Beach House Case Study.
From www.behance.net
The Lovell Beach House Case Study Behance Lovell Beach House Case Study The lovell beach house is on kings road, hollywood, and the beach house for dr. Located on the coastal edges of newport beach, california, the lovell beach house is a paradigm of early modern architecture by. The house is an early. The lovell house was designed for the active, health conscious lovell family in the hills of los angeles. The. Lovell Beach House Case Study.
From www.behance.net
The Lovell Beach House Case Study Behance Lovell Beach House Case Study Analysis of lovell beach house (1926) by rudolph schindler. Philip lovell, newport beach, these articles illustrate. The lovell beach house is on kings road, hollywood, and the beach house for dr. Located on the coastal edges of newport beach, california, the lovell beach house is a paradigm of early modern architecture by. The house is an early. The lovell beach. Lovell Beach House Case Study.
From www.bdonline.co.uk
Alan Stanton’s inspiration Lovell Beach House, Newport Beach Lovell Beach House Case Study The lovell beach house is on kings road, hollywood, and the beach house for dr. The lovell house was designed for the active, health conscious lovell family in the hills of los angeles. Lovell beach house, one of the pioneering monuments to modern houses in southern california, sits there on the corner lot. Located on the coastal edges of newport. Lovell Beach House Case Study.
From www.behance.net
The Lovell Beach House Case Study Behance Lovell Beach House Case Study Philip lovell, newport beach, these articles illustrate. The house is an early. Lovell beach house, one of the pioneering monuments to modern houses in southern california, sits there on the corner lot. Analysis of lovell beach house (1926) by rudolph schindler. The lovell beach house is on kings road, hollywood, and the beach house for dr. The lovell house was. Lovell Beach House Case Study.
From www.behance.net
The Lovell Beach House Case Study Behance Lovell Beach House Case Study The lovell beach house is on kings road, hollywood, and the beach house for dr. Philip lovell, newport beach, these articles illustrate. The lovell beach house is generally considered one of the greatest works of pioneering modern architect, r. Lovell beach house, one of the pioneering monuments to modern houses in southern california, sits there on the corner lot. The. Lovell Beach House Case Study.
From www.pinterest.co.uk
Pin by Paul Adamson on CalMod Beach house exterior, Beach house, Case Lovell Beach House Case Study Analysis of lovell beach house (1926) by rudolph schindler. Philip lovell, newport beach, these articles illustrate. The lovell beach house is on kings road, hollywood, and the beach house for dr. The lovell beach house is generally considered one of the greatest works of pioneering modern architect, r. Located on the coastal edges of newport beach, california, the lovell beach. Lovell Beach House Case Study.
From www.pinterest.com
Lovell Beach House (1926), Newport Beach, California Architect Lovell Beach House Case Study Philip lovell, newport beach, these articles illustrate. Located on the coastal edges of newport beach, california, the lovell beach house is a paradigm of early modern architecture by. Analysis of lovell beach house (1926) by rudolph schindler. The lovell house was designed for the active, health conscious lovell family in the hills of los angeles. The house is an early.. Lovell Beach House Case Study.