Does Concrete Require A Permit . The good news is that many concrete installations at or just above grade will not need a permit. Under the building code act, a building permit is required for the construction and/or demolition of a new building, an addition, or material alteration of. The information on when permits are necessary and how to obtain them is invaluable. However if you are pouring a concrete foundation and have more permanent roofing than just steel tubes with a poly covering, then yes it may need a permit. You may need a building permit for your home renovation project. On this page, you can find examples of when you need a permit and when. Again, talk to your local. If your design or location does not meet land use bylaw. In most situations your interior renovation or basement development will only require a building safety approval (building permit). This blog post does an excellent job of clarifying the regulations for homeowners in canada. Navigating the permit requirements for home improvements can be confusing, especially for those new to the process.
from civilgang.com
However if you are pouring a concrete foundation and have more permanent roofing than just steel tubes with a poly covering, then yes it may need a permit. Again, talk to your local. In most situations your interior renovation or basement development will only require a building safety approval (building permit). The information on when permits are necessary and how to obtain them is invaluable. This blog post does an excellent job of clarifying the regulations for homeowners in canada. The good news is that many concrete installations at or just above grade will not need a permit. You may need a building permit for your home renovation project. Navigating the permit requirements for home improvements can be confusing, especially for those new to the process. On this page, you can find examples of when you need a permit and when. If your design or location does not meet land use bylaw.
All About Sealing Concrete Does Concrete Need to Be Sealed Pros and
Does Concrete Require A Permit In most situations your interior renovation or basement development will only require a building safety approval (building permit). However if you are pouring a concrete foundation and have more permanent roofing than just steel tubes with a poly covering, then yes it may need a permit. Under the building code act, a building permit is required for the construction and/or demolition of a new building, an addition, or material alteration of. If your design or location does not meet land use bylaw. Navigating the permit requirements for home improvements can be confusing, especially for those new to the process. In most situations your interior renovation or basement development will only require a building safety approval (building permit). The information on when permits are necessary and how to obtain them is invaluable. On this page, you can find examples of when you need a permit and when. This blog post does an excellent job of clarifying the regulations for homeowners in canada. You may need a building permit for your home renovation project. The good news is that many concrete installations at or just above grade will not need a permit. Again, talk to your local.
From www.youtube.com
Understanding A Building Permit Application The Building Permit Does Concrete Require A Permit Under the building code act, a building permit is required for the construction and/or demolition of a new building, an addition, or material alteration of. The information on when permits are necessary and how to obtain them is invaluable. On this page, you can find examples of when you need a permit and when. This blog post does an excellent. Does Concrete Require A Permit.
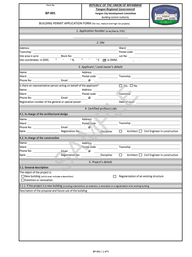
From www.scribd.com
Pouring Permit PDF Concrete Materials Does Concrete Require A Permit On this page, you can find examples of when you need a permit and when. Under the building code act, a building permit is required for the construction and/or demolition of a new building, an addition, or material alteration of. The good news is that many concrete installations at or just above grade will not need a permit. Navigating the. Does Concrete Require A Permit.
From viewfloor.co
Do I Need A Permit For Floor Installation Viewfloor.co Does Concrete Require A Permit The good news is that many concrete installations at or just above grade will not need a permit. The information on when permits are necessary and how to obtain them is invaluable. Under the building code act, a building permit is required for the construction and/or demolition of a new building, an addition, or material alteration of. However if you. Does Concrete Require A Permit.
From www.scribd.com
Concrete Pouring Permit PDF Does Concrete Require A Permit The good news is that many concrete installations at or just above grade will not need a permit. Again, talk to your local. Under the building code act, a building permit is required for the construction and/or demolition of a new building, an addition, or material alteration of. On this page, you can find examples of when you need a. Does Concrete Require A Permit.
From www.scribd.com
Concrete Pouring Permit Does Concrete Require A Permit Under the building code act, a building permit is required for the construction and/or demolition of a new building, an addition, or material alteration of. You may need a building permit for your home renovation project. In most situations your interior renovation or basement development will only require a building safety approval (building permit). If your design or location does. Does Concrete Require A Permit.
From civilgang.com
All About Sealing Concrete Does Concrete Need to Be Sealed Pros and Does Concrete Require A Permit In most situations your interior renovation or basement development will only require a building safety approval (building permit). The good news is that many concrete installations at or just above grade will not need a permit. This blog post does an excellent job of clarifying the regulations for homeowners in canada. Under the building code act, a building permit is. Does Concrete Require A Permit.
From www.scribd.com
Concrete Pouring Permit_CPPMDMF_RW Concrete Building Engineering Does Concrete Require A Permit Under the building code act, a building permit is required for the construction and/or demolition of a new building, an addition, or material alteration of. On this page, you can find examples of when you need a permit and when. The information on when permits are necessary and how to obtain them is invaluable. Again, talk to your local. In. Does Concrete Require A Permit.
From www.scribd.com
Concrete Pouring Permit Form PDF Concrete Structural Engineering Does Concrete Require A Permit This blog post does an excellent job of clarifying the regulations for homeowners in canada. On this page, you can find examples of when you need a permit and when. Navigating the permit requirements for home improvements can be confusing, especially for those new to the process. Again, talk to your local. The information on when permits are necessary and. Does Concrete Require A Permit.
From civilgang.com
All About Concrete Forms When to Remove Concrete Forms What Is Does Concrete Require A Permit If your design or location does not meet land use bylaw. You may need a building permit for your home renovation project. The information on when permits are necessary and how to obtain them is invaluable. Again, talk to your local. Under the building code act, a building permit is required for the construction and/or demolition of a new building,. Does Concrete Require A Permit.
From dxonpebhp.blob.core.windows.net
Do I Need Permit For Concrete Patio at Verna Rogers blog Does Concrete Require A Permit If your design or location does not meet land use bylaw. On this page, you can find examples of when you need a permit and when. The good news is that many concrete installations at or just above grade will not need a permit. This blog post does an excellent job of clarifying the regulations for homeowners in canada. Under. Does Concrete Require A Permit.
From www.youtube.com
Do I Need A Permit For My Concrete Driveway? YouTube Does Concrete Require A Permit The information on when permits are necessary and how to obtain them is invaluable. This blog post does an excellent job of clarifying the regulations for homeowners in canada. However if you are pouring a concrete foundation and have more permanent roofing than just steel tubes with a poly covering, then yes it may need a permit. In most situations. Does Concrete Require A Permit.
From www.files.construction
Work Permit Concrete Pumping Construction Documents And Templates Does Concrete Require A Permit Again, talk to your local. In most situations your interior renovation or basement development will only require a building safety approval (building permit). The good news is that many concrete installations at or just above grade will not need a permit. This blog post does an excellent job of clarifying the regulations for homeowners in canada. On this page, you. Does Concrete Require A Permit.
From civilgang.com
All About Sealing Concrete Does Concrete Need to Be Sealed Pros and Does Concrete Require A Permit This blog post does an excellent job of clarifying the regulations for homeowners in canada. In most situations your interior renovation or basement development will only require a building safety approval (building permit). However if you are pouring a concrete foundation and have more permanent roofing than just steel tubes with a poly covering, then yes it may need a. Does Concrete Require A Permit.
From civilgang.com
All About Sealing Concrete Does Concrete Need to Be Sealed Pros and Does Concrete Require A Permit Navigating the permit requirements for home improvements can be confusing, especially for those new to the process. You may need a building permit for your home renovation project. In most situations your interior renovation or basement development will only require a building safety approval (building permit). On this page, you can find examples of when you need a permit and. Does Concrete Require A Permit.
From klaqgeyfv.blob.core.windows.net
Does A Concrete Slab Need A Permit at Alison Hill blog Does Concrete Require A Permit This blog post does an excellent job of clarifying the regulations for homeowners in canada. The good news is that many concrete installations at or just above grade will not need a permit. On this page, you can find examples of when you need a permit and when. However if you are pouring a concrete foundation and have more permanent. Does Concrete Require A Permit.
From www.cintronbeveragegroup.com
Do You Need A Permit To Work On Mobile Home Does Concrete Require A Permit The information on when permits are necessary and how to obtain them is invaluable. If your design or location does not meet land use bylaw. In most situations your interior renovation or basement development will only require a building safety approval (building permit). However if you are pouring a concrete foundation and have more permanent roofing than just steel tubes. Does Concrete Require A Permit.
From gambrick.com
Does Concrete Need To Be Sealed? Pros And Cons. Does Concrete Require A Permit In most situations your interior renovation or basement development will only require a building safety approval (building permit). However if you are pouring a concrete foundation and have more permanent roofing than just steel tubes with a poly covering, then yes it may need a permit. The good news is that many concrete installations at or just above grade will. Does Concrete Require A Permit.
From www.algonquin.org
Algonquin, IL / Document Center / Driveway Permit Application Checklist Does Concrete Require A Permit The good news is that many concrete installations at or just above grade will not need a permit. You may need a building permit for your home renovation project. The information on when permits are necessary and how to obtain them is invaluable. Again, talk to your local. However if you are pouring a concrete foundation and have more permanent. Does Concrete Require A Permit.
From www.scribd.com
Building Permit PDF Concrete Masonry Does Concrete Require A Permit The good news is that many concrete installations at or just above grade will not need a permit. This blog post does an excellent job of clarifying the regulations for homeowners in canada. The information on when permits are necessary and how to obtain them is invaluable. On this page, you can find examples of when you need a permit. Does Concrete Require A Permit.
From civilgang.com
All About Sealing Concrete Does Concrete Need to Be Sealed Pros and Does Concrete Require A Permit Under the building code act, a building permit is required for the construction and/or demolition of a new building, an addition, or material alteration of. This blog post does an excellent job of clarifying the regulations for homeowners in canada. The good news is that many concrete installations at or just above grade will not need a permit. Navigating the. Does Concrete Require A Permit.
From www.bostonbuildingresources.com
Do I Need a Building Permit? — Boston Building Resources Does Concrete Require A Permit You may need a building permit for your home renovation project. However if you are pouring a concrete foundation and have more permanent roofing than just steel tubes with a poly covering, then yes it may need a permit. Under the building code act, a building permit is required for the construction and/or demolition of a new building, an addition,. Does Concrete Require A Permit.
From civilgang.com
All About Sealing Concrete Does Concrete Need to Be Sealed Pros and Does Concrete Require A Permit The information on when permits are necessary and how to obtain them is invaluable. On this page, you can find examples of when you need a permit and when. This blog post does an excellent job of clarifying the regulations for homeowners in canada. The good news is that many concrete installations at or just above grade will not need. Does Concrete Require A Permit.
From www.24hplans.com
Do I Need a Building Permit for My Home Improvement Project? Does Concrete Require A Permit If your design or location does not meet land use bylaw. The information on when permits are necessary and how to obtain them is invaluable. In most situations your interior renovation or basement development will only require a building safety approval (building permit). Again, talk to your local. The good news is that many concrete installations at or just above. Does Concrete Require A Permit.
From concretehoustonej.com
EJ & Jr Concrete Concrete Permits What Homeowners Need To Know Does Concrete Require A Permit The information on when permits are necessary and how to obtain them is invaluable. On this page, you can find examples of when you need a permit and when. Navigating the permit requirements for home improvements can be confusing, especially for those new to the process. Under the building code act, a building permit is required for the construction and/or. Does Concrete Require A Permit.
From www.backyardcaring.com
Do You Need A Permit To Pour Concrete In Your Backyard? (Find Out Does Concrete Require A Permit However if you are pouring a concrete foundation and have more permanent roofing than just steel tubes with a poly covering, then yes it may need a permit. The information on when permits are necessary and how to obtain them is invaluable. Again, talk to your local. Under the building code act, a building permit is required for the construction. Does Concrete Require A Permit.
From www.familyhandyman.com
Building Permits What You Need to Know The Family Handyman Does Concrete Require A Permit If your design or location does not meet land use bylaw. Again, talk to your local. The information on when permits are necessary and how to obtain them is invaluable. In most situations your interior renovation or basement development will only require a building safety approval (building permit). However if you are pouring a concrete foundation and have more permanent. Does Concrete Require A Permit.
From www.scribd.com
Specifications (Building Permit) PDF Concrete Reinforced Concrete Does Concrete Require A Permit In most situations your interior renovation or basement development will only require a building safety approval (building permit). Under the building code act, a building permit is required for the construction and/or demolition of a new building, an addition, or material alteration of. Navigating the permit requirements for home improvements can be confusing, especially for those new to the process.. Does Concrete Require A Permit.
From www.the-opendoor.net
Do I Need a Building Permit? Does Concrete Require A Permit Under the building code act, a building permit is required for the construction and/or demolition of a new building, an addition, or material alteration of. Navigating the permit requirements for home improvements can be confusing, especially for those new to the process. Again, talk to your local. On this page, you can find examples of when you need a permit. Does Concrete Require A Permit.
From civilgang.com
All About Sealing Concrete Does Concrete Need to Be Sealed Pros and Does Concrete Require A Permit Under the building code act, a building permit is required for the construction and/or demolition of a new building, an addition, or material alteration of. Again, talk to your local. The information on when permits are necessary and how to obtain them is invaluable. This blog post does an excellent job of clarifying the regulations for homeowners in canada. In. Does Concrete Require A Permit.
From www.ofallon.mo.us
Driveway Permits City of O'Fallon, Missouri Does Concrete Require A Permit The information on when permits are necessary and how to obtain them is invaluable. This blog post does an excellent job of clarifying the regulations for homeowners in canada. You may need a building permit for your home renovation project. Navigating the permit requirements for home improvements can be confusing, especially for those new to the process. Again, talk to. Does Concrete Require A Permit.
From www.thespruce.com
When Do You Need a Permit for Your Renovation Project? Does Concrete Require A Permit The good news is that many concrete installations at or just above grade will not need a permit. Again, talk to your local. If your design or location does not meet land use bylaw. The information on when permits are necessary and how to obtain them is invaluable. Under the building code act, a building permit is required for the. Does Concrete Require A Permit.
From www.files.construction
Work Permit Concrete Formwork Construction Documents And Templates Does Concrete Require A Permit Under the building code act, a building permit is required for the construction and/or demolition of a new building, an addition, or material alteration of. The information on when permits are necessary and how to obtain them is invaluable. Navigating the permit requirements for home improvements can be confusing, especially for those new to the process. However if you are. Does Concrete Require A Permit.
From constructionhow.com
Do I Need A Permit To Build A Concrete Patio Construction How Does Concrete Require A Permit You may need a building permit for your home renovation project. The information on when permits are necessary and how to obtain them is invaluable. Under the building code act, a building permit is required for the construction and/or demolition of a new building, an addition, or material alteration of. The good news is that many concrete installations at or. Does Concrete Require A Permit.
From www.angi.com
Maryland Concrete Projects May Require Permits Angi [Angie's List] Does Concrete Require A Permit Under the building code act, a building permit is required for the construction and/or demolition of a new building, an addition, or material alteration of. However if you are pouring a concrete foundation and have more permanent roofing than just steel tubes with a poly covering, then yes it may need a permit. Navigating the permit requirements for home improvements. Does Concrete Require A Permit.
From www1.nyc.gov
How to Obtain a Permit Does Concrete Require A Permit This blog post does an excellent job of clarifying the regulations for homeowners in canada. If your design or location does not meet land use bylaw. Navigating the permit requirements for home improvements can be confusing, especially for those new to the process. The information on when permits are necessary and how to obtain them is invaluable. Under the building. Does Concrete Require A Permit.