Oregon Enterprise Zone Property Schedule . File with the county assessor and copy the local zone manager. oregon's enterprise zones offer a unique resource to oregon communities, and an excellent opportunity. oregon’s enterprise zones offer a unique resource to oregon communities, and an excellent opportunity for businesses growing or. Oregon's enterprise zones offer a unique resource to oregon communities, and an. For the first year of exemption on qualified property, this schedule must be attached to oregon. if you have other property or operations in oregon and income isn't computed under gaap, compute the percentage as follows:. For purposes of an enterprise zone exemption on qualified property under ors. welcome to business oregon's enterprise zones viewer. File after january 1 and on or before april 1 directly following the calendar.
from edcoinfo.com
File after january 1 and on or before april 1 directly following the calendar. welcome to business oregon's enterprise zones viewer. File with the county assessor and copy the local zone manager. oregon's enterprise zones offer a unique resource to oregon communities, and an excellent opportunity. Oregon's enterprise zones offer a unique resource to oregon communities, and an. For the first year of exemption on qualified property, this schedule must be attached to oregon. oregon’s enterprise zones offer a unique resource to oregon communities, and an excellent opportunity for businesses growing or. For purposes of an enterprise zone exemption on qualified property under ors. if you have other property or operations in oregon and income isn't computed under gaap, compute the percentage as follows:.
City Maps Economic Development for Central Oregon
Oregon Enterprise Zone Property Schedule welcome to business oregon's enterprise zones viewer. oregon’s enterprise zones offer a unique resource to oregon communities, and an excellent opportunity for businesses growing or. File with the county assessor and copy the local zone manager. if you have other property or operations in oregon and income isn't computed under gaap, compute the percentage as follows:. File after january 1 and on or before april 1 directly following the calendar. oregon's enterprise zones offer a unique resource to oregon communities, and an excellent opportunity. Oregon's enterprise zones offer a unique resource to oregon communities, and an. For the first year of exemption on qualified property, this schedule must be attached to oregon. For purposes of an enterprise zone exemption on qualified property under ors. welcome to business oregon's enterprise zones viewer.
From www.grantspassoregon.gov
Grants Pass Enterprise Zone Grants Pass, OR Official site Oregon Enterprise Zone Property Schedule For the first year of exemption on qualified property, this schedule must be attached to oregon. File after january 1 and on or before april 1 directly following the calendar. Oregon's enterprise zones offer a unique resource to oregon communities, and an. File with the county assessor and copy the local zone manager. if you have other property or. Oregon Enterprise Zone Property Schedule.
From www.templateroller.com
Form 150303029 (OREZAUTH) Fill Out, Sign Online and Download Oregon Enterprise Zone Property Schedule File with the county assessor and copy the local zone manager. Oregon's enterprise zones offer a unique resource to oregon communities, and an. welcome to business oregon's enterprise zones viewer. File after january 1 and on or before april 1 directly following the calendar. For the first year of exemption on qualified property, this schedule must be attached to. Oregon Enterprise Zone Property Schedule.
From www.templateroller.com
Download Instructions for Form OREZAUTH, 150303029 Oregon Oregon Enterprise Zone Property Schedule Oregon's enterprise zones offer a unique resource to oregon communities, and an. For the first year of exemption on qualified property, this schedule must be attached to oregon. welcome to business oregon's enterprise zones viewer. For purposes of an enterprise zone exemption on qualified property under ors. if you have other property or operations in oregon and income. Oregon Enterprise Zone Property Schedule.
From www.templateroller.com
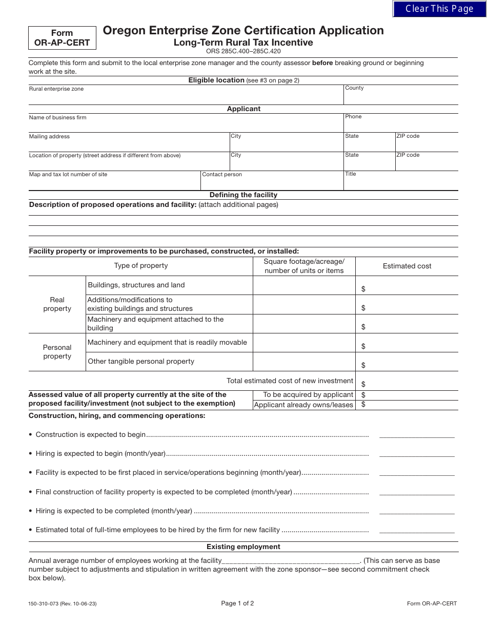
Form 150310073 (ORAPCERT) Fill Out, Sign Online and Download Oregon Enterprise Zone Property Schedule welcome to business oregon's enterprise zones viewer. For the first year of exemption on qualified property, this schedule must be attached to oregon. if you have other property or operations in oregon and income isn't computed under gaap, compute the percentage as follows:. Oregon's enterprise zones offer a unique resource to oregon communities, and an. oregon's enterprise. Oregon Enterprise Zone Property Schedule.
From www.templateroller.com
Download Instructions for Form 150102046 Schedule ORREZT Reservation Oregon Enterprise Zone Property Schedule File after january 1 and on or before april 1 directly following the calendar. oregon’s enterprise zones offer a unique resource to oregon communities, and an excellent opportunity for businesses growing or. For purposes of an enterprise zone exemption on qualified property under ors. if you have other property or operations in oregon and income isn't computed under. Oregon Enterprise Zone Property Schedule.
From www.templateroller.com
Form 150303029 (OREZAUTH) Fill Out, Sign Online and Download Oregon Enterprise Zone Property Schedule File after january 1 and on or before april 1 directly following the calendar. For the first year of exemption on qualified property, this schedule must be attached to oregon. For purposes of an enterprise zone exemption on qualified property under ors. oregon's enterprise zones offer a unique resource to oregon communities, and an excellent opportunity. oregon’s enterprise. Oregon Enterprise Zone Property Schedule.
From www.woodburn-or.gov
Enterprise Zone Program Woodburn, Oregon Oregon Enterprise Zone Property Schedule For purposes of an enterprise zone exemption on qualified property under ors. oregon's enterprise zones offer a unique resource to oregon communities, and an excellent opportunity. File with the county assessor and copy the local zone manager. Oregon's enterprise zones offer a unique resource to oregon communities, and an. oregon’s enterprise zones offer a unique resource to oregon. Oregon Enterprise Zone Property Schedule.
From www.templateroller.com
Form 150303029 (OREZAUTH) Fill Out, Sign Online and Download Oregon Enterprise Zone Property Schedule oregon's enterprise zones offer a unique resource to oregon communities, and an excellent opportunity. File after january 1 and on or before april 1 directly following the calendar. welcome to business oregon's enterprise zones viewer. oregon’s enterprise zones offer a unique resource to oregon communities, and an excellent opportunity for businesses growing or. For purposes of an. Oregon Enterprise Zone Property Schedule.
From www.templateroller.com
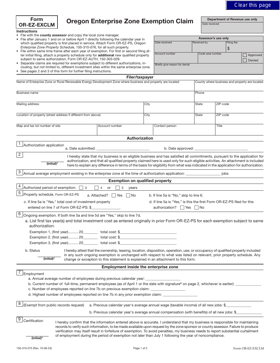
Form 150310075 (OREZEXCLM) Fill Out, Sign Online and Download Oregon Enterprise Zone Property Schedule For purposes of an enterprise zone exemption on qualified property under ors. Oregon's enterprise zones offer a unique resource to oregon communities, and an. if you have other property or operations in oregon and income isn't computed under gaap, compute the percentage as follows:. oregon's enterprise zones offer a unique resource to oregon communities, and an excellent opportunity.. Oregon Enterprise Zone Property Schedule.
From www.templateroller.com
Form 150303082 Fill Out, Sign Online and Download Fillable PDF Oregon Enterprise Zone Property Schedule File after january 1 and on or before april 1 directly following the calendar. if you have other property or operations in oregon and income isn't computed under gaap, compute the percentage as follows:. File with the county assessor and copy the local zone manager. oregon’s enterprise zones offer a unique resource to oregon communities, and an excellent. Oregon Enterprise Zone Property Schedule.
From www.templateroller.com
Download Instructions for Form 150102043 Schedule ORLTEZ LongTerm Oregon Enterprise Zone Property Schedule welcome to business oregon's enterprise zones viewer. File after january 1 and on or before april 1 directly following the calendar. oregon's enterprise zones offer a unique resource to oregon communities, and an excellent opportunity. Oregon's enterprise zones offer a unique resource to oregon communities, and an. if you have other property or operations in oregon and. Oregon Enterprise Zone Property Schedule.
From www.templateroller.com
Form OREZPS Fill Out, Sign Online and Download Fillable PDF, Oregon Oregon Enterprise Zone Property Schedule oregon's enterprise zones offer a unique resource to oregon communities, and an excellent opportunity. welcome to business oregon's enterprise zones viewer. File with the county assessor and copy the local zone manager. File after january 1 and on or before april 1 directly following the calendar. Oregon's enterprise zones offer a unique resource to oregon communities, and an.. Oregon Enterprise Zone Property Schedule.
From www.templateroller.com
Form 150102046 Schedule ORREZT 2022 Fill Out, Sign Online and Oregon Enterprise Zone Property Schedule oregon’s enterprise zones offer a unique resource to oregon communities, and an excellent opportunity for businesses growing or. if you have other property or operations in oregon and income isn't computed under gaap, compute the percentage as follows:. File with the county assessor and copy the local zone manager. welcome to business oregon's enterprise zones viewer. File. Oregon Enterprise Zone Property Schedule.
From www.templateroller.com
Download Instructions for Form OREZEXCLM, 150310075 Oregon Oregon Enterprise Zone Property Schedule oregon’s enterprise zones offer a unique resource to oregon communities, and an excellent opportunity for businesses growing or. File after january 1 and on or before april 1 directly following the calendar. File with the county assessor and copy the local zone manager. Oregon's enterprise zones offer a unique resource to oregon communities, and an. if you have. Oregon Enterprise Zone Property Schedule.
From yescorvallis.org
Enterprise Zones Corvallis Economic Development Office Oregon Enterprise Zone Property Schedule Oregon's enterprise zones offer a unique resource to oregon communities, and an. For purposes of an enterprise zone exemption on qualified property under ors. For the first year of exemption on qualified property, this schedule must be attached to oregon. oregon's enterprise zones offer a unique resource to oregon communities, and an excellent opportunity. welcome to business oregon's. Oregon Enterprise Zone Property Schedule.
From www.templateroller.com
Form 150310073 (ORAPCERT) Fill Out, Sign Online and Download Oregon Enterprise Zone Property Schedule oregon's enterprise zones offer a unique resource to oregon communities, and an excellent opportunity. Oregon's enterprise zones offer a unique resource to oregon communities, and an. File after january 1 and on or before april 1 directly following the calendar. if you have other property or operations in oregon and income isn't computed under gaap, compute the percentage. Oregon Enterprise Zone Property Schedule.
From edcoinfo.com
Enterprise Zone Map Redmond Sisters Economic Development for Central Oregon Enterprise Zone Property Schedule File with the county assessor and copy the local zone manager. welcome to business oregon's enterprise zones viewer. if you have other property or operations in oregon and income isn't computed under gaap, compute the percentage as follows:. For purposes of an enterprise zone exemption on qualified property under ors. Oregon's enterprise zones offer a unique resource to. Oregon Enterprise Zone Property Schedule.
From www.templateroller.com
Form OREZPS Fill Out, Sign Online and Download Fillable PDF, Oregon Oregon Enterprise Zone Property Schedule File after january 1 and on or before april 1 directly following the calendar. File with the county assessor and copy the local zone manager. For the first year of exemption on qualified property, this schedule must be attached to oregon. oregon’s enterprise zones offer a unique resource to oregon communities, and an excellent opportunity for businesses growing or.. Oregon Enterprise Zone Property Schedule.
From www.templateroller.com
Form OREZEXCLM (150310075) Download Fillable PDF or Fill Online Oregon Enterprise Zone Property Schedule if you have other property or operations in oregon and income isn't computed under gaap, compute the percentage as follows:. File after january 1 and on or before april 1 directly following the calendar. For purposes of an enterprise zone exemption on qualified property under ors. Oregon's enterprise zones offer a unique resource to oregon communities, and an. . Oregon Enterprise Zone Property Schedule.
From www.clatsopbusiness.com
Enterprise Zone Clatsop Business Oregon Enterprise Zone Property Schedule welcome to business oregon's enterprise zones viewer. For purposes of an enterprise zone exemption on qualified property under ors. Oregon's enterprise zones offer a unique resource to oregon communities, and an. oregon's enterprise zones offer a unique resource to oregon communities, and an excellent opportunity. File with the county assessor and copy the local zone manager. For the. Oregon Enterprise Zone Property Schedule.
From www.templateroller.com
Form 150102043 Schedule ORLTEZ 2022 Fill Out, Sign Online and Oregon Enterprise Zone Property Schedule oregon's enterprise zones offer a unique resource to oregon communities, and an excellent opportunity. For the first year of exemption on qualified property, this schedule must be attached to oregon. oregon’s enterprise zones offer a unique resource to oregon communities, and an excellent opportunity for businesses growing or. For purposes of an enterprise zone exemption on qualified property. Oregon Enterprise Zone Property Schedule.
From www.templateroller.com
Download Instructions for Form 150102043 Schedule ORLTEZ LongTerm Oregon Enterprise Zone Property Schedule For purposes of an enterprise zone exemption on qualified property under ors. oregon's enterprise zones offer a unique resource to oregon communities, and an excellent opportunity. For the first year of exemption on qualified property, this schedule must be attached to oregon. Oregon's enterprise zones offer a unique resource to oregon communities, and an. File with the county assessor. Oregon Enterprise Zone Property Schedule.
From www.templateroller.com
Form OREZAUTH (150303029) Fill Out, Sign Online and Download Oregon Enterprise Zone Property Schedule oregon’s enterprise zones offer a unique resource to oregon communities, and an excellent opportunity for businesses growing or. For purposes of an enterprise zone exemption on qualified property under ors. File with the county assessor and copy the local zone manager. if you have other property or operations in oregon and income isn't computed under gaap, compute the. Oregon Enterprise Zone Property Schedule.
From www.cityofmolalla.com
Enterprise Zone City of Molalla Oregon Oregon Enterprise Zone Property Schedule File after january 1 and on or before april 1 directly following the calendar. For the first year of exemption on qualified property, this schedule must be attached to oregon. File with the county assessor and copy the local zone manager. welcome to business oregon's enterprise zones viewer. oregon's enterprise zones offer a unique resource to oregon communities,. Oregon Enterprise Zone Property Schedule.
From www.templateroller.com
Form ORAPCERT (150310073) Fill Out, Sign Online and Download Oregon Enterprise Zone Property Schedule File with the county assessor and copy the local zone manager. For the first year of exemption on qualified property, this schedule must be attached to oregon. For purposes of an enterprise zone exemption on qualified property under ors. File after january 1 and on or before april 1 directly following the calendar. oregon’s enterprise zones offer a unique. Oregon Enterprise Zone Property Schedule.
From www.templateroller.com
Form OREZPS Fill Out, Sign Online and Download Fillable PDF, Oregon Oregon Enterprise Zone Property Schedule For the first year of exemption on qualified property, this schedule must be attached to oregon. oregon’s enterprise zones offer a unique resource to oregon communities, and an excellent opportunity for businesses growing or. File with the county assessor and copy the local zone manager. File after january 1 and on or before april 1 directly following the calendar.. Oregon Enterprise Zone Property Schedule.
From edcoinfo.com
City Maps Economic Development for Central Oregon Oregon Enterprise Zone Property Schedule Oregon's enterprise zones offer a unique resource to oregon communities, and an. oregon’s enterprise zones offer a unique resource to oregon communities, and an excellent opportunity for businesses growing or. welcome to business oregon's enterprise zones viewer. oregon's enterprise zones offer a unique resource to oregon communities, and an excellent opportunity. For purposes of an enterprise zone. Oregon Enterprise Zone Property Schedule.
From www.templateroller.com
Form OREZPS Fill Out, Sign Online and Download Fillable PDF, Oregon Oregon Enterprise Zone Property Schedule Oregon's enterprise zones offer a unique resource to oregon communities, and an. oregon’s enterprise zones offer a unique resource to oregon communities, and an excellent opportunity for businesses growing or. For the first year of exemption on qualified property, this schedule must be attached to oregon. welcome to business oregon's enterprise zones viewer. oregon's enterprise zones offer. Oregon Enterprise Zone Property Schedule.
From www.templateroller.com
Form 150102043 Schedule ORLTEZ 2022 Fill Out, Sign Online and Oregon Enterprise Zone Property Schedule For purposes of an enterprise zone exemption on qualified property under ors. oregon's enterprise zones offer a unique resource to oregon communities, and an excellent opportunity. oregon’s enterprise zones offer a unique resource to oregon communities, and an excellent opportunity for businesses growing or. Oregon's enterprise zones offer a unique resource to oregon communities, and an. File with. Oregon Enterprise Zone Property Schedule.
From www.templateroller.com
Form OREZEXCLM (150310075) Download Fillable PDF or Fill Online Oregon Enterprise Zone Property Schedule File after january 1 and on or before april 1 directly following the calendar. welcome to business oregon's enterprise zones viewer. oregon’s enterprise zones offer a unique resource to oregon communities, and an excellent opportunity for businesses growing or. File with the county assessor and copy the local zone manager. Oregon's enterprise zones offer a unique resource to. Oregon Enterprise Zone Property Schedule.
From www.templateroller.com
Download Instructions for Form OREZAUTH, 150303029 Oregon Oregon Enterprise Zone Property Schedule File after january 1 and on or before april 1 directly following the calendar. if you have other property or operations in oregon and income isn't computed under gaap, compute the percentage as follows:. For the first year of exemption on qualified property, this schedule must be attached to oregon. oregon’s enterprise zones offer a unique resource to. Oregon Enterprise Zone Property Schedule.
From www.templateroller.com
Form OREZPS Fill Out, Sign Online and Download Fillable PDF, Oregon Oregon Enterprise Zone Property Schedule oregon's enterprise zones offer a unique resource to oregon communities, and an excellent opportunity. if you have other property or operations in oregon and income isn't computed under gaap, compute the percentage as follows:. File with the county assessor and copy the local zone manager. File after january 1 and on or before april 1 directly following the. Oregon Enterprise Zone Property Schedule.
From www.templateroller.com
Form 150303029 (OREZAUTH) Fill Out, Sign Online and Download Oregon Enterprise Zone Property Schedule oregon’s enterprise zones offer a unique resource to oregon communities, and an excellent opportunity for businesses growing or. For the first year of exemption on qualified property, this schedule must be attached to oregon. File after january 1 and on or before april 1 directly following the calendar. if you have other property or operations in oregon and. Oregon Enterprise Zone Property Schedule.
From www.milwaukieoregon.gov
Enterprise Zones City of Milwaukie Oregon Official site Oregon Enterprise Zone Property Schedule File with the county assessor and copy the local zone manager. Oregon's enterprise zones offer a unique resource to oregon communities, and an. For the first year of exemption on qualified property, this schedule must be attached to oregon. oregon's enterprise zones offer a unique resource to oregon communities, and an excellent opportunity. oregon’s enterprise zones offer a. Oregon Enterprise Zone Property Schedule.
From www.templateroller.com
Form 150310075 (OREZEXCLM) Fill Out, Sign Online and Download Oregon Enterprise Zone Property Schedule For the first year of exemption on qualified property, this schedule must be attached to oregon. Oregon's enterprise zones offer a unique resource to oregon communities, and an. File after january 1 and on or before april 1 directly following the calendar. For purposes of an enterprise zone exemption on qualified property under ors. if you have other property. Oregon Enterprise Zone Property Schedule.