Butler County Ohio Property Search By Address . To search by parcel number, all or part of the number can be entered. Real estate search document standards fee schedule veteran id's contact us. Please choose from the following selections to perform your search. The auditor's real estate division maintains information on more than 160,000 parcels in butler county. The real estate division consists of three. Serving residents openly and honestly while emphasizing transparency and. Search results will be returned for all partial matches of the entered. We recommend using google chrome or. Address butler county auditor 130 high street, 3rd floor hamilton, oh 45011 phone. Search by parcel number or street address to narrow down your results. Enter information below to look up property information. For residents with more than one tax bill, search by name to view multiple parcel.
from www.usgenwebsites.org
The real estate division consists of three. Search by parcel number or street address to narrow down your results. Enter information below to look up property information. For residents with more than one tax bill, search by name to view multiple parcel. Real estate search document standards fee schedule veteran id's contact us. Address butler county auditor 130 high street, 3rd floor hamilton, oh 45011 phone. Serving residents openly and honestly while emphasizing transparency and. We recommend using google chrome or. Search results will be returned for all partial matches of the entered. Please choose from the following selections to perform your search.
Browsing Through Butler County Maps, Pictures, More
Butler County Ohio Property Search By Address The auditor's real estate division maintains information on more than 160,000 parcels in butler county. Please choose from the following selections to perform your search. For residents with more than one tax bill, search by name to view multiple parcel. Serving residents openly and honestly while emphasizing transparency and. Address butler county auditor 130 high street, 3rd floor hamilton, oh 45011 phone. The real estate division consists of three. Search by parcel number or street address to narrow down your results. Real estate search document standards fee schedule veteran id's contact us. Enter information below to look up property information. The auditor's real estate division maintains information on more than 160,000 parcels in butler county. We recommend using google chrome or. To search by parcel number, all or part of the number can be entered. Search results will be returned for all partial matches of the entered.
From exovmdwho.blob.core.windows.net
Hamilton County Property Search Nebraska at Virginia Riggs blog Butler County Ohio Property Search By Address Please choose from the following selections to perform your search. Enter information below to look up property information. Address butler county auditor 130 high street, 3rd floor hamilton, oh 45011 phone. The auditor's real estate division maintains information on more than 160,000 parcels in butler county. To search by parcel number, all or part of the number can be entered.. Butler County Ohio Property Search By Address.
From www.templateroller.com
Form DTE100 Fill Out, Sign Online and Download Fillable PDF, Butler Butler County Ohio Property Search By Address We recommend using google chrome or. The auditor's real estate division maintains information on more than 160,000 parcels in butler county. Real estate search document standards fee schedule veteran id's contact us. Serving residents openly and honestly while emphasizing transparency and. Enter information below to look up property information. The real estate division consists of three. To search by parcel. Butler County Ohio Property Search By Address.
From www.landwatch.com
Fairfield, Butler County, OH House for sale Property ID 414692897 Butler County Ohio Property Search By Address We recommend using google chrome or. For residents with more than one tax bill, search by name to view multiple parcel. The real estate division consists of three. Real estate search document standards fee schedule veteran id's contact us. To search by parcel number, all or part of the number can be entered. Address butler county auditor 130 high street,. Butler County Ohio Property Search By Address.
From gwennyqkaleena.pages.dev
Franklin County Ohio Sales Tax Rate 2024 Yoshi Katheryn Butler County Ohio Property Search By Address Address butler county auditor 130 high street, 3rd floor hamilton, oh 45011 phone. We recommend using google chrome or. The real estate division consists of three. Search by parcel number or street address to narrow down your results. For residents with more than one tax bill, search by name to view multiple parcel. Serving residents openly and honestly while emphasizing. Butler County Ohio Property Search By Address.
From www.templateroller.com
Butler County, Ohio Residential Rental Property Registration Form Butler County Ohio Property Search By Address Serving residents openly and honestly while emphasizing transparency and. Search results will be returned for all partial matches of the entered. Search by parcel number or street address to narrow down your results. For residents with more than one tax bill, search by name to view multiple parcel. The real estate division consists of three. The auditor's real estate division. Butler County Ohio Property Search By Address.
From joiaryrwk.blob.core.windows.net
Real Estate Taxes Butler County Ohio at Theresa Hamm blog Butler County Ohio Property Search By Address Serving residents openly and honestly while emphasizing transparency and. We recommend using google chrome or. To search by parcel number, all or part of the number can be entered. Address butler county auditor 130 high street, 3rd floor hamilton, oh 45011 phone. Search by parcel number or street address to narrow down your results. For residents with more than one. Butler County Ohio Property Search By Address.
From www.templateroller.com
Butler County, Ohio Affidavit for Insertion of Initials on Property Butler County Ohio Property Search By Address Serving residents openly and honestly while emphasizing transparency and. Please choose from the following selections to perform your search. Enter information below to look up property information. We recommend using google chrome or. For residents with more than one tax bill, search by name to view multiple parcel. The real estate division consists of three. The auditor's real estate division. Butler County Ohio Property Search By Address.
From remarkableohio.org
229 Butler County Courthouse Remarkable Ohio Butler County Ohio Property Search By Address The real estate division consists of three. Please choose from the following selections to perform your search. For residents with more than one tax bill, search by name to view multiple parcel. To search by parcel number, all or part of the number can be entered. We recommend using google chrome or. Search by parcel number or street address to. Butler County Ohio Property Search By Address.
From summitmoving.com
Summit County Property Tax [2024] 💰 Guide to Summit County Ohio Butler County Ohio Property Search By Address To search by parcel number, all or part of the number can be entered. Please choose from the following selections to perform your search. Search by parcel number or street address to narrow down your results. Serving residents openly and honestly while emphasizing transparency and. Real estate search document standards fee schedule veteran id's contact us. We recommend using google. Butler County Ohio Property Search By Address.
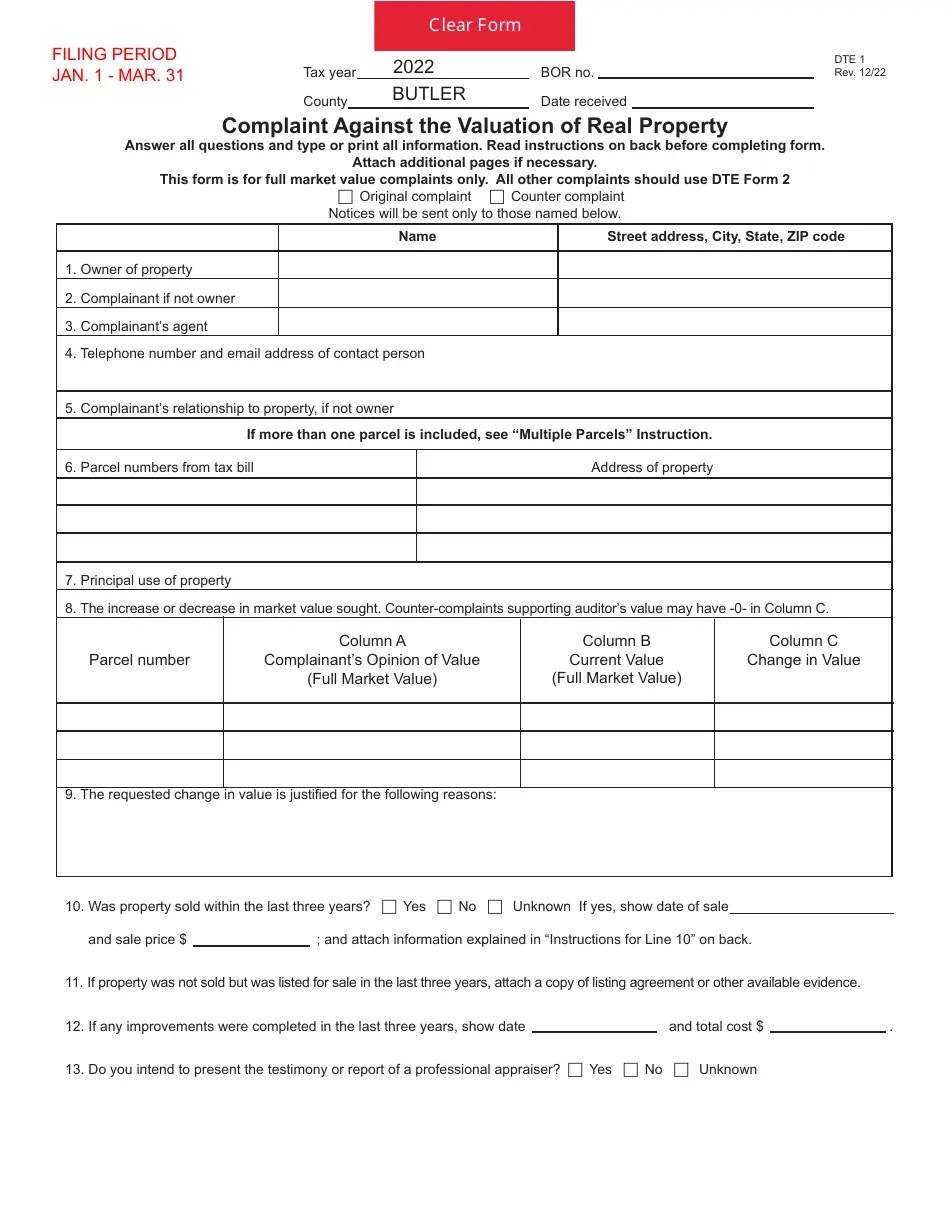
From www.templateroller.com
Form DTE1 Download Fillable PDF or Fill Online Complaint Against the Butler County Ohio Property Search By Address Search results will be returned for all partial matches of the entered. Address butler county auditor 130 high street, 3rd floor hamilton, oh 45011 phone. The auditor's real estate division maintains information on more than 160,000 parcels in butler county. For residents with more than one tax bill, search by name to view multiple parcel. Serving residents openly and honestly. Butler County Ohio Property Search By Address.
From www.usgenwebsites.org
Browsing Through Butler County Maps, Pictures, More Butler County Ohio Property Search By Address Serving residents openly and honestly while emphasizing transparency and. Please choose from the following selections to perform your search. Search results will be returned for all partial matches of the entered. Enter information below to look up property information. Search by parcel number or street address to narrow down your results. The auditor's real estate division maintains information on more. Butler County Ohio Property Search By Address.
From exoqondjy.blob.core.windows.net
Ashland Ohio Auditor Property Search at Jim Runyan blog Butler County Ohio Property Search By Address Serving residents openly and honestly while emphasizing transparency and. Enter information below to look up property information. For residents with more than one tax bill, search by name to view multiple parcel. Please choose from the following selections to perform your search. We recommend using google chrome or. Real estate search document standards fee schedule veteran id's contact us. The. Butler County Ohio Property Search By Address.
From thecourtdirect.com
Butler County Court The Court Direct Butler County Ohio Property Search By Address Enter information below to look up property information. Search results will be returned for all partial matches of the entered. The real estate division consists of three. To search by parcel number, all or part of the number can be entered. We recommend using google chrome or. The auditor's real estate division maintains information on more than 160,000 parcels in. Butler County Ohio Property Search By Address.
From cookieyleland.pages.dev
Map Of Ohio Counties With Cities Vivie Jocelyne Butler County Ohio Property Search By Address The auditor's real estate division maintains information on more than 160,000 parcels in butler county. To search by parcel number, all or part of the number can be entered. Enter information below to look up property information. The real estate division consists of three. Search results will be returned for all partial matches of the entered. Real estate search document. Butler County Ohio Property Search By Address.
From www.usnews.com
How Healthy Is Butler County, Ohio? US News Healthiest Communities Butler County Ohio Property Search By Address Serving residents openly and honestly while emphasizing transparency and. To search by parcel number, all or part of the number can be entered. Search by parcel number or street address to narrow down your results. We recommend using google chrome or. Please choose from the following selections to perform your search. Enter information below to look up property information. Search. Butler County Ohio Property Search By Address.
From www.selectmcohio.com
Butler Township Butler County Ohio Property Search By Address The real estate division consists of three. Serving residents openly and honestly while emphasizing transparency and. We recommend using google chrome or. Address butler county auditor 130 high street, 3rd floor hamilton, oh 45011 phone. The auditor's real estate division maintains information on more than 160,000 parcels in butler county. For residents with more than one tax bill, search by. Butler County Ohio Property Search By Address.
From www.templateroller.com
Form DR602B Fill Out, Sign Online and Download Printable PDF, Butler Butler County Ohio Property Search By Address Real estate search document standards fee schedule veteran id's contact us. Please choose from the following selections to perform your search. The real estate division consists of three. We recommend using google chrome or. To search by parcel number, all or part of the number can be entered. Address butler county auditor 130 high street, 3rd floor hamilton, oh 45011. Butler County Ohio Property Search By Address.
From www.familysearch.org
Butler County, Ohio Genealogy • FamilySearch Butler County Ohio Property Search By Address Please choose from the following selections to perform your search. Enter information below to look up property information. Search results will be returned for all partial matches of the entered. The real estate division consists of three. The auditor's real estate division maintains information on more than 160,000 parcels in butler county. For residents with more than one tax bill,. Butler County Ohio Property Search By Address.
From www.propertyshark.com
HamiltonCounty, OH Property Tax Search and Records PropertyShark Butler County Ohio Property Search By Address The auditor's real estate division maintains information on more than 160,000 parcels in butler county. Please choose from the following selections to perform your search. Address butler county auditor 130 high street, 3rd floor hamilton, oh 45011 phone. For residents with more than one tax bill, search by name to view multiple parcel. We recommend using google chrome or. Enter. Butler County Ohio Property Search By Address.
From aca-prod.accela.com
Accela Citizen Access Butler County Ohio Property Search By Address Serving residents openly and honestly while emphasizing transparency and. To search by parcel number, all or part of the number can be entered. Search by parcel number or street address to narrow down your results. Address butler county auditor 130 high street, 3rd floor hamilton, oh 45011 phone. The real estate division consists of three. Real estate search document standards. Butler County Ohio Property Search By Address.
From exofobubn.blob.core.windows.net
Shelby County Ohio Property Records Search at Gladys ODonnell blog Butler County Ohio Property Search By Address The real estate division consists of three. Search by parcel number or street address to narrow down your results. For residents with more than one tax bill, search by name to view multiple parcel. The auditor's real estate division maintains information on more than 160,000 parcels in butler county. Please choose from the following selections to perform your search. Search. Butler County Ohio Property Search By Address.
From bellmoving.com
Hamilton County Ohio Property Tax 🎯 2024 Ultimate Guide & What You Butler County Ohio Property Search By Address The real estate division consists of three. Enter information below to look up property information. Search results will be returned for all partial matches of the entered. We recommend using google chrome or. Please choose from the following selections to perform your search. Address butler county auditor 130 high street, 3rd floor hamilton, oh 45011 phone. To search by parcel. Butler County Ohio Property Search By Address.
From www.landwatch.com
West Chester, Butler County, OH House for sale Property ID 338283613 Butler County Ohio Property Search By Address Enter information below to look up property information. Search results will be returned for all partial matches of the entered. Address butler county auditor 130 high street, 3rd floor hamilton, oh 45011 phone. To search by parcel number, all or part of the number can be entered. For residents with more than one tax bill, search by name to view. Butler County Ohio Property Search By Address.
From www.etsy.com
1855 Farm Line Map of Butler County Ohio Oxford Rossville Etsy Butler County Ohio Property Search By Address We recommend using google chrome or. Please choose from the following selections to perform your search. Serving residents openly and honestly while emphasizing transparency and. Search by parcel number or street address to narrow down your results. Search results will be returned for all partial matches of the entered. Enter information below to look up property information. For residents with. Butler County Ohio Property Search By Address.
From diaocthongthai.com
Map of Butler County, Ohio Thong Thai Real Butler County Ohio Property Search By Address Please choose from the following selections to perform your search. Search by parcel number or street address to narrow down your results. Enter information below to look up property information. The auditor's real estate division maintains information on more than 160,000 parcels in butler county. The real estate division consists of three. Address butler county auditor 130 high street, 3rd. Butler County Ohio Property Search By Address.
From www.alamy.com
Map of Butler County, Ohio , Buildings, Ohio, Butler County, Pictorial Butler County Ohio Property Search By Address To search by parcel number, all or part of the number can be entered. The real estate division consists of three. Serving residents openly and honestly while emphasizing transparency and. Enter information below to look up property information. We recommend using google chrome or. Search by parcel number or street address to narrow down your results. For residents with more. Butler County Ohio Property Search By Address.
From loetkrkok.blob.core.windows.net
Property Taxes Licking County Ohio at Edith Broussard blog Butler County Ohio Property Search By Address For residents with more than one tax bill, search by name to view multiple parcel. Enter information below to look up property information. To search by parcel number, all or part of the number can be entered. Serving residents openly and honestly while emphasizing transparency and. We recommend using google chrome or. The real estate division consists of three. Address. Butler County Ohio Property Search By Address.
From www.landsofamerica.com
5.08 acres in Butler County, Ohio Butler County Ohio Property Search By Address The real estate division consists of three. For residents with more than one tax bill, search by name to view multiple parcel. Address butler county auditor 130 high street, 3rd floor hamilton, oh 45011 phone. Enter information below to look up property information. The auditor's real estate division maintains information on more than 160,000 parcels in butler county. Please choose. Butler County Ohio Property Search By Address.
From www.usgenwebsites.org
Browsing Through Butler County Maps, Pictures, More Butler County Ohio Property Search By Address For residents with more than one tax bill, search by name to view multiple parcel. Address butler county auditor 130 high street, 3rd floor hamilton, oh 45011 phone. Serving residents openly and honestly while emphasizing transparency and. The auditor's real estate division maintains information on more than 160,000 parcels in butler county. Please choose from the following selections to perform. Butler County Ohio Property Search By Address.
From www.realtor.com
Butler County, OH Real Estate & Homes for Sale Butler County Ohio Property Search By Address The real estate division consists of three. Serving residents openly and honestly while emphasizing transparency and. Address butler county auditor 130 high street, 3rd floor hamilton, oh 45011 phone. Enter information below to look up property information. For residents with more than one tax bill, search by name to view multiple parcel. Real estate search document standards fee schedule veteran. Butler County Ohio Property Search By Address.
From summitmoving.com
Cuyahoga County Property Taxes 🎯 2024 Ultimate Guide to Cuyahoga Butler County Ohio Property Search By Address Please choose from the following selections to perform your search. Enter information below to look up property information. Search results will be returned for all partial matches of the entered. For residents with more than one tax bill, search by name to view multiple parcel. The real estate division consists of three. We recommend using google chrome or. The auditor's. Butler County Ohio Property Search By Address.
From www.pinterest.com
Pin on Cities + Countryside Butler County Ohio Property Search By Address Real estate search document standards fee schedule veteran id's contact us. The auditor's real estate division maintains information on more than 160,000 parcels in butler county. Search results will be returned for all partial matches of the entered. For residents with more than one tax bill, search by name to view multiple parcel. The real estate division consists of three.. Butler County Ohio Property Search By Address.
From sites.rootsweb.com
Covered Bridges map Butler County Ohio Property Search By Address Enter information below to look up property information. Search by parcel number or street address to narrow down your results. Address butler county auditor 130 high street, 3rd floor hamilton, oh 45011 phone. Serving residents openly and honestly while emphasizing transparency and. The auditor's real estate division maintains information on more than 160,000 parcels in butler county. Please choose from. Butler County Ohio Property Search By Address.
From dxobawxnq.blob.core.windows.net
For Sale Licking County at Larry Hartley blog Butler County Ohio Property Search By Address The real estate division consists of three. The auditor's real estate division maintains information on more than 160,000 parcels in butler county. Search results will be returned for all partial matches of the entered. We recommend using google chrome or. Serving residents openly and honestly while emphasizing transparency and. Please choose from the following selections to perform your search. Search. Butler County Ohio Property Search By Address.
From www.freeprintable.me
Butler County Ohio Zip Code Map FreePrintable.me Butler County Ohio Property Search By Address Real estate search document standards fee schedule veteran id's contact us. To search by parcel number, all or part of the number can be entered. Enter information below to look up property information. The auditor's real estate division maintains information on more than 160,000 parcels in butler county. Search results will be returned for all partial matches of the entered.. Butler County Ohio Property Search By Address.