Fife Council Skip Permit . find out how to apply for a skip licence/permit if you want to put a skip on a public road in england or wales. learn when and how to get a skip permit or licence for your skip hire in fife and other uk locations. do i need a permit for my skip? Please note that these skips are for general waste only. Skips which are to be placed on a road will require a permit and these can be obtained via the fife council website. use this form to apply for a permit so a skip can be placed on a public road in fife. Find out the average costs, duration, and application process. Cost of application £25 per week, paid online at. If you need to park the skip on. do i need a skip permit? find out how to apply for permission to place a skip, scaffold, or carry out roadworks on a road, footway or verge in fife. Skips need to be placed in a safe place without causing an obstruction.
from exotisjff.blob.core.windows.net
Skips which are to be placed on a road will require a permit and these can be obtained via the fife council website. Cost of application £25 per week, paid online at. find out how to apply for permission to place a skip, scaffold, or carry out roadworks on a road, footway or verge in fife. find out how to apply for a skip licence/permit if you want to put a skip on a public road in england or wales. Find out the average costs, duration, and application process. Skips need to be placed in a safe place without causing an obstruction. do i need a skip permit? do i need a permit for my skip? Please note that these skips are for general waste only. learn when and how to get a skip permit or licence for your skip hire in fife and other uk locations.
Fife Council Library App at Jennifer Giddens blog
Fife Council Skip Permit Cost of application £25 per week, paid online at. Skips need to be placed in a safe place without causing an obstruction. Please note that these skips are for general waste only. do i need a permit for my skip? find out how to apply for a skip licence/permit if you want to put a skip on a public road in england or wales. Cost of application £25 per week, paid online at. find out how to apply for permission to place a skip, scaffold, or carry out roadworks on a road, footway or verge in fife. If you need to park the skip on. do i need a skip permit? use this form to apply for a permit so a skip can be placed on a public road in fife. Find out the average costs, duration, and application process. Skips which are to be placed on a road will require a permit and these can be obtained via the fife council website. learn when and how to get a skip permit or licence for your skip hire in fife and other uk locations.
From www.restonwaste.co.uk
Skip Permits Reston Waste Fife Council Skip Permit do i need a skip permit? If you need to park the skip on. find out how to apply for permission to place a skip, scaffold, or carry out roadworks on a road, footway or verge in fife. Skips which are to be placed on a road will require a permit and these can be obtained via the. Fife Council Skip Permit.
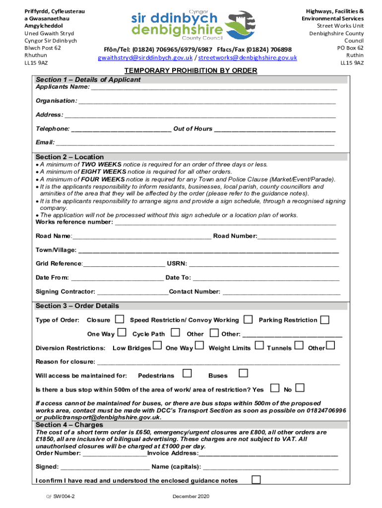
From wemskiphire.co.uk
A Guide to Skip Hire Permits in Birmingham All You Need To Know Fife Council Skip Permit find out how to apply for permission to place a skip, scaffold, or carry out roadworks on a road, footway or verge in fife. learn when and how to get a skip permit or licence for your skip hire in fife and other uk locations. do i need a skip permit? If you need to park the. Fife Council Skip Permit.
From www.pdffiller.com
Fillable Online Fife Council Adopted FIFEplan Glossary Fife Council Skip Permit Find out the average costs, duration, and application process. learn when and how to get a skip permit or licence for your skip hire in fife and other uk locations. Cost of application £25 per week, paid online at. Skips need to be placed in a safe place without causing an obstruction. do i need a skip permit?. Fife Council Skip Permit.
From www.linkedin.com
Why Do You Need a Council Permit For a Skip Bin Fife Council Skip Permit Skips which are to be placed on a road will require a permit and these can be obtained via the fife council website. Cost of application £25 per week, paid online at. If you need to park the skip on. find out how to apply for permission to place a skip, scaffold, or carry out roadworks on a road,. Fife Council Skip Permit.
From studylib.net
Fife Council Fife Council Skip Permit Cost of application £25 per week, paid online at. do i need a permit for my skip? Please note that these skips are for general waste only. find out how to apply for a skip licence/permit if you want to put a skip on a public road in england or wales. find out how to apply for. Fife Council Skip Permit.
From www.circlewaste.co.uk
How Do You Arrange Skip Permits? Skip Hire Permit Questions Fife Council Skip Permit do i need a permit for my skip? find out how to apply for a skip licence/permit if you want to put a skip on a public road in england or wales. Skips which are to be placed on a road will require a permit and these can be obtained via the fife council website. Find out the. Fife Council Skip Permit.
From www.flickr.com
Cireco by Fife Council Demountable skip lorry on the Bonny… Flickr Fife Council Skip Permit find out how to apply for a skip licence/permit if you want to put a skip on a public road in england or wales. Find out the average costs, duration, and application process. Skips which are to be placed on a road will require a permit and these can be obtained via the fife council website. Skips need to. Fife Council Skip Permit.
From www.pdffiller.com
Fillable Online Skip permit application form Fax Email Print pdfFiller Fife Council Skip Permit find out how to apply for a skip licence/permit if you want to put a skip on a public road in england or wales. do i need a permit for my skip? do i need a skip permit? Cost of application £25 per week, paid online at. Skips need to be placed in a safe place without. Fife Council Skip Permit.
From www.blogpirate.org
What Is A Skip Permit And Do I Need One? Fife Council Skip Permit use this form to apply for a permit so a skip can be placed on a public road in fife. If you need to park the skip on. Find out the average costs, duration, and application process. Skips need to be placed in a safe place without causing an obstruction. find out how to apply for a skip. Fife Council Skip Permit.
From tcescommunity.co.uk
Fife Council Goes Live! TCES Community CES Fife Council Skip Permit Find out the average costs, duration, and application process. Please note that these skips are for general waste only. do i need a permit for my skip? do i need a skip permit? Skips need to be placed in a safe place without causing an obstruction. learn when and how to get a skip permit or licence. Fife Council Skip Permit.
From proskipsaustralia.com.au
Your Ultimate Guide on How to Get a Council Permit for Your Skip Bin Fife Council Skip Permit Cost of application £25 per week, paid online at. If you need to park the skip on. find out how to apply for permission to place a skip, scaffold, or carry out roadworks on a road, footway or verge in fife. learn when and how to get a skip permit or licence for your skip hire in fife. Fife Council Skip Permit.
From justhire.com
Skip Permits Manchester How to Obtain a Skip License Fife Council Skip Permit find out how to apply for a skip licence/permit if you want to put a skip on a public road in england or wales. use this form to apply for a permit so a skip can be placed on a public road in fife. Cost of application £25 per week, paid online at. Skips need to be placed. Fife Council Skip Permit.
From www.starfish-taxis.com
Fife council Taxi Fare Charges in Fife effective from 02/12/2019 Fife Council Skip Permit If you need to park the skip on. find out how to apply for permission to place a skip, scaffold, or carry out roadworks on a road, footway or verge in fife. do i need a skip permit? learn when and how to get a skip permit or licence for your skip hire in fife and other. Fife Council Skip Permit.
From www.pdffiller.com
Skip Permit Application.docx Doc Template pdfFiller Fife Council Skip Permit Cost of application £25 per week, paid online at. Skips which are to be placed on a road will require a permit and these can be obtained via the fife council website. Find out the average costs, duration, and application process. Skips need to be placed in a safe place without causing an obstruction. do i need a skip. Fife Council Skip Permit.
From www.artofit.org
Skip bins council permits Artofit Fife Council Skip Permit Skips need to be placed in a safe place without causing an obstruction. find out how to apply for permission to place a skip, scaffold, or carry out roadworks on a road, footway or verge in fife. If you need to park the skip on. Find out the average costs, duration, and application process. learn when and how. Fife Council Skip Permit.
From www.yumpu.com
Home Occupation Permit Application City of Fife Fife Council Skip Permit use this form to apply for a permit so a skip can be placed on a public road in fife. find out how to apply for a skip licence/permit if you want to put a skip on a public road in england or wales. learn when and how to get a skip permit or licence for your. Fife Council Skip Permit.
From studylib.net
OTW004SkiptheLandfillFifeCouncil Fife Council Skip Permit If you need to park the skip on. Please note that these skips are for general waste only. Skips need to be placed in a safe place without causing an obstruction. find out how to apply for a skip licence/permit if you want to put a skip on a public road in england or wales. use this form. Fife Council Skip Permit.
From localskipbinshire.com.au
Skip Bins Council Permits Local Skip Bins Hire Fife Council Skip Permit Find out the average costs, duration, and application process. find out how to apply for a skip licence/permit if you want to put a skip on a public road in england or wales. do i need a permit for my skip? Skips which are to be placed on a road will require a permit and these can be. Fife Council Skip Permit.
From www.mattsskipbins.com.au
What is the procedure for obtaining council permits? Matt's Skip Bins Fife Council Skip Permit Cost of application £25 per week, paid online at. Skips need to be placed in a safe place without causing an obstruction. find out how to apply for a skip licence/permit if you want to put a skip on a public road in england or wales. Find out the average costs, duration, and application process. Please note that these. Fife Council Skip Permit.
From midlothianskiphire.co.uk
Council Skip Permits Midlothian Skip Hire Fife Council Skip Permit use this form to apply for a permit so a skip can be placed on a public road in fife. Cost of application £25 per week, paid online at. Skips need to be placed in a safe place without causing an obstruction. Please note that these skips are for general waste only. learn when and how to get. Fife Council Skip Permit.
From www.scottishdisabilitysport.com
Fife Council Fife Council Skip Permit find out how to apply for permission to place a skip, scaffold, or carry out roadworks on a road, footway or verge in fife. Skips which are to be placed on a road will require a permit and these can be obtained via the fife council website. Cost of application £25 per week, paid online at. Skips need to. Fife Council Skip Permit.
From www.pdffiller.com
Personal Licence Application Fife Council Doc Template pdfFiller Fife Council Skip Permit do i need a skip permit? Skips need to be placed in a safe place without causing an obstruction. find out how to apply for a skip licence/permit if you want to put a skip on a public road in england or wales. find out how to apply for permission to place a skip, scaffold, or carry. Fife Council Skip Permit.
From www.pdffiller.com
Skip permit application and conditions Doc Template pdfFiller Fife Council Skip Permit Please note that these skips are for general waste only. Skips need to be placed in a safe place without causing an obstruction. If you need to park the skip on. do i need a permit for my skip? find out how to apply for a skip licence/permit if you want to put a skip on a public. Fife Council Skip Permit.
From www.rubbish.com.au
Council Permit for Skip Bin, Apply for a road skip permit, Skip Fife Council Skip Permit Cost of application £25 per week, paid online at. use this form to apply for a permit so a skip can be placed on a public road in fife. Please note that these skips are for general waste only. do i need a skip permit? do i need a permit for my skip? find out how. Fife Council Skip Permit.
From www.totalmobile.co.uk
Fife Council Totalmobile Fife Council Skip Permit Cost of application £25 per week, paid online at. use this form to apply for a permit so a skip can be placed on a public road in fife. learn when and how to get a skip permit or licence for your skip hire in fife and other uk locations. find out how to apply for permission. Fife Council Skip Permit.
From www.restonwaste.co.uk
Skip Permits Explained Reston Waste Fife Council Skip Permit Skips need to be placed in a safe place without causing an obstruction. Find out the average costs, duration, and application process. find out how to apply for a skip licence/permit if you want to put a skip on a public road in england or wales. do i need a skip permit? Skips which are to be placed. Fife Council Skip Permit.
From www.slideserve.com
PPT Hiring a Skip Bin Made Easy PowerPoint Presentation, free Fife Council Skip Permit Skips which are to be placed on a road will require a permit and these can be obtained via the fife council website. use this form to apply for a permit so a skip can be placed on a public road in fife. Cost of application £25 per week, paid online at. do i need a skip permit?. Fife Council Skip Permit.
From www.wavertreewaste.co.uk
Do I Need A Council Permit To Hire A Skip? Wavertree Waste Fife Council Skip Permit Skips need to be placed in a safe place without causing an obstruction. do i need a permit for my skip? find out how to apply for a skip licence/permit if you want to put a skip on a public road in england or wales. Cost of application £25 per week, paid online at. If you need to. Fife Council Skip Permit.
From www.artofit.org
Skip bin sizes Artofit Fife Council Skip Permit do i need a skip permit? find out how to apply for a skip licence/permit if you want to put a skip on a public road in england or wales. Skips which are to be placed on a road will require a permit and these can be obtained via the fife council website. learn when and how. Fife Council Skip Permit.
From www.youtube.com
How to Get a Council Permit for Your Skip Bin Pro Skips Australia Fife Council Skip Permit learn when and how to get a skip permit or licence for your skip hire in fife and other uk locations. use this form to apply for a permit so a skip can be placed on a public road in fife. do i need a skip permit? do i need a permit for my skip? Please. Fife Council Skip Permit.
From www.anyjunk.co.uk
Skip Permit & Skip Hire License Ultimate Guide for Beginners AnyJunk® Fife Council Skip Permit Skips need to be placed in a safe place without causing an obstruction. find out how to apply for a skip licence/permit if you want to put a skip on a public road in england or wales. If you need to park the skip on. Find out the average costs, duration, and application process. Skips which are to be. Fife Council Skip Permit.
From www.recyclefife.com
Skip Hire Fife Recycle Fife Skip Hire Fife Council Skip Permit Skips need to be placed in a safe place without causing an obstruction. Skips which are to be placed on a road will require a permit and these can be obtained via the fife council website. find out how to apply for permission to place a skip, scaffold, or carry out roadworks on a road, footway or verge in. Fife Council Skip Permit.
From exotisjff.blob.core.windows.net
Fife Council Library App at Jennifer Giddens blog Fife Council Skip Permit Please note that these skips are for general waste only. Skips which are to be placed on a road will require a permit and these can be obtained via the fife council website. If you need to park the skip on. Skips need to be placed in a safe place without causing an obstruction. do i need a skip. Fife Council Skip Permit.
From www.artofit.org
Skip bin sizes Artofit Fife Council Skip Permit use this form to apply for a permit so a skip can be placed on a public road in fife. Find out the average costs, duration, and application process. Skips which are to be placed on a road will require a permit and these can be obtained via the fife council website. do i need a permit for. Fife Council Skip Permit.
From scrapcoskiphire.uk
Kent County Council Skip Permits Scrapco Skip Hire Kent Fife Council Skip Permit Cost of application £25 per week, paid online at. Skips need to be placed in a safe place without causing an obstruction. Please note that these skips are for general waste only. do i need a permit for my skip? Find out the average costs, duration, and application process. do i need a skip permit? Skips which are. Fife Council Skip Permit.