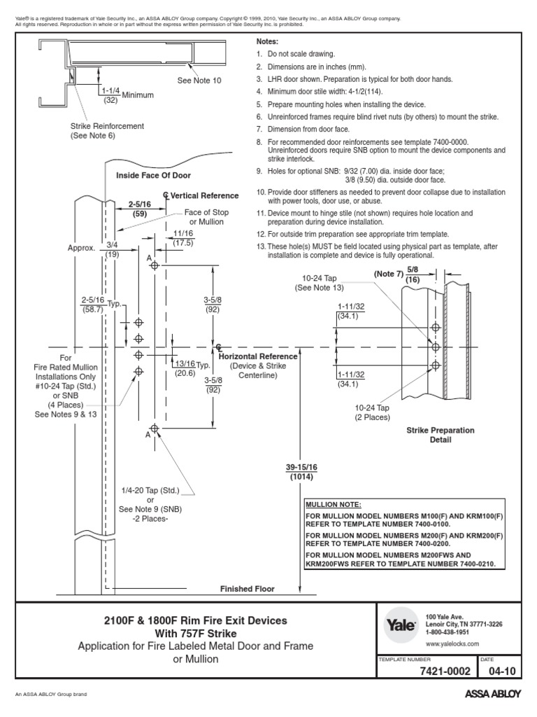
Yale 2100F Exit Device Template . Extend centerline of rod and strikes from “device template” to door top and bottom, on door face. 2100f & 1800f rim fire exit devices with 757f strike application for fire labeled wood or composite door and h.m. With 1500(f), 2100(f), 6100(f), or 7100(f) series rim and vertical rod exit devices. providing a higher standard of ansi/bhma grade 1 performance, the 2100 series exit device is the right choice for meeting the. Locate top latch/strike, bottom case and bottom. The 2100(f) can be paired with. This template is an addition to the device template. 603f, 622f and 626f trim. the 2100(f) is a rim exit device to be used with single doors or pairs of doors constructed of metal, wood or composite materials. rim and vertical rod exit devices metal door preparation notes: rim exit devices installation instructions (single door or pairs) note:
from exotyfscg.blob.core.windows.net
With 1500(f), 2100(f), 6100(f), or 7100(f) series rim and vertical rod exit devices. 2100f & 1800f rim fire exit devices with 757f strike application for fire labeled wood or composite door and h.m. This template is an addition to the device template. rim exit devices installation instructions (single door or pairs) note: Locate top latch/strike, bottom case and bottom. Extend centerline of rod and strikes from “device template” to door top and bottom, on door face. 603f, 622f and 626f trim. rim and vertical rod exit devices metal door preparation notes: The 2100(f) can be paired with. the 2100(f) is a rim exit device to be used with single doors or pairs of doors constructed of metal, wood or composite materials.
Yale Exit Device Parts Manual at Brenda Agnew blog
Yale 2100F Exit Device Template 603f, 622f and 626f trim. rim exit devices installation instructions (single door or pairs) note: The 2100(f) can be paired with. 603f, 622f and 626f trim. With 1500(f), 2100(f), 6100(f), or 7100(f) series rim and vertical rod exit devices. This template is an addition to the device template. providing a higher standard of ansi/bhma grade 1 performance, the 2100 series exit device is the right choice for meeting the. Extend centerline of rod and strikes from “device template” to door top and bottom, on door face. Locate top latch/strike, bottom case and bottom. the 2100(f) is a rim exit device to be used with single doors or pairs of doors constructed of metal, wood or composite materials. 2100f & 1800f rim fire exit devices with 757f strike application for fire labeled wood or composite door and h.m. rim and vertical rod exit devices metal door preparation notes:
From usermanual.wiki
Yale 2110, 2170, 1810 Surface Vertical Rod Exit Device Installation Instructions Yale 2100F Exit Device Template Extend centerline of rod and strikes from “device template” to door top and bottom, on door face. 603f, 622f and 626f trim. The 2100(f) can be paired with. providing a higher standard of ansi/bhma grade 1 performance, the 2100 series exit device is the right choice for meeting the. Locate top latch/strike, bottom case and bottom. This template. Yale 2100F Exit Device Template.
From doorcloser.com
Yale 2100F Fire Rated Rim Panic Bar Exit Device Yale 2100F Exit Device Template the 2100(f) is a rim exit device to be used with single doors or pairs of doors constructed of metal, wood or composite materials. rim and vertical rod exit devices metal door preparation notes: The 2100(f) can be paired with. rim exit devices installation instructions (single door or pairs) note: Locate top latch/strike, bottom case and bottom.. Yale 2100F Exit Device Template.
From www.grainger.com
YALE Rim Pullman Bolt, Exit Device, Lacquer, 2100, 30 in to 36 in Door Width 1ABK52100F x 689 Yale 2100F Exit Device Template the 2100(f) is a rim exit device to be used with single doors or pairs of doors constructed of metal, wood or composite materials. Locate top latch/strike, bottom case and bottom. 603f, 622f and 626f trim. This template is an addition to the device template. providing a higher standard of ansi/bhma grade 1 performance, the 2100 series. Yale 2100F Exit Device Template.
From www.grainger.com
YALE, 36 in Max Door Wd, Bronze, Exit Device 1ABK62100F x 691 Grainger Yale 2100F Exit Device Template rim exit devices installation instructions (single door or pairs) note: 2100f & 1800f rim fire exit devices with 757f strike application for fire labeled wood or composite door and h.m. With 1500(f), 2100(f), 6100(f), or 7100(f) series rim and vertical rod exit devices. The 2100(f) can be paired with. rim and vertical rod exit devices metal door. Yale 2100F Exit Device Template.
From goldenlocksinc.com
Yale 2100F FireRated Rim Exit Device Golden Locks Inc Yale 2100F Exit Device Template 603f, 622f and 626f trim. Locate top latch/strike, bottom case and bottom. the 2100(f) is a rim exit device to be used with single doors or pairs of doors constructed of metal, wood or composite materials. providing a higher standard of ansi/bhma grade 1 performance, the 2100 series exit device is the right choice for meeting the.. Yale 2100F Exit Device Template.
From usermanual.wiki
Yale 2110, 2170, 1810 Surface Vertical Rod Exit Device Installation Instructions Yale 2100F Exit Device Template With 1500(f), 2100(f), 6100(f), or 7100(f) series rim and vertical rod exit devices. providing a higher standard of ansi/bhma grade 1 performance, the 2100 series exit device is the right choice for meeting the. rim exit devices installation instructions (single door or pairs) note: rim and vertical rod exit devices metal door preparation notes: the 2100(f). Yale 2100F Exit Device Template.
From www.mscdirect.com
Yale Removable Mullion Use with 1800F, 2100F, 6000F, 7100F Series Panic Rim Exit Devices Yale 2100F Exit Device Template The 2100(f) can be paired with. With 1500(f), 2100(f), 6100(f), or 7100(f) series rim and vertical rod exit devices. 603f, 622f and 626f trim. Extend centerline of rod and strikes from “device template” to door top and bottom, on door face. This template is an addition to the device template. Locate top latch/strike, bottom case and bottom. rim. Yale 2100F Exit Device Template.
From maraindustrial.com
Yale 2100F Rim Exit Device Mara Industrial Yale 2100F Exit Device Template providing a higher standard of ansi/bhma grade 1 performance, the 2100 series exit device is the right choice for meeting the. The 2100(f) can be paired with. the 2100(f) is a rim exit device to be used with single doors or pairs of doors constructed of metal, wood or composite materials. rim exit devices installation instructions (single. Yale 2100F Exit Device Template.
From www.scribd.com
2100F757F Rim Exit Devices, MD Fire Exit Doors Template PDF Door Architectural Design Yale 2100F Exit Device Template rim and vertical rod exit devices metal door preparation notes: 603f, 622f and 626f trim. rim exit devices installation instructions (single door or pairs) note: the 2100(f) is a rim exit device to be used with single doors or pairs of doors constructed of metal, wood or composite materials. Extend centerline of rod and strikes from. Yale 2100F Exit Device Template.
From usermanual.wiki
Yale 2110, 2170, 1810 Surface Vertical Rod Exit Device Installation Instructions Yale 2100F Exit Device Template the 2100(f) is a rim exit device to be used with single doors or pairs of doors constructed of metal, wood or composite materials. Extend centerline of rod and strikes from “device template” to door top and bottom, on door face. The 2100(f) can be paired with. Locate top latch/strike, bottom case and bottom. rim exit devices installation. Yale 2100F Exit Device Template.
From studylib.net
Yale 2100 Series Exit Devices Yale 2100F Exit Device Template The 2100(f) can be paired with. This template is an addition to the device template. rim and vertical rod exit devices metal door preparation notes: Locate top latch/strike, bottom case and bottom. rim exit devices installation instructions (single door or pairs) note: Extend centerline of rod and strikes from “device template” to door top and bottom, on door. Yale 2100F Exit Device Template.
From www.edlocks.com
2100F36 630 Yale Fire Rated 36" Rim Exit Device Satin Stainless Steel Yale 2100F Exit Device Template Locate top latch/strike, bottom case and bottom. rim exit devices installation instructions (single door or pairs) note: With 1500(f), 2100(f), 6100(f), or 7100(f) series rim and vertical rod exit devices. 603f, 622f and 626f trim. 2100f & 1800f rim fire exit devices with 757f strike application for fire labeled wood or composite door and h.m. Extend centerline. Yale 2100F Exit Device Template.
From megamartwarehouse.com
NEW YALE 2100 x 630 Rim Square Bolt, Exit Device, Grade 1 Mega Ma... Yale 2100F Exit Device Template With 1500(f), 2100(f), 6100(f), or 7100(f) series rim and vertical rod exit devices. Extend centerline of rod and strikes from “device template” to door top and bottom, on door face. 2100f & 1800f rim fire exit devices with 757f strike application for fire labeled wood or composite door and h.m. This template is an addition to the device template.. Yale 2100F Exit Device Template.
From www.trudoor.com
Yale 2100 Series Panic Bar Rim Exit Device Yale 2100F Exit Device Template Extend centerline of rod and strikes from “device template” to door top and bottom, on door face. Locate top latch/strike, bottom case and bottom. rim exit devices installation instructions (single door or pairs) note: providing a higher standard of ansi/bhma grade 1 performance, the 2100 series exit device is the right choice for meeting the. 603f, 622f. Yale 2100F Exit Device Template.
From www.edlocks.com
Yale 2100F Fire Rated Grade 1 Rim Exit Device Yale 2100F Exit Device Template The 2100(f) can be paired with. With 1500(f), 2100(f), 6100(f), or 7100(f) series rim and vertical rod exit devices. Extend centerline of rod and strikes from “device template” to door top and bottom, on door face. rim exit devices installation instructions (single door or pairs) note: This template is an addition to the device template. the 2100(f) is. Yale 2100F Exit Device Template.
From maraindustrial.com
Yale 2100F Rim Exit Device Mara Industrial Yale 2100F Exit Device Template rim exit devices installation instructions (single door or pairs) note: Locate top latch/strike, bottom case and bottom. With 1500(f), 2100(f), 6100(f), or 7100(f) series rim and vertical rod exit devices. Extend centerline of rod and strikes from “device template” to door top and bottom, on door face. rim and vertical rod exit devices metal door preparation notes: . Yale 2100F Exit Device Template.
From www.grainger.com
YALE, 36 in Max Door Wd, Aluminum, Exit Device 1ABK52100F x 689 Grainger Yale 2100F Exit Device Template 603f, 622f and 626f trim. rim exit devices installation instructions (single door or pairs) note: Extend centerline of rod and strikes from “device template” to door top and bottom, on door face. the 2100(f) is a rim exit device to be used with single doors or pairs of doors constructed of metal, wood or composite materials. Locate. Yale 2100F Exit Device Template.
From usermanual.wiki
Yale 80 9421 0000 000 (11 12) 2100, 2150 Square Bolt, And 1800 Rim Exit Device Installation Yale 2100F Exit Device Template The 2100(f) can be paired with. Extend centerline of rod and strikes from “device template” to door top and bottom, on door face. 2100f & 1800f rim fire exit devices with 757f strike application for fire labeled wood or composite door and h.m. rim and vertical rod exit devices metal door preparation notes: rim exit devices installation. Yale 2100F Exit Device Template.
From www.buydoorhardwarenow.com
Yale 2100 Rim Exit Device Yale 2100F Exit Device Template rim exit devices installation instructions (single door or pairs) note: This template is an addition to the device template. Extend centerline of rod and strikes from “device template” to door top and bottom, on door face. 603f, 622f and 626f trim. The 2100(f) can be paired with. the 2100(f) is a rim exit device to be used. Yale 2100F Exit Device Template.
From doorcloser.com
Yale 2100F Fire Rated Rim Panic Bar Exit Device Yale 2100F Exit Device Template the 2100(f) is a rim exit device to be used with single doors or pairs of doors constructed of metal, wood or composite materials. This template is an addition to the device template. 2100f & 1800f rim fire exit devices with 757f strike application for fire labeled wood or composite door and h.m. rim exit devices installation. Yale 2100F Exit Device Template.
From exotyfscg.blob.core.windows.net
Yale Exit Device Parts Manual at Brenda Agnew blog Yale 2100F Exit Device Template 603f, 622f and 626f trim. the 2100(f) is a rim exit device to be used with single doors or pairs of doors constructed of metal, wood or composite materials. 2100f & 1800f rim fire exit devices with 757f strike application for fire labeled wood or composite door and h.m. rim and vertical rod exit devices metal. Yale 2100F Exit Device Template.
From americandoorproducts.com
Exit Device 2100F 36″ 757F 689 American Door Yale 2100F Exit Device Template With 1500(f), 2100(f), 6100(f), or 7100(f) series rim and vertical rod exit devices. the 2100(f) is a rim exit device to be used with single doors or pairs of doors constructed of metal, wood or composite materials. The 2100(f) can be paired with. 603f, 622f and 626f trim. Locate top latch/strike, bottom case and bottom. This template is. Yale 2100F Exit Device Template.
From www.rbadoor.com
Yale 757F Strike for 7100F and 2100F Devices Yale 2100F Exit Device Template With 1500(f), 2100(f), 6100(f), or 7100(f) series rim and vertical rod exit devices. The 2100(f) can be paired with. rim and vertical rod exit devices metal door preparation notes: Locate top latch/strike, bottom case and bottom. This template is an addition to the device template. 603f, 622f and 626f trim. 2100f & 1800f rim fire exit devices. Yale 2100F Exit Device Template.
From www.dkhardware.com
Yale Commercial 2100F48 689 2100F Fire Rated Rim Exit Device, Aluminum Painted Yale 2100F Exit Device Template providing a higher standard of ansi/bhma grade 1 performance, the 2100 series exit device is the right choice for meeting the. The 2100(f) can be paired with. With 1500(f), 2100(f), 6100(f), or 7100(f) series rim and vertical rod exit devices. 2100f & 1800f rim fire exit devices with 757f strike application for fire labeled wood or composite door. Yale 2100F Exit Device Template.
From hdsupplysolutions.com
Yale® 2100f Vertical Rod Exit Device 36" HD Supply Yale 2100F Exit Device Template rim and vertical rod exit devices metal door preparation notes: rim exit devices installation instructions (single door or pairs) note: Extend centerline of rod and strikes from “device template” to door top and bottom, on door face. Locate top latch/strike, bottom case and bottom. 603f, 622f and 626f trim. The 2100(f) can be paired with. the. Yale 2100F Exit Device Template.
From usermanual.wiki
Yale 2110, 2170, 1810 Surface Vertical Rod Exit Device Installation Instructions Yale 2100F Exit Device Template 603f, 622f and 626f trim. providing a higher standard of ansi/bhma grade 1 performance, the 2100 series exit device is the right choice for meeting the. The 2100(f) can be paired with. Locate top latch/strike, bottom case and bottom. rim exit devices installation instructions (single door or pairs) note: rim and vertical rod exit devices metal. Yale 2100F Exit Device Template.
From www.rbadoor.com
Yale 2100 Panic Device Yale 2100F Exit Device Template rim exit devices installation instructions (single door or pairs) note: 603f, 622f and 626f trim. This template is an addition to the device template. rim and vertical rod exit devices metal door preparation notes: Extend centerline of rod and strikes from “device template” to door top and bottom, on door face. The 2100(f) can be paired with.. Yale 2100F Exit Device Template.
From maraindustrial.com
Yale 2100F Rim Exit Device Mara Industrial Yale 2100F Exit Device Template This template is an addition to the device template. rim and vertical rod exit devices metal door preparation notes: the 2100(f) is a rim exit device to be used with single doors or pairs of doors constructed of metal, wood or composite materials. Extend centerline of rod and strikes from “device template” to door top and bottom, on. Yale 2100F Exit Device Template.
From www.autodoorandhardware.com
How to Install a Rim Panic Bar Automatic Door and Hardware Yale 2100F Exit Device Template 603f, 622f and 626f trim. rim exit devices installation instructions (single door or pairs) note: The 2100(f) can be paired with. the 2100(f) is a rim exit device to be used with single doors or pairs of doors constructed of metal, wood or composite materials. This template is an addition to the device template. rim and. Yale 2100F Exit Device Template.
From maraindustrial.com
Yale 2100F Rim Exit Device Mara Industrial Yale 2100F Exit Device Template rim and vertical rod exit devices metal door preparation notes: The 2100(f) can be paired with. the 2100(f) is a rim exit device to be used with single doors or pairs of doors constructed of metal, wood or composite materials. This template is an addition to the device template. rim exit devices installation instructions (single door or. Yale 2100F Exit Device Template.
From www.taccinc.com
2100 Series Economy Exit Devices TACC INC. Yale 2100F Exit Device Template This template is an addition to the device template. With 1500(f), 2100(f), 6100(f), or 7100(f) series rim and vertical rod exit devices. 2100f & 1800f rim fire exit devices with 757f strike application for fire labeled wood or composite door and h.m. Extend centerline of rod and strikes from “device template” to door top and bottom, on door face.. Yale 2100F Exit Device Template.
From uslocksupply.com
Yale 2100 Exit Device — Yale 2100F Exit Device Template Locate top latch/strike, bottom case and bottom. 603f, 622f and 626f trim. rim and vertical rod exit devices metal door preparation notes: The 2100(f) can be paired with. 2100f & 1800f rim fire exit devices with 757f strike application for fire labeled wood or composite door and h.m. the 2100(f) is a rim exit device to. Yale 2100F Exit Device Template.
From www.nexlar.com
Yale Commercial 2100F36695 2100F Fire Rated Rim Exit Device Nexlar Yale 2100F Exit Device Template This template is an addition to the device template. providing a higher standard of ansi/bhma grade 1 performance, the 2100 series exit device is the right choice for meeting the. Locate top latch/strike, bottom case and bottom. With 1500(f), 2100(f), 6100(f), or 7100(f) series rim and vertical rod exit devices. Extend centerline of rod and strikes from “device template”. Yale 2100F Exit Device Template.
From www.nexlar.com
Yale Commercial 2100F36689 2100F Fire Rated Rim Exit Device Nexlar Yale 2100F Exit Device Template The 2100(f) can be paired with. rim exit devices installation instructions (single door or pairs) note: rim and vertical rod exit devices metal door preparation notes: This template is an addition to the device template. 603f, 622f and 626f trim. Locate top latch/strike, bottom case and bottom. With 1500(f), 2100(f), 6100(f), or 7100(f) series rim and vertical. Yale 2100F Exit Device Template.
From www.edlocks.com
2100F36 630 Yale Fire Rated 36" Rim Exit Device Satin Stainless Steel Yale 2100F Exit Device Template providing a higher standard of ansi/bhma grade 1 performance, the 2100 series exit device is the right choice for meeting the. rim and vertical rod exit devices metal door preparation notes: rim exit devices installation instructions (single door or pairs) note: This template is an addition to the device template. the 2100(f) is a rim exit. Yale 2100F Exit Device Template.